Haier HB16FMAA, HB16FBAA, HB16FGAA, HB16FFGBAA, HB16FMAAA, HB16FBAAA, HB16FFGBAAA MANUALE USO

Page 1

User Manual

Refrigerator-Freezer

HB16FMAA HB16FBAA HB16FFGBAA HB16FFGBAA HB16FBAAA HB16FFGBAAA

GB

Page 2

Thank You

Thank you for purchasing a Haier Product.

Please read these instructions carefully before using this appliance. The instructions contain important information which will help you get the best out of the appliance and ensure safe and proper installation, use and maintenance.

Keep this manual in a convenient place so you can always refer to it for the safe and proper use of the appliance.

If you sell the appliance, give it away, or leave it behind when you move house, make sure you also pass this manual so that the new owner can become familiar with the appliance and safety warnings.

Legend

Warning – Important Safety information

General information and tips

Environmental information

Disposal

Help protect the environment and human health. Put the packaging in applicable containers to recycle it. Help to recycle waste of electrical and electronic appliances. Do not dispose appliances marked with this symbol with the household waste. Return the product to your local recycling facility or contact your municipal office.

Risk of injury or suffocation!

Refrigerants and gases must be disposed of professionally. Ensure that the tubing of the refrigerant circuit is not damaged before being properly disposed of. Disconnect the appliance from the mains supply. Cut off the mains cable and dispose of it. Remove the trays and drawers as well as the door catch and seals, to prevent children and pets to get closed in the appliance.

Page 3

Content

1- Safety information 4
2- Intended use 8
3 - Product description 9
4- Control panel
5- Use 11
6- Energy saving tips 19
7 - Equipment 20
8- Care and Cleaning 23
9- Troubleshooting 25
10-Installation 28
11- Technical Data
12- Customer Service

GB

3
Page 4

1-Safety information

Before switching on the appliance for the first time read the following safety hints!:

Before first use

  • ▶ Make sure there is no transport damage.
  • ► Remove all packaging and keep out of children's reach.
  • ► Wait at least two hours before installing the appliance in order to ensure the refrigerant circuit is fully efficient.
  • Handle the appliance always with at least two persons because it is heavy.

Installation

  • The appliance should be placed in a well-ventilated place. Ensure a space of at least 10 cm above and 10 cm around the appliance.
  • Never place the appliance in a damp area or location where it might be splashed with water. Clean and dry water splashes and stains with a soft clean cloth.
  • Do not install the appliance in direct sunlight or in the near of heat sources (e.g. stoves, heaters).
  • ► Install and level the appliance in an area suitable for its size and use.
  • Keep ventilation openings in the appliance or in the in-built structure clear of obstruction.
  • ► Make sure that the electrical information on the rating plate agrees with the power supply. If it does not, contact an electrician.
  • The appliance is operated by a 220-240 VAC/50 Hz power supply. Abnormal voltage fluctuation may cause the appliance to fail to start, or damage to the temperature control or compressor, or there may be an abnormal noise when operating. In such case, an automatic regulator shall be mounted.
  • ► Use a separate earthed socket for the power supply which is easy accessible. The appliance must be earthed.
  • ► Only for UK: The appliance's power cable is fitted with 3-cord (grounding) plug that fits a standard 3-cord (grounded) socket. Never cut off or dismount the third pin (grounding). After the appliance is installed, the plug should be accessible.
  • ► Do not use multi-plug adapters and extension cables.
  • Ensure that the power cable is not trapped by the refrigerator. Do not step on the power cable.
  • ► Do not damage the refrigerant circuit.
Page 5

1- Safety information

Daily use

  • This appliance can be used by children aged from 8 years and above and persons with reduced physical, sensory or mental capabilities or lack of experience and knowledge if they have been given supervision or instruction concerning use of the appliance in a safe way and understand the hazards involved.
  • Keep away children under 3 years of age from the appliance unless they are constantly supervised.
  • ► Children shall not play with the appliance.
  • If cool gas or other inflammable gas is leaking in the vicinity of the appliance, turn off the valve of the leaking gas, open the doors and windows and do not unplug a plug in the power cable of the refrigerator or any other appliance.
  • Notice that the appliance is set for operation at a specific ambient range between 10 and 43°C. The appliance may not work properly if it is left for a long period at a temperature above or below the indicated range.
  • Do not place unstable articles (heavy objects, containers filled with water) on top of the refrigerator, to ovoid personal injury caused by falling or electric shock caused by contact with water.
  • Do not pull on the door shelves. The door may be pulled slant, the bottle rack, may be pulled away, or the appliance may topple.
  • Open and close the doors only with the handles. The gap between the doors and between the doors and the cabinet is very narrow. Do not extend your hands in these areas to avoid pinching your fingers. Open or close the refrigerator doors only when there are no children standing within the range of door movement.
  • Do not store or use inflammable, explosive or corrosive materials in the appliance or in the vicinity.
  • ► Do not store medicines, bacteria or chemical agents in the appliance. This appliance is a household appliance. It is not recommended to store materials that require strict temperatures.
  • Never store liquids in bottles or cans (besides high percentage spirits) especially carbonated beverages in the freezer, as these will burst during freezing.
  • ► Check the condition of food if a warming in the freezer has taken place.
Page 6

1-Safety information

WARNING!

Daily use

  • Do not set unnecessarily low temperature in the refrigerator compartment. Minus temperatures may occur at high settings. Attention: Bottles can burst.
  • Do not touch frozen goods with wet hands (wear gloves). Especially do not eat ice Iollies immediately after removal from the freezer compartment. There is the risk to freeze or the formation of frost blisters. FIRST aid: keep immediately under running cold water. Do not pull away!
  • Do not touch the inside surface of the freezer storage compartment when in operation, especially with wet hands, as your hands may freeze onto the surface.
  • Unplug the appliance in the event of a power interruption or before cleaning. Allow at least 5 minutes before restarting the appliance, as frequent starting may damage the compressor.
  • Do not use electrical devices inside the food storage compartments of the appliance, unless they are of the type recommended by the manufacturer.

Maintenance / cleaning

  • Make sure children are supervised if they carry out cleaning and maintenance.
  • Disconnect the appliance from the electrical supply before undertaking any routine maintenance. Allow at least 5 minutes before restarting the appliance, as frequent starting may damage the compressor.
  • ► Hold the plug, not the cable, when unplugging the appliance.
  • Do not scrape off frost and ice with sharp objects. Do not use sprays, electric heaters like heater, hair dryer, steam cleaners or other sources of heat in order to avoid damage to the plastic parts.
  • ► Do not use mechanical devices or other means to accelerate the defrosting process, other than those recommended by the manufacturer.
  • ► If the supply cord is damaged, it must be replaced by the manufacturer, its service agent or similarly qualified persons in order to avoid a hazard.
  • Do not try to repair, disassemble or modify the appliance by yourself. In case of repair please contact our customer service.
Page 7

1- Safety information

Maintenance / cleaning

  • Eliminate the dust on the back of the unit at least once in the year to avoid hazard by fire, as well as increased energy consumption.
  • ► Do not spray or flush the appliance during cleaning.
  • ► Do not use water spray or steam to clean the appliance.
  • Do not clean the cold glass shelves with hot water. Sudden temperature change may cause the glass to break.
Refrigerant gas information

The appliance contains the flammable refrigerant ISOBUTANE (R600a). Make sure the refrigerant circuit is not damaged during transportation or installation. Leaking refrigerant may cause eye injuries or ignite. If a damage has occurred, keep away open fire sources, thoroughly ventilate the room, do not plug or unplug the power cords of the appliance or any other appliance. Inform the customer service.

In case of eyes get into contact with the refrigerant, rinse immediately it under running water and call immediately the eye specialist.

When you close the door, the vertical door beam on the left door should be bent inside (1).

If you try to close the left door and the vertical door beam is unbent (2), you should bend it firstly, otherwise the door beam will hit the fixing shaft or right door. Thus a damage to the door beam or a leak will occur.

There is a heating thread inside the vertical door beam. The temperature of the surface will rise a little, which is normal and won't affect the function of refrigerator.

Page 8

2-Intended use

2.1 Intended use

This appliance is intended for cooling and freezing food. It has been designed exclusively for use in dry-interior house-holds. It is not intended for commercial or industrial use.

GB

Changes or modifications to the device are not allowed. Unintended use may cause hazards and loss of warranty claims.

2.2 Accessories

Check the accessories and literature in accordance with this list (Fig.: 2.2):

Page 9

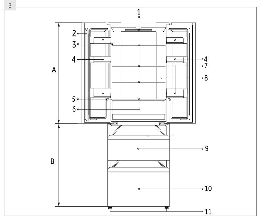
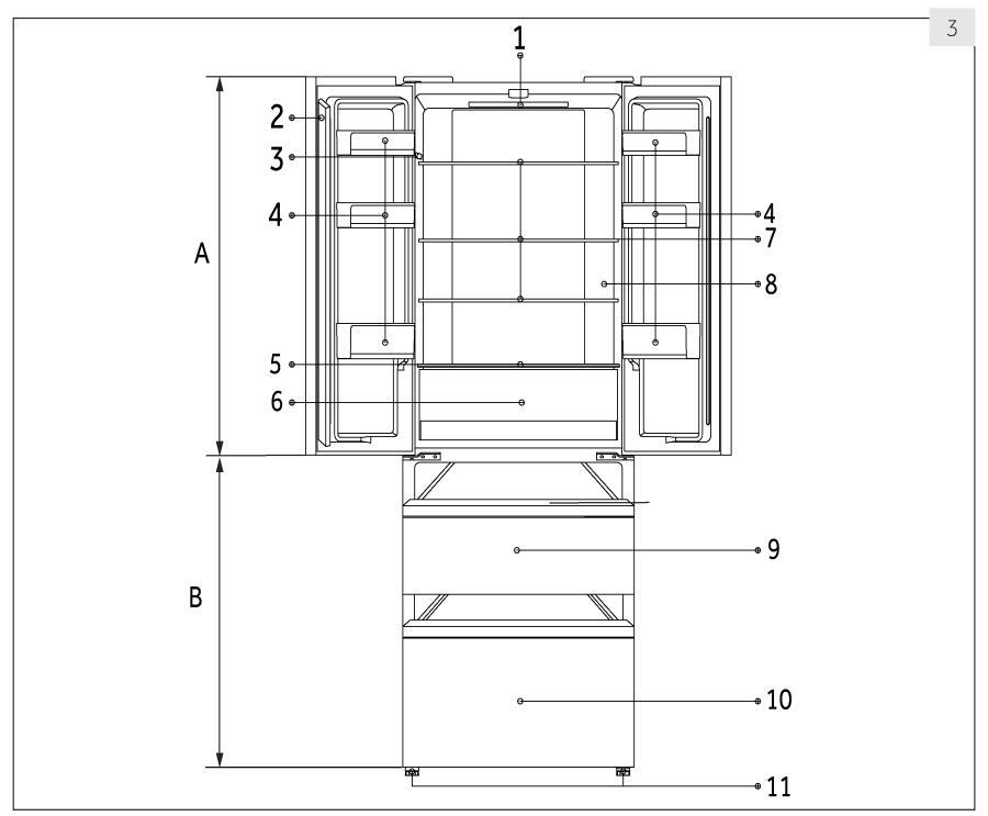
3 - Product description

Notice: Differences

GR

Due to technical changes and different models, some of the illustrations in this manual may differ from your model.

Picture of appliance (Fig. 3)

A: Refrigerator compartment

  • 1 Refrigerator LED lamp
  • 2 Door beam
  • 3 Rating plate
  • 4 Door rack
  • 5 My Zone drawer glass cover
  • 6 My Zone drawei
  • 7 Glass shelf
  • 8 O.K.-temperature indicator (optional)
B: Freezer compartment

  • 9 Upper freezer storage drawer
  • 10 Lower freezer storage drawer
  • 11 Adjustable feet
Page 10

4- Control panel

Control panel (Fig. 4)

Keys:

  • A Fridge temperature setting
  • B Freezer temperature setting
  • C MyZone setting
  • D Fuzzy mode and Holiday function on/off
  • E Super-Cool function on/off
  • F Super-Freeze function on/off
  • G Panel lock/unlock
Indicators:

  • a Temperature fridge compartment
  • b Temperature freezer compartment
  • c My Zone function
  • d1 Holiday function
  • d2 Fuzzy mode
  • e Super-Cool function
  • f Super-Freeze function
  • g Panellock
Page 11
5.1 Before first use

  • Remove all packaging materials, keep them out of children's reach and dispose them in an environmentally friendly manner.
  • Clean the inside and outside of the appliance with water and a mild detergent before putting any food in it.
  • After the appliance has been levelled and cleaned, wait for at least 2 hours before connecting it to the power supply. See Section INSTALLATION.
  • Precool the compartments at high settings before loading with food. The function Super-Freeze helps to cool down the freezer compartment quickly.
  • The refrigerator temperature and freezer temperature are automatically set to 5° C and -18° C respectively. These are the recommended settings. If desired, you can change these temperatures manually. Please see MANUAL ADJUSTING MODE.
5.2 Sensor keys

The buttons on the control panel are sensor keys, which already respond when lightly touched with the finger.

5.3 Switch on /off the appliance

The appliance is in operation as soon as it is connected to the power supply.

When the appliance is powered on for the first time, the actual refrigerator and freezer temperatures ("a" and "b") are displayed. The display will flash. If the doors are closed it will switch off after 30 seconds. Maybe the panel lock is active.

Notice: Presettings

  • ► The appliance is preset to the recommended temperature of 5°C (refrigerator) and - 18°C (freezer). Under normal ambient condition you need not to set a temperature.
  • ► The presetting function for the My Zone drawer is 0°C Fresh.
  • When the appliance is switched on after disconnection from the main power supply, it may take up to 12 hours for the correct temperatures to be reached.

Empty the appliance before switching off. To switch off the appliance,pull the power cord out off the power socket.

5.4 Standby-mode

The display screen turns off automatically 30 seconds after pressing a key. The display will be automatically locked. It lights up automatically by touching any key or opening the door/ drawer.

Page 12

5-Use

5.5 Lock/unlock panel

Notice: Panel lock

The control panel is automatically blocked against activation if 30 seconds no key is touched. For any settings the control panel must be unlocked.

GB

  • ► Touch key "G" for 3 seconds to block all panel elements against activation (Fig. 5.5). The related indicator "d" is now displayed.
  • ► For unlocking touch again the key.
5.6 Door opening alarm

When one of the refrigerator doors is opened for more than 1 minute, the door opening alarm will sound. The alarm can be silenced by closing the door. If the door is left open for more than 7 minutes, the light inside the refrigerator and control panel illumination will automatically switch off.

5.7 Select the working mode

You may need to select one of the following two ways to set the appliance:

5.7.1 Fuzzy mode

f you do not have any special requirements, we recomnend that you use fuzzy mode :

In the Fuzzy mode, the appliance can automatically adjust the temperature setting according to the ambient temperature and temperature change in the appliance. This function is totally hand free.

  • 1. Unlock the panel by touching key "G" if it is locked (Fig. 5.5).
  • 2. Touch key "D" (Fuzzy) (Fig. 5.7.1-1).
  • 3. Indicator "d2" illuminates and the function is activated (Fig. 5.7.1-2).

By repeating the above steps or selecting an other function this function can be switched off again.

5.7.2 Manual adjusting mode

If you want to manually adjust the temperature of the appliance in order to store a particular food, you can set the temperature via a temperature adjusting key:

1 Notice: Conflict with other functions

The temperature cannot be adjusted, if any other function (Super-Cool, Super-Freeze, Hoilday or Fuzzy) is activated or the display is locked. The corresponding indicator will flash accompanying with a buzzer.

Page 13
5.7.2.1 Adjust the temperature for fridge

  • 1. Unlock the panel by touching key "G" if it is locked (Fig. 5.5).
  • Touch key "A" (Fridge) to select the fridge compartment. The actual temperature in the fridge compartment is displayed (Fig. 5.7.2-1).
  • 3. Touch sequentially key "A" (Fridge) until the desired value of temperature is flashing (Fig. 5.7.2-2). A signal will sound at each key touch. The temperature increases in sequences of 1°C from a minimum of 1°C to a maximum of 9°C. The optimum temperature in the fridge is 5 °C. Colder temperatures mean unnecessary energy consumption.
  • 4. Touch any key except "A" (Fridge) to confirm, or the setting confirms automatically after 5 seconds. Displayed temperature stops flashing.
5.7.2.2 Adjust the temperature for freezer

  • 1. Unlock the panel by touching key "G" if it is locked (Fig. 5.5).
  • Touch key "B" (Freezer) to select the freezer compartment. The actual temperature in the freezer compartment is displayed (Fig. 5.7.2-3).
  • Touch sequentially key"B" (Freezer) until the desired value of temperature is flashing (Fig. 5.7.2-4). A signal will sound at each key press. The temperature increases in sequences of 1°C from -15°C to -24°C. The optimum temperature in the freezer is -18°C. Colder temperatures mean unnecessary energy consumption.
  • Touch any key except "B" (Freezer) to confirm, or the setting confirms automatically after 5 seconds. Displayed temperature stops flashing.

) Notice: Influences on temperatures

The indoor temperatures are influenced by the following factors:

  • ► Ambient temperature
  • ► Frequency of door opening

  • ► Amount of stored foods
  • ► Installation of the appliance
Page 14

5.8 Super-Cool function

Switch on the Super-Cool function if larger quantity of food should be stored (for example after the purchase). The Super-Cool function accelerates the cooling of fresh food and protects the goods already stored from undesirable warming. The factory setting temperature is 0 to +1°C.

GB

  • 1. Unlock the panel by touching key "G" if it is locked (Fig. 5.5).
  • 2. Touch key "E" (Super-Cool) (Fig. 5.8.-1).
  • 3. Indicator "e" illuminates and the function is activated (Fig. 5.8.-2).

By repeating the above steps or selecting an other function this function can be switched off again.

Notice: Automatically switch off

This function will be automatically disabled when the temperature from + 2 °C is reached or the function has lasted for more than 3 hours.

5.9 Super-Freeze function

Fresh food should be frozen as quickly as possible to the core. This preserved the best nutritional value, appearance and taste. The Super-Freeze function accelerates the freezing of fresh food and protects the goods already stored from undesirable warming. If you need to freeze a large amount of food once, it is recommended to set the Super-Freeze function on ahead for 24h before the usage of frozen room. The factory setting temperature is -24 °C.

  • 1. Unlock the panel by touching key "G" if it is locked (Fig. 5.5).
  • 2. Touch key "F" (Super-Freeze) (Fig. 5.9.-1).
  • 3. Indicator "f" illuminates and the function is activated (Fig. 5.9.-2).

By repeating the above steps or selecting an other function this function can be switched off again.

1 Notice: Automatically switch off

The Super-Freeze function will automatically switch off after 50 hours. The appliance is then operated at the previously set temperature.

Page 15
5.10 Holiday function

This function sets the fridge temperature permanently to 17°C.

This allows to keep the door of the empty fridge closed without causing an odour or mold - during a long absence (e.g. during holiday). The freezer compartment is free for your setting.

  • 1. Unlock the panel by touching key "G" if it is locked (Fig. 5.5).
  • 2. Touch key "D" (Fuzzy) for 3 seconds Fig. 5.10). Indicator "d1" illuminates .and the function is activated.

By repeating the above steps or selecting an other function this function can be switched off again.

5.11 My Zone drawer

The fridge compartment is equipped with a My Zone drawer (Fig. 5.11). Following functions are available:

5.11.1 Function Fruit & Veg.

This function is suitable to store fresh fruits and vegetables.

Cold-sensitive fruits like pineapple, avocado, bananas, grapefruits and vegetables such as potatoes, aubergines, beans, cucumbers, zucchini and tomatoes and cheese should not be stored in the My Zone drawer.

5.11.2 Function 0°C Fresh

This function sets the temperature in the MyZone drawer to 0 °C. Suitable to store of fresh food such as meat or instant products. . Most foods stay fresh at 0 ° C, but not frozen.

Notice: 0°C Fresh function

► Due to different water contents of meat, some meat with more moisture will be frozen at temperatures lower than 0 °C. So "immediately cut" meat should be stored in My-Zone box, with temperatures min. 0 °C.

Page 16

5-Use

5.11.3 Q-Cool (Quick-Cool)

This function allows to quick cool canned beverages in a short time. The temperature in MyZone compartment is set to +2 ° C.

1 Notice: MyZone drawer

  • One of the three functions of the My Zone compartment must always be activated
  • ► To reduce the refrigerator compartment temperature use the Q-Cool function. To increase it, use the Fruit & Veg. function.

5.11.4 Select function for MyZone box

  • 1. Unlock the panel by touching key "G" if it is locked (Fig. 5.5)
  • 2. Touch sequentially "C" (MyZone) until the desired function "c" is flashing (Fig. 5.11.4).
  • 3. After a few seconds indicator "c" will shine permanently and the setting is confirmed.
Page 17
5.12 Tips on storing fresh food
5.12.1 Storing into the refrigerator compartment

  • ► Keep your fridge temperature below 5°C.
  • ▶ Hot food must be cooled to room temperature before storing in the appliance.
  • Foods stored in the refrigerator should be washed and dried before storing
  • Food to be stored should be properly sealed to avoid odour or taste alterations.
  • Do not store excessive quantities of food. Leave spaces between foods to allow cold air flowing around them, for a better and more homogeneous cooling.
  • ► Foods eaten daily should be stored at the front of the shelf.
  • Leave a gap between foods and the inner walls, allowing air flowing. In special way don't store foods against the rear wall: foods could freeze against rear wall. Avoid direct contact of food (especially oily or acidic food) with the inner liner, as oil/acid can erode the inner liner. Clean away oily/acid dirt whenever it is found.
  • ► Frozen food can be gently thawed in the refrigerator compartment. This saves energy.
  • The ageing process of fruit and vegetables such as courgettes, melons, papaya, banana, pineapple, etc. can be accelerated in the refrigerator. Therefore, it is not advisable to store them in the refrigerator. However, the ripening of strongly green fruits can be promoted for a certain period. Onions, garlic, ginger and other root vegetables should also be stored at room temperature.
  • Unpleasant odours inside the fridge are a sign that something has spilled and cleaning is required. See CARE AND CLEANING.
  • Different foods should be placed in different areas according to their properties (Fig.: 5.12.1).
    • 1 Butter, cheese, eggs, spices, etc.
    • 2 Eggs, canned food, spices, etc
    • 3 Drinks and bottled foods.
    • 4 Pickled foods, canned food, etc.
    • 5 Meat products, snack foods, etc.

6/7 Pasta, milk, tofu, dairy, etc.

8 Moist Zone drawer: Fruit, vegetables, salad (Fruit & Veg.) canned beverages (Q-Cool) Rraw fresh food (0°C Fresh)

Page 18

5.12.2 Storage into the freezer compartment

  • ► Keep the freezer temperature at- 18°C.
  • 24 hours before freezing switch on the Super-Freeze function; -for small quantities of food 4-6 hours are sufficient.

GB

  • Hot food must be cooled to room temperature before storing in the freezer compartment.
  • ► Food cut into small portions will freeze faster and be easier to defrost and cook. The recommended weight for each portion is less than 2.5 kg
  • It is better to pack food before putting it into the freezer. The outside of the packaging must be dry to avoid bags sticking together. Packaging materials should be odour-free, airtight, non-poisonous and nontoxic.
  • In order to avoid expiration of storage periods, please note the freezing date, time limit and name of the food on the packaging according to the storage periods of different foods.
  • WARNING!: Acid, alkali and salt etc. could erode the internal surface of the freezer. Do not place the food having these substances (e.g. sea fish) directly on the internal surface. Salt water in the freezer should be cleaned up immediately.
  • Do not exceed the food storage times recommended by the manufacturers. Only take the required amount of food out of the freezer.
  • Consume defrosted food quickly. Defrosted food cannot be re-frozen unless it is first cooked, otherwise it may bless edible.
  • Do not load excessive quantities of fresh food in the freezer compartment. Refer to the freezing capacity of the freezer – See TECHNICAL DATA or data at the type plate.
  • Food can be stored in the freezer at a temperature of at least -18°C for 2 to 12 months, depending on its properties (e.g., meat: 3-12 months, vegetables: 6-12 months)
  • ► When freezing fresh food, avoid bringing it in contact with already frozen food. Risk of thawing!
5.12.3 When storing commercially frozen foods, please follow these guidelines:

  • Always follow manufacturers' guidelines for the length of time you should store food for. Do not exceed these guidelines!
  • Try to keep the length of time between purchase and storage as short as possible to preserve food quality.
  • ► Buy frozen foods, which have been stored at a temperature of -18 °C or below.
  • Avoid buying food which has ice or frost on the packaging This indicates that the products might have been partially defrosted and refrozen at some point – temperature rises affect the quality of food.
Page 19

6- Energy saving tips

Energy saving tips

  • Make sure the appliance is properly ventilated (see INSTALLATION).
  • ► Do not install the appliance in direct sunlight or in the near of heat sources (e.g. stoves, heaters).
  • Avoid unnecessarily low temperature in the appliance. The energy consumption increases the lower the temperature in the appliance is set.
  • ► Functions like SUPER-FREEZE consume more energy.
  • ► Allow warm food to cool down before placing it in the appliance.
  • Open the appliance door as little and as briefly as possible.
  • Do not overfill the appliance to avoid obstructing the air flow.
  • Avoid air within the food packaging.
  • ► Keep door seals clean so that the door always closes correctly.
  • Defreeze frozen food in the fridge storage compartment
Page 20

7- Equipment

Notice: Differences depending on model

Due to different models, your product may not have all of the following features. Please refer to chapter PRODUCT DESCRIPTION.

7.1 Multi-air-flow

The refrigerator is equipped with a multi-air-flow system, with which cool air flows are located on every shelf level (Fig. 7.1). This helps to maintain a uniform temperature to ensure that your food is kept fresher for longer.

7.2 Adjustable shelves

The height of the shelves can be adjusted to fit your storage needs.

  • 1. To relocate a shelf, remove it first by uplifting its hind edge (1) and pulling it out (2) (Fig. 7.2).
  • 2. To reinstall it, put it on the lugs on both sides and push it to the most rearward position until the rear of the shelf is fixed inside the slots in the sides

1 Notice: Shelves

Ensure that all ends of a shelf are level.

7.3 Removable door racks

The door racks can be removed for cleaning:

Place hands on each side of the rack, lift it upwards (1) and pull it out (2) (Fig. 7.3).

In order to insert the door rack, the above steps are carried out in reverse order.

7.4 My Zone drawer

For use and setting of the My Zone compartment (Fig. 7.4) please check section USE (My Zone drawer).

Page 21

7 - Equipment

7.5 OPTIONAL: OK-temperature indicator

The OK-temperature (Fig. 7.5) indicator can be used to determine temperatures below +4°C. Gradually reduce the temperature if the sign does not indicate "OK".

Notice: OK-sticker

When the appliance is switched on, it may take up to 12 hours for the correct temperatures to be reached.

7.6 Removable freezer drawer

To remove the drawer out, pull out to the maximum extent (1), lift and remove (2) (Fig. 7.6),

In order to insert the drawer, the above steps are carried out in reverse order.

2 2 7.6

7.7 Removable connection rod

The rod can be removed after removing the top freezer drawer (Fig. 7.7):

  • 1. Press the bucket (1) of plastic holder (A) and move out (2).
  • 2. Repeat step 1 on the other side,
  • 3. Remove (3) the connecting rod (B).

In order to insert the connection rod, the above steps are carried out in reverse order.

7.8 3D-freezer drawer

Thefreezerdrawers (Fig. 7.8) can be extended straightly and completely. They are mounted on easy-roll telescopic runners, so that you can store and remove the freezing good comfortable. Because of the automatic door closing mechanism the handling is easy and you save energy

Do not overload the drawers: Max. load of each drawer: 35 kgl.

(HB16FM*** / HB16FG***/HB16FB***)

Page 22

7-Equipment

7.9 Ice cube tray

  • .. Fill the ice cube tray 3/4 full of water and put it into one of the freezer storage drawer (Fig. 7.9-1).
  • 2. Twist the ice cube tray slightly or hold it under flowing water to loosen the ice cubes (Fig. 7.9-2),
7.10 Wine rack & Egg tray

  • 1. Keep it flat.
  • 2. Follow the gate well to put wine((Fig. 7.10- 1)
  • 3. The reverse side is for eggs (Fig. 7.10-2)
7.11 The Light

The LED interior light comes on when the door is opened. The performance of the lights is not affected by any of the appliances other settings

Page 23

8- Care and Cleaning

visconnect the appliance from the power supply before cleaning.

8.1 General

GB

Clean the appliance when only little or no food is stored.

The appliance should be cleaned every four weeks for good maintenance and to prevent bad stored food odours.

  • ► Do not clean the appliance with hard brushes, wire brushes, detergent powder, petrol, amyl acetate, acetone and similar organic solutions, acid or alkaline solutions. Please clean with special refrigerator detergent to avoid damage.
  • ► Do not spray or flush the appliance during cleaning.
  • > Do not use water spray or steam to clean the appliance.
  • Do not clean the cold glass shelves with hot water. Sudden temperature change may cause the glass to break.
  • ► Do not touch the inside surface of the freezer storage compartment, especially with wet hands, as your hands may freeze onto the surface.
  • ► In case of heating check the condition of frozen goods.
  • ► Always keep the door gasket clean.
  • Clean the inside and housing of the appliance with a sponge dampened in warm water and neutral detergent (Fig. 8.1).
  • ► Rinse and dry with soft cloth.
  • Do not clean any of the parts of the appliance in a dishwasher.
  • Clean the accessory only with warm water and mild neutral detergent.
  • Allow at least 5 minutes before restarting the appliance as frequent starting may damage the compressor.
8.2 Defrosting

The defrosting of the refrigerator and the freezer compartment are done automatically; no manual operation is needed.

8.3 Replacing the LED-lamp

Do not replace the LED lamp yourself, it must only be replaced by either the manufacturer or the authorised service agent.

Page 24

8- Care and Cleaning

The lamp adopts LED as its light source, featuring low energy consumption and long service life. If there is any abnormality, please contact the customer service . See CUSTOMER SERVICE.

Parameters of the lamp:

Voltage 12V; Max Power: 2 W

8.4 Removable auxiliary door gaskets

There are six auxiliary door gaskets on the upper and lower freezer drawer.

GB

  • 1. Locate the five indicated door gaskets on the upper and lower freezer drawer (Fig. 8.4-1.).
  • 2. Make sure the bent slices of the gaskets point inwards when attaching (Fig. 8.4-2.).
  • 3. Locate the lower gasket of the upper drawer as indicated (Fig. 8.4-3.).
  • 4. Make sure the bent slice of this gasket points downwards when attaching (Fig. 8.4-4.).

You get these gaskets as well as the revolving door / drawer gaskets via the customer service (see warranty card).

8.5 Non-use for a longer period

If the appliance is not used for an extended period of time, and you will not use the Holiday-function for the refrigerator:

  • ► Take out the food.
  • Unplug the power cord.
  • Clean the appliance as described above.
  • Keep the door and freezer drawers/door open to prevent the creation of bad odours inside.

🚺 Notice: Switch off

Turn the appliance off only if strictly necessary.

8.6 Moving the appliance

  • 1. Remove all food and unplug the appliance.
  • 2. Secure shelves and other moveable parts in the fridge and the freezer with adhesive tape.
  • 3. Do not tilt the refrigerator more than 45° to avoid damaging the refrigerating system.

WARNING

  • Do not lift the appliance by its handles.
  • Never place the appliance horizontally on the ground.
Page 25

9- Troubleshooting

Many occuring problems could be solved by yourself without specific expertise. In case of a problem please check all shown possibilities and follow below instructions before you contact an after sales service. See CUSTOMER SERVICE.

  • ► Before maintenance, deactivate the appliance and disconnect the mains plug from the mains socket.
  • Electrical equipment should be serviced only by qualified electrical experts, because improper repairs can cause considerable consequential damages.
  • A damaged supply should only be replaced by the manufacturer, its service agent or similarly qualified persons in order to avoid a hazard.
Problem Possible Cause Possible Solution
The compressor does not work. • Mains plug is not connected in the mains socket. Connect the mains plug.
• The appliance is in the defrosting cycle. • This is normal for an automatic defrosting.
The appliance runs frequently or runs • The indoor or outdoor tempera-
ture is too high.
• In this case, it is normal for the appliance to run longer.
for a too long pe-
riod of time.
• The appliance has been off power for a period of time. • Normally, it takes 8 to 12 hours for the appliance to cool down completely.
A door/drawer of the appliance is not tightly closed. • Close the door/drawer and ensure
the appliance is located on a level
ground and there is no food or
container jarring the door.
• The door/drawer has been opened too frequently or for too long. • Do not open the door/drawer too frequently.
The temperature setting for the freezer compartment is too low. • Set the temperature higher until a satisfactory refrigerator tempera-
ture is obtained. It takes 24 hours for the refrigerator temperature to become stable.
The door/drawer gasket is dirty,
worn, cracked or mismatched.
Clean the door/drawer gasket or
replace them by the customer
service.
• The required air circulation is not guaranteed. Ensure adequate ventilation.
The inside of the refrigerator is dirty • The inside of the refrigerator needs cleaning. Clean the inside of the refrigera-
tor.
and/or smells. • Food of strong odour is stored in the refrigerator. • Wrap the food thoroughly.
9.1 Troubleshooting table
Page 26

9- Troubleshooting

Problem Possible Cause Possible Solution
It is not cold one uph
inside the appli-
ance.
The temperature is set too high. The warm apped has been stored. Reset the temperature.
Too warm goous has been stored. storing them.
• Too much food has been stored at one time. Always store small quantities of food.
• The goods are too close to each other. • Leave a gap between several foods allowing air flowing.
• A door/drawer of the appliance is not tightly closed. Close the door/drawer.
• The door/drawer has been opened too frequently or for too long. • Do not open the door/drawer too frequently.
It is too cold in- • The temperature is set too low. Reset the temperature.
side the appli-
ance.
• The Power-Freezer function is ac-
tivated or is running too long.
• Switch off the Power-Freezer function.
Moisture forma-
tion on the inside
• The climate is too warm and too damp. Increase the temperature.
of the refrigerator compartment. • A door/drawer of the appliance is not tightly closed. • Close the door/drawer.
• The door/drawer has been opened too frequently or for too long. • Do not open the door/drawer too frequently.
• Food containers or liquids are left open. Let hot foods cool to room tem-
perature and cover foods and li-
quids.
Moisture accu-
mulates on the
refrigerators out-
The climate is too warm and too damp. This is normal in damp climate and
will change when the humidity de-
creases.
side surface or be-
tween the doors/
door and drawer.
  • The door/drawer is not closed
    tightly. The cold air in the appliance
    and the warm air outside it con-
    densates.
Ensure that he door/drawer is tightly shut.
Strong ice and frost in the freez- The goods were not adequately packaged. Always pack the goods well.
er compartment. • A door/drawer of the appliance is not tightly closed. Close the door/drawer.
• The door/drawer has been opened too frequently or for too long. • Do not open the door/drawer too frequently.
• The door/drawer gasket is dirty, worn, cracked or mismatched. • Clean the door/drawer gasket or replace them by new ones.
• Something on the inside prevents the door/drawer to close properly. • Reposition the shelves, door racks, or internal containers to al-
low the door/drawer to close.
The appliance
makes abnormal
• The appliance is not located on level ground. Adjust the feet to level the appli-
ance.
sounds. The appliance touches some ob-
iect around it.
Remove objects around the appli-
ance.
Page 27

9- Troubleshooting

Problem Possible Cause Possible Solution
A slight sound is
to be heard simi-
lar to that of flow-
ing water.
This is normal. • -
You will hear an alarm beep. • The fridge storage compartment door is open. Close the door or silence the alarm manually.
You will hear a faint hum. • The anti-condensation system is working. • This prevents condensation and is normal.
The interior lighting
or cooling system
• Mains plug is not connected in the mains socket. Connect the mains plug.
does not work. • The power supply is not intact. Check the electrical supply to
the room. Call the local electricity
company!
• The LED-lamp is out of order. • Please call the service for chang-
ing the lamp.
The sides of the cabinet and door strip get warm. This is normal. • -
9.2 Power interruption

In the event of a power cut, food should remain safely cold for about 20 hours. Follow these tips during a prolonged power interruption, especially in summer:

  • Open the door/drawer as few times as possible.
  • Do not put additional food into the appliance during a power interruption.
  • If prior notice of a power interruption is given and the interruption duration is longer than 20 hours, make some ice and put it in a container in the top of the refrigerator compartment.
  • An inspection of the goods is required immediately after the interruption.
  • As temperature in the refrigerator will rise during a power interruption or other failure, the storage period and edible quality of food will be reduced. Any food that defrosts should be either consumed, or cooked and refrozen (where suitable) soon afterwards in order to prevent health risks.
Notice: Memory function during power interruption

After restoration of power the appliance continues with the settings that were set before the power failure.

Page 28
10.1 Unpacking

  • The appliance is heavy. Always handle with at least two persons.
  • Keep all packaging materials out of children's reach and dispose them in an environmentally friendly manner.
  • Take the appliance out of the packaging.
  • Remove all packaging materials
10.2 Environmental conditions

The room temperature should always be between 10° C and 43° C, since it can influence the temperature inside the appliance and its energy consumption. Do not install the appliance near other heat-emitting appliances (ovens, refrigerators) without isolation.

10.3 Space requirement

Required space when door is opened (Fig. 10.3):

Wi
in r
dth
nm
Depth
in mm
Distance to wall
in mm
W1 W2 D1 D2 D3 D4
700 1188 600 887 966 100

GB

10.4 Ventilaton cross-section

To achieve sufficient ventilation of the appliance for safety reasons, the information of the required ventilation cross sections must be observed (Fig. 10.5).

Page 29
10.5 Aligning the appliance

GB

The appliance should be placed on a flat and solid surface.

  • 1. Tilt the appliance slightly backwards (Fig. 10.5).
  • 2. Set the feet to the desired level.
  • 3. The stability can be checked by alternately bumping on the diagonals. The slightly swaying should be the same in both directions. Otherwise the frame can warp; possible leaking door seals are the result. A low tendency to the rear facilitates the closing of the door.
10.6 Fine tuning of the doors

If the doors are not in one level, this mismatch can be remedied by following:

10.6.1 Using adjustable foot

Rotate the adjustable foot according to the direction of arrow i(Fig. 10.6-1) to turn up or down the foot.

10.6.2 Using spacers

  • ► Open the upper door and lift it.
  • Carefully clip the spacer (enclosed in the accessory bag) in the white plastic ring of the middle hinge by hand or using tools like pliers (Fig. 10.6-2). Do not scratch or bruise the door.

In the tuture use of refrigerator, doors uneven phenomenon may occur to the weight of stored food. Then please adjust according to the above methods.

Page 30

10.7 Waiting time

To the maintenance-free lubrication oil is located in the capsule of the compressor. This oil can get through the closed pipe system during slanting transport. Before connecting the appliance to the power supply you have to wait 2 hours (Fig. 10.7) so that the oil runs back into the capsule,

10.8 Electrical connection
Before each connection check if:

  • ▶ power supply, socket and fusing are appropriate to the rating plate.
  • ▶ the power socket is earthed and no multi-plug or extension.
  • ► the power plug and socket are strictly according.

Connect the plug to a properly installed household socket

To avoid risks a damaged power cord must be replaced by the customer service (see warranty card).

When positioning the appliance, ensure the supply cord is not trapped or

damaged.

Do not locate multiple portable socket-outlets or portable power supplies at the rear of the appliance.

Taking care to avoid causing a fire by igniting flammable material.

Page 31
11.1 Product fiche according to regulation EU No. 1060/2010
Trade mark Haier
Model identifier HB16FMAA / HB16FGAA
HB16FBAA / HB16FFGBAA
HB16FMAAA
HB16FBAAA/HB16FFGBAAA
Category of the model Refrigerato or-freezer
Energy efficiency class A+ A++
Annual energy consumption (kWh/year) 1) 387 305
Storage volume cooling (L) 303 303
Storage volume freezing (L) **** 121 121
Star rating * ***
Temperature of other compartments > 14°C C Non applicable
Frostfree system Yes
Power cut safe (h) 20 )
Freezing capacity (kg/24h) 14 ļ
Climate class
This appliance is intended to be used at an
ambient temperature between
10 °C and 43°C.
SN/N/ST/T
Airborne acoustical noise emissions
(db(A) re 1pW)
40 38
Construction type Freestanding

1)based on standard test results for 24 hours. Actual energy consumption will depend on how the appliance is used and where it is located.

11.2 Additional technical data
Total volume (L) 485
Net volume (L) 424
Voltage / Frequency 220 240V ~/ 50Hz
Input power (W) 120
Input current (A) 1.5
Main fuse (A) 16
Coolant/amount HB16FGAA/HB16FMAA/HB16FBAA/HB16FFGBAA: R600a/65g
HB16FMAAA/HB16FBAAA/HB16FFGBAAA: R600a /62g
Dimensions (D/W/H in mm) 675x700x1900
11.3 Standards and directives (6

This product meets the requirements of all applicable EC directives with the corresponding harmonised standards, which provide for CE marking.

Page 32

12- Customer Service

We recommend our Haier Customer Service and the use of original spare parts. If you have a problem with your appliance, please first check section TROUBLESHOOTING.

GB

If you cannot find a solution there, please contact

  • ▶ your local dealer or
  • the Service & Support area at www.haier.com where you can find telephone numbers and FAQs and where you can activate the service claim.

To contact our Service, ensure that you have the following data available. The information can be found on the rating plate.

Model _____

Serial No.

Also check the Warranty Card supplied with the product in case of warranty.

For general business enquiries please find below our addresses in Europe:

European Haier addresses
Country* Postal address Country* Postal address
Italy Haier Europe Trading SRL
Via De Cristoforis, 12
21100 Verese
ITALY
France Haier France SAS
3-5 rue des Graviers
92200 Neuilly sur Seine
FRANCE
Spain
Portugal
Haier Iberia SL
Pg. Garcia Faria, 49-51
08019 Barcelona
SPAIN
Belgium-FR
Belgium-NL
Netherlands
Luxembourg
Haier Benelux SA
Anderlecht
Route de Lennik 451
BELGIUM
Germany
Austria
Haier Deutschland GmbH
Hewlett-Packard-Str. 4
D-61352 Bad Homburg
GERMANY
Poland
Czechia
Haier Poland Sp. zo.o.
United
Kingdom
Haier Appliances UK Co.Ltd.
One Crown Square
Church Street East
Woking, Surrey, GU21 6HR
UK
Hungary
Greece
Romania
Russia
AI. Jerozoiimskie 1818
02-222 Warszawa
POLAND

*For more information please refer to www.haier.com

Page 33

GB

Page 34

Page 35

Manuel d'utilisation

Réfrigérateur-congélateur

HB16FMAA HB16FBAA HB16FGAA HB16FFGBAA HB16FMAAA HB16FBAAA HB16FFGBAAA

Haier

FR

Page 36
Nous vous remercions d'avoir acheté un produit Haier.

Veuillez lire attentivement ces instructions avant d'utiliser l'appareil. Ces instructions sont des informations utiles vous permettant de mieux exploiter cet appareil, et vous assurer une installation, une utilisation et un entretien sécurisés et adéquats.

Veuillez bien garder ce manuel et toujours vous y référer pour une utilisation sécurisée et adéquate de l'appareil.

Si vous devez vendre, donner ou abandonner l'appareil pour cause de déménagement, assurez-vous également de laisser ce manuel afin que le prochain utilisateur puisse maîtriser l'appareil, notamment les règles de sécurité.

Légende

Avertissement - Consignes importantes de sécurité

Renseignements généraux et conseils

Informations sur l'environ

Mise au rebut

Contribuez à la protection de l'environnement et de la santé humaine. Veuillez mettre les emballages au rebut dans les espaces prévus pour leur recyclage. Contribuez à recycler les déchets d'appareils électriques et électroniques. Ne mettez pas au rebut les appareils marqués de ce symbole avec les déchets ménagers. Veuillez déposer l'appareil à votre usine de recyclage locale, ou prendre contact avec votre bureau municipal.

Risque de blessure ou d'asphyxie !

Les réfrigérants et les gaz doivent être mis au rebut par des professionnels. Avant toute mise au rebut, assurez-vous que la tuyauterie du système de réfrigération n'est pas endommagée. Débranchez l'appareil du secteur. Coupez les câbles de réseau et mettez-les au rebut. Retirez les plateaux et coffrets ainsi que le verrou de porte et les joints, pour éviter qu'un enfant ou un animal domestique ne reste coincé dans l'appareil.

Page 37

Sommaire

1-Consignes de sécurité 4
2-Utilisation prévue 9
3- Description du produit 10
4- Panneau de commande 11
5- Utilisation 12
6- Conseils pour économiser de l'énergie 20
7-Équipement 21
8-Entretien et nettoyage 24
9-Dépannage 26
10-Installation 29
11-Informations techniques 32
12-Service client 33

FR

Page 38

1- Consignes de sécurité

Avant de mettre l'appareil en marche pour la première fois, veuillez lire les consignes de sécurité ci-après :

AVERTISSEMENT!

Avant la première utilisation

  • ► Vérifiez que l'appareil n'a subi aucun dommage lié au transport.
  • Retirez tous les emballages et tenez-les hors de portée des enfants.
  • Attendez au moins deux heures avant d'installer l'appareil pour une meilleure efficacité du système de réfrigération.
  • Il faut toujours au moins deux personnes pour la manipulation de l'appareil car il est lourd.

Installation

  • Placez l'appareil dans un endroit bien ventilé. Laissez un espace d'au moins 10 cm de haut et 10 cm autour de l'appareil.
  • Ne placez jamais l'appareil dans une zone ou à un endroit humide où il pourrait être éclaboussé par de l'eau. Nettoyez et séchez les éclaboussures d'eau et les tâches à l'aide d'un chiffon doux et propre.
  • N'installez pas l'appareil en direction des rayons solaires ou à proximité des sources de chaleur (par exemple, les cuisinières, chauffe-eau).
  • Installez et positionnez l'appareil dans un espace adéquat tenant compte de sa taille et son utilisation.
  • Tenez les ouvertures d'aération de l'appareil ou dans les structures encastrées libres de toute obstruction.
  • Vérifiez que les informations électriques sur la plaque signalétique sont conformes à l'alimentation électrique. Si ce n'est pas le cas, veuillez contacter un électricien.
  • L'appareil fonctionne avec une alimentation de 220--240 VCA/50 Hz. Des fluctuations anormales de tension peuvent entraîner un échec de démarrage ou endommager le régulateur de température ou le compresseur, ou l'appareil peut émettre un bruit anormal pendant le fonctionnement. Dans de tels cas, installez un régulateur automatique.
  • Pour l'alimentation électrique, utilisez une prise avec terre différente facilement accessible. Mettez à la terre cet appareil.
Page 39

  • Uniquement pour le Royaume-Uni : Cet appareil est équipé d'un cordon d'alimentation avec fiche à 3 fils (mise à la terre), répondant aux normes de la prise à 3 fils (mise à la terre). Ne coupez jamais ou ne démontez jamais le troisième fil (mise à la terre). Une fois l'appareil installé, la fiche doit être accessible.
  • N'utilisez pas des adaptateurs multiprises ou des rallonges.
  • Assurez-vous que le câble d'alimentation n'est pas sous le réfrigérateur. Évitez de marcher sur le câble d'alimentation.
  • ► N'endommagez pas le circuit réfrigérant.

Utilisation quotidienne

  • Cet appareil peut être utilisé par des enfants âgés d'au minimum 8 ans, ainsi que par des personnes avec des capacités physiques, sensorielles ou mentales réduites ou sans expérience et connaissances, si elles sont supervisées ou ont été formées à l'utilisation sécurisée de l'appareil et comprennent les risques y relatifs.
  • Tenez les enfants de moins de 3 ans hors de portée de l'appareil, sauf s'ils sont en permanence surveillés.
  • ► Les enfants ne doivent pas jouer avec l'appareil.
  • En cas de fuite de gaz froid ou de tout autre gaz inflammable aux alentours du réfrigérateur, arrêtez la vanne d'alimentation du gaz qui s'échappe, ouvrez les portes et fenêtres et ne débranchez pas ni ne branchez le câble d'alimentation de l'appareil ou de tout autre appareil.
  • Rassurez-vous que l'appareil est programmé pour fonctionner à une plage de température entre 10 et 43 °C. L'appareil pourrait ne pas bien fonctionner si vous le faites fonctionner pendant longtemps à une température en dessous ou au-dessus de la plage indiquée.
  • Ne placez pas des objets instables (objets lourds, récipients remplis d'eau) au-dessus du réfrigérateur pour éviter tout dommage corporel suite à une chute de l'objet ou un choc électrique causé par le contact avec l'eau.
  • Ne tirez pas sur les étagères de la porte. La porte pourrait se pencher, le rayon des bouteilles pourrait sauter ou l'appareil pourrait basculer.
Page 40

1- Consignes de sécurité

Utilisation quotidienne

  • Ouvrez et fermez les portes uniquement à l'aide des poignées. L'espace entre les portes et le placard est très réduit. N'envoyez pas vos mains dans ces endroits pour éviter de coincer vos doigts. Ouvrez ou fermez les portes du réfrigérateur uniquement lorsque les enfants ne se trouvent pas près du réfrigérateur.
  • Évitez de ranger ou utiliser des produits inflammables, des explosifs ou des matières corrosives à l'intérieur ou autour de l'appareil.
  • Ne conservez pas des médicaments, des bactéries ou des agents chimiques dans le réfrigérateur. Le présent réfrigérateur est un appareil électroménager. Il n'est pas recommandé de conserver des matériaux qui requièrent des températures strictes.
  • Évitez de conserver des liquides dans des bouteilles ou des cannettes (à l'exception de vins et spiritueux fortement alcoolisés), notamment des boissons gazeuses car elles peuvent exploser pendant la congélation.
  • Vérifiez le conditionnement des aliments si le congélateur devient plus chaud.
  • Ne programmez pas inutilement le compartiment réfrigérateur à une température basse. Les températures basses peuvent survenir lorsque les températures hautes sont programmées. Attention : Les bouteilles peuvent se casser.
  • Ne touchez pas les aliments congelés avec des mains mouillées (portez des gants). Surtout, ne mangez pas les sucettes glacées immédiatement après les avoir sorties du congélateur. Vous risquez une congélation de la langue ou la formation d'ampoules suite à la congélation. PREMIERS soins : placez votre langue sous le robinet avec la sucette. Ne la tirez pas de force !
  • ► Ne touchez pas la surface intérieure du compartiment congélateur pendant qu'il est en marche, notamment avec les mains mouillées ; vos mains pourraient se congeler sur la surface.
  • Débranchez l'appareil en cas de coupure de courant ou avant de le nettoyer. Attendez au moins 5 minutes avant de redémarrer l'appareil car plusieurs redémarrages endommagent le compresseur.
  • N'utilisez pas d'appareils électriques de type autre que ceux recommandés par le fabricant, à l'intérieur des compartiments de stockage d'aliments de l'appareil.
Page 41

AVERTISSEMENT !

Entretien et nettoyage

  • Assurez-vous que les enfants sont sous surveillance lors du nettoyage et de l'entretien.
  • Débranchez l'appareil de l'alimentation électrique avant d'entreprendre tout entretien. Attendez au moins 5 minutes avant de redémarrer l'appareil car plusieurs redémarrages endommagent le compresseur.
  • ► Tenez la fiche et non le cordon pour débrancher l'appareil.
  • Ne raclez pas le givre ou la glace à l'aide d'objets tranchants. N'utilisez pas de vaporisateurs, d'appareils de chauffage électriques, de sèche-cheveux, de nettoyants à vapeur ou toute autre source de chaleur afin d'éviter des dommages sur les parties en plastique.
  • N'utilisez pas d'appareils mécaniques ou des moyens autres que ceux recommandés par le fabricant pour accélérer le processus de dégivrage.
  • Si le cordon d'alimentation est endommagé, faites-le remplacer par le fabricant, son agent de service ou par des personnes qualifiées similaires afin d'éviter tout risque.
  • N'essayez pas de réparer, de démonter ou de changer vousmême l'appareil. En cas de réparation, veuillez contacter notre service clientèle.
  • Dépoussiérez l'arrière de l'appareil au moins une fois par an afin d'éviter tout risque d'incendie, et pour réduire votre consommation énergétique.
  • N'utilisez pas de vaporisateur ou ne rincez pas l'appareil pendant le nettoyage.
  • N'utilisez pas un pulvérisateur d'eau ou nettoyant à vapeur pour nettoyer l'appareil.
  • Ne nettoyez pas les rayons de congélation en verre avec de l'eau chaude. Le changement soudain de température pourrait briser le verre.
Page 42

1- Consignes de sécurité

Informations sur le gaz frigorigène

AVERTISSEMENT !

Cet appareil contient du réfrigérant inflammable ISOBUTANE (R600a). Assurez-vous que le système de réfrigération n'est pas endommagé pendant le transport et l'installation. Une fuite de gaz frigorigène pourrait causer des dommages oculaires ou un incendie. Si un dommage est survenu, tenez-vous hors de sources d'incendie visibles, aérez correctement l'espace, ne branchez ou ne débranchez pas la prise d'alimentation de l'appareil ou de tout autre appareil. Informez le service clientèle.

En cas de contact avec les yeux, rincez abondamment les yeux avec de l'eau et consultez immédiatement un ophtalmologue.

ATTENTION ! Lorsque vous fermez la porte, le renfort vertical de la porte gauche doit être rabattu vers l'intérieur (1). Si vous essayez de fermer la porte gauche et la bande verticale de porte n'est pas rabattue (2), Rabattez-la d'abord, sinon elle frappera l'axe de fixation ou la porte droite. Vous constaterez alors des dommages lors du discompont de la porte que des fuitos

Le renfort vertical de porte dispose d'un fil chauffant. La surface s'échauffera un peu, ce qui est tout à fait normal et n'affecte nullement le fonctionnement du

Page 43

2- Utilisation prévue

2.1 Utilisation prévue

Cet appareil a été conçu pour la réfrigération et la congélation des aliments. Il est destiné exclusivement pour des intérieurs chauds. Il n'est pas destiné à un usage commercial ou industriel.

Aucune modification ou altération de cet appareil n'est autorisée. Toute utilisation inadéquate vous expose à des risques et la perte des droits de garantie.

2.2 Accessoires

Vérifiez les accessoires et la documentation suivant cette liste (Fig. 2.2) :

Page 44

Remarque : Différences

En raison des modifications techniques et des divers modèles certaines illustrations de

Images des appareils (Fig. 3)

A : Compartiment réfrigérateur

  • 1 Lampe d'éclairage du réfrigérateur en LED
  • 2 Poutre de porte
  • 3 Plaque signalétique
  • 4 Casier de porte
  • 7 Étagère en verre
  • 8 Indicateur de température O.K. (en option)
B : Compartiment congélateur

9 Tiroir de stockage de la partie supérieure du congélateur

  • 10 Tiroir de stockage de la partie infé-
  • 11 Pieds aiustables
Page 45
Panneau de commande (Fig. 4)
Touches :

  • A Réglage de la température du réfrigérateur
  • B Réglage de la température du congélateur
  • C Réglage MyZone
  • D Sélecteur du mode Multifonction et activation/désactivation de la fonction Vacances
  • E Activation/désactivation de la fonction Super réfrigération
  • F Activation/désactivation de la fonction Super congélation
  • G Verrouillage/déverrouillage du panneau
Indicateurs :

  • a Température du compartiment réfrigérateur
  • b Température du compartiment congélateur
  • c Fonction My Zone
  • d1 Fonction Vacances
  • d2 Mode Multifonction
  • e Fonction Super réfrigération
  • f Fonction Super congélation
  • g Verrouillage panneau de commande

Page 46

5-Utilisation

5.1 Avant la première utilisation

  • Retirez tous les emballages et tenez-les hors de portée des enfants, puis mettez-les au rebut dans le respect de l'environnement.
  • Nettoyez l'intérieur et l'extérieur de l'appareil avec de l'eau et un détergent doux avant de garder les aliments à l'intérieur.
  • Une fois l'appareil bien positionné et nettoyé, attendez au minimum 2 heures avant de le brancher à une source d'alimentation. Voir la Section INSTALLATION.
  • Pré-réfrigérez les compartiments à fortes températures avant de charger les aliments. La fonction Super congélation permet de refroidir rapidement le compartiment congélateur.
  • Les températures du réfrigérateur et du congélateur sont automatiquement réglées à 5 °C et -18 °C respectivement. Ces derniers sont les réglages recommandés. Au besoin, vous pouvez modifier les températures manuellement. Reportez-vous au MODE RÉGLAGE MANUEL
5.2 Touches sensitives

Les boutons sur le panneau de commande sont des touches de détection qui répondent une fois que vous les effleurez avec le doigt.

5.3 Mise en marche / arrêt de l'appareil

L'appareil se met en marche une fois qu'on le branche à l'alimentation électrique.

Lorsque vous mettez l'appareil en marche pour la première fois, les températures actuelles du réfrigérateur et du congélateur (« a » et « b ») s'affichent à l'écran. L'affichage clignote. Il s'éteint 30 secondes après la fermeture des portes. Le panneau de verrouillage est peut-être actif.

🖠 🛛 Remarque : Préréglages

  • L'appareil et réglé à la température recommandée de 5 °C (réfrigérateur) et -18 °C (congélateur). Sous une température ambiante normale, nul besoin de régler la température.
  • Le mode de préréglage du compartiment My Zone est 0 °C.
  • Une fois que l'appareil est mis en marche et débranché de l'alimentation électrique principale, il faut 12 heures pour que les bonnes températures soient atteintes.

Videz l'appareil avant de l'arrêter. Pour arrêter l'appareil, débranchez sa prise de l'alimentation électrique.

5.4 Mode Veille

L'écran d'affichage s'éteint automatiquement 30 secondes après la pression d'une touche. L'écran se verrouille automatiquement. Il se rallume automatiquement lorsque vous appuyez sur une touche ou lorsque vous ouvrez la porte/le tiroir.

Page 47

5 - Utilisation

5.5 Verrouillage/Déverrouillage du panneau

1 Remarque : Verrouillage du panneau

Pour éviter toute activation, le panneau de commande se verrouille automatiquement si aucune touche n'est appuyée pendant 30 secondes. Pour tout réglage, le panneau de commande doit être déverrouillé.

  • Appuyez sur la touche « G » pendant 3 secondes pour verrouiller toutes les touches du panneau et éviter toute activation (Fig. 5.5). L'indicateur correspondant « d » s'affiche à l'écran.
  • Pour déverrouiller le panneau de commande, appuyez une seconde fois sur cette touche.
5.6 Alarme d'ouverture de la porte

Lorsqu'une des portes du réfrigérateur reste ouverte pendant plus de 1 minute, l'alarme d'ouverture de la porte résonne. Vous pouvez arrêter l'alarme en fermant la porte. Si la porte reste ouverte pendant plus de 7 minutes, la lumière à l'intérieur du compartiment et du panneau de commande s'éteint automatiquement.

5.7 Sélection du mode de fonction

Vous pourrez avoir besoin de programmer une des deux fonctions suivantes sur l'appareil :

5.7.1 Mode Multifonction

Si vous n'avez pas de besoin précis, nous vous recommandons d'utiliser le mode Multifonction : Sous le mode Multifonction l'appareil peut automatiquement régler la température selon la température ambiante et le changement de température à l'intérieur de l'appareil. Cette fonction est totalement libre

  • 1. Déverrouillez le panneau en appuyant sur la touche « F » s'il est verrouillé (Fig. 5.5).
  • 2. Appuyez sur la touche « D » (Multifonction) (Fig. 5.7.1-1).
  • 3. L'indicateur « d2 » s'allume et la fonction est activée (Fig. 5.7.1-2).

En répétant les étapes précédentes ou en sélectionnant une autre fonction, la fonction susmentionnée peut être désactivée à nouveau.

5.7.2 Mode réglage manuel

Si vous voulez régler la température de l'appareil manuellement pour garder un aliment en particulier, vous pouvez régler la température à l'aide de la touche de réglage de température :

Page 48

Remarque : Conflit avec d'autres fonctions

La température ne peut être réglée și une autre fonction (Super réfrigération, Super

5.7.2.1 Réglage de la température du réfrigérateur

  • 2. Appuvez sur la touche « A » (Réfrigérateur) pour sé-
  • (réfrigérateur) jusqu'à ce que la valeur de température souhaitée clignote (Fig.
5.7.2.2 Réglage de la température du concélateur

  • 1. Déverrouillez le panneau en appuvant sur la touche
  • 2. Appuyez sur la touche « B » (congélateur) pour sélectionner le compartiment congélateur. La température réelle du compartiment congélateur s'affiche
  • 3. Appuyez successivement sur la touche « B » (con-

5 secondes. La température affichée cesse de

Page 49

5-Utilisation

Remarque : Influence sur les températures

Les températures intérieures sont influencées par les facteurs suivants :

  • ► La température ambiante
  • ► La fréquence d'ouverture de la porte
5.8 Fonction Super réfrigération

Activez la fonction Super réfrigération si vous voulez conserver une plus grande quantité d'aliments (par exemple après les achats). La fonction Super réfrigération accélère la réfrigération des aliments frais et aide à protéger les aliments déjà conservés de la chaleur. La température de fabrication varie de 0 à +1 °C.

  • 1. Déverrouillez le panneau en appuyant sur la touche « F » s'il est verrouillé (Fig. 5.5).
  • 2. Appuyez sur la touche « E » (Super réfrigération) (Fig. 5.8.-1).
  • 3. L'indicateur « e » s'allume et la fonction est activée (Fig. 5.8.-2).

En répétant les étapes précédentes ou en sélectionnant une autre fonction, la fonction susmentionnée peut être désactivée à nouveau.

Remarque : Désactivation automatique

Ladite fonction se désactivera automatiquement lorsque la température atteindra + 2 °C ou lorsque vous aurez utilisé cette fonction pendant plus de 3 heures.

5.9 Fonction Super congélation

Les aliments frais doivent se congeler à fond le plus rapidement possible. Ceci permet de préserver au mieux les valeurs nutritives, l'apparence et le goût des aliments. La fonction Super congélation accélère la congélation d'aliments frais et aide à protéger les aliments déjà conservés de la chaleur. Si vous voulez congeler une grande quantité d'aliments en une fois, il est recommandé de régler la fonction Super congélation 24 h à l'avance avant d'utiliser le compartiment congélation. La température par défaut est de -24 °C.

  • 1. Déverrouillez le panneau en appuyant sur la touche « F » s'il est verrouillé (Fig. 5.5).
  • Appuyez sur la touche « F » (Super congélation) (Fig. 5.9.-1).
  • 3. L'indicateur « f » s'allume et la fonction est activée (Fig. 5.9.-2).

En répétant les étapes précédentes ou en sélectionnant une autre fonction, la fonction susmentionnée peut être désactivée à nouveau.

La quantité d'aliments conservés L'installation de l'appareil

FR

Page 50

Remarque : Désactivation automatique

La fonction Super congélation se désactive automatiquement après 50 heures L'ap-

5 10 Fonction Vacances

Cette fonction permet de régler la température du ré-

Cela vous permet de parder la porte du réfrigérateur

  • Déverrouillez le panneau en appuvant sur la touche
  • Appuvez sur la touche « D » (Multifonction) pen-

5.11 Tiroir My Zone

5.11.1 Fonction Fruits et légumes

Remarque : Fonction Fruits et légumes

Page 51

5- Utilisation

5.11.2 Fonction 0°C Fresh

Cette fonction permet de régler la température dans le tiroir MyZone à 0 °C. Cette fonction est appropriée pour la conservation de produits frais tels que la viande ou les denrées instantanées. La plupart des aliments conservent leur fraîcheur à 0 °C, sans être pour autant congelés.

Remarque : Fonction 0°C Fresh

En raison de la variation de teneur en eau des viandes, les viandes qui moisissent rapidement sont congelées à une température inférieure à 0 °C. Ainsi, coupez immédiatement la viande à conserver et gardez là dans le rayon My Zone à une température inférieure à 0 °C.

5.11.3 Q-Cool (Réfrigération rapide)

Cette fonction permet de refroidir rapidement des boissons en cannette. La température dans le compartiment MyZone est réglée à+2 °C.

Remarque : Tiroir MyZone

  • L'une des trois fonctions du compartiment MyZone doit toujours être activée.
  • ► Pour réduire la température du compartiment réfrigérateur, utilisez la fonction Q-Cool. Pour l'augmenter, utilisez la fonction Fruits et légumes.
5.11.4 Sélection d'une fonction pour le compartiment MyZone

  • 1. Déverrouillez le panneau en appuyant sur la touche « G » s'il est verrouillé (Fig. 5.5).
  • 2. Appuyez successivement sur la touche « C » (MyZone) jusqu'à ce que la fonction « c » souhaitée clignote (Fig. 5.11.4).
  • Au bout de quelques secondes, l'indicateur « c » brille de manière permanente et le réglage est confirmé.

Page 52

5-Utilisation

5.12 Conseils sur la conservation des aliments frais
5.12.1 Conservation dans le compartiment réfrigérateur

  • Maintenez votre réfrigérateur à une température inférieure à 5 °C.
  • Les aliments chauds doivent être refroidis à la température ambiante avant de les conserver dans l'appareil.
  • Les aliments à conserver dans le réfrigérateur doivent être lavés et séchés avant de les conserver.
  • Les aliments à conserver doivent être bien couverts pour éviter les odeurs ou une altération du goût.
  • Ne conservez pas de grandes quantités d'aliments. Laissez de l'espace entre les aliments pour permettre à l'air froid de circuler entre eux, pour une meilleure réfrigération et homogène.
  • ► Les aliments consommés tous les jours peuvent être conservés à l'avant du rayon.
  • ► Laissez un espace entre les aliments et les parois internes, pour que l'air y circule. Surtout, ne conservez pas d'aliments près des parois arrière : les aliments peuvent congeler et s'y coller. Évitez un contact direct entre les aliments (notamment les aliments huileux et acides) et la paroi interne, car les aliments huileux/acides peuvent l'éroder. Nettoyez l'huile/les acides qui sont sur les aliments.
  • ► Les aliments congelés peuvent se décongeler doucement dans le compartiment réfrigérateur. Ceci permet d'économiser l'énergie.
  • Le processus de vieillissement des fruits et des légumes tels que la courgette, le melon, la papaye, la banane, l'ananas, etc. ; peut accélérer dans le réfrigérateur. Par conséquent, il est recommandé de les conserver dans le réfrigérateur. Cependant, le mûrissement des aliments complètement verts peut être retardé pendant un certain temps. Les oignons, l'ail, le gingembre, et autres légumes à racine se conservent à une température ambiante.
  • Les odeurs désagréables à l'intérieur du réfrigérateur signalent que quelque chose s'est versé et qu'il faut nettoyer. Voir ENTRETIEN ET NETTOYAGE.
  • Les aliments différents doivent se conserver dans des rayons différents en fonction de leurs caractéristiques Fig. 5.12.1).

  • 1 Beurre, fromage, œufs, épices, etc.
  • 2 Œufs, conserves, épices, etc.
  • 3 Boissons, aliments en conserve.
  • 4 Aliments marinés, conserves, etc.
  • 5 Produits à base de viande, en-cas, etc.
  • 6/7 Pâtes alimentaires, lait, tofu, produits laitiers, etc.
  • 8 Tiroir My Zone : Fruits, légumes, salade (Fruits et légumes), boissons en cannettes (Q-Cool), aliments crus et frais (0 °C Fresh)
Page 53
5.12.2 Conservation dans le compartiment congélateur

  • ► Réglez la température de congélation à -18° C.
  • 24 heures avant la congélation, réglez la fonction Super congélation ; pour de petites quantités d'aliments 4 à 6 heures sont suffisantes.
  • Les aliments chauds doivent être refroidis à la température ambiante avant de les conserver dans le congélateur.
  • Les aliments découpés en petits morceaux se congèlent plus rapidement et se dégivrent aussi facilement pour la cuisson. Le poids recommandé pour chaque portion est moins de 2,5 kg.
  • Il vaut mieux conditionner les aliments avant de les conserver dans le congélateur. L'extérieur du conditionnement doit être sec pour éviter que les sacs ne se collent les uns contre les autres. Le matériel de conditionnement doit être sans odeur, hermétique, et non toxique.
  • Pour éviter de dépasser le temps de conservation, veuillez inscrire la date de congélation, l'heure et le nom de l'aliment sur l'emballage en fonction des temps de conservation des différents aliments.
  • AVERTISSEMENT ! Les acides, les alcalis, le sel, etc. peuvent éroder la surface intérieure du congélateur. Ne placez pas les aliments contenant ces substances (par exemple les poissons d'eau profonde) directement sur les surfaces intérieures. L'eau salée dans le congélateur doit immédiatement être nettoyée.
  • Évitez de dépasser la durée recommandée par le fabricant pour la conservation des aliments. Ne sortez que la quantité d'aliments nécessaire du congélateur.
  • Consommez rapidement les aliments décongelés. Les aliments décongelés ne peuvent être recongelés sauf s'ils sont préalablement cuits, auquel cas ils ne sont pas comestibles.
  • Ne gardez pas une trop grande quantité d'aliments dans le congélateur. Veuillez vous référer à la capacité de congélation du congélateur - Voir les DONNÉES TECH-NIQUES ou les informations sur la plaque signalétique.
  • Les aliments peuvent se conserver dans le congélateur à une température d'au moins -18 °C pendant 2 à 12 mois, selon ses caractéristiques (par exemple, la viande : 3-12 mois, les légumes : 6-12 mois)
  • Lorsque vous congelez des aliments frais, évitez de les mettre contre des aliments déjà congelés. Risque de décongélation !

5.12.3 Lorsque vous conservez les aliments surgelés, veuillez suivre les instructions suivantes :

  • Suivez toujours les instructions des fabricants concernant le temps de conservation de ces aliments. Ne dépassez pas ces délais !
  • ► Faites en sorte que le temps entre l'achat et la conservation soit le plus court possible pour préserver la qualité de l'aliment.
  • ► Achetez les aliments surgelés qui peuvent se conserver à une température de -18 °C ou moins.
  • Évitez d'acheter des aliments qui ont du givre ou de la glace sur l'emballage cela indique que ces aliments ont été partiellement décongelés puis recongelés à un moment donné - la montée de température affecte la qualité des aliments.
Page 54

Conseils pour économiser de l'énergie

  • Assurez-vous que l'appareil est suffisamment ventilé (Voir INSTALLATION).
  • N'installez pas l'appareil en direction des rayons solaires ou à proximité des sources
  • Évitez de faire fonctionner l'annareil à une température inutilement basse. La
  • ► Les fonctions telles que SUPER CONGÉLATION consomment plus d'énergie
  • Laissez les aliments refroidir avant de les mettre dans l'appareil
  • Ouvrez la porte de l'appareil le moins possible et le plus brièvement possible.
  • Ne remplissez pas l'appareil pour ne pas obstruer le flux d'air.
  • Évitez que l'air n'entre dans les aliments emballés
  • Maintenez toujours les joints de porte propres pour que la porte se ferme correcte-
  • Dégivrez les aliments congelés dans le compartiment de congélation.
Page 55

Remarque : Différences en fonction des modèles

Selon le modèle, votre produit pourrait ne pas posséder les fonctionnalités suivantes. Reportez-vous au chapitre DESCRIPTION DU PRODUIT.

7.1 Ventilation multiple

Le réfrigérateur est équipé d'un système de ventilation multiple, qui permet à l'air froid de circuler dans tous les rayons (Fig. 7.1). Ce système permet de maintenir une température homogène et de conserver les aliments pendant plus longtemps.

7.2 Étagères réglables

Réglez la hauteur des étagères selon vos besoins de conservation.

  • 1. Pour réaménager une étagère, retirez-la d'abord en soulevant ses bords arrière (1) puis sortez-la (2) (Fig. 7.2).
  • Pour le réinstaller, placez-le sur les anses des deux côtés puis poussez-le en profondeur vers l'arrière jusqu'à ce que l'arrière se fixe dans les anses sur les côtés.
Remarque : Grilles

Assurez-vous que tous les bouts du rayon sont uniformes.

7.3 Balconnets réfrigérateur

Les casiers de porte peuvent être démontés pour les nettoyer.

Placez les mains sur chaque côté du casier, soulevez-le (1) puis retirez-le (2) (Fig. 7.3).

Pour remettre le casier, répétez ces procédures dans le sens inverse.

7.4 Tiroir My Zone

Pour utiliser et régler la température du compartiment My Zone (Fig. 7.4), veuillez vous référer à la partie UTI-LISATION (Tiroir My Zone).

Page 56

7-Équipement

7.5 EN OPTION : Indicateur de température OK

L'indicateur de température OK (Fig. 7.5) sert à déterminerles températures en dessous de +4 °C. Diminuez progressivement la température si le signe « OK » ne s'affiche pas.

Remarque : Autocollant OK

Une fois que l'appareil est mis en marche, il faut 12 heures pour atteindre les bonnes températures.

7.6 Tiroir de congélateur démontable

Pour retirer le tiroir, tirez-le au maximum (1) puis soulevez et sortez-le (2) (Fig. 7.6).

Pour remettre le tiroir, répétez ces étapes dans le sens inverse.

(HB16FM*** / HB16FG***/HB16FB***

7.7 Tige de liaison amovible

La tige de liaison peut être retirée après avoir retiré le tiroir de congélation supérieur (Fig. 7.7) ;

  • 1. Appuyez sur le support (A) du seau en plastique (1) et retirez-le (2),
  • 2. Répétez l'étape 1 de l'autre côté.
  • 3. Retirez (3) la tige de liaison (B).

Pour remettre la tige de liaison, répétez ces étapes dans le sens inverse,

7.8 Tiroir de congélation 3D

Les tiroirs du congélateur (Fig. 7,8) sont complètement extensibles. Ils sont équipés de glissières télescopiques à roulement facile pour vous permettre de mieux sortir et de remettre les tiroirs dans le congélateur. Grâce à son système de fermeture automatique de porte, il est facile de manœuvrer et d'économiser ainsi l'énergie.

Ne surchargez pas les tiroirs. Charge maximale pour chague tiroir : 35 kg !

Page 57

7 - Équipement

7.9 Bac à glaçons

Remplissez les bacs à glaçons au 3/4 et laissez-les dans le tiroir du compartiment de congélation (Fig-7.9-1).

2. Tordez légèrement le bac ou tenez-le sous le robinet pour décoller les glaçons (Fig. 7.9-2).

7.10 Casier à bouteilles & boîte à oeufs

  • 1. Maintenez-le horizontale.
  • 2. Suivez les rainures pour poser les bouteilles de vin(Fig. 7.10-1).
  • 3. Le casier bouteilles peut être retourner et servir de bac oeuf(Fig. 7.10-2).

7.11 Eclairage

Le voyant DEL intérieur s'allume à l'ouverture de la porte. La qualité des lumières n'est affectée par aucun appareil ou réglage

Page 58

8- Entretien et nettoyage

AVERTISSEMENT !

Débranchez l'appareil de la prise d'alimentation avant de le nettoyer.

8.1 Généralités

Nettoyez l'appareil uniquement lorsqu'il y a moins d'aliments ou pas d'aliments. Pour un bon entretien et afin de prévenir les mauvaises odeurs, veuillez nettoyer l'appareil toutes les guatre semaines.

  • Évitez de nettoyer l'appareil à l'aide de brosses dures, métalliques, de détergent en poudre, d'essence, d'acétate d'amyle, d'acétone et toute autre solution similaire organique, acide ou alcaline. Veuillez nettoyer avec du détergent spécial réfrigérateur pour éviter tout dommage.
  • N'utilisez pas de vaporisateur ou ne rincez pas l'appareil pendant le nettoyage.
  • N'utilisez pas un pulvérisateur d'eau ou nettoyant à vapeur pour nettoyer l'appareil
  • Ne nettoyez pas les rayons de congélation en verre avec de l'eau chaude. Le changement soudain de température pourrait briser le verre.
  • Évitez de toucher la surface intérieure du tiroir de rangement du congélateur, surtout avec les mains mouillées, elles pourraient se congeler au contact de ladite surface.
  • ► En cas de chauffage, vérifiez l'état des aliments congelés.

  • Gardez toujours le joint de la porte propre
  • Nettoyez l'intérieur et l'extérieur de l'appareil avec une éponge humide humidifiée dans de l'eau tiède et un détergent doux (Fig. 8.1).
  • Rincez avec un torchon doux
  • ► Ne lavez aucune pièce de l'appareil dans le lavevaisselle.
  • Nettoyez les accessoires uniquement à l'eau tiède et avec un détergent doux et neutre.
  • Attendez au moins 5 minutes avant de redémarrer l'appareil car plusieurs redémarrages endommageraient le compresseur.
8.2 Dégivrage

Le réfrigérateur et le congélateur se dégivrent automatiquement, aucune opération manuelle n'est nécessaire.

8.3 Remplacement des lampes LED

Ne remplacez pas la lampe DEL vous-même, elle doit être remplacée uniquement par le fabricant ou l'agent de maintenance agréé.

Page 59

8-Entretienetnettoyage

Les lampes sont des lampes LED ; elles consomment moins d'énergie et ont une longue durée de vie. En cas de problème, veuillez contacter le service clientèle. Voir SERVICE CLIENTÈLE.

Caractéristiques des lampes :

Tension 12V ; Puissance maximale : 2 W

8.4 Joints de porte secondaires démontables

L'appareil dispose de six joints de porte sur les tiroirs inférieur et supérieur du congélateur.

  • 1. Localisez les cinqjoints de porte en haut et en bas du tiroir du congélateur (Fig. 8.4-1.).
  • 2. Assurez-vous que les côtés pliés des joints pointent vers l'intérieur lors de la fixation (Fig. 8.4-2.).
  • 3. Localisez le joint inférieur du tiroir supérieur tel qu'indiqué (Fig. 8.4-3.).
  • 4. Assurez-vous que son côté plié pointe vers l'intérieur lors de la fixation (Fig. 8.4-4.).

Vous pouvez avoir ces joints ainsi que les joints de la porte / tiroir pivotant auprès du service clientèle. (voir la carte de garantie).

8.5 Non-utilisation pendant une longue période

Si l'appareil n'est pas utilisé pendant une longue période, et si vous n'allez pas utiliser la fonction Vacances pour le réfrigérateur :

  • ► Retirez les aliments.
  • Débranchez la prise d'alimentation.
  • ► Nettoyez l'appareil tel qu'indiqué ci-dessus.
  • Laissez la porte et les tiroirs/porte du congélateur ouverts pour éviter les mauvaises odeurs à l'intérieur.
Remarque : Hors tension

N'éteignez l'appareil que si c'est absolument nécessaire.

8.6 Déplacement de l'appareil

  • 1. Retirez tous les aliments et débranchez l'appareil.
  • 2. Sécurisez les rayons et autres pièces amovibles à l'intérieur du réfrigérateur et du congélateur à l'aide d'un ruban adhésif.
  • 3. Ne penchez pas le réfrigérateur à plus de 45° pour éviter d'endommager le système de réfrigération.

AVERTISSEMENT !

  • Ne soulevez pas l'appareil par les poignées.
  • ► Ne placez jamais l'appareil horizontalement au sol.
Page 60

9- Dépannage

Vous pouvez résoudre la plupart des problèmes qui pourraient survenir sans expertise précise. En cas de problème, veuillez vérifier toutes les solutions possibles en suivant les instructions ci-dessous avant de contacter un service après-vente. Voir SERVICE CLIEN-TÈLE.

AVERTISSEMENT !

  • ► Avant tout entretien, veuillez arrêter l'appareil et débranchez-le du secteur.
  • Les appareils électriques doivent être entretenus uniquement par des experts en électricité, parce qu'une mauvaise intervention pourrait causer des dommages considérables.
  • Faites remplacer le cordon d'alimentation endommagé par le fabricant, son représentant ou par des personnes qualifiées afin d'éviter tout risque.
Problème Causes probables Solutions possibles
Le compresseur
ne fonctionne
• La fiche principale n'est pas bran-
chée à la prise.
• Branchez la fiche.
pas.
  • L'appareil est en cycle de dé-
    givrage.
Ce processus est normal pour un
dégivrage automatique.
L'appareil tourne
continuellement
• La température intérieure et exté-
rieure est trop élevée.
• Dans ce cas, il est normal que l'appareil tourne plus longtemps.
trop longtemps. L'appareil a été en arrêt pendant trop longtemps. Normalement, il faut 8 à 12 heures
pour que l'appareil se dégivre
complètement.
Une porte / un tiroir de l'appareil ne
se ferme pas correctement.
  • Fermez la porte / le tiroir et assu-
    rez-vous que l'appareil est placé
    sur une surface plane et qu'on ne
    retrouve pas d'aliments ou de ré-
    cipient qui cognent sur la porte.
La porte / le tiroir a été ouvert(e)
trop souvent ou pendant trop
longtemps.
N'ouvrez pas la porte / le tiroir trop
fréquemment.
La température du congélateur est trop basse.
  • Réglez la température le plus haut
    possible jusqu'à obtenir une tem-
    pérature du réfrigérateur satisfai-
    sante. Il faut 24 heures pour que
    la température du réfrigérateur se
    stabilise.
• Le joint de porte / tiroir est sale,
usé, fissuré ou pas compatible.
• Nettoyez le joint de la porte / du tiroir ou faites-le remplacer par le service client.
• Le flux d'air nécessaire n'est pas garanti. Assurez une ventilation adéquate.
L'intérieur du réfri-
gérateur est sale
L'intérieur du réfrigérateur a be-
soin de nettoyage.
Nettoyez l'intérieur du réfrigéra-
teur.
et/ou dégage des
odeurs.
  • Les aliments aux odeurs fortes
    sont conservés dans le réfrigéra-
    teur.
Emballez les aliments correcte-
ment.
9.1 Tableau de dépannage
Page 61

9-Dépannage

Problème Causes probables Solutions possibles
L'appareil n'est pas
suffisamment froid.
  • La température est trop élevée.
  • Des aliments trop chauds sont
    placés dans le congélateur.
  • Trop d'aliments ont été conservés
  • Réglez à nouveau la température
  • Laissez toujours les aliments re-
    froidir avant de les conserver.
  • Conservez toujours de petites
à la fois.
• Les aliments sont trop près les uns
quantités d'aliments.
des autres. férents aliments pour permettre à
l'air de circuler.
• Une porte / un tiroir de l'appareil ne se ferme pas correctement. • Fermez la porte / le tiroir.
La porte / le tiroir a été ouvert(e)
trop souvent ou pendant trop
longtemps.
  • N'ouvrez pas la porte / le tiroir trop
    fréquemment.
L'appareil La température est trop basse. Réglez à nouveau la température
samment froid. La fonction Super congélation est
activée ou a fonctionné pendant
longtemps.
Désactivez la fonction Super
congélation.
Formation de moisissure à l'in- Le climat est trop chaud et trop humide. Augmentez la température
terieur du refrige-
rateur.
• Une porte / un tiroir de l'appareil ne se ferme pas correctement. • Fermez la porte / le tiroir.
La porte / le tiroir a été ouvert(e)
trop souvent ou pendant trop
longtemps.
N'ouvrez pas la porte / le tiroir trop
fréquemment.
Les récipients contenant les ali-
ments ou les liquides sont laissés
ouverts.
Laissez les aliments chauds re-
froidir à la température ambiante
avant de les couvrir et de les placer
dans l'appareil.
La moisissure
s'accumule sur
les surfaces exté-
Le climat est trop chaud et trop humide. Ceci est normal en zone humide
et cela change lorsque l'humidité
diminue.
rieures du réfrigé-
rateur ou entre la
porte et le tiroir.
• La porte / le tiroir n'est pas her-
métiquement fermé(e). L'air froid
dans l'appareil et l'air chaud à l'ex-
térieur est en condensation.
  • Assurez-vous que la porte / le ti-
    roir est bien fermé(e).
Du givre dur dans
le congélateur.
• Les aliments ne sont pas bien em-
ballés.
• Emballez toujours bien les ali-
ments.
• Une porte / un tiroir de l'appareil ne se ferme pas correctement. • Fermez la porte / le tiroir.
La porte / le tiroir a été ouvert(e)
trop souvent ou pendant trop
longtemps.
  • N'ouvrez pas la porte / le tiroir trop
    fréquemment.
• Le joint de porte / tiroir est sale,
usé, fissuré ou pas compatible.
  • Nettoyez les joints de la porte /
    du tiroir ou remplacez-les par de
    nouveaux.
Quelque chose à l'intérieur em-
pêche la porte de se fermer cor-
rectement.
  • Repositionnez les rayons, les
    casiers de porte, ou les récipients
    à l'intérieur pour permettre à la
    porte/tiroir de se fermer.
Page 62

9- Dépannage

Problème Causes probables Solutions possibles
L'appareil produit
des sons bizar-
res.
  • L'appareil n'est pas placé sur une
    surface plane.
  • L'appareil est en contact avec cer-
    tains objets.
  • Réglez les supports afin d'équi-
    librer l'appareil.
  • Retirez les objets autour de l'ap-
    pareil.
Un son léger
comparable à
celui de l'eau qui
coule retentit.
C'est normal. • -
Vous entendrez
un bip.
La porte du réfrigérateur est ou-
verte.
• Fermez la porte ou arrêtez l'alarme manuellement.
Vous entendrez
un léger ron-
ronnement.
Le système anti-condensation fonctionne. Ceci prévient la condensation et
c'est normal.
Le voyant intérieur
ou le système de
refroidissement ne
fonctionne pas.
  • La fiche principale n'est pas branchée à la prise.
  • L'alimentation électrique est anormale.
  • La lampe LED ne fonctionne pas.
  • Branchez la fiche.
  • Vérifiez l'alimentation électrique
    de la pièce. Contactez la compa-
    gnie d'électricité.
  • Veuillez contacter le service client
Les côtés de l'ar-
moire et la bande
de porte de-
viennent chauds.
• C'est normal.
  • pour changer la lampe.
  • -
9.2 Coupure de courant

En cas de coupure d'électricité, les aliments sont en sécurité au froid pendant près de 20 heures. Suivez les conseils suivants pour une interruption de courant prolongée, notamment en été :

  • Ouvrez la porte / le tiroir à des fréquences très réduites.
  • Ne conservez pas plus d'aliments dans l'appareil pendant l'interruption de courant.
  • Si vous êtes informé à l'avance de la coupure et de ce que l'interruption durera plus de 20 heures, faites des boules de glace, mettez-les dans un récipient et placez le récipient au-dessus du réfrigérateur.
  • ► Il est conseillé d'inspecter les aliments une fois le courant rétabli.
  • Étant donné que la température à l'intérieur du réfrigérateur va augmenter pendant l'interruption ou autre panne, la période de conservation et la qualité des aliments seront réduites. Tout aliment décongelé doit être consommé, cuisiné ou recongelé (si possible), immédiatement après, pour éviter tout risque sur la santé.
Remarque : Fonction Mémoire pendant la coupure d'électricité

Après le retour de l'électricité, l'appareil continue de fonctionner avec les réglages définis au préalable avant l'interruption du courant.

Page 63
10.1 Déballage

AVERTISSEMENT !

  • L'appareil est lourd. Il faut toujours être au moins à deux pour le manœuvrer
  • Tenez tous les emballages hors de portée des enfants et mettez-les au rebut dans le respect de l'environnement.
  • Sortez l'appareil de l'emballage.
  • Retirez tous les emballages.
10.2 Conditions environnementales

La température de la pièce doit toujours varier entre 10 °C et 43 °C, parce qu'elle peut influencer la température à l'intérieur de l'appareil et la consommation énergétique. N'installez pas l'appareil près des appareils qui produisent de la chaleur (cuisinières, réfrigérateurs) sans isolation.

10.3 Exigences en matière d'espace

Espace nécessaire lorsque la porte est ouverte

Largeur
en mm
Profondeur
en mm
Espacement
avec le mur
en mm
W1 W2 D1 D2 D3 D4
700 1188 600 887 966 100

10.4 Ventilation croisée

Pour une meilleure ventilation de l'appareil pour des raisons de sécurité, les instructions sur la ventilation croisée doivent être respectées (Fig. 10.5).

Page 64

10.5 Alignement de l'appareil

L'appareil doit être placé sur une surface plane et solide.

  • 1. Penchez légèrement l'appareil vers l'arrière (Fig. 10.5).
  • 2. Réalez les supports de fixation au niveau souhaité.
  • Vérifiez la stabilité en basculant entre les diagonales. Faites basculer légèrement dans les deux directions. Sinon le cadre peut se déformer causant ainsi une fuite au niveau des joints de porte. Une légère inclinaison vers l'arrière facilite la fermeture de la porte.
10.6 Réglage minutieux des portes

Si les portes ne sont pas au même niveau, vous pouvez

y remédier en suivant la procédure suivante :

10.6.1 Utilisation des pieds ajustables

Tournez les pieds ajustables en suivant la direction de la flèche (Fig. 10.6-1) pour les tourner vers le haut ou vers le bas.

10.6.2 Utilisation des entretoises

  • ► Ouvrez la porte supérieure et soulevez-la.
  • Attachez soigneusement l'entretoise (fournie dans le sac d'accessoires) dans l'anneau en plastique blanc de la charnière centrale à la main ou en utilisant des outils comme une pince (Fig. 10.6-2), N'égratignez pas la porte.
Remarque : Positionnement

Lors de l'utilisation ultérieure du réfrigérateur, un phénomène irrégulier au niveau des portes peut se produire suite au poids des aliments conservés. Veuillez les ajuster selon les méthodes susmentionnées.

Page 65
10.7 Temps d'attente

L'huile d'entretien du compresseur se trouve dans la capsule du compresseur. Cette huile peut se déverser dans le circuit fermé du système pendant le transport. Avant de brancher l'appareil à l'alimentation électrique, vous devez attendre 2 heures (Fig. 10.7) pour permettre à l'huile de retourner dans la capsule.

10.8. Raccordement électrique
Avant chaque branchement, vérifiez si :

  • ► l'alimentation électrique, la prise et le fusible correspondent à la plague signalétique.
  • ► la prise d'alimentation est mise à la terre sans aucune fiche multiple ou rallonge ;
  • ► la prise d'alimentation et la fiche correspondent parfaitement.

Connectez la fiche à une prise correctement installée.

AVERTISSEMENT!

Pour éviter tout risque, remplacez tout câble endommagé auprès du service clients (voir carte de garantie).

Assurez-vous que le cordon d'alimentation n'est pas coincé ou endommagé lors du positionnement de l'appareil.

Ne placez pas plusieurs prises de courant ou alimentations portables à l'arrière de l'appareil.

Attention de ne pas provoguer un incendie des matériaux inflammables.

Page 66

11-Informationstechniques

11.1 Fiche du produit conforme à la réglementation UE N° 1060/2010
Marque de fabrique Haier
Numéro d'identification du modèle HB16FMAA / HB16FGAA
HB16FBAA / HB16FFGBAA
HB16FMAAA
HB16FBAAA/HB16FFGBAAA
Catégorie du modèle Réfrigérateur r-congélateur
Classe d'efficacité énergétique A+ A++
Consommation énergétique annuelle (kWh/ an) 1) 387 305
Volume de conservation réfrigération (L) 303 303
Volume de conservation congélation (L) **** 121 121
Classement en étoile *** 1
Température des autres compartiments > 14°C > Non applicable
Système de givre С Jui
Protection anti-interruption électrique (h) 2 0
Capacité de congélation (kg/24 h) 1 .4
Classe climatique
Cet appareil doit être utilisé à une tempéra-
ture ambiante variant entre 10 °C et 43 °C.
SN/N/ST/T
Émission de bruits aériens (db(A) re 1 pW) 40 38
Type de fabrication Position libre

1) basé sur des résultats d'essais standards pendant 24 heures. La consommation réelle d'énergie dépendra de l'utilisation de l'appareil et de sa position.

11.2 Autres données techniques
Volume total (en L) 485
Volume net (en L) 424
Tension/Fréquence 220 240 V~/ 50 Hz
Puissance d'entrée (W) 120
Courant d'entrée (A) 1,5
Fusible principal (A) 16
Réfrigérant/quantité HB16FGAA/HB16FMAA/HB16FBAA/HB16FFGBAA: R600a /65g
HB16FMAAA/HB16FBAAA/HB16FFGBAAA: R600a /62g
Dimensions (P/L/H en mm) 675×700×1900
11.3 Normes et directives

CE

Ce produit répond aux exigences de toutes les directives CE applicables ainsi que les normes harmonisées correspondantes, qui prévoient le marquage CE.

Page 67

Nous vous recommandons notre service clients Haier et l'utilisation de pièces de rechange d'origine.

Si vous avez un problème avec l'appareil, veuillez vous référer à la section DÉPANNAGE.

Si vous ne trouvez pas de solution, veuillez contacter

  • ► votre vendeur local ou
  • rendez-vous sur le site www.haier.com, dans la zone Service et support, vous trouverez des numéros de téléphone et une FAQ. Vous pourrez également contacter le service de réclamation.

Pour contacter notre Service, rassurez-vous que les informations ci-après sont disponibles.

Ces informations sont disponibles sur la plaque signalétique.

Modèle _____

N° de série

Vérifiez également la Carte de garantie fournie avec le produit en cas de garantie.

Adresses de Haier en Europe
Pays* Adresse postale Pays* Adresse postale
Italie Haier Europe Trading S.R.L.
Via De Cristoforis, 12
21100 Verese
ITALIE
France Haier France SAS
3-5 rue des Graviers
92200 Neuilly sur
Seine
FRANCE
Espagne
Portugal
Haier Iberie SL
Pg. Garcia Faria, 49-51
08019 Barcelone
ESPAGNE
Belgique-FR
Belgique-NL
Pays-Bas
Luxembourg
Haier Bénélux SA
Anderlecht
Route de Lennik 451
BELGIQUE
Allemagne
Autriche
Haier Allemagne GmbH
Hewlett-Packard-Str. 4
D-61352 Bad Homburg
ALLEMAGNE
Pologne
République
Tchèque
Haier Pologne Sp.
zo.o.
Royaume-Uni Haier Appliances UK Co.Ltd.
One Crown Square
Church Street East
Woking, Surrey, GU21 6HR
Royaume-Uni
Hongrie
Grèce
Roumanie
Russie
AI. Jerozolimskie
181B
02-222 Warszawa
POLOGNE

Pour des renseignements généraux concernant les entreprises, vous trouverez ci-jointes nos adresses en Europe :

*Pour de plus amples informations, veuillez consulter le site www.haier.com

Page 68

FR

Page 69

Page 70

Page 71

Gebrauchsanleitung

Kühl-Gefrierkombination

HB16FMAA HB16FBAA HB16FGBAA HB16FFGBAA HB16FMAAA HB16FBAAA HB16FFGBAAA

DE

Page 72

Danke

Danke, dass Sie sich für ein Haier Produkt entschieden haben.

Bitte lesen Sie diese Gebrauchsanleitung sehr sorgfältig bevor Sie das Gerät in Betrieb nehmen. Sie enthält wichtige Informationen, damit Sie viel Freude an Ihrem Gerät haben und ein sicherer und sauberer Betrieb gewährleistet ist.

Bewahren Sie dieses Handbuch gut auf, damit Sie bei Bedarf immer wieder darauf zurückgreifen können.

Wenn Sie die Maschine verkaufen, abgeben oder bei einem Umzug zurücklassen, geben Sie bitte die Gebrauchsanleitung dazu, damit der neue Besitzer sich mit den Anweisungen zur Benutzung und zum sicheren Betrieb vertraut machen kann.

Legende Achtung! Unbedingt lesen! Wichtige Sicherheitshinweise.

i

Allaemeine Hinweise und Tipps

Umwelt-Tipps

Entsorgung

Produkte mit diesem Symbol dürfen am Ende ihrer Lebensdauer nicht in den Hausmüll gegeben werden, sondern müssen an einem Sammelpunkt für das Recycling von elektrischen und elektronischen Geräten abgegeben werden.

Verletzungs- und Erstickungsrisiko!

Das Altgerät ist vor der Verschrottung funktionsuntüchtig zu machen, damit Kinder sich nicht selbst einschließen können.

Achten Sie vor der fachgerechten Entsorgung darauf, dass die Kühlmittelleitungen nicht beschädigt sind.

Trennen Sie das Gerät vom Stromnetz entfernen Sie das Netzanschlusskabel, entneh-

men Sie die Ablagen und Behälter und demontieren Sie die Tür/en und Dichtungen oder machen Sie den Türverschluss unbrauchbar, damit spielende Kinder sich oder andere nicht einsperren und somit in Lebensgefahr kommen.

Page 73

Inhalt

1- Sicherheitshinweise 4
2- Vorgesehener Gebrauch 9
3- Gerätebeschreibung
4-Bedienblende
5-Bedienung
6- Energiespartipps
7- Ausstattung
8- Reinigung und Pflege 24
9- Fehlerbehebung
10- Installation
11- Technische Daten
12- Kundendienst

DE

Page 74

1-Sicherheitshinweise

Diese Hinweise dienen der Sicherheit und sollten daher vor der Installation und Inbetriebnahme aufmerksam gelesen werden.

Vor dem ersten Einschalten

  • Vergewissern Sie sich, dass das Gerät keinen Transportschaden aufweist.
  • ► Entfernen Sie alle Verpackungsmaterialien und bewahren Sie diese außerhalb der Reichweite von Kindern auf.
  • Lassen Sie das Gerät vor der Installation mindestens zwei Stunden stehen. Dadurch kann sich das Kühlsystem nach dem Transport erholen.
  • Das Gerät ist schwer! Immer mit mindestens zwei Personen handhaben!

Installation

  • ► Das Gerät sollte an einem gut belüfteten Ort stehen. Mindestens einen Abstand von 10 cm über und um das Gerät freihalten.
  • Stellen Sie das Gerät niemals in einen feuchten Bereich oder an einen Ort, wo er mit Wasser bespritzt werden kann. Entfernen und trocknen Sie Spritzer und Flecken mit einem weichen, sauberen Tuch.
  • Das Gerät nicht im direkten Sonnenlicht oder in der Nähe einer Wärmequelle (z. B. Heizkörper, Herd und andere Wärme abgebende Geräte) aufstellen.
  • Der Aufstellort muss so beschaffen sein, dass sich die Gerätetüren vollständig öffnen lassen.
  • Die Lüftungsöffnungen am Gerät oder im Einbaugehäuse müssen freigehalten werden.
  • Die Angaben auf dem Typenschild müssen mit den elektrischen Anschlussbedingungen übereinstimmen. Falls nicht, kontaktieren Sie bitte einen Elektriker.
  • ► Das Gerät muss an eine separat geerdete, stets zugängliche Steckdose angeschlossen werden.
  • Mehrfachsteckdosen oder Verlängerungskabel dürfen nicht benutzt werden.
Page 75

  • Das Gerät wird mit 220-240 V/50 Hz betrieben. Abnormale Spannungsschwankungen können bewirken, dass das Gerät nicht startet, dass der Temperaturregler oder der Kompressor beschädigt werden oder dass während des Betriebes unnormale Geräusche auftreten. In einem solchen Fall muss ein automatischer Spannungsregler eingebaut werden.
  • Das Gerät darf nicht auf der Netzanschlussleitung steht. Nicht auf das Netzkabel treten.
  • ► Der Kühlmittelkreislauf darf nicht beschädigt werden.

Täglicher Gebrauch

  • Dieses Gerät kann von Kindern ab 8 Jahren und darüber und von Personen mit reduzierten physischen, sensorischen oder mentalen Fähigkeiten oder Mangel an Erfahrung und/oder Wissen benutzt werden, wenn sie beaufsichtigt oder bezüglich des sicheren Gebrauchs des Gerätes unterwiesen wurden und die daraus resultierenden Gefahren verstanden haben.
  • Halten Sie Kinder unter 3 Jahren vom Gerät fern, es sei denn, sie sind unter kontinuierlicher Aufsicht.
  • ► Kinder dürfen nicht mit dem Gerät spielen.
  • Wenn in der N\u00e4he des Ger\u00e4ts Kohlegas oder anderes entz\u00fcndliches Gas entweicht, drehen Sie das Ventil des ausstr\u00fcmenden Gases zu, \u00f6ffnen Sie T\u00fcren und Fenster und ziehen Sie das Netzkabel dieses Ger\u00e4ts oder anderer Ger\u00e4te nicht aus der Stromquelle.
  • Das Gerät ist für einen Betrieb bei Umgebungstemperaturen zwischen 10 und 43°C ausgelegt. Das Gerät arbeitet möglicherweise nicht ordnungsgemäß, wenn es für eine längere Zeit einer Temperatur oberhalb oder unterhalb des angegebenen Bereichs ausgesetzt ist.
  • Stellen Sie keine instabilen Gegenstände (schwere Gegenstände, mit Wasser gefüllte Behälter) auf das Gerät, um Verletzungen durch herabfallende Gegenstände oder einen elektrischen Schlag bei Wasserkontakt zu verhindern.
  • ► Ziehen Sie nicht an den Türablagen. Die Tür könnte verzogen, die Türablage abgerissen oder das Gerät ins Wanken gebracht werden.
Page 76

1-Sicherheitshinweise

  • Öffnen und schließen Sie die Tür(en) nur an den Griffen. Der Spalt zwischen den Abteilen sowie zwischen Tür und Schrank ist sehr schmal. Nicht hineingreifen; es besteht Quetschgefahr. Die Gerätetür(en) nur öffnen und schließen, wenn sich im Bewegungsbereich der Tür keine Kinder aufhalten.
  • ► Lagern und benutzen Sie keine brennbaren, explosiven oder korrosiven Stoffe im Gerät oder in dessen Nähe.
  • Bewahren Sie keine Medikamente, Bakterien oder chemische Substanzen im Gerät auf. Dieses Gerät ist ein Haushaltsgerät. Es wird nicht empfohlen, Materialien darin aufzubewahren, die genaue Temperatureinhaltung erfordern.
  • ► Lagern Sie niemals Flüssigkeiten (insbesondere kohlensäurehaltige Getränke) - außer hochprozentige Spirituosen - im Gefrierabteil ein, da diese platzen könnten.
  • Bei Erwärmung im Gefrierabteil muss der Zustand des Gefriergutes überprüft werden. Angetautes muss gegebenenfalls verarbeitet (kochen, braten) und in gegartem Zustand wieder eingefroren werden.
  • Vermeiden Sie unnötig tiefe Temperaturen im Kühlabteil einzustellen. Es könnten Minustemperaturen auftreten! Achtung: Flaschen können platzen.
  • Berühren Sie Tiefkühlgut nicht mit nassen Händen (Handschuhe tragen)! Ebenso Eis am Stiel nicht sofort nach der Entnahme aus dem Gefrierabteil verzehren. Es besteht die Gefahr festzufrieren bzw. die Entstehung von Frostblasen. ERSTE HILFE: Sofort unter fließendes, kaltes Wasser halten! Nicht wegreißen!
  • Berühren Sie nicht die Innenflächen des Gefrierabteils während des Betriebes, insbesondere nicht mit nassen Händen. Es besteht die Gefahr festzufrieren.
  • Trennen Sie das Gerät bei Stromausfall oder vor dem Reinigen vom Netz. Warten Sie mindestens 5 Minuten, bevor Sie das Gerät wieder anlassen, da häufiges Starten den Kompressor beschädigen kann.
  • ► Benutzen Sie keine elektrischen Geräte im Kühl- und Gefrierabteil benutzen, sofern diese nicht vom Hersteller empfohlen wurden.
Page 77

Wartung / Reparatur

  • Die Reinigung und Wartung darf nur dann von Kindern durchgeführt werden, wenn sie beaufsichtigt werden.
  • TrennenSiedasGerätvorderDurchführungvonWartungsarbeiten von der Stromzufuhr. Vor dem Wiedereinschalten mindestens 5 Minuten warten, da häufiges Einschalten den Kompressor beschädigen kann.
  • Ziehen Sie nur am Stecker und nicht am Anschlusskabel, um das Gerät vom Stromnetz zu trennen.
  • ► Reinigen Sie das Gerät nicht mit hartborstigen Bürsten, Drahtbürsten, Scheuerpulver, Benzin, Amylacetat, Aceton und ähnlichen organischen Lösungen, Säure oder alkalischen Lösungen.
  • Entfernen Sie Reif- und Eisansätze nicht mit scharfkantigen Gegenständen. Zum Abtauen keine Sprays, keine elektrischen Heizgeräte wie Heizlüfter, Haartrockner, Dampfreiniger oder andere Wärmequellen verwenden! Kunststoffteile könnten sich verformen.
  • Setzen Sie außer den vom Hersteller empfohlenen keine sonstigen mechanischen Geräte oder andere Mittel ein, um den Abtauprozess zu verkürzen.
  • Wird das Netzkabel beschädigt, so muss es durch den Hersteller, seinen Kundendienst oder ähnlich qualifizierte Personen ersetzt werden, um Gefahren zu vermeiden.
  • Versuchen Sie nicht, das Gerät selbst zu reparieren, zu demontieren oder technisch zu verändern. Im Reparaturfall wenden Sie sich bitte an den Kundendienst.
  • Beseitigen Sie mindestens einmal im Jahr die Staubablagerungen von den Teilen an der Rückseite des Gerätes gründlich mit einer weichen Bürste oder dem Staubsauger, um Brandgefahr sowie erhöhten Energieaufwand zu vermeiden.
  • Sprühen oder spülen Sie das Gerät beim Reinigen nicht ab. Reinigen Sie das Gerät weder mit Dampf- noch mit Wasserstrahl.
  • ► Reinigen Sie die kalten Glasablagen nicht mit heißem Wasser. Plötzliche Temperaturänderungen könnten zu Glasbruch führen.
Page 78

1-Sicherheitshinweise

Informationen zum Kühlmittel

Dieses Gerät ist mit dem brennbaren Kühlmittel ISOBUTAN (R600a) befüllt. Achten Sie darauf, dass die Kühlmittelrohre bei Transport oder Installation nicht beschädigt werden. Austretendes Kühlmittel kann Augenschäden verursachen oder sich entzünden. Im Schadensfall sind offenen Feuerquellen fernzuhalten und der Raum gründlich zu lüften. Weder die Netzanschlussleitung dieses Gerätes noch eines anderen darf gezogen oder an das Stromnetz angeschlossen werden. Benachrichtigen Sie den Kundendienst. Sollten Spritzer des Kältemittels ins Auge gelangt sein, spülen Sie das Auge unter fließendem Wasser aus und kontaktieren Sie sofort den Augenarzt.

Schließen Sie die linke Tür nur mit eingeklappter Türleiste (1).

Anderenfalls (2) kann die Türleiste verbiegen und deren Aufhängung oder die rechte Tür beschädigt werden, sodass die Dichtung und Kühlleistung nicht mehr gewährleistet ist.

Innerhalb des Geräterahmens befindet sich ein Heizungs-Element, wodurch die Oberflächentemperatur ansteigen kann. Dies ist normal und beeinflusst die Funktion des Gerätes nicht.

Page 79

2-Vorgesehener Gebrauch

2.1 Vorgesehener Gebrauch

Das Gerät ist zum Kühlen und Gefrieren von Lebensmitteln geeignet. Dieses Gerät wurde ausschließlich für den Gebrauch in trockenen Innenräumen im Haushalt konzipiert. Bei gewerblicher Nutzung entfällt die Haier Garantie. Verwenden Sie es nicht für andere Zwecke als die. für die es ausgelegt ist.

Veränderungen oder Modifikationen an dem Gerät sind nicht zulässig. Solche Eingriffe führen zum Verlust von Gewährleistungsansprüchen,

2.2 Zubehör

Zubehör entsprechend der nachfolgenden Liste überprüfen (Abb. 2.2)

Page 80

3-Gerätebeschreibung

Hinweis

Aufgrund technischer Änderungen und Modellvarianten können manche Abbildungen in dieser Bedienungsanleitung ev. von dem von Ihnen erworbenen Modell abweichen.

Geräteabbildungen (Abb.3)

A: Kühlabteil

  • 1 LED Lampe
  • 2 Türleiste
  • 3 Typenschild
  • 4 Türablage
  • 5 Glasabdeckung MyZone Schublade
  • 6 MyZone Schublade
  • 7 Glasablage
  • 8 O.K.-Sticker (optional)
B: Gefrierabteil

  • 9 Obere Gefrierfachschublade
  • 10 Untere Gefrierfachschublade
  • 11 Verstellbare Füße
Page 81

1- Bedienblende

Bedienblende (Abb. 4)
Tasten:

  • A Anwahl Kühlabteil (engl.: "Fridge")
  • B Anwahl Gefrierabteil (engl.: "Freezer")
  • C Anwahl My Zone Schublade
  • D Anwahl Fuzzy Modus und Urlaubsfunktion (engl.: "Holiday")
  • E Anwahl "Super-Cool" Funktion
  • F Anwahl "Super-Freeze" Funktion
  • G Verriegelung Bedienblende

  • a Temperatur Kühlabteil
  • b Temperatur Gefrierabteil
  • c My Zone Funktion
  • d1 Holiday Funktion
  • d2 Fuzzy Modus
  • e Super-Cool Funktion
  • f Super-Freeze Funktion ("Super-Frz.")
  • g Verriegelung Bedienblende

Page 82

5-Bedienung

5.1 Vor dem ersten Gebrauch

  • Alle Verpackungsmaterialien sind zu entfernen. Diese müssen unzugänglich für Kinder aufbewahrt und auf umweltfreundliche Weise entsorgt werden.
  • Vor dem Einlegen von Nahrungsmitteln sollte das Gerät innen und außen mit warmen Wasser und einem milden Geschirrspülmittel gereinigt werden.
  • Nach dem Ausrichten und Reinigen des Gerätes mindestens 2 Stunden warten, bevor es an das Netz angeschlossen wird. Siehe hierzu Kapitel INSTALLATION.
  • Vor dem ersten Einlagern die Abteile bei hoher Reglerstellung vorkühlen. Mit Hilfe der Funktion Super-Freeze wird die Lagertemperatur im Gefrierabteil schnell erreicht.
  • Die Temperatur im Kühl- und im Gefrierabteil werden automatisch auf 5°C bzw.-18°C geregelt. Dies sind die empfohlenen Einstellungen. Falls gewünscht, können diese Temperaturen manuell geändert werden. Siehe MANUELLER MODUS.
5.2 Sensortasten

Bei den Tasten handelt es sich um Sensortasten, die bereits bei leichter Berührung mit dem Finger reagieren.

5.3 Ein- und Ausschalten des Geräts

Das Gerät ist in Betrieb, sobald es an die Stromversorgung angeschlossen ist. Wenn das Gerät zum ersten Mal eingeschaltet ist, werden die momentan in den Abteilen vorhandene Temperatur angezeigt ("a" und ""b"). Das Display blinkt; es erlischt 30 Sekunden, nachdem die Türen geschlossen wurden. Die Tastensperre ist aktiv.

Hinweis: Voreinstellungen

  • Das Gerät ist ab Werk auf die empfohlenen Temperaturen von 5 ° C (Kühlabteil) und -18 ° C (Gefrierabteil) eingestellt. Unter normalen Umgebungsbedingungen müssen keine Temperatureinstellungen vorgenommen werden.
  • ► Die voreingestellte Funktion für die My Zone Schublade ist 0°C Fresh.
  • Nach dem Einschalten des Gerätes kann es bis zu 12 Stunden dauern, bis die eingestellte Temperatur erreicht ist.

Das Gerät vor dem Ausschalten leeren. Zum Ausschalten des Geräts Gerätestecker aus der Steckdose ziehen.

5.4 Standby-Modus

Das Display schaltet automatisch 30 Sekunden nach dem Betätigen einer Taste ab. Danach wird die Bedienblende automatisch verriegelt. Es leuchtet auf, wenn eine Taste gedrückt oder die Tür/Gefrierfachschublade geöffnet wird.

Page 83

5- Bedienung

5.5 Sperren/entsperren der Bedienblende
Hinweis: Verriegelung der Bende

Die Bedienblende wird automatisch gegen ungewolltes Betätigen gesperrt, wenn 30 Sekunden lang keine Taste gedrückt wird. Für jede Einstellung muss die Bedienblende erst entriegelt werden.

  • Zum Sperren der Bedienblende Taste "G" für 3 Sekunden drücken (Abb. 5.5).Das zugehörige Symbol "g" leuchtet auf (Abb. 4.5.2).
  • Zum Entsperren erneut die Taste 3 Sekunden lang drücken.

5.6 Türalarm

Wenn eine der Kühlabteiltüren für mehr als 3 Minuten geöffnet ist, ertönt ein Türalarm. Der Alarm kann durch Schließen der Tür ausgeschaltet werden. Wenn die Tür für mehr als 7 Minuten offen gelassen wird, werden das Licht im Kühlabteil und die Displaybeleuchtung automatisch abgeschaltet.

5.7. Betriebsart wählen

Zwischen folgenden zwei Betriebsarten kann gewählt werden:

5.7.1 Fuzzy Modus

Falls keine speziellen Anforderungen an die Kühlung bestehen, empfehlen wir die Verwendung des Betriebsmodus Fuzzy.

Im Fuzzy Modus regelt das Kühlgerät die Abteil-Temperaturen automatisch entsprechend der Umgebungstemperatur und der Temperaturänderung im Kühlraum.

  • 1. Bedienblende durch Drücken der Taste "G" (Abb.5.5) entsperren, falls diese gesperrt ist.
  • 2. Taste "D" (Fuzzy) berühren (Abb. 5.7.1-1).
  • 3. Die Anzeige "d2" leuchtet auf und die Funktion ist aktiviert (Abb. 5.7.1-2).

Die Funktion kann durch Wiederholen der obigen Schritte oder durch Einstellen einer anderen Funktion wieder ausgeschaltet werden.

Page 84

5-Bedienung

5.7.2 Manueller Modus

Bestehen spezielle Anforderungen an die Lagertemperaturen, können diese mit Hilfe der Tasten der Bedienblende eingestellt werden:

Hinweis: Konflikt mit anderen Funktionen

Eine Temperatureinstellung kann nicht vorgenommen werden, wenn die Bedienblende gesperrt ist oder eine andere Funktion (Super-Cool, Super-Freeze, Holiday oder Fuzzy) aktiviert ist. Die entsprechende Anzeige blinkt und es ertönt ein Signal.

5.7.2.1 Temperatureinstellung im Kühlabteil

  • 1. Bedienblende durch Berühren der Taste "G" entsperren, falls diese gesperrt ist (Abb. 5.5).
  • Taste "A" (Fridge) zur Anwahl des Kühlabteils drücken. Die aktuelle Temperatur im Kühlabteil wird angezeigt (Abb. 5.7.2-1).
  • 3. Taste "A" (Fridge) sooft drücken, bis der gewünschte Wert blinkend angezeigt wird (Abb. 5.7.2-2). Bei jedem Tastendruck ertönt ein Signal. Die Temperatur kann in 1°C Schritten von minimal 1°C bis maximal 9°C eingestellt werden. Die optimale Temperatur im Kühlabteil ist 5°C. Kältere Temperaturen benötigen unnötigen Stromverbrauch.
  • 4. Die Einstellung wird automatisch nach 5 Sekunden gespeichert; zum sofortigen Bestätigen kann irgendeine Taste außer der Taste "A" (Fridge) gedrückt werden. Die Temperaturanzeige leuchtet nun konstant.
5.7.2.3 Temperatureinstellung im Gefrierabteil

  • 1. Bedienblende durch Berühren der Taste "G" entsperren, falls diese gesperrt ist (Abb. 5.5).
  • 2. Taste "B" (Freezer) zur Anwahl des Gefrierabteils drücken. Die aktuelle Temperatur im Gefrierabteil wird angezeigt (Abb. 5.7.2-3).
  • Taste "B" (Freezer) sooft drücken bis der gewünschte Wert blinkend angezeigt wird (Abb. 5.7.2-4). Bei jedem Tastendruck ertönt ein Signal. Die Temperatur kann in 1°C Schritten von -15°C bis -24°C eingestellt werden. Die optimale Temperatur im Gefrierabteil ist -18°C. Kältere Temperaturen benötigen unnötigen Stromverbrauch.
  • 4. Die Einstellung wird automatisch nach 5 Sekunden gespeichert; zum sofortigen Bestätigen kann irgendeine Taste außer der Taste "B" (Freezer) gedrückt werden. Die Temperaturanzeige leuchtet nun konstant.

Page 85
Hinweis: Einflussfaktoren Innentemperatur

Die Innentemperaturen werden durch folgende Faktoren beeinflusst:

  • Raumtemperatur Häufigkeit des Tür öffnen
  • ► Menge der eingelagerten Lebensmitteln
  • Aufstellung des Gerätes
5.8 Super-Cool Funktion

Wenn eine größere Menge von Lebensmitteln eingelagert werden soll, zum Beispiel nach dem Einkauf, sollte die Super-Cool Funktion eingeschaltet werden. Die Super-Cool Funktion beschleunigt das Abkühlen frischer Lebensmittel und schützt gleichzeitig die bereits eingelagerte Ware vor unerwünschter Erwärmung. Dabei wird automatisch eine Soll-Temperatur von 0 bis 1°C vorgegeben.

  • 1. Bedienblende durch Berühren der Taste "G" entsperren, falls diese gesperrt ist (Abb. 5.5).
  • 2. Taste E ("Super-Cool") berühren (Abb. 5.8.-1).
  • 3. Die Anzeige "e" leuchtet auf und die Funktion ist aktiviert (Abb. 5.8.-2).

Zum Ausschalten der Funktion obige Schritte wiederholen oder eine andere Funktion einstellen.

Hinweis: Automatische Abschaltung

Diese Funktion wird automatisch deaktiviert, wenn die Temperatur von +2°C erreicht ist bzw. wenn die Funktion 3 Stunden lang aktiviert war.

5.9 Super-Freeze Funktion

Frische Lebensmittel sollten möglichst schnell bis auf den Kern durchgefroren werden. Dadurch bleiben Nährwerte, Aussehen und Geschmack am besten erhalten. Die Super-Freeze Funktion beschleunigt das Einfrieren frischer Lebensmittel und schützt gleichzeitig die bereits eingelagerte Ware vor unerwünschter Erwärmung. Die Funktion 24 Stunden vor dem Einlegen der Lebensmittel in das unterste Gefrierfach einschalten.

  • 1. Bedienblende durch Berühren der Taste "G" entsperren, falls diese gesperrt ist (Abb. 5.5.).
  • 2. Taste "F" (Super-Frz.) berühren (Abb. 5.9.-1).
  • Die Anzeige "f" leuchtet auf und die Funktion ist aktiviert (Abb. 5.9.-2).

Zum Ausschalten der Funktion obige Schritte wiederholen oder eine andere Funktion einstellen.

Hinweis: Automatische Abschaltung

Die Super-Freeze Funktion wird automatisch nach 50 Stunden ausgeschaltet. Das Gerät wird danach mit der zuvor eingestellten Temperatur betrieben.

DE

5-Bedienung

Page 86

5-Bedienung

5.10 Holiday Funktion

Mit dieser Funktion wird die Kühlabteiltemperatur auf konstant 17 °C eingestellt. Dadurch besteht die Möglichkeit - ohne dass es zu einer Geruchs- oder Schimmelbildung kommt - bei längerer Abwesenheit (z.B. Urlaub= englisch: holiday) das leere Kühlabteil auch geschlossen zu halten. Das Gefrierabteil setzt seinen normalen Betrieb fort.

  • 1. Bedienblende durch Berühren der Taste "G" entsperren, falls diese gesperrt ist (Abb. 5.5).
  • Taste "D" (Fuzzy) für 3 Sekunden berühren; die Anzeige "d1" leuchtet auf und die Funktion ist aktiviert (Abb. 5.10).

Zum Ausschalten der Funktion obige Schritte wiederholen oder eine andere Funktion einstellen.

Während die Holiday Funktion in Betrieb ist dürfen keine Waren im Kühlabteil gelagert werden. Die eingestellte Temperatur von +17°C ist zu warm für Lebensmittel.

5.11 My Zone-Schublade

Das Kühlabteil ist mit einer My Zone-Schublade ausgestattet (Abb. 5.11). Je nach Bedarf kann eine der folgenden Funktionen gewählt werden:

5.11.1 Fruit & Veg.(Obst und Gemüse)

Diese Funktion ist zum Lagern von Obst und Gemüse geeignet.

Hinweis: Fruit & Veg. Funktion

Kälteempfindliches Obst wie Ananas, Avocado, Bananen, Grapefruits und Gemüse wie Kartoffeln Auberginen, Bohnen, Gurken, Zucchini und Tomaten sowie Hartkäse sollten nicht in der My Zone-Schublade gelagert werden.

5.11.2 Funktion 0°C Fresh (0°C Frisch)

Diese Funktion setzt die Temperatur in der MyZone Schublade auf 0°C. Sie ist geeignet, um frischen Lebensmittel wie Fleisch oder Instant-Produkten zu lagern. Die Lebensmittel bleiben bei 0 ° C frisch, ohne zu gefrieren.

Hinweis: 0°C Fresh Funktion

Aufgrund des unterschiedlichen Wassergehalts von Fleisch können einige Fleischsorten mit hohem Feuchtegehalt bei niedrigen Lagertemperaturen gefrieren. So sollte "frisch" aufgeschnittenes" Fleisch im My Zone-Fach bei mindestens 0°C gelagert werden.

DE

Page 87

5 - Bedienung

5.11.3 Quick-Cool (Schnellkühlen)

Mit der Funktion können Getränke in kurzer Zeit auf eine niedrigere Temperatur abgekühlt werden. Die Temperatur im MvZone-Fach wird auf+2 °C eingestellt.

Hinweis: MyZone-Schublade

  • Eine der drei Funktionen muss immer aktiviert sein.
  • Um die K ühlabteiltemperatur zu reduzieren, verwenden Sie die Q-Cool Funktion, um sie zu erh öhen, die Fruit & Vegetable Funktion.

5.11.4 My Zone-Schublade Funktion einstellen

  • 1. Bedienblende durch Berühren der Taste "G" entsperren, falls diese gesperrt ist (Abb. 5.5).
  • Taste "C" (My Zone) sooft drücken, bis die Anzeige "c" der gewünschten Funktion blinkt (Abb. 5.11.4).
  • Nach wenigen Sekunden leuchtet die Anzeige "c" konstant und die Einstellung ist gespeichert.

Page 88

5-Bedienung

5.12 Tipps für das Einlagern von Lebensmitteln

  • Die Temperatur des K
  • Warme Lebensmittel müssen vor dem Einlegen in das Kühlabteil auf Zimmertemperatur abkühlen.
  • Lebensmittel vor dem Einlegen in das Gerät reinigen und trocknen.
  • Einzulagernde Lebensmittel sollten gut verpackt werden, um Gerüche und geschmackliche Beeinträchtigungen zu vermeiden.
  • Keine übermäßigen Mengen einlagern. Die Lebensmittel sollten mit ausreichend Platz eingelagert werden, um einen ungehinderten Kaltluftstrom zu ermöglichen und somit bessere Lagerergebnisse zu erzielen.
  • Nahrungsmittel, die täglich gegessen werden, sollten im vorderen Bereich der Ablagen aufbewahrt werden.
  • Die Lebensmittel nicht zu nah an den Innenwänden lagern, da sie festfrieren könnten. Den direkten Kontakt von (insbesondere öligen und säurehaltigen) Lebensmitteln mit der Innenverkleidung vermeiden, da diese vom Öl/Säure angegriffen werden kann. Solche Rückstände stets entfernen.
  • Gefriergut im K
  • Die Reifung von Obst und Gemüse wie Zucchini, Melonen, Papaya, Bananen, Ananas usw. kann im Gerät beschleunigt werden. Von einer Einlagerung dieser Lebensmittel wird daher abgeraten. Allerdings kann die Reifung sehr unreifer Früchte für eine gewisse Zeit unterstützt werden. Zwiebeln, Knoblauch, Ingwer und sonstiges Wurzelgemüse sollten ebenfalls bei Zimmertemperatur gelagert werden.
  • Unangenehme Gerüche im Kühlschrank weisen darauf hin, dass etwas ausgelaufen ist und einen Reinigung erforderlich ist. Siehe REINIGUNG UND WARTUNG.
  • Die Lebensmittel sollten entsprechend den unterschiedlichen Lagertemperaturbereichen zugeordnet werden (Abb. 5.12.1):

Butter, Käse usw.

  • Eier, Dosen, Tuben, Gewürze usw.
  • 6 Getränke, Flaschen, Tuben
  • Eingelegte Lebensmittel, Konserven usw
  • 5 Fleischprodukte, Snacks,
  • 6/7 Teigwaren, Milch, Tofu, Milchprodukte usw.
    • My Zone Schublade: Dosengetränke (Quick-Cool) Rohe frische Lebensmittel (0°C Fresh) Obst und Gemüse (Fruit&Veg.)

DE

Page 89
5.12.2 Einlagern in das Gefrierabteil

  • Die Temperatur des Gefrierabteils sollte stets bei -18°C gehalten werden.
  • 24 Stunden vor dem Einfrieren den Temperaturregler auf MAX Position stellen- bei kleinen Mengen genügen 4-6 Stunden.
  • Warme Lebensmittel müssen vor dem Einlegen in das Gefrierabteil auf Zimmertemperatur abkühlen.
  • Portionierte Lebensmittel gefrieren schneller und lassen sich besser auftauen und verarbeiten. Das empfohlene Portionsgewicht beträgt höchstens 2,5 kg.
  • Lebensmittel sollten vor dem Einlegen in das Gefrierabteil verpackt werden. Die Verpackung muss außen trocken sein, damit sie nicht festfriert. Das Verpackungsmaterial sollte geruchsneutral, luftdicht und ungiftig sein.
  • ► Um ein Ablaufen der Lagerzeit zu verhindern, das Einlagerungsdatum, die zulässige Lagerdauer und die Bezeichnung des Lebensmittels auf der Verpackung vermerken.
  • WARNUNGI: Säure, Lauge, Salz usw. können die Oberfläche des Gerätes angreifen. Lebensmittel mit diesen Substanzen (z.B. Meeresfisch) nicht direkt auf den Boden oder in Kontakt mit den Wänden ablegen. Salzwasser im Gerät sollte umgehend entfernt werden.
  • Die von den Lebensmittelherstellern empfohlene Lagerzeiten für die jeweiligen Lebensmittel, insbesondere die für gewerblich tiefgefrorene Lebensmittel, sollten nicht überschritten werden.
  • ► Jeweils nur die benötigte Menge an Lebensmitteln entnehmen.
  • ► Aufgetaute Lebensmittel rasch verbrauchen. Sie dürfen erst wieder eingefroren werden, nachdem sie gekocht wurden.
  • ► Keine übermäßigen Mengen an frischen Lebensmitteln einlagern. Das Gefriervermögen beachten (siehe Kapitel TECHNISCHE DATEN und Angaben auf dem Typenschild). Wenn an mehreren Tagen hintereinander eingefroren wird, sind höchstens ca. 2/3 der maximalen Einfriermenge zu nehmen.
  • Lebensmittel können bei einer Temperatur von mindestens -18 °C je nach Art 2 bis 12 Monate eingelagert werden (z. B. Fleisch 3 bis 12 Monate, Gemüse 6 bis 12 Monate).
  • ► Frische Lebensmittel beim Einlagern nicht mit dem übrigen Gefriergut in Kontakt bringen. Antaugefahr!

5.12.3 Beim Aufbewahren von eingekauften Tiefkühlwaren sind folgende Punkte zu beachten:

  • ► Immer die Angaben des Herstellers in Bezug auf die zulässige Aufbewahrungsdauer der Nahrungsmittel beachten. Diese Dauer nicht überschreiten!
  • Zwischen dem Kauf und der Einlagerung sollte so wenig Zeit wie möglich vergehen, um die Qualität der Nahrungsmittel zu erhalten.
  • ► Nur tiefgekühlte Produkte kaufen, die bei einer Temperatur von -18 °C oder weniger aufbewahrt wurden.
  • ► Nahrungsmittel, auf deren Verpackung sich Eis oder Frost befindet sollten nicht gekauft werden. – Dies ist ein Hinweis darauf, dass das Produkt möglicherweise stellenweise aufgetaut und wieder gefroren ist – Temperaturanstiege beeinträchtigen die Qualität der Nahrungsmittel.
Page 90

Tipps zum Energiesparen

  • ► Das Gerät nicht im direkten Sonnenlicht oder in der Nähe einer Wärmequelle (z B
  • Unnötige tiefe Temperatureinstellungen sollten vermieden werden. Je niedriger die
  • ► Funktionen wie SUPER-FREEZE verbrauchen mehr Energie
  • ► Warme Lebensmittel vor dem Einlagern auf Raumtemperatur abkühlen lassen.
  • Die Tür so wenig und so kurz wie möglich öffnen
  • Nicht zu viele Lebensmittel einlagern, damit die kalte Luft zirkulieren kann
  • ► Einen Lufteinschluss in der Lebensmittelverpackung vermeiden
  • ► Türdichtungen sauber halten, damit die Türen immer richtig schließen.
  • Gefriergut im K ühlabteil auftauen
Page 91

'- Ausstattung

Hinweis: Abweichungen je nach Modell

Aufgrund unterschiedlicher Modellvarianten verfügt Ihr Produkt möglicherweise nicht über alle der folgenden Ausstattungen. Siehe auch Kapitel GERÄTEBESCHREIBUNG.

7.1 Multi-air-flow

Das Kühlabteil ist mit einem ventilatorgestützten Multi- Air-Flow-System ausgestattet, welches für eine gleichmäßige Verteilung der Kühlluft auf unterschiedlichen Ebenen sorgt (Abb. 7.1). So können warme Lebensmittel schneller heruntergekühlt werden, die Ausgangsfrische und Qualität der eingelagerten Lebensmittel bleibt erhalten.

7.2 Verstellbare Ablagenhöhe

Die Ablagen können je nach Lagerungsbedarf in ihrer Höhe verstellt werden.

  • 1. Ablage auf beiden Seiten fassen, in Richtung (1) nach oben anheben und in Richtung (2) herausziehen (Abb. 7.2).
  • Die Ablage zum Wiedereinlegen auf die F ührungsschienen legen und ganz nach hinten schieben, bis die Ablage in die hinteren seitlichen Schlitze einrastet.

Hinweis:

Darauf achten, dass alle Kanten der Ablage auf gleicher Höhe liegen.

7.3 Abnehmbare Türablagen

Zur Reinigung lassen sich die Türablagen entfernen. Türablage auf beiden Seiten fassen, in Richtung (1) nach oben anheben und in Richtung (2) herausziehen (Abb. 7.3).

Die Schritte in umgekehrter Reihenfolge ausführen, um die Türablage wieder einzusetzen.

7.4 My Zone-Schublade

Gebrauch und Einstellung der My Zone-Schublade (Abb. 7.4) siehe BEDIENUNG (My Zone-Schublade).

DE

Page 92

7-Ausstattung

7.5 OPTIONAL: OK-Sticker

Anhand der "OK"-Temperaturanzeige (Abb. 7.5) an der inneren Seitenwand des Kühlabteils kann festgestellt werden, ob die Temperatur unter +4 °C liegt. Temperatur stufenweise verringern, wenn der Sticker nicht "OK" anzeigt.

Hinweis: OK-Sticker

Nach dem Einschalten des Gerätes kann es bis zu 12 Stunden dauern, bis die eingestellte Temperatur erreicht ist.

7.6 Herausnehmbare Schubladen

Zum Herausnehmen die Schubladen bis zum Anschlag vorziehen (1), anheben und herausnehmen (2) (Abb. 7.6),

Die Schritte in umgekehrter Reihenfolge ausführen, um die Schubladen wieder einzusetzen.

(HB16FM*** / HB16FG***/HB16FB***)

7.8

WARNUNG!

7.7 Pleuelstange entfernen

Nach Herausnahme der oberen Gefrierschublade kann die Pleuelstange entfernt werden (Abb. 7.7)

  • Haltenase (1) der Kunststoffhalterung (A) drücken und aus Halterung herausschieben (2).
  • 2. Auf anderer Seite ebenso verfahren,
  • 3. Pleuelstange (B) entnehmen (3).

Die Schritte in umgekehrter Reihenfolge ausführen, um die Pleuelstange wieder einzusetzen.

7.8 3D-Gefrierschublade

Die Gefrierschubladen (Abb, 7.8) lassen sich gerade und komplett ausziehen. Sie sind auf Leichtlauf-Teleskopschienen gelagert, sodass das Gefriergut einfach und komfortabel eingelagert und entnommen werden kann. Der automatische Türschließmechanismus erleichtert die Handhabung und spart zudem Energie.

Schubladen nicht überladen! Maximale Beladung je Schublade: 35 kgl

Page 93

7 - Ausstattung

7.9 Eiswürfelbehälter

  • Den Eiswürfelbehälter zu 3/4 mit Wasser füllen und in eines der beiden Gefrierfachschubladen geben (Abb. 7.9-1).
  • 2. Um die Eiswürfel herauszulösen den Eiswürfelbehälter vorsichtig verdrehen oder unter fließendes-Wasser halten (Abb. 7.9-2).

7.10 Weinregal & Eierablage

  • 1. Legen Sie die Flasche senkrecht ein.
  • 2. Beachten Sie die vorgegebene Wölbung(Fig.7.10-1).
  • Die Rückseite dient als Ablage für Eier(Fig.7.10-2).

7.11 Innenbeleuchtung

Wird die Kühlabteiltür geöffnet, schaltet sich automatisch die LED-Lampe ein. Die Leistung der Leuchte wird von keiner Gerätefunktion beeinflusst

Page 94

8- Reinigung und Pflege

Schalten Sie vor jeder Wartung das Gerät aus und ziehen Sie den Netzstecker.

8.1 Allgemeines

Gerät am besten dann reinigen, wenn nur wenig oder kein Kühl- bzw. Gefriergut eingelagert ist. Um unangenehme Gerüche im Gerät zu vermeiden, wird empfohlen, das Kühlabteil alle vier Wochen zu reinigen.

  • ► Führen Sie die Reinigung nicht mit hartborstigen Bürsten, Drahtbürsten, Scheuerpulver, Benzin, Amylacetat, Aceton und ähnlichen organischen Lösungen, Säure oder alkalischen Lösungen durch sondern verwenden Sie spezielle Kühlschrankreiniger.
  • Besprühen oder spülen Sie das Gerät nicht mit Wasser ab.
  • ▶ Reinigen Sie das Gerät nicht mit Dampf- oder Wasserstrahl
  • ► Reinigen Sie die kalten Glasablagen nicht mit heißem Wasser. Plötzliche Temperaturänderungen können zu Glasbruch führen.
  • ► Berühren Sie kalte Eisenteile nicht mit feuchten Händen. Es besteht die Gefahr festzufrieren.
  • Überprüfen Sie bei Erwärmung im Gefrierabteil den Zustand des Gefriergutes .

  • Die Türdichtung stets sauber halten.
  • Das Gerät einschließlich Innenausstattung mit einem weichen Reinigungstuch oder Schwamm und lauwarmem Wasser reinigen. Eventuell etwas mildes Handgeschirrspülmittel beigeben (Abb. 7.1).
  • ► Wassertropfen an den Innenflächen mit einem trockenen, weichen Reinigungstuch entfernen.
  • Geräteteile nicht in der Geschirrspülmaschine reinigen.
  • Zubehörteile nur mit warmem Wasser und mildem Handspülmittel reinigen.
  • Vor dem Wiedereinschalten mindestens 5 Minuten warten, da häufiges Einschalten den Kompressor beschädigen kann.
8.2 Abtauen

Das Kühl- und Gefrierabteil tauen automatisch ab, so dass kein manueller Eingriff erforderlich ist.

8.3 Austauschen der LED-Lampe

WARNUNG!

Tauschen Sie die LED Lampe nicht selbst aus sondern wenden Sie sich an der Kundendienst.

Page 95

8- Reinigung und Pflege

Die LED-Beleuchtung ermöglicht einen geringen Energieverbrauch und eine lange Lebensdauer. Bei Störungen wenden Sie sich bitte an den Kundendienst (siehe KUNDEN

Technische Daten LED Lampe:

Spannung 12V, max. Leistung 2W

8.4 Austauschbare Schubladendichtung

Es gibt sechs Dichtungen für die obere und die untere Gefrierschublade, die bei Bedarf wie folgt ausgtauscht werden können.

  • 1. Die fünf Dichtungen an der oberen und unteren Schublade an den dargestellten Positionen anbringen (Abb. 8.4-1.).
  • 2. Darauf achten, dass die gebogene Lippe beim Anbringen jeweils in den Gefrierraum zeigt (Abb. 8.4-2.).
  • 3. Die untere Dichtung der oberen Schublade anbringen (Abb. 8.4-3.).
  • Darauf achten, dass die gebogene Lippe beim Anbringen nach unten zeigt (Abb. 8.4-4.).

Diese Dichtungen sowie die umlaufenden Tür-/ Schubladen Dichtungen erhalten Sie über den Kundendienst (siehe Garantie-Karte).

8.5 Bei längerer Nichtbenutzung

Wenn das Gerät über einen längeren Zeitraum außer Betrieb gesetzt werden soll, und nicht die Holiday Funktion verwendet werden soll:

  • Eingelagerte Lebensmittel entnehmen.
  • ► Netzstecker ziehen.
  • ► Gerät wie oben beschrieben reinigen.
  • Gerätetüren/Schubladen offen stehen lassen, damit im Gerät keine üblen Gerüche entstehen.

1) Hinwe

Hinweis: Gerät ausschalten

Das Gerät nur dann ausschalten, wenn es unbedingt notwendig ist.

8.6 Bewegen den Gerätes

  • 1. Netzstecker ziehen und alle Lebensmittel aus dem Gerät entnehmen.
  • 2. Die Ablagen und sonstigen beweglichen Teile im Kühl- und Gefrierabteil mit Klebeband sichern.
  • 3. Das Gerät nicht um mehr als 45 ° kippen, um Beschädigungen des Kühlsystems zu vermeiden.

  • ► Das Gerät nicht an den Griffen anheben.
  • Das Gerät niemals horizontal auf den Boden legen
Page 96

9-Fehlerbehebung

Die im Folgenden aufgezählten Probleme können meist selbst behoben werden. Wenden Sie sich erst dann an den Kundendienst (siehe Garantiekarte), wenn Sie alles geprüft haben und den Fehler nicht beseitigen können.

WARNUNG!

  • Schalten Sie vor jeder Wartung das Gerät aus und ziehen Sie den Netzstecker.
  • Elektrogeräte dürfen nur durch Elektrofachkräfte repariert werden, da durch unsachgemäße Reparaturen erhebliche Folgeschäden entstehen können.
  • Wenn das Netzkabel beschädigt ist, muss es durch den Kundendienst (siehe Garantiekarte) ersetzt werden, um eine Gefahr auszuschließen.
9.1 Liste möglicher Probleme
Problem Mögliche Ursachen Lösungen
Der Kompressor
läuft nicht.
• Der Netzstecker ist nicht mit der Steckdose verbunden. Verbindung herstellen.
• Das Gerät taut ab.
  • Das ist bei einem automatisch ab-
    tauenden Gerät normal.
Das Gerät springt
häufig an oder
• Die Innen- oder Außentempe-
ratur ist zu hoch.
• In diesem Fall ist es normal, dass das Gerät länger läuft.
läuft zu lange. Das Gerät war über einen län-
geren Zeitraum ausgeschaltet.
• In der Regel dauert es 8 bis 12 Stun-
den, bis das Gerät seine Betriebs-
temperatur erreicht hat.
Eine Gerätetür/Schublade ist
nicht richtig geschlossen.
  • Tür/Schublade schließen. Darauf
    achten, dass das Gerät auf einem
    ebenen Untergrund steht und keine
    Nahrungsmittel oder Behälter an die
    Tür stoßen.
Die Tür/Schublade wurde zu
häufig oder zu lange geöffnet.
  • Tür/Schublade so wenig wie möglich
    öffnen.
Die Temperatur für das
Gefrierabteil ist zu niedrig ein-
gestellt.
• Die Temperatur auf einen höheren
Wert einstellen, bis eine zufrieden-
stellende Gefriertemperatur erreicht
ist. Die Gefriertemperatur hat sich
nach 24 Stunden stabilisiert.
Die Dichtung der Tür/
Schublade ist verschmutzt,
abgenutzt, gerissen oder ver-
rutscht.
Dichtung reinigen und ggf. vom Kun-
dendienst ersetzen lassen.
• Die erforderliche Luftzirkulation ist nicht gewährleistet. Eine ausreichende Belüftung sicher-
stellen.
Der Innenraum
des Kühlabteils
ist verschmutzt
und/oder riecht
unangenehm.
Der Innenraum des Gerätes
muss gereinigt werden.
Den Innenraum des Gerätes reini-
gen.
  • Im K
Lebensmittel stets gut verpackt ein-
lagern.
Page 97

9- Fehlerbehebung

Problem Mögliche Ursachen Lösungen
Im Gerät wird es
nicht kalt genug.
• Der Temperaturregler ist auf
"schwach" eingestellt.
• Temperatur neu einstellen.
• Es wurde zu warmes Gut ein-
gelagert.
Gut erst abkühlen lassen.
• Es wurde zu viel auf einmal ein-
gelagert.
Stets kleinere Mengen einlagern.
• Die Waren liegen zu dicht anei-
nander.
• Zwischen den einzelnen Produkten
einen Luftspalt lassen.
Die Tür/Schublade ist nicht
richtig geschlossen.
Tür/Schublade schließen.
Die Tür/Schublade wurde zu
häufig oder zu lange geöffnet.
Tür/Schublade so wenig wie möglich
öffnen.
lm Gerät ist es zu
kalt.
• Die Temperatur ist auf einen zu
niedrigen Wert eingestellt.
Temperatur neu einstellen.
• Die Super-Freeze Funktion ist aktiviert und läuft zu lange. Super-Freeze Funktion ausschalten.
lm Kühlabteil hat
sich Feuchtigkeit
gebildet.
• Das Gerät befindet sich in einer
zu warmen und zu feuchten
Umgebung.
Temperatur mittels Temperaturreg-
ler leicht erhöhen.
• Die Tür/Schublade ist nicht richtig geschlossen. Tür/Schublade schließen.
Die Tür/Schublade wurde zu
häufig oder zu lange geöffnet.
Tür/Schublade so wenig wie möglich
öffnen.
Eingestellte Behältnisse wur-
den offen gelassen.
Warme Speisen stets auf Raum-
temperatur abkühlen und Nahrungs-
mittel und Flüssigkeiten abdecken.
Feuchtigkeit sam-
melt sich auf den
Außenflächen des
• Die Luftfeuchtigkeit ist zu hoch. Das ist bei feuchtem Klima normal
und ändert sich mit abnehmender
Luftfeuchtigkeit.
Gerates oder zwi-
schen den Abteilen.
Die Tür/Schublade ist nicht
richtig geschlossen.
• Darauf achten, dass die Tür/
Schublade richtig geschlossen ist.
Starke Eis- und
Reifbildung im
Gefrierabteil.
• Es wurden nicht ausreichend verpackte Waren eingelagert. • Waren stets gut verpackt einlagern .
Die Tür/Schublade wurde offen
gelassen.
Tür/Schublade schließen.
• Die Tür/Schublade wurde zu
häufig oder zu lange geöffnet.
• Tür/Schublade so wenig wie möglich öffnen.
• Die Dichtung ist defekt. • Dichtung reinigen und ggf. ersetzen.
  • Etwas im Innenraum verhin-
    dert, dass die Tür/Schublade
    richtig schließt.
  • Sicherstellen, dass weder Ware, de-
    ren Verpackung oder Geräteteile das
    Schließen der Tür/Schublade behin-
    dern.
Page 98
Problem Mögliche Ursachen Lösungen
Die Seiten
des Gehäuses
werden und
die Türleiste
werden warm.
• Dies ist normal. • -
Das Gerät gibt
ungewöhnliche
• Das Gerät steht nicht auf ebe-
nem Untergrund.
• Das Gerät so ausrichten, dass es ge-
rade steht.
Gerausche von
sich.
  • Das Gerät stößt an einen Ge-
    genstand.
Um das Gerät stehende Gegenstän-
de entfernen.
Ein leises Geräusch
wie von fließendem
Wasser ist zu hören.
• Dies ist normal. • -
Es ertönt ein
Alarmton.
Die Kühlabteiltür steht offen. Die Kühlabteiltür schließen.
Ein leises Brum-
men ist zu hören.
Das Kondenswasser-Schutz-
system läuft.
Das System verhindert die Bildung
von Kondenswasser und erzeugt
dieses Geräusch.
Die Innenbeleuch-
tung und/oder
das Kühlsystem
funktionieren nicht.
• Der Netzstecker ist nicht mit der Steckdose verbunden. Verbindung herstellen.
• Die Stromversorgung ist nicht intakt.
  • Stromversorgung überprüfen. Bei jegli-
    chem Defekt ist ein Elektrofachmann zu
    verständigen!
• Die LED-Lampe ist defekt. • LED Lampe durch Kundendienst austauschen.
9 2 Stromausfall

Bei einem Stromausfall bleiben die Nahrungsmittel etwa 20 Stunden lang sicher gekühlt. weise zu befolgen:

  • 1
  • Während des Stromausfalls keine weiteren Lebensmittel in das Gerät geben.
  • Wenn der Stromausfall angekündigt wird und mehr als 20 Stunden andauert, etwas
  • Eine Überprüfung des Lagergutes unmittelbar nach der Unterbrechung ist erforderlich.
  • 1

Hinweis: Speicherfunktion bei Stromausfall

Nach Wiederherstellung des Stromanschlusses läuft das Gerät mit den Einstellunger

28

Page 99
10.1 Auspacken

  • ► Das Gerät ist schwer. Nehmen Sie eine zweite Personen zu Hilfe.
  • Bewahren Sie alle Verpackungsmaterialen f ür Kinder unzug änglich auf und entsorgen Sie die Verpackung auf umweltfreundliche Weise.
  • Gerät aus der Verpackung entnehmen.
  • ► Alle Verpackungsmaterialen entfernen,
10.2 Umgebungsbedingungen

Die Zimmertemperatur muss zwischen 10 °C und 43 °C liegen, da sie die Temperatur im Gerät und dessen Energieverbrauch beeinflussen kann. Das Gerät nicht ungedämmt in der Nähe anderer Wärme abgebender Geräte (Herde, Heizkörper etc.) aufstellen.

10.3 Gesamtraumbedarf

Erforderlicher Raumbedarfbei geöffneter Tür (Abb. 10.3).

Gerät
in
ebreite
mm
Gerätetiefe
in mm
Wandabstand
in mm
W1 W2 D1 D2 D3 D4
700 1188 600 887 966 100

10.4 Lüftungsquerschnitte

Um aus Sicherheitsgründen eine ausreichende Belüftung des Gerätes zu erzielen, müssen die Angaben des erforderlichen Lüftungsquerschnittes eingehalten werden (Abb. 10.4).

Page 100

10.5 Gerät ausrichten

Gerät auf ebenen harten Boden aufstellen.

  • Das Gerät leicht nach hinten kippen (Abb. 10.5).
  • Die Standfestigkeit kann durch wechselseitiges Anstoßen über die Diagonalen überprüft werden Das leichte Schwanken soll in beiden Richtungen gleich sein. Ist dies nicht der Fall, kann Türdichtungen sind die Folge Fine geringe Neigung nach hinten erleichtert das Schließen der

10.6 Feiniustierung der Türen

Wenn nach dem Gerätausrichten ein Höhenversatz zwischen beiden Gerätetüren besteht, kann dieser wie

10 6 1 Verstellen der Gerätefüße

Gerätefuß gemäß Abbildung 10.6-1 in die entspre-

10.6.2 Verwendung der Abstandshalter

  • Obere Tür öffnen und anheben.
  • ► Abstandshalter aus dem Beipack vorsichtig mit der Hand oder mit einem Werkzeug (z.B. Zange) auf
Hinweis: Höhenversatz

Aufgrund des Gewichts der eingelagerten Lebensmittel in den Türablagen kann sich

Loading...