FILE NO. 070-200006
维修手册
PRINTED IN CHINA. Jul., 2000 D
| 安全说明 |
|---|
| 安装调整4 |
| 维修模式 |
| 设计模式9 |
| 电气调整10 |
| 电路检查16 |
| 第二章 特殊信息 |
| 设定及调整数据17 |
| 控制器位置18 |
| 编程频道存储 |
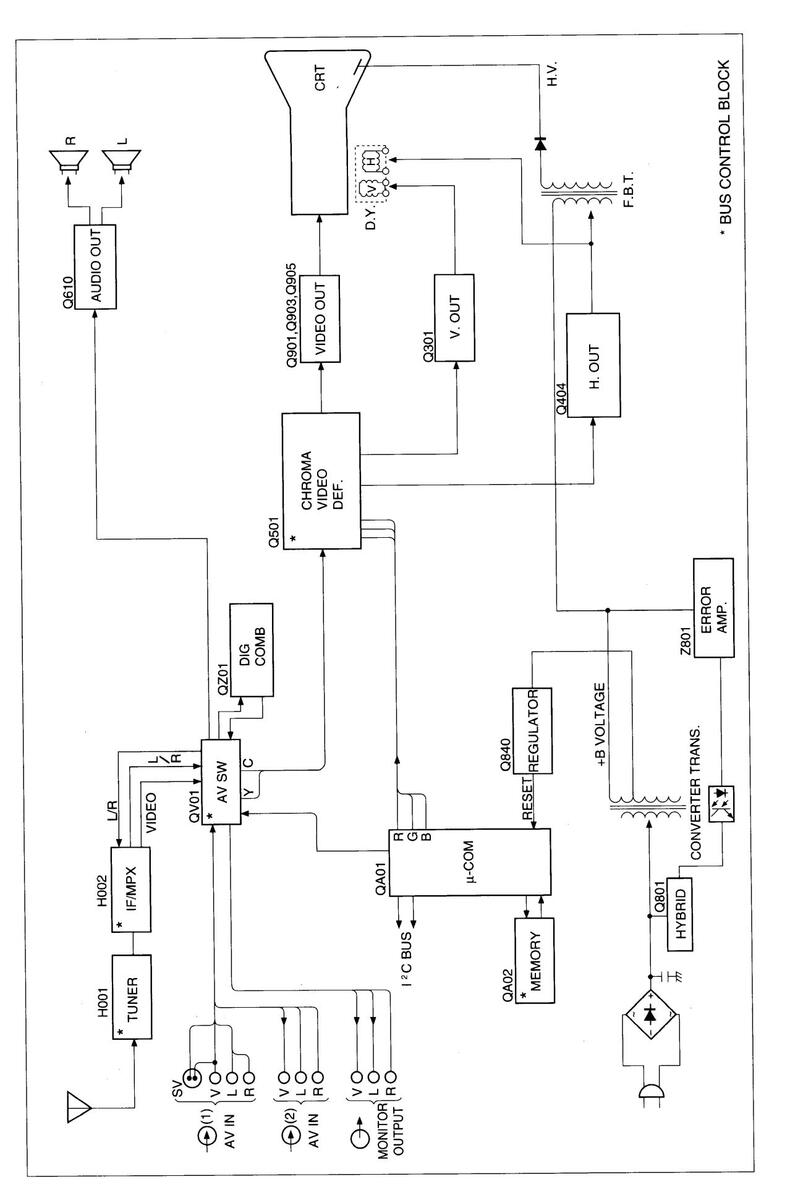
| 电路方框图 |
| 底盘和机壳更换部件表 |
| PC 板底视图 |
| 晶体管管脚图 |
| 规格 |
| 附录: |
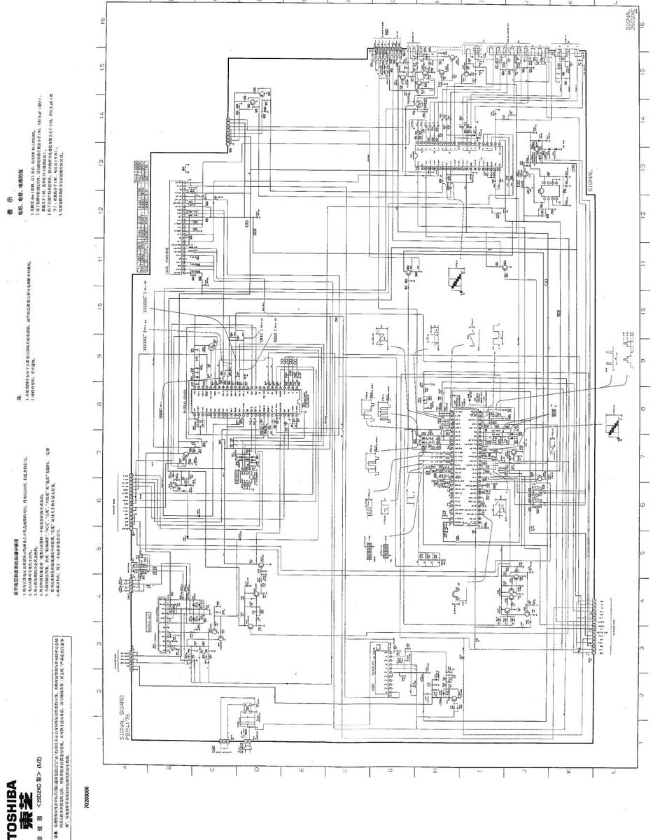
电路图
第一章 一般调整
警告 :在对本底盘进行维修之前,请阅读下面有关"X射线辐射须知"、"安全须知"及"产品安全注意事项"等说明。
过高的电压可能产生有潜在危险的"X射线辐射"。为避免 这种危险,高压不得超过指定的极限值。使用 ② V 交流电 源时,在电子束电流为零(亮度最小)的条件下,本接收机 的高压标称值为 ④ kV。在任何情况下,高压均不得超过 ⑧ kV。
关于高压 ④、⑧ 和交流电源电压 © 请参阅表 1(见第 17 页上的"设定及调整数据")
每当检修接收机时,均应按照本手册中的"高压检查"步骤 检查电压。最好将高压读数作为维修记录的一部分记录下 来。使用一个精确而可靠的高压计是十分重要的。
本底盘上的许多电气和机械部件都具有特别与安全有关的特性。观察其外观时,这些特性往往被忽视,用适合高压、高瓦数的部件更换时,有可能难以得到应用的保护。在本手册和附录中标明了具有这些特别安全特性的更换用部件,而且,在原理图和部件表中还用国际通用危险符号标明了具有这种特性的电子元件。 在更换任何这种元件之前,请先仔细查看部件表。使用不具有部件表中指定的相同安全特性的更换用部件可能会引起电击、
在史瑛忙问这种几件之前,请元行细查有部件表。使用不具有部件表中指定的相向安全将性的更换用部件可能会引起电击、 火灾、X射线辐射或其他伤害。
警告 : 在进行本底盘的维修之前,请先参阅本手册第3页上的"X射线辐射须知"、"安全注意事项"和"产品安全注意事 项"。
■ 下列调整应在需要全面重较或安装新显象管时进行。 请按如下顺序进行调整: 1. 色纯度 2. 会聚 3 白色平衡 注: 纯度/会聚磁铁组件和橡胶楔子需进行机械定位。见图 1。(注: 调整彩色纯度的位置应使其与以前的位置一致,因为根 据显像管的不同其位置也有微少的差异。)
* 其此显象管无纯度和会聚调整(以纯度磁铁统一)。
团 1
注:在进行任何会聚调整之前,接收机应工作15分钟以上。
调整角度(垂直线) 同时转 (水平)
会聚磁铁组件
图 2
磁铁的调整
使偏转线圈上倾(或下倾)
RED/BLU GRN GRN-----
6极磁铁的移动
由偏转线圈进行的四周会聚
使偏转线圈右倾(或左倾)
图 3 像点移动图形
一般调整
1) 按下电视机上的 MENU 键。
在显示调整选单时按下述键可提供各种特殊的功能。
| 单条平行线 ON/OFF: | -/ 键(遥控器上)或 🕣 键(电视机上) |
|---|---|
| 测试信号选择: | -● 键(遥控器上) |
| 调整项目之选择: | CHANNEL ▲/▼(电视机或遥控器上) |
| 数据值之改变: | VOLUME:⊿ +/-(电视机或遥控器上) |
| 调整选单模式 ON/OFF: | 电视机上的 MENU 键 |
| 存储器(QA02)的初始设定: | 电视机上的 CALL + CHANNEL 键(▲) |
| 将操作保护电路的读数重设为 "00" : | 电视机上的 CALL + CHANNEL 键(▼) |
| "RCUT"选择: | 1 键 |
| "GCUT"选择: | 2 键 |
| "BCUT"选择: | 3 键 |
| "CNTX"(或"SCNT")选择: | 4 键 |
| "COLC"选择: | 5 键 色彩浓度更正 |
| "TNTC"选择: | 6键 注:依所接收的彩色制式的设定如下所示显示有所不同。 |
| 测试音频信号 ON/OFF(1 kHz): | 8键 COLP (PAL) |
| 自我诊断显示 ON/OFF: | 9键 COLC (NTSC) |
| COLS (SECAM) |
注意:除非您改变了存储器 IC,否则切勿进行初始设定。
* 对于某些机型,带有 🛲 标记的键功能无法用于控制测试信号。
い 在维修模式下每次按下 CHANNEL ▲ 键、均会按表 2 的顺序改变调整项目(按 ▼ 键为相反顺序)。
1) 按下 VOLUME ▲+/- 键在从 00H 到 FFH 的范围内改变数值。可变范围依调整项目而改变。
6 退出维修模式
1) 按下 POWFR 键关断由视机的由循
更换 OA02 之后、需进行下述初始设定
如下面维修模式所示,每次按下遥控器上的 -● 键均会改变屏幕上的内置测试图形。
信号关闭 ───→ NTSC 信号(14 个图形) ▲____ PAI 图形(14 个图形) ▲___
| 信号 | 图像 |
|---|---|
|
•
红色光栅
• 绿色光栅 • 蓝色光栅 •全黑色 •全白色 |
|
| ●黑色和白色 | |
|
|
|
●黑色交叉阴影线
●白色交叉阴影线 |
|
|
●黑色交叉点
●白色交叉点 |
|
|
●H信号(白色)
●H信号(黑色) |
* 带 📟 标记的信号无法用于某些机型的测试信号的显示。
1) 在维修模式下显示调整选单时,请按下遥控器上的"9"键。若 IC 间的接合正确无误,自我诊断则会开始。
2) 在诊断中出现下述显示:
|
|
|
|---|---|
|
1
2 3 4 5 |
23*****
POWER : 00 BUS LINE : OK BUS CONT : OK BLOCK : UV V1 V2 (或SYNC) QV01 QV01S |
* 带有 🎫 标记的项目无法用于某些机型的自我诊断功能的显示。
现所选模式的指示灯色彩 : 绿色和红色 其他模式的指示灯色彩 : 白色
绿色: 普通
红色:微机工作以进行无视频信号的判断。在信号输入时,若一直显示红色,故障则可能存在于含QV01的输入信号线上。
QV01:绿色显示时 ---- 正常 有输入信号且为红色显示时 ---- 故障可能存在于含 OV01 的输出线上。
注: 控制屏幕上的字符显示的设备为 QT01 (TELETEXTIC.)。若因 QT01 损坏而使此显 示功能无法工作时,自我诊断程序如下所示: (1)电源指示灯以 0.5秒的间隔闪烁时,表示保护 电路(电流限制器)在工作。电路设备可能 被损坏。请检查相关的设备。 (2)电源指示灯以 1秒的间隔闪烁时,保护电路未 工作,但总线部分工作异常。请检查总线。
1) 选择维修模式。
当对 QA02 进行初始设定时, DESIGN MODE 的 "OPT0"和 "OPT1"项目被设定为本底盘类的代表性机型的数据。 因屏幕规格保持代表性机型的状态,故此机型需要重新设定 "OPT0"和 "OPT1"项目的数据。
在设计模式下,每次按下 CHANNEL ▼ 键均会按表 3 的顺序改变调整项目(按 ▲ 键则为相反顺序)。
关于设计模式的数据。 唐参阅表 3。 (见第-17.页上的"给定及谓等数据")
按下 VOLUME ▲ 或 ▼ ( ∠ +/- ) 键可改变数值。
| 项目 | 调整步骤 |
|---|---|
| 聚焦 VR 调整 |
|
|
副亮度(BRTC)
注: 调整地址 HIT(HEIGHT) 使图像高度收缩,直至垂直 重描线出现。 |
|
|
水平位置调整(HPOS)
垂直位置调整(VPOS) |
|
| 垂直振幅调整(HIT) |
|
| 项目 | 调整步骤 |
|---|---|
|
白色平衡调整
● 截断调整 (RCUT) (GCUT) (BCUT) ● 驱动调整 (GDRV) (BDRV) |
|
|
建制 伊
注意: 对于某些机型,若改变调整项目会取消其内部测试图形。 遇此情况,请先用频道 ▲ ▼ 键选择调整项目,然后再用 ---- 键选择内部测试图形。
- 11 -
| m | - | _ | |
| - C. | · 1 T | ||
| - () | |||
| ~ ~ | |||
| o | 24.7. | · | |
| . ~ | 100.00 | ||
| - 10 - 10 | |||
| - 2 | |||
| • | |||
| ۰. | |||
| - | |||
| - | • | ||
| 1.11 | их | ||
| • | |||
| 调整条件及步骤 | 1. 条件 Cont max, Bright cent, Color cent | 2. 调整步骤 | a. 通过 Sub 地址 VPOS 调整 V.Position,使菲利普图形的圆 | 的上下位置位于中心。 | b. 通过调整 Sub 地址 HIT, 将菲利普图形的上下标志正好递 | 住。 | c. 须以南、北朝向进行调整。不行时,请据此加以调整。 | 1. 条件 Cont max, Bright cent, Color cent | 2. 调整步骤 | 通过调整 Sub 地址 HPOS,将菲利普图形的 d-c 调为最小。 | (在 CRT 调整磁场将 d-c 调为最小) | 1. 条件 调整 V.HEIGHT, VERT POSITION, H.POSITION 之后, | 进行以下调整。(调为 Cont max, Bright cent, Color cent) | 2. 调整步骤 | a. 通过 Sub 地址 WID 调整水平振幅、将菲利普的左右白色 | 标志正好均等地遮住。 | b. 无法将菲利普的左右白色标点正好均等地遮住时, 再次追 | 过调整 Sub 地址 HPOS, 裕 d-c 调为最小之后, 再进 疗 | "a"的调整。 | c. 通过调整 Sub 地址 PARA, 使左右的竖条棒成为直线。 | d. 通过调整 Sub 地址 TRAP 校正梯形偏斜。 | c. 再次调整 Sub 地址 WID。 | ||
|---|---|---|---|---|---|---|---|---|---|---|---|---|---|---|---|---|---|---|---|---|---|---|---|---|
| 调整信号 | WG 菲利普图形 | 请勿使用 FRANCE SECAM 的 | 菲利普图形 | WG 菲利普图形 | 请勿使用 FRANCE SECAM 的 | 菲利普图形 | WG 菲利普图形 | 请勿使用 FRANCE SECAM 的 | 菲利普图形 | |||||||||||||||
| 通过图形进行 Visual 调整 | (Bus 控制) | 通过图形进行 Visual 调整 | (Bus 控制) | P | — 通过图形进行 Visual 调整 | 」(Bus 控制) | ||||||||||||||||||
| 名称 | : HEIGHI | : VERT. | POSITION | × | - | : HORIZONTAL | NOITION | : 水平振幅调整 | · | :管脚偏斜修正量 | 调整 | : 梯形偏斜修正量 | 调整 | |||||||||||
| 项目 | HIT | VPOS | SO d H | MID | PARA | TRAP |
- 12 --
| 项目 | 名称 | 设定(用户控制) | 输入信号 | 测定位置 | 调整方式 | 调整规格 |
|---|---|---|---|---|---|---|
| SCNT | SUB | 图像模式 1 | 副亮度信号 | Q501 #20 | 1. 选择 SCNT 。 | 2.5±0.2V (p-p) |
| CONTRAST | (→|1|←) | 2. 根据 R-OUT 信号的消隐脉冲电平调 | ||||
| 调整 | R-OUT | 整白电平的振幅。 | ||||
| * 根据屏幕 VR 位置,须在无波形变化 | ||||||
| (ACL 动作)的位置进行调整。 | ||||||
| TNTC | SUB | 图像模式 1 | 副亮度信号 | Q501 #22 | 1. 选择 [INTC] 。 | -5.0°±5° |
| _ | TINT | (→|1|←) | (NTSC) | 2. 如图所示,调整彩色条棒的第#5、 | ||
| _ | 调整 | B-OUT | #7 个峰与第 #6 个峰的偏差。 | |||
| - |
-
Pů - |
|||||
|
(
|
||||||
| #5 #6 #7 | ||||||
| COLC | SUB | 图像模式 1 | 副亮度信号 | Q501 #22 | 1. 选择 [COLC] 。 | 1.4V (0-p) |
| COLOR | (→|1|←) | (NTSC) | 2. 调整彩色条棒输出的振幅。 | ±0.2V (p-p) | ||
| NTSC | B-OUT | (上半部的 p-p 值) | 上半部的 p-p 值 | |||
| 调整 | * 须在调整 TNTC 之后进行调整。 | |||||
| COLP | SUB | 图像模式 1 | 副亮度信号 | Q501 #22 | 1. 选择 [COLP]。 | 1.4V (0-p) |
| COLOR | (→|1|←) | ( PAL ) | 2. 调整彩色条棒输出的振幅。 | ±0.2V (p-p) | ||
| PAL | B-OUT | (上半部的 p-p 值) | 上半部的 p-p 值 | |||
| 调整 | * 须在调整 COLC 之后进行调整。 | |||||
- 13 -
一般调整
| 调整规格 | 1.9V (0-p) | ±0.2V (p-p) | 上半部的 p-p 值 | 0±10mV (p-p) | 0±10mV (p-p) | ||||||||
|---|---|---|---|---|---|---|---|---|---|---|---|---|---|
| 调整方式 | 1. 选择 [COLS]。 | 2. 调整彩色条棒输出的振幅。 | (上半部的 p-p 值) | * 须在调整 COLC] 之后进行调 | 離。 | 1. 选择 SRY 。 | 2. 使彩色差异信号的无彩色部分 | 的电平与 H-BLK 部分的电平 | 一致。 | 1. 选择 [SBY]。 | 2. 使彩色差异信号的无彩色部分 | 的电平与 H-BLK 部分的电平 | —致 。 |
| 测定位置 | Q501 #22 | B-OUT | Q501 #20 | R-Y OUT | Q501 #22 | B-Y OUT | |||||||
| 输入信号 | SECAM | 彩色条棒信号 | SECAM | 彩色条棒信号 | SECAM | 彩色条棒信号 | |||||||
| 设定(用户控制) | 图像模式 1 | (→|1|←) | 图像模式 1 | (→|1|←) | 图像模式 1 | (→|1|←) | |||||||
| 名称 | SUB | COLOR | SECAM | 调整 | SECAM | 黑电平调整 | R-Y 轴 | SECAM | 黑电平调整 | B-Y 轴 | |||
| 项目 | COLS | SRY | SBY |
一般调整
– 14 –
| 调整规格 | HIGH LIGHT | (103cd/m 2 ) | 11500K | +0.0075uV | DARK | (17cd/m 2 ) | 10500K | +0.0105uV | * 调整范围与以前的 | 相同 | 4±1.5 条 | ||||||||
|---|---|---|---|---|---|---|---|---|---|---|---|---|---|---|---|---|---|---|---|
| 调整方式 | 1. 设定为左侧的状态。 | 2. 逐渐抬高屏幕, 在 R、G、B | 中的一条线略微发亮处停住。 | 3. 将屏幕 VR 的调整位置确定在 | 此处。 | 4. A RCUT, GCUT, BCUT, | 将在步骤2中发亮线条之外部 | 分分别逐渐抬高,在略微发亮 | 处停住。(调整为近似白色) | 5. 解除平行线模式。 | 6. 利用白色平衡检验器反复调 | 整,使亮区和暗区的值都正确 | 无误。 | 7. 请利用改变调制度、调和亮 | 度的检验器。 | 1. 须在调整屏幕 VR、白色平衡 | 之后调整此项目。 | 2. 调整副亮度信号的黑色纵弯曲 | 数。 |
| 测定位置 | 画面调整 | 画面调整 | |||||||||||||||||
| 输入信号 | 无彩色同步的光栅 | 信号 | 副亮度信号 | ||||||||||||||||
| 设定(用户控制) | RCUT | GCUT > 20H | BCUT | GDRV ADH | BDRV | 设定为平行线模式。 | 图像模式 1 | (→|1|←) | |||||||||||
| 名称 | 屏幕调整及白色平 | 衡调整 | (R 截断) | (G截断) 、 | (B 截断) | (G 驱动) | (B 驱动) | (」「」」()」()」()」()」()」()」()」()」()」()」()」()」() | SUB | BRIGHT 调整 | |||||||||
| 项目 | RCUT | GCUT | BCUT | GDRV | BDRV | 屏幕 VR | BRTC |
- 15 -
4. 在最大和最小之间改变 BRIGHTNESS 控制,保证在任何情况下高压不超过限定值。
| 29 英寸 | 25 英寸 | ||
|---|---|---|---|
| 在电子束电流为零时的高压: | 32.0 kV | 30.5 kV | |
| 最高电压: | ₿ | 33.0 kV | 32.0 kV |
| 交流电源电压: | © | 110–240 V | 110–240 V |
表 1
在维修模式下的调整项目及数据:
| 项目 | 调整 | 预设数据 | 29 英寸 | 25 英寸 |
|---|---|---|---|---|
| RCUT | R CUTOFF (B/W) | 20H | ← | ← |
| GCUT | GCUTOFF (B/W) | 20H | ← | ← |
| BCUT | BCUTOFF (B/W) | 20H | ← | ← |
| GDRV | G DRIVE | 40H | ← | ← |
| BDRV | B DRIVE | 40H | ← | ← |
| BRTC | SUB BRIGHT CEN | 40H | ← | |
| COLC | SUB COLOR CEN NTSC | 45H | ← | ← |
| TNTC | SUB TINT CEN | 45H | ← | ← |
| COLP | SUB COLOR CEN PAL | FFH | ← | ← |
| COLS | SUB COLOR CEN SECAM | 00H | ← | ← |
| CLUV | SUB COLOUR | 15H | ← | ← |
| SCNT | SUB CONTRAST | 09H | ← | ← |
| HPOS | 50Hz H-POSITION | 0FH | ← | ← |
| VPOS | V-POSITION | 03H | ← | ← |
| НТ | HEIGHT | 1CH | 20H | 22H |
| VLIN | V-LINEARITY | 08H | ← | 07H |
| WID | PICTURE WIDTH | 24H | ← | 22H |
| PARA | E-W PARABOLA | 2CH | ← | 23H |
| TRAP | TRAPEZIUM | 0FH | ← | 10H |
| BELL | SECAM BELL FILTER | 01H | ← | ← |
| SRY | SECAM R-Y | 07H | ← | ← |
| SBY | SECAM B-Y | 07H | ← | ← |
| 表 2 |
【设计模式】
在设计模式下的调整项目及数据:
| 而日 | 调熬夕称 | 预设数据 | 数 | 据 |
|---|---|---|---|---|
| - v y H | 炯正古你 | 29 英寸 | 25 英寸 | |
| OPT1 | OPTION1 | 27H | 27H | 27H |
| OPT2 | OPTION2 | 12H | 12H | 10H |
表 3
电视机前面
电视机后面
* 双重功能按键。
· - ● (1) 视频 1 输入端子
寺殊信息
遙控器
- 19 -
首先,请用"自动搜台模式"功能,以自动方式调出所有在贵地用于播放节目的频道。 然后请用"搜索"、"手动微调"和"跳越"功能排列预调的频道,以使您能只调出所需要的频道。
| 值 用自动搜台模式功能 | 使用搜索功能 |
|---|---|
| 用位置增(∧)/减(∨)按键或直接选择按键,选择位置数码的开头,以开始自动搜索模式。 |
¶ ∧ ∨ 按键或直接选择按键选择一个位置数
码。 |
| 2 反复按压 MENU 按键以在屏幕上呼出"设定"项目单。 | 2 反复按压 MENU 按键以在屏幕上呼出"设定"项目单。 |
|
3
确认"
色彩
"设定在"自动","声音"设定在适
当的系统上。 |
3 按压 ▲▼ 按键以选择" 搜索 "。 |
|
若设定不当,按压▲▼按键以选择"
色彩"
或"
声
音",然后按压-+按键以选择各自适当的系统。 |
|
| 4 按压▲▼按键以选择"自动搜台模式"。 | 重复此步骤,直至找到所需要的频道。 |
| 5 当预约的节目出现时,按压▲▼按键以选择"记忆"。 | |
|
5
按压 "+" 按键以使
自动搜台模式
开始启动。所有
用于播放节目的频道将自动被预调。 |
6 按压+按键以在当前位置储存该频道。 |
| 预调结束后,将重新出现第一个位置数码。 | 7 当您要编制其他频道时,您可使用▲▼ 按键以选择"位置选择",并用, 按键选择低于更优化 |
|
预调后
按压 ∧ \/ 按键\\ 於 查 预 调 的 频 道 |
注 回旦迟注 ,开用一+ 按键匹拜所安的位直。
然后按压▲▼ 按键以选择 "搜索",并重复步骤 4 至 6。 |
| ● 若某一频道的图象或声音较差,请用手动微调功能对频 |
· 工 >。
或在 "设定" 项目单消失后重复步骤 1 至 6。 |
当以搜索功能预调频道时,"自动微调"会自动开启,而"跳跃"功能会设定至关闭位置。
| 手动 | 2微调 | 若要跳过一个位置数码 | ||
|---|---|---|---|---|
| 1 | 用 A V 按键或直接选择按键选择您要微调的位置数码。 |
预调频道后,您可以跳过不需要的位置数码,以便只
选择您想看的频道。 |
||
|
用 ∧ ∨ 按键或直接选择按键选择要跳过的位置
数码。 |
||||
|
2 反复按压 MEN
目单。 |
反复按压 MENU 按键以在屏幕上呼出"设定"项目单。 | 2 反复按压 MENU 按键以在屏幕上呼出"设定"项 | ||
| ■目单。 | ||||
| 3 | 按压▲▼按键以选择 "手动微调 "。 | 3 按压▲▼按键以选择" 跳跃 " | ||
| 4 | 按压-+按键直至接收到最佳图像和声音。 | ▲ 按压 – + 按键以选择"跳跃开"。 | ||
| 注 | • | |||
|
当操作手动微调功能时,自动微调功能自动被设定
在" 关 "。 |
5 按压 MENU 按键,以关闭"设定"项目单显示。
当用直接选择按键选择要跳过的位置数码时, |
|||
| 自动 | 微调 | |||
| 1 |
用 ∧ ∨ 按键或直接选择按键选择您要微调的位
置数码 |
当忘而 八 ∨ 按键选择位直时,该位直致码将被
跳过。 |
||
| 五 次円0 | 若要恢复被跳过的位置数码 | |||
| 2 | 反复按压 MENU 按键以在屏幕上呼出"设定"项 | 1 以直接选择按键选择您要恢复的位置数码。 | ||
| 目单。 |
2 按压 MENU 按键以呼出"设定"项目单显示,并按压
▲▼ 按键以选择"跳跃"。 |
|||
| 3 |
按压▲▼按键以选择"自动微调"。按压-+按
键以选择" 开 "。 |
3 按压 – + 按键以选择 " 跳跃 关 "。 | ||
| 注 | * 有关详情,请参阅用户手册。 | |||
|
当位:
在位: |
置被设定在
"自动微调 关
" 状态时, "■"标志出现
置数码的左侧。 |
|||
当位置被设定在" 自动微调 开 "状态时,所显示的位置数码不带"■"标志。
- 22 -
警告 :在检修本底盘之前,请先阅读本手册第3页上的"X射线辐射须知"、"安全须知"及"产品安全注意事项"。
注意 :在原理图和部件表中的国际危险记号"小"表示具有安全方面的重要特性的元件,它们必须用与原电路中的元件一致或在部件表中指定的元件进行更换。更换的安装位置必须与原位置相同。在更换任何这种元件之前,请先仔细阅读"产品安全注意事项"。不要因为不适当的维修而降低接收机的安全性。
• 订购部件时必须注明部件号以便于处理,同时记人型号及种类。
• 带*标记的 PC 电路板组件在生产停止后即不再有货。
缩写说明: 电容器...
电阻器...
(如未另外指出
| CD | : | 陶瓷片电容 | PF | : 剪 | 目料膜电容 | EL : | 电解由容 |
|---|---|---|---|---|---|---|---|
| CF | : | 碳膜电阻 | CC | : | ↑成碳电阻 | MF : | 金属膜电阳 |
| DM | F: | 金属氧化膜电阻 | VR | : व् | 「变电阻 | FR : | 可熔电阻 |
| 1, | 所有 | CD 和 PF 电容器均为 | ±5%,50伏, | 所有 | 电阻器均为+5% | 1/6页) | UT OIL |
|
位置号
———— |
部件号 | 说明 | 位置号 | 部件号 | 说明 | |
|---|---|---|---|---|---|---|
| 电容器 | C318 | 24666101 | EL, 100µF, ±20%, 16V | |||
| C101 | 24796479 | EL, 4.7μF, ±20%, 35∨ | ~ | C319 | 24212102 | CD, 1000pF, ±10% |
| C103 | 24794221 | EL. 220μF. ±20%. 16V | C320 | 24668101 | EL, 100μF, ±20%, 35∨ | |
| C105 | 24232103 | CD. 0.01µF. +80%20% | C321 | 24567474 | PF, 0.47μF | |
| C106 | 24669010 | EL. 1µF. ±20%. 50V | C341 | 24666101 | EL, 100μF, ±20%, 16V | |
| C110 | 24212221 | CD. 220pF. ±10% | C342 | 24795100 | EL, 10μF, ±20%, 25V | |
| C113 | 24567104 | PF, 0.1μF | C361 | 24794220 | EL, 22μF, ±20%, 16V | |
| C114 | 24567104 | PF, 0.1μF | C363 | 24082053 | PF, 0.1μF, 100V | |
| C115 | 24567104 | PF, 0.1μF | C403 | 24590822 | PF, 0.0082μF | |
| C120 | 24797478 | EL, 0.47μF, ±20%, 50V | C404 | 24669478 | EL, 0.47μF, ±20%, 50V | |
| C121 | 24797478 | EL, 0.47μF, ±20%, 50V | C406 | 24797010 | EL, 1µF, ±20%, 50∨ | |
| C123 | 24794221 | EL, 220μF, ±20%, 16V | C413 | 24214821 | CD, 820pF, ±10%, 500V | |
| C162 | 24232103 | CD. 0.01µF. +80%20% | C416 | 24678010 | EL, 1µF, ±20%, 200∨ | |
| C168 | 24232103 | CD, 0.01µF, +80%, -20% | C417 | 24214391 | CD, 390pF, ±10%, 500V | |
| C181 | 24232103 | CD, 0.01µF, +80%, -20% | C420 | 24794101 | EL, 100μF, ±20%, 16V | |
| C190 | 24232103 | CD, 0.01µF, +80%, -20% | C421 | 24794221 | EL, 220µF, ±20%, 16V | |
| I | (29D2XC) | C423 | 24797479 | EL, 4.7μF, ±20%, 50V | ||
| C201 | 24073078 | EL, 0.22μF, ±20%, 50V | C430 | 24212102 | CD, 1000pF, ±10% (29D2XC) | |
| C210 | 24591104 | PF, 0.1μF | C430 | 24474102 | CD, 1000pF, ±10% (25D2XC) | |
| C216 | 24797010 | EL, 1μF, ±20%, 50V | C431 | 24763222 | EL, 2200µF, ±20%, 16V | |
| C221 | 24473100 | CD, 10pF | C432 | 24232103 | CD, 0.01µF, +80%, -20% | |
| C222 | 24473100 | CD, 10pF | C433 | 24073034 | EL, 10μF, ±20%, 16V | |
| C223 | 24473100 | CD, 10pF | C436 | 24665102 | EL, 1000μF, ±20%, 10V | |
| C224 | 24797100 | EL. 10μF. ±20%. 50V | C439 | 24232103 | CD, 0.01µF, +80%, -20% | |
| C225 | 24567104 | PF, 0.1μF | C440 | 24082929 | PF, 6800pF, ±3%, 1500V | |
| C226 | 24591104 | PF, 0.1μF | | ' | 1 | (29D2XC) | |
| C233 | 24797010 | EL, 1μF, ±20%, 50V | 1 1 | C440 | 24082956 | PF, 7200pF, ±3%, 1500∨ |
| C304 | 24214471 | CD, 470pF, ±10%, 500V | 1 1 | 1 | (25D2XC) | |
| C305 | 24617915 | EL, 1μF, ±10%, 50V | C441 | 24693472 | PF, 4700pF, 100V | |
| C306 | 24667332 | EL, 3300µF, ±20%, 25∨ | | / | C442 | 24082917 | PF, 0.3µF, 315∨ |
| (29D2XC) | | / | C443 | 24667102 | EL, 1000μF, ±20%, 25V | ||
| C306 | 24667222 | EL, 2200µF, ±20%, 25V | | | | C444 | 24082611 | PF, 6200pF, ±3%, 1800V |
| (25D2XC) | | ! | 1 | (29D2XC) | |||
| C307 | 24693273 | PF, 0.027μF, 100V | 1 1 | C444 | 24082609 | PF, 5100pF, ±3%, 1800V |
| C308 | 24668221 | EL, 220µF, ±20%, 35∨ | 1 1 | 1 | (25D2XC) | |
| C310 | 24073073 | EL, 2200µF, ±20%, 35∨ | C445 | 24828563 | PF, 0.056μF, 200V | |
| C311 | 24214102 | CD, 1000pF, ±10%, 500∨ | 1 | | C446 | 24829683 | PF, 0.068μF, 400V (29D2XC) |
| C313 | 24082057 | PF, 0.22µF, 100∨ | | | | C446 | 24829393 | PF, 0.039µF, 400V (25D2XC) |
| C314 | 24567393 | PF, 0.039μF | 1 1 | C447 | 24679220 | EL, 22μF, ±20%, 250∨ |
| C315 | 24212102 | CD, 1000pF, ±10% | 1 | | C448 | 24640908 | EL, 33μF, ±20%, 160V |
| C316 | 24567223 | PF, 0.022μF | 1 1 | C449 | 24214331 | CD, 330pF, ±10%, 500V |
| 位置号 | 部件号 | 说明 |
|---|---|---|
| C451 | 24567823 | PF, 0.082μF |
| C452 | 24567474 | PF, 0.47μF (29D2XC) |
| C460 | 24590103 | PF, 0.01μF |
| C461 | 24567474 | PF, 0.47μF |
| C463 | 24212222 | CD, 2200pF, ±10% |
| C464 | 24640872 | EL, 10μF, ±20%, 100V |
| C467 | 24082095 | PF, 0.018µF, 630V (29D2XC) |
| C467 | 24095879 | PF, 0.022μF, ±3%, 630V |
| (25D2XC) | ||
| C470 | 24666220 | EL, 22μF, ±20%, 16V |
| C472 | 24567474 | PF, 0.47μF |
| C477 | 24567103 | |
| C478 | 24567104 | PF, 0.1µF (25D2XC) |
| C482 | 24567154 | |
| C484 | 24590562 | |
| CE01 | 24007104 | CD 0.01μE ±80% -20% |
| C501 | 24232103 | CD, 0.01µF, +80%, -20% 25V |
| C502 | 24092390 | CD 0 1//E +80% -20% 25V |
| C503 | 24032330 | CD 2200pE +10% |
| C512 | 24212222 | CD 0.01//F +80% -20% |
| C510 | 24232103 | EL 1000E +20% 50V |
| C521 | 24092398 | CD. 0.1µF. +80%, -20%, 25V |
| C522 | 24092398 | CD, 0.1μF, +80%, -20%, 25V |
| C523 | 24092398 | CD, 0.1µF, +80%, -20%, 25V |
| C524 | 24794101 | EL, 100μF, ±20%, 16V |
| C525 | 24232103 | CD, 0.01µF, +80%, -20% |
| C526 | 24590222 | PF, 2200pF |
| C527 | 24092602 | Chip, 9pF, ±0.5pF |
| C528 | 24073078 | EL, 0.22μF, ±20%, 50V |
| C610 | 24794100 | EL, 10μF, ±20%, 16V |
| C612 | 24794470 | EL, 47μF, ±20%, 16V |
| C615 | 24232103 | CD, 0.01µF, +80%, -20% |
| C620 | 24794101 | EL, 100μF, ±20%, 16V |
| C621 | 24797010 | EL, 1μF, ±20%, 50V |
| C622 | 24/9/010 | EL, 1μF, ±20%, 50V |
| C623 | 24232103 | CD, 0.01µF, +80%, -20% |
| C624 | 24/9/4/8 | EL, 0.47µF, ±20%, 50V |
| 24590102 | PE 1000pF | |
| C662 | 24390102 | FI 100001 |
| C670 | 24794100 | EL 10//E +20% 50V |
| C673 | 24/5/100 | EL, 10µ1, 120%, 50V |
| C676 | 24567104 | PF. 0.1μF |
| C677 | 24567104 | PF. 0.1 µ F |
| C678 | 24669229 | EL, 2.2μF, ±20%, 50V |
| C681 | 24668102 | EL, 1000μF, ±20%, 35V |
| C682 | 24669221 | EL, 220μF, ±20%, 50V |
| C683 | 24668102 | EL, 1000μF, ±20%, 35V |
| C690 | 24669101 | EL, 100μF, ±20%, 50V |
| C691 | 24232103 | CD, 0.01µF, +80%, -20% |
| C693 | 24794101 | EL, 100μF, ±20%, 16V |
| C704 | 24590822 | PF, 0.0082µF (29D2XC) |
| C705 | 24232103 | CD, 0.01µF, +80%, -20% |
| (29D2XC) | ||
| C707 | 24795470 | EL, 4/µr, ±20%, 25V |
| C712 | 24795470 |
(29D2AC)
EL 47/1E +20% 25\/ |
| U/12 | 24/904/0 | (29D2XC) |
| C713 | 24790100 | EL. 10μE. ±20%. 160V |
| 0710 | 24/00/00 | (29D2XC) |
| C714 | 24436101 | CD, 100pF (29D2XC) |
| C715 | 24214472 | CD, 4700pF, ±10%, 500V |
| (29D2XC) | ||
| 位置号 | 部件号 | 说明 |
|---|---|---|
| C716 | 24436101 | CD, 100pF (29D2XC) |
| C717 | 24214472 |
CD, 4700pF, ±10%, 500V
(29D2XC) |
| C718 | 24794470 |
EL, 47μF, ±20%, 16V
(29D2XC) |
| C719 | 24435560 | CD, 56pF, 500V (29D2XC) |
| C720 | 24790100 | EL, 10µF, ±20%, 160V |
| (29D2XC) | ||
| C721 | 24794470 |
EL, 47μF, ±20%, 16V
(29D2XC) |
| C722 | 24436561 | CD, 560pF (29D2XC) |
| C726 | 24212102 | CD, 1000pF, ±10% (29D2XC) |
| ∆C801 | 24503002 | PF, 0.22μF, ±20%, AC275V |
| C802 | 24503002 | PF, 0.22μF, ±20%, AC2/5V |
| ∆C805 | 24092281 | CD, 4/00pF, ±20%, AC250V |
| ©C806 | 24092281 | CD, 4700pr, ±20%, AC250V |
| C808 | 24/95331 | EL, 330µF, ±20%, 25V |
| CO10 | 24000930 |
CD 470μF, ±20%, 450V
CD 470nF ±10% ΔC250\/ |
| 13 CO 13 |
24032303
21003565 |
CD 470pF +10% AC250V |
| C815 | 24092909 | CD. 470pF +10%, AC250V |
| C8154 | 23960136 | Adhesive, TSE3843-W |
| C817 | 24092339 | CD, 330pF, ±10%. 2kV |
| C818 | 24095931 | PF, 2200pF, 1250V |
| C819 | 24676220 | EL, 22μF, ±20%, 100V |
| C821 | 24214471 | CD, 470pF, ±10%, 500V |
| C822 | 24567474 | PF, 0.47μF |
| C823 | 24214471 | CD, 470pF, ±10%, 500V |
| C829 | 24590272 | PF, 2700pF |
| C831 | 24794470 | EL, 47μF, ±20%, 16V |
| C833 | 24797229 | EL, 2.2μF, ±20%, 50V |
| C841 | 24797100 | EL, 10μF, ±20%, 50V |
| C842 | 24794100 | EL, 10μF, ±20%, 16V |
| C843 | 24567104 | PF, 0.1μF |
| C846 | 24567224 | |
| C883 | 2456/4/4 | PF, 0.47µF |
| 24080910 | EL, 330µF, ±20%, 100V | |
| C005 | 24214471 | CD 470pF +10% 500V |
| C889 | 24214471 | EL 2200 u E +20%, 50V |
| C893 | 24092474 | CD. 220pF. ±10%. 2kV |
| C895 | 24676470 | EL, 47μF, ±20%, 100V |
| C898 | 24567224 | PF, 0.22μF |
| C902 | 24092345 | CD, 1000pF, ±10%, 2kV |
| C903 | 24436121 | CD, 120pF (29D2XC) |
| C903 | 24436271 | CD, 270pF (25D2XC) |
| C904 | 24436471 | CD, 470pF |
| C905 | 24436471 | CD, 470pF |
| C906 | 24436121 | CD, 120pF (29D2XC) |
| C906 | 24436271 | CD, 270pF (25D2XC) |
| C907 | 24436471 | CD, 470pF |
| C908 | 24436121 | |
| C908 | 24436331 | |
| C909 | 246/9220 |
el, 22μγ, ±20%, 250V
(29D2XC) |
| C909 | 24679330 |
EL, 33μF, ±20%, 250V
(25D2XC) |
| C910 | 24797478 | EL, 0.47μF, ±20%, 50V |
| C911 | 24203100 | EL, 10µF, ±20%, 16V |
| CQ12 | 2/170/102 |
(2302AC)
EL 1000//E +20% 16V |
|
C912
C913 |
24/34102 | FI 221/F +20% 16V |
| 0010 | 27107620 | (29D2XC) |
特殊信息
| 位置号 | 部件号 | 说明 |
|---|---|---|
| C913 | 24794100 |
EL, 10μF, ±20%, 16V
(25D2XC) |
| C914 | 24212103 | CD 0.01//E +10% (20D2XC) |
| C915 | 24212100 | EL 22//E +20% 16V |
| 24704220 | ||
| C930 | 24214101 | CD 100pE +10% 500V |
| 21214101 | (29D2XC) | |
| C931 | 24214101 | CD, 100pF, ±10%, 500V |
| (29D2XC) | ||
| C971 | 24794221 | EL, 220μF, ±20%, 16V |
| (25D2XC) | ||
| CA10 | 24474271 | CD, 270pF, ±10% |
| CA22 | 24473150 | CD, 15pF |
| CA23 | 24473150 | CD, 15pF |
| CA24 | 244/3150 | CD, 15pF |
| CA25 | 244/3150 | |
| CA33 | 24232103 | CD, 0.01μF, +80%, -20% |
|
CA34
CA37 |
24474101 | CD, 100pF, ±10% |
| CA38 | 24474101 | CD 100pF, ±10% |
| CA42 | 24794101 | El 10//E +20% 16\/ |
| CA68 | 24794100 | EL, 10μΓ, ±20%, 10V |
| CA69 | 24232103 | CD. 0.01//F. +80% -20% |
| CA70 | 24212472 | CD, 4700pF, +10% |
| CA71 | 24212561 | CD, 560pF, ±10% |
| CA72 | 24794331 | EL, 330µF, ±20%, 16V |
| CA73 | 24474181 | CD, 180pF, ±10% |
| CA74 | 24797010 | EL, 1µF, ±20%, 50∨ |
| CA99 | 24232103 | CD, 0.01µF, +80%, -20% |
| CP01 | 04704470 | (25D2XC) |
| CBUI | 24/944/0 | EL, 4/µF, ±20%, 16V |
|
CB20
CB21 |
24212101 | CD, 100pF, ±10% |
| CB21 | 24212221 | CD, 220pF, ±10% |
| CC01 | 24232103 | CD 0.01//F ±80% -20% |
| CC02 | 24232103 | CD, 0.01µE, +80% -20% |
| CC03 | 24232103 | CD, 0.01µF, +80%, -20% |
| CC05 | 24474102 | CD, 1000pF, ±10% |
| CC06 | 24474102 | CD, 1000pF, ±10% |
| CC07 | 24474102 | CD, 1000pF, ±10% |
| CC08 | 24474102 | CD, 1000pF, ±10% |
| CC09 | 24474102 | CD, 1000pF, ±10% |
| 0010 | 24474102 | CD, 1000pF, ±10% |
| 24436820 | CD, 82pF | |
|
CC12
CC13 |
24232103 | CD, 0.01µF, +80%, -20% |
| CC14 | 24232103 | CD, 0.01µF, +80%, -20% |
| CC18 | 24232103 | CD 0.01/JE +80% -20% |
| CC19 | 24232103 | CD. 0.01µF. +80% -20% |
| CC20 | 24436100 | CD, 10pF, ±0.25pF |
| CC25 | 24474102 | CD, 1000pF, ±10% |
| CC26 | 24474102 | CD, 1000pF, ±10% |
| CC27 | 24232103 | CD, 0.01µF, +80%, -20% |
| CS02 | 24797010 | EL, 1μF, ±20%, 50V |
| CS03 | 24797010 | EL, 1μF, ±20%, 50V |
| C504 | 24797010 | EL, 1μF, ±20%, 50V |
|
C505
C506 |
24/9/010 | EL, 1µF, ±20%, 50V |
| CS07 | 24/9/010 | EL, ΙμΕ, ±20%, 50V |
| CS10 | 24/3/010 |
LL, ΙμΓ, ±20%, 50V
FL 10μF ±20% 16V |
| CS11 | 24794100 |
EL 10μι, ±20%, ΙΟΥ
FL 10μF +20% 16\/ |
| CS12 | 24797010 | EL. 1μF. +20% 50V |
| CS13 | 24797010 | EL, 1μF, ±20%, 50V |
| CS15 | 24232103 | CD, 0.01µF, +80%, -20% |
| 位置号 | 部件号 | 说明 |
|---|---|---|
| CS29 | 24203220 | EL. 22µF. +20% 16V |
| CV01 | 24794101 | EL, 100μF, ±20%, 16V |
| CV03 | 24073077 | EL, 0.1μF, ±20%, 50V |
| CV04 | 24797010 | EL, 1μF, ±20%, 50V |
| CV05 | 24797220 | EL, 22μF, ±20%, 50V |
| CV06 | 24567473 | PF, 0.047μF |
| CV11 | 24232103 | CD, 0.01µF, +80%, -20% |
| CV19 | 24073077 | EL, 0.1μF, ±20%, 50V |
| CV20 | 240/30// | EL, 0.1μF, ±20%, 50V |
| CV22 | 240/30// | EL, 0.1µF, ±20%, 50V |
| 0030 | 240/30// | EL, 0.1µF, ±20%, 50V |
| CV32 | 24232103 |
CD, 0.01μF, +80%, -20%
(29D2XC) |
| CV33 | 24232103 | CD, 0.01µF, +80%, -20% |
| CV34 | 24762471 | EL, 470μF, ±20%, 10V |
| CV36 | 24794221 | EL, 220μF, ±20%, 16V |
| CV39 | 24073077 | EL, 0.1μF, ±20%, 50V |
| CZ01 | 24797478 |
EL, 0.47µF, ±20%, 50V
(29D2XC) |
| CZ02 | 24794101 |
EL, 100μF, ±20%, 16V
(29D2XC) |
| CZ03 | 24092398 |
CD, 0.1µF, +80%, -20%, 25V
(29D2XC) |
| CZ04 | 24232103 |
CD, 0.01µF, +80%, -20%
(29D2XC) |
| CZ05 | 24232103 |
CD, 0.01µF, +80%, -20%
(29D2XC) |
| C206 | 24232103 |
CD, 0.01µF, +80%, -20%
(29D2XC) |
| 0700 | 24794101 |
EL, 100μF, ±20%, 16V
(29D2XC) |
| 0700 | 24092398 |
CD, 0.1µF, +80%, -20%, 25V
(29D2XC) |
| CZ09 | 24567103 | PF, 0.01μF (29D2XC) |
| CZ 10 | 244/3150 | CD, 15pF (29D2XC) |
| CZ12 | 24507103 | FF, 0.01μF (29D2XC) |
| CZ13 | 24232103 |
CD, 180pr, ±10% (29D2AC)
CD, 0.01µF, +80%, -20% |
| CZ14 | 24232103 |
(25D2XC)
CD, 0.01μF, +80%, -20% (29D2XC) |
| CZ15 | 24473390 | CD, 39pF (29D2XC) |
| CZ16 | 24473560 | CD, 56pF (29D2XC) |
| CZ17 | 24092398 |
CD, 0.1µF, +80%, -20%, 25V
(29D2XC) |
| CZ18 | 24473220 | CD, 22pF (29D2XC) |
| CZ20 | 24794330 |
EL, 33μF, ±20%, 16V
(29D2XC) |
| 电阻器 | ||
| R101 | 24382183 | OMF, 18k ohm, 1W |
| R106 | 24327333 | MF, 33k ohm, ±1%, 1/4W |
| R109 | 24327333 | MF, 33k ohm, ±1%, 1/4W |
| R110 | 24366221 | CF, 220 ohm |
|
K111
R112 |
24366223 | CF, 22k ohm |
| 24366333 | CF, 33k ohm | |
| R115 | 24300333 | |
| R116 |
24300223
24942226 |
|
| R120 | 24366102 | CF 1k ohm |
| R201 | 24366122 | CF. 1200 ohm |
| R216 | 24366184 | CF, 180k ohm |
| R217 | 24367103 | CF, 10k ohm, ±2% (29D2XC) |
| 位置号 | 部件号 | 说明 |
|---|---|---|
| R217 | 24367133 | CF, 13k ohm, ±2% (25D2XC) |
| R218 | 24366104 | CF, 100k ohm |
| K219 | 24366103 | |
|
H220
R221 |
24366101
24266333 |
CF, 100 ONTH (29D2XC) |
|
n∠∠ I
R229 |
24300222
24366271 |
CF, 2200 OHIII (29D2XU)
CF, 270 ohm |
| R228 | 24367822 | CF, 8200 ohm. +2% |
| R229 | 24366271 | CF, 270 ohm |
| R230 | 24366271 | CF, 270 ohm |
| R233 | 24366100 | CF, 10 ohm |
| R234 | 24366394 | CF, 390k ohm |
| R271 | 24366101 | CF, 100 ohm (29D2XC) |
| R272 | 24366103 | CF, 10k ohm (29D2XC) |
| R273 | 24366272 | CF, 2700 ohm (29D2XC) |
| K303 | 24366563 | CF 20k ohm (29D2XC) |
|
n303
R204 |
24366393 |
CF, SEK UNITH (ZOUZXC)
CF, SSK ohm (20D2XC) |
| R304 |
24300333
24366303 |
CF, 39k ohm (25D2AC) |
| R305 | 24322120 | MF, 1.2 ohm. 1W (29D2XC) |
| R305 | 24322109 | MF, 1 ohm, 1W (25D2XC) |
| R306 | 24366393 | CF, 39k ohm |
| R307 | 24366474 | CF, 470k ohm (29D2XC) |
| R307 | 24366824 | CF, 820k ohm (25D2XC) |
| R308 | 24366102 | CF, 1k ohm |
| R312 | 24382272 | UMF, 2700 ohm, 1W |
| D010 | 24000000 |
(2902XU)
OME 1800 obm 1144 |
| N31Z | ∠4382182 | (25D2XC) |
| R314 | 24366105 | CF, 1M ohm |
| R315 | 24366824 | CF, 820k ohm |
| R316 | 24366154 | CF, 150k ohm |
| R327 | 24321109 | MF, 1 ohm, 1/2W |
| R328 | 24339339 | MF, 3.3 ohm, 2W |
| R330 | 24366471 | CF, 470 ohm |
| R331 | 24366104 | CF, 100k ohm |
| R332 | 24366362 | CF, 3600 ohm |
|
н333
Вааа |
24366471 | |
|
NJJJ
2226 |
24366471
24202401 |
OME 180 ohm 2\\/ |
|
N330
R338 |
24303181
24366979 |
CF. 27k ohm |
| R340 | 24382271 | OMF, 270 ohm. 1W (29D2XC) |
| R340 | 24382221 | OMF, 220 ohm, 1W (25D2XC) |
| R341 | 24366182 | CF, 1800 ohm |
| R342 | 24366562 | CF, 5600 ohm |
| R343 | 24310109 | MF, 1.0 ohm, 1/2W |
| R344 | 24366392 | CF, 3900 ohm |
| R349 | 24366473 | |
| K361 | 24367272 | CF, 2.7K ONM, ±2% |
|
N302
Raea |
24367272 |
οι', 2.7κ υΠΠ, ±2%
ΟΜΕ 180 obm 1/3\// |
|
n303
R364 |
24002187
24366101 |
Civil, 100 onin, 1/200
CF. 100 ohm |
| R365 | 24003924 | MF, 3300 ohm. 1/4W |
| R366 | 24367432 | CF, 4300 ohm, ±2% |
| R367 | 24366391 | CF, 390 ohm |
| R402 | 24366103 | CF, 10k ohm |
| R403 | 24366822 | CF, 8200 ohm |
| R411 | 24366561 | CF, 560 ohm |
| R413 | 24366271 | CF, 270 ohm |
| R415 | 24553472 | UNIF, 4700 ohm, 1W |
| K416 | 24019332 | UNIE, 4300 ONM, 5W |
|
rt423
P425 |
24366471 | OME 470 ohm 1/04/ |
|
n420
R420 |
243014/1
21266560 |
CF. 56 ohm |
| R430 | 24366102 | CF, 1k ohm |
| · ···· -····· |
| 位置号 | 部件号 | 说明 |
|---|---|---|
| R430 | 24366103 | CF, 10k ohm |
| R432 | 24531560 | FR, 56 ohm, 1/2W |
| R434 | 24552271 | OMF, 270 ohm, 1/2W |
| R435 | 24366561 | CF, 560 ohm |
| R436 | 24366153 | CF, 15k ohm |
| R436 | 24366751 | CF, 750 ohm |
| R437 | 24366392 | CF, 3900 ohm |
| R437 | 24366562 | CF, 5600 onm (29D2XC) |
| R43/ | 24300272 | CF, 2700 Onim (2502AC) |
|
R439
R441 |
24500102 | EB 1k ohm 1W |
| R/42 | 24366333 | CE 33k ohm |
|
R442
R443 |
24366563 | CF. 56k ohm |
| R444 | 24366563 | CF, 56k ohm |
| R445 | 24366563 | CF, 56k ohm |
| R447 | 24382472 | OMF, 4700 ohm, 1W |
| R448 | 24338398 | MF, 0.39 ohm, 1W |
| R451 | 24366123 | CF, 12k ohm |
| R452 | 24366103 | CF, 10k ohm |
| R453 | 24366103 | CF, 10k ohm |
| R454 | 24366102 | CF, 1k ohm |
| R455 | 24366222 | CF, 2200 ohm |
| R456 | 24366102 | CF, 1K ONM |
| R457 | 24300223 | CF, 22K 000 (29D2AC) |
| R458 | 24300102 | CF, 1800 01111 |
|
R400
R461 |
24300332 | CF 12k ohm |
| R462 | 24366561 | CF, 560 ohm |
| R463 | 24323689 | MF. 6.8 ohm, 2W |
| R464 | 24366102 | CF, 1k ohm |
| R465 | 24366104 | CF, 100k ohm |
| R466 | 24366333 | CF, 33k ohm |
| R467 | 24366103 | CF, 10k ohm |
| R468 | 24366563 | CF, 56k ohm |
| R469 | 24366274 | CF, 270k ohm |
| R470 | 24338688 | MF, 0.68 ohm, 1W |
| R471 | 24531271 | FR, 270 ohm, 1/2W |
| R476 | 24366184 | CF, 180k ohm |
| R4// | 24300101 | |
| R477 | 24300104 | CE 560 ohm |
| R483 | 24366103 | CF, 10k ohm |
| R483 | 24366563 | CF, 56k ohm |
| R484 | 24366223 | CF, 22k ohm |
| R484 | 24366561 | CF, 560 ohm |
| R485 | 24366561 | CF, 560 ohm |
| R499 | 24366154 | CF, 150k ohm |
| R501 | 24366102 | CF, 1k ohm |
| R502 | 24366122 | CF, 1200 ohm |
| R511 | 24000527 | MF, 5600 ohm, 1/4W |
| R523 | 24366303 | CF, 30k ohm |
| R525 | 24366222 | CF, 2200 ONM |
| K520 | 24300021 | |
| R528 | 24300021 | CF. 820 ohm |
| B610 | 24366273 | CF. 27k ohm |
| R612 | 24366103 | CF, 10k ohm |
| R623 | 24366103 | CF, 10k ohm |
| R624 | 24366104 | CF, 100k ohm |
| R643 | 24552331 | OMF, 330 ohm, 1/2W |
| R644 | 24552331 | OMF, 330 ohm, 1/2W |
| R661 | 24366222 | CF, 2200 ohm |
| R662 | 24366222 | CF, 2200 ohm |
| R663 | 24366103 | CF, 10k ohm |
| I |
| 位置号 | 部件号 | 说明 |
|---|---|---|
| R664 | 24366103 | CF. 10k ohm |
| R665 | 24366103 | CF, 10k ohm |
| R666 | 24366103 | CF, 10k ohm |
| R667 | 24366104 | CF, 100k ohm |
| R668 | 24366103 | CF, 10k ohm |
| R669 | 24366103 | CF, 10k ohm |
| R676 | 24366229 | CF, 2.2 ohm |
| R677 | 24366229 | CF, 2.2 ohm |
| R702 | 24366821 | CF, 820 ohm (29D2XC) |
| R709 | 24366563 | CF, 56k ohm (29D2XC) |
| R713 | 24366393 | CF, 39k ohm (29D2XC) |
| R/15 | 24366223 | CF, 22k ohm (29D2XC) |
| R/16 | 24366273 | CF, 27k ohm (29D2XC) |
|
R/1/
B710 |
24366333 | CF, 33k ohm (29D2XC) |
|
R/19
B720 |
24366392 | CF, 3900 ohm (29D2XC) |
| R/20 | 24366392 | CF, 3900 ohm (29D2XC) |
| 24366102 | CF, 1k ohm (29D2XC) | |
| R/22 | 24552471 | OMF, 470 ohm, 1/2W |
| B722 | 24266471 | |
| R724 | 243004/1 | CF, 4/U onm (29D2XC) |
| B725 | 24366182 | CF, 47 Onm (29D2XC) |
| B730 | 24552100 | OME 10 ohm (29D2XC) |
| R731 | 24552331 | OME 330 obm 1/2W (29D2XC) |
| 24002001 | ||
| R732 | 24366820 | CE 82 ohm (29D2XC) |
| R733 | 24366683 | CF 68k ohm (29D2XC) |
| R734 | 24366820 | CF 82 ohm (29D2XC) |
| R735 | 24366683 | CF. 68k ohm (29D2XC) |
| R736 | 24366620 | CF, 62 ohm (29D2XC) |
| R737 | 24366152 | CF, 1500 ohm (29D2XC) |
| R738 | 24366102 | CF, 1k ohm (29D2XC) |
| R739 | 24366152 | CF, 1500 ohm (29D2XC) |
| R740 | 24366620 | CF, 62 ohm (29D2XC) |
| R741 | 24366279 | CF, 2.7 ohm (29D2XC) |
| R742 | 24366279 | CF, 2.7 ohm (29D2XC) |
| R/43 | 24554221 | OMF, 220 ohm, 2W (29D2XC) |
| R/44 | 24366122 | CF, 1200 ohm (29D2XC) |
|
n/45
D760 |
24366122 | CF, 1200 ohm (29D2XC) |
|
R/00
D775 |
24366101 | CF, 100 ohm (29D2XC) |
| A R801 | 24300182 | CF, 1800 ohm (29D2XC) |
| 24009954 | Metal-Glazed Resistor, | |
| R802 | 24383103 | OME 10k ohm 200 |
| R803 | 24383103 | OMF. 10k ohm 2\W |
| R804 | 24366334 | CF, 330k ohm |
| R805 | 24366681 | CF, 680 ohm |
| R807 | 24366334 | CF, 330k ohm |
| R808 | 24019476 | PTC Thermistor, 18 ohm |
| AC290V | ||
| R809 | 24366393 | CF, 39k ohm |
| R811 | 24568271 | Cement, 270 ohm, 7W |
| R814 | 24366682 | CF, 6800 ohm |
| R815 | 24366332 | CF, 3300 ohm |
| R818 | 24019459 | MF, 0.12 ohm, 2W |
| K819 | 24310829 | MF, 8.2 ohm, 1/2W |
| R820 | 24366101 | CF, 100 ohm |
|
N822
D822 |
24552103 | OMF, 10k ohm, 1/2W |
|
11023
D024 |
24552682 | UMF, 6800 ohm, 1/2W |
|
N0∠4
R827 |
24569689 | Cement, 6.8 ohm, 10W |
|
1102/
R828 |
243664/2 | CF, 4/00 ohm |
| R829 | 24300222 | |
| R830 | 24321109 | MF 3.9 obm 1/3W |
| 2-1010333 | wir, 5.5 Ullifi, 1/2VV |
| 位置号 | 部件号 | 说明 |
|---|---|---|
| R841 | 24531120 | FR, 12 ohm, 1/2W |
| R842 | 24552392 | OMF, 3900 ohm, 1/2W |
| R846 | 24366101 | CF, 100 ohm |
| R847 | 24366472 | CF, 4700 ohm |
| R880 | 24366471 | CF, 470 ohm |
| R881 | 24366561 | CF, 560 ohm |
| R890 | 24553333 | OMF, 33k ohm, 1W |
| 🛆 R899 | 24005015 | Metal-Glazed Resistor, |
| 8.2M ohm, 1W | ||
| R901 | 24376102 | CF, 1k ohm, 1/2W (29D2XC) |
| R901 | 24552561 | OMF, 560 ohm, 1/2W |
| 2000 | (25D2XC) | |
| R902 | 24376102 | CF, 1k ohm, 1/2W (29D2XC) |
| R902 | 24552561 | OMF, 560 ohm, 1/2W |
| D000 | (25D2XC) | |
| R903 | 24376102 | CF, 1k ohm, 1/2W (29D2XC) |
| R903 | 24552561 | OMF, 560 ohm, 1/2W |
| 2004 | (25D2XC) | |
| R904 | 243664/2 | CF, 4700 ohm |
| R905 | 24366150 | CF, 15 ohm |
|
R911
Do10 |
24366150 | CF, 15 ohm (25D2XC) |
| R91Z | 24366221 | CF, 220 ohm (29D2XC) |
| 24366561 | CF, 560 ohm | |
|
K915
D015 |
24300121 | CF, 120 ohm (29D2XC) |
|
1913
1016 |
24366271 | CF, 270 ohm (25D2XC) |
|
K910
D017 |
24366350 | CF, 39 ohm (29D2XC) |
|
K917
D017 |
24366391 | CF, 390 ohm (29D2XC) |
|
K917
P010 |
24366102 | CF, 1k ohm (25D2XC) |
|
1310
1010 |
24300270 | CF, 27 ohm (29D2XC) |
|
N910
P010 |
24300000 | CF, 56 ohm (25D2XC) |
|
0020
D020 |
24300221 | CF, 220 ohm (29D2XC) |
|
2020
2020 |
24000300 | FR, 2.4 ohm, 2W (29D2XC) |
|
R920
R921 |
24000000 | FR, 5.1 ohm, 1VV (25D2XC) |
| R921 | 24300501 | |
| R922 | 24300121 | |
| R924 | 2430027 | |
| R924 | 24300270 | |
| R925 | 24300300 | |
| R925 | 24300331 | |
| R926 | 24300102 | |
| R928 | 24366561 | CE EED ahm |
| R929 | 24300000 | CF, 500 ONT |
| R929 | 24366271 |
CF, 120 0000 (25D2AC)
CF 270 ohm (25D2XC) |
| R930 | 24366270 | CF 27 ohm (29D2XC) |
| R930 | 24366560 | CF 56 ohm (25D2XC) |
| R932 | 24366102 | CF 1k ohm |
| R934 | 24366681 | CF 680 ohm |
| R935 | 24356272 | CF 2700 ohm |
| R936 | 24545150 | FR 15 ohm 1///// |
| R937 | 24366391 | CF 290 ohm (20D2XC) |
| R937 | 24366102 |
CF, 350 01111 (2502AC)
CF 14 Abm (2502AC) |
| R942 | 24366562 | CF 5600 ahm (29D2XC) |
| R943 | 24366562 | CF 5600 ohm (20D2XC) |
| R944 | 24366562 | CF 5600 ohm (29D2XC) |
| R945 | 24366390 | CF 39 ohm (29D2XC) |
| R946 | 24366390 | CF 39 ohm (29D2XC) |
| R960 | 24383153 | OMF 15k ohm 2W |
| R961 | 24383153 | OMF 15k ohm 2W |
| R962 | 24383153 | OMF 15k ohm 2\W |
| R963 | 24383153 | OME 15k ohm 2\V/ (29D2XC) |
| R964 | 24383153 | OME 154 ohm 21/ (29D2XC) |
| R965 | 24383153 | OME 154 ohm 21// (29D2XC) |
| R977 | 24366122 | CF 1200 ohm |
| 位置号 | 部件号 | 说明 |
|---|---|---|
| R992 | 24366150 | CF, 15 ohm (29D2XC) |
| RA02 | 24366102 | CF, 1k ohm |
| RA03 | 24366102 | CF, 1k ohm |
| RA04 | 24366102 | CF, 1k ohm |
| RA07 | 24366102 | CF, 1k ohm |
| RA08 | 24366102 | CF, 1k ohm |
| RA09 | 24366102 | CF, 1k ohm |
| RA10 | 24366102 | CF, 1k ohm |
| RA11 | 24366102 | CF, 1k ohm |
| RA12 | 24366102 | CF, IK ohm |
| RA13 | 24300102 | CF, TK OIIII |
|
RA14
DA15 |
24300/52 | |
|
RAID
RAID |
24366102 | CF 1k ohm |
| RA17 | 24366102 | CF. 1k ohm |
| RA18 | 24366102 | CF, 1k ohm |
| RA22 | 24366682 | CF, 6800 ohm |
| RA23 | 24366682 | CF, 6800 ohm |
| RA24 | 24366682 | CF, 6800 ohm |
| RA25 | 24366332 | CF, 3300 ohm |
| RA26 | 24366102 | CF, 1k ohm |
| RA27 | 24366102 | CF, 1k ohm |
| RA31 | 24366101 | CF, 100 ohm |
| RA32 | 24366101 | CF, 100 ohm |
| RA33 | 24366103 | CF, 10k ohm |
| RA34 | 24366103 | CF, 10k ohm |
| RA35 | 24366102 | CF, 1k ohm |
| RA37 | 24366331 | CF, 330 ohm |
| RA38 | 24366331 | CF, 330 ohm |
| RA61 | 24366103 | |
| RA62 | 24366103 | |
| RA63 | 24366102 | CF, IK ONIN |
| RA64 | 24300333 | CF, 33K ohm |
| 24300103 | CF 10k ohm | |
| RA69 | 24366103 | CF. 10k ohm |
| RA70 | 24366333 | CF, 33k ohm |
| RA71 | 24366683 | CF, 68k ohm |
| BA72 | 24366223 | CF, 22k ohm |
| RA73 | 24366103 | CF, 10k ohm |
| RA74 | 24366223 | CF, 22k ohm |
| RA75 | 24366392 | CF, 3900 ohm |
| RA76 | 24366392 | CF, 3900 ohm |
| RA77 | 24366123 | CF, 12k ohm |
| RA78 | 24366333 | CF, 33k ohm |
| RA79 | 24366471 | CF, 470 onm |
| HA80 | 24366564 | CE 100 chm |
| RA81 | 24366101 | CF, 100 0nm |
| RA82 | 24300222 | |
| 24300271 | CE 220 ohm | |
| RB02 | 24300221 | CF 100 ohm |
| BBUG | 24366470 | CF, 47 ohm |
| BB11 | 24366103 | CF, 10k ohm |
| RB12 | 24366223 | CF, 22k ohm |
| RB20 | 24366823 | CF, 82k ohm |
| RB22 | 24366272 | CF, 2700 ohm |
| RB26 | 24366472 | CF, 4700 ohm |
| RB27 | 24366103 | CF, 10k ohm |
| RB28 | 24366104 | CF, 100k ohm |
| RB30 | 24366103 | CF, 10k ohm |
| RB43 | 24366103 | CF, TUK ONM |
| RB44 | 24366562 | CF, 5600 ONM |
| RB45 | 24366102 | CF, IK ONM |
| 位置号 | 部件号 | 说明 |
|---|---|---|
| RB46 | 24366331 | CF, 330 ohm |
| RB47 | 24366221 | CF, 220 ohm |
| RC10 | 24366102 |
сг, ik onm
CE 1k obm |
| 24300102 | CF, 1k ohm | |
| RC13 | 24366102 | CF, 1k ohm |
| RC14 | 24366102 | CF, 1k ohm |
| RC15 | 24366102 | CF, 1k ohm |
| RC16 | 24366102 | CF, 1k ohm |
| RC17 | 24366102 | |
| KS01 | 24366103 |
ur, luk onm
CF. 100k ohm |
|
NOUZ
RSN2 |
24366102 | CF, 10k ohm |
| RS04 | 24366104 | CF, 100k ohm |
| RS10 | 24366562 | CF, 5600 ohm |
| RS11 | 24366562 | CF, 5600 ohm |
| RS14 | 24366562 | CF, 5600 ohm |
| RS15 | 24366562 | UF, 5000 ONM |
|
K51/
PC10 |
24300562 |
Gr, 5000 ONM
CE, 5600 ohm |
|
no lo
RS19 |
24366101 | CF, 100 ohm |
| RS20 | 24366222 | CF, 2200 ohm |
| RS21 | 24366101 | CF, 100 ohm |
| RS22 | 24366222 | CF, 2200 ohm |
| RS23 | 24366102 | CF, 1k ohm |
| RS24 | 24366102 |
ыг, ік опт
СЕ 560 obm |
| R527 | 24300561 | CF. 100k ohm |
|
n 330
RS31 |
24366104
24366104 |
CF, 100k ohm |
| RV01 | 24366103 | CF, 10k ohm |
| RV03 | 24366750 | CF, 75 ohm |
| RV05 | 24366223 | CF, 22k ohm |
| RV06 | 24366472 | CF, 4700 ohm |
| RV07 | 24366103 |
CF, 10k ohm
CF, 100 ohm |
| KV10 |
24366101
24366500 |
CF. 5600 ohm |
| RV12 | 24366101 | CF, 100 ohm |
| RV13 | 24366562 | CF, 5600 ohm |
| RV14 | 24366101 | CF, 100 ohm |
| RV15 | 24366101 | CF, 100 ohm |
| RV16 | 24366101 | CF, 100 ohm |
| RV17 | 24366750 | CF, 75 ohm |
| KV18 | 24366102 |
ыс, ік опт
CF 1k obm |
|
RV19
RV20 |
24300102
24366222 |
CF, 2200 ohm |
| RV21 | 24366151 | CF, 150 ohm |
| RV24 | 24552101 | OMF, 100 ohm, 1/2W |
| RV25 | 24366750 | CF, 75 ohm |
| RV26 | 24366101 | CF, 100 ohm |
| RV29 | 24366223 | CF, 22k ohm |
| RV30 | 24366750 | CF, /b ONM |
| KV31 | 24366750 |
, cr, /o onm
) CF, 75 ohm |
| RV34 | 24366750 | ) CF, 75 ohm |
| RV35 | 24366332 | CF, 3300 ohm (29D2XC) |
| RV36 | 24366332 | 2 CF, 3300 ohm (29D2XC) |
| RV37 | 24366681 | CF, 680 ohm (29D2XC) |
| RV38 | 24366681 | CF, 680 ohm (29D2XC) |
| RV39 | 24366681 | CF, 680 ohm (29D2XC) |
| RV40 | 24366821 |
ו נד, צע ohm (29D2XC)
ו CE 100 chm |
| 24366101 |
ו טר, וטט טחדה
1 CE 100 obm |
|
| RV91 |
24366101
24266101 |
, σ, του οπιπ
1 CF, 100 ohm (2αΠ2¥C) |
| R702 | 2430010 | I CF, 100 ohm (29D2XC) |
| 2,00010 |
| 位置号 | 部件号 | 说明 |
|---|---|---|
| RZ05 | 24366821 | CE, 820 ohm (29D2XC) |
| RZ07 | 24366152 | CE 1500 ohm (29D2XC) |
| BZ08 | 24366102 | CE 1k ohm (29D2XC) |
| R709 | 24366192 | CE 1900 abm (20D2XC) |
| 2.4300102 | CF, 1800 01111 (29D2AC) | |
| |线圈与变压 | 嚣 | |
| L301 | 23103859 | Coil (Ferrite Bead), TEM2011 |
| L430 | 23289470 | Coil, Peaking, TRF4470AF |
| L432 | 23289229 | Coil, Peaking, TRF42R2AF |
| L441 | 23233072 |
Coil, Linearity, TLN2115G
(29D2XC) |
| L441 | 23233941 |
Coil, Linearity, TLN2157G
(25D2XC) |
| L442 | 23248121 |
Coil, Choke, TLN3383D
(29D2XC) |
| L442 | 23248122 |
Coil, Choke, TLN3384D
(25D2XC) |
| L461 | 23248240 | Coil, Choke, TLN3367AF |
| L462 | 23231267 |
Deflection Yoke, TDY-629QS
(29D2XC) |
| L463 | 23103859 | Coil (Ferrite Bead), TEM2011 |
| L504 | 23103824 | Coil, TEM2028K |
| L511 | 23289100 | Coil, Peaking, TRF4100AF |
| L525 | 23289100 | Coil, Peaking, TRF4100AF |
| L702 | 23261974 |
Coil, Choke, HC5-035
(29D2XC) |
| L704 | 23103859 |
Coil (Ferrite Bead), TEM2011
(29D2XC) |
| L705 | 23103859 |
Coil (Ferrite Bead), TEM2011
(29D2XC) |
| L811 | 23103859 | Coil (Ferrite Bead), TEM2011 |
| L883 | 23221747 | Coil, Choke, TRF9253D |
| L885 | 23248073 | Coil, Choke, TLN3299D |
| L886 | 23103859 | Coil (Ferrite Bead), TEM2011 |
| L889 | 23280016 | Coil, Peaking, TRF4100AZ |
| L896 | 23103859 | Coil (Ferrite Bead), TEM2011 |
| ▲ L901 | 23200294 |
Coil, Degaussing, TSB-2366AC
(29D2XC) |
| ▲ L901 | 23200318 |
Coil, Degaussing,
TSB-2363AW (25D2XC) |
| L902 | 23289221 |
Coil, Peaking, TRF4221AF
(29D2XC) |
| L903 | 23289221 |
Coil, Peaking, TRF4221AF
(29D2XC) |
| L904 | 23289221 |
Coil, Peaking, TRF4221AF
(29D2XC) |
| L905 | 23289390 |
Coil, Peaking, TRF4390AF
(29D2XC) |
| L906 | 23289390 |
Coil, Peaking, TRF4390AF
(29D2XC) |
| L907 | 23289390 |
Coil, Peaking, TRF4390AF
(29D2XC) |
| 23289100 | Coll, Peaking, TRF4100AF | |
| 23261959 | Coll, Choke, TRF9240 | |
| LC02 | 23261959 | Coil, Choke, TRF9240 |
| LC03 | 23261959 | Coll, Choke, TRF9240 |
| LC05 | 23103845 | Coll, TEM2030AY |
| LC06 | 23103845 | Coil, TEM2030AY |
| LZ01 | 23289330 |
Coil, Peaking, TRF4330AF
(29D2XC) |
| LZ02 | 23103859 |
Coil (Ferrite Bead), TEM2011
(29D2XC) |
| LZ03 | 23289840 |
Coil, Peaking, TRF4100AT
(29D2XC) |
| 位置号 | 部件号 | 说明 |
|---|---|---|
| LZ04 | 23103859 | Coil (Ferrite Bead), TEM2011 |
| LZ05 | 23289150 | Coil, Peaking, TRF4150AF |
| LZ06 | 23289100 |
Coil, Peaking, TRF4100AF
(29D2XC) |
| LZ07 | 23289229 |
Coil, Peaking, TRF42R2AF
(29D2XC) |
| T401 | 23224373 |
Transformer, Horiz, Drive,
TLN1100AM |
| ∆ T461Z | 23236547 |
Transformer, Flyback,
TFB4132UD (29D2XC) |
| ▲ T461Z | 23236631 |
Transformer, Flyback,
TFB4131DH (25D2XC) |
| ∆T801 | 23211704 | Line Filter, TRF3222AQ |
| ∆ T862 | 23217444 |
Transformer, Converter,
TPW3434AD |
| 半导体 | ||
| Q102 | 23314965 | Transistor, KTC3198 Y |
| Q220 | 23314962 |
Transistor, KTA1266 Y
(29D2XC) |
| Q271 | 23314965 |
Transistor, KTC3198 Y
(29D2XC) |
| Q301 | B0378560 | IC, TA8427K |
| Q301B | 70391355 | Screw, BITTB3X8 SZN |
| Q340 | 23314962 | Transistor, KTA1266 Y |
| Q360 | 23906596 | IC, BA4558 |
| Q402 | A6330069 | Transistor, 2CS2482 FA-1 |
| Q404 | A6873777 | Transistor, 2SD2553 |
| Q404B | 72471082 | Screw, BRDT2W3X10 SZN |
| Q420 | 23314141 | Transistor, 2SC3852 |
| Q420B | 70391355 | Screw, BITTB3X8 SZN |
| Q422 | 23314965 | Transistor, KTC3198 Y |
| Q423 | 23314965 | Transistor, KTC3198 Y |
| Q424 | 23314965 | Transistor, KTC3198 Y |
| Q430 | 23314141 | Transistor, 2SC3852 |
| Q430B | 70391355 | Screw, BITTB3X8 SZN |
| Q431 | 23314965 | Transistor, KTC3198 Y |
| Q451 | 23314965 | Transistor, KTC3198 Y |
| Q452 | 23314965 | Transistor, KTC3198 Y |
| Q453 | 23314965 | Transistor, KTC3198 Y |
| Q460 | 23314938 | Transistor, 2SD2493(P) |
| Q460B | 72471082 | Screw, BRDT2W3X10 SZN |
| Q461 | 23314962 | Transistor, KTA1266 Y |
| Q462 | 23314962 | Transistor, KTA1266 Y |
| Q463 | 23314962 | Transistor, KTA1266 Y |
| Q465 | 23314965 | Transistor, KTC3198 Y |
| Q608 | A6342200 | Transistor, 2CS2878-A |
| Q609 | A6342200 | Transistor, 2CS2878-A |
| Q610 | 23906582 | IC, AN5277 |
| Q610C | 70391355 | Screw, BITTB3X8 SZN |
| Q612 | 23314962 | Transistor, KTA1266 Y |
| Q623 | A6010040 | Transistor, RN2004 |
| Q706 | 23314965 |
Transistor, KTC3198 Y
(29D2XC) |
| Q707 | A6734590 |
Transistor, 2SC752(G)TM-Y
(29D2XC) |
| Q709 | 23314965 |
Transistor, KTC3198 Y
(29D2XC) |
| Q710 | 23314962 |
Transistor, KTA1266 Y
(29D2XC) |
| Q711 | 23314911 |
Transistor, 2SB1569A E
(29D2XC) |
特殊信息
| 位置号 | 部件号 | 说明 |
|---|---|---|
| Q712 | 23314914 | Transistor, 2SD2400A E |
| Q719 | 23314965 |
Transistor, KTC3198 Y
(29D2XC) |
| Q720 | 23314965 | Transistor, KTC3198 Y |
| Q773 | 23314965 |
Transistor, KTC3198 Y
(29D2XC) |
| Q801 | 23135008 | IC, STR-F6668B |
| Q802 | 23314141 | Transistor, 2SC3852 |
| Q826 | 23906937 | Photo Coupler, ON3171-R |
| Q830 | 23314141 | Transistor, 2SC3852 |
| Q830B | 70391355 | Screw, BITTB3X8 SZN |
| Q840 | 23318299 | IC, L78MR05 |
| Q840B | 70391355 | Screw, BITTB3X8 SZN |
| Q880 | 23314962 | Transistor, KTA1266 Y |
| Q901 | 23314811 | Transistor, 2SC5147 (29D2XC) |
| Q901 | 23314197 |
Transistor, 2SC3271-N
(25D2XC) |
| Q902 | 23314965 | Transistor, KTC3198 Y |
| Q903 | 23314811 | Transistor, 2SC5147 (29D2XC) |
| Q903 | 23314197 |
Transistor, 2SC3271-N
(25D2XC) |
| Q904 | 23314965 | Transistor, KTC3198 Y |
| Q905 | 23314811 | Transistor, 2SC5147 (29D2XC) |
| Q905 | 23314197 |
Transistor, 2SC3271-N
(25D2XC) |
| Q906 | 23314965 | Transistor, KTC3198 Y |
| Q907 | 23314962 | Transistor, KTA1266 Y |
| Q908 | A6321240 | Transistor, 2SC2120-Y |
| QA01 | 23000399 | IC, M37274MA-153SP |
| QA02 | 23905665 | IC, AT24C08-10PC |
| QA10 | 23314965 | Transistor, KTC3198 Y |
| QA11 | 23314962 | Transistor, KTA1266 Y |
| QA12 | 23314965 | Transistor, KTC3198 Y |
| QB02 | 23314962 | Transistor, KIA1266 Y |
| QB03 | A6002050 | Transistor, RN 1205 |
| 2221/065 | Transistor, KTC3198 V | |
| 23314900 | Transistor, KTC3198 V | |
| 0840 | 23314905 | Transistor, KTC3198 V |
| 0501 | 23314905 | Transistor, KTC3198 Y |
| 0502 | 23314965 | Transistor, KTC3198 Y |
| 0503 | A6342200 | Transistor, 2CS2878-A |
| 0504 | A6342200 | Transistor, 2CS2878-A |
| QV01 | 23000369 | IC, MM1495XD |
| QV02 | 23314965 | Transistor, KTC3198 Y |
| QV03 | 23314965 | Transistor, KTC3198 Y |
| QV09 | 23314962 | Transistor, KTA1266 Y |
| QV10 | 23314962 |
Transistor, KTA1266 Y
(29D2XC) |
| QV11 | 23314965 | Transistor, KTC3198 Y |
| QZ01 | B0410867 | IC, TC90A45P (29D2XC) |
| QZ02 | 23314965 |
Transistor, KTC3198 Y
(29D2XC) |
| QZ03 | 23314965 |
Transistor, KTC3198 Y
(29D2XC) |
| QZ04 | 23314965 |
Transistor, KTC3198 Y
(29D2XC) |
| D101 | 23316411 | Diode, Zener, HZT33-12 |
| D103 | 23118859 | Diode, 1SS133 |
| D224 | 23118859 | Diode, 1SS133 |
| D301 | 23118094 | Diode, EU2A, LF-F10 |
| D305 | 23118859 | Diode, 1SS133 |
| 位置号 | 部件号 | 说明 |
|---|---|---|
| D306 | 23118859 | Diode, 1SS133 |
| D308 | 23118094 | Diode, EU2A, LF-F10 |
| D319 | 23118822 | Diode, ERB12-02 |
| D332 | 23316794 | Diode, SC570ALFE2 |
| D340 | 23316650 | Diode, Zener, MTZJ2.4A |
| D360 | 23316673 | Diode, Zener, MTZJ5.6C |
| D406 | 23118094 | Diode, EU2A, LF-F10 |
| D408 | A7580658 | Diode, 3JH41 |
| D420 | 23316667 | Diode, Zener, MIZJ4./C |
| D421 | 23316667 | Diode, Zener, MIZJ4./C |
| D431 | 233 10080 | Diode, Zener, MTZ 9 10 |
| D441 | 23310000 | Diode, 199133 |
| D461 | 23316582 | Diode, ERC20-06 |
| D461B | 70391355 | Screw, BITTB3X8 SZN |
| D464 | 23316648 | Diode, Zener, MTZJ2.2A |
| D467 | 23118094 | Diode, EU2A, LF-F10 |
| D477 | 23118859 | Diode, 1SS133 |
| D478 | 23118859 | Diode, 1SS133 |
| D498 | 23118859 | Diode, 1SS133 |
| D499 | 23118859 | Diode, 1SS133 |
| D610 | 23118859 | Diode, 1SS133 |
| D611 | 23118859 | Diode, 1SS133 |
| D612 | 23118859 | Diode, 1SS133 |
| D615 | 23118859 | Diode, 155133 |
| D610 | 23110009 | Diode, 155133 |
| D618 | 23118859 | Diode, 155133 |
| D619 | 23118859 | Diode, 155133 |
| D620 | 23118859 | Diode, 1SS133 |
| D621 | 23118859 | Diode, 1SS133 |
| D704 | 23118859 | Diode, 1SS133 (29D2XC) |
| D705 | 23118859 | Diode, 1SS133 (29D2XC) |
| D715 | 23118859 | Diode, 1SS133 (29D2XC) |
| D720 | 23118859 | Diode, 1SS133 (29D2XC) |
| D721 | 23118859 | Diode, 1SS133 (29D2XC) |
| D801 | 23357041 | Diode, LN6SB60-F05 |
| D801B | 72471082 | Screw, BRD12W3X10 SZN |
| D804 | 23316/25 | Diode, Zener, MIZJ 15B |
| D005 | 23310003 | Diode EU2A | E-E10 |
| D800 | 23316746 | Diode Zener MTZ.127B |
| D810 | 23316738 | Diode, Zener, MTZJ22B |
| D811 | 23118859 | Diode, 1SS133 |
| D815 | 23316746 | Diode, Zener, MTZJ27B |
| D817 | 23118859 | Diode, 1SS133 |
| D818 | 23316738 | Diode, Zener, MTZJ22B |
| D819 | 23316678 | Diode, Zener, MTZJ6.8B |
| D828 | 23118859 | Diode, 1SS133 |
| D883 | 23118338 | Diode, RU-4AM LF-L1 |
| D885 | 23118094 | Diode, EU2A, LF-F10 |
| D896 | 23118094 | Diode, EU2A, LF-F10 |
| D901 | 23118859 | Diode, 155133 |
| D902 | 23110059 | Diode, 155133 (2502AC) |
| D903 | 23118859 | Diode, 199133 |
| D905 | 23118859 | Diode, 188133 |
| D906 | 23118859 | Diode, 1SS133 |
| D907 | 23118859 | Diode, 1SS133 (29D2XC) |
| D908 | 23118859 | Diode, 1SS133 (29D2XC) |
| D909 | 23118859 | Diode, 1SS133 (29D2XC) |
| D910 | 23118859 | Diode, 1SS133 (29D2XC) |
| D911 | 23118094 | Diode, EU2A, LF-F10 |
| DA42 | 23316675 | Diode, Zener, MTZJ6.2B |
| 位置号 | 部件号 | 说明 |
|---|---|---|
| DA61 | 23118859 | Diode, 1SS133 |
| DA62 | 23118859 | Diode, 1SS133 |
| DB01 | 23358493 | Diode (LED), |
| SPR54MVWFLMN | ||
| DB02 | 23358503 | Diode (LED), SCL003MC3FX |
| DB03 | 23358522 | Diode (LED), SIR-56SB3F |
| DB30 | 23118859 | Diode, 1SS133 |
| DV01 | 23316687 | Diode, Zener, MTZJ9.1B |
| DV02 | 23316687 | Diode, Zener, MTZJ9.1B |
| 其他 | ||
| B202 | 23037312 | Screw, BTBW 3X12 SZN |
| B232 | 23037312 | Screw, BTBW 3X12 SZN |
| E912 | 23848729 | Rubber Wedge (29D2XC) |
| △F470 | 23144874 | Fuse, 0.8A |
| F470A | 23165433 | Holder, Fuse |
| ⚠ F801 | 23144508 | Fuse, 4.0A, 250V |
| F801A | 23165433 | Holder, Fuse |
| ▲ F802 | 23144507 | Fuse, 3.15A, 250V |
| F802A | 23165433 | Holder, Fuse |
| G101 | 23221803 | Coil, Choke, TLN3040D |
| G117 | 24232103 | CD, 0.01µF, +80%, -20% |
| G202 | 23238714 | Coil, Peaking, TRF4100AJ |
| G320 | 23118822 | Diode, ERB12-02 |
| G402 | 23103859 | Coil (Ferrite Bead), TEM2011 |
| G4/2 | 24531680 | FR, 68 ohm, 1/2W |
| G010 | 24366103 | CF, 10k ohm |
| G714 | 24545220 | FR, 22 onm, 1/4W (29D2XC) |
| G805 | 23240227 | Coll, Choke, TLN3481AD |
| G810 | 23240227 | Coil (Earrite Bood) TEM2011 |
| G816 | 23103859 | Coil (Ferrite Bead), TEM2011 |
| G828 | 23103775 | Coil (Ferrite Bead), TEM2014 |
| G865 | 23118859 | Diode 199133 |
| G887 | 23248087 | Coil. Choke. TI N3312D |
| G894 | 23238714 | Coil, Peaking, TRF4100AJ |
| G898 | 24366150 | CF, 10k ohm |
| G900 | 23289840 |
Coil, Peaking, TRF4100AT
(29D2XC) |
| G908 | 23289100 |
Coil, Peaking, TRF4100AF
(25D2XC) |
| GA60 | 24366101 | CF, 100 ohm |
| KB01 | 23904946 | Remote Sensor, |
| L462A | 23993696 | |
| L462B | 23948536 |
Convergence Corrector,
TC-V(MINUS) |
| L462C | 23993076 | Corrector, DY, YV (25D2XC) |
| L462D | 23948535 |
Convergence Corrector,
TC-U(PLUS) |
| L462E | 23199746 | Corrector DY XH (25D2XC) |
| M461B | 23504203 | Cable, Forcus |
| M461C | 23504204 | Cable, Screen |
| P661 | 23363607 | Jack, Headphone |
| △ P801 | 23372108 | Power Cord |
| P910 | 23164725 | Plug, 2P |
| PV02 | 23365818 | Jack, SVHS |
| PV03 | 23365763 | Jack, Phono, 3P |
| PZ01A | 23902064 | Socket, B-B, 8P |
| PZ01B | 23368006 | Plug, B-B, 8P |
| ⊥ $801 | 23344382 | Switch, Power |
| SA01 | 23145430 | Switch, Push, 1C1P |
| SA02 | 23145430 | Switch, Push, 1C1P |
| 5A03 | 23145430 | Switch, Push, 1C1P |
| 位置号 | 部件号 | 说明 |
|---|---|---|
| SA04 | 23145430 | Switch, Push, 1C1P |
| SA05 | 23145430 | Switch, Push, 1C1P |
| SA06 | 23145430 | Switch, Push, 1C1P |
| ∆V901A | 23902891 | Socket, CRT, 10P |
| V901B | 23102456 | Magnet, MAG-4006 |
| V901M | 23102426 | Magnet, MAG-1084 (29D2XC) |
| W661 | 23351121 | Speaker, SPK-1385, |
| W662 | 23351121 |
Speaker, SPK-1385,
80x120mm, 8 ohm |
| X501 | 23153979 | Crystal, 4.43MHz |
| XA01 | 23153504 |
Ceramic Resonator, 8.00MHz,
TCR1056BM |
| Z424 | 23144539 |
Protector, PRF20005491,
125V, 2A |
| Z801 | 23904998 | IC, HIC1016 |
| Z889 | 23144542 | Protector, PRF40005491 |
| 125V, 4A | ||
| Z902 | 23103839 | Ferrite Core, TFE1012 |
| PC由路板组 | 3件 | |
| 117 | ||
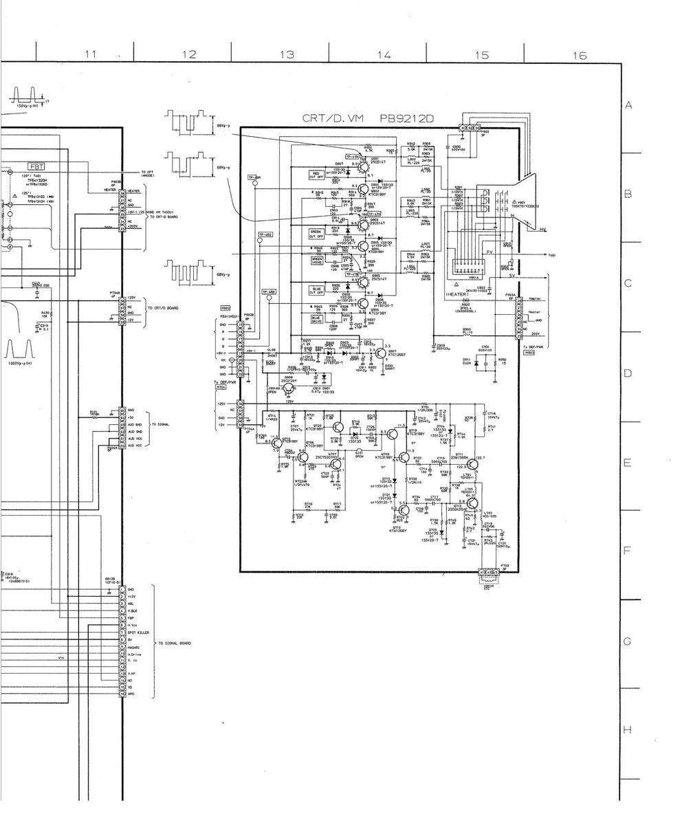
| * U901 |
CRT Drive/DSM Board,
PB9212E (29D2XC) CRT Drive Board, PB7807D |
|
| * U902 |
(25D2XC)
Signal Board PB9417C |
|
| * U902 |
(29D2XC)
Signal Board PB9/17P |
|
| * 11903 | (25D2XC) | |
| * 11003 | (29D2XC) | |
| * 0903 | (25D2XC) | |
| ホ 0904 |
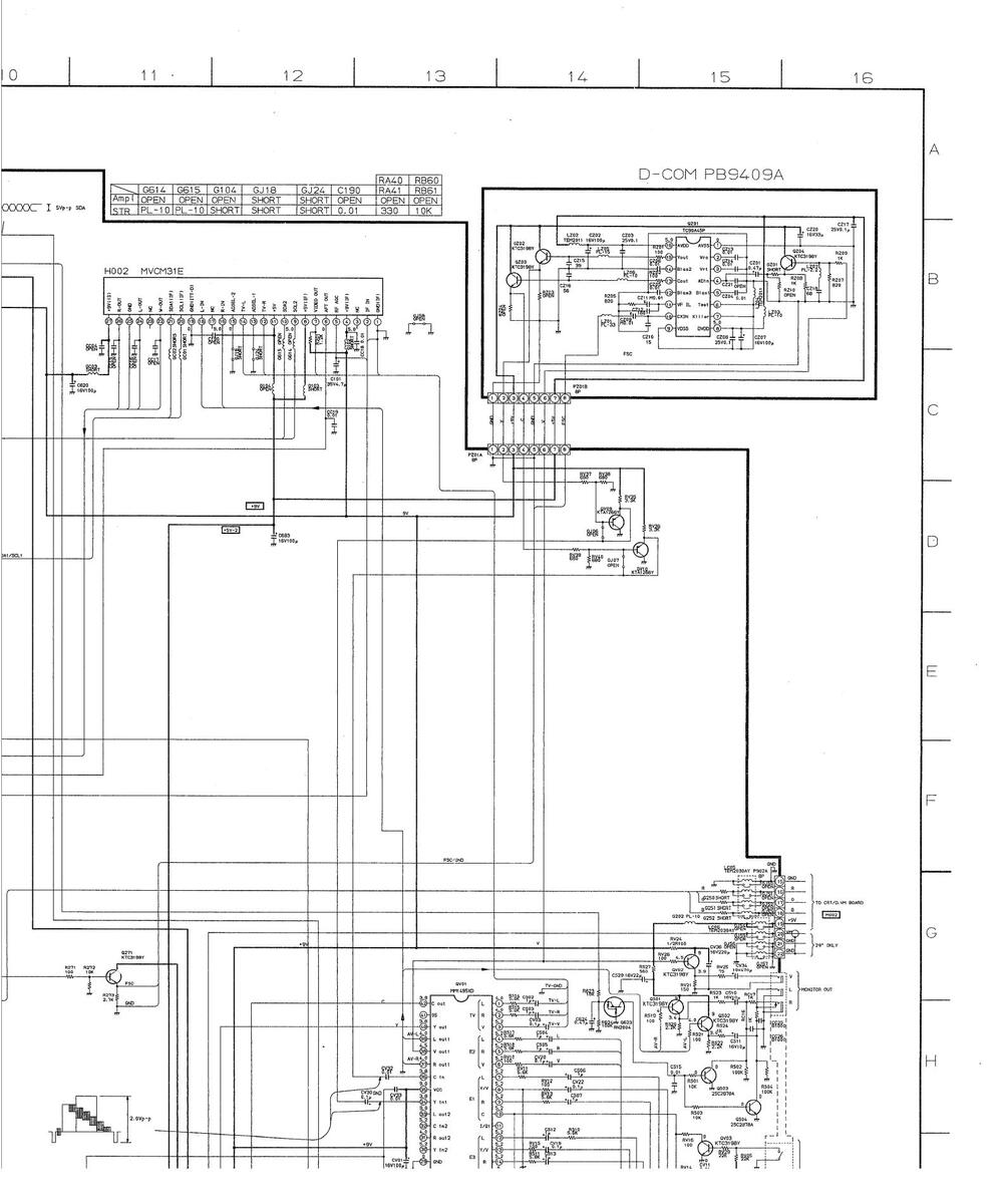
DIGI-COM Board, PB9409A
(29D2XC) |
|
| 昆像管 | ||
| 00040005 | ||
| 25 V901 | 23312865 |
Picture Tube, A68QBT892X
(29D2XC) |
| ∆V901 | 23312803 |
Picture Tube, 64SX505Y22DC
(25D2XC) |
| 调谐器 | ||
| H001 | 23321359 | Tuper ECA24X2 |
| MH MH | 2002 1000 | rundi, ECAZ4A3 |
| 11 CIV | ||
| K902 | 23306191 | Remote Hand Unit, CT-9879 |
| AT03 | 23588016 | Battery Cover |
| Y101A | 23560000 |
Owner's Manual, English,
29D2XC/25D2XC |
| Y101B | 23563798 |
Owner's Manual, Mandarin,
29D2XC/25D2XC |
| 机壳外部 | ||
| A201 | 23540125 | Front Cover (29D2XC) |
| A201 | 23540108 | Front Cover (25D2XC) |
| A205 | 23477251 | Speaker Box (R) |
| A208 | 23477248 | Speaker Box (L) |
| ∆A401 | 23540038 | Back Cover (29D2XC) |
| ∆A401 | 23540040 | Back Cover (25D2XC) |
| 位置号 | 部件号 | 说明 | 位置号 | 部件号 | 说明 |
|---|---|---|---|---|---|
|
A701
A701 A702A A702A A702B A702B A702B A703 A911 |
23064305
23064251 23946035 23946054 23946036 23946055 23941013 23451976 |
Case (29D2XC)
Case (25D2XC) Packing (29D2XC) Packing (25D2XC) Packing (29D2XC) Packing (25D2XC) Sheet Push, Catch |
|||
| · | |||||
- 32 -
SIGNAL BOARD PB9417B (25") SIGNAL BOARD PB9417C (29") BOTTOM (FOIL) SIDE
- 34 -
- 33 -
SIGNAL BOARD PB94 SIGNAL BOARD PB94 BOTTOM (FOIL) SIDE
L BOARD PB9417B (25") L BOARD PB9417C (29") BOTTOM (FOIL) SIDE
POWER/DEF BOARD PB9418B (25") POWER/DEF BOARD PB9418C (29") BOTTOM (FOIL) SIDE
- 36 -
- 35 -
EF BOARD PB9418B (25") EF BOARD PB9418C (29") BOTTOM (FOIL) SIDE
CRT DRIVE/DSM BOARD PB9212E (29")
BOTTOM (FOIL) SIDE
DIGI-COM BOARD PB9409A (29") BOTTOM (FOIL) SIDE
BOTTOM (FOIL) SIDE
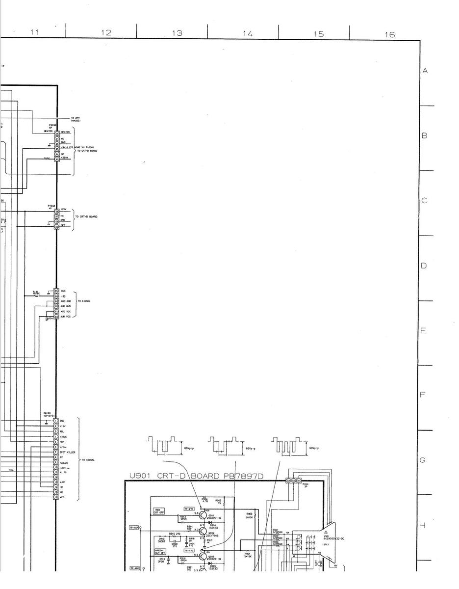
CRT-D BOARD PB7897D (25")
% 第一日 思
备忘录
- 40 -
| 型号 | (代表: 29D2XC) | ||||||||
|---|---|---|---|---|---|---|---|---|---|
| 额定电压 | ~ 220 V-240 V 50/60 Hz | ||||||||
|
电源消耗
(于~220V, 50Hz) |
130 W(略) | ||||||||
| 尺寸 | 窗 700 mm x 宫 488 mm x 密 592 mm | ||||||||
| 重量 | 36.8 kg | ||||||||
| 显像管 |
29 型,全
显 11 |
29 型,全显像管画面对角线尺寸 72 厘米
显像管画面对角线可见尺寸 68 厘米 110° 偏转 |
|||||||
|
电视制式
(天线输入) |
频道范围
特殊射频信号 |
制式
PAL PAL SECAM SECAM NTSC NTSC 色彩制式 4.43 NTSC |
B/G
I D/K B/G D/K M M |
频道
CCIR UK CHINA CCIR OIRT JAPAN (US) 声音制式 5.5/6.0/6.5 |
VHF
2~12 1~12 2~12 1~12 1~12 2~13 |
UHF
21~69 21~69 13~57 21~69 21~69 13~62 14~69 |
CATV
X~Z+2, S1~S41 Z-1~Z-38 X~Z+2, S1~S41 X1~X19 M1~M10, S1~S41 A-6~A-1, A~W, AA~ZZ, AAA, BBB |
||
| 彩色制式(视频 | PAL 60 Hz 5.5/6.0/6.5 MHz | ||||||||
| 声音输出 | FAL | FAL / SECAM / NTSC 4.43 / NTSC 3.58 / 60 Hz PAL / 50 Hz 3.58NTSC | |||||||
|
· 百福山
扬声哭 |
9W + 9W (7% THD) / 10W + 10W (10% THD) | ||||||||
| 120 × 80 1 | mm 2件 | ||||||||
| 平 1 1 平 |
•遥控器
•电池 (R6, |
AA) |
1
2 |
||||||
有关详情,请参阅用户手册。
注意: 原理图和元件表中标有国际通用危险记号"Δ"的项目表示具有特殊安全性能的元件。更换时应使用与原电路中完全相 同或元件表中指定的元件,并按其原来位置进行安装。在更换上述元件前,请仔细阅读第三页上的"产品安全注意事 项",以免操作不当而影响电视机的安全性能
把变压器与电路断开时测的。
电阻用 ohm(欧姆,Ω)表示,K=1,000 M=1,000,000。 除了在图中特别注明外,所有的电容值在数值小于1时,单位为μF(微法),
数值大于1时,其单位 PF(微微法拉)。
3. 除了在图中特别注明外,图中的所有电感值在数字大于1时,单位为μH(微 亨),在数值小于1时,单位H(亨利)。
4. 电容器耐压值除非另有注明均为 50 伏。
注意。原理图和元件表中标有国际通用危险记号"Δ"的项目表示具有特殊安全性能的元件。更换时应使用与原电路中完全相 國或元件表中指定的元件,并按其原来位置进行安装。在更换上述元件前,请仔细阅读第三页上的"产品安全注意事 项",以免操作不当而影响电视机的安全性能。
表示
变压器与电路断开时测的。
1. 电阻用 ohm (欧姆, Ω)表示, K=1,000 M=1,000,000。 2. 除了在图中特别注明外,所有的电容值在数值小于1时,单位为μF(徽法), 数值大于1时,其单位 PF(徽徽法拉)。
3. 除了在图中特别注明外,图中的所有电感值在数字大于1时,单位为μH(微 亨),在数值小于1时,单位H(亨利)。
4. 电容器耐压值除非另有注明均为 50 伏。
注意: 原理图和元件表中标有国际通用危险记号"△"的项目表示具有特殊安全性能的元件。更换时应使用与原电路中完全相 同或元件表中指定的元件,并按其原来位置进行安装。在更换上述元件前,请仔细阅读第三页上的"产品安全注意事 项",以免操作不当而影响电视机的安全性能。
| 所示的测量点对机壳地线的电压,线电压220V,彩色条的信号。 所示的测重点对机完地线时电压, 这电压220v, 秒已示电1回 5。 20%。 表性的。 宽带示波器和一个低电容的探头测量的。 查"精细调谐"、"AGC"、"完度","对比度"和"色彩"控制时,一定要 调在中间位置,"完度"旋钮几乎放在最大位置。
1.在原理图中表示了主要变压器的直流电阻值。这些值是把变压器与电路断开时测的。 2. 电路改变时,不予通知。
注
电阻、电容、电感的值
注意: 原理图和元件表中标有国际通用危险记号"Δ"的项目表示具有特殊安全性能的元件。更换时应使用与原电路中完全相 同或元件表中指定的元件,并按其原来位置进行安装。在更换上述元件前,请仔细阅读第三页上的"产品安全注意事 项",以免操作不当而影响电视机的安全性能。
1.用真空管电压表测量所示的测量点对机壳地; 2. 电压读数可以变化±20%。
注:
示
示
电阻、电容、电感的值
断开时测的。
电阻用 ohm(欧姆,Ω)表示,K=1.000 M=1.000.000。
2. 除了在图中特别注明外,所有的电容值在数值小于1时,单位为μF(徽法),
数值大于1时,其单位 PF(微微法拉)。
3. 除了在图中特别注明外,图中的所有电感值在数字大于1时,单位为μH(微 亨),在数值小于1时,单位H(亨利)。
4. 电容器耐压值除非另有注明均为 50 伏。







































































Loading...