
F
E
D
C
B
A
TO
AC MAIN
SOCKET
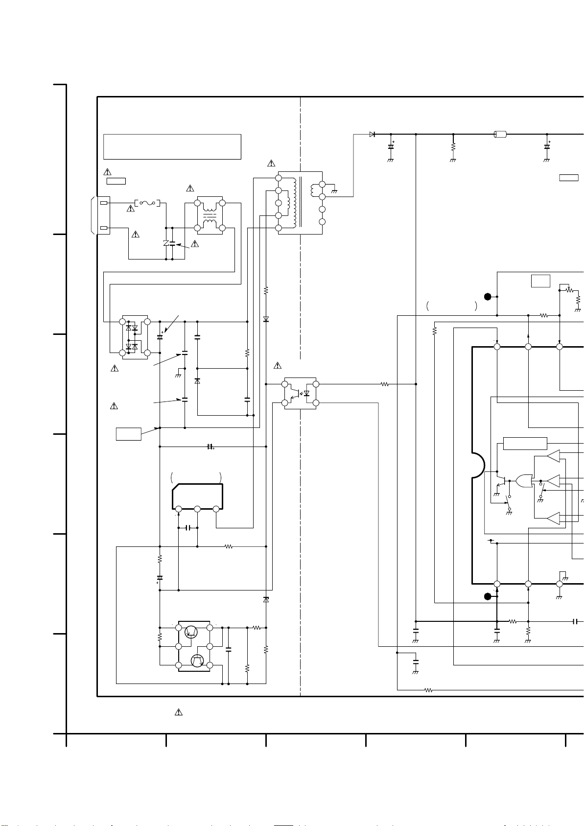
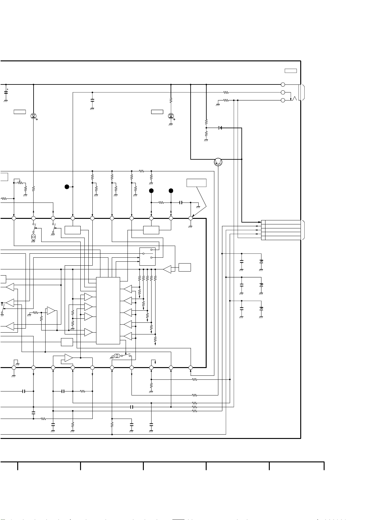
MAIN C.B.A.(VEP61267A)
HOT CIRCUIT
BE CAREFUL AND USE AN ISOLATION
TRANSFORMER WHEN SERVICING.
AC IN
P01
VJS3306
D01
S1WBA80-4062
~~
C02
ECKZNA102MEV
C03
ECKZNA102MEV
PRIMARY
GND
ZA01
F01
XBA2C20TB0
DZ01
ERZVA5D471
+
14
-
23
R04
22
C08
16V100
R05
1K
ZA02
5.6
5.6
5.6
L01
ELF17N004A
3
2
C01
VCF0183M473
C04
400V33
C05
0.047
D02
ERA22-08
C07
50V3.3
IC01
MIP0224SY
POWER SWITCHING
CONTROL
21
0
5.8
C09
1000P
Q01
XN4601
(PULSE DRIVE)
3
2
1
880
DSC
3
0
4
0
5
0
6
4
1
R03
2700
R01
68K
C06
56P
D04
MA4200M
C101KR08
0.22
R06
470K
R07
470K
PRIMARY
SIDE
TO1
VLT0933
9
8
7
6
5
R02
33
D03
ERA22-04
PC01
PC123FY2
(FEED BACK)
4
3
SECONDARY
SIDE
1
2
3
4
1
2
D21
F10KQ100
R29
470
C21
16V820
IC21
M62241FP
VOLTAGE/CURRENT
CONTROL
R23
15K
C26
1
C34
0.1
R49
10K
LB21
VLP0056
R51
150
TL21 TL22
0
24 23 22 21 20 19 18 17 16 15 14 13
VB
IN
AC POWER
PULL/OUT DET.
VCC
VCC
TL25
R21
22K
C27
0.01
C22
16V470
V REF
ADJ.
VR21
EVMFASA00B23
2KB
R47
71.5K
V REF
OUT
VDET
R22
12K
CHARGE
D27
LN38GCPX
1
2
R48
4.7K
V REF
IN
+
+
+
C25
0.1
3
5.32.87.8
C23
0.1
R30
560
CHGLED
DC JACK
DET.
+
-
RESET
+
C28
0.1
C29
0.1
-
PC B+ B-
R32
1500
R33
39K
R37
39K
R43
24K
+-+-+-+-
DC OUT
JK21
VJP3381A
BAT CHG
CHG SEN
BAT T
GND SEN
BAT GND
D23
MA4120
D25
MA4120
D24
MA4120
1
2
3
TO
MOVIE
ATTACH
THE
BATTERY
R36 4700
C37
0.1
POWER
D26
LN28RCPX
R41
30K
0
LOGIC
R42
470
TH SW
R50
4700
R44
2400
0.27.82.86.41.22.8
VB
OUT
000
R40
30K
+- -++- -+-+
987654321
7.52.8
C24 0.1
ADJ1ADJ2ADJ3DCJK
C35
0.1
R45
5100
R39
1600
CURRENT
REF
R46
27K
TL23 TL24
OSC
TH-
R52
470
C30
0.1
R35
91K
0.90.90.2
R24
680
C36
2200P
CCRC
+
V REF
-
IDET ADJ0
2.3
00
R26
150
R27
1200
SECONDARY
GND
121110
R53 0
R25 330
R38 117K
R31 1K
R34 117K
R28 0.1
D22
MA165VT
Q21
2SA1897
(CHARGE SW)
7.9
7.5
6.9
P21 VEK8526
1
2
3
4
5
C31
0.1
C33
0.1
C32
0.1
IMPORTANT SAFETY NOTES:
COMPONENT IDENTIFIED THE MARK HAVE THE SPECIAL
CHARACTERISTICS FOR SAFETY.WHEN REPLACING OF THESE
COMPONENTS,USE ONLY THE SAME TYPE.
NOTE1:DO NOT USE ANY PART NUMBER SHOWN
ON THIS SCHEMATIC DIAGRAM FOR
ORDERING.WHEN YOU ORDER A PART,
PLEASE REFER TO PARTS LIST.
4321
NOTE2:WHEN MEASURE THE DC VOLTAGE AND WAVEFORM,CONNECT THE GND READ OR GND PROBE TO NEXT GND.
PRIMARY SIDE......IC01-2 PIN OF THE MAIN C.B.A.(PRIMARY GND).
SECONDARY SIDE....IC21-13 PIN OF THE MAIN C.B.A.(SECONDARY GND).
NOTE3:THE DC VOLTAGE INDICATED IN PRIMARY SIDE
IS MEASURE WHEN INPUT AC 220V IS SAPPLIED.
NOTE4:WHEN MEASURE THE DC VOLTAGE,CONNECT THE
MOVIE TO DC OUTPUT(JK21).
98765
10

F
TO
AC MAIN
SOCKET
MAIN C.B.A.(VEP61267A)
HOT CIRCUIT
BE CAREFUL AND USE AN ISOLATION
TRANSFORMER WHEN SERVICING.
AC IN
P01
VJS3306
ZA01
F01
XBA2C20TB0
DZ01
ERZVA5D471
ZA02
L01
ELF17N004A
3
2
C01
VCF0183M473
D21
F10KQ100
C21
16V820
R51
150
TO1
VLT0933
9
8
7
6
5
SECONDARY
SIDE
1
2
3
4
PRIMARY
SIDE
4
1
LB21
VLP0056
C22
16V470
CHARGE
D27
LN38GCPX
V REF
E
14
23
R04
22
R05
1K
+
-
C04
400V33
IC01
MIP0224SY
POWER SWITCHING
CONTROL
21
0
5.8
C09
1000P
Q01
XN4601
(PULSE DRIVE)
5.6
3
5.6
2
5.6
1
C05
0.047
D02
ERA22-08
C07
50V3.3
DSC
3
880
0
4
0
5
0
6
R03
2700
R06
470K
R01
68K
C06
56P
D04
MA4200M
C101KR08
0.22
D01
S1WBA80-4062
~~
C02
ECKZNA102MEV
D
C03
ECKZNA102MEV
PRIMARY
GND
C
C08
B
16V100
A
R07
470K
R02
33
D03
ERA22-04
PC01
PC123FY2
(FEED BACK)
4
3
IC21
M62241FP
VOLTAGE/CURRENT
CONTROL
R23
15K
R29
1
2
470
C26
1
C34
0.1
R49
10K
TL21
0
24 23 22
VB
IN
VCC
VCC
TL25
C27
0.01
ADJ.
VR21
EVMFASA00B23
2KB
V REF
OUT
AC POWER
PULL/OUT DET.
VDET
R21
22K
R22
12K
R47
71.5K
1
3
2
R48
4.7K
6.1.22.8
V REF
IN
+
+
+
321
5.2.87.8
C25
0.1
C2
0.1
IMPORTANT SAFETY NOTES:
COMPONENT IDENTIFIED THE MARK HAVE THE SPECIAL
CHARACTERISTICS FOR SAFETY.WHEN REPLACING OF THESE
COMPONENTS,USE ONLY THE SAME TYPE.
NOTE1:DO NOT USE ANY PART NUMBER SHOWN
ON THIS SCHEMATIC DIAGRAM FOR
ORDERING.WHEN YOU ORDER A PART,
PLEASE REFER TO PARTS LIST.
4321
NOTE2:WHEN MEASURE THE DC VOLTAGE A
PRIMARY SIDE......IC01-2 PIN OF THE
SECONDARY SIDE....IC21-13 PIN OF T
5

EF
J.
A00B23
R47
71.5K
C22
16V470
CHARGE
D27
LN38GCPX
1
3
2
R48
4.7K
R30
560
TL22
R43
24K
C37
0.1
R44
2400
R41
30K
R42
470
R40
30K
R45
5100
TL23 TL24
R39
1600
POWER
D26
LN28RCPX
R46
27K
R35
91K
R24
680
C36
2200P
R26
150
R27
1200
SECONDARY
GND
R36 4700
R28 0.1
D22
MA165VT
Q21
2SA1897
(CHARGE SW)
7.9
7.5
DC OUT
JK21
VJP3381A
1
2
3
6.9
TO
MOVIE
VB
OUT
0
LOGIC
+- -++- -+-+
TH SW
9876543
7.52.8
C24 0.1
R50
4700
ADJ1ADJ2ADJ3DCJK
C35
0.1
OSC
CURRENT
REF
TH-
R52
470
C30
0.1
R33
39K
R37
39K
0.27.82.86.41.2
+-+-+-+-
000
22 21 20 19 18 17 16 15 14 13
V REF
EF
IN
T
+
+
+
ET
2
PC B+ B-
5.3
C25
0.1
C23
0.1
R32
1500
CHGLED
DC JACK
DET.
+
-
RESET
+
-
C29
0.1
C28
0.1
0.90.90.2
CCRC
+
-
IDET ADJ0
00
V REF
2.3
121110
R53 0
R25 330
R38 117K
R31 1K
R34 117K
C31
0.1
C33
0.1
C32
0.1
P21 VEK8526
BAT CHG
1
CHG SEN
2
3
BAT T
GND SEN
4
BAT GND
5
D23
MA4120
D25
MA4120
D24
MA4120
ATTACH
THE
BATTERY
DC VOLTAGE AND WAVEFORM,CONNECT THE GND READ OR GND PROBE TO NEXT GND.
1-2 PIN OF THE MAIN C.B.A.(PRIMARY GND).
C21-13 PIN OF THE MAIN C.B.A.(SECONDARY GND).
NOTE3:THE DC VOLTAGE INDICATED IN PRIMARY SIDE
IS MEASURE WHEN INPUT AC 220V IS SAPPLIED.
NOTE4:WHEN MEASURE THE DC VOLTAGE,CONNECT THE
MOVIE TO DC OUTPUT(JK21).
9876
10