
Mega EK 3422 N Kombi-Einbauherd
Ausstattung
Technische Daten
Frontfarbe : Edelstahl
Bauform : Eingebaut
Integriertes Reinigungssystem : Nein
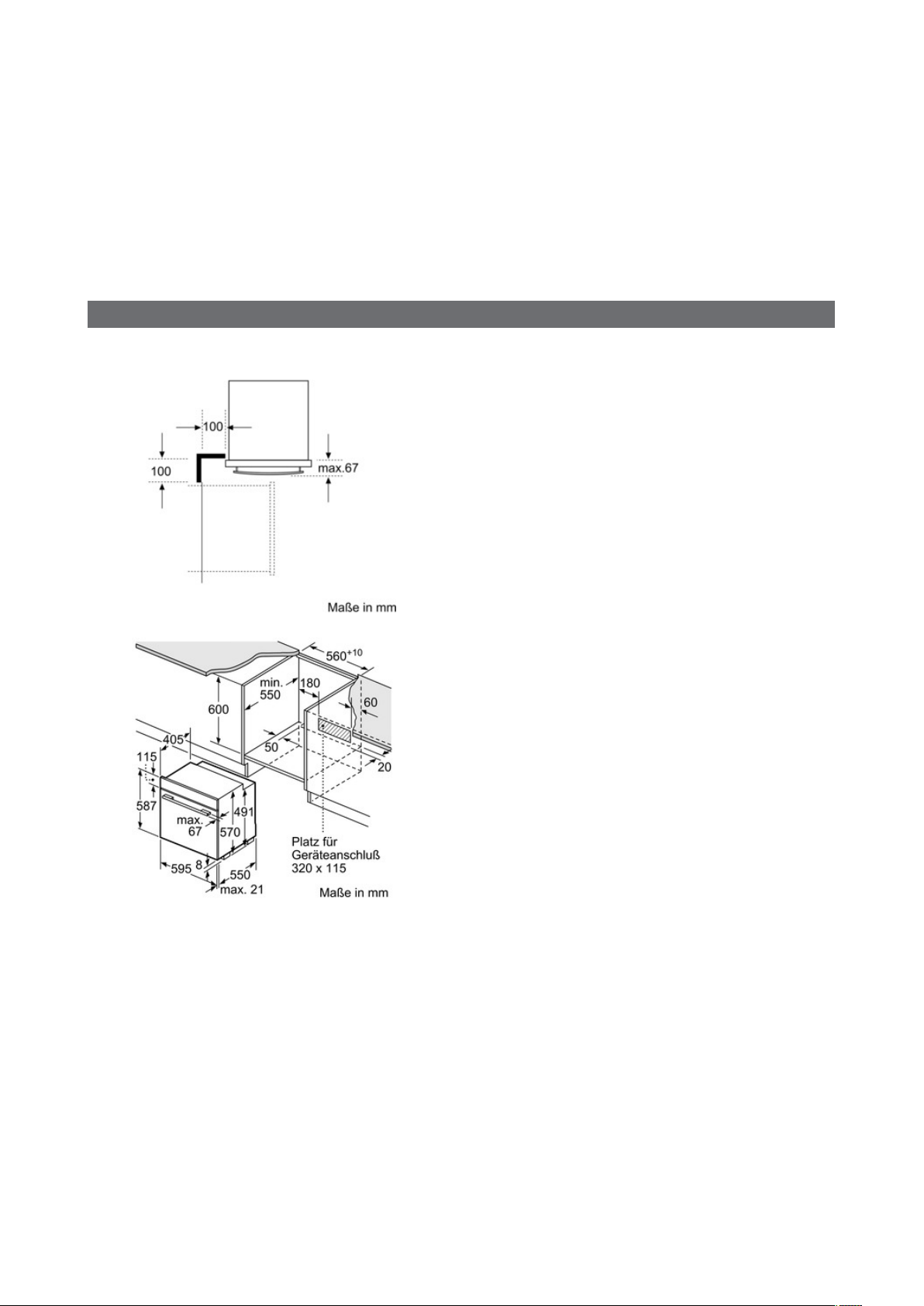
Nischenmaße (mm) : 600 x 560-570 x 550
Abmessungen des Gerätes (mm) : 595 x 595 x 550
Material der Blende : Edelstahl-Top
Material der Tür : Glas
Nettogewicht (kg) : 33,0
Nettovolumen - Backrohr 1 (l) : 66
Beheizungsarten : Auftauen, Großflächengrill, Heißluft, Ober-/
Unterhitze, Thermogrill, Unterhitze
Material 1. Backrohr : Emailliert
Kontrolle der Temperatur : mechanisch
Anzahl eingebauter Leuchten : 1
Approbationszertifikate : CE, VDE
Länge Anschlusskabel (cm) : 150
EAN-Nummer : 4242004156673
Anzahl der Innenräume (2010/30/EC) : 1
Energieeffizienzklasse - neu (2010/30/EC) : A
Energieverbrauch pro Ober-/Unterhitze Zyklus (2010/30/EC) : 0,96
Energieverbrauch pro Heißluft-Zyklus (2010/30/EC) : 0,84
Energieeffizienzindex (2010/30/EC) : 101,2
Elektroanschlußwert (W) : 2800
Absicherung (A) : 16
Spannung (V) : 220-230
Frequenz (Hz) : 50
Steckerart : Schuko-/Gardy.m.Erdung
Integriertes Zubehör
'!2E20AE-bfgghd!
Sonderzubehör
N8642X3 : N8642X3 Mega Systemdampfgarer , Z1232X3 :
Universalpfanne, titangrau emailliert , Z1233X3 : Universalpfanne,
antihaft-beschichtet , Z1242X3 : Universalpfanne mit Einlegerost ,
Z1262X0 : Glaspfanne , Z1272X0 : Auflaufpfanne, titangrau
emailliert , Z1332X0 : Aluminium-Backblech , Z1342X0 : Backblech,
titangrau emailliert , Z1343X0 : Backblech antihaft-beschichtet ,
Z1352X0 : Pizzaform , Z1432X3 : Back- und Bratrost, gekröpft ,
Z1442X0 : Back- und Bratrost engmaschig , Z1512X0 : Bratenblech
emailliert, 2-teilig , Z1742X2 : 3-fach-CLOU® , Z1745X2 : 3-fachCLOU® Überauszug/Stoppfunktion Z1755X2 : 4-fach-CLOU®
Überauszug/Stoppfunktion ,
E34K22N3
Edelstahl
1/3

Mega EK 3422 N Kombi-Einbauherd
E34K22N3
Edelstahl
Ausstattung
#
DUO-Backofensystem mit 6 Betriebsarten
CircoTherm® 50 °C - 200 °C, Ober-/Unterhitze 50 °C - 275
°C, Unterhitze, Großflächengrill, Thermogrill 50°C - 250°C ,
Auftaustufe
#
Profilgriff
#
Glas-Innentür
#
Großraumbackofen mit Einhängegittern
#
Rundleuchte
#
Innenraum Email titangrau
#
Kühlgebläse
#
Eine Kontrolllampe für den Backofen
#
Energieverbrauch: A-20%
20% sparsamer (0.79 kWh) als der Grenzwert (0.99 kWh) zur
Energieeffizienzklasse A
2/3

Mega EK 3422 N Kombi-Einbauherd
E34K22N3
Edelstahl
Maßzeichnungen
3/3