Page 1

Gaggenau
el OдзгЯет фпрпиЭфзузт
RY 491
Page 2

Ресйечьменб
ХрпдеЯоейт буцблеЯбт кбй
рспейдпрпйзфйкЭт хрпдеЯоейт ............................ 4
Дхнбфьфзфет фпрпиЭфзузт ................................ 5
БнеоЬсфзфз ухукехЮ ............................................ 5
БнеоЬсфзфет ухукехЭт ме
дйбчщсйуфйкь фпЯчщмб ........................................... 5
Щт фелехфбЯб ухукехЮ уе уеф кпхжЯнбт .............. 5
БнеоЬсфзфз ........................................................... 5
ФпрпиЭфзуз кбй уэндеуз фзт ухукехЮт .......... 6
Фьрпт фпрпиЭфзузт ............................................. 6
КлймбфйкЭт клЬуейт ............................................... 6
Кьгчз енфпйчйумпэ ................................................ 6
ГейфнйЬжпнфб Эрйрлб кпхжЯнбт ............................... 6
ДЬредп .................................................................. 6
ЗлекфсйкЮ уэндеуз ............................................... 7
Уэндеуз неспэ ...................................................... 7
ДйбуфЬуейт фзт кьгчзт фпрпиЭфзузт ............... 8
ФпрпиЭфзуз щт бнеоЬсфзфз ухукехЮ ................. 8
ИЭуз фзт уэндеузт неспэ ................................... 9
ДйбуфЬуейт фзт ухукехЮт ................................. 10
БрбсбЯфзфб еобсфЮмбфб кбй есгблеЯб .............. 11
Ухнпдеэпхн фз ухукехЮ ....................................... 11
Рсьуиефб еобсфЮмбфб ......................................... 11
ЕсгблеЯб ............................................................... 11
ЛпйрЬ есгблеЯб ..................................................... 11
ПдзгЯет фпрпиЭфзузт ....................................... 12
1. ¸легчпт фзт кьгчзт енфпйчйумпэ ...... 12
2. МефбцпсЬ фзт ухукехЮт ................... 12
3. Брпмбксэнефе фб хлйкЬ
ухукехбуЯбт ........................................ 13
4. РспефпймбуЯб фзт фпрпиЭфзузт ........ 13
5. УфесЭщуз фзт буцЬлейбт
бнбфспрЮт ........................................... 13
6. ЕнбллбкфйкЮ буцЬлейб бнбфспрЮт .... 15
7. РспефпймбуЯб фзт уэндеузт неспэ ... 16
8. ФпрпиЭфзуз фзт рспуфбуЯбт бкмюн .. 16
9. ФпрпиЭфзуз фзт ухукехЮт уфзн
кьгчз енфпйчйумпэ ............................... 17
10. ЕхихгсЬммйуз фзт ухукехЮт мЭуб
уфзн кьгчз ........................................... 18
11. УфесЭщуз фзт ухукехЮт уфп фбвЬнй
фзт кьгчзт ........................................... 19
12. УфесЭщуз фзт ухукехЮт уфп рлбънь
фпЯчщмб фзт кьгчзт ............................ 20
13. ¸легчпт фзт ехкйнзуЯбт фзт
рспуфбуЯбт дбчфэлщн ........................ 21
14. БрпкбфЬуфбуз фзт уэндеузт неспэ
уфз ухукехЮ ........................................ 21
15. УфесЭщуз фпх рЮчз вЬузт ................. 22
Ê
бфЬ фзн иЭуз фзт ухукехЮт
16.
гйб рсюфз цпсЬ уе лейфпхсгЯб .......... 23
17. РспефпймбуЯб фщн рьсфщн
ерЯрлпх ................................................. 23
18. Цьсфщуз фзт рьсфбт
фзт ухукехЮт ....................................... 24
19. УфесЭщуз фпх рЮчз ехихгсЬммйузт
уфзн рьсфб фпх ерЯрлпх (чюспт
ухнфЮсзузт) ........................................ 24
20. БнЬсфзуз кбй ехихгсЬммйуз
фзт рьсфбт ерЯрлпх
(чюспт ухнфЮсзузт) ........................... 25
21. УфесЭщуз фпх рЮчз ехихгсЬммйузт
уфзн рьсфб фпх ерЯрлпх (чюспт
кбфЬшхозт) .......................................... 26
22. БнЬсфзуз кбй ехихгсЬммйуз
фзт рьсфбт ерЯрлпх
(чюспт кбфЬшхозт) ............................. 27
23. УфесЭщуз фзт рьсфбт ерЯрлпх
(чюспт ухнфЮсзузт) ........................... 28
24. УфесЭщуз фзт рьсфбт ерЯрлпх
(чюспт кбфЬшхозт) ............................. 29
25. ВЯдщмб фщн кЬфщ гщнйюн
уфесЭщузт ........................................... 30
O
Page 3

26. УфесЭщуз фзт рспуфбуЯбт
дбчфэлщн .............................................. 31
27. ФпрпиЭфзуз фпх кблэммбфпт ............. 31
28. ФпрпиЭфзуз фпх дйбчщсйуфЮсб
áÝñá ...................................................... 32
29. Сэимйуз фзт гщнЯбт бнпЯгмбфпт
рьсфбт (рьсфб чюспх
ухнфЮсзузт) ......................................... 32
30. ФЬнхуз фщн елбумЬфщн фщн
менфеуЭдщн (рьсфб чюспх
ухнфЮсзузт) ........................................ 32
P
Page 4

ХрпдеЯоейт буцблеЯбт кбй
рспейдпрпйзфйкЭт хрпдеЯоейт
БхфЭт пй пдзгЯет фпрпиЭфзузт рсппсЯжпнфбй нб убт
впзиЮупхн кбфЬ фзн фпрпиЭфзуз фзт нЭбт убт
ухукехЮт.
П кбфбукехбуфЮт ден мрпсеЯ нб бнблЬвей кбмЯб
ехиэнз гйб фхчьн лбнибумЭнз фпрпиЭфзуз.
Убт ухнйуфпэме нб брехихниеЯфе гйб фзн фпрпиЭфзуз
кбй рсюфз иЭуз уе лейфпхсгЯб уе кбфбсфйумЭнп ейдйкь
егкбфЬуфбузт.
З рспупчЮ ьлщн фщн ерйузмЬнуещн кбй з фЮсзуз ьлщн
фщн хрпдеЯоещн бхфюн фщн пдзгйюн фпрпиЭфзузт
брпфелпэн рспырпиЭуейт гйб фзн буцблЮ фпрпиЭфзуз
кбй рсюфз иЭуз уе лейфпхсгЯб фзт ухукехЮт.
ЦхлЬофе фйт пдзгЯет фпрпиЭфзузт гйб мефЭрейфб чсЮуз.
Рсйн фзн фпрпиЭфзуз кбй рсюфз иЭуз фзт ухукехЮт уе
лейфпхсгЯб дйбвЬуфе рспуекфйкЬ кбй рлЮсщт бхфЭт фйт
пдзгЯет фпрпиЭфзузт.
m РспейдпрпЯзуз
Пй ухукехЭт еЯнбй рплэ вбсйЭт кбй рсЭрей нб
буцблйуфпэн Энбнфй бнбфспрЮт кбфЬ фз мефбцпсЬ,
кбфЬ фзн фпрпиЭфзуз кбй кбфЬ фз лейфпхсгЯб.
ЕЯнбй прщудЮрпфе брбсбЯфзфз мйб буцЬлейб
бнбфспрЮт.
m РспупчЮ
З егкбфЬуфбуз кбй фпрпиЭфзуз фзт ухукехЮт
бхфЮт брбйфпэн екфенеЯт гнюуейт брь дйЬцпспхт
ербггелмбфйкпэт фпмеЯт (гйб мзчбнйкЭт, охлпхсгйкЭт,
хдсбхлйкЭт, злекфсплпгйкЭт егкбфбуфЬуейт).
З дйбуцЬлйуз фзт буцблпэт фпрпиЭфзузт кбй иЭузт
фзт ухукехЮт уе лейфпхсгЯб Эгкейфбй у' бхфьн рпх
рспвбЯней уфзн егкбфЬуфбуЮ фзт.
УцЬлмбфб кбфЬ фзн егкбфЬуфбуз кбй жзмйЭт рпх
рспкэрфпхн брь бхфЬ ден хрпрЯрфпхн уфзн боЯщуз
рбспчЮт еггэзузт фпх кбфбукехбуфЮ.
Пй ьспй еггэзузт дЯнпнфбй уфйт пдзгЯет чсЮузт фщн
ухукехюн.
УзмбнфйкЮ хрьдейоз
Бн з ухукехЮ рськейфбй нб фпрпиефзиеЯ щт бнеоЬсфзфз
ухукехЮ (уе ухндхбумь ме фп кйф еобсфзмЬфщн
RA 423 910), чсзуймпрпйЮуфе прщудЮрпфе фйт пдзгЯет
фпрпиЭфзузт, рпх рбсбдЯдпнфбй мбжЯ ме фп рбсбрЬнщ
кйф еобсфзмЬфщн.
Пй пдзгЯет бхфЭт ресйЭчпхн ьлб фб брбсбЯфзфб вЮмбфб
ухнбсмпльгзузт гйб фзн буцблЮ фпрпиЭфзуз фзт
ухукехЮт кбй фз иЭуз фзт уе лейфпхсгЯб.
КсбфЬфе фйт рьсфет клейуфЭт, мЭчсй нб фпрпиефзиеЯ
кбй нб буцблйуфеЯ рлЮсщт з ухукехЮ, вЬуей фщн
хрпдеЯоещн бхфюн фщн пдзгйюн фпрпиЭфзузт.
Льгщ фпх вЬспхт кбй фщн дйбуфЬуещн фзт ухукехЮт кбй
гйб фзн елбчйуфпрпЯзуз фпх кйндэнпх фсбхмбфйумюн
Ю жзмйюн уфз ухукехЮ чсейЬжпнфбй фпхлЬчйуфпн дэп
Ьфпмб гйб фзн буцблЮ фпрпиЭфзуз фзт ухукехЮт.
ЧсзуймпрпйеЯфе фйт ухукехЭт уэмцщнб ме фзн
бсмьжпхуб чсЮуз.
Рсйн брь ьлет фйт есгбуЯет уфз ухукехЮ вгЬжефе фп
цйт брь фзн рсЯжб Ю бцбйсеЯфе фзн буцЬлейб брь фпн
рЯнбкб фпх урйфйпэ.
З бллбгЮ фпх фспцпдпфйкпэ кблщдЯпх ерйфсЭрефбй
нб гЯнефбй мьнпн брь ейдйкехмЭнп злекфспльгп.
ЕрйукехЭт уфз ухукехЮ ерйфсЭрефбй нб гЯнпнфбй мьнпн
брь фзн хрзсеуЯб фечнйкЮт еохрзсЭфзузт фщн релбфюн
мбт.
РбсЬллзлб ме фйт еинйкЭт дйбфЬоейт рпх псЯжпнфбй
брь фп ньмп рсЭрей нб фзспэнфбй пй рспдйбгсбцЭт
уэндеузт фщн фпрйкюн ефбйсейюн злекфспдьфзузт
кбй эдсехузт.
Q
Page 5

Дхнбфьфзфет фпрпиЭфзузт
Уфз дйЬиеуЮ убт всЯукпнфбй дйЬцпсет дхнбфьфзфет
фпрпиЭфзузт. БхфЭт ресйпсЯжпнфбй мьнп брь фп нфйжЬйн
фзт кпхжЯнбт кбй фз лейфпхсгЯб фзт рспуфбуЯбт
дбчфэлщн.
БнеоЬсфзфз ухукехЮ
БнеоЬсфзфет ухукехЭт ме
дйбчщсйуфйкь фпЯчщмб
NK
Щт фелехфбЯб ухукехЮ уе уеф кпхжЯнбт
Бн рбсбмЭней псбфЮ мЯб рлехсЬ фзт ухукехЮт, фьфе
рсЭрей нб чсзуймпрпйзиеЯ рлехсйкЮ ерЭндхуз.
З рлехсйкЮ ерЭндхуз рсЭрей нб ухндеиеЯ уфбиесЬ ме
фпн фпЯчп, фп дЬредп кбй фб ерЬнщ есмЬсйб, рспфпэ
фпрпиефзиеЯ з ухукехЮ уфзн кьгчз енфпйчйумпэ.
Пй дйбуфЬуейт фзт рлехсйкЮт ерЭндхузт кбипсЯжпнфбй
брь фп брЭнбнфй фпЯчщмб фзт кьгчзт.
КбфЬ фзн егкбфЬуфбуз рсЭрей нб рспуЭоефе нб еЯнбй
з кьгчз енфпйчйумпэ псипгюнйб кбй нб Эчей бксйвют фп
брбйфпэменп мЭгеипт гйб фз ухукехЮ/фйт ухукехЭт.
БнеоЬсфзфз
OK
ХрпдеЯоейт:
– Гйб фйт дйбуфЬуейт фпх дйбчщсйуфйкпэ фпйчюмбфпт
гйб фп мпнфЭлп 2 рсЭрей нб рспуЭоефе фп рЬчпт
фзт рспт ухнбсмпльгзуз рсьупшзт фпх ерЯрлпх,
юуфе нб брпцехчипэн жзмйЭт кбфЬ фп фбхфьчспнп
Ьнпйгмб фщн рьсфщн.
– Бн з брьуфбуз бнЬмеуб уфйт ухукехЭт еЯнбй
мйксьфесз брь 160 mm, фьфе рсЭрей нб
чсзуймпрпйзиеЯ з рлехсйкЮ ерйрсьуиефз
иЭсмбнуз.
Ресйууьфесет лерфпмЭсейет учефйкЬ уфп
КецЬлбйп "БрбсбЯфзфб еобсфЮмбфб кбй есгблеЯб".
– Фп елЬчйуфп рЬчпт фпх дйбчщсйуфйкпэ фпйчюмбфпт
еЯнбй 16 mm.
Уе ухндхбумь ме фп кйф еобсфзмЬфщн RA 423 910
(оечщсйуфЭт ПдзгЯет фпрпиЭфзузт гйб фз ухукехЮ).
R
Page 6

ФпрпиЭфзуз кбй уэндеуз
фзт ухукехЮт
Фьрпт фпрпиЭфзузт
m РспупчЮ
З ухукехЮ еЯнбй рплэ вбсйЬ.
Брьвбсп: 195 kg
З ухукехЮ рсЭрей нб егкбфбуфбиеЯ уе уфегнь, кблЬ
бесйжьменп чюсп.
П чюспт фпрпиЭфзузт ден рсЭрей нб еЯнбй
екфеиеймЭнпт уе Ьмеуз злйбкЮ бкфйнпвплЯб пэфе нб
всЯукефбй дЯрлб уе рзгЮ иесмьфзфбт ьрщт злекфсйкЮ
кпхжЯнб, кблпсйцЭс кфл. Бн ден мрпсеЯфе нб
брпцэгефе фзн егкбфЬуфбуз дЯрлб уе рзгЮ
иесмьфзфбт, рсЭрей нб чсзуймпрпйЮуефе кбфЬллзлз
мпнщфйкЮ рлЬкб Ю рсЭрей нб фзсзипэн пй бкьлпхиет
елЬчйуфет брпуфЬуейт брь фзн рзгЮ иесмьфзфбт:
– Брь злекфсйкЭт кпхжЯнет Ю кпхжЯнет бесЯпх: 3 cm.
– Брь кпхжЯнет рефселбЯпх Ю кЬсвпхнпх: 30 cm.
КлймбфйкЭт клЬуейт
З клймбфйкЮ клЬуз дЯнефбй уфзн рйнбкЯдб фэрпх кбй
деЯчней фйт иесмпксбуЯет рпх ерйфсЭрефбй нб ерйксбфпэн
уфпхт чюспхт, уфпхт прпЯпхт мрпсеЯ нб фЯиефбй з
ухукехЮ уе лейфпхсгЯб.
ГейфнйЬжпнфб Эрйрлб кпхжЯнбт
З кбйнпэсгйб ухукехЮ вйдюнефбй уфбиесЬ ме фб
рлбънЬ мЭсз фпх есмбсЯпх кбй фб ерЬнщ есмЬсйб.
Гй' бхфь рсЭрей нб рспуЭоефе нб Эчпхн ухндеиеЯ ьлб
фб ерЬнщ есмЬсйб, уфб прпЯб рськейфбй нб уфесещиеЯ
кЬфй, ме кбфЬллзлб мЭуб ме фп дЬредп Ю фпн фпЯчп.
Фп елЬчйуфп рЬчпт фзт рсьупшзт вЬузт рсЭрей
нб еЯнбй фпхлЬчйуфпн 19 mm.
ДЬредп
m РспупчЮ
З рлЮсщт цпсфщмЭнз ухукехЮ еЯнбй рплэ вбсйЬ.
ВЬспт: мЭчсй кбй 540 kg
Гйб нб дйбуцблЯуефе, ьфй Эчей егкбфбуфбиеЯ ме буцЬлейб
з ухукехЮ кбй ьфй лейфпхсгеЯ ущуфЬ, рсЭрей нб еЯнбй фп
дЬредп псйжьнфйп кбй ерЯредп.
Фп дЬредп рсЭрей нб брпфелеЯфбй брь уклзсь,
Ькбмрфп хлйкь.
Уфзн ресйпчЮ фзт фпрпиЭфзузт фп дЬредп рсЭрей
нб Эчей фп Ядйп эшпт ьрщт фп хрьлпйрп фмЮмб фпх
дщмбфЯпх.
КлймбфйкЮ клЬуз ЕрйфсерфЮ иесмпксбуЯб
чюспх
SN +10 øC Ýùò 32 øC
N+16 øC Ýùò 32 øC
ST +16 øC Ýùò 38 øC
T+16 øC Ýùò 43 øC
Кьгчз енфпйчйумпэ
ЕЯнбй узмбнфйкь нб фзсзипэн пй дйбуфЬуейт фзт кьгчзт
енфпйчйумпэ рпх дЯнпнфбй гйб фз дйбуцЬлйуз фпх
брсьукпрфпх енфпйчйумпэ фзт ухукехЮт кбй фзн
пмпйьмпсцз емцЬнйуз фзт рсьупшзт фщн ерЯрлщн
фзт кпхжЯнбт.
ЙдйбЯфесб рсЭрей нб рспуЭоефе, нб еЯнбй з кьгчз
псипгюнйб. Фб рлбънЬ фпйчюмбфб ден ерйфсЭрефбй
нб рспеоЭчпхн Ю нб емцбнЯжпхн еупчЭт Ю бнщмблЯет
уфзн ерйцЬнейЬ фпхт.
З псипгюнйб рбсбллзлерйредьфзфб фзт кьгчзт
фпрпиЭфзузт мрпсеЯ нб дйбрйуфщиеЯ ме кбфЬллзлб
мЭуб, р. ч. блцЬдй, дйбгюнйет мефсЮуейт кфл.
Льгщ фпх мегЬлпх вЬспхт фзт гемЬфзт ухукехЮт
брбйфеЯфбй дЬредп ме кбфЬллзлз цЭспхуб йкбньфзфб.
Уе ресйрфюуейт бмцйвплЯбт, брехихниеЯфе уе
бсчйфЭкфпнб Ю рплйфйкь мзчбнйкь.
Фб рлбънЬ фпйчюмбфб кбй фп ерЬнщ фелеЯщмб
фзт кьгчзт енфпйчйумпэ рсЭрей нб Эчпхн рЬчпт
фпхлЬчйуфпн 16 mm.
S
Page 7

ЗлекфсйкЮ уэндеуз
Уэндеуз неспэ
Мз чсзуймпрпйеЯфе кблюдйб ерймЮкхнузт Ю дйбнемзфЭт.
Гйб фз уэндеуз фзт ухукехЮт бхфЮт брбйфеЯфбй мЯб
мьнймб егкбфеуфзмЭнз рсЯжб.
З рсЯжб гйб фз уэндеуз фзт ухукехЮт рсЭрей нб еЯнбй
рспуйфЮ. УхндЭуфе фз ухукехЮ уе енбллбууьменп
сеэмб 220–240 V/50 Hz мЭущ рсЯжбт, егкбфеуфзмЭнзт
уэмцщнб ме фйт екЬуфпфе рспдйбгсбцЭт.
З рсЯжб рсЭрей нб еЯнбй буцблйумЭнз ме буцЬлейб
10 Эщт 16 A.
Уе ухукехЭт гйб чюсет екфьт Ехсюрзт рсЭрей нб
елЭгоефе уфзн рйнбкЯдб фэрпх, бн з бнбгсбцьменз
фЬуз кбй фп еЯдпт фпх сеэмбфпт ухмцщнпэн ме фйт
фймЭт фпх дйкфэпх убт. Фб уфпйчеЯб гйб фз иЭуз фзт
рйнбкЯдбт фэрпх иб фб всеЯфе уфйт ПдзгЯет чсЮузт
фзт ухукехЮт. З ендечпмЭнщт бнбгкбЯб бллбгЮ
фпх фспцпдпфйкпэ кблщдЯпх ерйфсЭрефбй нб
рсбгмбфпрпйзиеЯ мьнпн брь фпн ейдйкь.
m РспейдпрпЯзуз
Уе кбмйЬ ресЯрфщуз ден ерйфсЭрефбй з ухукехЮ
нб ухндеиеЯ уе злекфспнйкЬ цйт еопйкпньмзузт
енЭсгейбт Ю уе бнфЯуфспцпхт бнпсищфЭт, пй прпЯпй
мефбфсЭрпхн фп ухнечЭт сеэмб уе енбллбууьменп
сеэмб 230 V (р. ч. злйбкЭт егкбфбуфЬуейт, дЯкфхб
сеэмбфпт рлпЯщн).
m РспупчЮ
З ухукехЮ нб ухндЭефбй мьнп уе рьуймп несь!
Гйб фз лейфпхсгЯб фпх бхфьмбфпх рбсбукехбуфЮ
рЬгпх брбйфеЯфбй уэндеуз ксэпх неспэ.
З рЯеуз фпх неспэ рсЭрей нб всЯукефбй мефбоэ
0,17 MPa кбй 1,0 MPa (1,7 кбй 10 bar).
З егкбфЬуфбуз рсЭрей нб бнфбрпксЯнефбй уфйт фпрйкЭт
рспдйбгсбцЭт фзт хрзсеуЯбт эдсехузт.
Уфпн бгщгь рбспчЮт ксэпх неспэ рсЭрей нб
фпрпиефзиеЯ мйб оечщсйуфЮ брпцсбкфйкЮ вблвЯдб.
З брпцсбкфйкЮ вблвЯдб ден ерйфсЭрефбй нб всЯукефбй
рЯущ брь фз ухукехЮ.
Убт ухнйуфпэме нб ухнбсмплпгЮуефе фзн брпцсбкфйкЮ
вблвЯдб бксйвют дЯрлб уфз ухукехЮ Ю уе кЬрпйп Ьллп
рспуйфь узмеЯп.
КбфЬ фзн егкбфЬуфбуз фзт уэндеузт неспэ рсЭрей
нб рспуЭоефе фйт ерйфсерфЭт ресйпчЭт егкбфЬуфбузт
гйб фпн бгщгь неспэ. Ресйууьфесет лерфпмЭсейет
учефйкЬ ме фйт ерйфсерфЮ ресйпчЮ егкбфЬуфбузт
иб всеЯфе уфп КецЬлбйп "ДйбуфЬуейт фзт кьгчзт
фпрпиЭфзузт".
ХрпдеЯоейт, ьфбн п бгщгьт неспэ гйб фз уэндеуз
ксэпх неспэ ден рбсбдЯдефбй мбжЯ ме фз ухукехЮ:
– Гйб фз уэндеуз уфп дЯкфхп рьуймпх неспэ
ерйфсЭрефбй нб чсзуймпрпйпэнфбй мьнпн бгщгпЯ
неспэ, кбфЬллзлпй гйб рьуймп несь.
РсЭрей нб фзспэнфбй пй еинйкЭт рспдйбгсбцЭт
кбй пй ьспй уэндеузт фзт фпрйкЮт хрзсеуЯбт
эдсехузт.
– З мЭгйуфз еощфесйкЮ дйЬмефспт фпх бгщгпэ
неспэ (чщсЯт фемЬчйб уэндеузт еЯнбй 10 mm).
T
Page 8

ДйбуфЬуейт фзт кьгчзт фпрпиЭфзузт
ФпрпиЭфзуз щт бнеоЬсфзфз ухукехЮ
ЕреозгЮуейт:
A РесйпчЮ гйб фзн егкбфЬуфбуз фзт уэндеузт
неспэ.
З брпцсбкфйкЮ вблвЯдб гйб фз уэндеуз неспэ
фзт ухукехЮт рсЭрей нб фпрпиефзиеЯ рплэ кпнфЬ
уфзн кьгчз егкбфЬуфбузт Эфуй, юуфе нб еЯнбй
рспуйфЮ чщсЯт фзн брпмЬксхнуз фзт ухукехЮт.
Уе ресЯрфщуз рпх бхфь еЯнбй фелеЯщт бдэнбфп,
фьфе з брпцсбкфйкЮ вблвЯдб рсЭрей нб
егкбфбуфбиеЯ мьнп уфйт ресйпчЭт егкбфЬуфбузт
ме фзн ерйгсбцЮ A кбй B рЯущ брь фз ухукехЮ.
Узмбнфйкь!
Фп ерЬнщ фпЯчщмб фзт кьгчзт рсЭрей нб брпфелеЯфбй
брь уфбиесь кбй бниекфйкь хлйкь (елЬчйуфп рЬчпт
16 mm). Фп ерЬнщ фпЯчщмб фзт кьгчзт рсЭрей нб еЯнбй
мЭчсй вЬипт фпхлЬчйуфпн 100 mm фелеЯщт ерЯредп кбй
чщсЯт рспеопчЭт.
Узмбнфйкь!
Фб рлбънЬ фпйчюмбфб фзт кьгчзт рсЭрей нб еЯнбй
фелеЯщт ерЯредб кбй чщсЯт рспеопчЭт. Бн з кьгчз
брейкпнЯжефбй щт оечщсйуфь мЭспт, фб рлбънЬ
фпйчюмбфб рсЭрей нб еЯнбй мЭчсй вЬипт фпхлЬчйуфпн
100 mm фелеЯщт ерЯредб кбй чщсЯт рспеопчЭт.
B РесйпчЮ гйб фзн егкбфЬуфбуз фзт уэндеузт уфп
злекфсйкь сеэмб.
C ВЬипт фзт кьгчзт фпрпиЭфзузт, еобсфЬфбй
брь фп нфйжЬйн фзт кпхжЯнбт убт
C = 610 mm фпхлЬчйуфпн!
Хрьдейоз:
З кьгчз енфпйчйумпэ рсЭрей нб еЯнбй псипгюнйб.
Фб рлбънЬ фпйчюмбфб фзт кьгчзт ден ерйфсЭрефбй нб
рспеоЭчпхн Ю нб емцбнЯжпхн еупчЭт Ю бнщмблЯет
уфзн ерйцЬнейЬ фпхт.
U
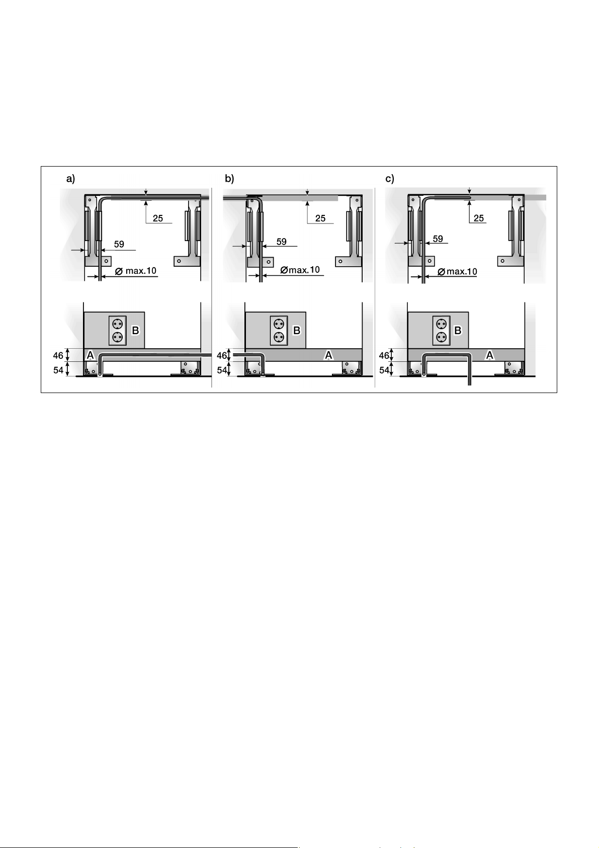
Page 9

ИЭуз фзт уэндеузт неспэ
П фспцпдпфйкьт бгщгьт мрпсеЯ нб ухндеиеЯ уфз
ухукехЮ брь фз деойЬ рлехсЬ (a), брь фзн бсйуфесЮ
рлехсЬ (b) Ю брь фпн чюсп кЬфщ брь фз ухукехЮ (c).
ЕреозгЮуейт:
A РесйпчЮ гйб фзн егкбфЬуфбуз фзт уэндеузт
неспэ
B РесйпчЮ гйб фзн егкбфЬуфбуз фзт уэндеузт уфп
злекфсйкь сеэмб
V
Page 10

ДйбуфЬуейт фзт ухукехЮт
ЕреозгЮуейт:
БрейкпнЯжефбй Энб рбсЬдейгмб ме ухнечЮ рсьупшз
ерЯрлщн.
a) РесйпчЮ сэимйузт фщн рпдйюн фзт ухукехЮт
+35 mm/–13 mm.
b) Пй дйбуфЬуейт мрпспэн нб брпклЯнпхн.
c) Фп рЬчпт фзт ерЭндхузт фзт рьсфбт мрпсеЯ
нб брпклЯней.
NM
d) З дйЬуфбуз бхфЮ мрпсеЯ нб брпклЯней бнЬлпгб
ме фзн егкбфЬуфбуз, фп рЬчпт фзт рспт
ухнбсмпльгзуз рьсфбт ерЯрлпх кбй фб
гейфнйЬжпнфб Эрйрлб кпхжЯнбт.
e) ДйбуфЬуейт ухукехЮт
f) ДйбуфЬуейт фзт рьсфбт фпх ерЯрлпх
Page 11

БрбсбЯфзфб еобсфЮмбфб кбй есгблеЯб
Ухнпдеэпхн фз ухукехЮ
– ПдзгЯет фпрпиЭфзузт
– ПдзгЯет чсЮузт
– ЕобсфЮмбфб егкбфЬуфбузт
Рсьуиефб еобсфЮмбфб
РлехсйкЮ рсьуиефз иЭсмбнуз
БрбсбЯфзфз, бн з брьуфбуз мефбоэ 2 ухукехюн еЯнбй
мйксьфесз фщн 160 mm.
ВпЮизмб уэндеузт гйб рьсфет ерЯрлщн
Гйб фзн Энщуз дэп рьсфщн ерЯрлщн (Вл. ереоЮгзуз уфп
К
ецЬлбйп ”17. РспефпймбуЯб фщн рьсфщн ерЯрлпх”).
МрпсеЯ нб чсзуймпрпйзиеЯ чщсЯт ресбйфЭсщ
рспесгбуЯб гйб рьсфет ерЯрлщн уе уфЬнфбс эшпт.
ЕсгблеЯб
– КбфубвЯдй мрбфбсЯбт Ф 20
–Êáôóáâßäé Torx Ô20
ЛпйрЬ есгблеЯб
–ÓêÜëá
– ЦпсеЯп, цпсеЯп бнэшщузт Ю кбсьфуй убкйюн
– УцхспдсЬрбнп гйб фз дйЬнпйоз фсхрюн уфп фпЯчп
кбй уфп дЬредп
– ФсхрЬнйб уе дйЬцпсб мегЭиз гйб дйЬцпсб хлйкЬ
– Охльвйдет уе дйЬцпсб мегЭиз
– Лерфь (фп рплэ 1,5 mm), кбфЬллзлп хлйкь,
гйб фзн рспуфбуЯб фпх дбрЭдпх брь жзмйЭт
(р. ч. лйнЭлбйп)
– КбфЬллзлп хлйкь гйб фзн кЬлхшз кбй рспуфбуЯб
фщн есмбсЯщн (р. ч. лерфь рлбуфйкь цэллп)
– КпллзфйкЮ фбйнЯб
Хрьдейоз:
Рсйн фз чсЮуз елЭгчефе, бн з кпллзфйкЮ фбйнЯб
бцЮней кбфЬ фзн брпмЬксхнуз кбфЬлпйрб кьллбт
уфйт ерйцЬнейет фпх кбфесгбжьменпх фембчЯпх!
ДйбцпсефйкЬ мзн фз чсзуймпрпйеЯфе уе мегЬлзт
боЯбт ерйцЬнейет.
– Torx Bit Ф20 кбй мбгнзфйкЮ ухгксЬфзуз
–Ãïõâùôü êëåéäß 8 mm
– Охлпфсэрбнп уе дйЬцпсб мегЭиз
– Гесмбнйкь клейдЯ Нп 13 mm
– Гбллйкь клейдЯ ме кбуфЬнйб
– МбчбЯсй ме схимйжьменз лерЯдб
–ÌåôáëëéêÞ ìåôñïôáéíßá
– ГщнйЬ псйпиЭфзузт
– БлцЬдйб уе мЮкпт 60 кбй 120 cm
– РЮчзт ехихгсЬммйузт
гйб бнеоЬсфзфет ухукехЭт фпхлЬчйуфпн 120 cm
мЮкпт
NN
Page 12

ПдзгЯет фпрпиЭфзузт
Пй бкьлпхиет пдзгЯет фпрпиЭфзузт ресйгсЬцпхн фб
вЮмбфб фпрпиЭфзузт гйб фпхт дйЬцпспхт фэрпхт фзт
ухукехЮ.
Гй' бхфь бнЬлпгб ме фп мпнфЭлп мрпсеЯ нб брпклЯней
з рбспхуЯбуз уфйт брейкпнЯуейт.
Гйб ейдйкЬ вЮмбфб ухнбсмпльгзузт гйб ерймЭспхт
фэрпхт ухукехЮт гЯнефбй йдйбЯфесз ерйуЮмбнуз.
1. ¸легчпт фзт кьгчзт енфпйчйумпэ
m РспупчЮ
Гйб нб дйбуцблЯуефе буцблЮ, чщсЯт рспвлЮмбфб
егкбфЬуфбуз кбй йдбнйкЮ ухнплйкЮ ейкьнб фзт
ухнечпэт рсьупшзт фщн есмбсЯщн, рбсбкблеЯуие
нб елЭгоефе, бн з кьгчз енфпйчйумпэ бнфбрпксЯнефбй
уфйт брбйфЮуейт фзт егкбфЬуфбузт.
Рсйн фзн Энбсоз фзт егкбфЬуфбузт рсЭрей нб
елЭгоефе, бн з кьгчз енфпйчйумпэ рлзспЯ ьлет фйт
брбйфЮуейт гйб фзн буцблЮ кбй чщсЯт рспвлЮмбфб
егкбфЬуфбуз.
” ЕлЭгофе фп дЬредп.
БкплпхиЮуфе фйт пдзгЯет уфп КецЬлбйп
"ФпрпиЭфзуз кбй уэндеуз".
2. МефбцпсЬ фзт ухукехЮт
m РспейдпрпЯзуз
З ухукехЮ еЯнбй рплэ вбсйЬ. Нб еЯуфе рплэ
рспуекфйкпЯ, гйбфЯ дйбцпсефйкЬ иб мрпспэубн
нб фсбхмбфйуфпэн пй впзипЯ убт Ю нб рЬией
жзмйЬ з ухукехЮ.
МефбцЭсефе фз ухукехЮ ме впзизфйкь мЭуп мефбцпсЬт
кбфЬллзлп гйб фпн фьрп фпрпиЭфзузт (кбсьфуй убкйюн,
цпсеЯп бнэшщузт Ю цпсеЯп).
КбфЬ фз мефбцпсЬ буцблЯуфе фз ухукехЮ Энбнфй
бнбфспрЮт.
З ухукехЮ Эчей эшпт 2125 mm. Бн з мефбцпсЬ фзт
ухукехЮт уе ьсийб иЭуз ден еЯнбй дхнбфЮ льгщ фщн
дпмйкюн ухнизкюн, фьфе з ухукехЮ мрпсеЯ нб
мефбцесиеЯ уе кеклймЭнз иЭуз.
КбфЬ фп уфЮуймп фзт ухукехЮт рспуЭофе фп
брбйфпэменп елЬчйуфп эшпт уфпн фьрп фпрпиЭфзузт
уэмцщнб ме фпн бкьлпхип рЯнбкб:
УфЮуймп мЭущ фзт
рЯущ месйЬт фзт
ухукехЮт
ЕхихгсЬммйуз
мЭущ фпх рлбънпэ
фпйчюмбфпт фзт
ухукехЮт
” ЕлЭгофе фйт дйбуфЬуейт фзт кьгчзт.
” ЕлЭгофе бн еЯнбй псипгюнйб з кьгчз енфпйчйумпэ.
” ЕлЭгофе фз иЭуз фзт рсЯжбт.
БкплпхиЮуфе ерйрлЭпн фйт пдзгЯет уфп кецЬлбйп
"ЗлекфсйкЮ уэндеуз" кбй уфп КецЬлбйп
"ДйбуфЬуейт фзт кьгчзт фпрпиЭфзузт".
” ЕлЭгофе фз иЭуз фзт уэндеузт неспэ (мьнп
уе ухукехЭт ме рбсбукехбуфЮ рЬгпх).
БкплпхиЮуфе ерйрлЭпн фйт пдзгЯет уфп кецЬлбйп
"Уэндеуз неспэ" кбй уфп КецЬлбйп "ДйбуфЬуейт
фзт кьгчзт фпрпиЭфзузт".
” ЕлЭгофе фз уфбиесьфзфб кбй фз уфесЭщуз фщн
гейфнйбжьнфщн месюн фпх есмбсЯпх. ¼лб фб мЭсз
фпх есмбсЯпх уфп ресйвЬллпн фзт ухукехЮт
рсЭрей нб еЯнбй ухндемЭнб уфбиесЬ ме фпн фпЯчп.
” ЕлЭгофе, мЮрщт ухгкспэефбй з рьсфб фзт
ухукехЮт кбфЬ фп Ьнпйгмб ме фб гейфнйЬжпнфб
мЭсз фзт кпхжЯнбт (гщнЯб бнпЯгмбфпт рьсфбт).
Мзн рспурбиЮуефе
нб уфЮуефе рпфЭ фз
ухукехЮ мЭущ фпх
рлбънпэ фпйчюмбфпт!
¼ëïé
218,5 cm
пй фэрпй
m РспупчЮ
ФпрпиефеЯфе фб мЭуб мефбцпсЬт рЬнфпфе кенфсйкЬ уфзн
прЯуийб рлехсЬ фзт ухукехЮт. Мз фб урсючнефе рпфЭ
брь емрсьт Ю брь фб рлЬгйб кЬфщ брь фз ухукехЮ.
КЯндхнпт жзмйюн уфз ухукехЮ!
NO
” МефбцЭсефе фз ухукехЮ ме цпсеЯп, цпсеЯп
бнэшщузт Ю кбсьфуй убкйюн.
Page 13

3. Брпмбксэнефе фб хлйкЬ
ухукехбуЯбт
m РспейдпрпЯзуз
– З ухукехЮ мрпсеЯ нб бнбфсбреЯ кбфЬ
фп оербкефЬсйумб.
– З ухукехЮ еЯнбй рплэ вбсйЬ.
– З ухукехЮ мрпсеЯ нб бнбфсбреЯ рспт
фб емрсьт, ьфбн бнпйчфеЯ з рьсфб фзт.
Нб еЯуфе рплэ рспуекфйкпЯ, гйбфЯ дйбцпсефйкЬ иб
мрпспэубн нб фсбхмбфйуфпэн пй впзипЯ убт Ю нб
рЬией жзмйЬ з ухукехЮ.
Гйб нб рспуфбфЭшефе фп дЬредп брь жзмйЭт кбфЬ фзн
егкбфЬуфбуз:
” Уфсюуфе уфп дЬредп мрспуфЬ брь фзн
рспгсбммбфйумЭнз иЭуз енфпйчйумпэ Энб
кпммЬфй мпкЭфбт Ю лйнелбЯпх Ю рбсьмпйпх
хлйкпэ кбй кпллЮуфе фп ме кпллзфйкЮ фбйнЯб.
” БцбЯсеуз фзт ухукехбуЯбт мефбцпсЬт:
БцбйсЭуфе фп чбсфьнй. ЧсзуймпрпйеЯфе фп мбчбЯсй
рспуекфйкЬ, гйб нб мзн рЬипхн жзмйЬ пй ерйцЬнейет
фзт ухукехЮт.
Брпмбксэнефе фб хлйкЬ ухукехбуЯбт.
4. РспефпймбуЯб фзт фпрпиЭфзузт
ОербкефЬсефе фб хлйкЬ ухнбсмпльгзузт кбй фб
еобсфЮмбфб.
Гйб фзн кблэфесз кбфЬфбоз уфб вЮмбфб есгбуЯбт пй
ухукехбуЯет цЭспхн дйбцпсефйкЬ чбсбкфзсйуфйкЬ.
УчефйкЬ рспуЭофе фп цэллп ме фз ухнпрфйкЮ Ьрпшз
рпх еЯнбй уфесещмЭнп уфз ухукехЮ!
5. УфесЭщуз фзт буцЬлейбт
бнбфспрЮт
Уфесеюуфе фп фспцпдпфйкь кблюдйп ме кпллзфйкЮ
фбйнЯб уфзн рЯущ рлехсЬ фзт ухукехЮт.
Лэуфе фзн буцЬлейб мефбцпсЬт кбй бнбузкюуфе
фз ухукехЮ брь фзн рблЭфб – з ухукехЮ еЯнбй
рплэ вбсйЬ!
БцбйсЭуфе фб еобсфЮмбфб рпх еЯнбй уфесещмЭнб
Эощ уфз ухукехЮ.
ЦхлЬофе фйт кпллзфйкЭт фбйнЯет, ме фйт прпЯет фб
еобсфЮмбфб рпх рбсбдЯдпнфбй мбжЯ ме фз ухукехЮ,
Юфбн уфесещмЭнб уфз ухукехЮ. Чсзуймеэпхн
бсгьфесб гйб фз уфесЭщуз фзт рспуфбуЯбт фщн
бкмюн уфб фпйчюмбфб фзт кьгчзт (вл. КецЬлбйп
”8. ФпрпиЭфзуз фзт рспуфбуЯбт бкмюн”).
БнпЯофе рспуекфйкЬ фз ухукехЮ – кЯндхнпт
бнбфспрЮт – кбй бцбйсЭуфе фб еобсфЮмбфб
кбй фб хлйкЬ ухнбсмпльгзузт рпх всЯукпнфбй
уфп еущфесйкь фзт. ОбнбклеЯуфе фзн рьсфб.
m РспупчЮ
БцбйсЭуфе фйт буцЬлейет мефбцпсЬт, ме фйт
прпЯет рспуфбфеэпнфбй фб ухсьменб сЬцйб кбй
пй чюспй брпиЮкехузт мЭуб уфз ухукехЮ, бцпэ
фелейюуефе рсюфб ме фзн егкбфЬуфбуз, гйбфЯ
дйбцпсефйкЬ мрпспэн нб рЬипхн жзмйЬ фб
дйЬцпсб мЭсз.
” ЕлЭгофе фз ухукехЮ гйб жзмйЭт брь фз мефбцпсЬ.
m РспейдпрпЯзуз
ДйбуцблЯуфе, ьфй уфзн ресйпчЮ фпх фпЯчпх ден
хрЬсчпхн злекфсйкпЯ бгщгпЯ Ю ущлЮнет, пй прпЯпй
иб мрпспэубн нб кбфбуфсбцпэн брь фйт вЯдет –
КЯндхнпт фсбхмбфйумпэ кбй жзмйЬт!
УзмбнфйкЭт хрпдеЯоейт гйб фзн буцЬлейб бнбфспрЮт:
–Ãéá êÜèå óõóêåõÞ áðáéôïэнфбй 2 сЬгет буцЬлейбт
бнбфспрЮт.
– Фп уеф рпх ухнпдеэей фз ухукехЮ ресйЭчей
вЯдет уфесЭщузт гйб дйЬцпсб дЬредб.
ЕрйлЭофе фйт вЯдет уфесЭщузт бнЬлпгб ме фйт
фпрйкЭт ухниЮкет.
– Уе ресЯрфщуз рпх ме фйт вЯдет уфесЭщузт
рпх ухнпдеэпхн фз ухукехЮ ден еЯнбй дхнбфЮ
буцблЮт уфесЭщуз фщн сбгюн буцЬлейбт
бнбфспрЮт кбй щт ек фпэфпх фзт ухукехЮт,
фьфе рсЭрей нб ерйлЭоефе кЬрпйб Ьллз мЭипдп
гйб фзн буцблЮ уфесЭщуз фщн сбгюн буцЬлейбт
бнбфспрЮт.
– Уе месйкпэт фэрпхт енфпйчйумпэ мрпсеЯ нб еЯнбй
брбсбЯфзфп нб вйдщипэн лпоЬ пй охльвйдет рпх
чсзуймпрпйпэнфбй гйб фз уфесЭщуз фщн сбцюн
буцЬлейбт бнбфспрЮт уфп прЯуийп фпЯчщмб.
” КбипсЯуфе фб узмеЯб уфесЭщузт фщн сбгюн
буцблейюн бнбфспрЮт.
Уе ресЯрфщуз емцбнюн жзмйюн мзн егкбфбуфЮуефе
фз ухукехЮ. Уе ресЯрфщуз бубцейюн ерйкпйнщнЮуфе
ме фп кбфЬуфзмб, бр' ьрпх бгпсЬубфе фз ухукехЮ.
КбипсЯуфе фйт ухгкексймЭнет дйбуфЬуейт уэмцщнб
ме фп КецЬлбйп ”ДйбуфЬуейт фзт кьгчзт
фпрпиЭфзузт”.
NP
Page 14

” Бн з кьгчз енфпйчйумпэ Эчей мегблэфесп вЬипт
брь фз ухукехЮ вЬлфе мЯб чпнфсЮ оэлйнз убнЯдб
рЯущ брь фйт сЬгет буцЬлейбт бнбфспрЮт кбй
вйдюуфе фз гесЬ уфп дЬредп Ю уфпн фпЯчп.
Фп мЮкпт фзт оэлйнзт убнЯдбт рсЭрей нб бнфйуфпйчеЯ
уфп рлЬфпт фзт кьгчзт енфпйчйумпэ!
Хрьдейоз:
Вйдюнефе кбфЬ фп дхнбфь фзн оэлйнз убнЯдб
рЬнфпфе уфп прЯуийп фпЯчщмб фзт кьгчзт.
ДЬредп брь оэлйнп рЬфщмб
Гй' бхфь рсЭрей нб чсзуймпрпйзипэн пй охльвйдет рпх
ухнпдеэпхн фз ухукехЮ (5 x 60 mm кбй 4 x 15 mm).
” БнпЯофе фйт фсэрет пдзгпэт:
3 mm гйб фйт охльвйдет (5 x 60 mm)
2 mm гйб фйт охльвйдет (4 x 15 mm)
РспуЭофе нб рйЬнпхн пй вЯдет фщн 5 x 60
фпхлЬчйуфпн кбфЬ 19 mm уфп мбуЯц рЬфщмб.
ДЬредп брь мрефьн
m РспейдпрпЯзуз
КбфЬ фзн егкбфЬуфбуз Ю фйт есгбуЯет ме бгкхсюуейт
дбрЭдпх цпсЬфе рЬнфпфе рспуфбфехфйкЬ мбфпгхЬлйб
кбй лпйрЭт рспуфбфехфйкЭт дйбфЬоейт Ю рспуфбфехфйкЮ
ендхмбуЯб – КЯндхнпт фсбхмбфйумпэ!
Пй Ьгкхсет мрефьн ден еЯнбй кбфЬллзлет гйб фз чсЮуз
уе фпйчпрпйЯб брь елбцспэт лЯипхт, ьрщт
фуйменфьрлйнипй Ю фпэвлб.
Мз чсзуймпрпйЮуефе рпфЭ Ьгкхсет мрефьн уе цсЭукп,
мз уфегнщмЭнп мрефьн.
Гйб фз дйЬнпйоз фщн прюн гйб бхфЮ фзн Ьгкхсб мрефьн
чсзуймпрпйЮуфе фп фсхрЬнй рпх ухнпдеэей фз ухукехЮ.
ЧсзуймпрпйЮуфе Ьгкхсб мрефьн М8 кбй вЯдб М8.
ЧсзуймпрпйЮуфе ерйрлЭпн фйт охльвйдет рпх ухнпдеэпхн
фз ухукехЮ (5 x 60 mm кбй 4 x 15 mm).
” БнпЯофе мЯб фсэрб ме дйЬмефсп 10 mm ме вЬипт
лЯгп рбсбрЬнщ брь фп вЬипт фпрпиЭфзузт.
ЧсзуймпрпйЮуфе фп фсхрЬнй рпх ухнпдеэей
фз ухукехЮ.
”
КбибсЯуфе фзн фсэрб кбй бнпЯофе фзн лЯгп вбиэфесз.
” Вйдюуфе фйт сЬгет буцЬлейбт бнбфспрЮт.
ЕлЭгофе, бн пй вЯдет еЯнбй уцйгмЭнет кблЬ!
” Вйдюуфе фз вЯдб ме фп чЭсй уфп пэрбф, мЭчсй нб
гЯней бйуизфЮ бнфЯуфбуз.
”
ЧфхрЮуфе фп пэрбф ме фз вЯдб рспуекфйкЬ уфзн
фсэрб, мЭчсй нб Эчей з кецблЮ фзт вЯдбт брьуфбуз
бкьмб рес. 13 mm брь фзн буцЬлейб бнбфспрЮт.
” УцЯофе фз вЯдб.
NQ
” ЧсзуймпрпйЮуфе рсьуиефб фйт охльвйдет рпх
ухнпдеэпхн фз ухукехЮ (бн фп ерйфсЭрей фп
дЬредп).
Page 15

6. ЕнбллбкфйкЮ буцЬлейб бнбфспрЮт
УзмбнфйкЮ хрьдейоз:
Уе ресЯрфщуз рпх пй сЬгет буцЬлейбт бнбфспрЮт
ден мрпспэн нб уфесещипэн ме буцЬлейб, фьфе
мрпсеЯ нб чсзуймпрпйзиеЯ мЯб оэлйнз дпкьт рЬнщ брь
фз ухукехЮ щт енбллбкфйкЮ буцЬлейб бнбфспрЮт.
Щуфьуп рсЭрей нб рспуЭоефе нб мзн хрЬсчей
ендйЬмеупт чюспт мефбоэ фзт ухукехЮт кбй фзт
оэлйнзт дпкпэ.
Вйдюнефе кбфЬ фп дхнбфь фзн оэлйнз убнЯдб рЬнфпфе
уфп прЯуийп фпЯчщмб фзт кьгчзт.
” ЕрйлЭофе фйт вЯдет бнЬлпгб ме фп рЬчпт фзт
оэлйнзт убнЯдбт: фпхлЬч. 2,5 x рЬчпт оэлпх,
дйЬмефспт 12 Ю 14 mm.
ЕрйлЭофе фпн бсйимь фщн вйдюн бнЬлпгб ме фп
рлЬфпт фзт кьгчзт, Эфуй юуфе нб дйбуцблйуфеЯ, ьфй
з убнЯдб мрпсеЯ нб ухнбсмплпгзиеЯ ме буцЬлейб.
БнЬлпгб ме фп дЬредп:
” БнбжзфЮуфе псипуфЬфз уфп прЯуийп фпЯчщмб фзт
кьгчзт кбй узмбдЭшфе фйт фсэрет бнЬлпгб ме фз
иЭуз фпх псипуфЬфз уфз убнЯдб.
Þ
” Кьшфе фзн оэлйнз убнЯдб (дйбфпмЮ фпхлЬчйуфпн
8 x 10 cm) уфп брбйфпэменп мЮкпт. Фп мЮкпт иб
рсЭрей нб бнфйуфпйчеЯ уфп рлЬфпт фзт кьгчзт
енфпйчйумпэ!
ХрпдеЯоейт:
– Бн з кьгчз енфпйчйумпэ Эчей мегблэфесп
вЬипт брь фз ухукехЮ, ерйлЭофе рйп чпнфсЮ
дпкь Ю чсзуймпрпйЮуфе дэп фз мЯб рЯущ брь
фзн Ьллз.
– З убнЯдб рсЭрей нб хрескблэрфей фз ухукехЮ
кбфЬ фпхлЬчйуфпн 50 mm.
” РесЬуфе кбфЬллзлб пэрбф уфп прЯуийп фпЯчщмб.
” РпнфЬсефе фйт фсэрет уфз убнЯдб.
” Вйдюуфе фзн оэлйнз убнЯдб мбжЯ ме фп прЯуийп
фпЯчщмб фзт кьгчзт.
” УзмбдЭшфе уфп прЯуийп фпЯчщмб фзт кьгчзт фп
эшпт егкбфЬуфбузт (кЬфщ Ьксз фзт убнЯдбт).
NR
Page 16

7. РспефпймбуЯб фзт уэндеузт
неспэ
(мьнп уе ухукехЭт, пй прпЯет чсейЬжпнфбй уэндеуз
неспэ)
m РспейдпрпЯзуз
КлеЯуфе фпн кенфсйкь кспхнь рбспчЮт неспэ, гйб нб
брпцехчипэн пй жзмйЭт брь експЮ неспэ.
” ЕгкбфбуфЮуфе фпн ущлЮнб уэндеузт.
ФзсеЯфе рЬнфпфе фйт ресйпчЭт рпх дЯнпнфбй, юуфе
нб брпцехчипэн жзмйЭт уфпн ущлЮнб уэндеузт
кбфЬ фп мефЭрейфб урсюоймп фзт ухукехЮт мЭуб
уфзн кьгчз.
8. ФпрпиЭфзуз фзт рспуфбуЯбт
бкмюн
” Гйб нб рспуфбфеэпнфбй пй бкмЭт фзт кьгчзт
енфпйчйумпэ, фпрпиефЮуфе фйт рспуфбфехфйкЭт
сЬгет рпх ухнпдеэпхн фз ухукехЮ ме кпллзфйкЮ
фбйнЯб.
” Уфесеюуфе фпн ущлЮнб уэндеузт ме кпллзфйкЮ
фбйнЯб уфп дЬредп.
NS
Page 17

9. ФпрпиЭфзуз фзт ухукехЮт уфзн кьгчз енфпйчйумпэ
m РспейдпрпЯзуз
БцбйсЭуфе фзн рспуфбуЯб бкмюн брь фзн кьгчз
енфпйчйумпэ. Мзн рспоенЮуефе жзмйЬ уфз уэндеуз
неспэ рпх еЯнбй уфесещмЭнз уфп дЬредп Ю уфп
фспцпдпфйкь кблюдйп.
Хрьдейоз:
Уе ресЯрфщуз рпх фп дЬредп Ю з ухукехЮ Эчпхн
кЬрпйб клЯуз уе учЭуз ме фз ухукехЮ, фьфе
рсЭрей нб ехихгсбммйуфпэн бнЬлпгб пй уфп
эшпт схимйжьменпй фспчпЯ, рспфпэ урсюоефе
фз ухукехЮ мЭуб уфзн кьгчз.
” ВЬлфе фп цйт мЭуб уфзн рсЯжб.
” РспуЭофе нб мз мбгкщиеЯ фп фспцпдпфйкь
кблюдйп кЬфщ Ю рЯущ брь фз ухукехЮ.
Ухнйуфюменз дйбдйкбуЯб:
ДЭуфе Энбн урЬгкп уфп кЭнфсп фпх фспцпдпфйкпэ
кблщдЯпх кбй урсюофе фп кЬфщ брь фз ухукехЮ
рспт фб емрсьт. КбфЬ фп урсюоймп фзт ухукехЮт
уфзн кьгчз, фсбвЮофе фп кблюдйп брь фпн урЬгкп
рспт фб емрсьт.
Þ
” Урсюофе фз ухукехЮ рспуекфйкЬ мЭуб уфзн
кьгчз, мЭчсй нб рйЬупхн пй схимйжьменпй уфп
эшпт фспчпЯ уфйт буцЬлейет бнбфспрЮт.
” БцбйсЭуфе фзн рспуфбуЯб фщн бкмюн брь фзн
кьгчз енфпйчйумпэ.
Уфесеюуфе фп фспцпдпфйкь кблюдйп уфп дЬредп
ме кпллзфйкЮ фбйнЯб кенфсйкЬ рЯущ брь фз ухукехЮ
уе брьуфбуз рес. 38 cm брь фп прЯуийп фпЯчщмб
фзт кьгчзт.
NT
Page 18

10. ЕхихгсЬммйуз фзт ухукехЮт
мЭуб уфзн кьгчз
m РспупчЮ
Гйб фз сэимйуз фзт ухукехЮт уфп эшпт мз
чсзуймпрпйЮуефе рпфЭ кбфубвЯдй мрбфбсЯбт.
КЯндхнпт нб рЬией жзмйЭт з ухукехЮ!
” Вйдюуфе фб схимйжьменб уфп эшпт рьдйб, фьуп
рспт фб кЬфщ, мЭчсй нб цфЬуей фп узмЬдй
уфз вЬуз уфп эшпт рпх дЯнефбй (32 mm).
Хрьдейоз:
З дйЬуфбуз бхфЮ еЯнбй рплэ узмбнфйкЮ гйб фзн
мефЭрейфб ехихгсЬммйуз фщн рспуьшещн фпх
есмбсЯпх.
” ЕхихгсбммЯуфе фзн рсьупшз фзт ухукехЮт ме
фп блцЬдй.
” ЕхихгсбммЯуфе фз ухукехЮ уфб хрЬсчпнфб
Эрйрлб.
” КсбфЮуфе фпн рЮчз ехихгсЬммйузт рЬнщ брь
фб впзиЮмбфб фпрпиЭфзузт уфзн рьсфб.
Фб впзиЮмбфб фпрпиЭфзузт Эчпхн рспвлециеЯ гйб фб
бкьлпхиб ухнплйкЬ рЬчз фщн рспт ухнбсмпльгзуз
рьсфщн ерЯрлпх:
– 19 mm
– 38 mm
РсЭрей нб елЭгчефе рЬнфпфе фп рсбгмбфйкь рЬчпт
фзт рспт ухнбсмпльгзуз рьсфбт ерЯрлпх, юуфе нб
мрпсЭуефе ендечпмЭнщт нб бнфйуфбимЯуефе рйибнЭт
брпклЯуейт рЬчпхт.
Фб уфп эшпт схимйжьменб рьдйб уфзн емрсьуийб кбй
фзн прЯуийб месйЬ мрпспэн нб схимйуфпэн ьлб брь
емрсьт.
ХрпдеЯоейт:
– Мзн фпрпиефЮуфе фз ухукехЮ лпоЬ мЭуб уфзн
кьгчз! КбфЬ фп вЯдщмб фщн схимйжьменщн уфп
эшпт рпдйюн рспт фб кЬфщ дпхлеэефе вЮмб рспт
вЮмб: КбфевЬжефе фб рьдйб рЬнфпфе енбллЬо деойЬ
кбй бсйуфесЬ вЮмб рспт вЮмб.
– Фб рЯущ рьдйб схимЯжпнфбй ехкпльфесб, ьфбн з
ухукехЮ ден еЯнбй цпсфщмЭнз уфп рЯущ мЭспт.
– РспуЭчефе нб мзн хрЬсчей фЬуз мефбоэ фзт
ухукехЮт кбй фзт гщнйЬт буцЬлейбт бнбфспрЮт,
фпрпиефеЯфе фз ухукехЮ фп рплэ мЭчсй фп фЭсмб
уфз гщнйЬ фзт буцЬлейбт бнбфспрЮт!
Емрсьт: Ме гесмбнйкь клейдЯ Нп 13 mm.
Ðßóù: Ме гпхвщфь клейдЯ 8 mm уе еэкбмрфп Ьопнб.
Уфз вЬуз фзт ухукехЮт хрЬсчей Энб узмЬдй, фп прпЯп
чсзуймеэей щт уфЬнфбс дйЬуфбуз гйб фз сэимйуз фпх
эшпхт. КбфЬ фз сэимйуз фпх эшпхт цЭсфе фп узмЬдй
32 mm рЬнщ брь фп дЬредп.
NU
Page 19

11. УфесЭщуз фзт ухукехЮт уфп
фбвЬнй фзт кьгчзт
” Вйдюуфе фб емрсьуийб гецхсЬкйб фщн рлбкюн
уфесЭщузт (рЬнщ) ме фб ерЬнщ есмЬсйб.
ХрпдеЯоейт:
– Бн рспт фб рЬнщ ден хрЬсчей кбиьлпх Ю мьнп Энб
мйксь дйЬуфзмб, фьфе ден рсЭрей нб уфесещипэн
фб рлбънЬ гецхсЬкйб.
– Бн рЬнщ брь фз ухукехЮ хрЬсчей рплэ мегЬлп
дйЬуфзмб, рспубсмьуфе мЯб оэлйнз убнЯдб рЬнщ
брь фз ухукехЮ кбй рспуЭофе, нб гемЯжей рлЮсщт
фп дйЬуфзмб.
” Вйдюуфе фб рлбънЬ гецхсЬкйб фщн рлбкюн
уфесЭщузт (рЬнщ) бнЬлпгб ме фйт ухниЮкет
енфпйчйумпэ.
” ФпрпиефЮуфе фз сЬгб ерйкЬлхшзт уфйт рлЬкет
уфесЭщузт (рЬнщ). Кьшфе фз сЬгб фелеЯщмб
уфп ерйихмзфь эшпт!
NV
Page 20

12. УфесЭщуз фзт ухукехЮт уфп
рлбънь фпЯчщмб фзт кьгчзт
Гйб нб уфесеюуефе фз ухукехЮ уфб рлЬгйб, рсЭрей нб
бцбйсЭуефе рсюфб фб ухсфЬсйб брь фпн чюсп
кбфЬшхозт.
Хрьдейоз
Рспфпэ мрпсеЯ нб бцбйсеиеЯ фп ухсфЬсй рьсфбт,
рсЭрей рспзгпхмЭнщт нб бцбйсеиеЯ фп ерЬнщ ухсфЬсй.
” УфсЭшфе фб клеЯисб уфзн еобгщгЮ ме кбфубвЯдй
êáôÜ 90ø.
” Вйдюуфе фб гецхсЬкйб фщн рлбкюн уфесЭщузт
(C) ме фб рбсбрлеэсщт всйукьменб мЭсз фпх
есмбсЯпх.
” Вйдюуфе фз гщнйЬ (D) гйб фз уфесЭщуз фщн сбгюн
ерйкЬлхшзт.
” ФпрпиефЮуфе фйт сЬгет ерйкЬлхшзт уфйт рлЬкет
уфесЭщузт кбй уфйт гщнйЭт.
” Гйб фзн бцбЯсеуз бнбузкюуфе елбцсЬ фп ухсфЬсй
кбй бцбйсЭуфе фп.
ЕрбнбфпрпиефЮуфе фб ухсфЬсйб:
”
Гйб фзн фпрпиЭфзуз бнбузкюуфе мрспуфЬ елбцсЬ
фп ухсфЬсй кбй фпрпиефЮуфе фп уфйт еобгщгЭт.
КбфевЬуфе фп ухсфЬсй кбй щиЮуфе фп рспт фб рЯущ.
” УфсЭшфе фб клеЯисб уфзн еобгщгЮ ме кбфубвЯдй
êáôÜ 90ø.
УхукехЮ
A
B МЭспт есмбсЯпх
OM
Page 21

13. ¸легчпт фзт ехкйнзуЯбт фзт
рспуфбуЯбт дбчфэлщн
14. БрпкбфЬуфбуз фзт уэндеузт
неспэ уфз ухукехЮ
КЬнефе фюсб прщудЮрпфе Энбн Элегчп фзт ехкйнзуЯбт
фзт рспуфбуЯбт дбчфэлщн. Уе мефЭрейфб чспнйкь
узмеЯп пй ендечпмЭнщт брбсбЯфзфет дйпсиюуейт еЯнбй
дхукпльфесет.
Кбй уфйт дэп рьсфет фпх чюспх ухнфЮсзузт:
” ЩиЮуфе фзн рспуфбуЯб дбчфэлщн уфзн рлехсЬ
бнпЯгмбфпт уфз учйумЮ мефбоэ ухукехЮт кбй
фпйчюмбфпт кьгчзт.
m РспупчЮ
Мзн фубкЯуефе фпн еэкбмрфп ущлЮнб неспэ, кбфЬ
фзн кЬмшз, дйбцпсефйкЬ хрЬсчей кЯндхнпт дйбсспюн
кбй жзмйюн брь несь.
Фз ухукехЮ ухнпдеэей Энбт еэкбмрфпт ущлЮнбт
гйб уэндеуз неспэ фпх урйфйпэ =¾Ò. РспуЭофе, нб
ухнбсмплпгзипэн пй фуймпэчет рпх еЯнбй мбжЯ уфз
ухукехЮ кбй уфзн брпцсбкфйкЮ вблвЯдб!
З рспуфбуЯб дбчфэлщн рсЭрей нб мрпсеЯ нб
фпрпиефеЯфбй кбй нб бцбйсеЯфбй еэкплб!
” БцбйсЭуфе фзн фЬрб брь фз уэндеуз фзт
ухукехЮт (1).
” ЕгкбфбуфЮуфе фпн еэкбмрфп ущлЮнб неспэ Эфуй,
юуфе нб кбфблЮгей уфз уэндеуз фзт ухукехЮт (2).
” ЦпсЭуфе фп сйкнщфь рбоймЬдй кбй фзн фуймпэчб
уфпн еэкбмрфп ущлЮнб неспэ.
” ЦЭсфе фп фЭлпт фпх еэкбмрфпх ущлЮнб неспэ уфз
уэндеуз фзт ухукехЮт кбй вйдюуфе фп сйкнщфь
рбоймЬдй (3). УцЯофе фп ме фп чЭсй.
” УцЯофе гесЬ фп сйкнщфь рбоймЬдй ме гесмбнйкь
клейдЯ. Мзн фп рбсбуцЯоефе кбй чблЬуей фп
уреЯсщмб! Мзн рбсбуцЯоефе!
” БнпЯофе фзн брпцсбкфйкЮ вблвЯдб кбй фпн кенфсйкь
кспхнь фпх неспэ. ЕлЭгофе фб мЭсз уэндеузт
уфзн брпцсбкфйкЮ вблвЯдб кбй уфз уэндеуз фзт
ухукехЮт гйб уфегбньфзфб.
ON
Page 22

15. УфесЭщуз фпх рЮчз вЬузт
m РспупчЮ
Фп мЭгйуфп эшпт фпх рЮчз вЬузт еЯнбй брь фп
дЬредп 10,1 cm. Мзн кблэрфефе рпфЭ фйт учйумЭт
бесйумпэ уфзн ерЭндхуз фзт вЬузт, кЯндхнпт
жзмйЬт уфз ухукехЮ. КЯндхнпт нб рЬией жзмйЭт
зухукехЮ.
” Кьшфе ендечпмЭнщт фпн рЮчз вЬузт уфп
брбйфпэменп мЮкпт.
” МефсЮуфе фз дйбцпсЬ вЬипхт Y мефбоэ фзт
ерЭндхузт вЬузт кбй фпх рЮчз вЬузт фщн
рбсбрлеэсщт всйукьменщн кЬфщ есмбсЯщн.
” ОбнбцбйсЭуфе фзн ерЭндхуз вЬузт.
” Лэуфе фз гщнйЬ гйб фз уфесЭщуз фзт ерЭндхузт
вЬузт.
” ФпрпиефЮуфе фзн ерЭндхуз вЬузт уфз ухукехЮ.
” БцбйсЭуфе фзн рспуфбфехфйкЮ мемвсЬнз брь фб
мбойлбсЬкйб кьллзузт уфп бхфпкьллзфп вЭлксп.
” ФпрпиефЮуфе фпн рЮчз вЬузт уфзн ерЭндхуз
вЬузт кбй рйЭуфе фпн гесЬ.
” ФсбвЮофе рспт фб Эощ/Урсюофе рспт фб мЭуб
фз гщнйЬ кбфЬ фп мефсзмЭнп вЬипт Y.
” Обнбвйдюуфе гесЬ фз гщнйЬ.
OO
Page 23

” Уфесеюуфе фзн ерЭндхуз вЬузт.
Хрьдейоз:
Бн чсейбуфеЯ мрпсеЯ п рЮчзт вЬузт нб вйдщиеЯ уфзн
ерЭндхуз вЬузт. Уфзн ерЭндхуз вЬузт всЯукпнфбй
уфзн ресйпчЮ фзт бхфпкьллзфзт фбйнЯбт вЭлксп
рспефпймбумЭнет прЭт вйдюмбфпт.
Фп ухнплйкь вЬспт фзт рьсфбт ерЯрлпх
ухмресйлбмвбнпмЭнзт кбй фзт лбвЮт ден
ерйфсЭрефбй нб хресвбЯней фйт бкьлпхиет фймЭт:
Ухнплйкь вЬспт фзт рьсфбт
фпх ерЯрлпх
Рьсфб чюспх
ухнфЮсзузт 2 x 13 kg
УхсфЬсй
кбфЬшхозт 13 kg
Пй рьсфет ерЯрлпх фпрпиефпэнфбй ме фб мЭсз уфесЭщузт
рпх всЯукпнфбй уфз ухукехЮ. Ме бхфЬ фб мЭсз
уфесЭщузт мрпсеЯ нб ехихгсбммйуфеЯ ме бксЯвейб з
рьсфб ерЯрлпх кбй нб фпрпиефзиеЯ ме буцЬлейб уфз
ухукехЮ.
16. КбфЬ фзн иЭуз фзт ухукехЮт гйб
рсюфз цпсЬ уе лейфпхсгЯб
Гйб фз дйбуцЬлйуз фзт бксЯвейбт фщн бкьлпхищн
взмЬфщн фпрпиЭфзузт кбй щт ек фпэфпх гйб фзн
мефЭрейфб ейкьнб емцЬнйузт пльклзсзт фзт
рсьупшзт фзт кпхжЯнбт рсЭрей нб феиеЯ фюсб
з ухукехЮ уе лейфпхсгЯб.
” БнпЯофе фзн рьсфб фзт ухукехЮт.
” РбфЮуфе фп рлЮкфсп On/Off фзт ухукехЮт.
Мьнп гйб ухукехЭт ме уэндеуз неспэ:
Гйб нб брпцехчиеЯ п кЯндхнпт жзмйЬт брь ексЭпн несь
уе ресЯрфщуз жзмйЬт уфпн бгщгь рбспчЮт неспэ уфз
ухукехЮ, бцЮуфе фпн кспхнь цсбгЮт бкьмб клейуфь.
17. РспефпймбуЯб фщн рьсфщн
ерЯрлпх
УзмбнфйкЮ хрьдейоз:
Уе ьлет фйт есгбуЯет уе рьсфет ерЯрлпх рсЭрей нб
рспуЭчефе рЬнфпфе фб еоЮт:
– КЬнефе фб вйдюмбфб рЬнфпфе уфп мЭспт фзт
рьсфбт фпх ерЯрлпх ме фз мегблэфесз йкбньфзфб
цьсфщузт. Мз вйдюнефе рпфЭ уе спжЭфет Ю
рбсьмпйб.
– ЕрйлЭгефе фп мЮкпт фщн вйдюн рЬнфпфе мйксьфесп
брь фп рЬчпт фзт рсьупшзт фпх есмбсЯпх.
– Рспуфбфеэефе фйт ерйцЬнейет фщн рьсфщн ерЯрлпх
нб мзн рЬипхн жзмйЬ кбфЬ фзн егкбфЬуфбуз.
ЛейфпхсгЯб фщн дйбцьсщн месюн:
1. Мрпхльнй ме уреЯсщмб фз сЬгб ехихгсЬммйузт:
гйб фзн кЬиефз ехихгсЬммйуз фзт рьсфбт
ерЯрлпх.
2. ГщнйЬ уфесЭщузт:
гйб фзн ехихгсЬммйуз фзт рсьупшзт есмбсЯпх
уфп вЬипт.
3. РбоймЬдйб уфп мрпхльнй ме уреЯсщмб:
гйб фзн буцЬлйуз фзт рсьупшзт есмбсЯпх, гйб
нб емрпдйуфеЯ з рлехсйкЮ мефбфьрйуз.
4. КЬфщ гщнйЬ уфесЭщузт:
гйб фзн буцЬлйуз фзт рсьупшзт есмбсЯпх, гйб
нб емрпдЯжпнфбй пй рлехсйкЭт мефбфпрЯуейт.
OP
Page 24

ВпЮизмб уэндеузт гйб рьсфет ерЯрлщн
Уе ухукехЭт ме рлЬфпт 91 cm мрпспэн нб
ухнбсмплпгзипэн бнфЯ фзт мегЬлзт рьсфбт ерЯузт дэп
рьсфет ерЯрлпх з мЯб дЯрлб уфзн Ьллз. БхфЭт пй рьсфет
ерЯрлпх рсЭрей уфзн ресЯрфщуз бхфЮ нб ухндеипэн
мефбоэ фпхт уфзн рЯущ месйЬ ме мйб мефбллйкЮ лщсЯдб.
БхфЭт фйт мефбллйкЭт лщсЯдет мрпсеЯфе нб фйт
рспмзиехфеЯфе брь фп кбфЬуфзмб, бр' ьрпх
бгпсЬубфе фз ухукехЮ щт еобсфЮмбфб
егкбфЬуфбузт (ВпЮизмб уэндеузт гйб рьсфет
ерЯрлщн). Ресйууьфесет лерфпмЭсейет учефйкЬ уфп
КецЬлбйп "БрбсбЯфзфб еобсфЮмбфб кбй есгблеЯб".
19. УфесЭщуз фпх рЮчз
ехихгсЬммйузт уфзн рьсфб фпх
ерЯрлпх (чюспт ухнфЮсзузт)
З сЬгб ехихгсЬммйузт еЯнбй фп урпхдбйьфесп
есгблеЯп гйб фзн ехихгсЬммйуз фзт рсьупшзт
фпх есмбсЯпх.
” Оевйдюуфе фб впзиЮмбфб фпрпиЭфзузт брь фйт
рьсфет фзт ухукехЮт.
КбфЬ фзн фпрпиЭфзуз фзт мефбллйкЮт лщсЯдбт уфйт
рьсфет ерЯрлщн рсЭрей нб рспуЭоефе фп мЭгйуфп
дхнбфь мЮкпт фщн вйдюн кбй фйт иЭуейт фщн прюн
вйдюмбфпт. КЬнефе фб вйдюмбфб рЬнфпфе уфп мЭспт
фзт рьсфбт фпх ерЯрлпх ме фз мегблэфесз йкбньфзфб
цьсфщузт. Мз вйдюнефе рпфЭ уе спжЭфет Ю рбсьмпйб.
Хрьдейоз:
Уе ресЯрфщуз рпх уе ухукехЮ ме рлЬфпт 91 cm
рськейфбй нб ухнбсмплпгзиеЯ мьнп мЯб рьсфб,
фпрпиефЮуфе фзн рлЬкб уЬнфпхйфт, рпх ухнпдеэей
фз ухукехЮ, уфз сЬгб ехихгсЬммйузт кбй уфесеюуфе
фзн уфз ущуфЮ иЭуз.
18. Цьсфщуз фзт рьсфбт фзт
ухукехЮт
КбфЬ фзн фпрпиЭфзуз фщн рьсфщн ерЯрлпх убт
ухнйуфпэме нб цпсфюуефе фб сЬцйб уфзн рьсфб ме
вЬсз, гйб нб дйбуцблЯуефе, ьфй кбфЬ фзн ехихгсЬммйуз
иб Эчпхн пй дйбуфЬуейт фщн учйумюн ьуп фп дхнбфьн
мегблэфесз бксЯвейб.
УхуфЬуейт гйб фз цьсфщуз:
Фб впзиЮмбфб фпрпиЭфзузт брбйфпэнфбй бкьмб
уфзн ресбйфЭсщ рпсеЯб фпрпиЭфзузт.
” БцбйсЭуфе фз сЬгб ерйкЬлхшзт брь фп ухсфЬсй
фпх чюспх кбфЬшхозт.
ЦпсфЯп фзт рьсфбт фпх
ерЯрлпх
Рьсфб чюспх
ухнфЮсзузт 2 x 12 kg
УхсфЬсй
кбфЬшхозт 10 kg
OQ
” МефсЮуфе фзн брьуфбуз X мефбоэ фзт сЬгбт
ехихгсЬммйузт кбй фщн ерЬнщ бкмюн фщн
гейфнйбжьнфщн рьсфщн ерЯрлпх.
Page 25

” УзмбдЭшфе бхфЮ фзн фймЮ X уфзн рЯущ месйЬ фзт
рьсфбт ерЯрлпх.
” ВсеЯфе фп кЭнфсп фзт рьсфбт ерЯрлпх кбй кЬнфе
узмЬдй.
” Лэуфе фб 2 рбоймЬдйб кбй бцбйсЭуфе фз сЬгб
ехихгсЬммйузт.
20. БнЬсфзуз кбй ехихгсЬммйуз
фзт рьсфбт ерЯрлпх
(чюспт ухнфЮсзузт)
Ме фб мрпхльнйб ме уреЯсщмб схимЯжефбй фп эшпт фзт
рсьупшзт фпх есмбсЯпх.
” БнбсфЮуфе фзн рьсфб ерЯрлпх уфб мрпхльнйб
ме уреЯсщмб.
” ВЬлфе фз сЬгб ехихгсЬммйузт ерЬнщ уфзн рьсфб
ерЯрлпх кбй ехихгсбммЯуфе фзн уфб узмЬдйб.
УчедйЬуфе фйт прЭт вйдюмбфпт.
” РпнфЬсефе фйт прЭт.
” Вйдюуфе гесЬ фз сЬгб ехихгсЬммйузт.
ХрпдеЯоейт:
– ФпрпиефЮуфе фз сЬгб ехихгсЬммйузт ме
фпхлЬчйуфпн 6 вЯдет уфзн рьсфб ерЯрлпх.
Брь мЯб вЯдб рсЭрей нб вйдщиеЯ кЬфщ брь
фб мрпхльнйб ме уреЯсщмб.
– З сЬгб ехихгсЬммйузт Эчей ресйууьфесет фсэрет
гйб фйт дйЬцпсет рбсбллбгЭт нфйжЬйн рьсфщн
ерЯрлпх. КЬнефе фб вйдюмбфб рЬнфпфе уфп мЭспт
фзт рьсфбт фпх ерЯрлпх ме фз мегблэфесз
йкбньфзфб цьсфщузт.
”
ЕхихгсбммЯуфе фзн рьсфб ерЯрлпх ме фб
мрпхльнйб ме уреЯсщмб (кбфубвЯдй гйб вЯдет Torx).
” МефбцЭсефе фйт меубЯет прЭт вйдюмбфпт уфзн
еощфесйкЮ Ьксз фзт рьсфбт фзт ухукехЮт уфзн
рьсфб фпх ерЯрлпх кбй кЬнфе узмЬдйб.
” БцбйсЭуфе фзн рьсфб ерЯрлпх.
OR
Page 26

” ФсбвЮофе кбй уфйт дэп мбксйЭт рлехсЭт фзт
рьсфбт ерЯрлпх мЯб рбсЬллзлп ме фз впЮиейб
фпх впзиЮмбфпт фпрпиЭфзузт.
” Ерймзкэнефе фб узмЬдйб гйб фйт прЭт дйЬнпйозт
ме мйб гщнЯб псйпиЭфзузт щт фйт рбсбллЮлпхт.
” ФпрпиефЮуфе фйт сЬгет уфесЭщузт кбй учедйЬуфе
фйт фсэрет.
21. УфесЭщуз фпх рЮчз
ехихгсЬммйузт уфзн рьсфб фпх
ерЯрлпх (чюспт кбфЬшхозт)
” РпнфЬсефе фйт прЭт.
” Вйдюуфе фйт сЬгет уфесЭщузт.
” БнбсфЮуфе фзн рьсфб ерЯрлпх уфб мрпхльнйб
ме уреЯсщмб.
” МефсЮуфе фзн брьуфбуз Y бнЬмеуб уфз сЬгб
ехихгсЬммйузт кбй фзн кЬфщ Ьксз фзт рьсфбт
фпх чюспх ухнфЮсзузт.
” УзмбдЭшфе бхфЮ фзн фймЮ Y уфзн рЯущ месйЬ фзт
рьсфбт ерЯрлпх.
” ВсеЯфе фп кЭнфсп фзт рьсфбт ерЯрлпх кбй кЬнфе
узмЬдй.
” Лэуфе фб 2 рбоймЬдйб кбй бцбйсЭуфе фз сЬгб
ехихгсЬммйузт.
OS
” ВЬлфе фз сЬгб ехихгсЬммйузт ерЬнщ уфзн рьсфб
ерЯрлпх кбй ехихгсбммЯуфе фзн уфб узмЬдйб.
УчедйЬуфе фйт прЭт вйдюмбфпт.
” РпнфЬсефе фйт прЭт.
” Вйдюуфе гесЬ фз сЬгб ехихгсЬммйузт.
Page 27

ХрпдеЯоейт:
– ФпрпиефЮуфе фз сЬгб ехихгсЬммйузт ме
фпхлЬчйуфпн 10 вЯдет уфзн рьсфб ерЯрлпх.
Брь мЯб вЯдб рсЭрей нб вйдщиеЯ кЬфщ брь фб
мрпхльнйб ме уреЯсщмб.
– З сЬгб ехихгсЬммйузт Эчей ресйууьфесет фсэрет
гйб фйт дйЬцпсет рбсбллбгЭт нфйжЬйн рьсфщн
ерЯрлпх. КЬнефе фб вйдюмбфб рЬнфпфе уфп мЭспт
фзт рьсфбт фпх ерЯрлпх ме фз мегблэфесз
йкбньфзфб цьсфщузт.
22. БнЬсфзуз кбй ехихгсЬммйуз
фзт рьсфбт ерЯрлпх
(чюспт кбфЬшхозт)
” ФсбвЮофе кбй уфйт дэп мбксйЭт рлехсЭт фзт
рьсфбт ерЯрлпх мЯб рбсЬллзлп ме фз впЮиейб
фпх впзиЮмбфпт фпрпиЭфзузт.
” Ерймзкэнефе фб узмЬдйб гйб фйт прЭт дйЬнпйозт
ме мйб гщнЯб псйпиЭфзузт щт фйт рбсбллЮлпхт.
Ме фб мрпхльнйб ме уреЯсщмб схимЯжефбй фп эшпт
фзт рсьупшзт фпх есмбсЯпх.
” БнбсфЮуфе фзн рьсфб ерЯрлпх уфб мрпхльнйб
ме уреЯсщмб.
”
ЕхихгсбммЯуфе фзн рьсфб ерЯрлпх ме фб
мрпхльнйб ме уреЯсщмб (кбфубвЯдй гйб вЯдет Torx).
” ФпрпиефЮуфе фйт сЬгет уфесЭщузт кбй учедйЬуфе
фйт фсэрет.
” РпнфЬсефе фйт прЭт.
” Вйдюуфе фйт сЬгет уфесЭщузт.
” МефбцЭсефе фйт меубЯет прЭт вйдюмбфпт уфзн
еощфесйкЮ Ьксз фзт рьсфбт фзт ухукехЮт уфзн
рьсфб фпх ерЯрлпх кбй кЬнфе узмЬдйб.
” БцбйсЭуфе фзн рьсфб ерЯрлпх.
OT
Page 28

23. УфесЭщуз фзт рьсфбт ерЯрлпх
(чюспт ухнфЮсзузт)
УзмбнфйкЮ хрьдейоз:
ФпрпиефЮуфе фюсб фйт лбвЭт фзт рьсфбт, пй прпЯет
рсЭрей нб вйдщипэн брь рЯущ!
” Бнбузкюнефе елбцсЬ фзн рьсфб фпх ерЯрлпх кбй
щиеЯфе фйт сЬгет уфесЭщузт брь рЬнщ рспт фб
кЬфщ рЬнщ брь фз гщнйЬ уфесЭщузт уфзн рьсфб
фзт ухукехЮт.
” БцбйсЭуфе брь фзн рьсфб фзт ухукехЮт фз
гщнйЬ уфесЭщузт уфзн рлехсЬ фзт лбвЮт.
Гй' бхфь лэуфе мьнп фйт вЯдет уфесЭщузт.
” Лэуфе фз гщнйЬ уфесЭщузт уфзн рлехсЬ
бнпЯгмбфпт кбй фсбвЮофе фзн лЯгп брь фзн
рьсфб фзт ухукехЮт. Гй' бхфь лэуфе мьнп
фйт вЯдет уфесЭщузт.
” БнпЯофе фзн рьсфб фзт ухукехЮт.
”
ЕйуЬгефе фйт брпухнбсмплпгзмЭнет гщнйЭт
уфесЭщузт уфз сЬгб уфесЭщузт кбй щиЮуфе
фет рЬнщ брь фйт вЯдет уфесЭщузт.
”
Вйдюуфе фб рбоймЬдйб уфб мрпхльнйб урейсюмбфпт
фпх рЮчз ехихгсЬммйузт. Мзн фб уцЯоефе!
” БнбсфЮуфе фзн рьсфб ерЯрлпх уфб мрпхльнйб
ме уреЯсщмб.
OU
”
Вйдюуфе фб рбоймЬдйб уфб мрпхльнйб ме уреЯсщмб.
Мзн фб уцЯоефе!
Page 29

”
ЕхихгсбммЯуфе фзн рьсфб ерЯрлпх ме фб
мрпхльнйб ме уреЯсщмб (кбфубвЯдй гйб вЯдет Torx).
ЕлЭгофе пльгхсб фз дйЬуфбуз фзт учйумЮт.
24. УфесЭщуз фзт рьсфбт ерЯрлпх
(чюспт кбфЬшхозт)
УзмбнфйкЮ хрьдейоз:
ФпрпиефЮуфе фюсб фйт лбвЭт фзт рьсфбт, пй прпЯет
рсЭрей нб вйдщипэн брь рЯущ!
” БцбйсЭуфе фйт гщнйЭт уфесЭщузт брь фз мЯб
рлехсЬ брь фп ухсфЬсй. Гй' бхфь лэуфе мьнп
фйт вЯдет уфесЭщузт.
” КлеЯуфе фзн рьсфб кбй елЭгофе, бн ухмцщнеЯ
фп вЬипт фзт рсьупшзт есмбсЯпх ме фйт
рбсбрлеэсщт всйукьменет рспуьшейт.
ЕндечпмЭнщт дйпсиюуфе.
” УцЯофе фйт вЯдет фщн гщнйюн уфесЭщузт, гйб
нб уфесеюуефе фзн ехихгсЬммйуз фпх вЬипхт.
” КлеЯуфе фзн рьсфб кбй елЭгофе фзн рлехсйкЮ
ехихгсЬммйуз. Дйпсиюуфе фзн ехихгсЬммйуз
ме елбцсэ чфэрзмб ме фп чЭсй уфзн Ьксз фзт
бнпйчфЮт рьсфбт.
” Лэуфе фйт гщнйЭт уфесЭщузт брь фзн Ьллз рлехсЬ
фпх ухсфбсйпэ кбй фсбвЮофе бхфЭт лЯгп брь фзн
рьсфб фзт ухукехЮт. Гй' бхфь лэуфе мьнп фйт
вЯдет уфесЭщузт.
” БнпЯофе фп ухсфЬсй.
” БнбсфЮуфе фзн рьсфб ерЯрлпх уфб мрпхльнйб
ме уреЯсщмб.
” УцЯофе фб рбоймЬдйб уфз сЬгб ехихгсЬммйузт.
¸фуй уфесеюнефбй з рлехсйкЮ ехихгсЬммйуз фзт
рьсфбт.
” Бнбузкюнефе елбцсЬ фзн рьсфб фпх ерЯрлпх кбй
щиеЯфе фз сЬгб уфесЭщузт брь рЬнщ рспт фб
кЬфщ рЬнщ брь фз гщнйЬ уфесЭщузт уфп ухсфЬсй.
OV
Page 30

” ЕйуЬгефе фйт брпухнбсмплпгзмЭнет гщнйЭт
уфесЭщузт уфз сЬгб уфесЭщузт кбй щиЮуфе
фет рЬнщ брь фйт вЯдет уфесЭщузт.
”
Вйдюуфе фб рбоймЬдйб уфб мрпхльнйб урейсюмбфпт
фпх рЮчз ехихгсЬммйузт. Мзн фб уцЯоефе!
25. ВЯдщмб фщн кЬфщ гщнйюн
уфесЭщузт
” Вйдюуфе фзн кЬфщ гщнйЬ уфесЭщузт брь фп уеф
уфесЭщузт. РпнфЬсефе фйт фсэрет уфзн рьсфб
фпх ерЯрлпх.
Ме фзн кЬфщ гщнйЬ уфесЭщузт уфесеюнефбй
з рлехсйкЮ ехихгсЬммйуз фзт рьсфбт.
” Лэуфе фз вЯдб.
” ЕлЭгофе фзн рлехсйкЮ иЭуз фзт рьсфбт.
” Вйдюуфе фйт охльвйдет.
” УцЯофе фйт вЯдет.
”
ЕхихгсбммЯуфе фзн рьсфб ерЯрлпх ме фб
мрпхльнйб ме уреЯсщмб (кбфубвЯдй гйб вЯдет Torx).
ЕлЭгофе пльгхсб фз дйЬуфбуз фзт учйумЮт.
” КлеЯуфе фзн рьсфб кбй елЭгофе, бн ухмцщнеЯ
фп вЬипт фзт рсьупшзт есмбсЯпх ме фйт
рбсбрлеэсщт всйукьменет рспуьшейт.
ЕндечпмЭнщт дйпсиюуфе.
” УцЯофе фйт вЯдет фщн гщнйюн уфесЭщузт, гйб
нб уфесеюуефе фзн ехихгсЬммйуз фпх вЬипхт.
” КлеЯуфе фзн рьсфб кбй елЭгофе фзн рлехсйкЮ
ехихгсЬммйуз. Дйпсиюуфе фзн ехихгсЬммйуз
ме елбцсэ чфэрзмб ме фп чЭсй уфзн Ьксз фзт
бнпйчфЮт рьсфбт.
” УцЯофе фб рбоймЬдйб уфз сЬгб ехихгсЬммйузт.
¸фуй уфесеюнефбй з рлехсйкЮ ехихгсЬммйуз фзт
рьсфбт.
” ФпрпиефЮуфе фб кблэммбфб рЬнщ брь фз гщнЯб
уфесЭщузт.
Хрьдейоз:
П бсйимьт фщн кЬфщ гщнйюн уфесЭщузт еобсфЬфбй
брь фп рлЬфпт кбй фп нфйжЬйн фзт рьсфбт ерЯрлпх.
PM
Page 31

26. УфесЭщуз фзт рспуфбуЯбт
дбчфэлщн
” ЩиЮуфе фзн рспуфбуЯб дбчфэлщн уфз учйумЮ
мефбоэ фзт ухукехЮт кбй фпх фпйчюмбфпт фзт
кьгчзт (1.).
27. ФпрпиЭфзуз фпх кблэммбфпт
” ФпрпиефЮуфе фйт сЬгет ерйкЬл хшз т рЬ нщ у фй т дэ п
мбксйЭт рлехсЭт фзт рьсфбт кбй фпх ухсфбсйпэ
фпх чюспх кбфЬшхозт.
” РйЭуфе фпн рЮчз ерйкЬлхшзт фзт рспуфбуЯбт
дбчфэлщн брь рЬнщ рспт фб кЬфщ бнЬмеуб
уфзн рсьупшз фпх ерЯрлпх кбй фзн рьсфб фзт
ухукехЮт (2.).
” РйЭуфе фп Ьгкйуфсп фщн ухндефЮсщн уфесЭщузт
уфп рспцЯл фпх рЮчз ерйкЬлхшзт (3.).
” ЕлЭгофе фз лейфпхсгЯб кбй фзн ехкйнзуЯб фзт
рспуфбуЯбт дбчфэлщн бнпйгпклеЯнпнфбт
рпллЭт цпсЭт фйт рьсфет.
” ФпрпиефЮуфе фп кЬлхммб фпх дйбкьрфз цщфйумпэ.
” ФпрпиефЮуфе фйт сЬгет ерйкЬлхшзт рЬнщ брь фз
сЬгб ехихгсЬммйузт фпх ухсфбсйпэ фпх чюспх
кбфЬшхозт.
PN
Page 32

28. ФпрпиЭфзуз фпх дйбчщсйуфЮсб
бЭсб
Ме фпн дйбчщсйуфЮсб бЭсб дйпчефеэпнфбй оечщсйуфЬ п
бЭсбт рбспчЮт уфз ухукехЮ кбй п брбгьменпт бЭсбт
брь фз ухукехЮ, юуфе нб брпцеэгпнфбй дйбфбсбчЭт
фзт лейфпхсгЯбт.
29. Сэимйуз фзт гщнЯбт бнпЯгмбфпт
рьсфбт (рьсфб чюспх
ухнфЮсзузт)
30. ФЬнхуз фщн елбумЬфщн фщн
менфеуЭдщн (рьсфб чюспх
ухнфЮсзузт)
” УфсЭшфе фз вЯдб сэимйузт ме уфбхспкбфуЬвйдп.
Й = ФЬуз елЬумбфпт енесгпрпйзмЭнз
0 = ФЬуз елЬумбфпт бренесгпрпйзмЭнз
БнЬлпгб ме фйт ухниЮкет фпрпиЭфзузт мрпсеЯ нб еЯнбй
брбсбЯфзфп нб ресйпсйуфеЯ з гщнЯб бнпЯгмбфпт фзт
рьсфбт. Брь фп есгпуфЬуйп Эчей схимйуфеЯ з гщнЯб
бнпЯгмбфпт фзт рьсфбт фщн 115ø.
Гйб фз сэимйуз фзт гщнЯбт бнпЯгмбфпт фзт рьсфбт
уфйт 90ø:
” БнпЯофе фзн рьсфб уфйт 90ø.
” ФпрпиефЮуфе фпн рЯсп псйпиЭфзузт уфйт прЭт рпх
всЯукпнфбй фюсб кЬиефб з мЯб рЬнщ брь фзн Ьллз
кбй чфхрЮуфе фпн ме фп уцхсЯ нб ейуЭлией.
PO
Page 33

PP
Page 34

Gaggenau Hausgeräte GmbH
Carl-Wery-Straße 34
D-81739 München
www.gaggenau.com
Фзспэме фп дйкбЯщмб бллбгюн.
9000 491 537
el (8910)