Page 1

AXISP1368-ENetworkCamera
InstallationGuide
Page 2
Page 3

English
EN
France:Français
Deutschland:Deutsch
Italia:Italiano
España:Español
日本:日本語
中文:简体中文
FR
DE
IT
ES
JA
ZH
Page 4

Legalconsiderations
Videoandaudiosurveillancecanberegulatedbylawsthat
varyfromcountrytocountry.Checkthelawsinyourlocal
regionbeforeusingthisproductforsurveillancepurposes.
Thisproductincludesthefollowinglicences:
•one(1)AACdecoderlicense
•one(1)H.264decoderlicense
Topurchasefurtherlicenses,contactyourreseller.
Liability
Everycarehasbeentakeninthepreparationofthis
document.PleaseinformyourlocalAxisofceofany
inaccuraciesoromissions.AxisCommunicationsABcannot
beheldresponsibleforanytechnicalortypographicalerrors
andreservestherighttomakechangestotheproductand
manualswithoutpriornotice.AxisCommunicationsAB
makesnowarrantyofanykindwithregardtothematerial
containedwithinthisdocument,including,butnotlimited
to,theimpliedwarrantiesofmerchantabilityandtnessfor
aparticularpurpose.AxisCommunicationsABshallnot
beliablenorresponsibleforincidentalorconsequential
damagesinconnectionwiththefurnishing,performance
oruseofthismaterial.Thisproductisonlytobeusedfor
itsintendedpurpose.
Intellectualpropertyrights
AxisABhasintellectualpropertyrightsrelatingto
technologyembodiedintheproductdescribedinthis
document.Inparticular,andwithoutlimitation,these
intellectualpropertyrightsmayincludeoneormoreof
thepatentslistedatwww.axis.com/patent.htmandoneor
moreadditionalpatentsorpendingpatentapplicationsin
theUSandothercountries.
Thisproductcontainslicensedthird-partysoftware.See
themenuitem“About”intheproduct’suserinterfacefor
moreinformation.
ThisproductcontainssourcecodecopyrightAppleComputer,
Inc.,underthetermsofApplePublicSourceLicense2.0
(seewww.opensource.apple.com/apsl).Thesourcecodeis
availablefromhttps://developer.apple.com/bonjour/
Equipmentmodications
Thisequipmentmustbeinstalledandusedin
strictaccordancewiththeinstructionsgiveninthe
userdocumentation.Thisequipmentcontainsno
user-serviceablecomponents.Unauthorizedequipment
changesormodicationswillinvalidateallapplicable
regulatorycerticationsandapprovals.
Trademarkacknowledgments
AXISCOMMUNICATIONS,AXISandVAPIXareregistered
trademarksortrademarkapplicationsofAxisABinvarious
jurisdictions.Allothercompanynamesandproductsare
trademarksorregisteredtrademarksoftheirrespective
companies.
Apple,Boa,Apache,Bonjour,Ethernet,InternetExplorer,
Linux,Microsoft,Mozilla,Real,SMPTE,QuickTime,UNIX,
Windows,WindowsVistaandWWWareregistered
trademarksoftherespectiveholders.Javaandall
Java-basedtrademarksandlogosaretrademarksor
registeredtrademarksofOracleand/oritsafliates.
TM
UPnP
isacerticationmarkoftheUPnP
Corporation.
SD,SDHCandSDXCaretrademarksorregisteredtrademarks
ofSD-3C,LLCintheUnitedStates,othercountriesorboth.
Also,miniSD,microSD,miniSDHC,microSDHC,microSDXC
arealltrademarksorregisteredtrademarksofSD-3C,LLC
intheUnitedStates,othercountriesorboth.
TM
Implementers
Regulatoryinformation
Europe
ThisproductcomplieswiththeapplicableCEmarking
directivesandharmonizedstandards:
•ElectromagneticCompatibility(EMC)Directive
2014/30/EU.SeeElectromagneticcompatibility(EMC)
4.
•LowVoltage(LVD)Directive2014/35/EU.SeeSafety5.
•RestrictionsofHazardousSubstances(RoHS)Directive
201 1/65/EU.SeeDisposalandrecycling5.
Acopyoftheoriginaldeclarationofconformitymaybe
obtainedfromAxisCommunicationsAB.SeeContact
information5.
Electromagneticcompatibility(EMC)
Thisequipmenthasbeendesignedandtestedtofulll
applicablestandardsfor:
•Radiofrequencyemissionwheninstalledaccordingto
theinstructionsandusedinitsintendedenvironment.
•Immunitytoelectricalandelectromagneticphenomena
wheninstalledaccordingtotheinstructionsandused
initsintendedenvironment.
USA
Thisequipmenthasbeentestedusinganunshielded
networkcable(UTP)andfoundtocomplywiththelimits
foraClassAdigitaldevice,pursuanttopart15oftheFCC
rules.Thisequipmenthasalsobeentestedusingashielded
networkcable(STP)andfoundtocomplywiththelimitsfor
aClassAdigitaldevice,pursuanttopart15oftheFCCrules.
Theselimitsaredesignedtoprovidereasonableprotection
againstharmfulinterferencewhentheequipmentis
operatedinacommercialenvironment.Thisequipment
generates,uses,andcanradiateradiofrequencyenergy
and,ifnotinstalledandusedinaccordancewiththe
instructionmanual,maycauseharmfulinterferenceto
radiocommunications.Operationofthisequipmentin
aresidentialareaislikelytocauseharmfulinterference
inwhichcasetheuserwillberequiredtocorrectthe
interferenceathisownexpense.
Canada
ThisdigitalapparatuscomplieswithCANICES-3(ClassA).
Theproductshallbeconnectedusingashieldednetwork
cable(STP)thatisproperlygrounded.Cetappareil
numériqueestconformeàlanormeNMBICES-3(classeA).
Leproduitdoitêtreconnectéàl'aided'uncâbleréseau
blindé(STP)quiestcorrectementmisàlaterre.
Europe
ThisdigitalequipmentfulllstherequirementsforRF
emissionaccordingtotheClassAlimitofEN55032.The
productshallbeconnectedusingashieldednetworkcable
(STP)thatisproperlygrounded.Notice!ThisisaClassA
product.Inadomesticenvironmentthisproductmaycause
RFinterference,inwhichcasetheusermayberequired
totakeadequatemeasures.
Thisproductfulllstherequirementsforimmunity
accordingtoEN61000-6-1residential,commercialand
light-industrialenvironments.
Thisproductfulllstherequirementsforimmunity
accordingtoEN61000-6-2industrialenvironments.
Thisproductfulllstherequirementsforimmunity
accordingtoEN55024ofceandcommercial
environments.
Australia/NewZealand
ThisdigitalequipmentfulllstherequirementsforRF
emissionaccordingtotheClassAlimitofAS/NZSCISPR32.
Page 5

Theproductshallbeconnectedusingashieldednetwork
cable(STP)thatisproperlygrounded.Notice!Thisisa
ClassAproduct.Inadomesticenvironmentthisproduct
maycauseRFinterference,inwhichcasetheusermaybe
requiredtotakeadequatemeasures.
Japan
この装置は、クラスA情報技術装置です。この装
置を家庭環境で使⽤すると電波妨害を引き起こす
ことがあります。この場合には使⽤者が適切な対
策を講ずるよう要求されることがあります。本
製品は、シールドネットワークケーブル(STP)を
使⽤して接続してください。また適切に接地し
てください。
Korea
이기기는업무용(A급)전자파적합기기로서판매
자또는사용자는이점을주의하시기바라며,가
정외의지역에서사용하는것을목적으로합니다.
적절히접지된STP(shieldedtwistedpair)케이블
을사용하여제품을연결하십시오.
Safety
ThisproductcomplieswithIEC/EN/UL62368-1,safetyof
audio/videoandITequipment,andIEC/EN/UL60950-22,
SafetyofInformationTechnologyEquipment.Theproduct
shallbegroundedeitherthroughashieldednetworkcable
(STP)orotherappropriatemethod.
Disposalandrecycling
Whenthisproducthasreachedtheendofitsusefullife,
disposeofitaccordingtolocallawsandregulations.For
informationaboutyournearestdesignatedcollectionpoint,
contactyourlocalauthorityresponsibleforwastedisposal.
Inaccordancewithlocallegislation,penaltiesmaybe
applicableforincorrectdisposalofthiswaste.
Europe
Thissymbolmeansthattheproductshallnotbe
disposedoftogetherwithhouseholdorcommercialwaste.
Directive2012/19/EUonwasteelectricalandelectronic
equipment(WEEE)isapplicableintheEuropeanUnion
memberstates.Topreventpotentialharmtohumanhealth
andtheenvironment,theproductmustbedisposedofin
anapprovedandenvironmentallysaferecyclingprocess.
Forinformationaboutyournearestdesignatedcollection
point,contactyourlocalauthorityresponsibleforwaste
disposal.Businessesshouldcontacttheproductsupplierfor
informationabouthowtodisposeofthisproductcorrectly.
Thisproductcomplieswiththerequirementsof
Directive2011/65/EUontherestrictionoftheuseof
certainhazardoussubstancesinelectricalandelectronic
equipment(RoHS).
China
电
气
实
装
部
分
0:表示该有毒有害物质在该部件所有均质材料中
的含量均在GB/T26572标准规定的限量要求以下。
X:表示该有毒有害物质至少在该部件的某一均质
材料中的含量超出GB/T26572标准规定的限量要
求。
Contactinformation
AxisCommunicationsAB
Emdalavägen14
22369Lund
Sweden
Tel:+46462721800
Fax:+4646136130
www.axis.com
00000
X
Warrantyinformation
ForinformationaboutAxis’productwarrantyandthereto
relatedinformation,gotowww.axis.com/warranty/
Support
Shouldyourequireanytechnicalassistance,pleasecontact
yourAxisreseller.Ifyourquestionscannotbeanswered
immediately,yourresellerwillforwardyourqueriesthrough
theappropriatechannelstoensurearapidresponse.Ifyou
areconnectedtotheInternet,youcan:
•downloaduserdocumentationandsoftwareupdates
•ndanswerstoresolvedproblemsintheFAQdatabase.
Searchbyproduct,category,orphrase
•reportproblemstoAxissupportstaffbylogginginto
yourprivatesupportarea
•chatwithAxissupportstaff
•visitAxisSupportatwww.axis.com/support
Learnmore!
VisitAxislearningcenterwww.axis.com/academy/for
usefultrainings,webinars,tutorialsandguides.
Thisproductcomplieswiththerequirementsof
SJ/T11364-2014,Markingfortherestrictionofhazardous
substancesinelectricalandelectronicproducts.
有毒有害物质或元素
部
件
名
称
汞
铅
(Pb)
镉
(Hg)
六价
(Cd)
铬
(Cr(VI))
多溴
多溴
联苯
二苯
(PB-
醚
B)
(PBDE)
Page 6

InstallationGuide
Packagecontents............................................11
Productoverview............................................12
Howtoinstalltheproduct.....................................14
Installthehardware..............................................14
Howtoaccesstheproduct.........................................20
Howtoresettofactorydefaultsettings...........................22
Furtherinformation..........................................23
Optionalaccessories..............................................23
Technicalspecications.......................................24
SDcardslot....................................................24
Buttons.......................................................25
Connectors....................................................25
Operatingconditions.............................................28
Powerconsumption..............................................28
Safetyinformation..........................................29
Hazardlevels...................................................29
Othermessagelevels.............................................29
Safetyinstructions..........................................30
Transportation..................................................30
Battery.......................................................30
Contenudel’emballage.......................................33
Vued'ensembleduproduit....................................34
Commentinstallerleproduit...................................36
Installationdumatériel...........................................36
Commentaccéderauproduit.......................................42
Commentrestaurerlesparamètrespardéfaut......................44
Informationscomplémentaires..................................45
Accessoiresenoption.............................................45
Caractéristiquestechniques....................................46
EmplacementpourcarteSD........................................46
Boutons......................................................47
Connecteurs...................................................47
Conditionsd’utilisation............................................50
Consommationélectrique..........................................50
Informationssurlasécurité....................................51
Niveauxderisques...............................................51
Autresniveauxdemessage.........................................51
Consignesdesécurité........................................52
Transport......................................................52
Batterie.......................................................52
Lieferumfang..............................................55
Produktübersicht............................................56
InstallierendesProdukts......................................58
6
Page 7

AXISP1368-ENetworkCamera
DieHardwareinstallieren..........................................58
ZugriffaufdasProdukt............................................65
ZurücksetzenaufdiewerksseitigenStandardeinstellungen.............67
WeitereInformationen.......................................68
OptionalesZubehör..............................................68
TechnischeDaten...........................................69
SD-Karteneinschub..............................................69
Tasten........................................................70
Anschlüsse....................................................70
Betriebsbedingungen.............................................73
Leistungsaufnahme..............................................73
Sicherheitsinformationen......................................75
Gefährdungsstufen...............................................75
WeitereNachrichtenstufen.........................................75
Sicherheitsanweisungen.......................................76
Transport......................................................76
Batterie.......................................................76
Contenutodellaconfezione....................................79
Panoramicadeldispositivo.....................................80
Comeinstallareildispositivo...................................82
Installazionedell'hardware.........................................82
Comeaccederealdispositivo.......................................88
Modalitàdiripristinodeivaloripredenitidifabbrica................90
UlterioriInformazioni........................................91
Accessoriopzionali...............................................91
Specichetecniche..........................................92
SlotperschedaSD...............................................92
Pulsanti.......................................................93
Connettori.....................................................93
Condizionidifunzionamento.......................................96
Consumoenergetico..............................................96
Informazionidisicurezza......................................97
Livellidipericolo................................................97
Altrilivellidimessaggio...........................................97
Informazionidisicurezza......................................98
Trasporto......................................................98
Batteria.......................................................98
Contenidodelpaquete........................................101
Informacióngeneraldelproducto...............................102
Cómoinstalarelproducto.....................................104
Instalacióndelhardware..........................................104
Cómoaccederalproducto.........................................110
Cómorestablecerlosajustespredeterminadosdefábrica..............112
7
Page 8

InstallationGuide
Másinformación............................................113
Accesoriosopcionales.............................................113
Especicacionestécnicas......................................1 14
RanuraparatarjetasSD...........................................114
Botones.......................................................115
Conectores....................................................115
Condicionesdefuncionamiento.....................................1 18
Consumodeenergía..............................................118
Informacióndeseguridad.....................................119
Nivelesdepeligro...............................................119
Otrosnivelesdemensaje..........................................119
Instruccionesdeseguridad.....................................120
Transporte.....................................................120
Batería.......................................................120
パ
パ パ
ッ ッッケ ケケー ーージ ジジの のの内 内内容 容
製
製 製
品 品品の のの概 概概要 要
製
製 製
品 品品の のの取 取取り りり付 付付け けけ方 方方法 法
工
工 工
場 場場出 出出荷 荷荷時 時時の のの設 設設定 定定に ににリ リリセ セセッ ッット トトす すする るる方 方方法 法
関
関 関
連 連連情 情情報 報
技
技 技
術 術術仕 仕仕様 様
安
安 安
全 全全情 情情報 報
安
安 安
全 全全手 手手順 順
包
包 包
装 装装内 内内容 容
产
产 产
品 品品概 概概述 述
如
如 如
何 何何安 安安装 装装产 产产品 品
如
如 如
何 何何重 重重置 置置为 为为出 出出厂 厂厂默 默默认 认认设 设设置 置
更
更 更
多 多多信 信信息 息
技
技 技
术 术术规 规规格 格
要
ハードウェアのインストール.................................126
製品のアクセス方法........................................133
報
オプションアクセサリー.....................................136
様
SDカードスロット..........................................137
ボタン...................................................138
コネクター................................................138
動作条件.................................................141
消費電力.................................................141
報
危険レベル................................................143
その他のメッセージレベル...................................143
順
輸送.....................................................144
バッテリー................................................144
容
述
安装硬件.................................................150
如何访问产品..............................................156
息
可选附件.................................................159
格
容
.......................................123
.............................................124
法
.....................................126
法
.......................135
..............................................136
..............................................137
..............................................143
..............................................144
..............................................147
..............................................148
品
...........................................150
置
..................................158
..............................................159
..............................................160
8
Page 9

AXISP1368-ENetworkCamera
SD卡插槽.................................................160
按钮.....................................................160
接口.....................................................161
工作条件.................................................163
功耗.....................................................163
安 安安全 全全信 信信息 息
安 安安全 全全说 说说明 明
息
危险等级.................................................165
其他消息等级..............................................165
运输.....................................................166
电池.....................................................166
..............................................165
明
..............................................166
9
Page 10

InstallationGuide
10
Page 11

Packagecontents
•AXISP1368-ENetworkCamera
•4–pinI/Oconnectorblockforconnectingexternaldevices
•2–pinRS485/422connectorblock(x2)
•Wallmount
•TorxscrewdriverT20
•TorxscrewbitT30
•MountingtoolforRJ45
•IK10tool
•Desiccantbag
•Printedmaterials
-InstallationGuide(thisdocument)
-Extraserialnumberlabel(2x)
-AVHSAuthenticationkey
AXISP1368-ENetworkCamera
EN
11
Page 12

AXISP1368-ENetworkCamera
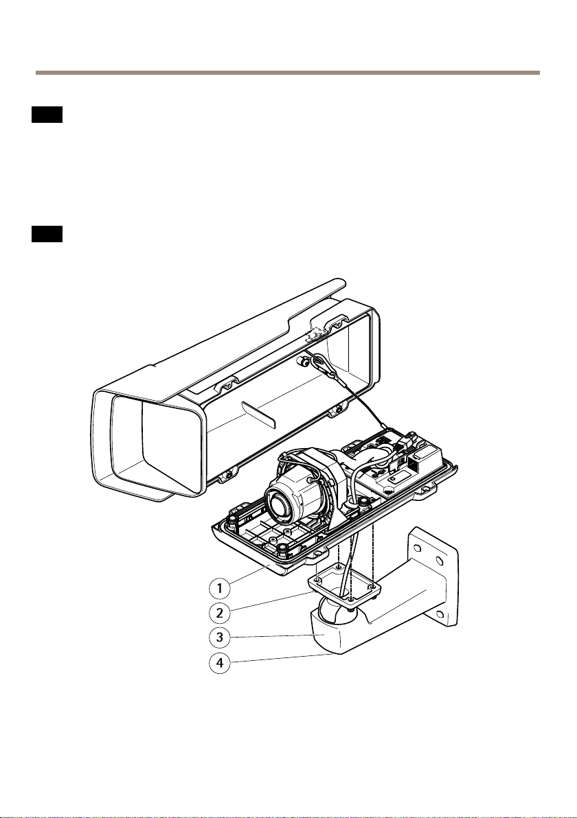
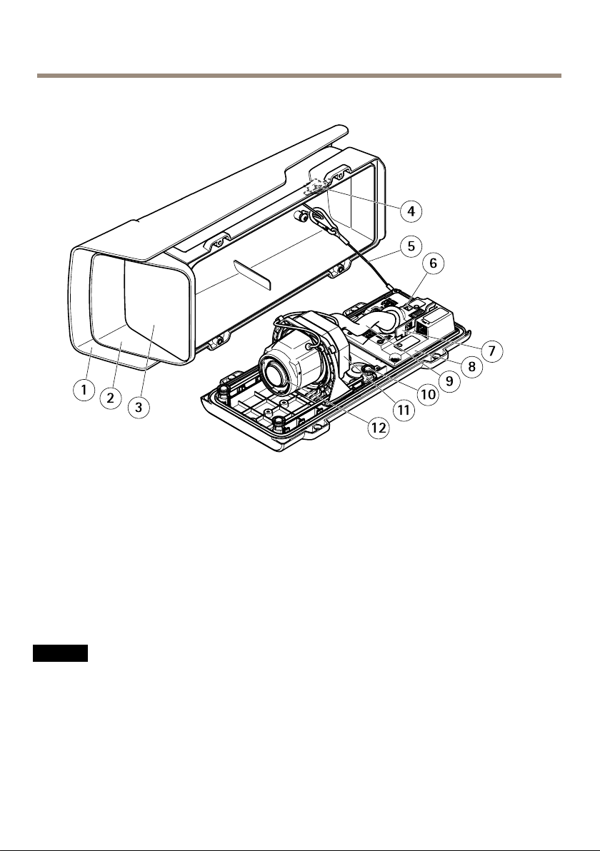
Productoverview
1
Weathershield
2
Topcover
3
Window
4
Intrusionalarmmagnet
5
Safetywire
6
Cabletieanchor
7
IK10tool
8
Intrusionalarmsensor
9
Cablecover
10
Springloadedthumbscrew(4x)
11
Opticunit
12
Lens
NO
TICE
NO NO
TICE TICE
Donotlifttheproductinthecablecover.
12
Page 13

13
StatusLED
14
NetworkLED
15
PowerLED
16
microSDcardslot
17
I/Oconnector
18
RS485/422connector
19
Controlbutton
20
Networkconnector(PoE)
21
Audioout
22
Audioin
23
CablegasketM20(2x)
24
Irisconnector
AXISP1368-ENetworkCamera
EN
13
Page 14

AXISP1368-ENetworkCamera
Howtoinstalltheproduct
Installthehardware
NO
TICE
NO NO
TICE TICE
•Duetolocalregulationsortheenvironmentalandelectricalconditionsinwhichthe
productistobeused,ashieldednetworkcable(STP)maybeappropriateorrequired.
Allcablesconnectingtheproducttothenetworkandthatareroutedoutdoorsorin
demandingelectricalenvironmentsshallbeintendedfortheirspecicuse.Makesurethat
thenetworkdevicesareinstalledinaccordancewiththemanufacturer’sinstructions.
Forinformationaboutregulatoryrequirements,seeRegulatoryinformation4
•Becarefulnottoscratch,damageorleavengerprintsonthewindowbecausethiscould
decreaseimagequality.
TheAxisproductcanbeinstalledwiththecablesroutedthroughoralongthewall.
Readalltheinstructionsbeforeinstallingtheproduct.
InstalltheWallMount
CAUTION
Makesurethatthescrewsandplugsareappropriateforthematerial(e.g.wood,metal,
drywall,stone)andthatthematerialisstrongenoughtosupportthecombinedweight
ofthecamera,housing,andwallmount.
1.Preparethewallforinstallationofthewallmount.Usethewallbracketasatemplate
andmarktheholesbeforedrillingtheholes.
2.Routethenetworkcablethroughthewallbracket.Leaveapproximately30cm(1 1.8in)of
cableforconnectingthecamera.
3.Ifconnectinganauxiliarydevice,forexampleanI/O,audio,orexternalpowerdevice,to
thecamera,repeatthestepaboveasapplicabletothespecicdevice.
4.Fastenthewallbrackettothewallbytighteningthescrews.
Note
•Fordetailedinstructions,seethewallmount’sInstallationGuidesuppliedinthepackage
andavailableonwww.axis.com
Installthecamera
1.Loosenthebottomcoverscrewsandliftthetopcover.
NO
TICE
NO NO
TICE TICE
•Ifmorethanonecableisused,eachcablemustberoutedthroughaseparatecablegasket.
•Onlyopenaholeincablegasketsthatwillbeusedandifacablegasketistorn,replaceit
withanewcablegasket.Leavingacablegasketopenorusingatorncablegasketcould
causewatertoseepinanddamagetheproduct.
14
Page 15

AXISP1368-ENetworkCamera
2.Selectwhichcablegaskettouseandpullthetabtoopenaholeforthenetworkcable.
1
Bottomcover
2
BottomcoverscrewT20(4x)
3
CablegasketM20(2x)
4
Tab
3.Pushthenetworkcablethroughthecablegasket.
NO
TICE
NO NO
TICE TICE
Ifthenetworkcablehasapremountednetworkconnector,removethecablegasketand
usetheconnectorguardtopreventtearingofthecablegasket.Avoidusingnetwork
cableswithcappednetworkconnectorsbecausetheycouldcausetearingofthecable
gasketdespiteusingtheconnectorguard.
EN
4.Pullthenetworkcablebackslightlysothatthecablegasketadjustsitselfonthecable.
15
Page 16

AXISP1368-ENetworkCamera
NO
TICE
NO NO
TICE TICE
Notpullingthecablebackcouldcausewatertoseepinanddamagetheproduct.
5.Makesurethatthecablegasketisttedproperly.
6.Ifconnectinganauxiliarydevice,forexampleanI/O,audio,orexternalpowerdevice,to
thecamera,repeatthestepsaboveasapplicabletothespecicdevice.
NO
TICE
NO NO
TICE TICE
Mounttheconnectorsafterthecablesarepushedthroughthecablegasket.
1
Bottomcover
2
ScrewT20(4x)
3
Wallbracket
4
BracketadjustmentscrewT30
7.Putthebottomcoveronthewallmountandtightenthescrews(torque2Nm).
16
Page 17

AXISP1368-ENetworkCamera
8.Ifapplicable,connectexternalI/Odevicesoraudiodevicestothecamera.
9.IfusinganSDcardforlocalstorage,insertthecardintothecamera’sSDcardslot.
10.Connectthenetworkcable.
11.MakesurethatthecameraLEDsindicatethecorrectcondition.SeeLEDIndicatorson
page24.
12.Loosenthebracketadjustmentscrewtoaimthecameratothepointofinterest.For
informationabouthowtoviewthevideostream,seeHowtoaccesstheproducton
page20
13.Ondelivery,thelensispositionedcorrectlyforIK10.Ifyoumoveorreplacethelens,
youneedtorepositiontheopticalassemblytoensureIK10,seeHowtopositionthe
lensforIK10onpage20.
EN
17
Page 18

AXISP1368-ENetworkCamera
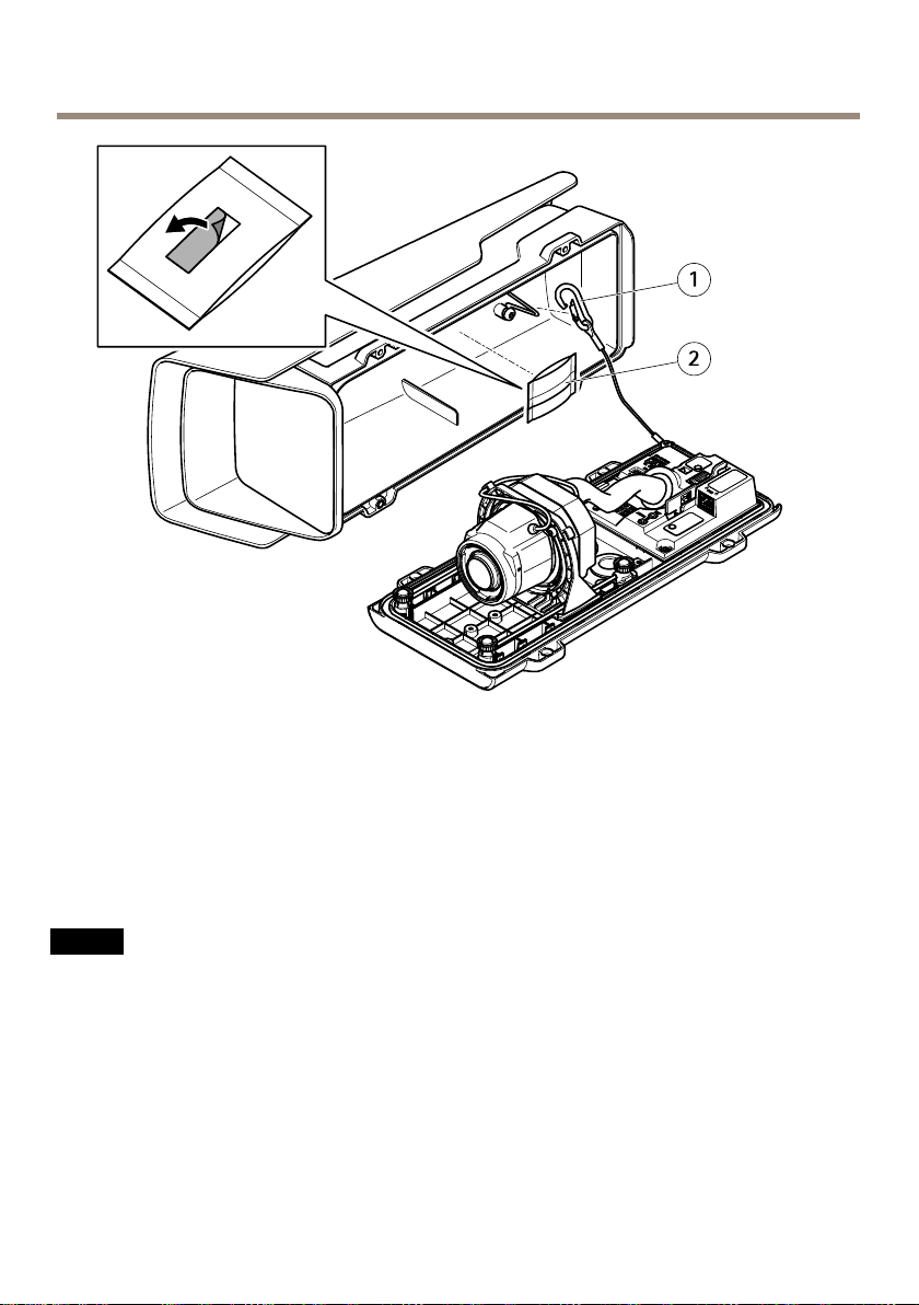
1
Safetyhook
2
Desiccantbag
14.Removetheplasticwrapperfromthedesiccantbag.
15.Removetheprotectivestripfromtheadhesiveandattachthedesiccantbagtothe
topcover.
16.Closethehousing.Alternatelytightenthebottomcoverscrewsafewturnsatatime
untiltheyaretight(torque1.5Nm).Thiswillcompressthebottomcovergasketevenly.
NO
TICE
NO NO
TICE TICE
Donotpinchanycableswhenclosingthehousing.
17.Ifrequired,loosenthescrewsontheweathershield,adjustitspositionandtighten
thescrews.
18
Page 19

Howtosetupcorridorformat
AXISP1368-ENetworkCamera
EN
1
Lockscrew(2x)
2
Opticunit
1.Loosenthetwolockscrews.
2.Rotatetheopticunit.
3.Tightenthelockscrews.
4.GototheStreamtabontheproduct’swebpageandrotatetheview90°.
19
Page 20

AXISP1368-ENetworkCamera
HowtopositionthelensforIK10
1
IK10tool
2
Opticunit
3
Springloadedthumbscrew(4x)
1.Zoomthelenstoitswidestposition.
2.AttachtheIK10tooltothebottomcover.
3.Loosenthespringloadedthumbscrews.
4.Movethelenssothatittouchesthetool.
5.Tightenthethumbscrews.
Howtoaccesstheproduct
AXISIPUtilityandAXISCameraManagementarerecommendedmethodsforndingAxisproducts
onthenetworkandassigningthemIPaddressesinWindows®.Bothapplicationsarefreeandcan
bedownloadedfromwww.axis.com/support
Theproductcanbeusedwiththefollowingbrowsers:
20
Page 21

AXISP1368-ENetworkCamera
•Chrome
•Chrome
•Chrome
TM
(recommended),Firefox
TM
(recommended)orSafari
TM
orFirefox
®
withotheroperatingsystems.
®
,Edge
®
®
,orOpera
withOSX
®
withWindows
®
Formoreinformationaboutusingtheproduct,seetheUserManualavailableatwww.axis.com
®
EN
21
Page 22

AXISP1368-ENetworkCamera
Howtoresettofactorydefaultsettings
Important
Resettofactorydefaultshouldbeusedwithcaution.Aresettofactorydefaultresetsall
settings,includingtheIPaddress,tothefactorydefaultvalues.
Toresettheproducttothefactorydefaultsettings:
1.Disconnectpowerfromtheproduct.
2.Pressandholdthecontrolbuttonwhilereconnectingpower.SeeProductoverview.
3.Keepthecontrolbuttonpressedfor15–30secondsuntilthestatusLEDindicatorashes
amber.
4.Releasethecontrolbutton.TheprocessiscompletewhenthestatusLEDindicatorturns
green.Theproducthasbeenresettothefactorydefaultsettings.IfnoDHCPserveris
availableonthenetwork,thedefaultIPaddressis192.168.0.90
5.UsetheinstallationandmanagementsoftwaretoolstoassignanIPaddress,setthe
password,andaccessthevideostream.
Theinstallationandmanagementsoftwaretoolsareavailablefromthesupportpages
onwww.axis.com/support
22
Page 23

AXISP1368-ENetworkCamera
Furtherinformation
•Forthelatestversionofthisdocument,seewww.axis.com
•Theusermanualisavailableatwww.axis.com
•Tocheckifthereisupdatedrmwareavailableforyourproduct,see
www.axis.com/support
•Forusefulonlinetrainingsandwebinars,seewww.axis.com/academy
Optionalaccessories
Foracompletelistofavailableaccessoriesforthisproduct,gotowww.axis.com
EN
23
Page 24

AXISP1368-ENetworkCamera
Technicalspecifications
Tondthelatestversionofthedatasheet,gotowww.axis.com>product>Support&
Documentation.
LEDIndicators
StatusLED
GreenSteadygreenfornormaloperation.
Amber
NetworkLEDIndication
Green
Amber
UnlitNonetworkconnection.
PowerLEDIndication
Green
Amber
Indication
Steadyduringstartup.Flasheswhenrestoringsettings.
Steadyforconnectiontoa100Mbit/snetwork.Flashesfor
networkactivity.
Steadyforconnectiontoa10Mbit/snetwork.Flashesfor
networkactivity.
Normaloperation.
Flashesgreen/amberduringrmwareupgrade.
SDcardslot
NO
TICE
NO NO
TICE TICE
•RiskofdamagetoSDcard.Donotusesharptools,metalobjects,orexcessiveforcewhen
insertingorremovingtheSDcard.Useyourngerstoinsertandremovethecard.
•Riskofdatalossandcorruptedrecordings.DonotremovetheSDcardwhiletheproduct
isrunning.DisconnectpowerorunmounttheSDcardfromtheproduct’swebpagebefore
removal.
ThisproductsupportsmicroSD/microSDHC/microSDXCcards(notincluded).
ForSDcardrecommendations,seewww.axis.com
24
Page 25

AXISP1368-ENetworkCamera
Buttons
Controlbutton
Thecontrolbuttonisusedfor:
•Resettingtheproducttofactorydefaultsettings.SeeHowtoresettofactorydefault
settingsonpage22.
•ConnectingtoanAXISVideoHostingSystemserviceorAXISInternetDynamicDNS
Service.Formoreinformationabouttheseservices,seetheUserManual.
Connectors
Networkconnector
RJ45EthernetconnectorwithPoweroverEthernet(PoE).
Audioconnector
TheAxisproducthasthefollowingaudioconnectors:
•Audioin–3.5mminputforamonomicrophone,oraline-inmonosignal(leftchannel
isusedfromastereosignal).
•Audioout–3.5mmoutputforaudio(linelevel)thatcanbeconnectedtoapublic
address(PA)systemoranactivespeakerwithabuilt-inamplier.Astereoconnector
mustbeusedforaudioout.
EN
3.5mmaudio
connectors(stereo)
1Tip2Ring
AudioInput
AudioOutput
Microphone/Linein
Lineout(mono)
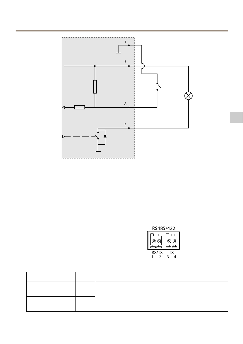
AboutI/Oconnectors
UsetheI/Oconnectorwithexternaldevicesincombinationwith,forexample,tamperingalarms,
motiondetection,eventtriggering,andalarmnotications.Inadditiontothe0VDCreference
pointandpower(DCoutput),theI/Oconnectorprovidestheinterfaceto:
25
3Sleeve
Ground
Ground
Page 26

AXISP1368-ENetworkCamera
Digitaloutput-ForconnectingexternaldevicessuchasrelaysandLEDs.Connecteddevicescan
beactivatedbytheVAPIX®ApplicationProgrammingInterfaceorintheproduct’swebpage.
Digitalinput-Forconnectingdevicesthatcantogglebetweenanopenandclosedcircuit,for
examplePIRsensors,door/windowcontacts,andglassbreakdetectors.
4-pinterminalblock
FunctionPinNotes
0VDC(-)
DCoutput
(Inputor
Output)
1
DCground0VDC
2
Canbeusedtopowerauxiliaryequipment.
Note:Thispincanonlybeusedaspowerout.
3–
Digitalinput–Connecttopin1toactivate,or
4
leaveoating(unconnected)todeactivate.
Digitaloutput–Connectedtopin1when
activated,oating(unconnected)when
deactivated.Ifusedwithaninductiveload,e.g.a
relay,adiodemustbeconnectedinparallelwith
theload,forprotectionagainstvoltagetransients.
Specications
12VDC
Maxload=50mA
0tomax30VDC Congurable
0tomax30VDC,
opendrain,100mA
26
Page 27

1
0VDC(-)
2
DCoutput12V,max50mA
A
I/Oconguredasinput
B
I/Oconguredasoutput
AXISP1368-ENetworkCamera
EN
RS485/RS422connector
Two2-pinterminalblocksforRS485/RS422serialinterfaceusedtocontrolauxiliaryequipment
suchaspan-tiltdevices.
Theserialportcanbeconguredtosupport:
•Two-wireRS485halfduplex
•Four-wireRS485fullduplex
•Two-wireRS422simplex
•Four-wireRS422fullduplexpointtopoint
communication
FunctionPinNotes
RS485Balt
RS485/422RX(B)
RS485Aalt
RS485/422RX(A)
1
2
RXpairforallmodes(combinedRX/TXfor2-wireRS485)
27
Page 28

AXISP1368-ENetworkCamera
RS485/RS422TX(B)
RS485/RS422TX(A)
Important
Therecommendedmaximumcablelengthis30m(98ft).
3
4
TXpairforRS422and4-wireRS485
Operatingconditions
ProductTemperatureHumidity
AXISP1368-E-40°Cto55°C
(-40°Fto131°F)
10–100%RH(condensing)
Powerconsumption
NO
TICE
NO NO
TICE TICE
Usealimitedpowersource(LPS)witheitheraratedoutputpowerlimitedto≤100W
oraratedoutputcurrentlimitedto≤5A.
Product
AXISP1368-E
PoweroverEthernet(PoE)
IEEE802.3af/802.3atType
1Class3
Max.9.5W
Typical6.4W
28
Page 29

AXISP1368-ENetworkCamera
Safetyinformation
Hazardlevels
DANGER
Indicatesahazardoussituationwhich,ifnotavoided,willresultindeathorseriousinjury.
WARNING
Indicatesahazardoussituationwhich,ifnotavoided,couldresultindeathorseriousinjury.
CAUTION
Indicatesahazardoussituationwhich,ifnotavoided,couldresultinminorormoderate
injury.
NO
TICE
NO NO
TICE TICE
Indicatesasituationwhich,ifnotavoided,couldresultindamagetoproperty.
Othermessagelevels
Important
Indicatessignicantinformationwhichisessentialfortheproducttofunctioncorrectly.
Note
Indicatesusefulinformationwhichhelpsingettingthemostoutoftheproduct.
EN
29
Page 30

AXISP1368-ENetworkCamera
Safetyinstructions
NO
TICE
NO NO
TICE TICE
•TheAxisproductshallbeusedincompliancewithlocallawsandregulations.
•StoretheAxisproductinadryandventilatedenvironment.
•AvoidexposingtheAxisproducttoshocksorheavypressure.
•Donotinstalltheproductonunstablepoles,brackets,surfacesorwalls.
•UseonlyapplicabletoolswheninstallingtheAxisproduct.Usingexcessiveforcewith
powertoolscouldcausedamagetotheproduct.
•Donotusechemicals,causticagents,oraerosolcleaners.
•Useacleanclothdampenedwithpurewaterforcleaning.
•Useonlyaccessoriesthatcomplywiththetechnicalspecicationofyourproduct.These
canbeprovidedbyAxisorathirdparty.AxisrecommendsusingAxispowersource
equipmentcompatiblewithyourproduct.
•UseonlysparepartsprovidedbyorrecommendedbyAxis.
•Donotattempttorepairtheproductyourself.ContactAxissupportoryourAxisreseller
forservicematters.
Transportation
NO
TICE
NO NO
TICE TICE
•WhentransportingtheAxisproduct,usetheoriginalpackagingorequivalenttoprevent
damagetotheproduct.
Battery
TheAxisproductusesa3.0VCR2032lithiumbatteryasthepowersupplyforitsinternalreal-time
clock(RTC).Undernormalconditionsthisbatterywilllastforaminimumofveyears.
LowbatterypoweraffectstheoperationoftheRTC,causingittoresetateverypower-up.When
thebatteryneedsreplacing,alogmessagewillappearintheproduct’sserverreport.Formore
informationabouttheserverreport,seetheproduct´ssetuppagesorcontactAxissupport.
Thebatteryshouldnotbereplacedunlessrequired,butifthebatterydoesneedreplacing,contact
Axissupportatwww.axis.com/supportforassistance.
Lithiumcoincell3.0Vbatteriescontain1,2-dimethoxyethane;ethyleneglycoldimethylether
(EGDME),CASno.110-71-4.
WARNING
•Riskofexplosionifthebatteryisincorrectlyreplaced.
•ReplaceonlywithanidenticalbatteryorabatterywhichisrecommendedbyAxis.
30
Page 31

AXISP1368-ENetworkCamera
•Disposeofusedbatteriesaccordingtolocalregulationsorthebatterymanufacturer's
instructions.
EN
31
Page 32

32
Page 33

AXISP1368-ENetworkCamera
Contenudel’emballage
•CaméraréseauAXISP1368-E
•Blocdeconnexionà4brochespourleraccordementdedispositifsexternesau
connecteurpourterminauxE/S
•BlocdeconnexionRS485/422à2broches(x2)
•Supportmural
•TournevisTorxT20
•EmboutpourvisTorxT30
•OutildemontagepourRJ45
•OutilIK10
•Sachetdessiccatif
•Documentsimprimés
-Guided’installation(cedocument)
-Étiquettesupplémentairedenumérodesérie(x2)
-Cléd’authenticationAVHS
FR
33
Page 34

AXISP1368-ENetworkCamera
Vued'ensembleduproduit
1
Protectionétanche
2
Couverclesupérieur
3
Fenêtre
4
Aimantd’alarmed’intrusion
5
Câbledesécurité
6
Pointd'attachedecâbles
7
OutilIK10
8
Capteurd’alarmed’intrusion
9
Couvercledecâble
10
Vispapillondepression(x4)
11
Unitéoptique
12
Objectif
VIS
A AAVIS VIS
Nesoulevezpasleproduitdanslecouvercledecâble.
34
Page 35

13
Voyantd’état
14
Voyantréseau
15
Voyantd’alimentation
16
EmplacementpourcartemicroSD
17
Connecteurd’E/S
18
ConnecteurRS485/422
19
Boutondecommande
20
Connecteurréseau(PoE)
21
Sortieaudio
22
Entréeaudio
23
JointdecâbleM20(x2)
24
Connecteurdudiaphragme
AXISP1368-ENetworkCamera
FR
35
Page 36

AXISP1368-ENetworkCamera
Commentinstallerleproduit
Installationdumatériel
VIS
A AAVIS VIS
•Lesréglementationslocalesoulesconditionsenvironnementalesetélectriquesdans
lesquellesleproduitestutilisépeuventnécessiterl'utilisationd'uncâbleréseaublindé
(STP).Touslescâblesréseauquisontacheminésàl'extérieuroudansdesenvironnements
électriquesexigeantsdoiventêtredestinésàleurusagespécique.Assurez-vousqueles
périphériquesréseausontinstallésconformémentauxinstructionsdufabricant.
Pourplusd'informationssurlesexigencesréglementaires,consultezRegulatory
information4
•Veillezànepasrayer,endommageroulaisserd'empreintessurlavitre,carcelapourrait
altérerlaqualitéd'image.
LeproduitAxispeutêtreinstalléavecdescâblesacheminésàtraversoulelongdumur.
Liseztouteslesinstructionsavantl’installationdel’appareil.
Installationdelaxationmurale
ATTENTION
Assurez-vousquelesvisetleschessontadaptéesaumatériau(bois,métal,cloisonsèche,
pierre,etc.)etquelematériauestsufsammentrésistantpoursupporterlepoidscombiné
delacaméra,duboîtieretdusupportmural.
1.Préparezlemurpourl'installationdusupportmural.Utilisezlesupportmuralcomme
gabaritetmarquezlesemplacementsdestrousavantdelespercer.
2.Acheminezlecâbleréseauàtraverslesupportmural.Laissezenviron30cm(1 1,8'')de
câblepourlaconnexiondelacaméra.
3.Sivousconnectezunpériphériqueauxiliaire(parexemple,unpériphérique
d'entrée/sortie,audiooud'alimentationexterne)àlacaméra,répétezl'étapeci-dessus
pourchaquepériphérique.
4.Serrezlesvisdusupportmuralpourlexer.
Note
•Pourobtenirdesinstructionsdétaillées,reportez-vousauguided'installationdelaxation
muraledisponibledanslaboîteetsurlesitewww.axis.com.
Installationdelacaméra
1.Desserrezlesvisducouvercleinférieuretsoulevezlecouverclesupérieur.
VIS
A AAVIS VIS
•Sivousutilisezplusieurscâbles,chacundoitêtreacheminéautraversd’unjointde
câbledistinct.
36
Page 37

AXISP1368-ENetworkCamera
•Ouvrezuniquementuntroudanslesjointsdecâblequiserontutilisés.Siunjointdecâble
estendommagé,remplacez-leparunnouveau.L’utilisationd’unjointdecâbleouvertou
endommagérisqued’entraîneruneinltrationd’eauetd’endommagerleproduit.
2.Sélectionnezlejointdecâbleàutiliserettirezsurlapattepourouvriruntrouau
niveauducâbleréseau.
1
Couvercleinférieur
2
VisducouvercleinférieurT20(x4)
3
JointdecâbleM20(x2)
4
Patte
FR
3.Faitespasserlecâbleréseauàtraverslejointdecâble.
VIS
A AAVIS VIS
Silecâbleréseaudisposed'unconnecteurréseaupré-installé,retirezlejointdecâbleet
utilisezlaprotectionduconnecteurpourévitertoutendommagementdujointdecâble.
Évitezd'utiliserdescâblesréseauéquipésdeconnecteursréseaurecouverts,carilspeuvent
endommagerlejointdecâble,etcemalgréleurprotection.
37
Page 38

AXISP1368-ENetworkCamera
4.Tirezlégèrementsurlecâbleréseaupourquelejoints'ajustedessus.
VIS
A AAVIS VIS
Sivousnetirezpassurlecâble,ilexisteunrisqued'inltrationd’eauetd’endommagement
duproduit.
5.Assurez-vousquelejointdecâbleestcorrectementinstallé.
6.Sivousconnectezunpériphériqueauxiliaire(parexemple,unpériphériqued'entrée/sortie,
audiooud'alimentationexterne)àlacaméra,répétezlesétapesci-dessuspourchaque
périphérique.
VIS
A AAVIS VIS
Installezlesconnecteursunefoislescâblesinsérésdanslejointdecâble.
1
Couvercleinférieur
2
VisT20(x4)
3
Supportmural
4
VisderéglagedusupportT30
38
Page 39

AXISP1368-ENetworkCamera
7.Placezlecouvercleinférieursurlaxationmuraleetserrezlesvis(couple2Nm).
8.Lecaséchéant,connectezlesdispositifsd’E/Soulesappareilsaudioexternesàlacaméra.
9.SivousutilisezunecarteSDentantqu’espacedestockagelocal,insérezlacartedansle
logementprévuàceteffetsurlacaméra.
10.Branchezlecâbleréseau.
11.Vériezquelesvoyantsdelacaméraindiquentuneconditioncorrecte.Cf.Voyants
page46.
12.Desserrezlavisderéglagedusupportand’orienterlacaméradansladirectionvoulue.
Poursavoircommentvoirleuxdedonnéesvidéo,consultezCommentaccéderau
produitpage42
13.Àlalivraison,l’objectifestpositionnécorrectementpourl’outilIK10.Sivousdéplacez
ouremplacezl’objectif,vousdevezrepositionnercorrectementl’ensembleoptiquepour
l’outilIK10,voirPositionnementdel’objectifpourIK10page42.
FR
39
Page 40

AXISP1368-ENetworkCamera
1
Crochetdesécurité
2
Sachetdessiccatif
14.Retirezlaprotectionenplastiquedusachetdessiccatif.
15.Retirezlabandedeprotectiondel’adhésifetxezlesachetdessiccatifaucouvercle
supérieur.
16.Fermezleboîtier.Vouspouvezégalementserrerlesvisducouvercleinférieurdequelques
toursàlafoisjusqu’àcequ’ellessoienttoutesbienserrées(couple1,5Nm).Cela
permettradecompresserlejointducouvercleinférieurdefaçonrégulière.
VIS
A AAVIS VIS
Nepincezaucuncâbleàlafermetureduboîtier.
17.Lecaséchéant,desserrezlesvisdelaprotectionétanche,ajustezsaposition,puis
serrezlesvis.
40
Page 41

Congurationduformatcorridor
AXISP1368-ENetworkCamera
FR
1
Visdeverrouillage(x2)
2
Unitéoptique
1.Desserrezlesdeuxvisdeverrouillage.
2.Faitespivoterl’unitéoptique.
3.Serrezlesvisdeverrouillage.
4.Accédezàl’ongletStream(Flux)delapageWebduproduitetfaitespivoterlavueà90°.
41
Page 42

AXISP1368-ENetworkCamera
Positionnementdel’objectifpourIK10
1
OutilIK10
2
Unitéoptique
3
Vispapillondepression(x4)
1.Réglezl’objectifsurlezoomlepluslarge.
2.Fixezl’outilIK10aucouvercleinférieur.
3.Desserrezlesvispapillon.
4.Déplacezl’objectifjusqu’àcequ’ilsoitencontactavecl’outil.
5.Serrezlesvispapillon.
Commentaccéderauproduit
SivoussouhaitezrechercherdesproduitsAxissurleréseauouleuraffecterdesadresses
IPsousWindows®,nousrecommandonsl’utilisationdesapplicationsAXISIPUtilityet
AXISCameraManagement.Cesdeuxapplicationssontgratuitesetpeuventêtretéléchargées
depuiswww.axis.com/support
Leproduitpeutêtreutiliséaveclesnavigateurssuivants:
42
Page 43

AXISP1368-ENetworkCamera
•Chrome
•Chrome
•Chrome
TM
(recommandé),Firefox
TM
(recommandé)ouSafari
TM
ouFirefox
®
aveclesautressystèmesd’exploitation.
®
,Edge
®
avecOSX
®
ouOpera
®
avecWindows
®
Pourplusd’informationsconcernantl’utilisationduproduit,consultezlemanueldel’utilisateur
disponiblesurlesitewww.axis.com
®
FR
43
Page 44

AXISP1368-ENetworkCamera
Commentrestaurerlesparamètrespardéfaut
Important
Larestaurationdesparamètrespardéfautdoitêtreeffectuéeavecprudence.Cette
opérationreconguretouslesparamètres,ycomprisl’adresseIP,auxvaleursd’usinepar
défaut.
Pourréinitialiserl’appareilauxparamètresd’usinepardéfaut:
1.Déconnectezl’alimentationdel’appareil.
2.Maintenezleboutondecommandeenfoncéenremettantl’appareilsoustension.Cf.
Vued'ensembleduproduit.
3.Maintenezleboutondecommandeenfoncépendant15à30secondes,jusqu’àcequele
voyantd’étatclignoteenorange.
4.Relâchezleboutondecommande.Leprocessusestterminélorsquelevoyantd’étatpasse
auvert.Lesparamètresd’usinepardéfautdel’appareilontétérétablis.Enl’absenced'un
serveurDHCPsurleréseau,l’adresseIPpardéfautest192.168.0.90.
5.Utilisezlesoutilsd’installationetdegestionpourattribueruneadresseIP,congurerle
motdepasseetaccéderauuxdedonnéesvidéo.
Leslogicielsd’installationetdegestionsontdisponiblessurlespagesd’assistancedusite
www.axis.com/support.
44
Page 45

AXISP1368-ENetworkCamera
Informationscomplémentaires
•Pourladernièreversiondecedocument,consultezlesitewww.axis.com
•LeManueldel’utilisateurestdisponibleàl’adressesuivante:www.axis.com
•Pourvériersidesmisesàjourdeslogicielssontdisponiblespourvotreappareilréseau,
consultezlesitewww.axis.com/techsup.
•Pourensavoirplussurlesformations,leswebinaires,lestutorielsetlesguides,visitez
lesitewww.axis.com/academy.
Accessoiresenoption
Pourobtenirlalistecomplètedesaccessoiresdisponiblespourceproduit,consultezwww.axis.com
FR
45
Page 46

AXISP1368-ENetworkCamera
Caractéristiquestechniques
Pourobtenirladernièreversiondelachetechnique,rendez-voussurwww.axis.com>produit>
Supportetdocumentation.
Voyants
Voyantd’état
VertVertetxeencasdefonctionnementnormal.
OrangeFixependantledémarrage.Clignotelorsdelarestaurationdes
VoyantDELréseau
Vert
Orange
Éteint
Voyantd'alimentationIndication
VertFonctionnementnormal.
Orange
Indication
paramètres.
Indication
Fixeencasdeconnexionàunréseaude100Mbits/s.Clignote
encasd’activitéréseau.
Fixeencasdeconnexionàunréseaude10Mbits/s.Clignote
encasd’activitéréseau.
Pasdeconnexionréseau.
Levoyantvert/orangeclignotependantlamiseàniveaudu
microprogramme.
EmplacementpourcarteSD
VIS
A AAVIS VIS
•LacarteSDrisqued'êtreendommagée.Nepasutiliserd'outilstranchantsoud'objets
métalliquesetnepasforcerlorsdel'insertionouduretraitdelacarteSD.Utilisezvos
doigtspourinséreretretirerlacarte.
•Risquedepertededonnéesetd'enregistrementscorrompus.NeretirezpaslacarteSD
tantqueleproduitestenfonctionnement.Débranchezl'alimentationoudémontezla
carteSDdespagesWebduproduitavantdelaretirer.
CetappareilestcompatibleavecdescartesmicroSD/microSDHC/microSDXC(cartesnonfournie).
PourobtenirdesconseilssurlacarteSD,rendez-voussurwww.axis.com
46
Page 47

AXISP1368-ENetworkCamera
Boutons
Boutondecommande
Leboutondecommandepermetderéaliserlesopérationssuivantes:
•Réinitialisationduproduitauxparamètresd’usinepardéfaut.Cf.Commentrestaurerles
paramètrespardéfautpage44.
•ConnexionauserviceduSystèmed’hébergementvidéoAXISouauserviceAXISInternet
DynamicDNS.Pourplusd'informationssurcesservices,reportez-vousauManuelde
l'utilisateur.
Connecteurs
Connecteurréseau
ConnecteurEthernetRJ45avecl'alimentationparEthernet(PoE).
Connecteuraudio
LeproduitAxisdisposedesconnecteursaudiosuivants:
•Entréeaudio–entréede3,5mmpourmicrophonemonoousignald’entréemono(le
canaldegaucheestutilisépourlesignalstéréo).
•Sortieaudio–sortiede3,5mm(niveaudeligne)quipeutêtreconnectéeàunsystème
desonorisationouàunhaut-parleuractifavecamplicateurintégré.Unconnecteur
stéréodoitêtreutilisépourlasortieaudio.
Connecteurs
audio3,5mm(stéréo)
FR
1Pointe2Anneau3Manchon
Entréeaudio
Sortieaudio
Àproposdesconnecteursd’E/S
Utilisezleconnecteurd’E/Savecdespériphériquesexternes,associésauxapplicationstellesque
lesalarmesdedétérioration,ladétectiondemouvement,ledéclenchementd'événementsetles
Entréemicro/ligne
Sortieligne(mono)
Masse
Masse
47
Page 48

AXISP1368-ENetworkCamera
noticationsd'alarme.Enplusdupointderéférence0VCCetdel'alimentation(sortieCC),le
connecteurd'E/Sfournituneinterfaceauxélémentssuivants:
Sortienumérique-Permetdeconnecterdesdispositifsexternes,commedesrelaisoudesvoyants.
Lesappareilsconnectéspeuventêtreactivésparl'interfacedeprogrammationVAPIX®oudans
lespagesWebdesproduits.
Entréenumérique-Pourconnecterdesdispositifspouvantpasserd'uncircuitouvertàuncircuit
fermé,parexemplecapteursinfrarougepassifs,contactsdeporte/fenêtreetdétecteursdebrisde
verre.
Blocterminalà4broches
FonctionB-
0VCC(-)
SortieCC
Congurable
(entréeou
sortie)
Remarques
roche
1
MasseCC0VCC
2
Peutserviràalimenterlematérielauxiliaire.
Remarque:cettebrochenepeutêtreutiliséeque
commesortied’alimentation.
3–
Entréenumérique–Connectez-laàlabroche1
4
pourl’activeroulaissez-laotter(déconnectée)
pourladésactiver.
Sortienumérique-Connectéeàlabroche1
lorsqu'elleestactivée,otte(déconnectée)
lorsqu'elleestdésactivée.Sivousl’utilisezavec
unechargeinductive,parexempleunrelais,une
diodedoitêtreconnectéeenparallèleavecla
charge,enguisedeprotectioncontrelestensions
transitoires.
Caractéristiques
12VCC
Chargemaximale=
50mA
0à30VCC
0à30VCCmax.,
drainouvert,100mA
48
Page 49

1
0VCC(-)
2
SortieCC12V,maxi.50mA
A
Entrée/sortieconguréecommeentrée
B
Entrée/sortieconguréecommesortie
AXISP1368-ENetworkCamera
FR
ConnecteurRS485/RS422
Deuxblocsterminauxà2brochespourl’interfacesérieRS485/RS422utiliséepourcommanderles
équipementsauxiliaires,telsquelesdispositifspanoramique/inclinaison.
Leportsériepeutêtrecongurépourlapriseencharge
de:
•RS485semi-duplexsurdeuxls
•RS485duplexintégralsurquatrels
•RS422simplexsurdeuxls
•RS422duplexintégralsurquatrelspour
communicationpointàpoint
49
Page 50

AXISP1368-ENetworkCamera
FonctionBro-
RS485Balt
RS485/422RX(B)
RS485Aalt
RS485/422RX(A)
RS485/RS422TX(B)
RS485/RS422TX(A)
Important
Lalongueurmaximaledecâblerecommandéeestde30mètres(98pieds).
che
1
2
3
4
Notes
PaireRXpourtouslesmodes(RX/TXcombinépourRS485à
2ls)
PaireTXpourRS422etRS485à4ls
Conditionsd’utilisation
Produit
AXISP1368-EDe-40°Cà55°C
TempératureHumidité
(-40°Fà131°F)
Humiditérelativede10à
100%(aveccondensation)
Consommationélectrique
VIS
A AAVIS VIS
Utilisezunesourced’alimentationlimitée(LPS)dontlapuissancedesortienominaleest
limitéeà≤100Woudontlecourantdesortienominalestlimitéà≤5A.
ProduitAlimentationparEthernet
AXISP1368-E
(PoE)IEEE802.3af/802.3at
Type1Classe3
Max.9,5W
Standard6,4W
50
Page 51

AXISP1368-ENetworkCamera
Informationssurlasécurité
Niveauxderisques
DANGER
Indiqueunesituationdangereusequi,siellen'estpasévitée,entraîneraledécèsoudes
blessuresgraves.
AVERTISSEMENT
Indiqueunesituationdangereusequi,siellen'estpasévitée,pourraitentraînerledécès
oudesblessuresgraves.
ATTENTION
Indiqueunesituationdangereusequi,siellen'estpasévitée,pourraitentraînerdes
blessureslégèresoumodérées.
VIS
A AAVIS VIS
Indiqueunesituationqui,siellen'estpasévitée,pourraitendommagerl'appareil.
Autresniveauxdemessage
Important
Indiquelesinformationsimportantes,nécessairespourassurerlebonfonctionnementde
l’appareil.
Note
Indiquelesinformationsutilesquipermettrontd’obtenirlefonctionnementoptimalde
l’appareil.
FR
51
Page 52

AXISP1368-ENetworkCamera
Consignesdesécurité
VIS
A AAVIS VIS
•LeproduitAxisdoitêtreutiliséconformémentauxloisetrèglementationslocalesen
vigueur.
•ConserverceproduitAxisdansunenvironnementsecetventilé.
•NepasexposerceproduitAxisauxchocsouauxfortespressions.
•Nepasinstallerceproduitsurdespoteaux,supports,surfacesoumursinstables.
•Utiliseruniquementdesoutilsrecommandéspourl'installationdel'appareilAxis.
L'applicationd'uneforceexcessivesurl'appareilavecdesoutilspuissantspourrait
l'endommager.
•Nepasutiliserdeproduitschimiques,desubstancescaustiquesoudenettoyants
pressurisés.
•Utiliserunchiffonpropreimbibéd'eaupurepourlenettoyage.
•Utiliseruniquementdesaccessoiresconformesauxcaractéristiquestechniquesdevotre
produit.IlspeuventêtrefournisparAxisouuntiers.Axisrecommanded'utiliserun
équipementd'alimentationAxiscompatibleavecvotreproduit.
•UtiliseruniquementlespiècesderechangefourniesourecommandéesparAxis.
•Nepasessayerderéparervous-mêmeceproduit.Contacterl'assistancetechniqued'Axis
ouvotrerevendeurAxispourdesproblèmesliésàl'entretien.
Transport
VIS
A AAVIS VIS
•LorsdutransportduproduitAxis,utilisezl'emballaged'origineouunéquivalentpour
éviterd'endommagerleproduit.
Batterie
LeproduitAxisutiliseunebatterieaulithiumCR20323,0Vcommealimentationdesonhorloge
entempsréelinterne(RTC).Dansdesconditionsnormales,cettebatterieauneduréedevie
minimaledecinqans.
Silabatterieestfaible,lefonctionnementdel'horlogeentempsréelpeutêtreaffectéetentraîner
saréinitialisationàchaquemisesoustension.Unmessageenregistréapparaîtdanslerapportde
serveurduproduitlorsquelabatteriedoitêtreremplacée.Pourtoutcomplémentd'information
concernantlerapportdeserveur,reportez-vousauxpagesdeCongurationduproduitoucontactez
l'assistancetechniqued'Axis.
Labatteriedoitêtreremplacéeuniquementencasdebesoin,etpourcefaire,contactezl'assistance
techniqued'Axisàl'adressewww.axis.com/supportetobtenirdel'aide.
52
Page 53

AXISP1368-ENetworkCamera
Lespilesboutons3,0Vaulithiumcontiennentdu1,2-diméthoxyéthane,éthylèneglycoldiméthyl
éther(EGDME),CASN°1 10-71-4.
AVERTISSEMENT
•Risqued'explosionsilabatterieestremplacéedefaçonincorrecte.
•Remplacez-launiquementparunebatterieidentiqueouunebatterierecommandéepar
Axis.
•Mettezaurebutlesbatteriesusagéesconformémentauxréglementationslocalesou
auxinstructionsdufabricantdelabatterie.
53FR54
Page 54
Page 55

AXISP1368-ENetworkCamera
Lieferumfang
•AXISP1368-ENetzwerk-Kamera
•4-poligerE/A-AnschlussblockfürdenAnschlussexternerGeräte
•2-poligerRS485/422-Anschlussblock(2x)
•Wandhalterung
•TorxT20-Schraubendreher
•TorxT30-Schraubenset
•RJ-45-Montagewerkzeug
•IK10-Werkzeug
•Antikondensationsbeutel
•GedruckteDokumente
-Installationsanleitung(diesesDokument)
-ZusätzlicheEtikettenmitderSeriennummer(2x)
-AVHS-Authentizierungsschlüssel
DE
55
Page 56

AXISP1368-ENetworkCamera
Produktübersicht
1
Wetterschutz
2
ObereAbdeckung
3
Fenster
4
Einbruchalarmmagnet
5
Sicherheitsdraht
6
Kabelbinderverankerung
7
IK10-Werkzeug
8
Einbruchalarmsensor
9
Kabelabdeckung
10
GefederteRändelschrauben(4x)
11
OptischesGerät
12
Objektiv
HINWEIS
HINWEIS HINWEIS
HebenSiedasProduktnichtindieKabelabdeckunghinein.
56
Page 57

13
StatusLED
14
NetzwerkLED
15
Netz-LED
16
microSD-Kartensteckplatz
17
E/A-Anschluss
18
RS485/422-Anschluss
19
Steuertaste
20
Netzwerkanschluss(PoE)
21
Audioausgang
22
Audioeingang
23
KabeldichtungM20(2x)
24
Blendenanschluss
AXISP1368-ENetworkCamera
DE
57
Page 58

AXISP1368-ENetworkCamera
InstallierendesProdukts
DieHardwareinstallieren
HINWEIS
HINWEIS HINWEIS
•AufgrundörtlicherVorschriftenoderderUmgebungsbedingungenundelektrischen
Bedingungen,unterdenendasProduktverwendetwird,kanneinabgeschirmtes
Netzwerkkabel(STP)empfehlenswertodernotwendigsein.AlleNetzwerkkabeldes
Produkts,dieimAußenbereichoderinanspruchsvollenelektrischenUmgebungenverlegt
werden,müssenhierfürausgelegtsein.StellenSiesicher,dassdieNetzwerkgerätegemäß
denAnweisungendesHerstellersinstalliertwurden.
InformationenzugesetzlichenBestimmungenndenSieunterRegulatoryinformation4
•VermeidenSieKratzer,BeschädigungenoderFingerabdrückeamFenster,dadiesdie
Bildqualitätbeeinträchtigenkann.
BeiderInstallationdesAxisProduktskönnendieKabeldurchdieWandoderanderWandentlang
geführtwerden.
LesenSiedieAnweisungen,bevorSiedasProduktinstallieren.
MontagederWandhalterung
VORSICHT
StellenSiesicher,dassSiediefürdasMaterial(z.B.Holz,Metall,Gipskarton,Stein)
geeignetenSchraubenundDübelverwendenunddasMaterialstabilgenugist,umdas
GesamtgewichtvonKamera,GehäuseundWandhalterungzutragen.
1.BereitenSiedieWandfürdieInstallationderWandhalterungvor.MarkierenSievordem
BohrendieBohrlöchermitderWandhalterungalsVorlage.
2.FührenSiedasNetzwerkkabeldurchdieWandhalterung.LassenSiezumAnschließen
derKameraca.30cmKabelfrei.
3.WennSieeinzusätzlichesGerätandieKameraanschließen,z.B.einE/A-oder
Audiogerätbzw.einexternesNetzteil,wiederholenSiedieobenaufgeführtenSchritte
fürjedesGerät.
4.BefestigenSiedieWandhalterunganderWand,indemSiedieSchraubenfestziehen.
Beachten
•AusführlicheAnweisungenndenSieinderbeiliegendenInstallationsanleitungfürdie
Wandhalterungoderunterwww.axis.com.
InstallierenderKamera
1.LösenSiedieSchraubenanderunterenAbdeckungundhebenSiedieobereAbdeckung
an.
58
Page 59

AXISP1368-ENetworkCamera
HINWEIS
HINWEIS HINWEIS
•WirdmehralseinKabelverwendet,mussjedesKabeldurcheineseparateKabeldichtung
geführtwerden.
•ÖffnenSiebeidenverwendetenKabeldichtungennureinLoch.WenneineKabeldichtung
eingerissenist,ersetzenSiediesedurcheineneue.WenneineKabeldichtunggeöffnet
bleibtodereineeingerisseneKabeldichtungverwendetwird,kannWassereindringenund
dasProduktbeschädigen.
2.WählenSiediezuverwendendeKabeldichtungausundziehenSieanderLasche,um
einLochfürdasNetzwerkkabelzuöffnen.
DE
1
UntereAbdeckung
2
SchraubeT20füruntereAbdeckung(4x)
3
KabeldichtungM20(2x)
4
Lasche
3.FührenSiedasNetzwerkkabeldurchdieKabeldichtung.
HINWEIS
HINWEIS HINWEIS
WenndasNetzwerkkabelübereinenvormontiertenNetzwerksteckerverfügt,entfernen
SiedieKabeldichtung,undverwendenSiedasAnschlussstück,umeinReißender
Kabeldichtungzuverhindern.VerwendenSiekeineNetzwerkkabel,dieNetzwerkstecker
mitDeckelnaufweisen,dadieseauchbeiVerwendungdesAnschlussstückszumReißen
derKabeldichtungführenkönnen.
59
Page 60

AXISP1368-ENetworkCamera
4.ZiehenSiedasNetzwerkkabeleinwenigzurück,bisdieKabeldichtungbündigumdas
Kabelsitzt.
HINWEIS
HINWEIS HINWEIS
WirddasKabelnichtzurückgezogen,kannWassereindringenunddasProduktbeschädigen.
5.VergewissernSiesich,dassdieKabeldichtungordnungsgemäßsitzt.
6.WennSieeinzusätzlichesGerätandieKameraanschließen,z.B.einE/A-oder
Audiogerätbzw.einexternesNetzteil,wiederholenSiedieobenaufgeführtenSchritte
fürjedesGerät.
HINWEIS
HINWEIS HINWEIS
BringenSiedieAnschlüssean,nachdemdieKabeldurchdieKabeldichtunggeführtwurden.
60
Page 61

AXISP1368-ENetworkCamera
DE
1
UntereAbdeckung
2
SchraubeT20(4x)
3
Wandhalterung
4
EinstellschraubeT30fürHalterung
7.SetzenSiedieuntereAbdeckungaufdieWandhalterungundziehenSiedieSchrauben
an(Drehmoment2Nm).
8.SchließenSieggf.externeEingabe-/AusgabegeräteoderAudiogeräteandieKameraan.
61
Page 62

AXISP1368-ENetworkCamera
9.WennSieeineSD-KartealslokalenSpeicherverwenden,schiebenSiedieKarteinden
SD-KarteneinschubderKamera.
10.SchließenSiedasNetzwerkkabelan.
11.VergewissernSiesich,dassdieKameraLEDsdenrichtigenBetriebszustandanzeigen.
SieheLEDsaufSeite69.
12.LösenSiedieEinstellschraubederHalterungundrichtenSiedieKameraaufdas
gewünschteZielaus.InformationenzumAnzeigendesVideostreamsndenSieunter
ZugriffaufdasProduktaufSeite65.
13.DasObjektivistbeiLieferungIK10-konformpositioniert.WennSiedasObjektivbewegen
oderaustauschen,mussdieoptischeBaugruppegemäßIK10neupositioniertwerden.
SiehePositionierendesObjektivsfürIK10aufSeite65.
62
Page 63

AXISP1368-ENetworkCamera
DE
1
Sicherheitshaken
2
Antikondensationsbeutel
14.EntfernenSiediePlastikschutzhülledesAntikondensationsbeutels.
15.EntfernenSiedenSchutzstreifenvonderKlebeächeundbringenSieden
AntikondensationsbeutelanderoberenAbdeckungan.
16.SchließenSiedasGehäuse.ZiehenSiedieSchraubenderunterenAbdeckungimWechsel
jeweilswenigeUmdrehungenan,bissiefestsitzen(Drehmoment1,5Nm).Aufdiese
Weisewirdsichergestellt,dassdieDichtungderunterenAbdeckunggleichmäßigsitzt.
HINWEIS
HINWEIS HINWEIS
StellenSiesicher,dassbeimSchließendesGehäuseskeineKabeleingeklemmtwerden.
17.LösenSieggf.dieSchraubendesSonnenschutzes,richtenSiediesenausundziehen
SiedieSchraubenwiederfest.
63
Page 64

AXISP1368-ENetworkCamera
EinrichtendesCorridorFormats
1
Feststellschraube(2x)
2
OptischesGerät
1.LösenSiebeideFeststellschrauben.
2.DrehenSiedasoptischeGerät.
3.ZiehenSiedieFeststellschraubenan.
4.RufenSieaufderProduktwebseitedieRegisterkarteStreamaufunddrehenSiedie
Ansichtum90°.
64
Page 65

PositionierendesObjektivsfürIK10
AXISP1368-ENetworkCamera
DE
1
IK10-Werkzeug
2
OptischesGerät
3
GefederteRändelschrauben(4x)
1.StellenSiedasObjektivaufdieweitestePosition.
2.BringenSiedasIK10-WerkzeuganderunterenAbdeckungan.
3.LösenSiediegefedertenRändelschrauben.
4.BewegenSiedasObjektivso,dassesdasWerkzeugberührt.
5.ZiehenSiedieRändelschraubenan.
ZugriffaufdasProdukt
FürdieSuchenachAxisProduktenimNetzwerkunddieZuweisungeinerIP-Adresseunter
Windows®werdenAXISIPUtilityundAXISCameraManagementempfohlen.BeideAnwendungen
sindkostenlosundkönnenvonwww.axis.com/supportheruntergeladenwerden.
DasProduktkannmitdenfolgendenBrowsernverwendetwerden:
65
Page 66

AXISP1368-ENetworkCamera
•Chrome
•Chrome
•Chrome
TM
(empfohlen),Firefox
TM
(empfohlen)undSafari
TM
oderFirefox
®
®
,Edge
oderOpera
®
unterOSX
®
unteranderenBetriebssystemen.
®
unterWindows
®
®
WeitereInformationenzurNutzungdiesesProduktsndenSieimBenutzerhandbuchunter
www.axis.com.
66
Page 67

AXISP1368-ENetworkCamera
ZurücksetzenaufdiewerksseitigenStandardeinstellungen
Wichtig
DieFunktionzumZurücksetzenaufdiewerksseitigenStandardeinstellungensolltemit
Vorsichtangewendetwerden.BeimZurücksetzenaufdieWerkseinstellungenwerdenalle
EinstellungeneinschließlichderIP-AdresseaufdieWerkseinstellungenzurückgesetzt.
SowirddasProduktaufdiewerksseitigenStandardeinstellungenzurückgesetzt:
1.TrennenSiedasProduktvonderStromversorgung.
2.HaltenSiedieSteuertastegedrücktundstellenSiedieStromversorgungwiederher.
SieheProduktübersicht.
3.HaltenSiedieSteuertasteetwa15bis30Sekundengedrückt,bisdieStatusLEDgelb
blinkt.
4.LassenSiedieSteuertastelos.DerVorgangistabgeschlossen,wenndieStatus
LEDgrünleuchtet.DasProduktwurdeaufdieWerkseinstellungenzurückgesetzt.
WennkeinDHCP-ServerimNetzwerkverfügbarist,lautetdieStandard-IP-Adresse
192.168.0.90.
5.VerwendenSiedieSoftware-ToolsfürInstallationundVerwaltung,umeineIP-Adresse
zuzuweisen,einKennworteinzurichtenundaufdenVideostreamzuzugreifen.
DieSoftware-ToolsfürInstallationundVerwaltungsindüberdieSupportseitenunter
www.axis.com/supportverfügbar.
DE
67
Page 68

AXISP1368-ENetworkCamera
WeitereInformationen
•Unterwww.axis.comndenSiedieaktuelleVersiondiesesDokuments.
•DasBenutzerhandbuchstehtunterwww.axis.comzurVerfügung.
•Unterwww .axis.com/supportndenSieFirmware-AktualisierungenfürIhreProdukte.
•NützlicheOnlineschulungenundWebinarendenSieunterwww.axis.com/academy.
OptionalesZubehör
EinevollständigeListemitZubehörfürdiesesProduktndenSieunterwww.axis.com.
68
Page 69

AXISP1368-ENetworkCamera
TechnischeDaten
DieaktuelleVersiondertechnischenKenndatenndenSieaufwww.axis.comunterProduct>
Support&Documentation.
LEDs
Status-LED
Grün
GelbLeuchtetbeimStart.BlinktbeimWiederherstellender
Netzwerk-LEDBedeutung
Grün
Gelb
LeuchtetnichtKeineNetzwerkverbindungvorhanden.
Netz-LEDBedeutung
Grün
Gelb
Bedeutung
LeuchtetbeiNormalbetriebgrün.
Einstellungen.
LeuchtetbeiVerbindungmiteinem100MBit/s-Netzwerk.Blinkt
beiNetzwerkaktivität.
LeuchtetbeiVerbindungmiteinem10MBit/s-Netzwerk.Blinkt
beiNetzwerkaktivität.
NormalerBetrieb.
Blinktgrün/gelbbeiderFirmware-Aktualisierung.
SD-Karteneinschub
HINWEIS
HINWEIS HINWEIS
•GefahrvonSchädenanderSD-Karte.VerwendenSiebeimEinlegenoderEntfernender
SD-Kartekeinescharfen/spitzenWerkzeugeoderGegenständeausMetallundwendenSie
nichtzuvielKraftan.SetzenSiedieKarteperHandein.DasGleichegiltfürdasEntfernen.
•GefahrvonDatenverlustundBeschädigungderAufnahmen.DieSD-Kartedarfnicht
entferntwerden,währenddasProduktinBetriebist.TrennenSiedieStromversorgung
oderdeaktivierenSiedieSD-KartevordemEntfernenüberdieWebseitedesProdukts.
DiesesProduktunterstütztmicroSD-/microSDHC-/microSDXC-Karten(separaterhältlich).
DE
EmpfehlungenzuSD-KartenndenSieunterwww.axis.com.
69
Page 70

AXISP1368-ENetworkCamera
Tasten
Steuertaste
DieSteuertastehatfolgendeFunktionen:
•ZurücksetzendesProduktsaufdieWerkseinstellungen.SieheZurücksetzenaufdie
werksseitigenStandardeinstellungenaufSeite67.
•VerbindenmiteinemAXISVideoHostingSystem-ServiceodereinemAXISInternet
DynamicDNS-Service.WeitereInformationenzudiesenDienstenndenSieinder
Bedienungsanleitung.
Anschlüsse
Netzwerkanschluss
RJ45-EthernetanschlussmitPoweroverEthernet(PoE).
Audioanschlüsse
DasAxis-ProduktistmitdenfolgendenAudioanschlüssenausgestattet:
•Audioeingang–3,5mm,füreinMonomikrofonodereinMonosignal(derlinkeKanal
wirdvoneinemStereosignalbenutzt).
•Audioausgang–3,5-mm-Audioausgang(Leitungspegel)zumAnschlussaneine
Beschallungsanlage(PA)odereinenAktivlautsprechermitintegriertemVerstärker.Für
denAudioausgangmusseinStereosteckerverwendetwerden.
Audioanschlüsse
(Stereo),3,5mm
1Spitze
Audioeingang
Audioausgang
Mikrofon-/Leitungseingang
Leitungsausgang(mono)
2Ring
ÜberE/A-Anschlüsse
DieE/A-AnschlüssedienenfürexterneGeräteinVerbindungmitManipulationsalarmen,
Bewegungserkennung,Ereignisauslösung,Alarmbenachrichtigungenusw.Abgesehenvon
70
3Schaft
Masse
Masse
Page 71

AXISP1368-ENetworkCamera
0VDC-BezugspunktundStrom(Gleichstromausgang)verfügtderE/A-Anschlussübereine
Schnittstellezu:
Digitalausgang-ZumAnschlussexternerGerätewieRelaisundLEDs.AngeschlosseneGeräte
könnenüberdieVAPIX®-API(ApplicationProgrammingInterface)oderüberdieProduktwebsite
aktiviertwerden.
Digitaleingang-ZumAnschlussvonGeräten,diezwischengeöffnetemundgeschlossenem
Schaltkreiswechselnkönnen,z.B.PIR-Sensoren,Tür-/FensterkontakteundGlasbruchmelder.
4-poligerAnschlussblock
FunktionK-
0VDC(-)
DC-Ausgang
Kongurierbar(EinoderAusgang)
HinweiseTechnischeDaten
ontakt
1
Masse
2
KannfürdieStromversorgungvonZusatzgeräten
verwendetwerden.
Hinweis:DieserKontaktkannnurfürden
Stromausgangverwendetwerden.
3–
Digitaleingang–zumAktivierenmitPin1
4
verbinden;zumDeaktivierennichtanschließen.
Digitalausgang–beiAktivierungmitPin1
verbunden;wenndeaktiviert:frei(nicht
verbunden).BeiVerwendungmiteinerinduktiven
Last,z.B.einemRelais,mussparallelzurLast
zumSchutzvorSpannungsspitzeneineDiode
zwischengeschaltetwerden.
DE
0VDC
12VDC
Max.Stromstärke=
50mA
0bismax.30VDC
0bismax.30VDC,
OpenDrain,100mA
71
Page 72

AXISP1368-ENetworkCamera
1
0VDC(-)
2
DC-Ausgang12V,max.50mA
A
E/AalsEingangkonguriert
B
E/AalsAusgangkonguriert
RS485-/RS422-Anschluss
Zwei2-poligeAnschlussblöckefürserielleSchnittstellenvomTypRS485/RS422zurSteuerungvon
Zusatzgeräten,beispielsweisezumSchwenkenundNeigen.
DerserielleAnschlusskannindenfolgenden
Anschlussmodikonguriertwerden:
•zweiadrigerRS485-Halbduplex-Anschluss
•vieradrigerRS485-Vollduplex-Anschluss
•zweiadrigerRS422-Simplex-Anschluss
•vieradrigerRS422-Vollduplex-Anschluss
(Punkt-zu-Punkt-Verbindung)
72
Page 73

AXISP1368-ENetworkCamera
FunktionKon-
RS485Balt
RS485/422RX(B)
RS485Aalt
RS485/422RX(A)
RS485/RS422TX(B)
RS485/RS422TX(A)
Wichtig
DieempfohlenemaximaleKabellängebeträgt30m.
takt
1
2
3
4
Hinweise
RX-PaarfüralleModi(kombinierterRX/TXfürRS485mit2
Leitern)
TX-PaarfürRS422undRS485mit4Leitern
Betriebsbedingungen
ProduktTemperatur
AXISP1368-E-40°Cbis55°C
Luftfeuchtigkeit
10bis100%rF
(kondensierend)
Leistungsaufnahme
HINWEIS
HINWEIS HINWEIS
VerwendenSieeineStromquellemitbegrenzterLeistung(LPS),entwedermiteiner
Nennausgangsleistungvon≤100Wodereinemdauerhaftauf≤5Abegrenzten
Nennausgangsstrom.
Produkt
AXISP1368-E
PoweroverEthernet(PoE)
IEEE802.3af/802.3atTyp
1,Klasse3
Max.9,5W
Normal:6,4W
73DE74
Page 74
Page 75

AXISP1368-ENetworkCamera
Sicherheitsinformationen
Gefährdungsstufen
GEFAHR
WeistaufeinegefährlicheSituationhin,welchezumTododerzuschwerenVerletzungen
führt.
WARNUNG
WeistaufeinegefährlicheSituationhin,welche,fallsnichtverhindert,zuTododer
schwerenVerletzungenführenkann.
VORSICHT
WeistaufeinegefährlicheSituationhin,welche,fallsnichtverhindert,zugeringfügiger
odermäßigerVerletzungführenkann.
HINWEIS
HINWEIS HINWEIS
WeistaufeinegefährlicheSituationhin,welche,fallsnichtverhindert,zuSachschäden
führenkann.
WeitereNachrichtenstufen
Wichtig
WeistaufwichtigeInformationenhin,diedenrichtigenBetriebdesProduktsgewährleisten.
Beachten
WeistaufnützlicheInformationenhin,diedieoptimaleVerwendungdesProdukts
unterstützen.
DE
75
Page 76

AXISP1368-ENetworkCamera
Sicherheitsanweisungen
HINWEIS
HINWEIS HINWEIS
•DasAxisProduktmussunterBeachtungderörtlichgeltendenGesetzteundBestimmungen
benutztwerden.
•LagernSiedasAxisProduktineinertrockenenundbelüftetenUmgebung.
•AchtenSiedarauf,dassdasAxisProduktwederStößennochstarkemDruckausgesetztist.
•InstallierenSiedasProduktnichtaninstabilenMasten,Halterungen,Oberächenoder
Wänden.
•VerwendenSiebeiderInstallationdesAxisProduktsausschließlichpassendeWerkzeuge.
EinzugroßerKraftaufwandmitelektrischenWerkzeugenkanndasProduktbeschädigen.
•VerwendenSiekeinechemischen,ätzendenoderaerosolhaltigenReinigungsmittel.
•VerwendenSiezumReinigeneinsauberes,mitdestilliertemWasserangefeuchtetesTuch.
•VerwendenSienurZubehör,dasdentechnischenVorgabenIhresProduktsentspricht.
DiesesistvonAxisoderDrittanbieternerhältlich.AxisempehltdiemitIhremProdukt
kompatibleStromversorgungvonAxis.
•VerwendenSieausschließlichErsatzteiledievonAxisangebotenoderempfohlenwerden.
•VersuchenSienicht,diesesProduktselbsttätigzureparieren.WendenSiesichbezüglich
ReparaturundWartungandenAxisSupportoderIhrenAxisHändler.
Transport
HINWEIS
HINWEIS HINWEIS
•BeiBedarftransportierenSiedasAxisProduktinderOriginalverpackungodereiner
entsprechendenVerpackung,sodassSchädenvermiedenwerden.
Batterie
DasAxis-Produktistmiteiner3,0V-CR2032-Lithium-Batterieausgestattet,mitderdieinterne
Echtzeituhr(RTC)versorgtwird.UnternormalenBedingungenhatdieBatterieeineLebensdauer
vonmindestensfünfJahren.
BeientladenerBatterieistderBetriebderEchtzeituhrnichtmehrgewährleistet,sodassdieUhrbei
jedemSystemstartzurückgesetztwird.SieerhalteneineProtokollnachrichtimServerberichtdes
Produkts,wenneinBatteriewechselerforderlichist.WeitereInformationenüberdenServerbericht
ndenSieaufdenSetup-SeitendesProdukts,oderwendenSiesichandenAxisSupport.
DieBatteriesolltenurbeiBedarfersetztwerden.WendenSiesichindiesemFallunter
www.axis.com/supportandenAxis-Support.
Lithium-Knopfzellen(3,0V)enthalten1,2-Dimethoxyethan;Ethylenglycoldimethylether(EGDME),
CAS-Nr.110-71-4.
76
Page 77

AXISP1368-ENetworkCamera
WARNUNG
•ExplosionsgefahrbeifehlerhaftemBatteriewechsel.
•DieBatteriedarfnurdurcheineidentischeBatterieodereinevonAxisempfohlene
Batterieersetztwerden.
•VerbrauchteBatteriensindgemäßdenörtlichenVorschriftenoderdenAnweisungendes
Herstellerszuentsorgen.
DE
77
Page 78

78
Page 79

Contenutodellaconfezione
•TelecameradireteAXISP1368-E
•MorsettieraI/Oa4pinpercollegaredispositiviesterni
•MorsettieraRS485/422a2pin(2)
•Montaggioaparete
•CacciaviteTorxT20
•PuntadacacciaviteTorxT30
•StrumentodimontaggioperRJ45
•StrumentoIK10
•Sacchettodell'essiccante
•Documentazione
-Guidaall'installazione(questodocumento)
-Etichettaaggiuntivaconnumerodiserie(2)
-ChiavediautenticazioneAVHS
AXISP1368-ENetworkCamera
IT
79
Page 80

AXISP1368-ENetworkCamera
Panoramicadeldispositivo
1
Schermodiprotezionedagliagentiatmosferici
2
Protezionesuperiore
3
Finestra
4
Calamitaallarmeantiintrusione
5
Cavodisicurezza
6
Ancoraggiofascetta
7
StrumentoIK10
8
Sensoreallarmeantiintrusione
9
Coperchiodeicavi
10
Viteadaletteamolla(4)
11
Unitàottica
12
Obiettivo
VVISO
A AAVVISO VVISO
Nonsollevareildispositivodallaprotezionedeicavi.
80
Page 81

13
LEDdistato
14
LEDdirete
15
PowerLED
16
SlotperschedadimemoriamicroSD
17
ConnettoreI/O
18
ConnettoreRS485/422
19
Pulsantedicomando
20
Connettoredirete(PoE)
21
Uscitaaudio
22
Ingressoaudio
23
GuarnizionecavoM20(2x)
24
Connettoredeldiaframma
AXISP1368-ENetworkCamera
IT
81
Page 82

AXISP1368-ENetworkCamera
Comeinstallareildispositivo
Installazionedell'hardware
VVISO
A AAVVISO VVISO
•Acausadellenormativelocaliodellecondizioniambientaliedelettricheincuiil
dispositivodeveessereutilizzato,potrebbeessereopportunoonecessariol'utilizzodiun
cavodireteschermato(STP).Tuttiicavidiretedeldispositivoposizionatiall'apertooin
ambientielettriciincondizionidifcilisonodestinatiallorousospecico.Accertarsichei
dispositividiretesianoinstallatisecondoleistruzionidelproduttore.
Permaggioriinformazionisuirequisitinormativi,consultareRegulatoryinformation4
•Nongrafare,danneggiareolasciareimprontedigitalisullanestraperpreservare
laqualitàdell'immagine.
ÈpossibileinstallareildispositivoAxisinstradandoicaviattraversoolungolaparete.
Leggereattentamentetutteleistruzioniprimadiinstallareildispositivo.
Installazionedelsupportoperilmontaggioaparete
ATTENZIONE
Vericarechelevitieitassellisianoadattialmaterialedellaparete(es.legno,metallo,
cartongesso,pietra)echeilmaterialesiaingradodisosteneretelecamera,alloggiamentoe
supportoperilmontaggioaparete.
1.Prepararelapareteperl'installazionedelsupporto.Utilizzareilsupportoperilmontaggio
aparetecomeproloecontrassegnareipuntidatrapanare.
2.Farpassareilcavodireteattraversolastaffaaparete.Lasciarecirca30cm(11,8pollici)di
cavoperilcollegamentoallatelecamera.
3.Incasodiconnessionediundispositivo(es.diI/O,audiooalimentazioneesterna)alla
telecamera,ripetereilpassaggioprecedente(seconsentitoperildispositivoinquestione).
4.Fissarelastaffaallapareteserrandoleviti.
Nota
•Peristruzionidettagliate,consultarelaguidaall'installazionedelsupportodimontaggioa
paretepresentenellaconfezioneedisponibileall'indirizzowww.axis.com
Installazionedellatelecamera
1.Allentarelevitidellaprotezioneinferioreesollevarelapartesuperiore.
VVISO
A AAVVISO VVISO
•Sevieneutilizzatopiùdiuncavo,instradareciascuncavoattraversounaguarnizione
separata.
•Aprireunforosolonelleguarnizioniutilizzateesostituirleincasodidanno.Una
guarnizionepercaviapertaodanneggiatapotrebbecausareinltrazionid'acquanel
dispositivoedanneggiarlo.
82
Page 83

AXISP1368-ENetworkCamera
2.Sceglierelaguarnizionepercavidausareetirarelalinguettaperaprireilforoper
ilcavodirete.
1
Protezioneinferiore
2
VitedellaprotezioneinferioreT20(4x)
3
GuarnizionecavoM20(2x)
4
Linguetta
3.Inserireilcavodireteattraversolaguarnizionepercavi.
VVISO
A AAVVISO VVISO
Seilcavodiretedisponediunconnettorepreinstallato,rimuoverelaguarnizionepercavie
usarelaprotezionedelconnettoreperevitaredanniallaguarnizione.Nonusarecavidirete
dotatidiconnettoridiretecontappi,poichépotrebberodanneggiarelaguarnizionedel
cavononostantelaprotezionedelconnettore.
IT
4.Tiraredelicatamenteilcavodireteinmododaadattarelaguarnizionealcavo.
83
Page 84

AXISP1368-ENetworkCamera
VVISO
A AAVVISO VVISO
Seilcavononvienetiratopotrebberovericarsiinltrazionid'acquaedannialprodotto.
5.Vericareilcorrettomontaggiodellaguarnizionedelcavo.
6.Incasodiconnessionediundispositivo(es.diI/O,audiooalimentazioneesterna)alla
telecamera,ripetereipassaggiprecedenti(seconsentitoperildispositivoinquestione).
VVISO
A AAVVISO VVISO
Montareiconnettoridopoaverspintoicaviattraversolaguarnizionedelcavo.
1
Coperchioinferiore
2
ViteT20(4)
3
Staffaaparete
4
VitediregolazionedellastaffaT30
7.Posizionareilcoperchioinferioresulsupportoperilmontaggioapareteeserrareleviti
(conunacoppiadi2Nm).
84
Page 85

AXISP1368-ENetworkCamera
8.Senecessario,collegareallatelecameradispositiviI/Oesterniodispositiviaudio.
9.Sesiutilizzaunaschedadimemoriaperl'archiviazionelocale,inserirlanell'apposito
slotdellatelecamera.
10.Collegareilcavodirete.
11.VericarecheiLEDdellatelecameraindichinolacorrettacondizione.Consultare
IndicatoriLEDallapagina92.
12.Allentarelavitediregolazionedellastaffaperorientarelatelecameraversoilpunto
desiderato.Perinformazionisullavisualizzazionedelussovideo,consultareCome
accederealdispositivoallapagina88
13.Allaconsegna,l'obiettivoèposizionatocorrettamenteperIK10.Sesispostaosi
sostituiscel'obiettivo,ènecessarioriposizionareilgruppootticopermettereinsicurezza
IK10;consultareModalitàdiposizionamentodell'obiettivoperIK10allapagina88.
IT
85
Page 86

AXISP1368-ENetworkCamera
1
Ganciodisicurezza
2
Sacchettodell'essiccante
14.Rimuoverelabustadiplasticadalsacchettodell'essicante.
15.Rimuoverelastrisciadiprotezionedall'adesivoessareilsacchettodell'essicanteal
coperchiosuperiore.
16.Chiuderelacustodia.Girarelevitidelcoperchioinferioreinmanieraalternatanché
nonsonotutteserrate(conunacoppiadi1,5Nm).Inquestomodo,laguarnizionedel
coperchioinferiorevienecompressainmodouniforme.
VVISO
A AAVVISO VVISO
Fareinmodocheicavinonrestinoincastratidurantelachiusuradellacustodia.
17.Senecessario,allentarelevitidelloschermodiprotezionedagliagentiatmosferici,
regolarnelaposizioneeserrareleviti.
86
Page 87

Modalitàdicongurazionedelformatocorridoio
AXISP1368-ENetworkCamera
IT
1
Vitediarresto(2)
2
Unitàottica
1.Allentareleduevitidiarresto.
2.Ruotarel'unitàottica.
3.Stringerelevitidiarresto.
4.AndareallaschedaStream(Flusso)sullapaginaWebdeldispositivoeruotarelavistadi
90°.
87
Page 88

AXISP1368-ENetworkCamera
Modalitàdiposizionamentodell'obiettivoperIK10
1
StrumentoIK10
2
Unitàottica
3
Viteadaletteamolla(4)
1.Regolarelozoomdell'obiettivonellaposizionepiùampia.
2.FissarelostrumentoIK10alcoperchioinferiore.
3.Allentarelevitiadaletteamolla.
4.Spostarel'obiettivoinmodocheaderiscaallostrumento.
5.Stringerelevitiadalette.
Comeaccederealdispositivo
AXISIPUtilityeAXISCameraManagementsonoimetodiconsigliatipertrovareidispositiviAxisin
reteeassegnarelorounindirizzoIPinWindows®.Questeapplicazionisonoentrambegratuitee
possonoesserescaricatedalsitoWebwww.axis.com/support
Ildispositivopuòessereutilizzatoconibrowserseguenti:
88
Page 89

AXISP1368-ENetworkCamera
•Chrome
•Chrome
•Chrome
TM
(consigliato),Firefox
TM
(consigliato)oSafari
TM
oFirefox
®
conaltrisistemioperativi.
®
,Edge
®
conOSX
®
oppureOpera
®
®
conWindows
Perulterioriinformazionisull'utilizzodeldispositivo,consultareilManualeperl'utentedisponibile
sulsitoWeball'indirizzo:www.axis.com
®
IT
89
Page 90

AXISP1368-ENetworkCamera
Modalitàdiripristinodeivaloripredefinitidifabbrica
Importante
Ilripristinodelleimpostazionipredenitedifabbricadeveessereutilizzatoconcautela.
Taleoperazioneconsentiràdiripristinareleimpostazionidifabbricapertuttiiparametri,
inclusol'indirizzoIP.
Perripristinareildispositivoalleimpostazionipredenitedifabbrica:
1.Scollegarel'alimentazionedaldispositivo.
2.Tenerepremutoilpulsantedicomandoquandosiricollegal'alimentazione.Consultare
Panoramicadeldispositivo.
3.Tenerepremutoilpulsantedicomandoper15-30secondinchél'indicatoreLEDdistato
nonlampeggiaingiallo.
4.Rilasciareilpulsantedicomando.Ilprocessoècompletoquandol'indicatoredelLED
distatodiventeràverde.Ildispositivoèstatoreimpostatoalleimpostazionidifabbrica
predenite.SenessunserverDHCPèdisponibileinrete,l'indirizzoIPpredenitoè
192.168.0.90
5.Utilizzareglistrumentiperl'installazioneelagestionedelsoftwareperassegnareun
indirizzoIP,impostarelapasswordeaccederealussovideo.
Glistrumentiperl'installazioneelagestionedelsoftwaresonodisponibilinellepagine
dedicateall'assistenzasulsitoWebwww.axis.com/support
90
Page 91

AXISP1368-ENetworkCamera
UlterioriInformazioni
•Perlaversionepiùrecentediquestodocumento,visitareilsitoall'indirizzowww.axis.com
•Ilmanualeperl'utenteèdisponibileall'indirizzowww.axis.com
•Pervericaresesonostatipubblicatiaggiornamentidelrmwareperilproprio
dispositivo,vederewww.axis.com/support
•Perservizidiformazioneutiliewebinar,visitailsitowww.axis.com/academy
Accessoriopzionali
Perunelencocompletodegliaccessoridisponibiliperquestodispositivo,andarealsito
www.axis.com
IT
91
Page 92

AXISP1368-ENetworkCamera
Specifichetecniche
Perlaversionepiùaggiornatadellaschedatecnica,visitareilsitowww.axis.com>prodotto>
Supportoedocumentazione.
IndicatoriLED
LEDdistatoIndicazione
VerdeLuceverdessa:condizionidinormaleutilizzo.
Giallo
LEDdireteIndicazione
Verde
Giallo
Spento
LEDdialimentazioneIndicazione
VerdeNormaleutilizzo.
Giallo
Lucessadurantel'avvio.Lampeggiaduranteilripristinodelle
impostazioni.
Lucessaperconnessionediretea100Mbit/s.Luce
lampeggiante:attivitàdirete.
Lucessaperconnessionediretea10Mbit/s.Luce
lampeggiante:attivitàdirete.
Assenzadiconnessione.
Lucelampeggianteverde/gialla:aggiornamentormware.
SlotperschedaSD
VVISO
A AAVVISO VVISO
•Rischiodidanneggiamentodellaschedadimemoria.Nonutilizzarestrumentiappuntiti
oppureoggettimetallicienonesercitareeccessivaforzadurantel'inserimentoola
rimozionedellaschedadimemoria.Utilizzareleditaperinserireerimuoverelascheda.
•Rischiodiperditadidatiedanneggiamentodelleregistrazioni.Nonrimuoverelaschedadi
memoriamentreildispositivoèinfunzione.Scollegarel'alimentazioneoppuresmontare
laschedadimemoriadallepagineWebdeldispositivoprimadirimuoverla.
QuestodispositivosupportaschedemicroSD/microSDHC/microSDXC(schedadimemorianon
inclusa).
PericonsiglisullaschedaSD,visitareilsitoWebwww.axis.com.
92
Page 93

AXISP1368-ENetworkCamera
Pulsanti
Pulsantedicomando
Ilpulsantedicomandovieneutilizzatoper:
•Ripristinodeldispositivoalleimpostazionipredenitedifabbrica.ConsultareModalitàdi
ripristinodeivaloripredenitidifabbricaallapagina90.
•CollegamentoaunservizioAXISVideoHostingSystemoadAXISInternetDynamicDNS
Service.Perulterioriinformazionisuquestiservizi,consultareilManualeUtente.
Connettori
Connettoredirete
ConnettoreEthernetRJ45conPoweroverEthernet(PoE+).
Connettoreaudio
IldispositivoAxisdisponedeiseguenticonnettoriaudio:
•Ingressoaudio:inputda3,5mmpermicrofonomonoosegnaleingressolineamono
(ilcanalesinistrovieneutilizzatodaunsegnalestereo).
•Uscitaaudio:3,5mm(dilinea)cheèpossibilecollegareaunsistemadiindirizzo
pubblico(PA)oaunaltoparlanteconamplicatoreintegrato.Perl'uscitaaudioè
necessariousareunconnettorestereo.
Connettoriaudioda
3,5mm(stereo)
1Punta2Anello
Ingressoaudio
Uscitaaudio
InformazionisuiconnettoriI/O
Ingressomicrofono/linea
Uscitalinea(mono)
IT
3Guaina
Terra
Terra
UtilizzareilconnettoreI/Ocondispositiviesterniincombinazionecon,adesempio,allarmi
antimanomissione,rilevamentomovimento,attivazionedieventienotichediallarme.Oltreal
puntodiriferimento0VCCeall'alimentazione(uscitaCC),ilconnettoreI/Oforniscel'interfaccia
per:
93
Page 94

AXISP1368-ENetworkCamera
Uscitadigitale-PercollegaredispositiviesternicomerelèoLED.Idispositivicollegatipossono
essereattivatitramitel'API(interfacciaperlaprogrammazionediapplicazioni)VAPIX®oppurenella
paginaWebdeldispositivo.
Ingressodigitale-Percollegareidispositivichepossonopassaredalcircuitochiusoalcircuito
aperto,adesempioisensoriPIR,icontattiporta/nestraeirilevatoridirottura.
Morsettieraa4pin
FunzionePinNote
0VCC(-)
UscitaCC
Congurabile(ingressoouscita)
1
TerraCC0VCC
2
Puòessereutilizzatoperalimentareunaperiferica
ausiliaria.
Nota:questopinpuòessereusatosolocome
uscitaalimentazione.
3–
Ingressodigitale-collegarealpin1per
4
attivarlooppurelasciarloisolato(scollegato)per
disattivarlo.
Uscitadigitale–Collegarealpin1quando
attiva,isolata(scollegata)quandoinattiva.Se
utilizzataconuncaricoinduttivo,adesempioun
relèesterno,ènecessariocollegareundiodoin
paralleloalcaricoperproteggereildispositivoda
sovratensioni.
Speciche
12VCC
Caricomassimo=
50mA
da0amax30VCC
Da0amax30VCC,
open-drain,100mA
94
Page 95

1
0VCC(-)
2
UscitaCC12V,max50mA
A
I/Oconguratocomeingresso
B
I/Oconguratocomeuscita
AXISP1368-ENetworkCamera
IT
ConnettoreRS485/RS422
Duemorsettierea2pinperl'interfacciaserialeRS485/RS422utilizzateperilcontrollodiperiferiche
ausiliariecomeidispositividirotazione/inclinazione.
Laportaserialepuòessereconguratapersupportare:
•RS485adueli,half-duplex
•RS485aquattroli,full-duplex
•RS422adueli,simplex
•Comunicazionefull-duplexpuntoapunto
conRS422aquattroli
FunzionePinNote
RS485Balt
RS485/422RX(B)
RS485Aalt
RS485/422RX(A)
1
2
CoppiaRXpertuttelemodalità(RX/TXcombinataperRS485
conduecavi)
95
Page 96

AXISP1368-ENetworkCamera
RS485/RS422TX(B)
RS485/RS422TX(A)
Importante
Lalunghezzadelcavomassimaconsigliataèdi30m.
3
4
CoppiaTXperRS422eRS485conquattrocavi
Condizionidifunzionamento
DispositivoTemperatura
AXISP1368-EDa-40°Ca55°C
Umidità
10-100%umiditàrelativa
(concondensa)
Consumoenergetico
VVISO
A AAVVISO VVISO
Utilizzareunasorgentedialimentazionelimitata(LPS)conunapotenzadioutputnominale
limitataa≤100Wounacorrentedioutputnominalelimitataa≤5A.
Dispositivo
AXISP1368-E
PoweroverEthernet(PoE)
IEEE802.3af/802.3atTipo
1Classe3
Max9,5W
Tipico6,4W
96
Page 97

AXISP1368-ENetworkCamera
Informazionidisicurezza
Livellidipericolo
PERICOLO
Indicaunasituazionepericolosache,senonevitata,provocamorteolesionigravi.
AVVERTENZA
Indicaunasituazionepericolosache,senonevitata,potrebbeprovocarelamorteolesioni
gravi.
ATTENZIONE
Indicaunasituazionepericolosache,senonevitata,potrebbeprovocarelesionimedie
ominori.
VVISO
A AAVVISO VVISO
Indicaunasituazioneche,senonevitata,potrebbedanneggiarelaproprietà.
Altrilivellidimessaggio
Importante
Indicainformazioniimportanti,essenzialiperilcorrettofunzionamentodeldispositivo.
Nota
Indicainformazioniutilicheaiutanoaottenereilmassimodaldispositivo.
IT
97
Page 98

AXISP1368-ENetworkCamera
Informazionidisicurezza
VVISO
A AAVVISO VVISO
•IldispositivoAxisdeveessereutilizzatoinconformitàalleleggiealledisposizionilocali.
•ConservareildispositivoAxisinunambienteasciuttoeventilato.
•EvitarediesporreildispositivoAxisaurtiopressionieccessive.
•Noninstallareildispositivosusupporti,superci,paretiopaliinstabili.
•UtilizzaresolostrumentiapplicabiliquandosiinstallaildispositivoAxis.Sesiutilizzauna
forzaeccessivaconstrumentinonadattièpossibilecausaredannialdispositivo.
•Nonutilizzaresostanzechimiche,agenticausticiodetergentiaerosol.
•Utilizzareunpannopulitoinumiditoinacquapuraperlapulizia.
•Utilizzaresoloaccessoricompatibiliconlespecichetecnichedeldispositivo.Questi
possonoesserefornitidaAxisodaterzeparti.Axisconsiglial'usodell'apparecchiaturadi
alimentazioneAxiscompatibileconildispositivo.
•UtilizzaresolopartidiricambioforniteoconsigliatedaAxis.
•Nontentarediriparareildispositivodasoli.Contattarel'assistenzaoilrivenditoreAxis
perquestionirelativeallamanutenzione.
Trasporto
VVISO
A AAVVISO VVISO
•DuranteiltrasportodeldispositivoAxis,utilizzarel'imballaggiooriginaleoequivalente
perevitaredannialdispositivo.
Batteria
IldispositivoAxisutilizzaunabatteriaallitioda3,0VCR2032comealimentazioneperilsuo
real-timeclock(RTC)interno.Incondizioninormaliquestabatteriaavràunadurataminima
dicinqueanni.
UnabassacaricadellabatteriainuiscesulfunzionamentodelRTC,facendoloresettareaogni
accensione.Quandolabatteriadeveesseresostituita,unmessaggiodiregistrovienevisualizzato
nelreportserverdeldispositivo.Perulterioriinformazionisulreportserver,vederelepaginedi
congurazionedeldispositivoocontattarel'assistenzaAxis.
Labatterianondeveesseresostituitasenonrichiesto,manelcasoincuiquestofossenecessario,
contattareilsupportoAxisall'indirizzowww.axis.com/supportperassistenza.
Batteriaabottoneallitio3,0Vcontengono1,2-dimetossietano;eteredimetilicodiglicoleetilenico
(EGDME),CASn.110-71-4.
AVVERTENZA
98
Page 99

AXISP1368-ENetworkCamera
•Rischiodiesplosioneselabatteriavienesostituitainmodoerrato.
•SostituiresoloconunabatteriaidenticaounabatteriaconsigliatadaAxis.
•Smaltirelebatterieusateinbaseallenormativelocalioalleistruzionidelproduttore
dellabatteria.
IT
99
Page 100

100