 
   
13.500 Gauss Aussendurchmesser: 17.8 cm.
Axiette 8
AXIOM 10 10" (25.4 cm)
Impedanz
Preis:
Impedanz:
Preis:
AXIOM 80 91/2"
Aussendurchmesser: Ausschnittsdurchmesser: Befestigungslöcher:
0.7 cm (viermal) auf
Twinaxiette 8 4 mal 0.7 im gleichen Abstand auf einem Kreis von 19,4 cm. Twinaxiette 8 DM 102.-
40-15 000 Hz 40-15,000 Hz. 10 Watt, 20 Watt DIN
45 Hz. 13.500 Gauss
Aussendurchmesser: Refestioungslöcher
AUDIOM 61 BASS 12"
Preis:
20 Watt 40 Watt DIN 8 oder 15 Ohm 0.8 cm in aleichen
DM 265.-
38,2 cm cm auf einem Kreis von 36.51 cm
Durchmesser in gleichem Abstand DM 439.-
     
   
     
   
     
   
DM 298,-
Die Beschreibungen in dieser Veröffentlichung sind zur Zeit des Druckes richtig. Wir behalten uns jedoch das Recht auf Änderungen ohne vorherige Ankündigung vor, da diese aus der weitergehenden Entwicklung stammen
     
   
     
   
     
   
Durchmesser von DM 108,-
20-20,000 H2 6 Watt, 12 Watt DIN 20 Hz 20 Hz 17.000 Gauss 22,5 cm von gleich massigem Abstand DM 283.-
Axiom 201 13.000 Gauss Aussendurchmesser: Ausschnittsdurchmesser: Befestigungslöcher:
AXIOM 201 12" - AXIOM 301 12"
Preis Axiom 201
16.500 Gauss 8 oder 15 Ohm Kreisdurchmesser DM 189,-DM 281,-
8 oder 15 Ohm Spezial - Lautsprecher mit einer Belastbarkeit von 100 Watt Sinus bzw. 200 Watt DIN Alle Audiom Typen gibt es auch als Standard Audiom Standard Typen sind für Lead – und Bass DM 598 -
14.000 Gauss
     
   
     
   
     
   
Frequenzbereich 2.500 Hz bis 20.000 Hz, geradliniger Frequenzverlauf mit äusserst geringem Klirrgrad. Frequenzübergang der Weiche wird bei 5000 Hz empfohlen (XO 5000). Belastbarkeit: 25 Watt. 50 Watt DIN
Frequenzbereich: 5000 Hz bis 20 000 Hz Der Klirrgrad dieses hochwertigen Druckkammerhorns ist sehr klein. Da es eine eingebaute Frequenzweiche und einen stufenlosen Attenuator besitzt, wird dieser hervorragende Hochtöner auch oft zur Aufbesserung der Höhen in Hifi-Preis: DM 115 - Boxen verwendet Preis DM 136 -
     
   
Frequenzbereich: 650–8000 Hz. geradlinig und mit hohem Wirkungsgrad. Übergangsfrequenzen: 950 und 5000 Hz. Belastbarkeit: 25 Watt Sinus, DIN 50 Watt. Proje DM 185 -
Frequenzregler zur Verwendung mit der Midax und Trebax 100. Sie können dadurch Midax und Trebax akustisch Ihrem Wohnraum anpassen. 8-stufenweise regelbar. 12 db umfassend. Preis: DM 51,-
| FR | EQU | ENZW | EICHE | 
|---|---|---|---|
| VO | 1050 | 1000 | 11. | 
| XO/950/5000 | Übergangsfrequenzen: 950 und 5000. Hz. Wird gel | oraucht für Audiom | 
|---|---|---|
| Bass-Einheiten Midax und Trebax 100. | Preis: DM 137,- | |
| XO/950 | Übergangsfrequenz: 950 Hz. Wird benötigt beim Hi | nzufügen der Midax | 
| an Audiom bass. | Preis: DM 110,- | |
| XO/5000 | Übergangsfrequenz: 5000 Hz. Wird benötigt beir | n Hinzufügen einer | 
| Trebax 100 an Axiom lautsprecher? | Preis: DM 46,- | |
Patentierte Goodmans Erfindung, um kleinere Gehäuse zu bauen. Beim Einbau eines ARU (siehe Goodmans Manual) können Sie 7/3 des vorgeschlagenen Gehäusevolumen einsparen. (Nur bei Bassreflexgehäusen.)
| A R U Modell | Lautsprecher | A R U Öffnung – Ausschnitt | 
|---|---|---|
| 180 | 1 Axiom 80 | 30,5 cm x 17,8 cm | 
| 280 | 2 Axiom 80 1 Audiom 81 bass | 44,5 cm × 25,4 cm | 
     
   
Die oben gezeigten Hifi-Bausteine dienen zum Selbstbau von Hifi-Boxen für allerhöchste Ansprüche. Durch den Selbstbau Ihrer eigenen Hifi-Box haben Sie die Möglichkeit, Ihren Lautsprecher in Stufen zu vollenden, wie es auf der Rückseite genauer beschrieben wird. Ferner können Sie durch den Selbstbau eine Spitzenbox bis zur Hälfte des Boxenpreises sparen. Die von uns angegeben Gehäusevorschläge können natürlich in den Proportionen beliebig verändert werden. Sie sollten jedoch volumenmässig 10% innerhalb des vorgeschlagenen Gehäusevolumens bleiben. Bei grösseren Abweichungen wird die Balance zwischen Bass und dem Mittel-Hochtonbereich verändert. Die Gehäusegrösse richtet sich allein nach dem verwendeten Basslautsprecher. Der Gehäusevorschlag für die Vollbereichlautsprecher (Breitband) gilt demnach ebenfalls für die Basslautsprecher Audiom 51 bass und Audiom 61 Bass. Bei der Verwendung eines 3-Weg-Systems müssen die Basslautsprecher mit den hochwertigen XO - Weichen mit den Mitteltönern (Midax oder Axiette) und Hochtönern (Trebax 100 bzw. Trebax 5/K20 XL) verbunden werden. Im allgemeinen werden luftdicht geschlossene Gehäuse (geschlossenes Prinzip) wegen des kleinen Gehäuse Inhalts bevorzugt. Bei der Verwendung einer Bass-reflex-Box kann das Gehäuse durch die Verwendung des ARU um ein drittel verkleinert werden.
Deutschland: BOYD & HAAS, 5 KOLN, BEUELSWEG 15 Die Schweiz: TON STUDIO "2" A.G. THUNSTRSASSE 20, 3000 BERN
     
   
Es ist relativ einfach, eine hochwertige Hifi-Lautsprecher-Box mit GOODMANS-CHASSIS zu bauen. Entweder begnügen Sie sich mit einem der aufgeführten Breithand. Chassis oder Sie nehmen Basschassis Mitteltöner (Midax) und Hochtöner (Trebax), Eine dritte Möglichkeit besteht indem man den stufenweisen Aufbau wählt und das zuerst verwendete Breitbandsystem durch späteres Hinzufügen von Trebax und vielleicht auch noch einer Midax verbessert. Die letztere Methode wird meist von Hifi Enthusiasten gewählt, deren Mittel nur einen stufenweisen Aufbau ermöglichen.
GOODMANS-CHASSIS werden von Tonstudios, Rundfunkanstalten, Tonmeistern, Musikern und von Hifi-Freunden verwendet und geschätzt. Stufenweise sehen Sie Ihre Hifi-Anlage wachsen, die Ihnen endlose Stunden höchster Freude schenkt.
     
   
     
   
RECHTECK – BOX (REFLEXGEHÄUSE) AXIOM 10 – (25,4 cm)
für Axiette 8 und Twinaxiette.
Das Gehäuse sollte stabil gezimmert sein, aus Sperrholz oder Tischlerplatte von mindestens 19 mm Stärke. Die Innenseite wird mit 3 cm dicker Steinwolle ausgefüttert. (Silan von Grünzweig & Hartmann). Das Volumen der Box für Axiette 8 und Twinaxiette sollte ca. 50 Liter Inhalt haben. RECHTECKIGES REFLEXGEHÄUSE AXIETTE 8 UND TWINAXIETTE
     
   
4 Löcher mit 6 mm Durchmesser auf der Aussenseite versenkt. Versenkerung auf der Innenseite 9,5 mm auf Durchmesser von 24,44 cm in gleichen Abstand von einander.
     
   
Für den Axiom – 10 empfehlen wir eine 100 Liter Box aus wenigstens 19 mm dicker Tischlerplatte. Der Lautsprecher wird wie bei allen anderen Boxen von innen montiert. Nachdem der Bespannstoff auf die Vorderwand aufgezogen und diese eingesetzt ist, wird die Glaswolle an den Innenwänden befestigt.
Alle 12" Breithandlautsprecher und Basslautsprecher von Goodmans (Axiom 201, 301, Audiom 51, 61) sind Langhublautsprecher und können als Bassreflexbox gebaut werden, wie unser Vorschlag zeigt. Das verwendete Holz sollte eine 2.4 cm dicke Tischlerplatte sein. Das Gehäuse sollte, wenn möglich, immer zwei – oder dreimal verstrebt werden. (Vierkantlatte von Vorderwand zur Rückwand (geschraubt), sowie zweimal die Seitenwand). Die Bassreflexbox hat einen Literinhalt von 200 Liter. (Bei Verwendung des ARU 172 nur 126 Liter).
     
   
     
   
Meist wird jedoch ein kleineres Gehäuse gewünscht unter Zugrundelegung des geschlossenen Prinzips. Hierbei muss das Gehäuse hermetisch oder luftdicht geschlossen sein. Wir empfehlen 19 mm bzw. 24 dicke Tischlerplatte. Das Gehäuse sollte 70 cm x 40 cm x 30 cm gross sein und gut mit Silan Steinwolle ausgepolstert werden. Die Box kann später oder gleich mit Midax und Trebax verbessert werden. Hierfür müssen jedoch Frequenzweichen verwendet werden. (Siehe Stufe 2 und Stufe 3).
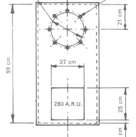
Der Audiom 81 Bass ist ein Langhublautsprecher und kann in ein Bass reflexgehäuse sowie in ein geschlossenes Gehäuse eingebaut werden. Um bei dem Bassreflexprinzip das Gehäuse klein zu halten, wird der ARU 280 verwendet. Empfohlene Aussenmasse: 102 cm x 52 cm x 35 cm Holzstärke: 28 cm oder mehr
Bei der Verwendung eines geschlossenen Gehäuses schlagen wir folgende Aussenmasse vor: 81 cm x 48 cm x 32 cm. Bei beiden Versionen empfehlen wir die Kombination Midax und Trebax mit der XO/950/5000 Frequenzweiche.
     
   
     
   
     
   
BEI GOODMANS STIMMT DER TON




 Loading...
 Loading...