
APPLICATION:
JOB NAME:
QUANTITY:
ITEM NO.
PRODUCT NAME:
PRE-RINSE, SWIVEL STYLE,
WALL MOUNT
SPECIAL CONFIGURATION
CHECK BASE MODEL AND OPTIONS
MODEL:
2211
2211-WB
ULTRA SPRAY VALVE NO WALL BRACKET
ULTRA SPRAY VALVE W/ WALL BRACKET
OPTIONS OR MODIFICATIONS:
SUPPLY LINES (24" OR 36") CIRCLE LENGTH
ADD-ON FAUCET (6", 8", 10", 12", 14", 16") CIRCLE
IN-LINE DUAL CHECK VALVE
PIPE HOOK
BRUSH
NIPPLES
ELBOWS
HANDLES (CROSS OR WRIST) CIRCLE STYLE
VANDAL RESISTANT KIT
OTHER
SPEC. 2211 REV. B
FEATURES
CONTROL VALVE
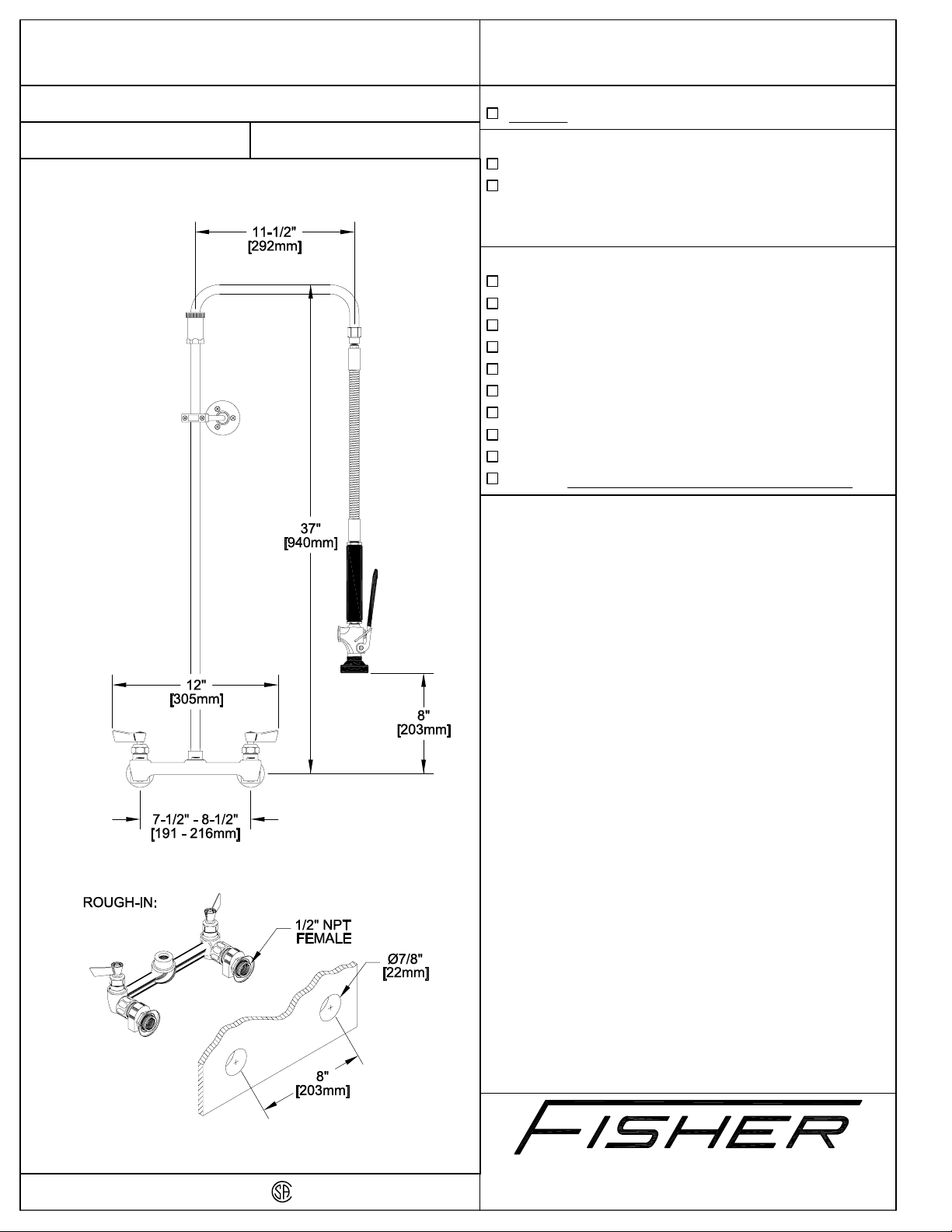
* ECCENTRICS ADJUST FROM 7-1/2" TO 8-1/2"
* INTERNAL SPRING LOADED CHECK VALVES
* HOT SIDE - RIGHT HAND, COLD SIDE - LEFT HAND
* SWIVELLING SEAT DISKS
* STAINLESS STEEL SEATS
* STAINLESS STEEL SEAT SCREWS
* STAINLESS STEEL HANDLE SCREWS
HOSE
* 15-1/2" LENGTH
* STAINLESS STEEL END FITTINGS
* STAINLESS STEEL EXTERNAL JACKET
* 3-PLY FIBER REINFORCED INTERNAL RUBBER HOSE
ULTRA SPRAY VALVE
* LOWEST ENERGY USER - 1.15 GPM @ 60 PSI
*
CLEANS FASTER - TEST PROVEN
* ENGINEERED TO LAST - NO 'O' RINGS TO LEAK
* INTERCHANGEABLE - FITS ALL BRANDS
SYSTEM LIMITS
* TEMP: 40°F MIN. TO 140°F MAX.
* PRESSURE: 200 PSI MAX. STATIC
EPAct 2005 Compliant
ANSI/A112.18.1M
SHIPPING WEIGHT
* 12.0 LBS
FISHER MANUFACTURING COMPANY
TOLL FREE: 800-421-6162 - FAX: 800-832-8238
information@fisher-mfg.com - www.fisher-mfg.com