Page 1

iNSTALLATION AND SERVICE MUST BE PERFORMED BY A QUALiFiED INSTALLER.
iMPORTANT: SAVE FOR LOCAL ELECTRICALINSPECTOR'S USE.
READ AND SAVE THESE iNSTRUCTiONS FOR FUTURE REFERENCE.
If the information in this manual is not followed exactly, a fire
or explosion may result causing property damage, personal injury or death.
FOR YOUR SAFETY:
--Do not store or use gasoline or other flammable vapors and liquids in the
vicinity of this or any other appliance.
--WHAT TO DO IF YOU SMELL GAS:
• Do not try to light any appliance.
• Do not touch any electrical switch; do not use any phone in your building.
• Immediately call your gas supplier from a neighbor's phone. Follow the
gas supplier's instructions.
• If you cannot reach your gas supplier, call the fire department.
--Installation and service must be performed by a qualified installer, service
agency or the gas supplier.
30" Min.
WALL (76,2 cm Min.)
These surfaces should be flat _,__
& leveled (hatched area). _ 30" M n _"
1/2" min._ (76 2 cm) IVIn """_"'_ / \ 13"
(see Note 3) _ (33 cm)
5" Min. _ 18" Min.
1 1/2"Max. Fro(l_a_r_o?4n_), \ _[ (45.... 7csides I _ m) Min.
Referto your serialplate for
applicableagencycertification
Appliances installed in the
state of Massachusetts:
ThisAppliancecan onlybe installed
in the stateof Massachusettsbya
Massachusettslicensedplumber or
gasfitter.
Thisappliancemust beinstalled
with athree (3)foot / 36 in. long
flexiblegasconnector.
A"T" handletype manualgas
valve mustbe installedin the gas
supplyline to thisappliance.
(3,8cm Max.)
Shave _ _,--
Raised / \ Ir _.._;,t--_ __3/8" min.
Edge __._t_ _i____ 31 1/2" - 1/2" _nin. _
to Clear _ ,_ J ' (81 cm) _ _-_.--_ i /'J
Space _ J' Exact i
for a 311/2'' _ e '_
(80 cm) Wide "_/
Cooktop. _ L _::::::.;_-_t',"-, ' -
_?_-Approx. 1 7/8"
• _:::::_. (4 8 cm)
./F "--<----4! i
Locate Cabinet Doors 1 (2 5 cm)
M . utout Open;'_g.'
iMPORTANT: _- W _.4_ -'---4 / (61 cm Min)
Cabinet and .. i _ _ _ | / "
countertop width
should match the _ E ,_i _ Grounded Junction Box or Wall Outlet Should Be
cutout width, ii i i Located 8" to 17" (20,3 cm to 43,2 cm) From Right
Cabinet and 2" to 4" (5,1 cm to 10,2 cm) From Floor.
A!H i WIDTH TOP DEPTHTO E. CUTOUT WIDTH * F; CUTOUT G. HEIGHT
EIGHT , C: CooK i
WIDTH FRONTOF RANGE (Countertop and DEPTH [ ©F COUNTERTOP
35 5/8" (90.5 cm) 30" (76,2 crn) 31Y2" (80 crn) 28 5/16" (71,9 cm) 30_+1/16" (76,2_+0,15cm) 21 3/4" (55,2 crn) Min. 36 5/8" (93 cm) Max.
- 36 5/8" (93 crn) 22 1/8" (56,2 crn) Max 35 3/4" (90.8 cm)
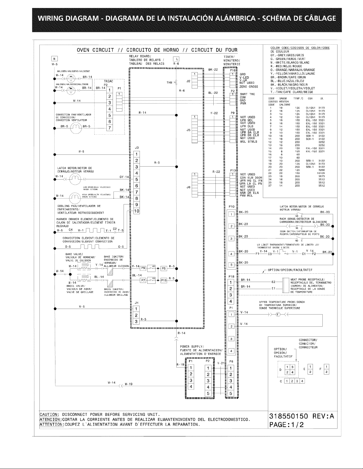
NOTE:Wiring diagram for these appliances are enclosed in this booklet.
Printed in United States
• Cabinet)
24" (61 crn) Min. with Min.
backguard
P/N 318201686 (1010) Rev. B
English - pages 1-12; Espaflol - p_iginas 13-24;
Fran_ais - pages 25-36; Notes - pages 37-38;
Wiring Diagrams - pages 39-40
" Min
Page 2

NOTE:
1. Do not pinch the power supply cord or the flexible gas conduit between the range and the wall.
2. Do not seal the range to the side cabinets.
3.24" (61 cm) minimum clearance between the cooktop and the bottom of the cabinet when
the bottom of wood or metal cabinet
is protected by not less than ¼" (0,64
cm) flame retardant miiiboard covered
with not less than No. 28 MSG sheet
metal, 0,015 "(0,4 mm) stainless steel,
0,024"(0,6 ram) aluminum, or 0,020"
(0,5 mm) copper. Door Open
30" (76,2 cm) minimum clearance when (see note 5)
the cabinet is unprotected. \ ,
4. For cutouts below 22 7/8"(58,1 cm), _ °"
oO
appliance will slightly show out of the ,,,-"
cabinet
5. Allow at least 19 ¼" (48,9 cm) clearance "
for door depth when it is open.
A
Side panel
_t
IMPORTANT: To avoid cooktop breakage for cutout width (E dimension) of more than
30 1/16" (76,4 cm), make sure the appliance is centered in the counter opening while
pushing into it. Raise leveling legs and the rear adjustable wheels at a higher position
than the cabinet height (see page 3), insert the appliance in the counter and then level.
Make sure the unit is supported by the leveling legs at the front and the
wheels at the back and NOT by the cooktop itself.
22 7/8" (58,1 cm) min.
23 1/4" (59,05 cm) max.
(see Note 4)
- --i_
1 1/8"
(2,86 cm)
FRONT
OF
CABINET
FRef_
Figure 1
A. HEIGHT B. WIDTH C: Co0KToP D: DEPTH TO IE. CUTOUT WIDTH* F. cuTouT [ G. HEIGHT
. I I I Cabinet) i i
35 5/8" (90.5 cm) 30" (76,2 cm) 31Y2" (80 cm) 28 5/16" (71,9 cm) 30_+1/16" (76,2_+0,15 cm) 21 3/4" (55,2 cm) Min. 36 5/8" (93 cm) Max.
- 36 5/8" (93 cm) 22 1/8" (56,2 cm) Max 35 3/4" (90.8 cm)
, WIDTH FRONT OF RANGE (CounteCc0p and DEPTH ] OF COUNTERTOP
24" (61 cm) Min. with Min.
backguard
Page 3

To avoid breakage: Do NOT handle or manipulate
the unit by the cooktop.
The counter-top around the cut-out should be flat and leveled (see
hatched area on illustration 1).
Before installing the unit, measure the heights of the two (2) cabinet
sides (H1-4), front and back (see illustration 1)from the floor to the top
of the counter.
Level the range using the Shave 11/2"Max. 1
two (2) front leveling legs Raised (3.8cmMax.)
and the two (2) adjustable Edge
leveling wheel, so that the to Clear
height from the floor to Space for
the underside of the metal 311/2" (81cm)
flange is greater than the Wide Cooktop.
tallest cabinet measurement
by at least 1/16" (see
illustration 2).
Remove and discard the two rear leveling legs, they are only in place to
solidify the unit for the transport.
I
Illustration 1
Slide the unit into the cabinet. Make sure the center of the unit is alignedwith the center of the cabinet cut-out.
Remove the protective channels on each side of the cooktop (if provided).
The metal flange under each side of the cooktop MUST be placed over
the cabinet countertop for proper unit support. The cooktop should
NOT rest directly on the countertop (see illustration 2) or else it could
cause damage to the cooktop voiding the warranty. Level the unit if
needed.
After the installation, MAKE SUREthat the unit is
supported by the two front leveling legs and the
two adjustable leveling wheels and NOT by the
cooktop.
successfully
install the
range, the initial
level height
from floor to
underside of
cooktop frame
should be at
least 1/16"
taller than
sides
as measured in
step 2.
Illustration 2
3
Page 4

important Notes to the Installer
1. Read all instructions contained in these installation
instructions before installing range.
2. Remove all packing material from the oven
compartments before connecting the gas and
electrical supply to the range.
3. Observe all governing codes and ordinances.
4. Be sure to leave these instructions with the consumer.
5. Note: For operation at 2000 ft. elevations above see
level, appliance rating shall be reduced by 4 percent
for each additional 1000 ft.
important Note to the Consumer
Keep these instructions with your Use & Care Guide for
future reference.
IMPORTANT SAFETY
INSTRUCTION
Installation of this range must conform with local codes
or, in the absence of local codes, with the National Fuel
Gas Code ANSI Z223.1/NFPA .54-latest edition.
This range has been design certified by CSA
International. As with any appliance using gas and
generating heat, there are certain safety precautions you
should follow. You will find them in the Use and Care
Guide, read it carefully.
• Be sure your range is installed and grounded
properly by a qualified installer or service
technician.
This range must be electrically grounded in
accordance with local codes or, in their absence,
with the National Electrical Code ANSI/NFPA No.
70--latest edition. See Grounding Instructions.
Before installing the range in an area covered
with linoleum or any other synthetic floor
covering, make sure the floor covering can
withstand heat at least 90°F above room
temperature without shrinking, warping or
To reduce the risk of
tipping of the range, the
range must be secured
by properly installed
anti-tip bracket provided
with the range. To
check if the bracket is
installed properly, grasp
the top rear edge of the
range and carefully tilt
it forward to make sure
the range is anchored.
@
All ranges
can tip.
Injury to
persons
could result.
Install anti-
tip device
packed with
range.
discoloring. Do not install the range over carpeting
unless you place an insulating pad or sheet of 1/4"
(10,16 cm) thick plywood between the range and
carpeting.
Make sure the wall coverings around the range
can withstand the heat generated by the range.
Do not obstruct the flow of combustion air at the
oven vent nor around the base or beneath the
lower front panel of the range. Avoid touching the
vent openings or nearby surfaces as they may become
hot while the oven is in operation. This range requires
fresh air for proper burner combustion.
Never leave children alone or
unattended in the area where an appliance is in
use. As children grow, teach them the proper, safe use
of all appliances. Never leave the oven door open when
the range is unattended.
Stepping, leaning or sitting on the
doors or drawers of this range can result in serious
injuries and can also cause damage to the range.
Do not store items of interest to children in
the cabinets above the range. Children could be
seriously burned climbing on the range to reach items.
To eliminate the need to reach over the surface
burners, cabinet storage space above the burners
should be avoided.
• Adjust surface burner flame size so it does not
extend beyond the edge of the cooking utensil.
Excessiveflame is hazardous.
Do not use the oven as a storage space. This
creates a potentially hazardous situation.
Never use your range for warming or heating the
room. Prolonged use of the range without adequate
ventilation can be dangerous.
Do not store or use gasoline or other flammable
vapors and liquids near this or any other
appliance. Explosions or fires could result.
In the event of an electrical power outage, the surface
burners can be lit manually. To light a surface burner,
hold a lit match to the burner head and slowly turn
the Surface Control knob to LITE. Use caution when
lighting surface burners manually.
Reset all controls to the "off" position after using
a programmable timing operation.
FOR MODELS WITH SELF-CLEAN FEATURE:
• Remove oven racks, broiler pan, food and other
utensils before self-cleaning the oven. Wipe up
excess spillage. Follow the precleaning instructions in
the Use and Care Guide.
Unlike the standard gas range, THIS COOKTOP
IS NOT REMOVABLE, Do not attempt to remove the
cooktop.
4
Page 5

Cabinet Construction
To eliminate the risk of cabinet burns
and fire, do not have cabinet storage space above the
range. If there is cabinet storage space above range,
reduce risk by installing a range hood that projects
horizontally a minimum of 5" (12.7 cm) beyond the
bottom of the cabinet.
Countertop Preparation
• The cooktop sides of the range fit over the cutout
edge of your countertop.
• If you have a square finish (flat) countertop, no
countertop preparation is required. Cooktop sides lay
directly on edge of countertop.
• Formed front-edged countertops must have molded
edge shaved flat 3/4" (1.9 cm) from each front corner
of opening (Figure 1).
• Tile countertops may need trim cut back 3/4"(1.9
cm) from each front corner and/or rounded edge
flattened (Figure 1).
J
(81cm)
Formed or tile countertop
trimmed _A"(1.9 cm) back at
front corners of cou ntertop
(1.9 cm) opening.
I Figure 1
• If the existing cutout width is greater than
30-1/16" (76,4 cm), reduce the 3A" (1.9 cm)
dimension.
• Countertop must be level, Place a level on the
countertop, first side to side, then front to back. If the
countertop is not level, the range will not be level.
The oven must be level for satisfactory baking results.
Cooktop sides of range fit over edges of countertop
opening.
m
f-q Provide an adequate Gas Supply
When shipped from the factory, this unit is designed
to operate on 4"(10,16 cm) water column (1.0 kPa)
Natural gas manifold pressure. A convertible pressure
regulator is connected to the range manifold and MUST
be connected in series with the gas supply line. If LP/
Propane conversion kit has been used, follow instructions
provided with the kit for converting the pressure
regulator to LP/Propane use.
Care must be taken during installation of range not to
obstruct the flow of combustion and ventilation air.
Forproper operation, the maximum inlet pressure to
the regulator should be no more than 14"(35,56 cm)
of water column pressure (3.5 kPa). The inlet pressure
to the regulator must be at least 1" (.25 kPa) greater
than the regulator manifold pressure setting. Examples:
If regulator is set for natural gas 4" (10,16 cm) manifold
pressure, inlet pressure must be at least 5"(12.60 cm);
if regulator has been converted for LP/Propane gas
10"(25,4 cm) manifold pressure, inlet pressure must be
at least 11 "(27,9 cm).
Leak testing of the appliance shall be conducted
according to the instructions in step 4.
The gas supply line should be 1/2"or 3A" I.D. (Interior
Diameter)
The gas supply piping can be through the back wall
(Figure 2, zone I) or through the floor (Figure 2,
zone 2):
Zone I - Through the Back Wall (7" X 6") - The best
place to have your gas line in is between 1" (2.5 cm) and
8" (20.3cm) from the floor and within 3" (7.6 cm) from
the center line.
Zone 2 - Through the Floor (~2" X 24") - The gas line
can also come through the floor within 12" (30.5 cm)
from the center line against the back wall. In case, you
can remove the "L" shape piece of metal at the bottom
metal portion at the back of the unit. There is absolutely
no problem removing this "L" shape piece of metal, it is
there to protect the gas line especially during transport.
Page 6

Seal the openings
Seal any openings in the wall behind the range and
in the floor under the range after gas supply line is
installed.
N
Connect the range to the gas
supply
Important: Remove all packing material and literature
from range before connecting gas and electrical supply.
To prevent leaks, put pipe joint sealant on all external
pipe threads.
Your regulator is in location
shown below.
Do not
allow regulator to rotate
on pipe when tightening
fittings,
Use pipe-joint compound made for use with Natural and
LP/Propane gas to seal all gas connections. If flexible
connectors are used, be certain connectors are not
kinked.
li%
The supply line must be equipped with an approved
manual shutoff valve. This valve should be located in
the same room as the range and should be in a location
that allows ease of opening and closing. Do not block
access to the shutoff valve. The valve is for turning on or
shutting off gas to the appliance.
Once regulator is in place, open the shutoff valve in the
gas supply line. Wait a few minutes for gas to move
through the gas line.
Figure 3
PRESSUREREGULATOR
LOCATION
Connection to Pressure Regulator
T_already installed on the appliance.
The regulator is die cast. Overtightening may crack the
regulator resulting in a gas leak and possible fire or
explosion.
Manual GAS FLOW Pressure
Shutoff Flare _1_ Flare Regulator
Valve Union Union _.
Do not make the connection too tight.
II ii'2
Off Connector
All connections must be wrench-tightened
Figure 4
Assemble the flexible connector from the gas supply pipe
to the pressure regulator in the following order:
1. manual shutoff valve (not included)
2. 1/2" nipple (not included)
3. 1/2" flare union adapter (not included)
4. flexible connector (not included)
5. 1/2" flare union adapter (not included)
6. 1/2" nipple (not included)
7. pressure regulator (included)
Access
Cap
Check for leaks, After connecting the range to the gas
supply, check the system for leaks with a manometer. If
a manometer is not available, turn on the gas supply and
use a liquid leak detector (or soap and water) at all joints
and connections to check for leaks.
Do not use a flame to check for leaks
from gas connections. Checking for leaks with a flame
may result in a fire or explosion.
Tighten all connections as necessary to prevent gas
leakage in the range or supply line.
Disconnect this range and its individual shutoff
valve from the gas supply piping system during any
pressure testing of the system at test pressures greater
than 1/2 psig (3.5 kPa or 14"(35,56 cm) water column).
Isolate the range from the gas supply piping system
by closing its individual manual shutoff valve during any
pressure testing of the gas supply piping system at test
pressures equal to or less than 1/2 psig (3.5 kPa or 14"
water column).
LP/Propane Gas Conversion
This appliance can be used with Natural gas or LP/
Propane gas. It is shipped from the factory for use with
natural gas.
If you wish to convert your range for use with LP/
Propane gas, use the supplied fixed orifices located in a
bag containing the literature marked "FOR LP/PROPANE
GAS CONVERSION." Follow the instructions packaged
with the orifices for surface, oven and broil burners
conversion.
Page 7

Theconversionmustbeperformedbya qualifiedservice
technicianinaccordancewiththemanufacturer's
instructionsandalllocalcodesandrequirements.Failure
tofollowtheseinstructionscouldresultinseriousinjury
orpropertydamage.Thequalifiedagencyperforming
thisworkassumesresponsibilityfortheconversion.
Failureto maketheappropriate
conversioncanresultinseriouspersonalinjuryand
propertydamage.
| Electrical Requirements
120 volt, 60 Hertz, properly grounded dedicated circuit
protected by a 15 amp circuit breaker or time delay fuse.
Note: Not recommended to be installed with a Ground
Fault Interrupt (GFI).
Do not use an extension cord with this range.
Grounding Instructions
IMPORTANT Pleaseread carefully.
For personal safety, this appliance must be properly
grounded.
The power cord of this appliance isequipped with a
3-prong (grounding) plug which mates with a standard
3-prong grounding wall receptacle (see Figure 6) to
minimize the possibility of electric shock hazard from the
appliance.
Preferred Method
Grounding type
wall receptacle
The wall receptacle and circuit should be checked by
a qualified electrician to make sure the receptacle is
properly grounded.
Where a standard 2-prong wall receptacle is installed,
it is the personal responsibility and obligation of the
consumer to have it replaced by a properly grounded
3-prong wall receptacle.
Do not, under any circumstances, cut or remove the
third (ground) prong from the power cord.
Disconnect electrical supply cord from
wall receptacle before servicing cooktop.
Do not, under any
circumstances, cut,
remove, or bypass
the grounding
prong.
Power supply cord with
3-prong grounding plug.
Figure 6
x
Moving the Appliance for
Servicing and Cleaning
Turn off the range line fuse or circuit breakers at the
main power source, and turn off the manual gas shut-off
valve. Make sure the range is cold. Remove the service
drawer (warmer drawer on some models) and open the
oven door. Lift the range at the front and slide it out
of the cut-out opening without creating undue strain
on the flexible gas conduit. Make sure not to pinch
the flexible gas conduit at the back of the range when
replacing the unit into the cut-out opening. Replace
the drawer, dose the door and switch on the electrical
power and gas to the flame size.
Range Installation
Important Note: Door removal is not a requirement for
installation of the range, but is an added convenience.
Refer to the Use and Care Guide for oven door removal
instructions.
Standard Installation
_DI The cooktop overlaps the at the
_ Install base cabinets 30" (76.2 cm) Make
_}1t Install cabinet doors 32" (81.3 cm) min.
_ emove and discard the two rear leveling legs,
O _ Install the anti-tip bracket
_To provide an optimum installation, top
_11_ To reduce the risk of damaging
range
sides and the range rests on the floor. The cooktop
is 311/2'` (80 cm) wide.
sure they are plumb and level before attaching
cooktop. Shave raised countertop edge to clear
311/2" (80 cm) wide range top rim.
not to interfere with range door opening.
Cutout countertop exactly as shown on page 1.
Make sure the two front leveling legs and the rear
leveling wheels are setup higher than the height of
the cabinet.
they are only in place to solidify the unit for the
transport.
at this point before placing the range at its
final position. Follow the installation instructions
on page 12 or on the anti-tip bracket template
supplied with the range.
of the countertop must be level and flat (lie on the
same plane) around the 3 sides that are adjacent
to range cooktop. Proper adjustments to make
the top flat should be made or gaps between the
countertop and the range cooktop may occur.
your appliance, do not handle or manipulate it by
the cooktop. Manipulate with care.
countertop
apart.
apart
the surface
SO 8S
7
Page 8

Position infrontofthecabinetrange
sure
_c Make thattheundersideofthe
leafsthecountertop.Ifnecessary,raisetheunit
opening.
cooktop
byloweringthefrontlevelinglegsandtheback
levelingwheels.
_t Levelthe (seesection9).Thefloorwhere
herangeisto beinstalledmustbelevel.Follow
range
theinstructionsunder"LevelingtheRange".
Slidethe intothecutout
Installation With Backguard
The cutout depth of (21 3/4" (55.2 cm)Min., 22 1/8"
(56.2cm) Max.) needs to be increased to 24" (61 cm)
when installing a backguard.
Installation With End Panel
A End Panel kit can be ordered through a Service
Center.
Installation With Side Panels
A Side Panels kit can be ordered through a Service
Center.
Install cabinet doors 32" (81.3 cm) min. apart so as
not to interfere with range door opening.
range
If Accessories Needed :
opening.
3. Checkif therangeislevelbyinstallinganovenrack
inthecenteroftheovenandplacingalevelonthe
rack(Figure8).
4. Take2 readingswiththelevelplaceddiagonallyin
onedirectionandthentheother.Leveltherange,if
necessary,byadjustingthelevelinglegsandwheels.
5. Iftherangecannotbelevel,contactacarpenterto
correctsaggingorslopingfloor.
Font
Leveling
Leg
LOWER
RAISE
Leveling the Range
Models Equipped with Leveling Device
Level the range after installation in the cutout
opening.
1. Open the range drawer. The leveling screws control
the height of the rear leg.
2. Adjust the appliance legs and wheels as follows until
the underside of the cooktop surface is sitting level
on the countertop (Figure 7).
a.To adjust the front legs, use a wrench on
the leg base and turn clockwise to lower or
counterclockwise to raise.
b.Remove the rear legs using a wrench on the leg
base and turn counterclockwise until the legs are
removed from the unit. You can discard those
legs, they are only in place to solidify the unit for
the transport.
c. Toadjust the rear wheels, use a ratchet or
a nutdriver and turn the leveling screws
counterclockwise to lower or clockwise to raise.
Figure 7
Figure 8
Page 9

Check Operation
Refer to the Use and Care Guide packaged with the
range for operating instructions and for care and
cleaning of your range.
Do not touch the elements or burners. They may be hot
enough to cause burns.
Remove all packaging from the oven before testing.
Install Burner Caps and Triple burner head
This cooktop is equipped with sealed burners.
A. Unpack the burner grates.
B. Regular Burners: Burner heads and burner caps are
already on the surface. Remove all tapes from burner
caps and verify if they are correctly place on the
burner heads (see Figure 9).
Burner Cap
Gas Opening
Electrode
Figure 9
Burner Head
C. Triple Burner (if equipped): Remove all tapes
from burner cap. Remove the burner cap and head.
Remove and discard the packaging material. Replace
head and cap on the triple burner. Be careful not
to damage the electrode while placing the head
over the orifice. Make sure electrode fits correctly
into slot in burner head (see Figure 10).
D. Be sure that all the burner caps and the triple burner
head are correctly placed BEFOREusing your cooktop.
NOTE: There are no burner adjustments necessary on
this cooktop.
O Turn on Electrical Power and Open Main
Shutoff Gas Valve
Check the Igniters
Operation of electric igniters should be checked after
range and supply line connectors have been carefully
checked for leaks and range has been connected to
electric power. To check for proper lighting:
1.Push in and turn a surface burner knob to the LITE
position. You will hear the igniter sparking.
2. The surface burner should light when gas is available
to the top burner. Each burner should light within
four (4) seconds in normal operation after air has been
purged from supply lines. Visually check that burner
has lit.
3.Once the burner lights, the control knob should be
rotated out of the LITEposition.
There are separate ignition devices for each burner. Try
each knob separately until all burner valves have been
checked.
Burner Head
Figure 10
9
Page 10

Adjustthe "low" settingfor regularsurface
burnervalves(Figure11)
Becarefulwhenperformingthisopera-
tion.
a. Pushinandturncontrolto LITEuntilburnerignites.
b. QuicklyturnknobtoLOWESTPOSITION.
c. If burnergoesout,resetcontroltoOFF.
d. Removethesurfaceburnercontrolknob.
e. Insertathin-bladedscrewdriverintothehollowvalve
stemandengagetheslottedscrewinside.Flamesize
canbeincreasedordecreasedwiththeturnofthe
screw.Turncounterclockwisetoincreaseflamesize.
Turnclockwiseto decreaseflamesize.Adjustflame
untilyoucanquicklyturnknobfromLITEto LOWEST
POSITIONwithoutextinguishingtheflame.Flame
shouldbeassmallaspossiblewithoutgoingout.
Note:Airmixtureadjustmentisnotrequiredonsurface
burners.
Cou nterdockwise
Increase Flame
_,_,-Dual Valve
"_,,_,
Figure 11 _ Regular
O Adjust the "LOW" Setting of the Dual
Burner Surface Valve (Figure 11)
Note: On the dual valve the low setting of each portion
should be adjusted individually.
a. Push in and turn control to LITEuntil the rear portion
of the bridge burner ignites only.
b. Quickly turn knob to LOWEST POSITION.
c. If burner goes out, reset control to OFF.
d. Remove the surface burner control knob.
e. The rear or outer portion of the burner flame size
can be increased or decreased with the turn of the
screw A. Use screw Bto adjust the flame size of the
Valve
Clockwise
Decrease Flame
_ Valve
_- ...........J
center portion of the burner. Turn counterclockwise
the screw to increase flame size. Turn clockwise the
screw to decrease flame size. Adjust flame until you
can quickly turn knob from LITEto LOWEST POSITION
without extinguishing the flame. Flame should be as
small as possible without going out.
Note: Air mixture adjustment is not required on surface
burners.
Operation of Oven Burners and Oven
Adjustments
10.6.1 Electric Ignition Burners
Operation of electric igniters should be checked after
range and supply line connectors have been carefully
checked for leaks, and range has been connected to
electric power.
The oven burner is equipped with an electric control
system aswell as an electric oven burner igniter. If your
model is equipped with a waist-high broil burner igniter,
it will also have an electric burner igniter. These control
systems require no adjustment. When the oven is set to
operate, current will flow to the igniter. It will "glow"
similar to a light bulb. When the igniter has reached
a temperature sufficient to ignite gas, the electrically
controlled oven valve will open and flame will appear
at the oven burner. There is a time lapsefrom 30 to 60
seconds after thermostat is turned ON before the flame
appears at the oven burner. When the oven reachesthe
display setting, the glowing igniter will go off. The burner
flame will go "out" in 20 to 30 seconds after igniter goes
"OFF". Tomaintain any given oven temperature, this cycle
will continue as long as the display is set to operate.
After removing all packing materials and literature from
the oven:
a) Set the oven to BAKE at 300% See Use & Care Guide
for operating instructions.
b) Within 60 seconds the oven burner should ignite.
Check for proper flame, and allow the burner to cycle
once. Resetcontrols to off.
c) If your model is equipped with a high-waist broiler,
set oven to broil. See Use & Care Guide for operating
instructions.
d) Within 60 seconds the broil burner should ignite. Check
for proper flame. Resetcontrols to off.
s"
Air
Shutter
Lower
Oven Baffle
(removable)
Lower Oven Bottom
Shutter (removable)
Figure 12
¢Vaist-High
Burner
10
Page 11

10.6.2Air Shutter-OvenBurner
Theapproximateovenburnerflamelengthis1inch
(distinctinnerconeofblueflame).
Todetermineiftheovenburnerflameisproper,removethe
ovenbottomandburnerbaffleandsettheoventobakeat
300°F.
Toremovetheovenbottom,removeovenholddown
screwsatrearofovenbottom.Pullupatrear,disengage
frontofovenbottomfromovenfrontframe,andpullthe
ovenbottomoutoftheoven.Removeburnerbafflesothat
burnerflamecanbeobserved.
Iftheflameisyellow,increaseairshutteropeningsize(see
"2" inFigure13).Iftheentireflameisblue,reducetheair
shutteropeningsize.
Toadjustframeloosenlockscrew(see"3" inFigure13),
repositionairshutter,andtightenlockscrew.Replaceoven
bottom.
10.6.3Air Shutter-BroilBurner
Theapproximateflamelengthoftheburneris1inch
(distinctinnerconeof blueflame).Todetermineifthe
broilburnerflameisproper,settheoventobroil.Ifflame
isyellow,increaseairshutteropeningsize(see"2" in
Figure13).Iftheentireflameisblue,reducetheairshutter
openingsize.Toadjust,loosenlockscrew(see"3" in
Figure13),repositionairshutter,andtightenlockscrew.
When All Hookups are Complete
Make sure all controls are left in the OFFposition.
Make sure the flow of combustion and ventilation air to
the range is unobstructed.
Model and Serial Number Location
The serial plate is located on the oven front frame behind
the oven door (some models) or on the drawer side
frame (some models).
When ordering parts for or making inquiries about your
range, always be sure to include the model and serial
numbers and a lot number or letter from the serial plate
on your range.
Your serial plate also tells you the rating of the burners,
the type of fuel and the pressure the range was adjusted
for when it left the factory.
Before You Call for Service
Read the Before You Call Checklist and operating
instructions in your Use and Care Guide. It may save you
time and expense. The list includes common occurrences
that are not the result of defective workmanship or
materials in this appliance.
Refer to your Use & Care Guide for service phone
numbers.
Lock Screw
Air Shutter-_
Burner Tube
Orifice Hood
Figure 13
11
Page 12

Anti-Tip Brackets Installation
instructions
To reduce the risk of tipping of the
range, the range must be secured to the floor by properly
installed anti-tip bracket and screws packed with the
range. These parts are located in the oven. Failure to
install the anti-tip bracket will allow the range to tip over
if excessiveweight is placed on an open door or if a child
climbs upon it. Serious injury might result from spilled hot
liquids or from the range itself.
Follow the instructions below to install the anti-tip
brackets.
If range is ever moved to a different location, the anti-
tip brackets must also be moved and installed with the
range.
Tools Required:
Adjustable Wrench
Ratchet
Drill & 1/8"(0,32 cm) bit
5/16" (0,8 cm) Nutdriver
Level
The anti-tip bracket attaches to the floor at the back of
the range to prevent range from tipping. When fastening
bracket to the floor, be sure that screws do not penetrate
electrical wiring or plumbing. The screws provided will
work in either wood or concrete.
1. Draw a center line (CL) on the floor where the range
should be installed. Also draw a line on the floor at
the range back position if there is no wall.
2. Unfold paper template and place it flat on the floor
with the right rear corner positioned exactly on the
intersection of the center and back lines you just drew
before. (Use the diagram below to locate brackets if
template is not available. (Figure 14))
3. Mark on the floor the location of the 4 mounting
holes shown on the template. For easier installation,
3/16"(0,48 cm) diameter pilot holes 1/2"(1,27 cm)
deep can be drilled into the floor.
4. Remove template and place bracket on floor. Line up
holes in bracket with marks on floor and attach with
4 screws provided. Bracket must be secured to solid
floor (Figure 15). If attaching to concrete floor, first
drill 3/16" (0,48 cm) dia. pilot holes using masonry drill
bit.
5. Be sure the 4 levelling legs are at the highest position
they can be.
6. Slide range into place making sure structure of the
range is trapped by the anti-tip bracket (Figure 15).
Lower the range by adjusting the 4 levelling legs until
the underside of the cooktop is sitting level on the
countertop. Refer to "Levelling the Range" section.
7. After installation, verify that the anti-tip bracket is
engaged by grasping the top rear edge of the range
and carefully attempt to tilt it forward to make sure
range is properly anchored.
(eL = Center line) V_#LI_
Door
Cabinet
Floor Mo
Screws
Figure 15
BACK
Figure 14
12
Page 13

LA INSTALACION Y EL SERVICIO DEBEN SER EFECTUADOS POR UN _,(',,
INSTALADOR CAUFICADO. IMPORTANTE: GUARDE ESTAS INSTRUCCIONES
PARA USO DEL iNSPECTOR LOCAL DE ELECTRICIDAD.
LEA Y GUARDE ESTAS INSTRUCCIONES PARA REFERENCIA FUTURA.
Si la informaciOn contenida en este manual no es seguida
exactamente, puede ocurrir un incendio o explosion causando daffos materiales,
lesion personal o la muerte.
PARASU SEGURIDAD:
-- No almacene ni utilice gasolina u otros vapores y liquidos inflamables en la
proximidad de _ste o de cualquier otto artefacto.
-- QUEDEBEHACERSIPERClBEOLORA GAS:
• No trate de encender ningun artefacto.
• No toque ningun interruptor el_ctrico; no use ningun tel_fono en su edificio.
• Llame a su proveedor de gas desde el tel_fono de un vecino. Sigalas instrucciones
del proveedor de gas.
• Si no Iogra comunicarse con su proveedor de gas, llame al departamento de
bomberos.
-- La instalad6ny el servicio de mantenimiento deben set efectuados pot un instalador
calificado, la agencia de servicio o el proveedor de gas.
30" Min.
PARED _._ (76,2 cm Min.)
La superficie debe estar plana _ [_
Y nivelada (area s°mblreada):.'_x _30"'Min. _ I//_'1
tzo,z cm wmL) T (33 cm)
Min: 5" (12;7 cn (v6a la nota 3) 18" Min.
Acepille el
ambos lad_
borde subido
a que deje
espacio
para un
borde 31 1/2
(80 cm) de anchura
de estufa
I G
31 112
(81 cm)
Exacto
Approx. 1 7/8"
Aparatos Instalados en el
estado de Massachusetts;
EsteAparato s61opuede ser
instalado en el estado de
Massachusetts por un plomero
o ajustador de gas licenciado de
Massachusett.
Este aparato sedebe instalar con
un largo conector flexible de gas
de tres (3) pies/36 pulgadas.
Una wilvula manual de gas de
tipo manija de forma de "T"
sedebe instalar en la I[nea
del suministro de gas de este
aparato.
(45,7 cm) Min.
(4,8 cm)
Localice las puertas del armario 1"
(2,5 cm) min del hueco de la abertura.
IMPORTANTE:
El ancho de la
cubierta y el
armario debe de
ser igual al ancho
del corte.
A.ALTURA
35 5/8" (90.5 cm)
36 5/8" (93 cm)
BI
ANCHURA
30"
(76.2cm)
C: ANcHo DE
LA PLANCHA
DE COCINAR
31 I/2"
(80cm)
D, PROFUNDIDAD
A LA FRENTEDE
LA ESTUFA
28 5116"
(71.9 cm)
La caja
situarse de 8" a 17" (20,3 cm a 43,2 cm) del armario
derecho y de 2" a 4" (5,1 cm a 10,2 cm) del suelo.
E,ANCHO
RECORTADO_
(cubierta y armario)
30___1/16"
(76.2_+0.15 cm)
empalme-_-oelenchufeconpuestaatierradeberia
F,
PROFUNDIDADDE
RECORTADO
213/4'' (55.2 cm) min.
22V8"(56.2 cm)max.
24" (61 cm) Min. con un
protector trasero.
24" Min.
(61 cm Min.)
/
ALTURA DEL
MOSTRADOR
365/8" (93cm)Max.
35 3/4" (90.8 cm) Min.
NOTA: Se adjunta el diagrama de cables de esta cocina al final de este libreta. P/N318201686 (1010) Rev.B
Impreso en los Estados Unidos English - pages 1-12; Espahol- p_iginas 13-24;
Diagrama de la instalaci6n akimbrica - p_iginas 39-40
Fran_ais - pages 25-36; Notas 37-38;
Page 14

NOTAS:
1. No pellizque el cordon electrico o el conducto flexible de gas
entre la estufa y la pared.
2. No selle la estufa a los armarios de lado.
3. Un espacio minimo de 24" (61 cm)
entre la superficie de la estufa y el
fondo del armario cuando el fondo
del armario de madera o metal est,1
protegido por no menos de 1/4" (0,64
cm) de madera resistente al fuego
cubierta por una I_imina met_ilica de
MSG, n0mero 28, 0,015" (0,4 ram) de
acero inoxidable, 0,024" (0,6 ram) de
aluminio, 6 0,02" (0,5 ram) de cobre.
Un espacio minimo de 30" (76,2 cm)
cuando el armario no est,1 protegido.
4. Para los recortados menos que 22
7/8", el electrodomestico apareceria
ligeramente en el exterior del armario.
5. Deje por los 19 1A" (48,9 cm) de
espacio libre para la profundidad de la
puerta cuando esta abierta.
Puerta
abierta
(vea la nota
5)
÷
A
Figura 1
Panel lateral
*IMPORTANTE: Para el corte a io ancho (dimensi6n E) de mas de 30 1/16" (76,4 cm) para
evitar que se rompa ia cubierta, asegurese que el artefacto este centrado en ia abertura de
ia mesada mientras Io presiona. Levante ias patas ajustables y ias ruedas ajustables traseras
a una aitura mayor a ia del mueble (vet pagina 15), inserte el electrodomestico dentro del
gabinete y despues niveleio. Asegurese que ie unidad este soportada pot ias patas adelante
y pot ias ruedas en ia parte de atras y NO pot ia cubierta superior sobre ia endmera.
22 7/8" (58,1 cm) min.
23 1/4" (59,05 cm) max.
(nota 4)
_ ___ 11/8"
1 " (2,86 cm)
PARTEDELANTERADEL _ F
ARMARIO Ref.
A. ALTURA B. C: ANcHO DE" D' PROFUNDiDAD
.ANCHURA LA PLANCHA A LA FRENTE DE
! DE COCINAR LA ESTUFA
35 5/8" (90.5 cm) 30" 31 1/2" 28 5/16"
36 5/8" (93 cm) (76.2 cm) (80 cm) (71.9 cm)
RECORTADO_
(cubierta y armario)
30_+1/16"
(76.2_+0.15 cm)
PROFUNDIDAD DE , ALTURADEL
RECORTADO - MOSTRADOR
213/4'' (55.2 cm) rain. 36 5/8" (93 cm)Max.
221/8'' (56.2 cm) max. 353/4" (90.8 cm) Min.
24" (61 cm) Min. con un
protector trasero.
14
Page 15

Para evitar fractura de la unidad: NO manipule
la unidad sosteniendo la cubierta.
Lacubierta alrededor del espacio donde usted instalara su unidad debe de
estar plana y nivelada. (Vea el _qreasombreada en la ilustracion 1)
Antes de instalar la unidad, mida la altura de los dos (2) lados de los
gabinetes (H1-4), frente y parte trasera (yea ilustracion 1) del piso a Io
alto de la cubierta.
Nivele la estufa utilizando
las dos (2) patas ajustables
delanteras y las dos (2)
ruedas ajustables, de
manera que la altura del
suelo a la parte de abajo del
reborde de metal sea de al
menos 1/16" (vea ilustracion 2).
Quite y desh_igase de las dos patas ajustables traseras, solo
sirven para sostener la unidad durante el transporte.
Deslice la unidad hacia el gabinete. Aseg0rese que la unidad este
centrada con el centro de la abertura del gabinete.
Lime el
borde
levantado
para dejar
espacio
para una
unidad con
un dimensi6n de
31 1/2"(81 cm).
1 1/2"Max.
3.8 cm Max.)
Ilustracion 1
Remueva la parte en pl_qsticoextrudia en cada lado de la cubierta.
(Algunos modelos).
Es imprescindible que el reborde de metal que se encuentra debajo de
la cubierta este sobre la cubierta del gabinete. La cubierta no deber_q
tocar directamente la cubierta del gabinete (yea ilustracion 2) de no set
asi la fractura de la cubierta anular_q la garantia. Nivele la unidad si es
necesario.
Despues de la instalacion, ASEGORESE que la
unidad este sostenida por las patas niveladoras
y dos ruedas traseras y NO por la cubierta.
Para instalar
exitosamente su
estufa, la medida
inicial del piso a la
superficie interior de
la cubierta de vidrio
debe ser mayor que
la altura del gabinete
por Io menos 1/16"
como se midi6 en el
paso nOmero 1.
lustracion 2
15
Page 16

Notas importantes para el Instalador
1. Lea todas las instrucciones contenidas en este manual
antes de instalar la estufa.
2. Saque todo el material usado en el embalaje del
compartimiento del homo antes de conectar el
suministro el_ctrico o de gas a la estufa.
3. Observe todos los c6digos y reglamentos pertinentes.
4. Deje estas instrucciones con el comprador.
5. Nota: Para la utilizaci6n a m_isde 2 000 pies de altura,
la potencia del aparato deber_i ser reducida de 4 por
ciento a cada 1 000 pies adicionales.
Nota Importante para el Consumidor
Conserve estas instrucciones y el Manual del Usuario para
referencia futura.
IMPORTANTES INSTRUCCIONES
DE SEGURIDAD
InstalaciOn de esta estufa debe cumplir con todos los
c6digos locales, o en ausencia de c6digos locales con el
C6digo Nacional de Gas Combustible ANSI Z223.1/NFPA
.54--01tima edici6n.
El diseho de esta estufa ha sido certificado por la CSA
Internacional. En _ste como en cualquier otro artefacto
que use gas y genere calor, hay ciertas precauciones de
seguridad que ustecl debe seguir. Estas ser_inencontradas
en el Manual del Usuario, I_alo cuidadosamente.
• Asegurese de que la estufa sea instalada y
conectada a tierra en forma apropiada pot un
instalador calificado o pot un t_cnico.
• Esta estufa debe set el_ctricarnente puesta a
tierra de acuerdo con los c6digos locales, o en su
ausenda, con el C6digo Electrico National ANSI/
NFPA No. 70, _ltirna edid6n. Vea las instrucciones
para la puesta a tierra en la p_igina 4.
• Antes de instalar la estufa en un ,irea cuyo
piso este recubierto con lin61eo u otto tipo de
piso sintetico, asegurese de que _stos puedan
resistir una ternperatura de pot Io rnenos 90°F
sobre la ternperatura arnbiental sin provocar
encogirniento, deformation o decoloraci6n. No
instale la estufa sobre una alfombra al menos que
coloque una plancha de material aislante de por Io
menos 1/4 pulgada, entre la estufa y la alfombra.
•Todaslas
estufaspueden
volcarse.
• Estopodria
resultaren
lesiones
personales.
• Instaleel
dispositivo
antivuelcos
que seha
empacado
junto con esta
estufa.
Parareducir el riesgo de que
se vuelque la estufa, hay que
asegurarla adecuadamente
colo candole los soportes
antivuelcoqueseproporcionan.
Paracomprobar siestos est_in
instalados y apretados en su
lugar como se debe, ase el
horde trasero superior de la
estufa y cuidado samente
incline la hacia adelante para
asegurar que la estufa se
ande.
• Asegurese de que el material que recubre las
paredes alrededor de la estufa, pueda resistir el
calor generado pot la estufa.
• No obstruya el flujo del aire de combustion en la
ventilation del homo ni tarnpoco alrededor de
la base o debajo del panel inferior delantero de
la estufa. Evite tocar las aberturas o _ireascercanas
de la ventilaci6n, ya que pueden estar muy calientes
durante el funcionamiento del homo. La estufa
requiere aire fresco para la combusti6n apropiada de
los quemadores.
Nunca deje ni_os solos o
desatendidos en un _rea donde un artefacto
est_ siendo usado. A medida que los nihos crecen,
ens_heles el uso apropiado y de seguridad para todos
los artefactos. Nunca deje la puerta del homo abierta
cuando la estufa est,1desatendida.
No se pare, apoye o siente en
las puertas o cajones de esta estufa pues puede
resultar en serias lesiones y puede tarnbien causar
da_o a la estufa.
• No almacene articulos que puedan interesar a los
ni_os en los gabinetes sobre la estufa. Los nihos
pueden quemarse seriamente tratando de trepar a la
estufa para alcanzar estos articulos.
• Los gabinetes de alrnacenarniento sobre la estufa
deben set evitados, para elirninar la necesidad de
tenet que pasar sobre los quernadores superiores
de la estufa para Ilegar a ellos.
• Ajuste el tarna_o de la llama de los quernadores
superiores de tal rnanera que esta no sobrepase el
borde de los utensilios de cocinar. La llama excesiva
es peligrosa.
• No use el homo corno espacio de alrnacenaje. Esto
crear_i una situaciOn potencialmente peligrosa.
• Nunca use la estufa para calentar el cuarto. El uso
prolongado de la estufa sin la adecuada ventilaci6n
puede resultar peligroso.
• No alrnacene ni utilice gasolina u otros vapores y
liquidos inflarnables en la proxirnidad de este o de
cualquier otto artefacto electrico. Puede provocar
incendio o explosi6n.
• Encasode una interrupci6n del servicio el_ctrico, es posible
de encender los quemadores de superficie a mano. Para
encender un quemador de superficie, acerque un f6sforo
encendido del cabezal del quemador, y gire delicadamente
el bot6n de control de superficie a LITE(encendido). Tener
cuidado al encender losquemadores a mano.
• Ajuste todos los controles a la posici6n "OFF"
(apagada) despu_s de haber hecho una operation
con tiernpo prograrnado.
PARA MODELOS AUTOLIMPIANTES:
• Saque la asadera, la parriHa, alirnentos o
cualquier otto utensilio antes de usar el ddo
de autolirnpieza del homo. Limpie todo exceso
de derrame de alimentos. Siga las instrucciones de
prelimpiado en el Manual del Usuario.
A diferenda de la garna est,indar cocinas de gas,
ESTA PLANCHA DE COCINA NO ES MOVIBLE. No
intente quitar la plancha de cocina.
16
Page 17

N
| Construccion del arrnario
Para eliminar el riesgo de
quemaduras o de fuego tratando de alcanzar algo por
encima de las zonas calientes, evite de colocar articulos
sobre la cocina. Si cree necesitar este espacio, el riesgo
puede disminuir si instala un sombrerete que proteja
horizontalmente un minimo de 5" (12.7cm) sobre la
base del armario.
Preparacion del mostrador
• Las extremidades de la cocina sobrepasan el horde de
su mostrador.
• Si tiene un mostrador con las extremidades
cuadradas (planas), no se necesita ninguna
preparaci6n del mostrador.
El reborde de frente de mostradores moldeados
deben tener hordes moldeados a 3/4" (1.gcm) a partir
de cada extremidad de la apertura (Figura 1).
• Los mostradores enazulejos deber_in necesitar un
recorte de 3/4" (1.9 cm) a partir de cada extremidad
y/o un horde redondeado aplanado (Figura 1).
311/2,,_ _
(81 crn)
_l_ostrador moldeado o enazulejo
recortado 3/4" (1.9 crn) hada atr&s
(1.9 cm)
I
• Si el ancho de la abertura del mostrador es
mas grande que 30 1116" (76,4 cm), ajuste a las
dimensiones como para el 3/4" (1.9).
• El mostrador deber set nivelado. Coloque un
nivelador sobre el mostrador, primero de lado a lado
y luego del frente hacia atr_is. Si el mostrador no est,1
nivelado, la cocina no estate1 nivelada. El homo debe
ser nivelado para tener resultados satisfactorios al
hornear. Las extremidades de la plancha de la cocinar
sobrepasan los hordes de la abertura del mostrador.
en las esquinas de frente de la
abertura del mostrador.
Figura 1
Se debe de tener cuidado durante la instalaci6n de la
estufa para no obstruir el flujo de aire de combusti6n y
ventilaci6n
Para la operaci6n apropiada, la m_ixima presi6n de entrada
al regulador no debe exceder la presi6n de una columna de
agua de 14"(35,56 cm) (3.5 kPa). La presi6n de entrada al
regulador debe ser por Io menos 1" (.25 kPa)m_isgrande
que la wilvula distribuidora. Ejemplos: Si regulador se pone
para el gas natural con una presi6n de 4"(10,16 cm), la
presi6n de entrada al regulador debe ser por Io menos
5"(12.60 cm); si el regulador seha convertido para gas LP/
Propano 10"(25,4 cm)la presi6n de entrada al regulador
debe ser por Io menos 11 "(27,9 cm).
Un examen de detecci6n de fugas del aparato debe ser
realizado segOn las instrucciones en el paso 4.
La linea de fuente de gas debe ser de 1/2"o de 3A".
La tuberia de suministro de gas puede salir tanto de
la pared (Figura 2, zona 1) o como del piso (Figura 2,
zona 2):
Zona 1 -Por medio de pared (7" X 6") - El mejor
espacio para la linea de gas esta dentro de 1" (2.5 cm) y
8" (20.3cm) distancia con respecto al piso y 3" (7.6 cm)
del centro de la linea.
Zona 2 - Pot medio del piso (~2" X 24") - La linea de
gas puede salir del suelo con 12" (30.5 cm) del centro de
la linea con respecto al la pared de atr_is. Puede remover
la pieza de metal en "L" Iocalizada atr_is del aparato.
No existe problema alguno al remover esta pieza "L" de
metal, la cual existe solamente para proteger la linea de
gas durante transporte.
m
Proporcione un suministro de gas
adecuado
Cu_indo se envia de la f_ibrica, Estaunidad ha sido
ajustada para operar con un m01tiple de admisi6n para
gas natural de 4" (10.16 cm)(1.0 kPa). Un regulador
de presi6n convertible esta conectado a la wiivula
distribuidora y DEBEser conectado con la tuberia del
suministro de gas. Si el juego de conversi6n del propano
LP/Propano se ha utilizado, sigue las instrucciones
proporcionadas el juego para convertir el regulador de
presi6n al uso de LP/Propano.
Figura 2
17
Page 18

n
Selle las aperturas
sella todas las aperturas en la pared detr_is de la estufa y
en el suelo debajo de la estufa despu_s que la linea del
suministro de gas sea instalada.
N
Conecte la estufa al surninistro
de gas
Importante: Quite todo el material de embalaje y
literatura de la estufa antes de conectar el gas y la fuente
el_ctrica.
Para evitar fugas, aplique sellador de tuberias en todas
las partes roscadas machos (exterior) de la tuberia.
El regulador se encuentra
enellugarque semuestra
en la ilustraciOn (Figura 3).
No
permita que el regulador
gire sobre la tuberia al
apretar las uniones.
6. Boquilla de 1/2" (no incluido)
7. regulador de presi6n (incluido)
Use sellador para uniones de tuberias hecho para el
uso de gas natural y LP/Propano para sellar todas las
conexiones de gas. Si se utilizan los conectadores
flexibles, asegOrese de que los conectadores no est_in
enroscados. _,1
V_lvula de cierre =
Abierta
Figura 5
La linea del suministro se debe de ser equipada de una
wilvula de cierre manual aprobada. Esta wilvula se debe
Iocalizar en el mismo cuarto que la estufa y debe estar en
una Iocalizaci6n que permita la facilidad de la abertura y
del cierre. No bloquee el acceso a la wilvula. La wilvula es
para encender o apagar el gas del aparato.
Figura 3
Ubicaci0ndel regulador
de presiOn
Conecte el Regulador de Presi6n
El regulador de presi6n esta ya instalada para la estufa.
No haga la conexi6n demasiado
apretada. El regulador es de die cast. Elapretar
demasiado puede agrietar el regulador dando por
resultado una fuga de gas y un fuego o una explosi6n.
Valvula de FLUJO DEL GAS Regulador
cierre Uni6n Uni6n
manual
( ) \_ Boquilla Conector Buquill
Apagado flexible Tapa de
(Off) entrada
Todas las conexiones deben ser apretadas con
ReOnael conector flexible del tubo del suministro de gas
al regulador de la presi6n en la orden siguiente:
1. V_ilvula de cierre manual (no incluido)
2. Boquilla de 1/2" (no incluido)
3. 1/2" Adaptador de uni6n (no incluido)
4. Conector flexible (no incluido)
5. 1/2" Adaptador de uni6n (no incluido)
_1_ de presi6n
una Ilave inglesa
Figura 4
Una vez que regulador est,1en su lugar, abra la wilvula
en la linea del suministro de gas. Espere algunos
minutos para que el gas pueda moverse a trav@sde la
linea de gas.
Compruebe para saber si hay fugas de gas, Despu_s
de conectar la estufa con la fuente de gas, compruebe
el electrodom_stico para saber si hay fugas con un
manOmetro. Si un manOmetro no est,1disponible, gire
la fuente de gas y utilice un detector liquido de fugas (o
jab6n y agua) en todos los empalmes y conexiones has la
comprobaci6n para fugas.
No utilice una llama para verificar
fugas en las conexiones de gas. Verificar para fugas con
una llama puede tener como resultado un fuego o la
explosi6n.
Apriete todas las conexiones como necesario para
prevenir fugas de gas en la superficie de la estufa o en la
linea de suministro.
Desconecte la estufa y su v,ilvula de derre manual
del sistema de tuberia del suministro de gas durante
cualquier prueba de presi6n de ese sistema a presiones
mayores de 1/2 psig (3,5 kPa o 14" columna de agua).
Aisle la estufa del sistema de tuberia del suministro
de gas cerrando su wilvula de cierre manual durante
cualquier prueba de presi6n del sistema de tuberia del
suministro de gas prueba de presi6n iguala a o a menos
de 1/2 psig (3,5 kPa o 14" columna de agua).
18
Page 19

Conversion para uso de Propano
Liquido
Este aparato puede ser usado con gas natural o propano
liquido. Ha sido ajustado en la fabrica para operar con
gas natural solamente.
Si desea convertir su estufa para uso con propano
liquido, use los orificios provistos ubicados en el bolso
que contiene la literatura titulada "FOR LP/PROPANEGAS
CONVERSION." Siga las instrucciones que vienen con los
orificios.
La conversion debe set efectuado pot un t_cnico de
servicio capacitado, de acuerdo con las instrucciones
del fabricante y con todos los cOdigos y requisitos
de las autoridades correspondiente. El no seguir las
instrucciones podria dar como resultado lesiones graves
o dafios a la propiedad. El organismo autorizado para
Ilevar a cabo este trabajo asume la responsabilidad de la
conversion.
Lafalta de una conversion apropiada
puede resultar en lesiones graves y dahos a la propiedad.
Requisitos electricos
120 voltio, 60 Hertzio, circuito dedicado apropiadamente
puestos a tierra protegido pot un circuito de amperio
o fusible de demora de tiempo de 15 amp. Nota: no
es recomendado instalarlo con un Interruptor (GFI) de
puesta a tierra.
No utilice una extension con esta estufa.
Instrucciones de puesta a tierra
IMPORTANTE Pot favor lea con cuidado.
El cliente deber_i encargar a un t_cnico para asegurarse
de que el enchufe se encuentra debidamente conectado
a tierra y polarizado.
En lugares en los que aya un enchufe de pared est_indar
de dos patillas, el cliente tendr_i responsabilidad directa
y la obligacifln de reemplazarlo pot un enchufe de pared
de tres patillas debidamente cableado a tierra.
Bajo ninguna circunstanda, corte, retire o derribe
la tercera patilla (de toma de tierra) del cable del
suministro de energia electrica,
Desenchufa el cable del suministro
de energia el@ctrica del enchufe de pared antes de
mantener la plancha de cocina.
La mudanza del aparato para
reparaciones o limpieza
Apague la corriente electrica a la estufa a la fuente de poder
principal, y apague la wilvula de cierre manual de gas. Ase-
g0resede que laestufa este fresca. Quite el cajOn de servicio
(el cajOncalentador en algunos modelos) y abre la puerta del
homo. Levante la frente de la estufa y deslfcelafuera de la
abertura sincrear tension desmedida sobreel conducto flexi-
ble de gas. Aseg0rese de no pellizque el conducto flexible de
gasdetr_isde la estufa al reemplazar la unidad en la abertura.
Reemplaceel cajOn,cierre la puerta y enciende el gas y la
corriente electrica a la estufa.
Instalaci6n de la estufa
Nota irnportante: No es necesario, pero si es
conveniente, quitar la puerta para instalar el horno.
Consulte las instrucciones para retirar la puerta en la Guia
de Uso y Cuidado.
Para la seguridad personal, este aparato debe set
puesto a tierra apropiadamente.
El cable del suministro el_ctrico de esta estufa est,1
equipado con un enchufe de tres patillas (para puesta a
tierra) que coincida con un enchufe de pared est_indar
con puesta a tierra de tres patillas para minimizar la
posibilidad que se produzcan descargas el_ctricas.
Metodo preferido No corte, retire o'_
Enchufe de pared derribe, bajo ninguna I
con toma de drcunstanda, la l
tierra patilla de la toma de I
tierra del enchufej)
Cable de suministro
el_ctrico con enchufe con
toma de tierra
Figura 6
InstalaciOn sin panel(es) iaterai(es).
j_lt La plancha de cocinar se sobrepone encima del
mostrador con sus extremidades y la cocina reposa
sobre el suelo. La plancha de cocinar es 31 1/2"
(80 cm) de ancho.
_ nstale la base de los armarios a 30" (76.2 cm)
de espacio entre elias. Aseg0rese que estos est@n
verticales y alineados antes de instalar la plancha
de cocinar. Lije el horde del mostrador para
obtener las 31 1/2 (80 cm)" en la parte superior
del mostrador.
_ Instalelas delarmario 32" (81.3 cm) de
espacio entre elias para que no interfieran con la
abertura de la puerta de la cocina.
_ orte el mostrador exactamente como en la
p_qgina13.
tl_ Aseg0rese las dos de adelante
y las ruedas ajustables traseras est_in ajustadas a
una altura mayor a la del mueble.
19
puertas
que patas
ajustables
pot
a
Page 20

Quite y desh_igasede las dos patas ajustables
O
traseras, solo sirven para sostener la unidad durante
el transporte.
O Ir__ Instale el anti-
soporte
inclinacion de acuerdo a las instrucciones
del patron anti-inclinaci0n ( si no Io tiene vea la
p_igina 24).
_Para una Optima, superficie superior
instalaci0n la
de la cubierta debe estar nivelada y set plana
(sobre el mismo piano) en los 3 lados adyacentes
a la c. Se deben hacer los ajustes correspondientes
para hacer que la parte superior quede plana,
de Io contrario podr_in quedar espacios entre la
cubierta y la cocina.
_ F."_J__ Para reducir el de dahar
riesgo
su artefacto, no Io manipule cerca del vidrio
cer_imico. Manip01elo con cuidado.
_!b Coloque la cocina enfrente de la abertura del
armario.
O Aseg0rese la de de la cubiertaque
parte abajo
libre la superficie del mostrador o encimera. Si es
necesario, levante la unidad elevando las patas
ajustables delanteras y las ruedas ajustables
traseras.
Nivele la cocina Nivelaci6n de la El
(vea estufa).
piso donde se instala la cocina debe estar nivelado.
Siga las instrucciones "nivelaciOn de la estufa-
modelos equipado con las patas niveladoras".
O Deslice la estufa la abertura.
en
m
Nivelacion de la estufa
Nivele la cocina despues de haberla instalado en la
abertura del mostrador.
1. Abra la gaveta.
2. Ajuste las patas del electrodom_stico y las ruedas
como se muestra a seguir hasta que la parte de abajo
de la cubierta superior este a nivel de la superficie del
mostrador (Figura 7).
a. Para ajustar las patas delanteras, utilice una Ilave
inglesa en la base de la pata y gire en sentido de las
manecillas del reloj para bajar y en sentido opuesto a
las manecillas del reloj para elevar.
b. Quite las patas traseras utilizando una Ilave inglesa
en la base y girando en contra de las manecillas del
reloj hasta que se salgan las patas de la unidad. Puede
deshacerse de esaspatas pues solo sirven para sujetar
la unidad durante el transporte.
c. Para ajustar las ruedas traseras, utilice un trinquete o
una herramienta para tuercas huecas y gire los tornillos
niveladores en sentido opuesto alas manecillas del reloj
para bajar yen sentido de las manecillas del reloj para
elevar.
3. Verifique si la cocina est,1nivelada colocando una
parrilla en el centro del homo y poniendo un nivel
sobre esta (Figura 8).
4. Mida dos veces con el nivel en posiciOn diagonal en
una direcci0n y luego en otra. Nivele la estufa, si es
necesario, ajustando las patas y ruedas ajustables.
5. Sial cocina no se nivela, aseg0rese que el piso este
nivelado.
Instaladon con un protector trasero
La profundidad del recortado de (21 3/4" (55.2 cm)
Min., 22 1/8" (56.2cm) Max.) necesita aumentarse a
24"(61 cm) al instalar un protector trasero.
Instalacion con el juego de termino de panel.
Un juego de termino de panel puede set pedido con
su representante.
Instalacion con Paneles Laterales
Paneles Laterales puede set pedido con su
representante.
Instale las puertas de los armarios a 32" (81.3 cm)
de espacio entre elias para que no interfieran con la
abertura de la puerta de la cocina.
Leveling
Font
Leveling
Leg
RearLevelin¢
Figure 7
LOWER
RAISE
Figure 8
2O
Page 21

Cornprobacion del
Funcionamiento
Consulte el Manual del Usuario incluido con la estufa
para instrucciones de operaci6n y instrucciones para el
cuidado y limpieza de su estufa.
No toque los elementos o quemadores. Pueden estar
bastante calientes para causar quemaduras.
Quite todo el embalaje de la unidad antes de
comprobarla.
C. Quemador triple (si esta equipada):Remueva todas
lag cintas de lag basesde los quemadores. Remueva
la tapa y la base del quemador. Remueva y deseche
el material de empaque. Vuelva a poner la tapa y la
base del quemador. Tenga cuidado de no daffar
el electrodo mientras reemplaza la base encima
del orificio. Este seguro de que el electrodo siente
correctamente dentro de la ranura de la base del
quemador (yea Figura 10)
D. Aseg0rese de que todas lag tapas y la base del
quemador.
Instale las tapas de los quemadores y la base
del quemador triple,
La plancha de cocinar esta equipada con quemadores
sellados.
A. Desempaque lasparrillas de los quemadores.
B. Quemadores regulares: Lasbases y las tapas de
los quemadores se encuentran sobre la superficie.
Remueva todas las cintas de lasbases de los
quemadores y verifique que estos se encuentren
acomodados correctamente sobre la base del
quemador (vea Figura 9).
Tapa del
dot
Enciende la corriente electrica y abre la
v_lvula principal de cierre.
Comprobaci6n de los Encendedores
Elfuncionamiento de los encendedores el_ctricos
debe ser comprobado despu_s de que la estufa y los
conectores a la tuberia de suministro de gas hayan
sido comprobados por escapes y la estufa haya sido
conectada el_ctricamente. Para comprobar que el
encendido sea correcto:
1. Empuje y sire una perilla del quemador superior
hasta la posici6n Life (encender). Se podria oir el
encendedor haciendo chispas.
2. El quemador se deber_i encender en cuatro (4)
segundos para un funcionamiento normal, luego
de que el aire haya sido purgado de la tuberia de
suministro de gas. Controle visualmente que el
quemador se hay encendido.
3. Luego que el quemador se haya encendido, la perilla
debe ser girada fuera de la posici6n LifE. Cada
quemador tiene su encendedor individual. Controle
las perillas separadamente hasta que todas las wilvulas
hayan sido controladas.
Figura 10
Ajuste bajo ("LO") ara la v,ilvula de los que-
madores de superficie (Figura 11)
a. Presioney sire el control hasta la posici6n Life para
prender los quemadores.
b. Gire r_pidamente sire la perilla a la POSICIONMAS
BAJA.
c. Si el quemador seapaga, reajuste el control a OFE
d. Retire la perilla del quemador de superficie.
e. Inserte un destornillador fino-aplanado en el orifico del
wistago de la wiivula e inserte en el torniilo ranurado.
EItamaho de la llama puede aumentarse o disminuirse
d_indole vuelta al torniilo. D_ vueita en sentido opues-
to a las manecillas del reloj para aumentar el tamaho
de la llama. D_ vuelta en sentido alas manecillas del
reloj para disminuir la llama. Ajuste la llama hasta que
usted puede dar vueita r_ipidamente a la perilla de la
posici6n LITEa la POSICIONMAS BAJA sin extinguir la
llama. La llama debe ser tan pequeha como sea posible
sin apagarse. Nota: EI ajuste de la mezcla del aire no se
requiere en los quemadores de superficie
21
Page 22

O Adjustthe"'LOW"Settingof the Dual
BurnerSurfaceValve(Figure11)
Note:Onthedualvalvethelowsettingofeachportion
shouldbeadjustedindividually.
a. Pushinandturncontrolto LITEuntiltherearportion
ofthebridgeburnerignitesonly.
b. QuicklyturnknobtoLOWESTPOSITION.
c. If burnergoesout,resetcontroltoOFF.
d. Removethesurfaceburnercontrolknob.
e. Therearorouterportionoftheburnerflamesize
canbeincreasedordecreasedwiththeturnofthe
screwA. UsescrewBto adjusttheflamesizeofthe
centerportionoftheburner.Turncounterclockwise
thescrewto increaseflamesize.Turnclockwisethe
screwto decreaseflamesize.Adjustflameuntilyou
canquicklyturnknobfromLITEtoLOWESTPOSITION
withoutextinguishingtheflame.Flameshouldbeas
smallaspossiblewithoutgoingout.
Note: Air mixture adjustment is not required on surface
burners.
En sentido
opuesto a las
manecillas del En sentido de
reloj las manedllas
V,ilvula del del
quemado r v,istago
Puente o Triple valvula
Figura 11
del reloj
de la
V,ilvula de )erfide
de quemador regular
O Operaci6n de Quemadores del Homo y
Ajustes de Homo
10.6.1 - Quemador de igniciOn el_ctrica
La operaci6n de los encenderse el_ctricos debe de set
revisada despu_s de que la cocina y los conectores de la
linea de suministro haya sido cuidadosamente revisada
para descartar fugas y que la cocina haya sido conectada a
la corriente el_ctrica.
El quemador del homo est,1equipado con un sistema de
control el@ctricoasi como un encendedor de quemador
de homo el@ctrico.Si su modelo esta equipado con un
quemador de asado central superior, tambi@ncontar_i
con un encendedor de quemador el@ctrico.Estossistemas
de control no requieren ajustes. Cuando el homo esta
configurado para operar, la corriente fluir_i hacia el
encendedor y tendr_i un resplandor de manera similar a
una bombilla de luz. Cuanclo el encendedor a alcanzado
una temperatura suficiente para encender el gas, la
wilvula del homo controlada el@ctricamente se abrir_i y
el fuego aparecer_ien el quemador del homo. Hay un
lapso de tiempo de 30 a 60 segundos despu@sde que el
termostato se enciende y antes de que la llama aparezca
en el quemador del homo. Cuando el homo alcanza la
configuraci6n del dial, el encendedor resplandeciente se
apagar_i. La llama del quemador desaparecer_i pot 20 a
30 segundos despu@sde que el encendedor se apaga.
Para mantener cualquier temperatura de homo dada, este
ciclo continuar_i tanto como el dial (o visualizador) est@
configurado para operar.
Despu@sde retirar todos los materiales del empaque y la
literatura del homo:
A) Fije el homo en HORNEAR(BAKE) a 300% Vea la guia
de Uso y Cuidado para conocer las instrucciones de
funcionamiento.
B) En60 segundos el quemador del homo se encender_i.
Reviseque exista un fuego adecuado, y permita
que el quemador cumpla su ciclo una vez. Gire los
controladores hacia off (APAGADO).
C) Si su modelo esta equipado con un asador central
superior, fije el homo en ASAR. Vea la Guia de
Uso y Cuidado para conocer las instrucciones de
funcionamiento.
D) En 60 segundos el quemador de asar debe de
encenderse. Revisesi exista una llama adecuada. Gire
los controles hacia off (APAGADO).
Deflector inferior
del homo
(extraible),
22
s.i 'i
_--Obturador
Figura 12
turador Quemador a
aire cintura
de aire
la altura de la
Parte lferior del
homo (extraible)
Page 23

10.6.2- ObturadordelAire- Quemadordelhomo
LaIongitudaproximadadelallamadelquemadordel
homoes1pulgada(interiorclaro,llamaazul).Para
determinarsilallamadelquemadordehomoesla
adecuada,retireelfondodelhomoyeldeflectordel
quemadorifijeelhomoenlaopciOnhorneara300%
Despues de Terminar ia Instalacion
Aseg0resede que todos los controles esten en la posicion OFF
(apagada).
Aseg0rese de que el fluir del aire de combustion y de
ventilacion a la estufa no este obstruido.
Pararetirarelfondodelhomo,retirelostornillosdeajuste
delhomoenlaparteposteriordelfondodelhomo.Jale
haciaarriba,desengancheelfrentedelfondodelmarco
anteriordelhomo,yjalelabasehaciaafuerade_ste.
Retireeldeflectordelquemadordemaneraquelallama
delquemadorpuedaserobservada.
Silallamaesdecoloramarillo,aumenteeltamaflodela
aberturadelobturadordeaire(Veaeltamaflo"2" enel
figura13).Silallamaesdeazulclaro,reduzcaeltamaflo
delaaberturadelobturadordeaire.Paraajustar un tornillo
de cierre flojo (Vea el tamaflo "3" en el figura 13), vuelva
a colocar el obturador de aire, y ajuste el tornillo de cierre.
Reemplace el fondo del homo.
10.6.3 - Obturador de aire - Quemador de asado
La Iongitud aproximada de la llama del quemador de
asado es 1 pulgada (interior claro, llama azul). Para
determinar si la llama del quemador de asado es la
adecuada, poner el homo en la opciOn asar.
Si la llama es de color amarillo, aumente el tama_o de la
abertura del obturador de aire (Vea el tamaflo "2" en el
figura 13). Si la llama esde azul claro, reduzca el tamaflo
de la abertura del obturador de aire, y ajuste el tornillo de
cierre.
Ubicacion del Numero de Modelo y de Serie
La placa con el n0mero de serie est,1ubicada en el marco
delantero del homo detr_is de la puerta del homo (algunos
modelos) o detr_isdel cajon (algunos modelos).
Cuando haga pedidos de repuestos o solicite informacion
con respecto a su estufa, este siempre seguro de incluir el
nOmero de modelo y de serie y el nOmero o letra del Iote de
la placa de serie de su estufa.
La placa con el n0mero de serie tambien le da la potencia
nominal de los quemadores, el tipo de combustible y la
presion a la cual fue ajustada la estufa en la f_ibrica.
Antes de Llamar ai Servicio
Lea la seccion Evite Llamadas de Servicio en su Manual del
Usuario. Esto le podr_i ahorrar tiempo y gastos. Estalista
incluye ocurrencias comunes que no son el resultado de
defectos de materiales o fabricacion de este artefacto.
Lea la garant[a y la informacion sobre el servicio en su
Manual del Usuario para obtener el n0mero de telefono
gratuito y la direccion del servicio. Pot favor Ilame o escriba
si tiene preguntas acerca de su estufa o necesita repuestos.
Tornillos de
(_) seguridad -_
_ Obturador_
de aire
Tubos del
quemador
del homo
.... :_.,, (_)Tapa
Figura 13
del Ol'ifido
23
Page 24

Instrucciones de instalaci6n de la
fijaci6n anti-indinaci6n
Para reducir el riesgo de inclinaci6n
de la cocina, @stadebe ser asegurada hacia el piso con las
fijaciones de anti-inclinaci6n y los tornillos que vienen con
la cocina. Estoscomponentes se encuentran en el homo.
Si no instala lasfijaciones, corre el riesgo que su cocina
pueda inclinarse si pone demasiado peso en ella o si un
niho sube sobre @sta.Esto podrfa ocasionar graves heridas
causadas por Ifquidos calientes o por la propia cocina.
Siga estas instrucciones para instalar las fijaciones de anti-
inclinaci6n.
Si la cocina es trasladada a otro lugar, lasfijaciones de anti-
inclinaci6n deben tambi@nser trasladados con la cocina.
Herramientas necesarias:
Llave de tuerca ajustable
Trinquete
Taladro el@ctricocon barrena de 1/8"(0,32 cm)
Aprieta tuercas de 5/16" (0,8 cm)
Nivel
Abrazadera sujetada al suelo en la parte trasera de la
cocina para tener asida la parte posterior de la cocina. AI
fijarla al suelo, verificar que los tornillos no atraviesen la
instalaci6n el@ctricao de fontanerfa. Lostornillos provistos
sirven para madera o concreto.
Armario
de cocina
1. Dibujar una Ifnea central en el piso donde se instalara
la cocina. Si no hay pared posterior, dibujar otra Ifnea
en el piso que corresponda a la parte posterior de la
cocina.
2. Desplegar el molde de papel y colocarlo alisado sobre
el piso con el v@rticeposterior derecho posicionado
exactamente en la intersecci6n de las Ifneas central y
posterior dibujadas anteriormente. (Si no sedispone
de un molde, usar el diagrama incluido a continuaci6n
para ubicar las m@nsulas(Figura 14)).
3. Marque en el suelo la ubicaci6n de los cuatro orificios
de montaje que aparecen en el modelo. Parafacilitar
la instalaci6n se pueden hacer en el suelo orificios
pilotos de 3/16" (0,48 cm) de diametro de 1/2 "(1,27
cm) de profundidad.
4. Retire el modelo y ubique la abrazadera en el suelo.
Alinee los orificios en la abrazadera con las marcas
en el suelo y ajuste con los cuatro tornillos provistos.
La abrazadora debe quedar fijada al suelo (figura
16) s61ido.Si se fija al suelo concreto, primero haga
orificios pilotos de un diametro de 3/16"(0,48 cm),
utilizando una barrena para concreto.
5. AsegOrese que las4 patas de nivelaci6n estan en la
mas alta posici6n posible.
6. Deslice la cocina hacia su lugar asegOrand6se que la
pata de centro trasera esta completamente segura
con el soporte anti-inclinaci6n (Figura 15). Baje la
cocina ajustando las4 patas de nivelaci6n hasta que
la plancha de cocinar esta apoyada en el mostrador.
Refiere a la "Nivelaci6n de la cocina" a la pagina 6.
7. Despu@sde haber realizado la instalaci6n verifique
que la fijaci6n anti-inclinaci6n esta empotrada. Usted
tambi@npuede asir el horde trasero de la cima de
la estufa y cuidadosamente intentar voltearla para
asegurarse de que la estufa sea adecuadamente
anclada.
p_
Y--:G_.....
ANTi._.. _o,_--.
INCLtNACION ... "-.. (26.7 cm}
- "- _
Figura 14
Contorno de
DESLIZAR HACIA
Puerta de
DETRAS
armario
24
Tornillos de montaje
de suelo
Figura 15
aclon
Page 25

UN INSTALLATEUR QUALIFIE DOlT EFFECTUER L'INSTALLATION ET LE SERVICE.
iMPORTANT: CONSERVEZ CES iNSTRUCTiONS POUR LES INSPECTEURS LOCAUX. USEZ CES
iNSTRUCTiONS ET CONSERVEZ-LES POUR RI_FI_RENCES ULTERIEURES.
Si les instructions de ce manuel ne sont pas suivies a la lettre,
il pourrait en r_sulter un incendie ou une explosion susceptible de causer des dom-
mages materiels, des blessures ou m_me la mort.
POUR VOTRE SECURITlt:
-- N'entreposez et n'utilisez pas d'essence ou d'autres produits inflammables
proximit_ de cet appareil ou de tout autre appareil.
-- QUE FAIRE SI VOUS DltCELEZ UNE ODEUR DE GAZ:
• Ne tentez d'allumer aucun appareil.
Ref_rez-vousa la plaque
signaletiquepour la
certificationd'agence
applicable.
N'actionnez aucun interrupteur electrique; n'utilisez aucun appareil tel_phonique de I'_difice.
Communiquez imm_diatement avec votre fournisseur de gaz en vous servant du t_lephone d'un voisin.
Suivez les instructions que le fournisseur vous donnera.
S'il vous est impossible de rejoindre votre distributeur de gaz, communiquez avec le service d'incendie.
-- L'installation et I'entretien doivent Ctre effectues par un installateur qualifi_, un service d'entretien ou de
reparation accredite ou le distributeur de gaz.
30" Min.
MUR I_ Min.)
Ces surfaces doivent _tre planes ,_=_
eta niveau (region hachur_e). _'
30" Min. "-------_ _f \
1/2 min.X (76,2 cm Min.)
(voir la note 3) 13"
5" Min. _ 18" Min. l_ r_
^ ' 11/2"Max (12,7 cm Min.) \ _ (45,7 cm) Min. _...... J
Arasez le ,_ _' ,, , des deux c6t
dessusdu _J,_cm Max.)
comptoir _ __..- "__ I
au / \ IV _'_ '_ - E _ _ -3/8" min. --'---2
moins ___ /__act ' _l/2"_min. ' J_
(80cm) de__ / _ i --
largeur pour _ G _/_---- Approx. 1 7/8"
I'appareil ,_ j .._ (4,8 cm)
_ i.......:i_, ,
Installezlesportes de I'armoire3 au _f '
°#o"
moins 1" (2 5 cm) de I'ouverture. _ _ ........... /
_ /_ Br["'_.._ _/ 24" Min.
Y,
IMPORTANT: La __' _ _ -_ ,_ (61 cm Min.)
| I /
etce educomptor i i _ .
doivent corres_ondre i _ E _ i Laprisemurale ou la bo_tedejonction doit se situer
la lareeur de_ i entre 8" a 17" (20,3a 43,2 cm) de I'armoirede droite
decoupage E. et 2" a4" (5,1 a 10,2 cm)du plancher.
35 5/8" (90.5 cm) -
36 5/8" (93cm)
NOTE: Le schema de c_blage de I'appareil est indus a la fin de ce feuillet.
Imprime aux _tats-Unis
30" (76,2 cm) 31Y:" (80 cm) 28 5/16" (71,9 cm) 30_+1/16" (76,2_+0,15 cm) 21 3/4" (55,2 cm) Min.
22 1/8" (56,2 cm) Max
24" (61 cm) Min. avec
dosseret
P/N 318201686 (1010) Rev. B
English - pages 1-12; EspaSol - p_iginas 13-24;
Fran_ais - pages 25-36; Notes - pages 37-38;
Schemas de c_blage - pages 37-40
36 5/8" (93 cm) Max.
35 3/4" (90.8 cm) Min.
Page 26

NOTE:
1.Ne coincez pas le cordon d'alimentation ou le conduit de gaz entre lemur et I'appareil.
2. Ne scellez pas I'appareil aux armoires laterales.
3. Degagement minimum de 24" (61 cm) entre la plaque de cuisson et la bas de I'armoire du haut Iorsque
le dessous de I'armoire en bois ou en metal
est proteg6 par un celloderme retardateur
de flammes d'un minimum de ¼" (0,64 cm)
recouvert d'une feuille de metal MSG No. 28,
d'acier inoxydable d'un minimum de 0,015"
(0,4 mm), d'aluminium de 0,024" (0,6 mm)
ou de cuivre de 0.020" (0,5 mm).
Degagement minimum de 30" (76,2 cm)
Iorsque I'armoire n'est pas proteg6e.
5.Notez que pour les ouvertures de moins
de 22 7/8" (58,1 cm), I'appareil depassera
legerement vers I'avant du comptoir.
6.AIIouez au moins 19 ¼" (48,9 cm) d'espace
pour permettre I'ouverture de la porte du
four.
Porte ouverte
(voir la note 5)
\ -
A
Panneau lateral
Figure 1
*IMPORTANT: Pour une largeur de decoupage (dimension E) plus grande que 30 1/16" (76,4
cm) et pour _viter un bris de la table de cuisson, au moment d'ins_rer I'appareil dans le comptoir
assurez-vous qu'il est bien centr_ dans I'ouverture. Levez les pattes de nivellement et les roulettes
de nivellement au maximum (page 34), inserez I'appareil dans le comptoir et ensuite nivelez-
le. Assurez-vous que I'appareil est bien support_ par les pattes et roulettes de
nivellernent et non par la table de cuisson.
22 7/8" (58,1 cm) rain.
23 1/4" (59,05 cm) max.
(seenote 4)
DEVANT
DU
CABINET
1 1/8"
(2,86 cm)
Ref.
35 518" (90.5 cm) -
36 518" (93cm)
30" (76,2 cm) 31Y2" (80 cm) 28 5/16" (71,9 cm) 30_+1/16" (76,2_+0,15 cm) 21 3/4" (55,2 cm) Min.
26
22 1/8" (56,2 cm) Max
24" (61 cm) Min. avec
dosseret
36 5/8" (93 cm) Max.
35 3/4" (90.8 cm) Min.
Page 27

Pour viter les cassures: NE PAS manipuler
I'appareil par la table de cuisson.
Le comptoir alentour de I'ouverture de decoupage doit _tre plat et
niveau (voir hachures sur illustration 1).
Avant d'installer I'appareil, mesurer les hauteurs des deux (2) c6tes
du comptoir (H1-4), avant et arriere (volt illustration 1) du plancher
jusqu'au dessus du comptoir.
Mettre I'appareil a niveau
en utilisant les deux (2)
pattes de nivellement avant
et les deux (2) roulettes de
nivellement arriere pour
que la hauteur entre le
plancher et le renfort de
m_tal en dessous de la
table de cuisson soit plus grande par 1/16"que la
plus grande mesure H1-4 (voir illustration 2).
Retirer et jeter les deux pattes de nivellement arriere, elles sont en place seulement que pour
solidifier I'appareil pendant le transport•
Glisser I'appareil dans le comptoir. Assurez-vous que le centre de I'appareil
soit aligne avec le centre de I'ouverture du comptoir.
Enlever les protecteurs de plastique sur chaque c6te de la table de
cuisson (si inclus avec I'appareil).
Le renfort de metal en dessous de chaque c6te de la table de cuisson
DOlT reposer sur le comptoir pour que I'appareil soit bien support&
La table de cuisson ne dolt PA$ toucher directement le comptoir (volt
illustration 2), sinon cela pourrait provoquer un bris de la table qui
annulera la garantie. Niveler I'appareil si necessaire.
Arasez le 11/2"Max.
dessus du (3.8 cm Ma_.)
comptoir a __.--}
au moins ',,.__j_ _ z
311/2,,(81 --_J_. 5/
cm) de largeur pour 11
cuisini_re.
Illustration 1
/
Apres I'installation, ASSUREZ-VOUS que
I'appareil est soutenu par les deux pattes
de nivellement et les deux roulettes de
nivellement arriere et NON par la table de
cuisson.
: Afin d'installer
•- correctement
la cuisiniere, la
hauteur initiale
entre le plancher et
le renfort de metal
en dessous de la
table de cuisson
doit _tre au moins
1/16" plus grande
que les mesures du
comptoir mesures
dans I'_tape 1.
Illustration 2
27
Page 28

Notes importantes a Pinstallateur
1. Lisez toutes les instructions contenues dans ce feuillet
avant d'installer la cuisiniere.
2. Enlevez tout le materiel d'emballage des compartiments
du four avant de connecter I'alimentation de gaz et electri-
que a la cuisiniere.
3. Respectez tousles codes et reglements applicables.
4. N'oubliez pas de laisser ces instructions au consommateur.
5. Note: Pour utilisation de I'appareil a 2000 pieds au-dessus
du niveau de la met, la puissance des brOleurs dolt _tre
reduite de 4% pour chaque 1000 pieds supplementaires.
Note importante au consommateur
Conservez ces instructions avec le guide de I'utilisateur pour
reference ulterieure.
INSTRUCTIONS DE SI'CURITI"
IMPORTANTES
Cette cuisiniere dolt _tre installee conformement aux
reglements Iocaux, ou en burs absences, aux normes ANSI
Z223.1/NFPA .54- derniere edition.
La conception de cette cuisiniere a ete approuvee par CSA
international. II faut prendre certaines precautions d'usage
lots de I'utilisation de tout appareil fonctionnant au gaz
naturel ou produisant de la chaleur. Vous trouverez celles-ci
dans votre Guide d'utilisateur, lisez-les avec attention.
+Assurez-vous que votre cuisiniere est correcternent
installee et rnise a la terre par un installateur ou un
techniden d'entretien qualifie,
+ Le circuit electrique de cette cuisiniere doit _tre rnis
la terre conforrnernent aux reglernents Iocaux, ou
en leurs absences, au code electrique ANSI/NFPA
No,70-derniere edition, Voir les instructions de mise
la terre.
= Avant d'instaHer la cuisiniere a un endroit recouvert
de linoleum ou de tout autre couvre-plancher
synthetique, assurez-vous que celui-ci peut resister
un minimum de 90°F (32.2°C) de chaleur au-dessus
de la temperature de la piece sans se rapetisser, se
deforrner ou se decolorer. N'installez pas la cuisiniere
sur un tapis, a moins de placer un tampon isolant ou une
feuille de contreplaque d'une epaisseur de X" (0.6 cm)
entre la cuisiniere et le tapis.
+ Assurez-vous que _atapisserie a proxirnite du four
peut resister a la chaleur generee par ia cuisiniere.
+ Ne bloquez pas ia circulation d'air a i'orifice de
Pour prevenir tout risque
Toutes les cuisi-
nieres peuvent
basculer.
Des blessures
pourraient surve-
nit.
to
Installer les
amarres qui
accompagnent la
cuisiniere.
de basculement de la
cuisiniere, cet appareil
dolt 6tre fixe correctement
au plancher a I'aide des
amarres qui I'accompa-
gnent. Pour verifier si
les amarres sont posees
correctement, retirer le
tiroir de rangement et
s'assurer que les amarres
sont enclench@s.
ventilation du four ni autour de ia base ou sous ie
panneau inferieur avant de la cuisiniere. Evitez de
toucher les ouvertures de I'orifice de ventilation ou les
surfaces avoisinantes car elles risquent de devenir chaudes
Iorsque le four fonctionne. Les brOleurs ont besoin d'air
frais pour assurer une bonne combustion.
Ne _aissez jarnais les enfants
seuls ou sans surveillance pres d'un appareil en
fonctionnernent. Apprenez-leur a utiliser les appareils
electromenagers de fat;on securitaire et appropriee. Ne
laissez jamais la porte du four ouverte Iorsque la cuisiniere
est sans surveillance.
Le fait de rnonter sur ia porte
ou ie tiroir de cette cuisiniere, de s'y appuyer ou de
s'y asseoir peut occasionner des blessures graves, et
endornrnager i'appareiL
+ N'entreposez pas d'objets susceptibles d'interesser
ies enfants dans les arrnoires situees au-dessus de
la cuisiniere, IIs risquent de se brQler serieusement s'ils
tentent de grimper sur I'appareil.
+ I_vitez de placer des arrnoires de rangernent
au-dessus des brQleurs afin d'eiirniner ies gestes
inutiles au-dessus de ceux-ci.
+ Reglez ia flarnrne du brQleur pour qu'elle ne depasse
pas le bord de I'ustensile utilise pour ia cuisson. Une
flamme excessive est dangereuse.
+ N'utilisez pas le four & des fins de rangernent. Ceci
genere une situation eventuellement dangereuse.
+ N'utilisez jarnais votre cuisiniere pour rechauffer ou
chauffer la piece. L'utilisation prolongee de la cuisiniere
sans une ventilation adequate peut s'averer dangereuse.
+ Ne gardez pas de produits combustibles, d'essence
et d'autres produits inflammables a proxirnite de
cet appareil ou de tout autre appareiL II pourrait en
resulter des explosions ou un incendie.
+ Lots d'une panne de courant electrique, les brOleurs de
surface peuvent _tre allumes manuellement; placez une
allumette allumee pres de la t_te du brOleur et tournez
lentement le bouton de commande de surface a la
position LITE. Redoublez de prudence si vous allumez un
brOleur de surface manuellement.
+ Replacez toutes les cornrnandes a la position arr_t
{<off>+apres I'utilisation d'une fonction programmable
chronometree.
POUR MODI=LES AYANT UN FOUR AUTONETTOYANT:
+ Enlevez la lechefrite, les grilles, les aliments
et les autres ustensiles avant de faire un cycle
autonettoyant du four. Essuyez tous les renversements
excessifs. Suivez les instructions pour le pre-nettoyage
dans le Guide de I'utilisateur.
+ Cornrne sur les cuisinieres standard a gaz, LA TABLE
DE CUISSON DE CET APPARE& N'EST PAS AMOWBLE.
Ne tentez pas de I'enlever.
28
Page 29

N
Construction de I'arrnoire
Pour eliminer les risques de br01ures
ou de feu, en etendant le bras au-dessus des surfaces de
cuisson chaudes, evitez d'installer des armoires au-dessus
de ces dernieres. Si vous devez en installer, il est possible de
reduire le risque en placant une hotte pour cuisiniere qui
excede horizontalement d'un minimum de 5" (12.7 cm) la
base de I'armoire.
Preparation du dessus de comptoir
• Les c6tes de la plaque de cuisson de la cuisiniere
s'ajustent au-dessus du rebord du decoupage du dessus
de comptoir.
• Si vous avez un dessus de comptoir au fini carte (plat),
aucune preparation n'est requise.
Les dessus de comptoir au rebord avant moule doivent
@treaplanis de 3A" (1.9 cm) a chaque coin avant de
I'ouverture (Figure 1).
II est possible qu'il soit necessaire d'araser de 3A" (1.9
cm) les dessus de comptoir en mosa'l'que a chaque coin
avant et/ou d'aplanir le rebord arrondi (Figure 1).
311/2,>j_
(81 cm)
/ Dessus de cornptoir rnoule ou en
rnosa'_que aplani de 3A" (1.9 crn) aux
rebords avant de I'ouverture de
(1.9 cm) dessus de comptoir.
I Figure 1
• Si la largeur du dessus de comptoir est superieure
la largeur minimum requise, ajustez en consequence le
3A" (1.9 cm).
• Le dessus de comptoir doit _tre a niveau. Placez un
niveau sur le dessus de comptoir, d'abord de chaque c6te,
et ensuite du devant a I'arriere. Si le dessus de comptoir
n'est pas horizontal, la cuisiniere ne le sera pas non plus.
Le four dolt _tre a I'horizontale pour obtenir des resultats
de cuisson satisfaisants.
Pour un fonctionnement normal la pression interieure
maximale au regulateur ne dolt pas @tre superieure
14"(35,56 cm) (3.5 kpa) de pression de colonne d'eau.
La pression d'admission au regulateur dolt @tre superieure
d'au moins un pouce (ou de .25 kpa) au regulateur ajuste
la rampe a gaz. Pour le gaz naturel, le regulateur etant
ajuste a 4" (10,16 cm) de pression (1.0 kpa), la pression
d'admission dolt @tre d'au moins 5 "(12,7 cm) de colonne
d'eau (1.25 kpa). Pour le gaz propane, le regulateur etant
ajuste a 10"(25,4 cm) de pression (2.5 kpa), la pression
d'admission dolt @tre d'au moins 11 po (27,9 kpa).
La ligne d'alimentation dolt @tre munie d'un robinet d'arr@t
approuve (volt Figure 6). Ce robinet dolt se trouver dans la
m@me piece que la cuisiniere eta un endroit qui permette
de I'ouvrir et de le fermer facilement. Ne bloquez pas
I'acces au robinet d'arr@t. II est destine a ouvrir eta fermer
I'alimentation en gaz de I'appareil.
Les tests pour verifier les fuites de gaz doivent @trefaits
selon les instructions de I'etape 4.
La ligne de gaz dolt @tre de Y2" (1.3 cm) ou de 3A" (1.9 cm).
L'alimentation en gaz peut provenir du mur arri_re
(Figure 2, zone 1) ou du plancher (Figure 2, zone 2):
Zone I = Par le tour artiste (7" X 6") - Le meilleur
emplacement pour Iocaliser la ligne de gaz est entre 1"
(2.5 cm) et 8" (20.3cm) du plancher et _ en dedans de 3"
(7.6 cm) de la ligne de centre.
Zone 2 - Par le plancher (-2" X 24") - La ligne de gaz
peut aussi provenir du plancher, elle dolt _tre situ_e en
dedans de 12" (30.5 cm) de chaque c6t_ de la ligne de
centre contre lemur arri_re. Si n_cessaire, vous pouvez
enlever la piece de m_tal en L situ_e en has _ I'arri_re de
I'appareil. II n'y a pas de probl_me _ enlever cette piece,
elle sert _ prot_ger la ligne de gaz particuli_rement Iors
du transport.
m
Alimentation en gaz - Installation
Cet appareil a ete conc_uen usine pour fonctionner au
gaz naturel avec une pression d'admission de 4" (1 O,16
cm) de colonne d'eau (1.0 kpa). Un regulateur de
pression convertible est branche avec la rampe a gaz de la
cuisiniere, et DOlT RESTERconnecte en serie avec le tuyau
d'alimentation. Si un kit de conversion au gaz propane est
utilise, suivez les instructions de conversion comprises dans
le feuillet fourni pour convertir le regulateur pour _tre utilise
avec le gaz propane.
Une attention particuliere dolt _tre prise lots de I'installation
de I'appareil pour ne pas obstruer la prise d'air pour la
combustion et le conduit de ventilation de I'appareil.
Figure 2
29
Page 30

n
Scellez les ouvertures
Scellez toutes les ouvertures dans le mur a I'arriere de la cuisi-
niere ainsi que celles dans le plancher sous I'appareil une fois
que la ligne de gaz est installee.
N
| Branchez le gaz a la cuisiniere
Important: Enlever tout le materiel d'emballage des com-
partiments du four avant de brancher I'alimentation a gaz et
electrique a la cuisiniere.
Afin de prevenir les fuites, utilisez des pates a joints de tuyau-
terie fabriquees pour utilisation avec gaz naturel et propane.
Le regulateur est situe tel
que montre ici.
Ne
laissez pas le regulateur
glisser sur le tuyau Iors
du branchernent.
Figure 3 Emplacement du
regulateur
Branchement du regulateur de pression
Le regulateur est installe a I'appareil.
Ne serrez pas trop les raccords. Le
regulateur est moule sous pression. Un serrage excessif
pourrait le fissurer et provoquer une fuite de gaz susceptible
de causer un incendie ou une explosion.
Robinet Adapteur DEBIT Adapteur Regulateur
d'arr_t de raccord DU GAZ de raccord de pression
manuel evase _" evas_
A,,u
\-,_ Mamelon Flexible Mamelon
Arr_t_ Connector
Tousles branchements doivent _tre serf,s
I'aide d'une cl_ _ ouverture fixe
Figure 4
Assemblez le connecteur flexible du conduit d'alimentation
en gaz au regulateur de pression dans I'ordre qui suit
1. robinet d'arr_t manuel (non-indus)
2. _/2" mamelon (non-indus)
3. _/2" adaptateur de raccord evase (non-inclus)
4. connecteur flexible, (non-inclus)
5. _/2" adaptateur de raccord evase (non-inclus)
6. _/2" mamelon (non-inclus)
7. regulateur de pression. (inclus)
Couvercle
d'acc&s
Utilisez des pates a joints de tuyauterie fabriquees pour
utilisation avec gaz naturel et propane, pour sceller les
connexions de gaz. Si des connecteurs flexibles sont utilises,
assurez-vous qu'ils ne sont pas tordus.
La ligne de gaz doit _tre munie d'un robinet d'arr_t manuel
approuve. Ce robinet doit _tre installe dans la m_me piece
que I'appareil et doit _tre facile d'acces. Ne bloquez I'acces
au robinet. Ce robinet permet d'arr_ter ou de permettre
I'alimentation en gaz a la cuisiniere.
V_
Robinet d'arr_t
manuel - Ouvert Figure 5
Une fois le regulateur en place, ouvrez le robinet de la ligne
d'alimentation en gaz. Attendez quelques minutes pour
perr,,ettre au gaz circuler a travers la canalisation pour le
gaz.
Veillez a ce qu'il n'y ait pas de fuites. Apres avoir
raccorde I'alimentation en gaz a la cuisiniere, a I'aide d'un
manometre verifiez si le systeme ne fuit pas. Si vous ne
disposez pas d'un manometre, ouvrez I'alimentation en gaz
et utilisez un liquide detecteur de fuites sur tousles joints et
les raccords.
N'utilisez pas de flamme nue pour
verifier les fuites de gaz. La detection des fuites a I'aide
d'une flamme pourrait provoquer un incendie ou une
explosion.
Resserrez tous les raccords si necessaire, afin de prevenir
les fuites de gaz dans la plaque de cuisson ou le tuyau
d'alimentation.
Debranchez la cuisiniere et ferrnez son robinet
d'alimentation en gaz Iors de toute verification de
pression du circuit d'alimentation de gaz a une pression
superieure a 1/2 Ib/po2 (3.5 kpa ou 14"(35,56 cm) colonne
d'eau).
Isolez la cuisiniere du reseau d'alirnentation en gaz
en fermant son robinet d'arr_t manuel, lots de toute
verification de pression du circuit d'alimentation en gaz
une pression inferieure ou egale a 1/2 Ib/po2 (3.5 kpa ou 14
pc. colonne d'eau).
m
Conversion au gaz propane
Cet appareil fonctionne au gaz naturel ou au gaz propane.
II est regle en usine pour fonctionner au gaz naturel.
Si vous desirez convertir votre cuisiniere au gaz propane,
servez-vous des orifices fixes fournis dans I'enveloppe
portant I'inscription <<POURCONVERSION AU GAZ
30
Page 31

PROPANE>>.Suivez les instructions d'installation se trouvant
dans I'enveloppe.
Un installateur quail% dolt effectuer la conversion
conformement aux instructions du fabricant et a tous
les codes et reglements applicables. Sices instructions
ne sont pas suivies a la lettre, il pourrait en resulter de
serieuses blessures corporelles ou des dommages materiels.
L'entreprise d'installation quali%e qui effectue ce travail
assume la responsabilite de la conversion.
Si on n'effectue pas la conversion
correctement, il pourrait en resulter des blessures
corporelles et des dommages materiels.
| Branchez le courant electrique
la cuisiniere
Circuit de derivation de 120 volt, 60 Hertz, avec mise a la
terre appropriee, protege par un disjoncteur de 15 amperes
ou un fusible temporise.
N'utilisez pas de cordon de rallonge pour brancher
I'apparei{.
Instructions de raise a la terre
IMPORTANT Veuillez lire attentivement.
Pour votre propre securite, cet apparel{ dolt _tre
correcternent rnis a la terre.
Afin de reduire au minimum les risques de chocs electriques,
le cordon d'alimentation de cet appareil est muni d'une
fiche de contact tripolaire (mise a la terre) enfichable dans
une prise de courant murale tripolaire standard avec mise
la terre (figure 6).
Methode preferee / II est strictement "_
/ interdit de couper |
//;, AWl _i_t_) du_o_do.F
I'appareil est bien mis a la
terre avant de I'utiliser
Figure 6
II est consei% de faire verifier la prise de courant murale et
le circuit par un electricien quail%, afin de s'assurer que la
prise de courant est correctement mise a la terre.
Dans le cas ou il n'y a qu'une prise de courant murale
bipolaire standard, il incombe au client de la remplacer par
une prise de courant murale tripolaire correctement mise
la terre.
1{est stricternent interdit de couper ou d'enlever
la troisierne tige (rnise a la terre) du cordon
d'alirnentation.
Debranchez le cordon
d'alimentation electrique de la prise de courant murale
avant de reparer ou de nettoyer la plaque de cuisson.
| Deplacement de I'appareil en vue
d'en faire le service ou pour faire du
nettoyage
Coupez I'alimentation electrique de I'appareil a la botte des
fusibles ou des disjoncteurs et fermez le robinet manuel
d'alimentation a gaz. Defaites la connexion de la tuyauterie
rigide au regulateur. II n'est pas necessaire de defaire cette
connexion si un conduit flexible est utilise. Assurez-vous
que I'appareil est froid. Retirez le tiroir de rangement,
puis ouvrez la porte du four. Soulevez la cuisiniere
I'avant et faites-la glisser hors de son gtte, tout en evitant
de soumettre le conduit a gaz flexible a des contraintes
excessives. Lorsque la cuisiniere est replacee dans son gtte,
veillez a ne pas coincer le conduit a gaz flexible et le cable
d'alimentation electrique derriere I'appareil. Reconnectez la
tuyauterie rigide au regulateur (si applicable) et verifier qu'il
n'y a pas une fuite de gaz du joint. Replacez le tiroir, fermez
la porte et realimentez I'appareil en gaz et en electricite.
n
Installation de la cuisiniere
Note Importante: L'enl_vement de la porte du four
n'est pas requis pour I'installation de I'appareil, mais la
facilite grandement. R_f_rez-vous au manuel d'utilisation
pour connattre les _tapes.
Installation standard
La table de cuisson chevauche c6t_ du
dessusdu comptoir et la cuisini_re est assisesur le
piancher. La largeur de la table de cuisson est de
311/:,, (80 cm).
_I Les armoires sous le doivent _tre
comptoir
distantes de 30" (76.2 cm). Assurez-vous qu'elles
sont d'aplomb et de niveau avant d'y installer la
cuisini_re. Araser le rebord bomb_ _ I'extr_mit_
avant du comptoir pour obtenir un ajustement serr_
entre les bords ext_rieurs de la table de cuisson de
311/:,, (80 cm) et le comptoir.
Distancez les portes des armoires de 32" (81.3
cm) minimum afin qu'elles n'interf_rent pas avec
I'ouverture de la porte du four.
D_coupez le comptoir tel que montr_ _ la page 25.
O
Assurez-vous que les deux pattes de nivellement
avant et les deux roulettes de nivellement arri_re
soient install_es plus hautes que la hauteur du
comptoir (voir page 36).
Retirer et jeter les deux pattes de nivellement arri_re,
elles sont en place seulement que pour solidifier
I'appareil pendant le transport.
Installez le support anti-
bascule maintenant avant de placer l'apparei{
sa position finale. Suivez {esinstructions _ la page
38 ou sur legabarit fourni avec le support anti-bascule
de I'appareil.
chaque
31
Page 32

Afin d'obtenir une installation maximale, les 3 c6t_s
O
du comptoir recevant I'appareil doivent _tre plat et
niveau. Tous les ajustements ad_quats afin que le
comptoir soit plat doivent _tre faits sinon des espaces
entre I'appareil et lecomptoir peuvent se produire.
_ Pour _viter d'endommager
I'appareil, ne pas le saisirou le manipuler par la surface
de cuisson. Manipulez-le avec soin.
OCentrez I'appareil devant le centre de I'ouverture du
comptoir.
OAssurez-vous la surface de cuisson allant
que par
dessusle comptoir est bien plus haute que le comptoir.
Si tel n'est pas le cas, levez I'appareil en baissant
les pattes de nivellement avant et les roulettes de
nivellement arri_re.
Nivelez la cuisini_re (voir la section 9). Leplancher
qui supporte la cuisini_re dolt _tre de niveau.
OFinalement, glissez I'appareil dans I'ouverture du
comptoir.
_Si des accessoires sont n_cessaires:
Installation avec un dosseret
La profondeur du d_coupage de (213A'' (55.2 cm) Min.,
22 1/8" (56.2 cm) Max.) dolt _tre augment_e _ 24" (61
cm) Iorsqu'un dosseret est install_ sur I'appareil.
b.Retirez les pattes arri_res en utilisant un cl_ _ cliquet sur
la base de la patte et tournez-la dans lesens anti-horaire
jusqu'_ ceque la patte se d_tache de I'appareil. Jetez les
pattes arri_res, elles sont seulement utiles pour solidifier
I'appareil durant le transport.
c. Pour ajuster les dispositifs de nivellement arri_re, utilisez
un tourne _crou ou un rochet et tournez I'_crou de
nivellement dans le sensanti-horaire pour baisseret dans
le sens horaire pour lever I'appareil.
3. V_rifiez si I'appareil est _ niveau en installant une grille
au centre du four et en placant un niveau _ bulle sur
cette derni_re (Figure 8).
4. Prenez 2 lectures en placant le niveau en diagonale dans
une direction, puis dans I'autre direction. Si n_cessaire,
ajustez les 2 pattes et les dispositifs de nivellement.
5. S'il est impossible de mettre _ niveau I'appareil,
contactez un menuisier pour corriger lesddauts dans le
plancher.
uster la
Installation d'une moulure arri_re
Vous pouvez commander un n_cessaire pour moulure
arri_re dans un centre de service.
Installation de panneaux lateraux
Vous pouvez commander un n_cessaire pour panneaux
lat_raux dans un centre de service. Distancez les portes
des armoires de 32" (81.3 cm) minimum afin qu'elles
n'interf_rent pas avec I'ouverture de la porte du four.
Mise niveau de la cuisiniere
Mettez a niveau I'appareil apr_s I'avoir insere dans le
comptoir
1. Ouvrez le tiroir de la cuisini_re. Desvis de nivellement
contrblent la hauteur des roulettes de nivellement arri_re.
2. Ajustez les pattes et les roulettes de I'appareil, comme
d_crit plus loin, jusqu'_ ce que le dessous de la surface
de cuisson s'appuie d_licatement sur le dessus du
comptoir et soit _ niveau (Figure 7).
a.Pour ajuster lespattes de nivellement avant, utilisez une
cl_ _ cliquet sur la base de la patte et tournez-la dans
le sens anti-horaire pour baisser ou dans le sens horaire
pour lever I'appareil.
Ecrou de
nivellement
Vis de
nivellem ent ----_
avant
Figure 7
LEVER
Figure 8
32
Page 33

Verification du Fonctionnement
Referez-vous au Guide de I'utilisateur indus avec la
cuisiniere pour les directives de fonctionnement et pour
I'entretien et le nettoyage de votre cuisiniere.
Ne touchez pas aux elements ou/et
aux br01eurs.IIspeuvent _tre assezchauds pour causer des
br01ures.
Fnlevez tout le materiel d'emballage du four avant de
commencer les essais.
C. Br01eur triple (si present): Enlevez les rubans
adh_sifs. Enlevez le couvercle et la base du br01eur.
Retirez et jetez le materiel d'emballage. Replacez la base
et le couvercle du br01eur triple. Attention de ne pas
endommager les _lectrodes Iorsque vous placez la
base du br01eur sur I'ouverture de gaz. Assurez-vous
que I'_lectrode est correctement ins_r_e dans I'ouverture
pr_vue _ cette fin sur la base du br01eur (Figure 10).
D. Assurez-vous que la base du br01eur triple et les
couvercles de tousles br01eurs sont correctement
positionn_s AVANT d'utiliser les br01eurs.
O Installation des couverdes de br01eur et de
la base du br01eur Triple
Cette surface de cuisson est munie de br01eurs scell_s.
A, D_baller les grilles.
B. Breleurs reguliers: Les bases et les couvercles des
br01eurs r_guliers sont d_j_ install_s. Enlevez les rubans
adh_sifs et v_rifiez si les couvercles sont correctement
install_s (Figure 9).
Couvercle du
br61eur
Orifice
d'alimentation Base du
en br_leur
Couvercle du
Base du
br61eur
NOTE: Aucun reglage de brOleur n'est necessaire dans ce
genre de cuisiniere.
O Branchez I'alimentation en _lectricite et
ouvrez le robinet principal d'alimentation en gaz
O V_rifiez les allumeurs
II faut v_rifier le fonctionnement des allumeurs
_lectriques apr_s que la cuisini_re et les raccords du
tuyau d'alimentation aient _t_ eux-m_mes v_rifi_s
relativement aux fuites et que la cuisini_re ait _t_
branch_e _ la prise de courant.
Pour v_rifier si I'allumage est ad_quat:
a. Appuyez sur le bouton de commande d'un
br01eur de surface et tournez-le _ la position
<<LITE>>.Vous entendrez les _tincelles de
I'allumeur _lectrique.
b. Le br01eur de surface dolt s'allumer Iorsque
le gaz est disponible au br01eur sup_rieur. En
fonctionnement normal, chaque br01eur dolt
s'allumer dans un d_lai de quatre (4) secondes
apr_s que I'air ait _t_ purg_ des canalisations
d'alimentation. Regardez si le br01eur est allum_.
c. Une fois le br01eur allum_, le bouton de
commande dolt _tre tourn_ _ une autre position
que LITE.
II existe des dispositifs d'allumage s_par_s pour
chaque br01eur. Essayezchaque bouton s_par_ment
jusqu'_ ce que tous les robinets de br01eur aient _t_
v_rifi_s.
Figure 10
33
Page 34

0 R_glagedelaposition"LOW"desrobinets
desbrOleursdesurfacereguliers(Figure11)
a. Poussezettournezleboutondecommande_la
positionLITEjusqu'_cequelebr01eurs'allume.
b. Tournezrapidementleboutondecommandedela
position"HI"blaposition"LOW".
c. Silebr01eurs'_teint,tournezleboutondecommande
lapositionOFF(arr_t).
d. Enlevezleboutondecommandeetr_glezlerobinet
commeindiqu_b I'_tapee.
e. ins_rezuntournevisb lamefinedansI'axecreuxdu
robinet,etengagez-ledanslavisbt_tefendue
I'int_rieur.OnpeutaugmenteroudiminuerI'intensit_
delaflammeenfaisanttournerlavis.Tournez
danslesensinversedesaiguillesd'unemontrepour
augmenterladimensiondelaflammeetdanslesens
desaiguillesd'unemontrepourladiminuer.R_glez
laflamme,jusqu'bcequevouspuissieztourner
rapidementleboutonde laposition"HI"bla
position"LOW",sansquelaflammenes'_teigne.La
flamme,aussifaiblequepossible,devrait_trestable
sanss'_teindre.
NOTE:Lesbr01eursde surfacene n_cessitentpasde
r_glagedem_langed'air.
Banslesens Banslesens
inversedes desaiguilles
aiguilles d'unemontre
d'une
rnontre
Axe
Robinet double
du brQleur "Pont" robinet
ou "Triple" "-_.._-._. _,
Figure 11 ......_ brQleur regulier
O Reglage de la position "LOW" du robinet
double des breleurs "Pont" ou "Triple" (certains mo-
dules) (Figure 11)
Note: Sur le robinet double, la position "LOW" pour cha-
cune des portions du br0ieur doit _tre ajust_e individuei-
lement.
a. Poussez et tournez le bouton de commande _ la
position LITEjusqu'_ ce que le br01eur s'allume.
b. Tournez rapidement le bouton de commande de la
position "HI" _ la position "LOW".
creux du
......._.?<_\
"_ Robinet d'u
c. Si le br01eur s'_teint, tournez le bouton de commande
la position OFF(arr_t).
d. Enlevez le bouton de commande et r_glez le robinet
comme indiqu_ _ I'_tape e.
e. La dimension de la flamme de la portion artiste ou
externe du br0ieur peut _tre augment_e ou diminu_e
en tournant la vis A. Utilisez la vis B pour ajuster la
dimension de la flamme de la portion centrale du
br0ieur. On peut augmenter ou diminuer I'intensit_
de la flamme en faisant tourner les vis. Tournez
dans le sens inverse des aiguilles d'une montre pour
augmenter la dimension de la flamme et dans le sens
des aiguilies d'une montre pour la diminuer. R_glez
la flamme, jusqu'_ ce que vous puissiez tourner
rapidement le bouton de la position "HI" _ la position
"LOW", sans que la flamme ne s'_teigne. La flamme,
aussi faibie que possible, devrait _tre stable sans
s'_teindre.
NOTE: Les br0ieurs de surface ne n_cessitent pas de r_-
glage de m_lange d'air.
Fonctionnement et reglage des br_leurs du
four.
10.6.1Br_leurs a allurnage electrique
Le fonctionnement des allumeurs electriques devrait _tre verifie
apres que la cuisiniere et I'arrivee de gaz aient ete verifiees
minutieusement pour detecter les fuites et que la cuisiniere ait
ete branchee au reseau electrique.
Le br01eur du four est muni d'un allumeur electrique ainsi que
d'un systeme de commande electrique. Sivotre modele est muni
d'un br01eur de rotisserie _halimentation par prise unique, il aura
egalement un allumeur electrique. Ces systemes de commande
ne necessitent aucun ajustement. Lorsque le fourneau sera pr_t
fonctionner, le courant parviendra a I'allumeur qui deviendra
incandescent et Iorsqu'il aura atteint latemperature d'ignition du
gaz, lavalve decommande du four commandee electroniquement
s'ouvrira et une flamme apparattra au br01eur du fourneau. IIy a
un delai de 30 _h60 secondes apres que le thermostat soit mis en
position "ON" et le moment que la flamme apparaisse au br01eur
du fourneau. Lorsque le four atteint la temperature reglee au
cadran, I'allumeur s'eteint. La flamme du br01eur s'eteint entre
20 et 30 secondes apres que I'allumeur eut ete coupe. Ce cycle
continuera pour maintenir toute temperature reglee jusqu'a ce
que I'indicateur/cadran soit remis a "OFF".
Apres avoir enleve tout materiel d'emballage et la documentation
du four,
a) Reglez le four pour cuire "BAKE" a 300% Voir le Guide
d'utilisation et d'entretien pour les directives d'operation.
b) Lebr01eurdu four devraits'allumeren dedans de 60 secondes.
Verifiez si la flamme est convenable, repetez la procedure
une autre fois et remettez le bouton de commande a la
position Arr@t (OFF).
c) Si votre modele est muni d'un br01eur de rotisserie
alimentation par prise unique, reglez le fourneau _hrOtissage
(BROIL). Voir le Guide d'utilisation et d'entretien pour les
directives d'operation.
34
Page 35

d) Le br01eur de la rotisserie devrait s'allumer en dedans de 60
secondes. Verifiez si la flamme est convenable et remettez
le bouton de commande a "OFF".
s
/
D_flecteu r
du bas du
fourneau
(D_montable) y_
_" Clapet ,_ air
10.6.2 Br_[eur du fourneau a dapet d'air
La Iongueur approximative de la flamme du br01eur du fourneau
est de 1" (25 mm) (centre de flamme bleu distinct).
Clapet & air nettoyage)
Figure 12
BrQleur de r6tisserie
(Modeles _ auto-
Fond du four
(D_montable)
Pour determiner si la flamme du br01eurdu four est adequate,
enlevez le fond du four et I'enceinte du br01eur et reglez la
commande du four a 300°F.
Enlevez les vis de maintien a I'arriere du fond du fourneau pour
pouvoir retirer lefond du fourneau. Soulevez a I'arriere, degagez
le fond avant du cadre du four et retirez le fond du fourneau hors
de celui-ci. Enlevez I'enceinte du br01eur pour voir la flamme. Si
la flamme est de couleurjaune, augmentez I'ouverture du clapet
d'air (voir "2" a la figure 13). Si la flamme est bleue, reduisez
I'ouverture du clapet d'air.
Pour faire le reglage, desserrez la vis de blocage ("3" a la figure
13), repositionnez le clapet d'air et serrez la vis de blocage.
Replacez le fond du fourneau.
10.6.3 Br_[eur de [a r6tisserie a dapet d'air
La Iongueur approximative de la flamme du br01eur du fourneau
est de 1" (25 mm) (centre de flamme bleu distinct). Pour
determiner si la flamme du br01eur de la rotisserie est adequate,
reglez le fourneau a "BROIL". Si la flamme est de couleur jaune,
augmentez I'ouverture du clapet d'air (voir "2" a la figure 13).
Si la flamme est bleue, reduisez I'ouverture du clapet d'air. Pour
faire le reglage, desserrez la vis de blocage ("3" a la figure 13),
repositionnez le clapet d'air et serrez la vis de blocage.
Tuyau du
br01eur du
fourneau
(_Vis de blocage ,._
(_ Clapet a air
®
Capot d'orifice
Figure 13
Lorsque tous les raccords sont termines
Verifiez que toutes les commandes sont en position d'arr_t
(OFF).
Assurez-vous que la circulation d'air de combustion et de
ventilation a la cuisiniere n'est pas obstruee.
Emplacement des num_ros de modele et
de serie
La plaque signaletique est situee sur le chassis avant du
four, derriere la porte du four (certains modeles) ou sur le
cote du tiroir (certains modeles).
Lorsque vous commandez des pieces ou pour toute
demande de renseignements au sujet de votre cuisiniere,
assurez-vous de toujours inclure les numeros de modele
et de serie et un numero de lot ou une lettre de la plaque
signaletique de votre cuisiniere.
La plaque signaletique vous donne egalement la capacite
des br01eurs, le type de carburant et la pression a laquelle la
cuisiniere a ete reglee au moment de I'expedition.
Avant d'appeler ie service d'entretien
Revisez la liste de verifications preventives et les instructions
d'operation dans votre Guide de I'utilisateur. Vous sauverez
probablement du temps et de I'argent. La liste contient les
evenements ordinaires qui ne resultent pas de defectuosites
dans le materiel ou la fabrication de cet appareil.
Referez-vous a votre Guide de I'utilisateur pour les numeros
de telephone pour nous rejoindre.
35
Page 36

m
| instructions dlnstallation du
support anti-bascule
Pour r_duire le risque de
basculement de la cuisini_re, prot6gez-la en installant
les vis et le support anti-bascule fournis avec la
cuisini_re. IIs sont situ6s dans un sac de plastique dans
le four. Si vous n'installez pas ce support anti-bascule,
la cuisini_re risque de basculer si un poids excessif est
plac6 sur une porte ouverte ou si un enfant y grimpe.
Les renversements de liquides chauds ou la cuisini_re
peuvent provoquer de s6rieuses blessures.
Suivez les instructions ci-dessous pour installer le support
anti-bascule.
Si vous d_placez la cuisini_re pour I'installer bun autre
endroit, vous devez _galement d_placer le support
anti-bascule pour les installer avec la cuisini_re.
Outils Requis :
Tourne _crou de 5/16"(0,79 cm) ou tournevis b t_te
carrie
CI_ _ molette
Perceuse _lectrique
Foret de 3/16"(0,5 cm) de diam_tre
Foret de maconnerie de 3/16"(0,5 cm) diam_tre (si
I'installation se fait dans du b_ton)
Le support anti-bascule se fixe au plancher, b I'arri_re
au centre de la cuisini_re, pour retenir la patte artiste
centrale. En le fixant au plancher, assurez-vous que les
vis ne p_n_trent pas dans la plomberie ou le c_blage
_lectrique. Les vis fournies fonctionneront aussi bien
dans du bois que dans du b_ton.
1. Dessinez une ligne au sol (_ I'avant de I'ouverture) en
ligne avec le devant des armoires (et non en ligne avec
le retour d'armoire).
2. D_pliez le gabarit de papier et placez-le _ plat
sur le plancher, I'avant et les extr_mit_s des c6t_s
exactement sur la ligne pr_alablement trac_e (utilisez
le diagramme ci-dessous pour Iocaliser le support
anti-bascule si le gabarit de papier n'est pas disponible
(Figure15)).
3. Tracez sur le plancher I'emplacement des 4 trous
de montage indiqu_s sur le gabarit. Pour faciliter
I'installation, des trous pilotes d'un 1/2"(1.3 cm) de
profondeur et 3/16" (0.5 cm) de diam_tre peuvent
_tre perc_s dans le plancher.
4. Enlevez le gabarit et placez le support
anti-bascule sur le plancher. Alignez les trous dans
le support anti-bascule avec les trous trac@ssur le
plancher et fixez avec les 4 vis fournies. Le support
anti-bascule doit @trefix@sur un plancher solide
(Figure 16). Si vous les fixez b un plancher en b@ton,
percez d'abord des trous pilotes de 3/16" (0.5 cm) de
diam@tre b I'aide d'un foret _ maconnerie.
5. Assurez-vous que les vis de nivellement ainsi que
les dispositifs de nivellement sont b la position la plus
haute.
6. Replacez la cuisini@reen la faisant glisser, en
vous assurant que la patte centrale est bien agripp@e
au support anti-bascule (Figure 16). Abaissez
I'appareil en ajustant les vis et les dispositifs de
nivellement jusqu'b ce que le dessous de la surface
vitrifi@e touche _ peine le dessus du comptoir. R@f@rez-
vous b la section Mise b niveau de la cuisini@re.
7. Apr@sI'installation, v@rifiezque la cuisini@re est
bien agripp@eau support anti-bascule en agrippant
le dessus de I'extr@mit@arri@rede la cuisini@reet
essayant soigneusement de I'incliner vers I'avant pour
vous assurer que la cuisini@reest correctement ancr@e.
Figure 14
GLISSEZ
L'APPAREIL
36
Support
anti-bascule
Cuisini_re <
montage --_
Figure 15
Mur
I
Page 37

OVEN CIRCUIT !/ CTRCUITO DE HORNO // CIRCUIT DU FOUR
[]
W-5
HALOGEN/P,LOGP40/I/,LOGENE _ J = BK-22 " P_6=
W-14 S>,,,¢ BR.14 / P2 : i THM _ J2
_/_<:--_J L;ij- >> : = R-6 " _" P2"
.... 1 i " ;; _ BL-22 "
BR._y p_i ".- _ " I " _"
2
RELAY BOARD/ [_ TIMER/
TABLERO DE RELAYS / L_ MINUTERO/
TABLEAU DES RELAIS R_6 MINUTERI E
,._,Wl i ii i i i i i llll i i i i i i i ii i i i i i i i iIi ii i i i i 111111111 i.q. ,dl I| || II | |L
w-14 3 ZZZZZZZZZZZZZ77 777777
CONVECTIONFAN/VENTZLADOR 5 0
OE CONVEBOION/
CONVECTIONVENTZLATEUR I 6
II
LATCH MOTOR/MOTOR DE
CERROJD/NOTEUR VERROU
COOLING FAN/MENTELADOR DE
VENTILATEUB BEFROIDISSEMENT
WARMER DRAWER ELEMENT/ELEMENTB DE
BAJON DE CALENTABOR/ELEMENT TIROIR
ENFR_AMEENTO/ _[ _ TI_-IO2T _
RECHAUD
W-5
\y'
4 i _ R-14 i Y-22 _, P9 _,
J5 = UPR DLB
= NOT USED
= UPR BA ELM
= UPR BR EL_
= NOT USED
" WGL STMLS
J3
=y
GY- 14_
2
=
3
4
6
7
lo
-9
R-5
o
R_22 : P13_
: - [] B_2o
:W-B c_ w-_
CONVECTION ELENENT/ELEMENTO DE
CONMECCION/ELENENT CONVECTION
BAKE VALVE/
VALVULA DE HORNEAR/ BAKE IGNITER/
VALVE DE GR_DIAGE NCENDIBO)E ARAB/"
W-5
A.,I.U_UR G_;,_,LAGE=
= J4
,,11111111111111111111111111111
t
I
|
lllllllllllllllll_
R-14
= _
" i
= [] 3K-20
COLOR CODE/CODIGOS DE COLOR/CODE
DE COULEUR
GY.-GREY/GRIS/GRIS
G,-GREEN/VERDE/VER]
W,-WNITE/BLANCO/BLANC
R.-RED/ROJO/ROUGE
O,_ORANGE/NARANJA/ORANGE
GRD
V-LED
WUR
NOT USED
ZERO CROSS
SMRT TRC
COM
GRD
PWR
UPR MOL
NOT USED
NOT USED
CON ELM 350_
UPR HG CL FN
UPR LW CL FN
NOT USED
NOT USED
WAR DR ELN
PWM REL
; plo
- []
BK20 "_o BK 20
BK-20 Y_14 _y-1 Y-1 Y 14
., , i :
= P18
": BR-14 SONDA DE AL]b%_ENTOS/ I
Y,-YELLOW/AMARILLO/JAUNE
BR.-BROWN/CAFE/BRUN
BL.-BLUE/AZUL/BLEU
BK. BLACK/NEGRO/NOIR
V,-VtOLET/VIOLETA/VIOLET
T,-TAN/CAFE CLARO/BEIGE
CODE GAUGE TEMP,_ CSA U[
CODIGO MED]DA
CODE CALIBRE
1 18 125 0L1251 3173
2 16 125 0L1251 3173
3 14 125 CL1251 3173
4 12 125 CL1251 3173
5 18 150 EXLI50 3321
6 16 _50 EXLI50 3321
7 14 150 EXL 150 3321
8 12 150 EXL 150 3321
9 10 150 EXL 150 3321
10 18 200 SEW 1 3122
11 16 200 SEW-1 3122
12 12 250 3252
13 16 250 3252
14 20 150 EXI-1SO 3321
1B 8 150 EXI-150 3321
16 8 BO
17 10 60
18 10 200 SEW-1 3122
19 20 125 011251 3173
20 20 200 SEW-1 3122
21 22 125 3266
22 22 150 10109
23 18 200 3573
34 16 200 3512
35 18 200 3512
37 14 200 3512
_A-CH _,IOTOR/MOTORDE OERROJO
MOTEURVERROU
._ BK-2O
o o
NO c
RACK SE_,SE/DETEDTOR DE
SARREDERA/DECTECTEUR GL_SS_EBE
DOOREV_ZTBH/DI ERRUPTORDE
PUERTA/_NTERRUPTEURDB POR_'_
ko LI_IT THERMOS_AT/TER_OBTATOBE LI_ITO LO/
rH W_OSTA[ 8ASSE tl_/[_
F1 C3_ _o ...... C1 F2
E t RECEPTACLE BE LA SONDE I i
RECEPTACULO DEL TERMONETRO '
°ETE_RA:t_t i i
" UPPER TEWPERATURE PROBE/SONDA
" DE TEIdPERATURASUPERIOR/
; pl
" SONDE THERN[QUE SUPER_EURE
_ V-14
\\ /:_
[ v14
CONNECTOR/
CONEC_OR/
OPTION/ •
OPCION/ |
FACULTATtF J •
CONNEOTEUR
BK-2O
W_14
4< w_Is
CAUTION: DISCONNECT POWER BEFORE SERVICING UNIT,
ATENCION:CORTAR LA CORRZENTE ANTES DE REALIZAR ELMANTENIMIENTO DEL ELECTRODOMESTZCO,
ATTENTION:COUPEZ L'ALIMENTATION AVANT D'EFFECTUER LA REPARATION,
o_
318550150 REV:A
PAGE:l/2
Page 38

COOKTOP CIRCUIT // CIRCUITO DE PLANCHA DE COCINAR // CIRCUIT TABLE CUISSON
i INTERRUPTOR ENCENDIDO
i i
i i
i FRENTE IZQUIERDO
i i
i i
i i
i i
i i
i i
i i
i LEFT REAR IGNITER SWITCH.
;; i INTERRUPTOR ENCENDIDO
LEFT FRONT IGNITER SWITCH.
INTERRUPTEUR ALLUMEUR
AVANT GAUCHE
R-t4
TRASERO IZQUIERDO
INTERRUPTEUR ALLUMEUR
ARRIERE GAUCHE
R-14 f \
RIGHT REAR IGNITER SWITCH.
INTERRUPTOR ENCENDIDO
TRASERO DERECHO
INTERRUPTEUR ALLUMEUR
R-I4 R-1
ARRIERE DROIT
RIGHT FRONT IGNITER SWITCH.
INTERRUPTOR ENCENDIDO
FRENTE DERECHO
INTERRUPTEUR ALLUMEUR
AVANT DROIT
R-14
OPTION/
OPCION/
FACULTATIF I
• J
J
R-14
TRANSFORMER/
TRANSFORMADOR/
i i
ii
L R_14
N w-14
TRANSFORMATEUR
D3 1 3
IN120VAC "_ _ OUT120VAC
D]
2 5
D4
D2
W-23 _"
U U TOP BURNER OI IRoIOI IELIOIIOE=cENOIO0
BLOC CONNECTION ALLUMEUR QUEMADOR DE ENCENDIDO SUPERIOR
BOUG[E D'ALLUMAGE BRULEUR
'\ ' _ TOP BURNER
QUEMADOR DE ENCENDZDO SUPERIOR
QUEMADOR DE ENCENDIDO SUPERIOR
W-14
TOP BURNER
BOUGZE D'ALLUMAGE BRULEUR
W-23 _
TOP BURNER
BOUGIE D'ALLUMAGE BRULEUR
W-14
i i
i i
i i
i i
i i
i i
i i
i i
i i
i i
i i
i i
i i
i i
i i CAUTION;DISCONNECT POWER BEFORE SERVICING UNIT.
i LABEL ALL WIRES PRIOR TO DISCONNECTION WHEN SERVICING CONTROLS.
i WIRINGS ERRORS CAN CAUSE IMPROPER AND DANGEROUS OPERATION.
i VERIFY PROPER OPERATION AFTER SERVICING.
ATENCION_CORTAR LA CORRIENTE ANTES DE REALIZAR EL MANTENZMIENTO GEL ELECTRODOMESTZCO,
ETIOUETE TODOS LOS CABLES ANTES DE DESCONECTAR CUANDO HAGA EL SERVICIO A LOS CONTROLES,
ERRORES AL VOLVER A ENSAMBLAR LOS CABLES PUEDE CAUSAR FALLAS U OPERACZONES PELIGROSAS.
i ATTENT[ON;COUPEZ L'ALZNENTATZON AVANT D'EFFECTUER LA REPARATION,
VERIF_QUE LA CORRECTA OPERACION DESPUES DEL SERVICIO+
_DENTIF_EZ TOUSLES FZLS AVANT DE LES DEBRANCHER QUAND L'APPAREZL EST BORS SERVICE,
LES ERREURS DE CONNECTION DE FZLS PEUVENT CAUSER UN MAL FONCTZONNEMENT ET UN DANGER D'USAGE DE L'APPAREIL,
VERIFIEZ LE BON FONCTIONNEMENT DE L'APPAREIL APRES LE SERVICE,
318550150 REV'A
PAGE'2/2