
Features:
UCF-4.2-TP-SS
Premier Undercounter Freezer (Built-In)
Specifications:
Capacity 4.2 cubic ft
Temperature Range -25°C to -18°C Preset -20°C
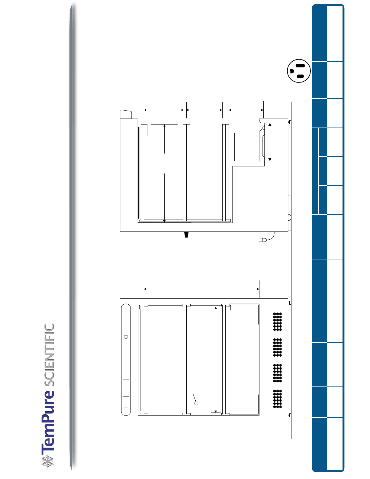
Exterior (w x d x h) 23¾” x 24½” x 33⅜”
Interior (w x d x h) 19¼” x 17¼” x 23¾”
Specifications subject to change without notice
Temperature
Control
Microprocessor Temperature Controller, Digital
Temperature Display, Audible and Visual
Temperature Alarms
Exterior Finish Stainless Steel Exterior
Legs Leveling
Door One Solid Swing Door, Magnetic
Gasket, Keyed Lock, Recessed Door
Handle. Durable ABS Material Flat Door Liner
Shelves Two Fixed
Insulation High density urethane foam cabinet and door
insulation.
Refrigerant R134a
Compressor 1/3 hp
Defrost Manual
Probe Access Port 3/8"
BTU's 320/hr
Voltage: Domestic 115
Amps 5
Shipping Weight 148 lbs.
Warranty
(Domestic)
Optimal Operating Conditions
Optimal operation of this unit requires it to be located in a climate controlled facility that maintains temperatures at or below 75°F with 55% relative humidity
1-866-923-PURE • Fax 856-361-2772 • Contact: sales@tempurescientic.com • Website: www.tempurescientic.com
Two (2) year parts and labor warranty
Five (5) year compressor warranty

Premier Undercounter Freezer
UCF-4.2-TP-SS
23¾”
46½”
22¼”
115VAC/60Hz/1PH
NEMA-5-15R
Unit Weight
W” D” H”
23¾ 333/824½
Front View Side View Top View
24½”
23¾”
3/8”
33
2 Fixed
0 5 108 lbs.1/3
1
(Reversible)
Manual
4.2
CUTSHEET
UCF-4.2-TP-SS
Model Defrost Door Int Door Shelves H.P. AmpsCu. Ft

115VAC/60Hz/1PH
NEMA-5-15R
Unit Weight
Premier Undercounter Freezer
UCF-4.2-TP-SS
6 ¼”
17 ¼”
6 ½”
9”
8 ½”
Interior Dim.
W” D” H”
2 Fixed
0 17¼19¼ 23¾ 5 108 lbs.1/3
23¾”
1
(Reversible)
Manual
Front View Side View
Probe
Hole
14”
19¼”
4.2
4”
CUTSHEET
UCF-4.2-TP-SS
Model Defrost Door Int Door Shelves H.P. AmpsCu. Ft