Page 1

SERVICE PARTS LIST FOR 
MITSUBISHI ELECTRIC 
PACKAGED AIR-CONDITIONERS
Series : 
PEH-GA,GAK.TH 
PEH-GA,GAK.TH-SP 
PEH-GA,GAK.TH-MF 
PEH-GA,GAK.TH-SPMF
INDEX
PEH-5GAK.TH
PEH-6GAK.TH
PEH-8GA.TH
PEH-10GA.TH
PEH-16GA.TH
PEH-5GAK.TH-MF
PEH-6GAK.TH-MF
PEH-8GA.TH-MF
PEH-10GA.TH-MF
PEH-5GAK.TH-SPMF
Aug. 2007
BWE07030
PEH-20GA.TH
PEH-5GAK.TH-SP
PEH-6GAK.TH-SP
PEH-8GA.TH-SP
PEH-10GA.TH-SP
PEH-6GAK.TH-SPMF
PEH-8GA.TH-SPMF
PEH-10GA.TH-SPMF
Page 2

PEH-5,6GAK.TH
117
ON/OFF 
CENTRALLY CONTROLLED
ERROR CODE
CLOCK
ON OFF
°C
CHECK
CHECK MODE
FILTER
TEST RUN 
FUNCTION
°C
1Hr.
NOT AVAILABLE
STAND BY 
DEFROST
TEMP.
113.118
102.119
109
108 
110
116
116
106
103.104
115
112
114
101
105
111
116
107
PEH-5,6GAK.TH-SP 
PEH-5,6GAK.TH-MF 
PEH-5,6GAK.TH-SPMF
EXTERNAL PARTS (1)
1
Page 3

PEH-5,6GAK.TH
EXTERNAL PARTS (1) 
PEH-5,6GAK.TH-SP 
PEH-5,6GAK.TH-MF 
PEH-5,6GAK.TH-SPMF
G : 
RoHS Apply Only
W : 
No. Part No.
 101 E17 341 933 G STRAINER    #50  1 1 1 1 1 1 BA48S525H02
BG38P815H01
 102 
 103 E17 341 620 G  HEAT EXCHANGER  <5>  1  1  1  KP00B546B01
 104 E17 342 620 G  HEAT EXCHANGER  <6>   1  1  1 KP00B546B02
KP00C590G03
 105 
 106 E17 328 085 G  PANEL (SR) ASSY    1 1 1 1 1 1 KP00C593G01
 107 E17 328 086 G  PANEL (SL) ASSY    1 1 1 1 1 1 KP00C594G01
 108 E17 328 709 G  FLANGE ASSY  OUTLET  1 1 1 1 1 1 KP00C597G02
 109 E17 328 700 G  DRAIN PAN ASSY    1 1 1 1 1 1 KP00C624G01
 110 E17 328 809 G  LEG    1 1 1 1 1 1 KP02B501G07
 111 E17 328 808 G  LEG    1 1 1 1 1 1 KP02B501G08
 112 E17 341 936 G  CAPILLARY TUBE    1 1 1 1 1 1 KP14F342G02
 113 E17 319 013 G  BUSH  KR-51  1 1 1 1 1 1 KP32F144H01
 114 E17 371 642 G  CHECK VALVE  5-9.52  1 1 1 1 1 1 KP50D937H01
 115 E17 370 933 G  STRAINER  3/8  1 1 1 1 1 1 KP53D940H01
 116 E17 328 097 G  SPECIAL WASHER    4 4 4 4 4 4 RG02D060G01
 117 E17 159 426 G  REMOTE CONTROLLER    1 1 1 1 1 1 BG00U396B01
 118 E17 136 308 G  THERMISTOR-S  1350XAP TH1  1 1 1 1 1 1 RG71B018H12
 119 E17 240 307 G THERMISTOR-H  1350 TH2  1 1 1 1 1 1 RG71J486H12
RoHS Apply by Running Change
Part Name
 G  TH.SPRING    1 1 1 1 1 1 BG38P815H01
 G  ATTACHMENT  F.RAIL  1 1 1 1 1 1 KP00C590G03
Spec. Dwg. No. Price
PEH-5GAK.TH 
PEH-6GAK.TH
PEH-5GAK.TH-SP 
PEH-6GAK.TH-SP 
PEH-5GAK.TH-MF 
PEH-6GAK.TH-MF
Revision History 
2
Page 4

PEH-5,6GAK.TH
EXTERNAL PARTS (1) 
PEH-5,6GAK.TH-SP 
PEH-5,6GAK.TH-MF 
PEH-5,6GAK.TH-SPMF
G : 
RoHS Apply Only
W : 
No. Part No.
 101 E17 341 933 G STRAINER    #50  1 1     BA48S525H02
BG38P815H01
 102 
 103 E17 341 620 G  HEAT EXCHANGER  <5>  1      KP00B546B01
 104 E17 342 620 G  HEAT EXCHANGER  <6>   1     KP00B546B02
KP00C590G03
 105 
 106 E17 328 085 G  PANEL (SR) ASSY    1 1     KP00C593G01
 107 E17 328 086 G  PANEL (SL) ASSY    1 1     KP00C594G01
 108 E17 328 709 G  FLANGE ASSY  OUTLET  1 1     KP00C597G02
 109 E17 328 700 G  DRAIN PAN ASSY    1 1     KP00C624G01
 110 E17 328 809 G  LEG    1 1     KP02B501G07
 111 E17 328 808 G  LEG    1 1     KP02B501G08
 112 E17 341 936 G  CAPILLARY TUBE    1 1     KP14F342G02
 113 E17 319 013 G  BUSH  KR-51  1 1     KP32F144H01
 114 E17 371 642 G  CHECK VALVE  5-9.52  1 1     KP50D937H01
 115 E17 370 933 G  STRAINER  3/8  1 1     KP53D940H01
 116 E17 328 097 G  SPECIAL WASHER    4 4     RG02D060G01
 117 E17 159 426 G  REMOTE CONTROLLER    1 1     BG00U396B01
 118 E17 136 308 G  THERMISTOR-S  1350XAP TH1  1 1     RG71B018H12
 119 E17 240 307 G THERMISTOR-H  1350 TH2  1 1     RG71J486H12
RoHS Apply by Running Change
Part Name
 G  TH.SPRING    1 1     BG38P815H01
 G  ATTACHMENT  F.RAIL  1 1     KP00C590G03
Spec. Dwg. No. Price
PEH-5GAK.TH-SPMF
PEH-6GAK.TH-SPMF
Revision History 
3
Page 5

PEH-8,10GA.TH
221
ON/OFF 
CENTRALLY CONTROLLED
ERROR CODE
CLOCK
ON OFF
°C
CHECK
CHECK MODE
FILTER
TEST RUN 
FUNCTION
°C
1Hr.
NOT AVAILABLE
STAND BY 
DEFROST
TEMP.
201.224
218.219
213.214
201.223
217
216
202.203
215.222
212
206
208
209.210
207
220
211
220
220
204 
205
PEH-8,10GA.TH-SP 
PEH-8,10GA.TH-MF 
PEH-8,10GA.TH-SPMF
EXTERNAL PARTS (2)
4
Page 6

PEH-8,10GA.TH
EXTERNAL PARTS (2) 
PEH-8,10GA.TH-SP 
PEH-8,10GA.TH-MF 
PEH-8,10GA.TH-SPMF
G : 
RoHS Apply Only
W : 
No. Part No.
 201 
BG38P815H01
 202 E17 344 620 G HEAT EXCHANGER  <10>   1  1  1 KP00B469B01
 203 E17 343 620 G HEAT EXCHANGER  <8>  1  1  1  KP00B469B02
KP00C590G01
 204 
KP00C590G02
 205 
 206 E17 328 085 G PANEL (SR) ASSY    1 1 1 1 1 1 KP00C593G01
 207 E17 328 086 G PANEL (SL) ASSY    1 1 1 1 1 1 KP00C594G01
 208 E17 330 709 G FLANGE ASSY  OUTLET  1 1 1 1 1 1 KP00C597G01
 209 E17 331 700 G DRAIN PAN ASSY     1  1  1 KP00C599G01
 210 E17 330 700 G DRAIN PAN ASSY    1  1  1  KP00C928G01
 211 E17 328 809 G LEG    1 1 1 1 1 1 KP02B501G07
 212 E17 328 808 G LEG    1 1 1 1 1 1 KP02B501G08
 213 E17 343 936 G CAPILLARY TUBE     1  1  1 KP14F290G03
 214 E17 344 936 G CAPILLARY TUBE    1  1  1  KP14F290G04
 215 E17 319 013 G BUSH  KR-51  1 1 1 1 1 1 KP32F144H01
 216 E17 370 642 G CHECK VALVE  8-12.7  1 1 1 1 1 1 KP50D937H03
 217 E17 371 933 G STRAINER  5/8  1 1 1 1 1 1 KP53D975H01
 218 E17 344 933 G STRAINER     1  1  1 KP53F131H01
 219 E17 343 933 G STRAINER    1  1  1  KP53F131H02
 220 E17 328 097 G SPECIAL WASHER    4 4 4 4 4 4 RG02D060G01
 221 E17 159 426 G REMOTE CONTROLLER    1 1 1 1 1 1 BG00U396B01
 222 E17 136 308 G THERMISTOR-S  1350XAP TH1  1 1 1 1 1 1 RG71B018H12
 223 E17 240 307 G THERMISTOR-H  1350 TH2  1 1 1 1 1 1 RG71J486H12
 224 E17 343 309 G THERMISTOR-2  1350 TH5  1 1 1 1 1 1 RG71J488H12
RoHS Apply by Running Change
Part Name
 G TH.SPRING    2 2 2 2 2 2 BG38P815H01
 G ATTACHMENT  F.RAIL  1  1  1  KP00C590G01
 G ATTACHMENT  F.RAIL   1  1  1 KP00C590G02
Spec. Dwg. No. Price
PEH-8GA.TH
PEH-10GA.TH 
PEH-8GA.TH-SP
PEH-10GA.TH-SP
PEH-8GA.TH-MF
PEH-10GA.TH-MF
Revision History 
5
Page 7

PEH-8,10GA.TH
EXTERNAL PARTS (2) 
PEH-8,10GA.TH-SP 
PEH-8,10GA.TH-MF 
PEH-8,10GA.TH-SPMF
G : 
RoHS Apply Only
W : 
No. Part No.
 201 
BG38P815H01
 202 E17 344 620 G HEAT EXCHANGER  <10>   1     KP00B469B01
 203 E17 343 620 G  HEAT EXCHANGER  <8>  1      KP00B469B02
KP00C590G01
 204 
KP00C590G02
 205 
 206 E17 328 085 G  PANEL (SR) ASSY    1 1     KP00C593G01
 207 E17 328 086 G  PANEL (SL) ASSY    1 1     KP00C594G01
 208 E17 330 709 G  FLANGE ASSY  OUTLET  1 1     KP00C597G01
 209 E17 331 700 G  DRAIN PAN ASSY     1     KP00C599G01
 210 E17 330 700 G  DRAIN PAN ASSY    1      KP00C928G01
 211 E17 328 809 G  LEG    1 1     KP02B501G07
 212 E17 328 808 G  LEG    1 1     KP02B501G08
 213 E17 343 936 G  CAPILLARY TUBE     1     KP14F290G03
 214 E17 344 936 G  CAPILLARY TUBE    1      KP14F290G04
 215 E17 319 013 G  BUSH  KR-51  1 1     KP32F144H01
 216 E17 370 642 G  CHECK VALVE  8-12.7  1 1     KP50D937H03
 217 E17 371 933 G  STRAINER  5/8  1 1     KP53D975H01
 218 E17 344 933 G  STRAINER     1     KP53F131H01
 219 E17 343 933 G  STRAINER    1      KP53F131H02
 220 E17 328 097 G  SPECIAL WASHER    4 4     RG02D060G01
 221 E17 159 426 G  REMOTE CONTROLLER    1 1     BG00U396B01
 222 E17 136 308 G  THERMISTOR-S  1350XAP TH1  1 1     RG71B018H12
 223 E17 240 307 G  THERMISTOR-H  1350 TH2  1 1     RG71J486H12
 224 E17 343 309 G THERMISTOR-2  1350 TH5  1 1     RG71J488H12
RoHS Apply by Running Change
Part Name
 G TH.SPRING    2 2     BG38P815H01
 G  ATTACHMENT  F.RAIL  1      KP00C590G01
 G  ATTACHMENT  F.RAIL   1     KP00C590G02
Spec. Dwg. No. Price
PEH-8GA.TH-SPMF 
PEH-10GA.TH-SPMF
Revision History 
6
Page 8

PEH-16GA.TH
325
ON/OFF 
CENTRALLY CONTROLLED
ERROR CODE
CLOCK
ON OFF
°C
CHECK
CHECK MODE
FILTER
TEST RUN 
FUNCTION
°C
1Hr.
NOT AVAILABLE
STAND BY 
DEFROST
TEMP.
309.319
312.319 
321
316
305
307
302
308
324
303.304
301.311
321
320
320
322.323
301.313
301.310
317.318
317.318
322.323
301.314
315
324
324
306
PEH-20GA.TH
EXTERNAL PARTS (3)
7
Page 9

PEH-16GA.TH
EXTERNAL PARTS (3)
PEH-20GA.TH
G : 
RoHS Apply Only
W : 
No. Part No.
 301 
BG38P815H01
 302 E17 333 700 G  DRAIN PAN ASSY    1 1     KP00B275G01
 303 E17 345 620 G  HEAT EXCHANGER  <16>  1      KP00B527B01
 304 E17 346 620 G  HEAT EXCHANGER  <20>   1     KP00B527B02
 305 E17 333 085 G  PANEL (SR) ASSY    1 1     KP00C631G01
KP00C633G01
 306 
 307 E17 333 709 G  FLANGE ASSY  OUTLET  1 1     KP00C636G01
 308 E17 333 086 G  PANEL (SL) ASSY    1 1     KP00C639G01
 309 E17 333 308 G  THERMISTOR  ROOM-NO1 TH1-1  1 1     KP00F184G01
 310 E17 333 307 G  THERMISTOR  LIQ-NO1 TH2-1  1 1     KP00F184G02
 311 E17 333 309 G  THERMISTOR  COND/EVA1 TH5-1  1 1     KP00F184G03
 312 E17 334 308 G  THERMISTOR  ROOM-NO2 TH1-2  1 1     KP00F184G04
 313 E17 334 307 G  THERMISTOR  LIQ-NO2 TH2-2  1 1     KP00F184G05
 314 E17 334 309 G  THERMISTOR  COND/EVA2 TH5-2  1 1     KP00F184G06
 315 E17 333 809 G  LEG    1 1     KP02B502G07
 316 E17 333 808 G  LEG    1 1     KP02B502G08
 317 E17 343 936 G  CAPILLARY TUBE     2     KP14F290G03
 318 E17 344 936 G  CAPILLARY TUBE    2      KP14F290G04
 319 E17 319 013 G  BUSH  KR-51  2 2     KP32F144H01
 320 E17 370 642 G  CHECK VALVE  8-12.7  2 2     KP50D937H03
 321 E17 371 933 G  STRAINER  5/8  2 2     KP53D975H01
 322 E17 334 933 G  STRAINER     2     KP53F131H01
 323 E17 333 933 G  STRAINER    2      KP53F131H02
 324 E17 328 097 G  SPECIAL WASHER    4 4     R004P626H01
 325 E17 159 426 G REMOTE CONTROLLER    1 1     BG00U396B01
RoHS Apply by Running Change
Part Name
 G TH.SPRING    4 4     BG38P815H01
 G  ATTACHMENT  F.RAIL  1 1     KP00C633G01
Spec. Dwg. No. Price
PEH-16GA.TH
PEH-20GA.TH
Revision History 
8
Page 10

PEH-5,6GAK.TH
402
403
405
404
411
410
410
411
412
407.408
409
401.406
412
PEH-5,6GAK.TH-SP 
PEH-5,6GAK.TH-MF 
PEH-5,6GAK.TH-SPMF
BLOWER PARTS (1)
9
Page 11

PEH-5,6GAK.TH
BLOWER PARTS (1) 
PEH-5,6GAK.TH-SP 
PEH-5,6GAK.TH-MF 
PEH-5,6GAK.TH-SPMF
G : 
RoHS Apply Only
W : 
No. Part No.
 401 E17 077 500 G SIROCCO FAN ASSY        1 1 BA00B542G18
 402 E17 328 297 G PANEL (TOP) ASSY    1 1 1 1 1 1 KP00B267G01
 403 E17 328 237 G  FAN CASING ASSY    1 1 1 1 1 1 KP00C589G01
 404 E17 328 334 G  MOTOR LEG INS ASSY    1 1 1 1 1 1 KP00D672G02
 405 E17 328 128 G  BASE (MOTOR) ASSY    1 1 1 1 1 1 KP00D742G01
 406 E17 328 500 G  SIROCCO FAN    1 1 1 1   KP25B268G02
 407 E17 328 300 G  MOTOR ASSY  PE(H)5.6 KFS4S-461A5P-T 1 1   1 1 KP61D741G01
 408 E17 426 300 G  MOTOR ASSY  5.6-SP KFS4S-541A5P-T    1 1   KP61D741G02
R302D730G01
 409 
 410 
R302F328G89
 411 
R302F328G90
 412 E17 018 505 G RUBBER MOUNT    2 2 2 2 2 2 R331F676H01
RoHS Apply by Running Change
Part Name
 G  BELL MOUTH     1 1 1 1 1 1 R302D730G01
 G  ATTACHMENT    2 2 2 2 2 2 R302F328G89
 G  ATTACHMENT  With weld nut  2 2 2 2 2 2 R302F328G90
Spec. Dwg. No. Price
PEH-5GAK.TH 
PEH-6GAK.TH
PEH-5GAK.TH-SP 
PEH-6GAK.TH-SP 
PEH-5GAK.TH-MF 
PEH-6GAK.TH-MF
Revision History 
10
Page 12

PEH-5,6GAK.TH
BLOWER PARTS (1) 
PEH-5,6GAK.TH-SP 
PEH-5,6GAK.TH-MF 
PEH-5,6GAK.TH-SPMF
G : 
RoHS Apply Only
W : 
No. Part No.
 401 E17 077 500 G SIROCCO FAN ASSY    1 1     BA00B542G18
 402 E17 328 297 G PANEL (TOP) ASSY    1 1     KP00B267G01
 403 E17 328 237 G FAN CASING ASSY    1 1     KP00C589G01
 404 E17 328 334 G MOTOR LEG INS ASSY    1 1     KP00D672G02
 405 E17 328 128 G BASE (MOTOR) ASSY    1 1     KP00D742G01
 406 E17 328 500 G  SIROCCO FAN          KP25B268G02
 407 E17 328 300 G  MOTOR ASSY  PE(H)5.6 KFS4S-461A5P-T        KP61D741G01
 408 E17 426 300 G MOTOR ASSY  5.6-SP KFS4S-541A5P-T  1 1     KP61D741G02
R302D730G01
 409 
 410 
R302F328G89
 411 
R302F328G90
 412 E17 018 505 G RUBBER MOUNT    2 2     R331F676H01
RoHS Apply by Running Change
Part Name
 G BELL MOUTH     1 1     R302D730G01
 G ATTACHMENT    2 2     R302F328G89
 G ATTACHMENT  With weld nut  2 2     R302F328G90
Spec. Dwg. No. Price
PEH-5GAK.TH-SPMF
PEH-6GAK.TH-SPMF
Revision History 
11
Page 13

PEH-8,10GA.TH
504.505
503
508
510.511
507
514
513
515
515
512
501.509
506
512
502.509
PEH-8,10GA.TH-SP 
PEH-8,10GA.TH-MF 
PEH-8,10GA.TH-SPMF
BLOWER PARTS (2)
12
Page 14

PEH-8,10GA.TH
BLOWER PARTS (2) 
PEH-8,10GA.TH-SP 
PEH-8,10GA.TH-MF 
PEH-8,10GA.TH-SPMF
G : 
RoHS Apply Only
W : 
No. Part No.
 501 E17 078 500 G SIROCCO FAN ASSY        1 1 BA00B542G11
 502 E17 077 500 G  SIROCCO FAN ASSY        1 1 BA00B542G18
 503 E17 330 128 G BASE (MOTOR) ASSY    1 1 1 1 1 1 KP00C582G01
 504 E17 330 297 G PANEL (TOP) ASSY    1  1  1  KP00C587G01
 505 E17 331 297 G PANEL (TOP) ASSY     1  1  1 KP00C587G02
 506 E17 328 237 G FAN CASING ASSY    1 1 1 1 1 1 KP00C589G01
 507 E17 331237 G FAN CASING ASSY    1 1 1 1 1 1 KP00C589G02
 508 E17 330 334 G MOTOR LEG INS ASSY    1 1 1 1 1 1 KP00D672G01
 509 E17 328 500 G SIROCCO FAN    2 2 2 2   KP25B268G02
 510 E17 330 300 G MOTOR ASSY  PE(H)8.10 KFS4S-753A8P-T 1 1   1 1 KP61D734G01
 511 E17 332 300 G MOTOR ASSY  PE-12 KFS4S-773A8P-T    1 1   KP61D734G02
R302D730G01
 512 
 513 
R302F328G89
 514 
R302F328G90
 515 E17 018 505 G RUBBER MOUNT    2 2 2 2 2 2 R331F676H01
RoHS Apply by Running Change
Part Name
 G BELL MOUTH     2 2 2 2 2 2 R302D730G01
 G ATTACHMENT    2 2 2 2 2 2 R302F328G89
 G ATTACHMENT  With weld nut  2 2 2 2 2 2 R302F328G90
Spec. Dwg. No. Price
PEH-8GA.TH
PEH-10GA.TH
PEH-8GA.TH-SP
PEH-10GA.TH-SP
PEH-8GA.TH-MF
PEH-10GA.TH-MF
Revision History 
13
Page 15

PEH-8,10GA.TH
BLOWER PARTS (2) 
PEH-8,10GA.TH-SP 
PEH-8,10GA.TH-MF 
PEH-8,10GA.TH-SPMF
G : 
RoHS Apply Only
W : 
No. Part No.
 501 E17 078 500 G SIROCCO FAN ASSY    1 1     BA00B542G11
 502 E17 077 500 G  SIROCCO FAN ASSY    1 1     BA00B542G18
 503 E17 330 128 G BASE (MOTOR) ASSY    1 1     KP00C582G01
 504 E17 330 297 G PANEL (TOP) ASSY    1      KP00C587G01
 505 E17 331 297 G PANEL (TOP) ASSY     1     KP00C587G02
 506 E17 328 237 G FAN CASING ASSY    1 1     KP00C589G01
 507 E17 331 237 G FAN CASING ASSY    1 1     KP00C589G02
 508 E17 330 334 G MOTOR LEG INS ASSY    1 1     KP00D672G01
 509 E17 328 500 G SIROCCO FAN          KP25B268G02
 510 E17 330 300 G MOTOR ASSY  PE(H)8.10 KFS4S-753A8P-T       KP61D734G01
 511 E17 332 300 G MOTOR ASSY  PE-12 KFS4S-773A8P-T  1 1     KP61D734G02
R302D730G01
 512 
 513 
R302F328G89
 514 
R302F328G90
 515 E17 018 505 G RUBBER MOUNT    2 2     R331F676H01
RoHS Apply by Running Change
Part Name
 G BELL MOUTH     2 2     R302D730G01
 G ATTACHMENT    2 2     R302F328G89
 G ATTACHMENT  With weld nut  2 2     R302F328G90
Spec. Dwg. No. Price
PEH-8GA.TH-SPMF
PEH-10GA.TH-SPMF
Revision History 
14
Page 16

PEH-16GA.TH
605
606
607.608
609
610
611
611
602
601
603
604
PEH-20GA.TH
BLOWER PARTS (3)
15
Page 17

BLOWER PARTS (3)PEH-16GA.TH 
PEH-20GA.TH
G : 
RoHS Apply Only
W : 
No. Part No.
 601 E17 333 297 G PANEL (TOP) ASSY    1 1     KP00B269G01
 602 E17 333 232 G PANEL F ASSY    1 1     KP00B272G01
 603 E17 333 237 G FAN CASING ASSY R  With SIROCCO FAN  1 1     KP00C915G01
 604 E17 333 238 G FAN CASING ASSY L  With SIROCCO FAN  1 1     KP00C915G02
 605 E17 333 128 G BASE (MOTOR) ASSY    1 1     KP00D744G01
 606 E17 333 334 G MOTOR LEG INS ASSY    1 1     KP00F181G01
 607 E17 333 300 G MOTOR ASSY  PE(H)-16 YC1.3EA  1      KP61D751G01
 608 E17 334 300 G MOTOR ASSY  PE(H)-20 YB1.8EC   1     KP61D751G02
KP00F569G01
 609 
KP02F567G03
 610 
 611 E17 333 505 G RUBBER MOUNT    2 2     R331K339H02
RoHS Apply by Running Change
Part Name
 G ATTACHMENT  With weld nut  2 2     KP00F569G01
 G ATTACHMENT    2 2     KP02F567G03
Spec. Dwg. No. Price
PEH-16GA.TH
PEH-20GA.TH
Revision History 
16
Page 18

PEH-5,6GAK.TH
S1 S2 S3
709  703
705
704
701 
view A 
708 706 707 710 702
A 
I/D
CONTROLLER BOARD 
I/D
POWER BOARD 
X1Lo X2Hi 
CAPACITOR 
52F 
51F 
FB 
L1  L3 N L2 
2 1 
TB5  TB4
TB2 
PEH-5,6GAK.TH-SP 
PEH-5,6GAK.TH-MF 
PEH-5,6GAK.TH-SPMF
CONTROL BOX PARTS (1)
G : 
RoHS Apply Only
W : 
No. Part No.
RoHS Apply by Running Change
Spec. Dwg. No. Price
Part Name
PEH-5GAK.TH 
PEH-6GAK.TH
PEH-5GAK.TH-SP
PEH-6GAK.TH-SP
PEH-5GAK.TH-MF
PEH-6GAK.TH-MF
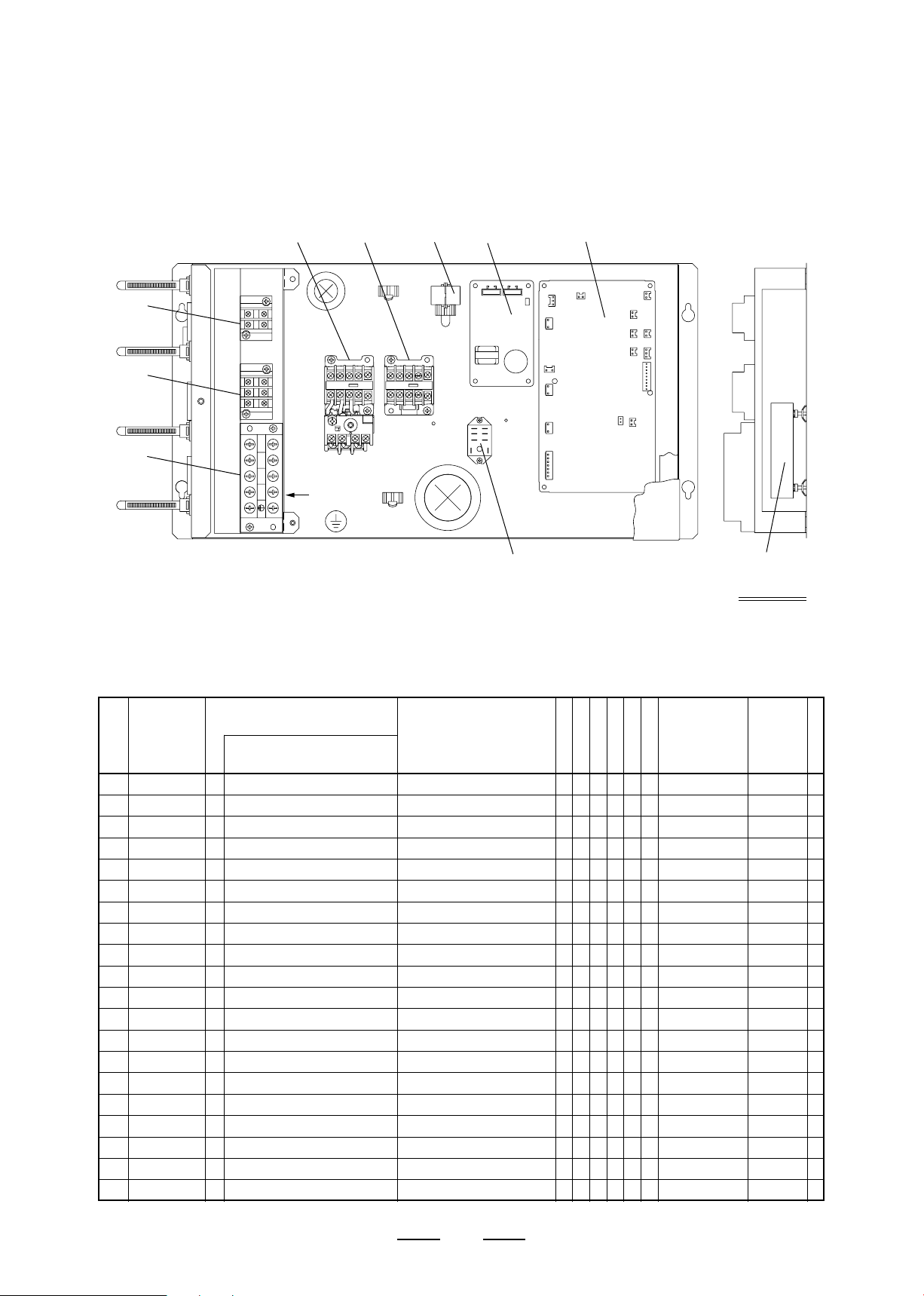
 701 E17 328 375 G TERMINAL BLOCK  <TB2>  1 1 1 1 1 1 BC73L773G05
 702 E17 341 447 G PCA  I/D CONTROLLER BOARD  1 1 1 1 1 1 BH00C668F10
 703 E17 328 384 G PCA  SNB BOARD 1  1 1 1 1 1 1 KE95B118H01
 704 E17 370 374 G TERMINAL BLOCK  3020 3P <TB4>  1 1 1 1 1 1 KP00F094G02
 705 E17 365 374 G TERMINAL BLOCK  3020 2P <TB5>  1 1 1 1 1 1 KP00F094G04
 706 E17 328 351 G CAPACITOR  12.5UH <C>  1 1 1 1 1 1 KP62F274H01
 707 E17 328 394 G CLAMP FERRITE  <FB>  1 1 1 1 1 1 KP65F165H01
 708 E17 328 340 G MAGNETIC CONTACTOR  PAK-6JTH <52F,51F>  1 1 1 1 1 1 KP67C898H03
 709 E17 364 341 G RELAY  LY2F <X1Lo>,<X2Hi>  2 2 2 2 2 2 KP67F153H01
 710 E17 262 440 G PCA  I/D POWER BOARD  1 1 1 1 1 1 RG00B435B31
Revision History 
17
Page 19

PEH-5,6GAK.TH
S1 S2 S3
709  703
705
704
701 
view A 
708 706 707 710 702
A 
I/D
CONTROLLER BOARD 
I/D
POWER BOARD 
X1Lo X2Hi 
CAPACITOR 
52F 
51F 
FB 
L1  L3 N L2 
2 1 
TB5  TB4
TB2 
PEH-5,6GAK.TH-SP 
PEH-5,6GAK.TH-MF 
PEH-5,6GAK.TH-SPMF
CONTROL BOX PARTS (1)
G : 
RoHS Apply Only
W : 
No. Part No.
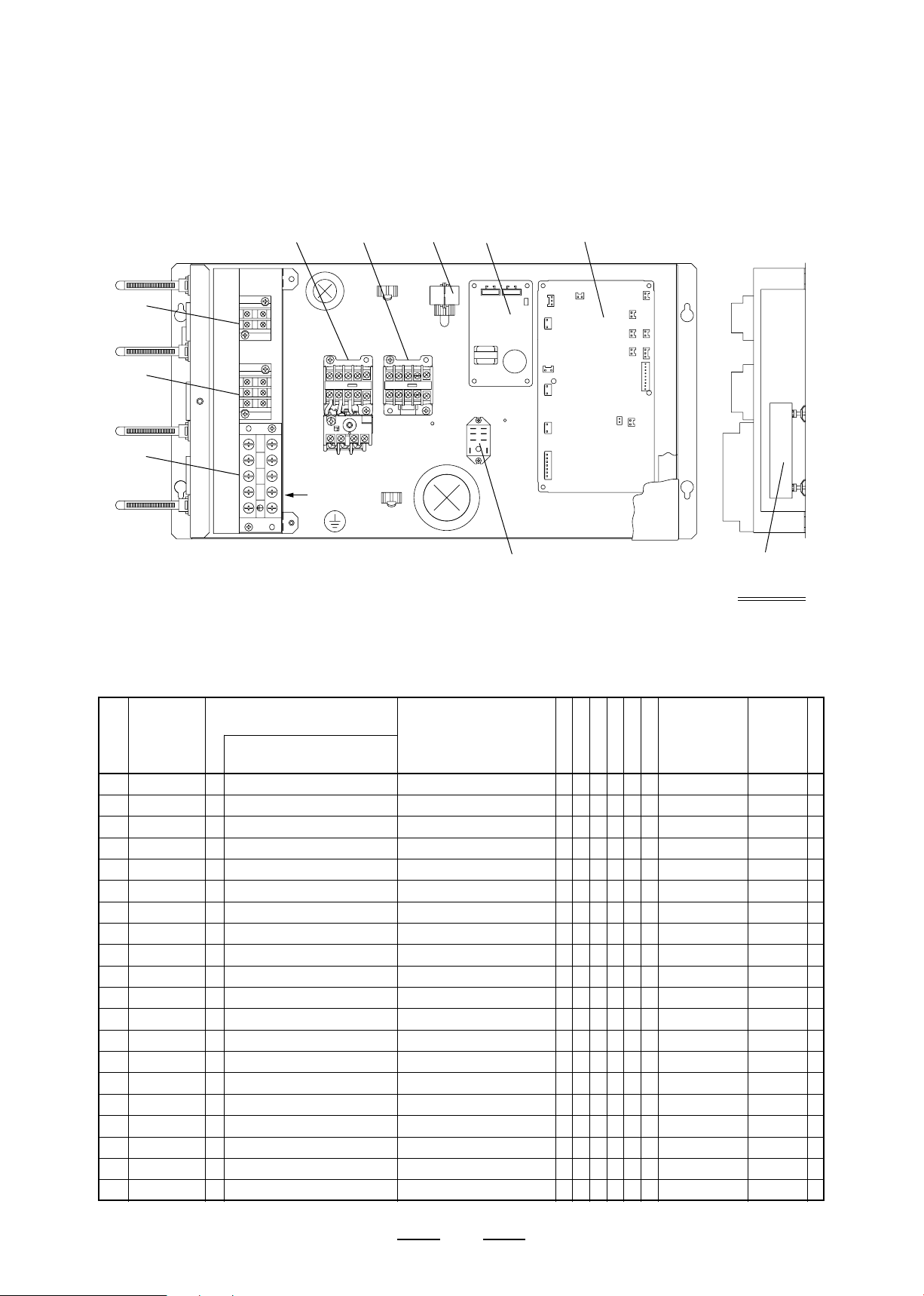
 701 E17 328 375 G TERMINAL BLOCK  <TB2>  1 1     BC73L773G05
 702 E17 341 447 G  PCA  I/D CONTROLLER BOARD  1 1     BH00C668F10
 703 E17 328 384 G PCA  SNB BOARD 1  1 1     KE95B118H01
 704 E17 370 374 G TERMINAL BLOCK  3020 3P <TB4>  1 1     KP00F094G02
 705 E17 365 374 G TERMINAL BLOCK  3020 2P <TB5>  1 1     KP00F094G04
 706 E17 328 351 G CAPACITOR  12.5UH <C>  1 1     KP62F274H01
 707 E17 328 394 G CLAMP FERRITE  <FB>  1 1     KP65F165H01
 708 E17 328 340 G MAGNETIC CONTACTOR  PAK-6JTH <52F,51F>  1 1     KP67C898H03
 709 E17 328 341 G RELAY  LY2F <X1Lo>,<X2Hi>  2 2     KP67F153H01
 710 E17 262 440 G PCA  I/D POWER BOARD  1 1     RG00B435B31
RoHS Apply by Running Change
Part Name
Spec. Dwg. No. Price
PEH-5GAK.TH-SPMF
PEH-6GAK.TH-SPMF
Revision History 
18
Page 20

PEH-8,10GA.TH
I/D
POWER BOARD 
I/D
CONTROLLER BOARD 
Lo 
52F 
Hi 
52F 
51F 
X1 
FB 
L2  N L3 L1 
TB2 
TB5  TB4
1 2 
A 
S1 S2 S3
807 808 806 810 802
809 803
805
804
801 
view A 
PEH-8,10GA.TH-SP 
PEH-8,10GA.TH-MF 
PEH-8,10GA.TH-SPMF
CONTROL BOX PARTS (2)
G : 
RoHS Apply Only
W : 
No. Part No.
RoHS Apply by Running Change
Spec. Dwg. No. Price
Part Name
PEH-8GA.TH
PEH-10GA.TH
PEH-8GA.TH-SP
PEH-10GA.TH-SP
PEH-8GA.TH-MF
PEH-10GA.TH-MF
 801 E17 328 375 G TERMINAL BLOCK  <TB2>  1 1 1 1 1 1 BC73L773G05
 802 E17 343 447 G PCA  I/D CONTROLLER BOARD  1 1 1 1 1 1 BH00C668F11
 803 E17 328 384 G PCA  SNB BOARD 1  1 1 1 1 1 1 KE95B118H01
 804 E17 370 374 G TERMINAL BLOCK  3020 3P <TB4>  1 1 1 1 1 1 KP00F094G02
 805 E17 365 374 G TERMINAL BLOCK  3020 2P <TB5>  1 1 1 1 1 1 KP00F094G04
 806 E17 328 394 G CLAMP FERRITE  <FB>  1 1 1 1 1 1 KP65F165H01
 807 E17 330 340 G MAGNETIC CONTACTOR  PAK-6JTH <52FLo,51F>  1 1 1 1 1 1 KP67C898H01
 808 E17 331 340 G MAGNETIC CONTACTOR  PAK-6J <52FHi>  1 1 1 1 1 1 KP67C900H01
 809 E17 364 341 G RELAY  LY2F <X1>  1 1 1 1 1 1 KP67F153H01
 810 E17 262 440 G PCA  I/D POWER BOARD  1 1 1 1 1 1 RG00B435B31
Revision History 
19
Page 21

PEH-8,10GA.TH
I/D
POWER BOARD 
I/D
CONTROLLER BOARD 
Lo 
52F 
Hi 
52F 
51F 
X1 
FB 
L2  N L3 L1 
TB2 
TB5  TB4
1 2 
A 
S1 S2 S3
807 808 806 810 802
809 803
805
804
801 
view A 
PEH-8,10GA.TH-SP 
PEH-8,10GA.TH-MF 
PEH-8,10GA.TH-SPMF
CONTROL BOX PARTS (2)
G : 
RoHS Apply Only
W : 
No. Part No.
 801 E17 328 375 G TERMINAL BLOCK  <TB2>  1 1     BC73L773G05
 802 E17 343 447 G PCA  I/D CONTROLLER BOARD  1 1     BH00C668F11
 803 E17 328 384 G PCA  SNB BOARD 1  1 1     KE95B118H01
 804 E17 370 374 G TERMINAL BLOCK  3020 3P <TB4>  1 1     KP00F094G02
 805 E17 365 374 G TERMINAL BLOCK  3020 2P <TB5>  1 1     KP00F094G04
 806 E17 328 394 G CLAMP FERRITE  <FB>  1 1     KP65F165H01
 807 E17 330 340 G MAGNETIC CONTACTOR  PAK-6JTH <52FLo,51F>  1 1     KP67C898H01
 808 E17 331 340 G MAGNETIC CONTACTOR  PAK-6J <52FHi>  1 1     KP67C900H01
 809 E17 364 341 G RELAY  LY2F <X1>  1 1     KP67F153H01
 810 E17 262 440 G PCA  I/D POWER BOARD  1 1     RG00B435B31
RoHS Apply by Running Change
Part Name
Spec. Dwg. No. Price
PEH-8GA.TH-SPMF
PEH-10GA.TH-SPMF
Revision History 
20
Page 22

PEH-16GA.TH
(NO.2) 
I/D  
POWER BOARD 
(NO.1) 
I/D  
POWER BOARD 
I/D
CONTROLLER BOARD 
(NO.2) 
CONTROLLER BOARD 
(NO.1) 
I/D
FB12 
FB22 
FB11 
FB21 
52F 
TB2 
TB5 TB4-1 TB4-2
X1 
X2 
51F 
A
906 907 
902
910 
901 
904 905
908.909
911
view A 
903
PEH-20GA.TH
CONTROL BOX PARTS (3)
G : 
RoHS Apply Only
W : 
No. Part No.
 901 E17 328 375 G  TERMINAL BLOCK  <TB2>  1 1     BC73L773G05
 902 E17 345 447 G PCA 
 903 E17 328 384 G PCA  SNB BOARD 1  1 1     KE95B118H01
 904 E17 370 374 G TERMINAL BLOCK  3020 3P <TB4-1>,<TB4-2>  2 2     KP00F094G02
 905 E17 365 374 G TERMINAL BLOCK  3020 2P <TB5>  1 1     KP00F094G04
 906 E17 328 394 G CLAMP FERRITE  <FB11>,<FB21>  2 2     KP65F165H01
 907 E17 333 394 G CLAMP FERRITE  ESD-SR <FB12>,<FB22>  2 2     KP65F183H01
 908 E17 334 340 G MAGNETIC CONTACTOR  PAK-11JTHC <52F,51F>   1     KP67C898H04
 909 E17 333 340 G MAGNETIC CONTACTOR  PAK-11JTHC <52F,51F>  1      KP67C898H05
 910 E17 364 341 G RELAY  LY2F <X1Lo>,<X2Hi>  2 2     KP67F153H01
 911 E17 262 440 G PCA 
RoHS Apply by Running Change
Part Name
Spec. Dwg. No. Price
I/D CONTROLLER BOARD (NO.1)(NO.2)
I/D POWER BOARD (NO.1)(NO.2)
PEH-16GA.TH
PEH-20GA.TH
 2 2     BH00C668F12
 2 2     RG00B435B31
Revision History 
21
Page 23

PEH-5,6GAK.TH(-SP,-MF,-SPMF)
PEH-8,10GA.TH(-SP,-MF,-SPMF) 
PEH-16,20GA.TH
OPTIONAL PARTS
G : 
RoHS Apply Only
W : 
No. Part No.
 951 E17 328 100 G  FILTER    1 1 1 1 1 1 KP35G359H01
 952 E17 330 100 G FILTER          KP35G359H02
 953 E17 331 100 G FILTER          KP35G359H03
 954 E17 333 100 G FILTER          KP35G360H01
RoHS Apply by Running Change
Part Name
Spec. Dwg. No. Price
PEH-5GAK.TH 
PEH-6GAK.TH
PEH-5GAK.TH-SP
PEH-6GAK.TH-SP
PEH-5GAK.TH-MF
PEH-6GAK.TH-MF
Revision History 
22
Page 24

PEH-5,6GAK.TH(-SP,-MF,-SPMF)
PEH-8,10GA.TH(-SP,-MF,-SPMF) 
PEH-16,20GA.TH
OPTIONAL PARTS
G : 
RoHS Apply Only
W : 
No. Part No.
 951 E17 328 100 G  FILTER    1 1     KP35G359H01
 952 E17 330 100 G FILTER      1  1  KP35G359H02
 953 E17 331 100 G FILTER       1  1 KP35G359H03
 954 E17 333 100 G FILTER          KP35G360H01
RoHS Apply by Running Change
Part Name
Spec. Dwg. No. Price
PEH-5GAK.TH-SPMF
PEH-6GAK.TH-SPMF
PEH-8GA.TH
PEH-10GA.TH
PEH-8GA.TH-SP
PEH-10GA.TH-SP
Revision History 
23
Page 25

PEH-5,6GAK.TH(-SP,-MF,-SPMF)
PEH-8,10GA.TH(-SP,-MF,-SPMF) 
PEH-16,20GA.TH
OPTIONAL PARTS
G : 
RoHS Apply Only
W : 
No. Part No.
 951 E17 328 100 G  FILTER          KP35G359H01
 952 E17 330 100 G FILTER    1  1    KP35G359H02
 953 E17 331 100 G FILTER     1  1   KP35G359H03
 954 E17 333 100 G FILTER        1 1 KP35G360H01
RoHS Apply by Running Change
Part Name
Spec. Dwg. No. Price
PEH-8GA.TH-MF
PEH-10GA.TH-MF
PEH-8GA.TH-SPMF
PEH-10GA.TH-SPMF
PEH-16GA.TH
PEH-20GA.TH
Revision History 
24
Page 26

BWE07030 (20070831)