
Item # _____________________________________
Quantity ___________________________________
C.S.I. Section 11400
CG SERIES ELECTRIC
701 S Ridge Avenue, Troy, OH 45374
1-888-4HOBART • www.hobartcorp.com
STANDARD FEATURES
■ Stainless steel front, sides and 4" adjustable
legs.
■ 1⁄2" thick polished steel griddle plate.
■ 13" cooking height on 4" adjustable legs.
■ Two solid sheathed tubular incoloy heating
elements, one snap action thermostat and
cycling light per each 12" griddle width.
Thermostats adjust from 200° to 450°F.
■ Stainless steel 4" back and tapered side
splashes.
■ 31⁄8 " wide front grease trough and a large
capacity grease drawer.
■ Available in 208V or 240V, 50/60 Hz, 1 or 3
phase power supply. 480V, 50/60 Hz, 3 phase
power supply.
COUNTER GRIDDLES
MODEL
❑ CG24 24" wide x 24" deep griddle plate
❑ CG58 36" wide x 24" deep griddle plate
❑ CG41 48" wide x 24" deep griddle plate
❑ CG50 60" wide x 24" deep griddle plate
❑ CG59 72" wide x 24" deep griddle plate
Specications, Details and Dimensions on Inside and Back.
CG SERIES ELECTRIC COUNTER GRIDDLES
■ CG58, CG41, CG50 and CG59 models are
Energy Star rated.
■ One year limited parts and labor warranty.
CG41
F-7828 – CG Series Electric Counter Griddles Page 1 of 4

CG SERIES ELECTRIC
COUNTER GRIDDLES
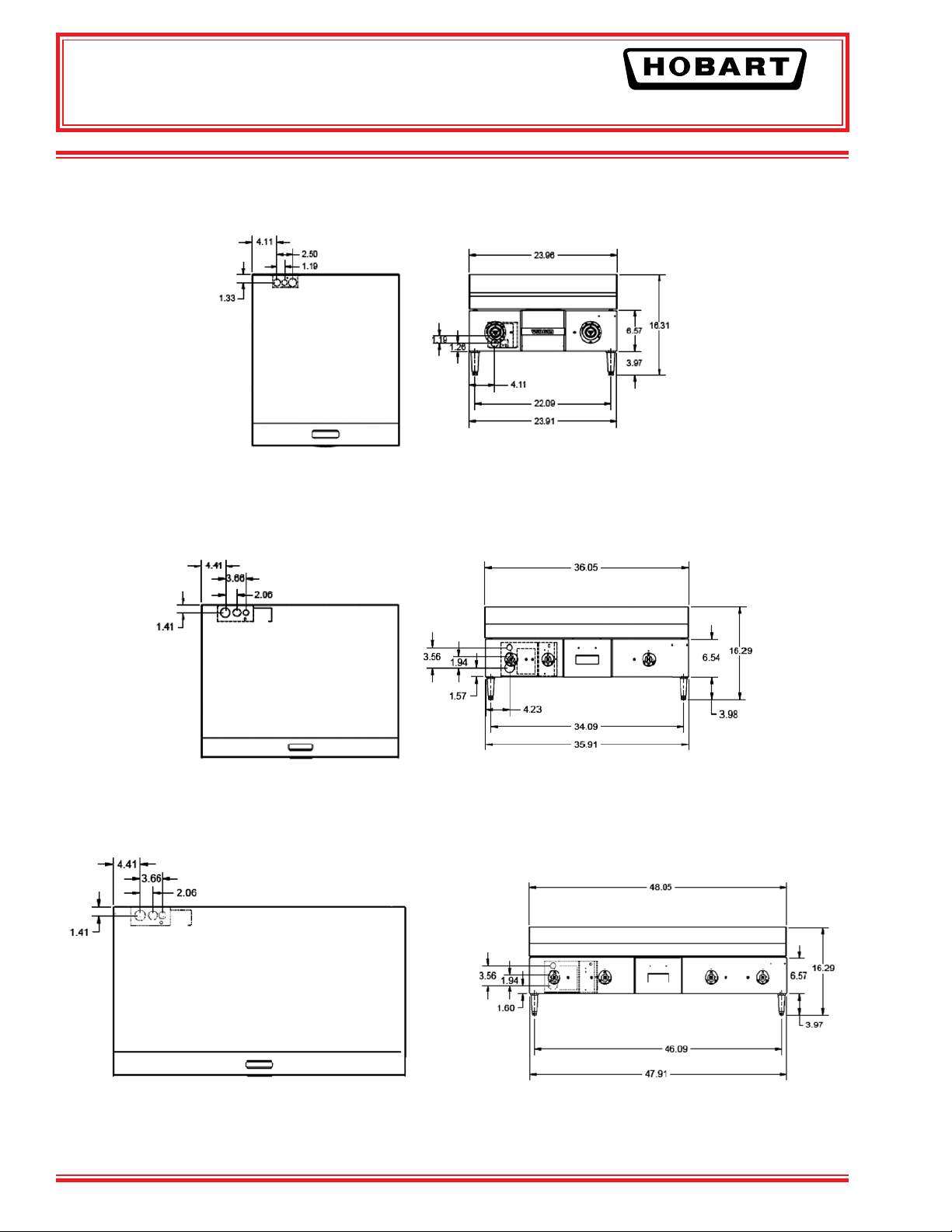
DETAILS AND DIMENSIONS
TOP VIEW FRONT VIEW
701 S Ridge Avenue, Troy, OH 45374
1-888-4HOBART • www.hobartcorp.com
CG24
TOP VIEW FRONT VIEW
CG58
TOP VIEW FRONT VIEW
CG41
Page 2 of 4 F-7828 – CG Series Electric Counter Griddles

CG SERIES ELECTRIC
701 S Ridge Avenue, Troy, OH 45374
1-888-4HOBART • www.hobartcorp.com
COUNTER GRIDDLES
DETAILS AND DIMENSIONS
TOP VIEW FRONT VIEW
CG50
TOP VIEW
SIDE VIEW
ALL MODELS
FRONT VIEW
CG59
F-7828 – CG Series Electric Counter Griddles Page 3 of 4

CG SERIES ELECTRIC
COUNTER GRIDDLES
SPECIFICATIONS
CONSTRUCTION: Stainless steel free-standing
counter-style griddle. Stainless steel heating units
with a 1⁄2" thick polished steel griddle plate. Coldrolled steel 3" high splatter guard welded to griddle
plate bottom. 4" high plastic legs with adjustable
feet. A full-width front and rear grease trough
directs grease to a removal chute. Full depth grease
drawer with weep hole is front removable. (Model
CG59 has two grease removal chutes and drawers.)
Wrap-around grease guard protects wall and
equipment from splatter.
HEATING: Uniform pattern of enclosed tubular
stainless steel heating units eliminates hot and cold
ELECTRICAL CHARACTERISTICS
STANDARD VOLTAGES – 208 VOLTS OR 240 VOLTS 60 Hz. – SINGLE OR THREE PHASE
480 VOLTS 60 Hz. – THREE PHASE ONLY
701 S Ridge Avenue, Troy, OH 45374
1-888-4HOBART • www.hobartcorp.com
spots. Perimeter is heated and units are attached
to grid bottom. Extra heat-retaining bafe reduces
watts to hold. Preheats to 350°F in just 7 minutes.
CONTROLS: A thermostat provides independent
controls of each 12" wide area of grid. Temperature
range is 200-450°F. A signal light for each thermostat
indicates whether or not that it is operating and when
preset temperature is reached.
ELECTRICAL: See Electrical Characteristics chart
below. Left rear terminal box. (CG59 power terminal
box are at left rear and center rear.) Knockouts in
back and bottom permit connections to suit varied
conditions.
MODEL
NO.
CG24 10.8 10.8 5.4 0.0 5.4 22.5 45.0 22.5 19.5 39.0 19.5 9.7 19.5 9.7 51.9 45.0
CG58 16.2 16.2 5.4 5.4 5.4 45.0 45.0 45.0 39.0 39.0 39.0 19.5 19.5 19.5 77. 9 67. 5
CG41 21.6 21.6 10.8 5.4 5.4 68.7 68.7 45.2 59.5 59.5 39.0 29.8 29.8 19.5 103.9 90.0
CG50* 2 7.0
CG59* 32.4
*Model CG50 and CG59 require two separate electrical connections and services.
TOTAL
CONN.
KW
TOTAL
KW
PER
CONN
16.2 5.4 5.4 5.4 45.0 45.0 45.0 39.0 39.0 39.0 19.5 19.5 19.5 77. 9 67. 5
10.8 5.4 0.0 5.4 45.0 26.0 26.0 39.0 22.5 22.5 19.5 11.3 11.3 51.9 45.0
16.2 5.4 5.4 5.4 45.0 45.0 45.0 39.0 39.0 39.0 19.5 19.5 19.5 77. 9 67. 5
16.2 5.4 5.4 5.4 45.0 45.0 45.0 39.0 39.0 39.0 19.5 19.5 19.5 77. 9 67. 5
3 PHASE
LOADING
KW PER PHASE
PER CONN.*
X-Y Y-Z X-Z X Y Z X Y Z X Y Z
208 VOLT 240 VOLT 480 VOLT
NOMINAL AMPS PER LINE WIRE CONN.*
3 PHASE 1 PHASE
208
VO LT
240
VO LT
DATA CHART
OVERALL DIMENSIONS GRIDDLE SURFACE DIMENSIONS
MODEL NO. WIDTH DEPTH HEIGHT WIDTH DEPTH
CG24 24" (610) 275⁄8 " (702) 163⁄8 " (415) 24" (610) 24" (610) 157/ 71
CG58 36" (914) 275⁄8 " (702) 163⁄8 " (415) 36" (914) 24" (610) 230/104
CG41 48" (1219) 275⁄8 " (702) 163⁄8 " (415) 48" (1219) 24" (610) 275/125
CG50 60" (1524) 275⁄8 " (702) 163⁄8 " (415) 60" (1524) 24" (610) 420/19 0
CG59 72" (1821) 275⁄8 " (702) 163⁄8 " (415) 72" (1821) 24" (610) 560/254
(Dimension in parenthesis are in millimeters)
Installation clearances: Sides and rear must be 1" from the nea rest combustible construction and 0” from noncombustible construction. Bottom must be
4” from combustible or non- combustible construction.
SHIP WT.
lbs/kg
As continued product improvement is a policy of Hobart, specications are subject to change without notice.
Page 4 of 4 F-7828 – CG Series Electric Counter Griddles
F-7828 (REV. 02/10) LITHO IN U.S.A. (H-01)