
PRODUCT INFORMATION PACKET
Model No: E119854.00
Catalog No: E119854.00
0.75 HP General Purpose Motor, 1 phase, 1800 RPM, 115/208-230 V, 56 Frame, ODP
Single Phase ODP Motors
Regal and Leeson are trademarks of Regal Beloit Corporation or one of its affiliated companies.
©2020 Regal Beloit Corporation, All Rights Reserved. MC017097E
1 of 61 of 61 of 61 of 61 of 61 of 61 of 61 of 61 of 61 of 61 of 61 of 61 of 61 of 61 of 61 of 61 of 61 of 61 of 61 of 61 of 61 of 61 of 61 of 61 of 6

Product Information Packet: Model No: E119854.00, Catalog No:E119854.00 0.75 HP General Purpose Motor, 1 phase, 1800 RPM, 115/208-230 V, 56
Frame, ODP
Nameplate Specifications
Output HP 0.75 Hp Output KW 0.56 kW
Frequency 60 Hz Voltage 115/208-230 V
Current 6.6/3.5-3.3 A Speed 1725 rpm
Service Factor 1.25 Phase 1
Efficiency 81.8 % Power Factor 91
Duty Continuous Insulation Class B
Design Code N KVA Code L
Frame 56 Enclosure Drip Proof
Thermal Protection Automatic Ambient Temperature 40 °C
Drive End Bearing Size 6203 Opp Drive End Bearing Size 6203
UL Recognized CSA Y
CE Y IP Code 22
Technical Specifications
Electrical Type Capacitor Start Capacitor Run Starting Method Across The Line
Poles 4 Rotation Selective Counterclockwise
Resistance Main 0 Ohms Mounting Rigid Base
Motor Orientation Horizontal Drive End Bearing Ball
Opp Drive End Bearing Ball Frame Material Rolled Steel
Shaft Type NEMA 56 Overall Length 12.49 in
Frame Length 8.15 in Shaft Diameter 0.625 in
Shaft Extension 1.88 in Assembly/Box Mounting F1 ONLY
Outline Drawing OL56100194-001 Connection Drawing CDBD125
This is an uncontrolled document once printed or downloaded and is subject to change without notice. Date Created:14/10/2020
2 of 62 of 62 of 62 of 62 of 62 of 62 of 62 of 62 of 62 of 62 of 62 of 62 of 62 of 62 of 62 of 62 of 62 of 62 of 62 of 62 of 62 of 62 of 62 of 62 of 6

2X
8.16
207.38
3
3
Uncontrolled Copy
2X
1.82
46.14
1.93
48.90
5.14
130.61
5.11
129.84
12.49
317.12
2.03
10.46
265.56
NAMEPLATE READ
FROM TOP DOWN
LOCATE AT 3:00 O'CLOCK
POSITION AT OPPOSITE
LEAD END
1.40
35.56
3.21
4X
.13
51.56
1.88
47.75
USUABLE
KEYWAY
1.41
35.81
D
D
.6250
.6245
15.8750
15.8623
4 21
4 21
6.67
169.49
3.26
82.78
33°
D
D
1.94
49.28
2.20
55.93
3.41
86.70
33°
A
6.72
170.67
C
C
THREADED HOLE
1/2-14 NPSM PLUGGE D
A
3.50
3.44
88.90
87.38
C
C
KEY TO BE SECURE
.12
3.16
.517
.502
13.132
B
B
12.751
.190
.188
4.826
4.775
SECTION A-A
A
A
4 21
4 21
3
3
TO NAMEPLATE WITH
TAPE AS SHOWN
PRIOR TO SHIPPING
6.50
165.10
DRAWING REVISION REVISION BY DATE
DRAWING REVISION REVISION BY DATE
C KHADAR 12/06/2018
C KHADAR 12/06/2018
ECO
ECO
ECO-0157855 D.SURYAWANSHI 12/06/2018
ECO-0157855 D.SURYAWANSHI 12/06/2018
ECO DESCRIPTION
ECO DESCRIPTION
PROPRIETARY AND CONFIDENTIAL INFORMATION - THIS DOCUMENT IS THE PROPERTY OF
PROPRIETARY AND CONFIDENTIAL INFORMATION - THIS DOCUMENT IS THE PROPERTY OF
INFORMATION. ANY PERSON, CORPORATION OR OTHER FIRM RECEIVING IT IS DEEMED,
INFORMATION. ANY PERSON, CORPORATION OR OTHER FIRM RECEIVING IT IS DEEMED,
BY RECEIVING IT, TO AGREE THAT IT, AND/OR ANY PART OF IT, SHALL NOT BE DISCLOSED
BY RECEIVING IT, TO AGREE THAT IT, AND/OR ANY PART OF IT, SHALL NOT BE DISCLOSED
TO ANY PERSON, CORPORATION OR OTHER ENTITY, DUPLICATED, AND/OR USED, EXCEPT
TO ANY PERSON, CORPORATION OR OTHER ENTITY, DUPLICATED, AND/OR USED, EXCEPT
AS EXPRESSLY APPROVED IN WRITING IN ADVANCE BY OWNER. THIS DOCUMENT SHALL
AS EXPRESSLY APPROVED IN WRITING IN ADVANCE BY OWNER. THIS DOCUMENT SHALL
APPROVED BY DATE
APPROVED BY DATE
UPDATED TERMINAL ASSEMBLY PER ECO
UPDATED TERMINAL ASSEMBLY PER ECO
COPYRIGHT REGAL BELOIT AMERICA, INC. ALL RIGHTS RESERVED.
COPYRIGHT REGAL BELOIT AMERICA, INC. ALL RIGHTS RESERVED.
REGAL BE LOIT AM ERICA, INC. (" OWNER") A ND CO NTAINS OWNE R'S PROPRIE TARY
REGAL BE LOIT AM ERICA, INC. (" OWNER") A ND CO NTAINS OWNE R'S PROPRIE TARY
BE RETURNED TO O WNER UPON REQ UEST. IT M A Y BE SUBJ E CT TO CERTAIN
BE RETURNED TO O WNER UPON REQ UEST. IT M A Y BE SUBJ E CT TO CERTAIN
RESTRICTIONS UNDER APPLICABLE EXPORT CONTROL LAWS AND REGULATIONS.
RESTRICTIONS UNDER APPLICABLE EXPORT CONTROL LAWS AND REGULATIONS.
4X
.34
8.64
4X
1.22
30.99
2X
3.00
76.20
4.00
101.60
TOLERANCES UNLESS
TOLERANCES UNLESS
OTHERWISE SPECIFIED:
OTHERWISE SPECIFIED:
DEC. INCH mm ANGLE
DEC. INCH mm ANGLE
.X 0.1 [ 2.5] 0.5
.X 0.1 [ 2.5] 0.5
.XX 0.03 [ 0.76]
.XX 0.03 [ 0.76]
.XXX 0.005 [ 0.127]
.XXX 0.005 [ 0.127]
.XXXX 0.0005 [ 0.0127]
.XXXX 0.0005 [ 0.0127]
REMOVE BURRS & BREAK SHARP
REMOVE BURRS & BREAK SHARP
EDGES: .003/ .015 [ . 076/ . 381] X 45
EDGES: .003/ .015 [ . 076/ . 381] X 45
CORNER FILLETS: R.02 [.51]
CORNER FILLETS: R.02 [.51]
MACHINED SURFACES:
MACHINED SURFACES:
INCH mm
INCH mm
mm SHOWN IN [BRACKETS]
mm SHOWN IN [BRACKETS]
125
125
3 of 63 of 63 of 63 of 63 of 63 of 63 of 63 of 63 of 63 of 63 of 63 of 63 of 63 of 63 of 63 of 63 of 63 of 63 of 63 of 63 of 63 of 63 of 63 of 63 of 6
.50
12.70
2.44
61.98
3.2
3.2
2X
2.75
69.85
DRAWN BY
DRAWN BY
D.VALENCIANO
D.VALENCIANO
DATE
DATE
11-18-2016
11-18-2016
APPROVED BY
APPROVED BY
J.ORTEGA
J.ORTEGA
DATE
DATE
11-18-2016
11-18-2016
REFERENCE
REFERENCE
THIRD ANGLE
THIRD ANGLE
PROJECTION
PROJECTION
2X
4.88
123.95
TM
TM
Regal Beloit America, Inc.
Regal Beloit America, Inc.
DESCRIPT ION
DESCRIPT ION
MATERIAL
MATERIAL
DRAWING NUMB ER
DRAWING NUMB ER
SIZE
SIZE
C OL56100194-001
C OL56100194-001
OUTLINE
OUTLINE
56FR,ODP,1-PHASE,RIGID
56FR,ODP,1-PHASE,RIGID
PROCESS/FINISH
PROCESS/FINISH
SHEET
SHEET
1 OF1
1 OF1
B
B
A
A

3
21
Regal Beloit America, Inc.
TM
COPYRIGHT REGAL BELOIT AMERICA, INC. ALL RIGHTS RESERVED.
PROPRIETARY AND CONFIDENTIAL INFORMATION - THIS DOCUMENT IS THE PROPERTY OF
REGAL BELOIT AMERICA, INC. ("OWNER") AND CONTAINS OWNER'S PROPRIETARY
INFORMATION. ANY PERSON, CORPORATION OR OTHER FIRM RECEIVING I T IS DEEMED,
BY RECEIVING IT, TO AGREE THAT IT, AND/OR ANY PART OF IT, SHALL NOT BE DISCLOSED
TO ANY PERSON, CORPORATION OR OTHER ENTITY, DUPLICATED, A ND/ OR USED, EXCEPT
AS EXPRESSLY APPROVED IN WRITING IN ADVANCE BY OWNER. THIS DOCUMENT SHALL
BE RETURNED TO OWNER UPON REQUEST. IT MAY BE SUBJECT TO CERTAIN
RESTRICTIONS UNDER APPLICABLE EXPORT CONTROL LAWS AND REGULATIONS.
TOLERANCES UNLESS
OTHERWISE SPECIFIED:
DEC.
INCH mm ANGLE
.X 0.1 [ 2.5] 0.5
.XX 0.01 [ 0.25]
XXX 0.005 [ 0.127]
.XXXX 0.0005 [ 0.0127]
REMOVE BURRS & BREAK SHARP
EDGES: .003/.015 [.076/.381]
CORNER FILLETS: .02 [.51]
MACHINED SURFACES:
125 3.2
INCH mm
mm SHOWN IN [BRACKETS]
12
43
A
B
2
43
1
A
B
ECO DESCRIPTION
DATEAPPROVED BY
DATEREVISION BY
ECO
DRAWING REVISION
REFERENCE
MATERIAL
SHEET
DRAWING NUMBERSIZE
DESCRIPTION
THIRD ANGLE
PROJECTION
DRAWN BY
DATE
DATE
APPROVED BY
PROCESS/FINISH
B
1 OF 1
CDBD125
G. RODRIGUEZ
11-24-2017
R. VALENZUELA
11-24-2017
D SHESHI 10/05/18
ECO-0153417 SM 10/05/18
ADDED CORD DIAGRAM
CONN DIAGRAM-EXTE RNAL
CDCD102
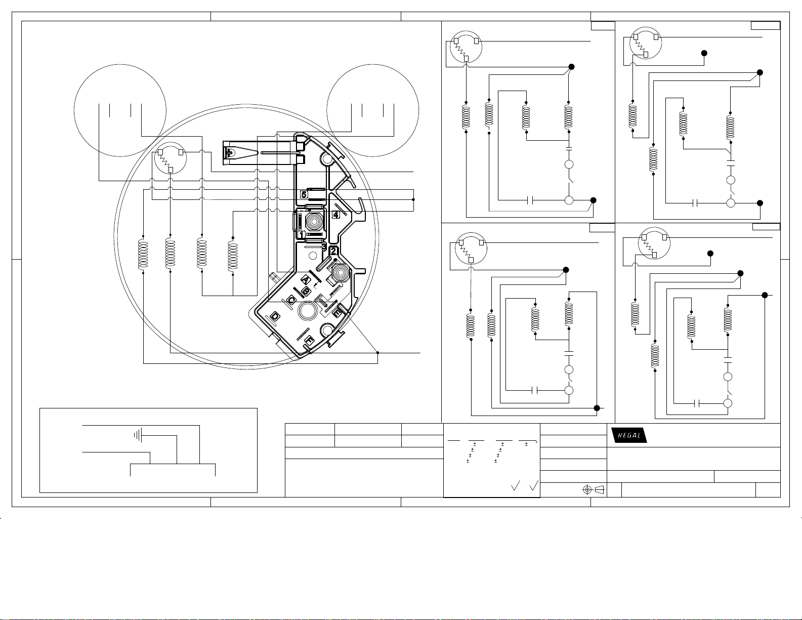
NOTE:
TO REVERSE ROTATION, INTERCHANGE RED T8 & BLACK T1 0 .1.
TERMINAL BOAR D ASSY 10003285-001-0012.
CONNECTION DIAGRAM-NAMEPLATE DD10122-001 COLORS WITH T NO's,3.
-002 -T NO's, FOLLOW BOM FOR LEAD MARKINGS.
CCW ROTATION CAP START CAP RUN DUAL VOLTAGE
CW HIGH VOLT AG E
WHITE T2
YELLOW T4
BLACK T5
T1 BLUE
MAIN
1
BLACK T11
MAIN
2
START
1
BROWN P2
START
2
RED T8
RUN
CAP
START
2
START
CAP
MAIN 2
START
1
MAIN
1
CW LOW VOLTAGE
CCW LOW VOLTAG E
PURPLE P1
YELLOW T4
RED T8
BLACK T11
BLK
T10
BLK T5
BLK T9
WHITE
T12
L2
E
L1
A
START
1
MAIN
2
START
2
MAIN 1
BLUE T1
ORANGE T3
WHITE T2
START
CAP
BROWN P2
RUN
CAP
L1
L2
WHEN NECESSARY
WHITE
GREEN
BLACK
-001
-003
-002
-004
3
21
3
21
3
21
3
21
WHITE T12
L1
CCW HIGH VOLT AGE
L2
BLACK T9
YELLOW T4
RED T8
BLACK T11
BLACK T10
BLK T5
BLK T9
WHITE
T12
L2
E
L1
A
START
1
MAIN
2
START
2
BLUE T1
ORANGE T3
WHITE T2
START
CAP
ORANGE T3
BROWN P2
RUN
CAP
PURPLE P1
PURPLE P1
BLACK T10
PURPLE P1
WHITE
T12
BLACK T11
BLK T5
BLK T9
A
MAIN 1
YELLOW T4
BROWN P2
BLUE T1
ORANGE T3
RED T8
WHITE T2
L2
BLK T10
E
L1
START
CAP
RUN
CAP
START
1
BLUE T1
BROWN P2
BLACK T11
BLK
T10
BLK T5
BLK T9
WHITE
T12
E
L1
A
MAIN
1
START
2
MAIN 2
L2
ORANGE T3
WHITE T2
YELLOW T4
RED T8
PURPLE P1
3
21
Regal Beloit America, Inc.
TM
COPYRIGHT REGAL BELOIT AMERICA, INC. ALL RIGHTS RESERVED.
PROPRIETARY AND CONFIDENTIAL INFORMATION - THIS DOCUMENT IS THE PROPERTY OF
REGAL BELOIT AMERICA, INC. ("OWNER") AND CONTAINS OWNER'S PROPRIETARY
INFORMATION. ANY PERSON, CORPORATION OR OTHER FIRM RECEIVING I T IS DEEMED,
BY RECEIVING IT, TO AGREE THAT IT, AND/OR ANY PART OF IT, SHALL NOT BE DISCLOSED
TO ANY PERSON, CORPORATION OR OTHER ENTITY, DUPLICATED, A ND/ OR USED, EXCEPT
AS EXPRESSLY APPROVED IN WRITING IN ADVANCE BY OWNER. THIS DOCUMENT SHALL
BE RETURNED TO OWNER UPON REQUEST. IT MAY BE SUBJECT TO CERTAIN
RESTRICTIONS UNDER APPLICABLE EXPORT CONTROL LAWS AND REGULATIONS.
TOLERANCES UNLESS
OTHERWISE SPECIFIED:
DEC.
INCH mm ANGLE
.X 0.1 [ 2.5] 0.5
.XX 0.01 [ 0.25]
XXX 0.005 [ 0.127]
.XXXX 0.0005 [ 0.0127]
REMOVE BURRS & BREAK SHARP
EDGES: .003/.015 [.076/.381]
CORNER FILLETS: .02 [.51]
MACHINED SURFACES:
125 3.2
INCH mm
mm SHOWN IN [BRACKETS]
12
43
A
B
2
43
1
A
B
ECO DESCRIPTION
DATEAPPROVED BY
DATEREVISION BY
ECO
DRAWING REVISION
REFERENCE
MATERIAL
SHEET
DRAWING NUMBERSIZE
DESCRIPTION
THIRD ANGLE
PROJECTION
DRAWN BY
DATE
DATE
APPROVED BY
PROCESS/FINISH
B
1 OF 1
CDBD125
G. RODRIGUEZ
11-24-2017
R. VALENZUELA
11-24-2017
D SHESHI 10/05/18
ECO-0153417 SM 10/05/18
ADDED CORD DIAGRAM
CONN DIAGRAM-EXTE RNAL
CDCD102
NOTE:
TO REVERSE ROTATION, INTERCHANGE RED T8 & BLACK T1 0 .1.
TERMINAL BOAR D ASSY 10003285-001-0012.
CONNECTION DIAGRAM-NAMEPLATE DD10122-001 COLORS WITH T NO's,3.
-002 -T NO's, FOLLOW BOM FOR LEAD MARKINGS.
CCW ROTATION CAP START CAP RUN DUAL VOLTAGE
CW HIGH VOLT AG E
WHITE T2
YELLOW T4
BLACK T5
T1 BLUE
MAIN
1
BLACK T11
MAIN
2
START
1
BROWN P2
START
2
RED T8
RUN
CAP
START
2
START
CAP
MAIN 2
START
1
MAIN
1
CW LOW VOLTAGE
CCW LOW VOLTAG E
PURPLE P1
YELLOW T4
RED T8
BLACK T11
BLK
T10
BLK T5
BLK T9
WHITE
T12
L2
E
L1
A
START
1
MAIN
2
START
2
MAIN 1
BLUE T1
ORANGE T3
WHITE T2
START
CAP
BROWN P2
RUN
CAP
L1
L2
WHEN NECESSARY
WHITE
GREEN
BLACK
-001
-003
-002
-004
Uncontrolled Copy
4 of 64 of 64 of 64 of 64 of 64 of 64 of 64 of 64 of 64 of 64 of 64 of 64 of 64 of 64 of 64 of 64 of 64 of 64 of 64 of 64 of 64 of 64 of 64 of 64 of 6

Uncontrolled Copy
5 of 65 of 65 of 65 of 65 of 65 of 65 of 65 of 65 of 65 of 65 of 65 of 65 of 65 of 65 of 65 of 65 of 65 of 65 of 65 of 65 of 65 of 65 of 65 of 65 of 6

Uncontrolled Copy
6 of 66 of 66 of 66 of 66 of 66 of 66 of 66 of 66 of 66 of 66 of 66 of 66 of 66 of 66 of 66 of 66 of 66 of 66 of 66 of 66 of 66 of 66 of 66 of 66 of 6