
ANTIQUETM
Features
Brass construction
•
Bath- or deck-mount
•
Brass valve bodies
•
Variety of handle style options
•
1/2″ quarter-turn washerless ceramic disc valves
•
9-5/8″ (244 mm) spout with diverter
•
Antique handshower with 60″ (1524 mm) hose
•
Codes/Standards Applicable
Specified model meets or exceeds the following:
ASME A112.18.1/CSA B125.1
•
ASSE 1014
•
ASSE 1025
•
CSA B64
•
Specified Model
BATH FAUCET
K-110
Colors/Finishes
CP: Polished Chrome
•
PB: Vibrant®Polished Brass
•
Other: Refer to Price Book for additional colors/finishes
•
Model Description
K-110-3 With six-prong handles ❑ CP ❑ PB ❑ Other
K-110-4 With lever handles ❑ CP ❑ PB ❑ Other
K-110-9B With oval handles ❑ CP ❑ PB ❑ Other
Required Accessories
K-126 27-7/8″ (708 mm) riser tubes, pair (for deck-mount bath faucet installation) ❑ CP ❑ PB ❑ Other ____
K-127 27-7/8″ (708 mm) riser tubes, pair (for K-100 Birthday Bath
K-128 31-1/2″ (800 mm) riser tubes, pair (for K-700 Vintage
____
____
____
installation) ❑ CP ❑ PB ❑ Other ____
®
bath installation) ❑ CP ❑ PB ❑ Other ____
®
Product Specification
Two-handle bath- or deck-mount bath faucet shall be of brass construction. Faucet shall feature brass valve bodies. Faucet shall
feature 1/2″ quarter-turn washerless ceramic disc valves, assuring positive handle stop positioning. Product requires riser tubes.
Product shall include an Antique handshower with 60″ (1524 mm) hose, 9-5/8″ (244 mm) diverter spout, and a variey of handle
style options. Faucet shall be Kohler Model K-110-______-______ and the riser tubes shall be Kohler Model K-______-______.
Page 1 of 2
115001-4-
USA/Canada: 1-800-4KOHLER
E
(1-800-456-4537)
www.kohler.com

ANTIQUETM
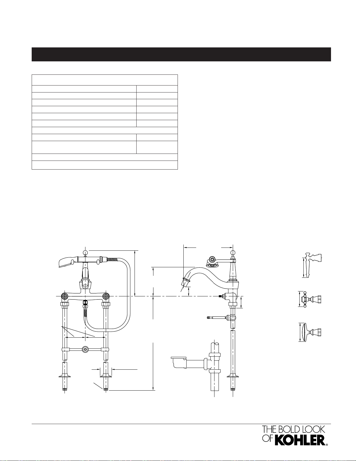
Technical Information
Applicable components:
Bath faucet with six-prong handles* K-110-3
Bath faucet with lever handles* K-110-4
Bath faucet with oval handles** K-110-9B
Riser tubes for deck-mount installation K-126
Riser tubes for Birthday bath K-127
Riser tubes for Vintage bath K-128
Accessories/hardware:
Ceramic oval insets (pair) K-268
Ceramic oval insets, garland texture
(pair)
*Requires riser tubes.
**Requires riser tubes and ceramic insets.
K-264
Installation Notes
Install this product according to the installation guide.
Choose the short or the long rod when connecting the
overflow drain to the riser tube assembly. If the bath to drain
faucet distance is 6-3/8″ (162 mm) use the long rod (42237).
If the bath to drain faucet distance is 4-3/8″ (111 mm) use the
short rod (1001117).
4"
(102 mm)
1/2" NPT
Ø 2-1/4"
(57 mm)
8-15/16"
(227 mm)
5-5/8"
(143 mm)
K-126, K-127 =
27-7/8" (708 mm)
K-128 =
31-1/2" (800 mm)
9-5/8"
(244 mm)
1-13/16"
(46 mm)
3-3/4"
(95 mm)
Lever
2-3/8"
(60 mm)
3"
(76 mm)
6-Prong
3-1/2"
(89 mm)
Oval
Bath drain to faucet = X
K-100, X = 5-7/8" (149 mm)
K-700, K-702, X = 6-3/8" (162 mm)
K-710, K-711, K-712, K-726,
X = 4-3/8" (111 mm)
ANTIQUETM BATH FAUCET
Page2of2
115001-4-
E
Product Diagram