
MENDOTATM
Features
Cast iron with Safeguard
•
ADA compliant when installed per Section 607 of the
•
Act
Left or right drain
•
60″ (1524 mm) x 32″ (813 mm) x 16-1/4″ (413 mm)
•
®
finish
Codes/Standards Applicable
Specified model meets or exceeds the following:
ADA
•
ASME A112.19.1/CSA B45.2
•
ICC/ANSI A117.1
•
Specified Model
K-505
ALSO K-506
Colors/Finishes
0: White
•
Other: Refer to Price Book for additional colors/finishes
•
Accessories
0: White
•
CP: Polished Chrome
•
PB: Vibrant®Polished Brass
•
Other: Refer to Price Book for additional colors/finishes
•
BATH
Model Description Colors/Finishes
K-505 Bath – left drain ❑ 0 ❑ Other_____
K-506 Bath – right drain ❑ 0 ❑ Other_____
Recommended Accessories
K-7160-TF Adjustable pop-up drain ❑ CP ❑ PB ❑ Other_____
K-7213 Clearflo bath cable drain with PVC tubing ❑ CP ❑ Other_____
K-7214 Clearflo bath cable drain without PVC tubing ❑ CP ❑ Other_____
Product Specification
The bath shall be made of cast iron with Safeguard®finish. Bath shall be 60″ (1524 mm) in length, 32″ (813 mm) in width, and
16-1/4″ (413 mm) in height. Bath shall have a left or right drain. Bath shall be ADA compliant when installed with a seat at head
end. Bath shall be Kohler Model K-______-_______.
Page 1 of 2
105006-4-
CE
USA/Canada: 1-800-4KOHLER
(1-800-456-4537)
www.kohler.com

MENDOTATM
Optional Accessories
K-1491 Pillow ❑ 0 ❑ Other_____
K-1601 Footstop ❑ 0 ❑ Other_____
Technical Information
Fixture*:
Basin area:
Bathing well 46″ (1168 mm) x 20″ (508 mm)
Top area 54″ (1372 mm) x 24″ (610 mm)
Weight 351 lbs (159.2 kg)
To overflow:
Water depth 10-7/8″ (276 mm)
Capacity 45 gal (170.3 L)
* Approximate measurements for comparison only.
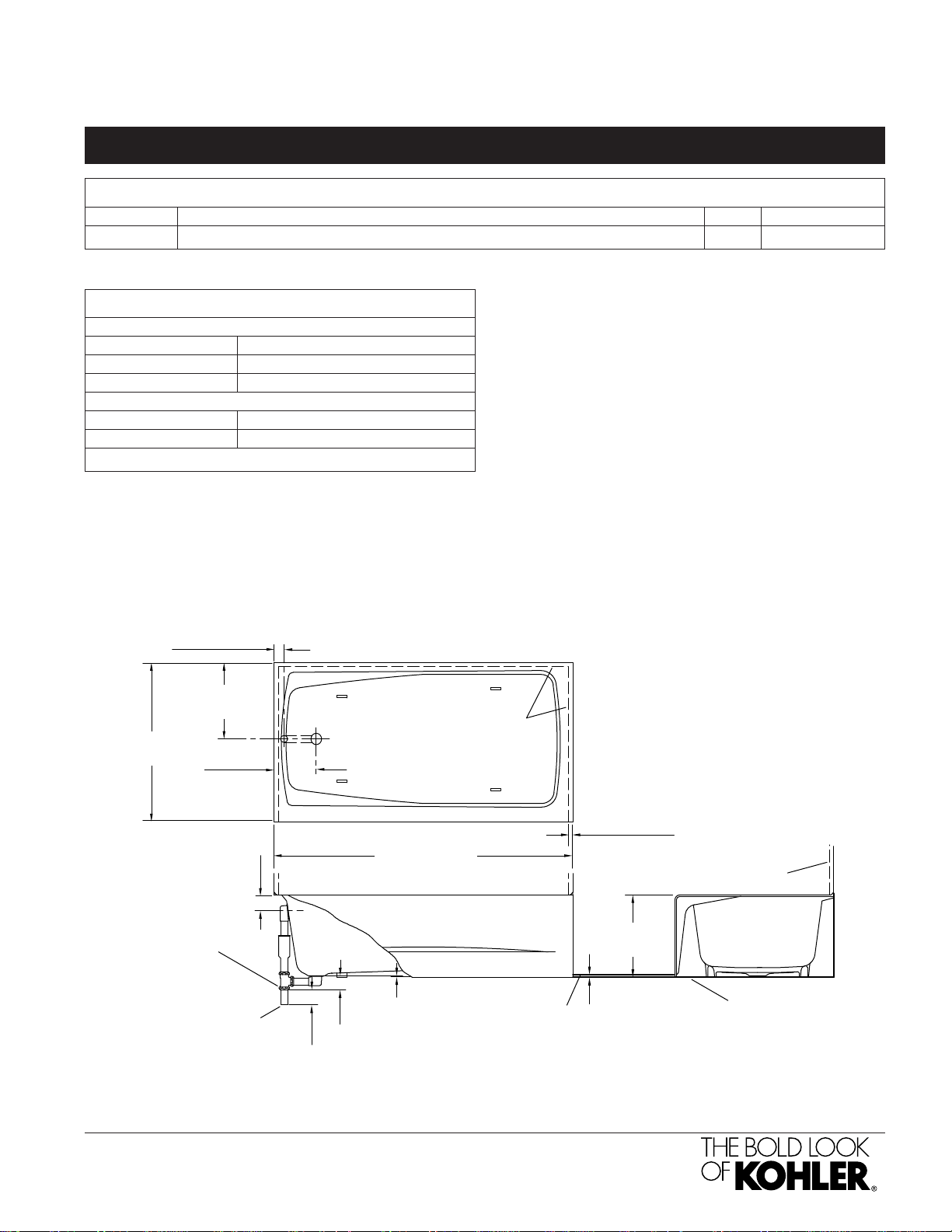
1-5/8" (41 mm)
15-3/8"
(391 mm)
32"
(812 mm)
Installation Notes
Install this product according to the installation guide.
Floor support under bath must provide for a minimum of
56 lbs/square foot (275 kg/square meter) loading.
No change in measurements
if connected with drain illustrated. (K-7160-TF)
Finished Wall
3-1/4"
(83 mm)
1-1/2" NPT
Thread
1-1/2" OD
MENDOTATM BATH
Page2of2
105006-4-
CE
8-1/2"
(216 mm)
60" (1524 mm)
2-7/8"
(73 mm)
3" (76 mm)
1/4" (6 mm)
Finished Floor
Product Diagram
7/8" (22 mm)
Finished Wall
16-1/4"
(413 mm)
1/2" (13 mm)
Sub Floor