
Features
•
Single lever handle allows for both on/off activation and
temperature setting.
•
KOHLER ceramic disc valves exceed industry longevity
standards for a lifetime of durable performance.
•
Leak free ceramic disc valve allows both volume and
temperature control.
•
Temperature memory allows faucet to be turned on and off at
any temperature setting.
•
High-temperature limit setting for added safety.
•
Includes metal pop-up drain with 1-1/4-inch metal tailpiece.
•
1.2 gal/min (4.5 l/min) maximum flow rate [max at 60 psi (4.1
bar)]
•
Red/blue indexing on handle.
•
Flexible supplies for simplified installation.
•
Low-flow aerator option available.
Material
•
Premium metal construction.
•
KOHLER finishes resist corrosion and tarnishing.
Installation
•
Single-hole.
Installed component/s: Flexible supply hoses.
Elate
™
Single-handle Bathroom Sink Faucet
K-99491-4
Codes/Standards
ASME A112.18.1/CSA B125.1
NSF 61
NSF 372
All applicable US Federal and State material
regulations
DOE - Energy Policy Act 1992
EPA WaterSense
California Energy Commission (CEC)
ADA
ICC/ANSI A117.1
CSA B651
OBC
®
KOHLER® Faucet Lifetime Limited
Warranty
See website for detailed warranty information.
Available Color/Finishes
Color tiles intended for reference only.
DescriptionCodeColor
Polished ChromeCP
USA/Canada: 1-800-4KOHLER (1-800-456-4537)
Kohler Co. reserves the right to make revisions without notice to product specifications.
For the most current Specification Sheet, go to www.kohler.com.
7-13-2017 15:00

Elate
™
Single-handle Bathroom Sink Faucet
K-99491-4
Technical Information
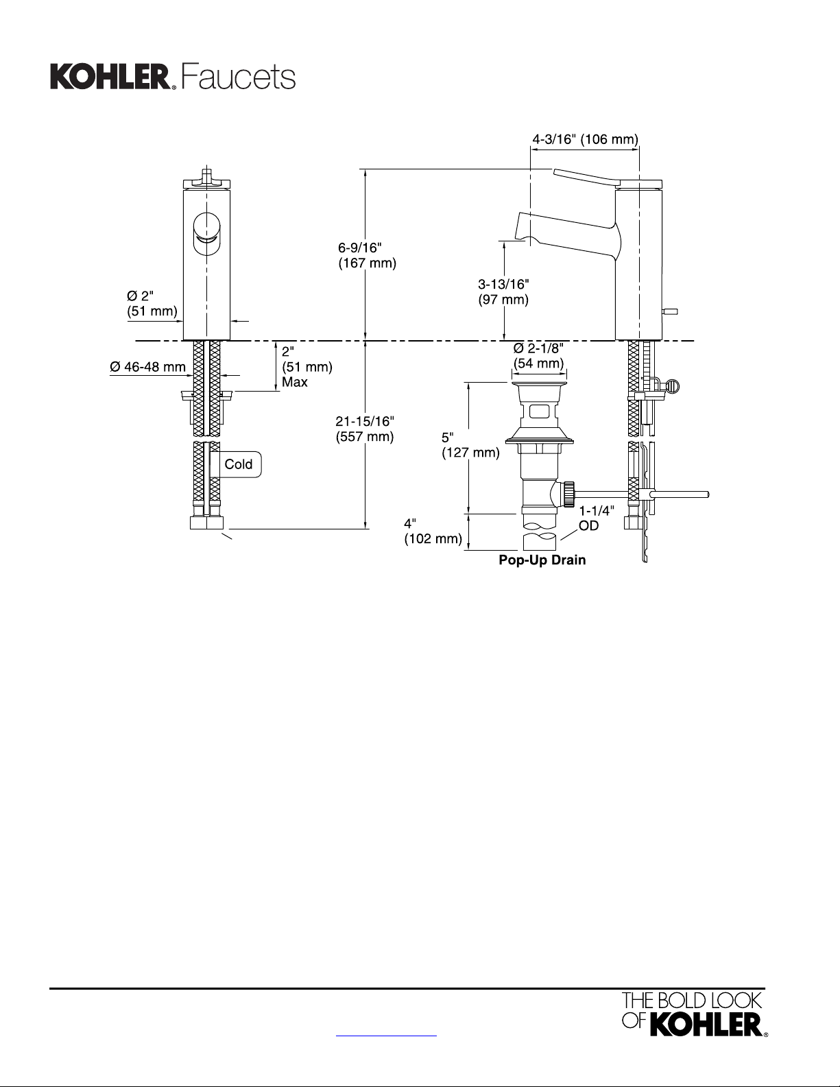
All product dimensions are nominal.
Cast BrassValve body:
YESDrain included:
YESDrain with overflow:
YESDrain tailpiece
included:
Spout:
4-7/8" (124 mm)Spout reach:
3-5/16" (84 mm)Handle clearance:
Faucet:
1.2 gal/min (4.5 l/min)Flow rate:
60 psi (4.1 bar)Pressure:
Notes
Install this product according to the installation
instructions.
ADA, OBC, CSA B651 compliant when installed
to the specific requirements of these regulations.
USA/Canada: 1-800-4KOHLER (1-800-456-4537)
Kohler Co. reserves the right to make revisions without notice to product specifications.
For the most current Specification Sheet, go to www.kohler.com.
7-13-2017 15:00