
Archer
Features
•
Bask® heated surface creates spa-like relaxation with
soothing warmth on your back, shoulders, and neck.
•
Three heat settings allow you to customize the surface
temperature.
•
Single-speed whirlpool offers performance and value with 8
fully adjustable jets.
•
Hydromassage flow and direction can be controlled at each
jet.
•
Comfort Depth® design offers a convenient 19" step-over
height while retaining the same depth as a standard 21" bath.
•
Integral lumbar support.
•
Slotted overflow allows for deep soaking.
•
Textured bottom surface.
•
Coordinates with other products in the Archer collection.
Material
•
Acrylic.
Hydrotherapy
•
Whirlpool.
Installation
•
Reversible drain.
•
Drop-in.
Required Products/Accessories
K-7271 Brass Slotted Overflow Bath Drain
or
K-7272 PVC Slotted Overflow Bath Drain
Recommended Products/Accessories
K-24916 Wireless Music Kit
K-23726 Drain treatment
K-23732 Tub & shower cleaner
Codes/Standards
ASME A112.19.7/CSA B45.10
CSA B45.5/IAPMO Z124
UL 1795
CSA C22.2 No. 218.2
ADA
ICC/ANSI A117.1
KOHLER® Plastic Baths and
Receptors Lifetime Limited
WarrantyKOHLER® Hydrotherapy
Components Five-Year Limited
Warranty
See website for detailed warranty information.
Available Colors/Finishes
Color tiles intended for reference only.
Color Code Description
0 White
96 Biscuit
NY Dune
95 Ice™ Grey
G9 Sandbar
33 Mexican Sand™
K4 Cashmere
58 Thunder™ Grey
7 Black Black™
60" x 30" drop-in whirlpool bath w/ Bask
K-1947-W1
®
®
1-800-4KOHLER (1-800-456-4537)
Kohler Co. reserves the right to make revisions without notice to product specifications.
For the most current Specification Sheet, go to www.kohler.com.
5-29-2021 16:18 - US/CA

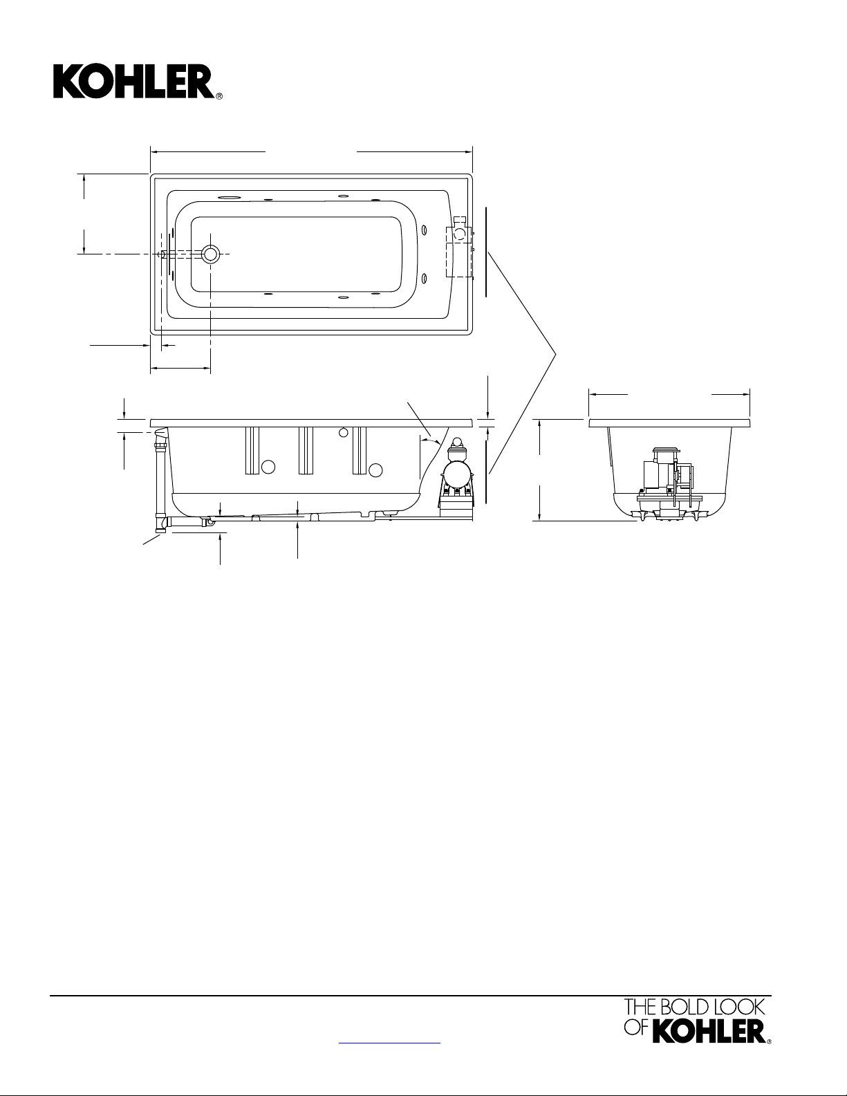
Archer
No change in measurements if connected
with drain illustrated. (K-7272)
1-1/2"
Bath Drain
2-1/2"
(64 mm)
15"
(381 mm)
1-1/4"
(32 mm)
60" (1524 mm)
11-1/4"
(286 mm)
Lumbar
Angle 24°
Pump/Control Access
30" (762 mm) W x 15" (381 mm) H
30" (762 mm)
1-1/2"
(38 mm)
4-1/8"
(105 mm)
3/4"
(19 mm)
19"
(483 mm)
Required Electrical Service
One dedicated circuit required, protected with Class A GroundFault Circuit-Interrupter (GFCI). Outside North America, this
device may be known as a Residual Current Device (RCD).
Pump, Heated
Surface:
120 V, 15 A, 60 Hz
Technical Information
All product dimensions are nominal.
Installation: Drop-in
Basin area, bottom: 45-1/8" x 19-11/16" (1146 mm x
500 mm)
Basin area, top: 52-1/8" x 22-1/16" (1324 mm x 560 mm)
Weight: 108 lbs (49 kg)
Minimum floor load: 48.7 lbs/ft² (237.8 kg/m²)
Water depth: 15-1/8" (384 mm)
Water capacity: 57 gal (215.8 L)
Cutout: Drop-in, 58-1/2" x 28-1/2" (1486 mm x
724 mm) with () radius corners
Electrical component
rating:
Pump: 120 V, 7 A, 60 Hz
Heated Surface: 120 V, 0.5 A, 60 Hz, 65
W
Pump speed: Variable
Notes
Measure your actual product for rough-in
details.
Install this product according to the installation
instructions.
The hot water supply should be 70% of the
capacity of the bath or greater. Installations will
vary.
Provide one grounded electrical outlet within
24" (610 mm) of each component.
ADA compliant when installed to the specific
requirements of these regulations.
60" x 30" drop-in whirlpool bath w/ Bask
K-1947-W1
®
®
1-800-4KOHLER (1-800-456-4537)
Kohler Co. reserves the right to make revisions without notice to product specifications.
For the most current Specification Sheet, go to www.kohler.com.
5-29-2021 16:18 - US/CA