
Mariposa
Features
•
Bask® heated surface creates spa-like relaxation with
soothing warmth on your back, shoulders, and neck.
•
Three heat settings allow you to customize the surface
temperature.
•
Hourglass shape adds style and elegance to your bathroom.
•
Integral apron.
•
Integral flange helps prevent water from seeping behind wall
and simplifies alcove installation.
•
Textured bottom surface.
Material
•
Acrylic.
Installation
•
Left drain.
•
Alcove.
Recommended Products/Accessories
K-7161-AF 1-1/2" adjustable pop-up drain above- or throughfloor
K-24916 Wireless Music Kit
K-37380 30" Rough-in Cable Bath Drain
K-37383 Rough-in cable bath drain, PVC, 30" cable with
tubing
K-23726 Drain treatment
K-23732 Tub & shower cleaner
K-7265 Brass toe tap bath drain
K-37386 rough-in cable drain, PVC, 30" cable
K-7166-AF Bath Drain
Codes/Standards
CSA B45.5/IAPMO Z124
ASTM E162
ASTM E662
UL 1795
CSA C22.2 No. 218.2
KOHLER® Plastic Baths and
Receptors Lifetime Limited
WarrantyKOHLER® Hydrotherapy
Components Five-Year Limited
Warranty
See website for detailed warranty information.
Available Colors/Finishes
Color tiles intended for reference only.
Color Code Description
0 White
96 Biscuit
NY Dune
G9 Sandbar
®
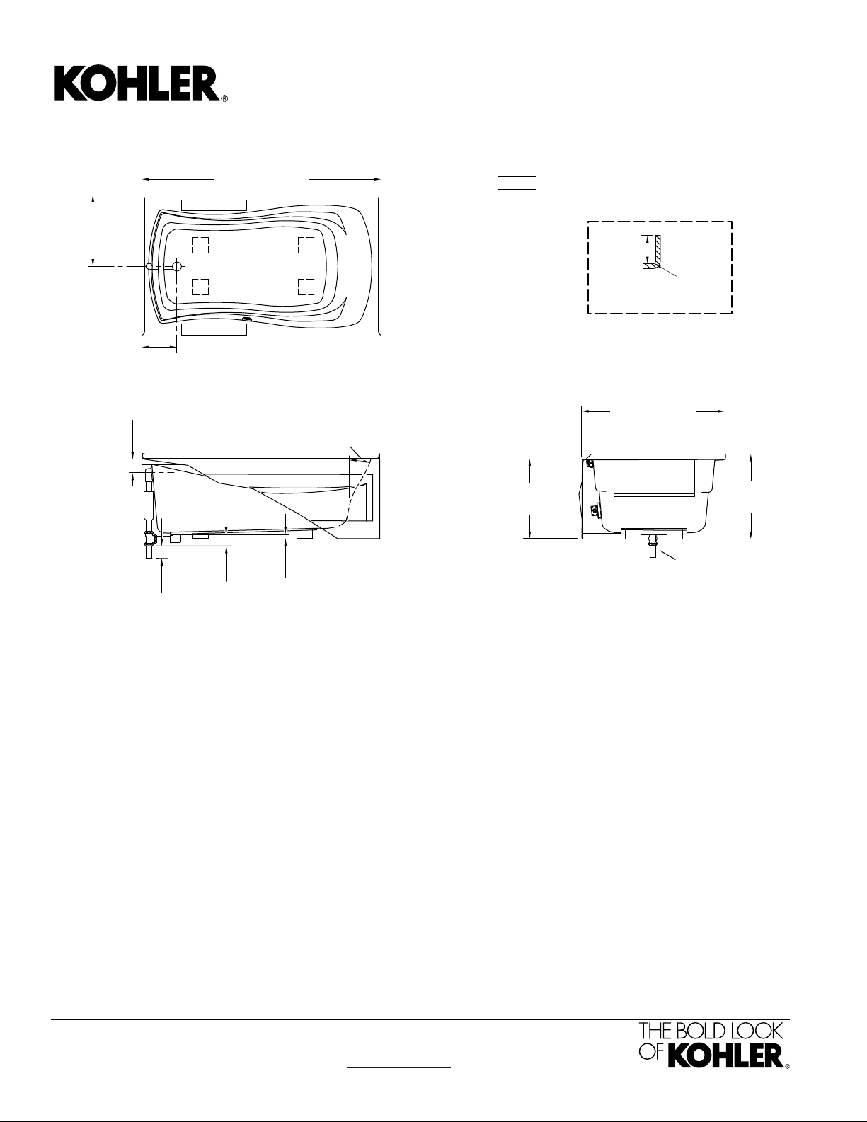
66" x 36" alcove bath w/Bask® heated surface
K-1229-LAW
1-800-4KOHLER (1-800-456-4537)
Kohler Co. reserves the right to make revisions without notice to product specifications.
For the most current Specification Sheet, go to www.kohler.com.
5-29-2021 15:00 - US/CA

Mariposa
No change in measurements if connected with
drain illustrated. (K-7161-AF)
Recommended Faucet Location
18"
(457 mm)
3-1/2"
(89 mm)
8-11/16"
(221 mm)
66" (1676 mm)
3"
(76 mm)
2-7/8"
(73 mm)
1"
(25 mm)
20"
(508 mm)
36" (914 mm)
1-1/2"
Bath Drain
1-1/4"
(32 mm)
1/2" (13 mm)
R. Max
Integral Flange Detail
Lumbar
Angle 38°
21-1/4"
(540 mm)
Required Electrical Service
One circuit required, protected with Class A Ground-Fault
Circuit-Interrupter (GFCI). Outside North America, this device
may be known as a Residual Current Device (RCD).
Heated Surface: 120 V, 15 A
Technical Information
All product dimensions are nominal.
Installation: Three-wall alcove
Drain location: Left
Basin area, bottom: 48" x 24" (1219 mm x 610 mm)
Basin area, top: 59" x 30" (1499 mm x 762 mm)
Weight: 65 lbs (29.5 kg)
Minimum floor load: 39 lbs/ft² (190.4 kg/m²)
Water depth: 14" (356 mm)
Water capacity: 67 gal (253.6 L)
Cutout: Drop-in, 58" x 34" (1473 mm x 864 mm)
Electrical component
rating:
Heated Surface: 120 V, 0.5 A, 60 Hz, 65
W
Minimum flat for
door:
1-15/16" (49 mm)
Notes
Measure your actual product for rough-in
details.
Install this product according to the installation
instructions.
The hot water supply should be 70% of the
capacity of the bath or greater. Installations will
vary.
If installing a rim-mount faucet, make sure there
is no interference above or below the deck
before drilling any holes.
®
66" x 36" alcove bath w/Bask® heated surface
K-1229-LAW
1-800-4KOHLER (1-800-456-4537)
Kohler Co. reserves the right to make revisions without notice to product specifications.
For the most current Specification Sheet, go to www.kohler.com.
5-29-2021 15:00 - US/CA