
FACTORY PARTS CATALOG
RANGE
PRODUCT NO. BASE MODEL NO. FACTORY NO. COLOR MARKET
PLEB27S8CCA PLEB27S8C 38257793G30S1 stainless North America
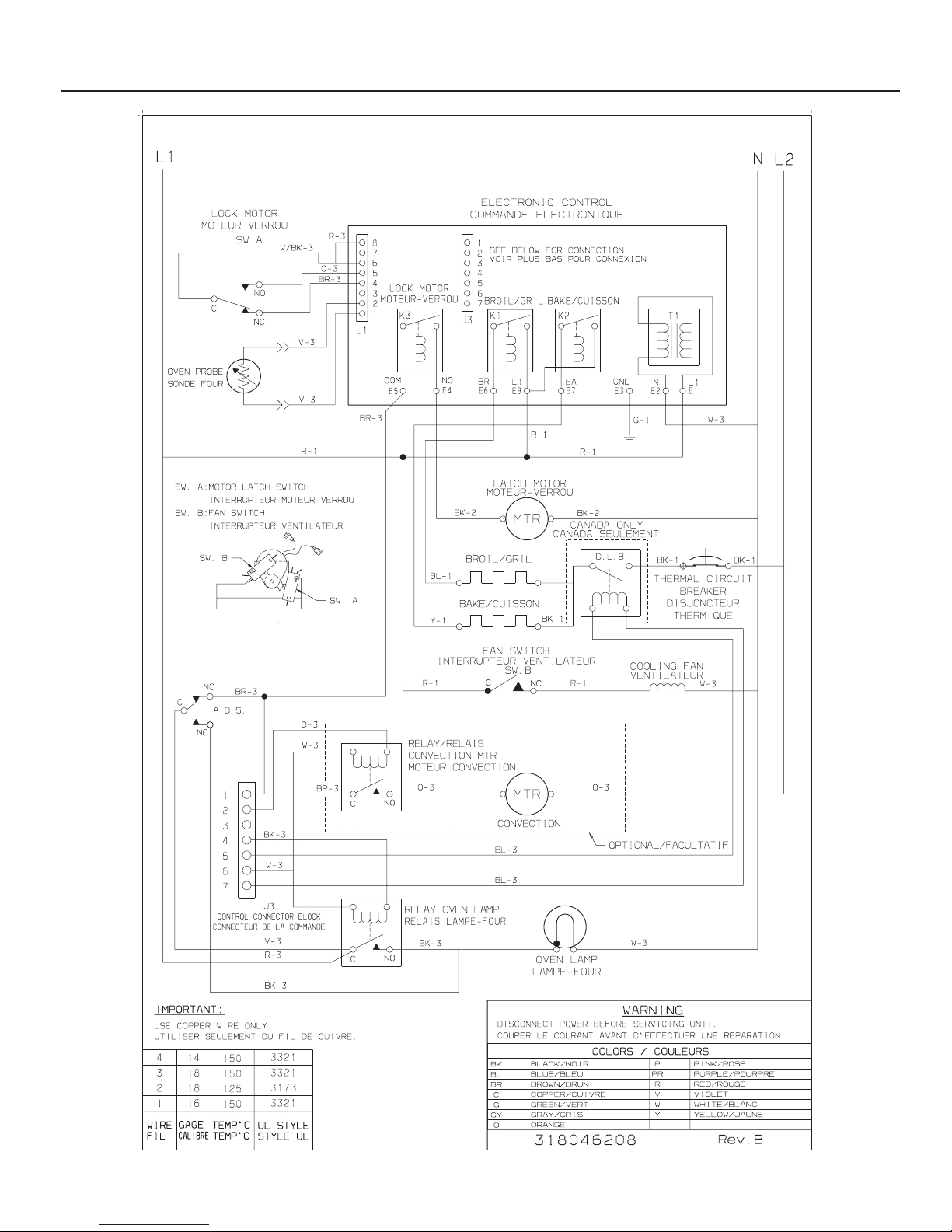
WIRING DIAGRAM - # 318046208
OWNER’S GUIDE - # 318200919
TIMER INSTRUCTION SHEET - # 318200181
INSTALLATION INSTRUCTIONS - # 318201507
ELECTRIC
WALL OVEN
ELECTROLUX HOME PRODUCTS, INC.
P.O. BOX 212378, Augusta, GA 30917
Publication No.
5995379368
021007
-EN/SERVICE /ECL
377
©2002 Electrolux Home Products, Inc.
All rights reserved
Model No.
PLEB27S8C

Publication No. PLEB27S8CCA
5995379368
CONTROL PANEL
10/02 2

PLEB27S8CCA Publication No.
5995379368
CONTROL PANEL
POS. NO PART NO DESCRIPTION
19 318030215 Panel,control ,black ,back
19A 318192802 Panel,control ,stainless ,front
20 # 318010700 Clock/Timer,EOC
21 318028330 Trim,canopy
23 318111602 Bracket,clock & relay
42 318027310 Trim,vent
78 318037200 Cover,oven vent ,stainless
79 318029602 Trim,top ,stainless steel
80 # 318111501 Relay,convection ,oven light ,(2)
96 316037700 Seal,vent cover
97 316037800 Tape,vent cover
99 5303300265 Screw,8-18 x 0.500 ,chrome
* 218490900 Cleaner,stainless steel
* 3201861 Screw,6 x 0.375
* 08002868 Screw,10-24 x 0.500 ,probe,thrm brkt ,shield,drwr,box
* 5303211311 Screw,8 x 0.500
* 5303302745 Screw,10-16x1-1/8 ,square drive
* 5303311528 Screw,oval hd sq dr ,6-20AB x 0.625 ,black
# = Functional Parts 3 10/02
* = Non-Illustrated Parts

Publication No. PLEB27S8CCA
5995379368
BODY
10/02 4

PLEB27S8CCA Publication No.
BODY
POS. NO PART NO DESCRIPTION
1 318066703 Wrapper,back and sides
2 318102001 Shield,oven top
2A 318071501 Shield,oven top
6 318025300 Rack,oven
6A 318219500 Rack,broiler pan
6B 318025200 Shelf,oven
9 5303317977 Pan,broiler
10 5303317976 Insert,broiler pan
12 # 318089913 Switch,light
14 5308011085 Receptacle,oven light
15 5303013071 Bulb/Lamp,oven light
16 3201911 Cover,oven light ,glass
17 5304400195 Retainer,light cover
37 # 316111203 Sensor,oven temp probe
41 5303310526 Cover,hinge cutout
54 5303310514 Housing,oven light
56 318145516 Trim,bodyside
58A 318133758 Insulation,oven wrapper
58B 318133749 Insulation,oven back
59 318072511 Tube,oven vent
62 # 5303310518 Terminal Block
62* 5303323144 Nut,10-32
66 # 5303322963 Element,broil
67 # 5303299718 Element,bake
68 5304403015 Support,element hanger
70 5303300142 Shield,insulation
71 318071102 Shield,rear wall
76 318056104 Front,oven
80 5303320846 Plate,oven mtg
81 318192400 Spring,oven
82 318071801 Shield,oven bottom
83 318089519 Liner,oven assy
86 5303310524 Receptacle,hinge
88 5303311222 Rod,latch
89 # 318095934 Motor,latch assy ,w/brkt & switch
89* 318120711 Switch
98 318029800 Trim,side ,inner,RH
98A 318029801 Trim,side ,inner,LH
99 318055420 Support,adjustable
103 5303316773 Trim,base ,black ,lower
103* 318028800 Trim,base ,black ,(under counter)
107 5303318711 Cover,fan
108# 318073001 Motor,fan
109 5303311203 Blade,fan
111 5303311205 Nut,fan retainer
119# 318004900 Switch,thermal
124 318076902 Box,vent
125# 5303311202 Motor,convection
125* 318142100 Washer,motor ,convection
127 5303310542 Adapter,vent tube ,with converter
128 5303311163 Bushing
129 5303311164 Spring
131 318102203 Cover,control housing
132 318101704 End,cover ,RH ,control housing
132A 318101705 End,cover ,LH ,control housing
150 318072205 Bracket,support ,LH
150A 318072204 Bracket,support ,RH
185 318014700 Spacer,oven shield
187 318013501 Tube,latch rod
188 08007817 Spacer,(6)
222 318080000 Plate,oven temp probe
263 5303322885 Spacer,fan blade
264 318143811 Shield,wire
265 318029500 Trim,bodyside ,stainless ,outer,RH
265A 318029501 Trim,bodyside ,stainless ,outer,LH
5995379368
* # 318078511 Box & wires assy
* 5303311207 Tube,protector
* 3015722 Clip-wire
* 3201861 Screw,6 x 0.375
* 08002868 Screw,10-24 x 0.500 ,probe,thrm brkt ,shield,drwr,box
* 5303211311 Screw,8 x 0.500
* 5303320422 Screw,6-20 x 5/16 ,side trim ,(4)
* 5303324184 Screw (8X5/16)
# = Functional Parts 5 10/02
* = Non-Illustrated Parts

Publication No. PLEB27S8CCA
5995379368
DOOR
10/02 6

PLEB27S8CCA Publication No.
DOOR
POS. NO PART NO DESCRIPTION
6 318073502 Shield,air wash
7 318133751 Insulation,oven door
9 318156705 Liner,oven door
10 5303311174 Screw,10-24 x 3/8
12 318053100 Seal,oven door
13 318187932 Stainless Panel,oven door ,w/ glass/nmplt
15 318172903 Stiffener,glass
16 318042300 Glass,oven door ,heat barrier ,(2)
17 318042000 Spacer,glass
18 318053000 Seal,rope
22 5303310511 Bar,glass retainer
23 5303320452 Hinge,oven door
31 318065102 Latch,door
39 318197900 Handle,oven door ,stainless
54 5303300265 Screw,8-18 x 0.500 ,chrome
59 3202113 Plug,button
* 218490900 Cleaner,stainless steel
* 5303300414 Spacer,cork & rubber
* 5303211311 Screw,8 x 0.500
* 5303302745 Screw,10-16x1-1/8 ,square drive
* 5303323277 Screw (8-18X13/32)
5995379368
# = Functional Parts 7 10/02
* = Non-Illustrated Parts

Publication No. PLEB27S8CCA
5995379368
WIRING DIAGRAM
10/02 8