Οδηγίες χρήσεως
0449 435 160 091113
| ΕΛΛΗΝΙΚΑ | ΑΑ | 4 |
|---|
Διατηρείται το δικαίωμα τροποπίησης προδιαγραφών Χωρίς προειδοποίηση.
In accordance with
the LV-Directive 2006/95/EC, the Machinery Directive 2006/42/EC, the EMC Directive 2004/108/EC
Feeder of welding wire in combination with movable Welding Automats and stationary Welding heads, used with control box PEK
ESAB
Type designation etc. A2 Multitrac, A2 Tripletrac, A2 S-series, A6 Mastertrac, A6 Mastertrac Tandem, A6 S- series
Name, address, telephone No, telefax No:
ESAB AB, Welding Equipment Esabvägen, SE-695 81 LAXÅ, Sweden Phone: +46 584 81 000, Fax: +46 584 411 924
EN 60974-5, Arc welding equipment – Part 5: Wire feeders EN 12100-2, Safety of machinery – Part 2: Technical principles EN 60974-10, Arc welding equipment – Part 10: Electromagnetic compatibility (EMC) requirements
Additional information: Restrictive use, Class A equipment, intended for use in locations other than residential
By signing this document, the undersigned declares as manufacturer, or the manufacturer's authorised representative established within the EEA, that the equipment in question complies with the safety requirements stated above.
Date / Datum Laxå 2009-09-15
Signature / Underskri
Kent Eimbrodt Clarification
Position / Befattning Global Director Equipment and Automation
| 1 | ΑΣΦ | ΑΛΕΙΑ | 5 |
|---|---|---|---|
| 2 | ΕΙΣΑ | ΓΩΓΗ | 8 |
| 2.1 | Γενικά | 8 | |
| 2.2 | Τεχνική ηλεκτροσυγκόλλησης | 8 | |
| 2.3 | Ορισμοί | 8 | |
| 2.4 | Συγκόλληση σε οριζόντιο επίπεδο αντίστοιχα | 8 | |
| 2.5 | Τεχνικά στοιχέια | 9 | |
| 2.6 | Κύρια εξαρτήματα A2TF K1 (SAW) | 9 | |
| 2.7 | Περιγραφή κύριων εξαρτημάτων | 10 | |
| 3 | ΕΓΚ | ΑΤΑΣΤΑΣΗ | 11 |
| 3.1 | Γενικά | 11 | |
| 3.2 | Συναρμολόγηση | 11 | |
| 3.3 | Ρύθμιση πέδησης πλήμνης | 11 | |
| 3.4 | Συνδέσεις | 12 | |
| 4 | ΛΕΙΤ | ΟΥΡΓΙΑ | 13 |
| 4.1 | Γενικά | 13 | |
| 4.2 | Φόρτωση του σύρματος ηλεκτροσυγκόλλησης (A2TF K1) | 14 | |
| 4.3 | Αλλαγή ρολλό παροχής (A2TF K1) | 14 | |
| 4.4 |
Εξοπλισμός ηλεκτρικής επαφής για ηλεκτροσυγκολλήσεις
τύπου βυθιζόμενου τόξου |
15 | |
| 4.5 | Αναπλήρωση με σκόνη συγκόλλησης | 15 | |
| 4.6 | Μεταφορά του Αυτόματου Συγκολλητικού Μηχανήματος | 16 | |
| 5 | ΣΥΝ | ΤΗΡΗΣΗ | 17 |
| 5.1 | Γενικά | 17 | |
| 5.2 | Καθημερινά | 17 | |
| 5.3 | Περιοδική | 17 | |
| 6 | ANA | ΖΗΤΗΣΗ ΣΦΑΛΜΑΤΩΝ | 18 |
| 6.1 |
Γενικά |
18 | |
| 6.2 | ΠΙΘΑΝΑ ΣΦΑΛΜΑΤΑ | 18 | |
| 7 | ПАР | ΑΓΓΕΛΙΑ ΑΝΤΑΛΛΑΚΤΙΚΩΝ | 18 |
| 77 | 10 | ||
| 27 | 13 | ||
| A | ΈΣΟ | ҮАР | 20 |
| П | ΠΑΚΑ | ΑΣ ΑΝΤΑΛΛΑΚΤΙΚΩΝ ΜΕΡΩΝ | 21 |
Οι χρήστες αυτόματου εξοπλισμού συγκόλλησης ESAB έχουν την απόλυτη αυθύνη να εξαsφαλίζουν ότι, οποeοσδήποτε εργάζεται με ή κοντά στον εξοπλισμό, λαμβάνει όλα τα σχετικά μέτρα ασφαλείας. Τα μέτρα ασφάλειας πρέπει να πληρούν τις απαιτήσεις που ισχύουν γι' αυτόν τον τύπο εξοπλισμού συγκόλλησης. Οι ακόλουθες συστάσεις μπορεί να θεωρηθεί ως συμπληρωματικές των κανονικών προδιαγραφών που ισχύουν για τον τόπο εργασίας.
Όλες οι εργασίες πρέπει να εκτελούνται από εκπαιδευμένο προσωπικό, πλήρως εξοικειωμένο με τη λειτουργία του εξοπλισμού συγκόλλησης. Ένας λανθασμένος χειρισμός ενδέχεται να οδηγήσει σε επικίνδυνες καταστάσεις, οι οποίες μπορεί να προκαλέσουν τραυματισμό του χειριστή και ζημία στον εξοπλισμό.
Εχετε υπόψην τα εξής:
Μη χρησιμοποιείτε γάντια ασφαλείας κατά την αντικατάσταση σύρματος, ράουλων τροφοδότησης και μπομπίνων σύρματος.
ΣΥΓΚΟΛΛΗΣΗ ΚΑΙ ΚΟΠΗ ΜΕ ΗΛΕΚΤΡΙΚΟ ΤΟΞΟ ΜΠΟΡΕΙ ΝΑ ΠΡΟΚΑΛΕΣΟΥΝ ΤΡΑΥΜΑΤΙΣΜΟ ΣΕ ΑΛΛΑ ΑΤΟΜΑ. ΝΑ ΕΙΣΤΕ ΠΡΟΣΕΧΤΙΚΟΙ ΟΤΑΝ ΕΚΤΕΛΕΙΤΕ ΣΥΓΚΟΛΛΗΣΗ. ΖΗΤΗΣΤΕ ΑΠΟ ΤΟΝ ΕΡΓΟΛΟΤΗ ΣΑΣ ΟΔΗΓΙΕΣ ΑΣΦΑΛΟΥΣ ΕΡΓΑΣΙΑΣ, ΟΙ ΟΠΟΙΕΣ ΘΑ ΠΡΕΠΕΙ ΝΑ ΒΑΣΙΖΟΝΤΑΙ ΣΤΟ ΕΓΧΕΙΡΙΔΙΟ ΑΠΟΦΥΓΗΣ ΚΙΝΔΥΝΩΝ ΤΟΥ ΚΑΤΑΣΚΕΥΑΣΤΗ.
Οι σπίθες συγκόλλησης μπορεί να προκαλέσουν πυρκαγιά. Πάντα να βεβαιώνεστε ότι δεν υπάρχουν κοντά σας εύφλεκτα υλικά.
ΔΙΑΒΑΣΤΕ ΚΑΙ ΚΑΤΑΝΟΗΣΤΕ ΤΙΣ ΟΔΗΓΙΕΣ ΤΟΥ ΕΓΧΕΙΡΙΔΙΟΥ ΠΡΙΝ ΑΠΟ ΤΗΝ ΕΓΚΑΤΑΣΤΑΣΗ Ή ΧΡΗΣΙΜΟΠΟΙΗΣΗ.
Ο αυτόματος συγκολλητής A2 Tripletrac και προορίζεται για SAW-συγκόλληση κατ'άκρον και συγκόλληση πληρώσεως
Επίσης προορίζονται για χρήση σε συνδυασμό με κιβώτια ελέγχου PEK ή A2 Welding Control Unit ( PEI ) και τις πηγές ισχύος LAF ή TAF της ESAB.
• Ελαφρές εργασίες ηλεκτροσυγκόλλησης βυθιζόμενου τόξου
Ελαφρές εργασίες ηλεκτροσυγκόλλησης με βυθιζόμενο τόξο, με σύνδεσμο διαμέτρου 20 χιλ. ο οποίος επιτρέπει τη διέλευση φορτίου 800 A (100%).
Αυτή η μορφή μπορεί να εξοπλισθεί με ρολά τροφοδοσίας για συγκόλληση μονού. Για σωληνωτό σύρμα υπάρχουν ειδικά ρολά τροφοδοσίας με εγκοπές τα οποία εγγυούνται σίγουρη τροφοδοσία του σύρματος χωρίς παραμόρφωση λόγω της μεγάλης πίεσης τροφοδοσίας.
| Συγκόλληση τύπου SAW |
Κατά τη συγκόλληση προστατεύεται το τόξο με
επικάλυψη σκόνης συγκόλλησης . |
|---|---|
|
Συγκόλληση SAW
ελαφρού τύπου |
Αυτή η μορφή επιτρέπει μείωση του φορτίου. |
Τα αυτόματα μηχανήματα συγκόλλησης είναι σχεδιασμένα για οριζόντια συγκόλληση.
| A2TF K1 (SAW) | |
|---|---|
| Τάση ρεύματος | 42 V AC |
| Ονομαστικό φορτίο 100%: | 800 A |
| Διαστάσεις ηλεκτροδίου: | |
| συμαγές απλό σύρμα | 1,6-4,0 mm |
| σωληνωτό σύρμα | 1,6-4,0 mm |
| Ταχύτητα τροφοδότησης ηλεκτροδίου, μαχ | 9 m/min |
| Ροπή πέδησης (φρεναρίσματος ) πλήμνης | 1,5 Nm |
| Ταχύτητα μετακίνησης | 0,1-2,0 m/min |
| Ακτίνα περιστροφής σε κυκλική συγκόλληση , μιν | 1500 mm |
| Διάμετρος σωλήνα σε εσωτερική συγκόλληση άκρου, μιν | 1100 mm |
| Βάρος ηλεκτροδίου, μαχ | 30 kg |
|
Χωρητικότητα δοχείου σκόνης συγκόλλησης
(Μή γεμίζετε με προθερμασμένη σκόνη) |
6 | |
| Βάρος (χωρίς ηλεκτρόδιο και σκόνη συγκόλλησης ) | 68 kg |
| Κατηγορία περιβλήματος προστασίας | IP10 |
| ΕΜC ταξινόμηση | Κατηγορία Α |
ra A2TF K1 (SAW) ns 9 9 5 12
Βλ. σελ.10 . για περιγραφή των κύριων εξαρτημάτων.
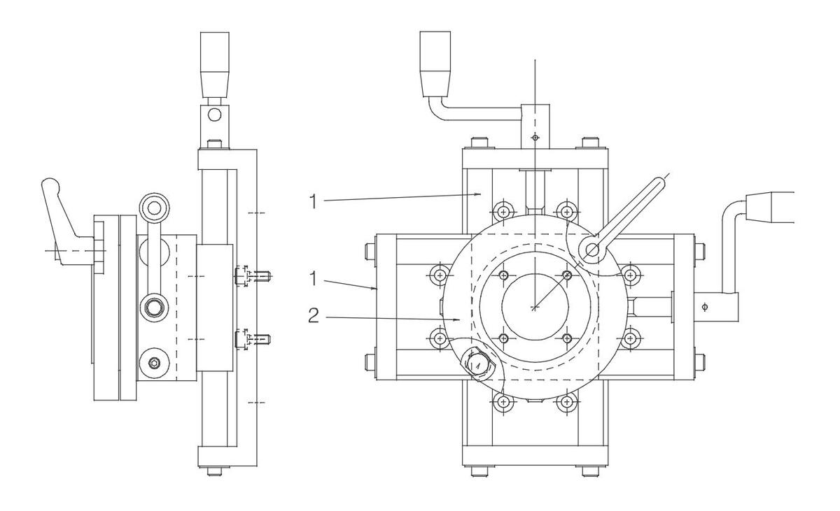
Το Βαγόνι είναι τρίτροχης κίνησης.
Για χειροκίνητη μεταφορά το βαγόνι ελευθερώνεται από τον ασφαλιστικό μοχλό (1).
Η κατεύθυνση μετακίνησης ρυθμίζεται από το τιμόνι (2).
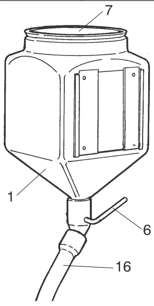
Στο φορέα μοντάρονται μεταξύ άλλων κιβώτιο χειρισμού, μηχανισμός τροφοδότησης σύρματος και δοχείο σκόνης.
Η μονάδα χρησιμοποιείται για οδήγηση και τροφοδότηση συγκολλητικού σύρματος μέσα στο συνδετικό σωλήνα/συνδετήρα.
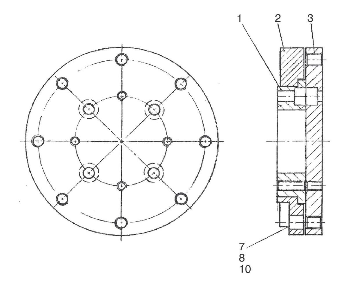
Η οριζόντια ή κάθετη ρύθμιση της κεφαλής συγκόλλησης ρυθμίζεται με ολισθητήρα τοποθετημένο εν σειρά. Η γωνιακή κίνηση μπορεί ελεύθερα να ρυθμιστεί με τον περιστροφικό ολισθητήρα.
Μεταφέρει ηλεκτρική τάση στο σύρμα κατά τη διάρκεια της συγκόλλησης.
Ο κινητήρας τροφοδότησης σύρματος χρησιμοποιείται για τροφοδότηση του συγκολλητικού σύρματος.
Η ακίδα οδηγός χρησιμοποιείται για τον προσδιορισμό θέσης της κεφαλής συγκόλλησης στην ένωση.
Το συλλίπασμα γεμίζεται στο δοχείο συλλιπάσματος και από εκεί μεταφέρεται στο τεμάχιο εργασίας με το σωλήνα συλλιπάσματος.
Η ποσότητα συλλιπάσματος που στάζει κάτω ελέγχεται από μια βαλβίδα συλλιπάσματος τοποθετημένη στο δοχείο συλλιπάσματος.
Βλ. "Γέμισμα συλλιπάσματος " στη σελ. 15.
PEK βλ. οδηγία χρήσεως 0460 948 xxx, 0460 949 xxx, 0459 839 036. A2 Welding Controll Unit ( PEI ) βλ. οδηγία χρήσεως 0449 331 xxx.
Με το αλφάδι ελέγχει κανείς ότι το αυτόματο συγκολλητίκο είναι οριζόντια.
Η εγκατάσταση πρέπει να εκτελείται από επαγγελματία.
Επειδή στα περιστρεφόμενα μέρη διατρέχετε κίνδυνο να μαγκώσετε τα δάκτυλά σας, γι' αυτό να προσέχετε πολύ.
Το τύμπανο σύρματος (1) είναι τοποθετημένο στην πλήμνη πέδησης (2).
Για να προλάβετε την ολίσθηση της τροχαλίας από την πλήμνη: ασφαλίστε την τροχαλία με την κόκκινη μπετούγια, όπως δείχνει η προειδοποιητική ετικέτα που βρίσκεται δίπλα στην πλήμνη.
Ο αφαλός ρυθμίζεται όταν παραδίδεται. Αν απαιτείται επαναρύθμιση, ακολουθήστε τις παρακάτω οδηγίες . Ρυθμίστε τον αφαλό του φρένου έτσι ώστε το σύρμα να είναι λίγο χαλαρό όταν σταματά η τροφοδότηση σύρματος.
Γυρίστε τα ελατήρια δεξιά για να μειώσετε τη ροπή πέδησης.
Γυρίστε τα ελατήρια αριστερά για να αυξήσετε τη ροπή πέδησης . Σημ: Γυρίστε το ίδιο και τα δύο ελατήρια.
Προσοχή: Εχετε διαβάσει και καταλάβει τις οδηγίες ασφάλειας ? Αν όχι, δεν επιτρέπεται να κάνετε χειρισμό του μηχανήματος!
Πριν την έναρξη της συγκόλλησης, ελέγξτε ότι είναι συνδεμένο το καλώδιο επιστροφής. Βλ.σελ. 12.
7 Λιευθύνετε το σύομα ομθμίζοντας ανάλονα το κομμπί (5)
Χρησιμοποιήστε κεφαλή συγκόλλησης A2TF K1 (SAW) όπου συμπεριλαμβάνονται τα παρακάτω:
Σφίξτε τη μύτη ηλεκτρικής επαφής ( 3 ) με ένα κλειδί εξασφαλίζοντας καλή ηλεκτρική επαφή.
Η κάλυψη με σκόνη συγκόλλησης πρέπει να είναι επαρκής έτσι ώστε να μην λαμβάνει χώρα διείσδυση του τόξου.
ΠΡΟΣΟΧΗ! Σε ανύψωση του αυτόματου συγκολλητικού πρέπει να χρησιμοποιηθεί η οπή ( 3 ).
Όλες οι μορφές εγγύησης που παρέχει ο προμηθευτής παύουν να ισχύουν αν στο διάστημα που διαρκεί η εγγύηση ο πελάτης επιχειρήσει να διορθώσει τυχόν λάθη του μηχανήμτος.
ΠΡΟΣΟΧΗ! Πριν να κάνετε οποιαδήποτε συντήρηση, βεβαιωθείτε ότι η τάση του δικτύου είναι αποσυνδεδεμένη.
Για τη συντήρηση του κουτιού χειρισμού ΡΕΚ μελετήστε τις οδηγίες χρήσης 0460 948 xxx, 0460 949 xxx, 0459 839 036.
Για τη συντήρηση του κουτιού χειρισμού PEI μελετήστε τις οδηγίες χρήσης 0449 331 xxx.
| 1. Σύμπτωμα |
Η οθόνη ενδείξεων παρουσιάζει μεγάλες εναλλαγές τιμών αμπέρ
και βόλτ |
|---|---|
| Αίτιο 1.1 |
Τα τακάκια επαφής ή το στόμιο είναι φθαρμένα ή έχουν λάθος
μέγεθος . |
| Διόρθωση | Αντικαταστήστε τα τακάκια ή το στόμιο. |
| Αίτιο 1.2 | Η πίεση στο ρολό τροφοδότησης δεν είναι ικανοποιητική. |
| Διόρθωση | Αυξήστε την πίεση στα ρολά τροφοδότησης . |
| 2. Σύμπτωμα | Ακανόνιστη τροφοδότησης ηλεκτρόδιου |
| Αίτιο 2.1 | Η πίεση στο ρολό τροφοδότησης είναι ρυθμισμένη λάθος . |
| Διόρθωση | Αλλάξτε την πίεση των ρολών. |
| Αίτιο 2.2 | Λάθος διαστάσεις ρολών τροφοδότηση. |
| Διόρθωση | Αντικαταστήστε τα ρολά. |
| Аі́тіо 2.3 | Τα κανάλια των ρολών τροφοδότησης είναι φθαρμένα. |
| Διόρθωση | Αντικαταστήστε τα ρολά. |
| 3. Σύμπτωμα | Τα καλώδια συγκόλλησης υπερθρμαίνονται |
| Аі́тіо 3.1 | Κακή ηλεκτρική σύνδεση. |
| Διόρθωση | Καθαρίστε και σφίξτε όλες τις ηλεκτρικές συνδέσεις . |
| Аі́тіо 3.2 | Τα καλώδια συγκόλλησης είναι λεπτότερα απ΄ όσο χρειάζεται. |
| Διόρθωση | Αυξήστε τα συγκόλλησης διαστάσεις ή χρησιμοποιήστε παράλληλα καλώδια. |
Τα ανταλλακτικά παραγγέλλονται μέσω του πλησιέστερου αντιπροσώπου της ESAB, βλέπετε το οπισθόφυλλο. Όταν παραγγέλλετε ανταλλακτικά, παρακαλούμε αναφέρετε τον τύπο και τον αριθμό σειράς του μηχανήματος, καθώς και ονομασία και τον αριθμό ανταλλακτικού όπως αναγράφονται στον κατάλογο ανταλλακτικών, στη σελίδα 21. Έτσι απλοποιείται η διαδικασία αποστολής και εξασφαλίζεται ή παράδοση του σωστού ανταλλακτικού.
A2TF K1
| Recommended adjusting | ||||
|---|---|---|---|---|
| Measure | Butt jonit | Fillet jonit | ||
| А | 165 mm | 165 mm | ||
| В | 668 mm | 668 mm | ||
| С | 455 mm | 455 mm | ||
Utility light, complete: 0449443880
A2TF K1
Edition 091113
| Ordering no. | Denomination | Notes | ||
|---|---|---|---|---|
| 0461 236 880 | Automatic welding machine | A2TF K1 Tripletrac | ||
| 0449 430 881 | Automatic welding machine | A2 Tripletrac with control box PEI | ||
|
ltem
no. |
Qty | Ordering no. | Denomination | Notes |
|---|---|---|---|---|
| 0461 236 880 | Automatic welding machine | A2TF K1 Tripletrac | ||
| 1 | 1 | 0449 400 882 | Carriage | |
| 2 | 1 | 0449 154 880 | Carrier | |
| 3 | 1 | 0449 152 880 | Slide travel kit | 90 mm |
| 4 | 1 | 0449 150 900 | Wire feed unit complete (right) | 38 rpm |
| 5 | 1 | 0460 504 880 | Control box | PEK, see separate manual |
| 6 | 1 | 0449 153 900 | Cable kit | 1,6 m |
| 6:1 | 1 | 0460 909 881 | Pulse tranducer cable | |
| 6:2 | 1 | 0461 249 881 | Motor cable | |
| 6:3 | 1 | 0461 239 880 | Arc welding cable | |
| 7 | 1 | 0449 425 001 | Plate |
|
ltem
no. |
Qty | Ordering no. | Denomination | Notes |
|---|---|---|---|---|
| 0449 430 881 | Automatic welding machine | A2 Tripletrac | ||
| 1 | 1 | 0449 400 880 | Carriage | |
| 2 | 1 | 0449 154 880 | Carrier | |
| 3 | 1 | 0449 152 880 | Slide travel kit | 90 mm |
| 4 | 1 | 0449 150 880 | Wire feed unit complete (right) | 38 rpm |
| 5 | 1 | 0449 330 880 | Control box | PEI, see separate manual |
| 6 | 1 | 0449 153 980 | Cable kit | 1,6 m |
| 6:2 | 1 | 0456 493 981 | Cable | |
| 6:3 | 1 | 0456 504 980 | Arc welding cable | |
| 7 | 1 | 0449 425 001 | Plate | |
| 16 | 1 | 0449 528 001 | Protection plate |
|
ltem
no. |
Qty | Ordering no. | Denomination | Notes |
|---|---|---|---|---|
| 0449 400 881 | Carriage | A2 Tripletrac PEI | ||
| 1 | 1 | 0449 418 881 | Cover | |
| 9 | 1 | 0333 087 005 | Y-flange unit | |
| 12 | 2 | 0415 857 002 | Rubber wheel | |
| 13 | 2 | 0211 102 962 | Roll pin | D 5x40 |
| 14 | 1 | 0321 220 001 | Grommet | |
| 17 | 1 | 0192 784 001 | Pin plug | 2-pole |
| 18 | 2 | 0192 784 101 | Pin | |
| 19 | 1 | 0191 998 103 | Attachment | |
| 21 | 1 | 0457 783 880 | Motor Cable | |
| 22 | 1 | 0449 403 001 | Plate | |
| 27 | 2 | 0413 366 320 | Clamp | |
| 29 | 2 | 0413 366 105 | Clamp | |
| 30 | 1 | 0413 366 112 | Clamp | |
| 31 | 1 | 0449 417 880 | Slide | |
| 36 | 1 | 0192 784 002 | Sleeve plug | 2-pole |
| 37 | 2 | 0192 784 102 | Сар | |
| 40 | 1 | 0800 185 001 | Bearing bushing | |
| 42 | 1 | 0449 427 001 | Plate | |
| 43 | 1 | 0449 089 880 | Drive unit | |
| 44 | 1 | 0449 098 880 | Shaft with eccentric | |
| 45 | 1 | 0449 099 001 | Shaft support | |
| 50 | 1 | 0333 630 001 | Locking arm adjustable | |
| 51 | 1 | 0211 102 940 | Roll pin | D 3x28 |
| 52 | 1 | 0215 701 019 | Grooved ring, | D25x1,2 |
| 53 | 1 | 0449 097 001 | Platta | |
| 54 | 1 | 0449 103 001 | Pressure screw | M16 |
| 55 | 1 | 0449 411 880 | Mounting plate compl. | |
| 57 | 1 | 0449 416 001 | Protective cover | |
| 58 | 1 | 0237 700 280 | Angle gear | |
| 59 | 1 | 0449 409 001 | Arm | |
| 60 | 1 | 0449 410 001 | Holder | |
| 61 | 1 | 0212 204 344 | Stop screw | M5x8 |
| 65 | 1 | 0449 402 001 | Wheel | |
| 66 | 1 | 0449 401 001 | Shaft | |
| 67 | 1 | 0449 404 880 | Frame compl. | |
| 68 | 1 | 0146 846 880 | Handle | |
| 69 | 1 | 0449 405 880 | Swiveling castor | |
| 74 | 1 | 0413 539 002 | Pillar rota clamp | |
| 75 | 1 | 0193 570 131 | Locking arm | |
| 78 | 1 | 0449 414 001 | Shaft | |
| 79 | 1 | 0449 412 001 | Gear wheel | |
| 80 | 1 | 0449 426 001 | Cross- type water leveler | |
| 84 | 4 | 0163 139 002 | Insulator | |
| 85 | 4 | 0162 414 002 | Insulating tube | l=17 mm |
| 87 | 1 | 0413 527 001 | Plate | 65×65 |
| 92 | 2 | 0211 102 921 | Roll pin | D 2x20 |
| 96 | 1 | 0449 423 001 | Angle |
|
ltem
no. |
Qty | Ordering no. | Denomination | Notes |
|---|---|---|---|---|
| 98 | 1 | 0449 432 001 | Brush shaft | |
| 99 | 1 | 0449 421 001 | Brush with bar | |
| 101 | 1 | 0449 526 001 | Casing plate |
|
ltem
no. |
Qty | Ordering no. | Denomination | Notes |
|---|---|---|---|---|
| 0449 400 882 | Carriage | A2 Tripletrac PEK | ||
| 1 | 1 | 0449 418 881 | Cover | |
| 9 | 1 | 0333 087 005 | Y-flange unit | |
| 12 | 2 | 0415 857 002 | Rubber wheel | |
| 13 | 2 | 0211 102 962 | Roll pin | D 5x40 |
| 14 | 1 | 0461 241 880 | Motor cable | L=1,9m |
| 15 | 1 | 0461 242 880 | Pulse transducer cable | L=2,1m |
| 19 | 1 | 0191 998 103 | Attachment | |
| 22 | 1 | 0449 403 001 | Plate | |
| 27 | 2 | 0413 366 320 | Clamp | |
| 29 | 2 | 0413 366 105 | Clamp | |
| 30 | 1 | 0413 366 112 | Clamp | |
| 31 | 1 | 0449 417 880 | Slide | |
| 40 | 1 | 0800 185 001 | Bearing bushing | |
| 42 | 1 | 0449 427 001 | Plate | |
| 43 | 1 | 0449 089 881 | Drive unit | |
| 44 | 1 | 0449 098 880 | Shaft with eccentric | |
| 45 | 1 | 0449 099 001 | Shaft support | |
| 50 | 1 | 0333 630 001 | Locking arm adjustable | |
| 51 | 1 | 0211 102 940 | Roll pin | D 3x28 |
| 52 | 1 | 0215 701 019 | Grooved ring, | D25x1,2 |
| 53 | 1 | 0449 097 001 | Plate | |
| 54 | 1 | 0449 103 001 | Pressure screw | M16 |
| 55 | 1 | 0449 411 880 | Mounting plate compl. | |
| 57 | 1 | 0449 416 001 | Protective cover | |
| 58 | 1 | 0237 700 280 | Angle gear | |
| 59 | 1 | 0449 409 001 | Arm | |
| 60 | 1 | 0449 410 001 | Holder | |
| 61 | 1 | 0212 204 344 | Stop screw | M5x8 |
| 65 | 1 | 0449 402 001 | Wheel | |
| 66 | 1 | 0449 401 001 | Shaft | |
| 67 | 1 | 0449 404 880 | Frame compl. | |
| 68 | 1 | 0146 846 880 | Handle | |
| 69 | 1 | 0449 405 880 | Swiveling castor | |
| 74 | 1 | 0413 539 002 | Pillar rota clamp | |
| 75 | 1 | 0193 570 131 | Locking arm | |
| 78 | 1 | 0449 414 001 | Shaft | |
| 79 | 1 | 0449 412 001 | Gear wheel | |
| 80 | 1 | 0449 426 001 | Cross- type water leveler | |
| 84 | 4 | 0163 139 002 | Insulator | | |
| 85 | 4 | 0162 414 002 | Insulating tube | l=17 mm |
| 87 | 1 | 0413 527 001 | Plate | 65x65 |
| 92 | 2 | 0211 102 921 | D 2x20 | |
| 96 | 0449 423 001 | |||
| 98 | 0449 432 001 | Brush shaft | ||
| 99 | 0449 421 001 | Brush with bar | ||
| 101 | 1 | 0449 526 001 | Casing plate |
|
ltem
no. |
Qty | Ordering no. | Denomination | Notes |
|---|---|---|---|---|
| 0449 154 880 | Carrier | |||
| 4 | 1 | 0413 671 001 | Chain attachment | |
| 5 | 1 | 0413 597 001 | Safety chain | |
| 11 | 6 | 0163 139 002 | Bushing | |
| 12 | 6 | 0162 414 002 | Insulating tube | |
| 14 | 1 | 0413 528 001 | Column | |
| 15 | 1 | 0413 540 001 | Clamp | |
| 16 | 1 | 0413 530 880 | Arm | |
| 17 | 1 | 0146 967 880 | Brake hub | |
| 18 | 1 | 0413 532 001 | Attachment | |
| 20 | 1 | 0413 317 002 | Handle | |
| 22 | 2 | 0156 442 002 | Clamp screw | R21 M8 |
| 24 | 1 | 0334 185 886 | Box girder beam complete | |
| 26 | 1 | 0413 525 001 | Insulating tube | |
| 27 | 1 | 0413 317 001 | Handle | |
| 30 | 2 | 0218 301 113 | Lifting eye bolt | |
| 31 | 2 | 0162 414 004 | Insulating tube |
B - E
|
ltem
no. |
Qty | Ordering no. | Denomination | Notes |
|---|---|---|---|---|
| 0449 152 880 | Slide travel kit | Manual | ||
| 1 | 2 | 0413 518 880 | Slide | 90 mm |
| 2 | 1 | 0413 506 880 | Circular slide |
| ltem | Qty | Orderingno. | Denomination | Remarks |
|---|---|---|---|---|
| 0413 518 880 | Slide | |||
| 1 | 1 | 0413 519 001 | Slide profile | |
| 2 | 1 | 0413 524 001 | Bearing bushing | |
| З | 1 | 0413 521 001 | Runner | |
| 5 | 1 | 0413 522 001 | Lead screw | |
| 7 | 1 | 0334 537 002 | Crank | |
| 9 | 2 | 0413 523 001 | Axis | |
| 17 | 4 | 0190 240 107 | Bearing |
|
ltem
no. |
Qty | Ordering no. | Denomination | Notes |
|---|---|---|---|---|
| 0413 506 880 | Rotary slide | |||
| 1 | 1 | 0413 507 001 | Flange | |
| 2 | 1 | 0413 508 001 | Tensioning ring | |
| 3 | 1 | 0413 509 001 | Flange | |
| 7 | 2 | 0219 504 405 | Bellleville spring | T = 0.6 |
| 8 | 1 | 0193 571 105 | Locking piece | |
| 10 | 1 | 0193 570 123 | Locking lever |
|
ltem
no. |
Qty | Ordering no. | Denomination | Notes |
|---|---|---|---|---|
| 0449 150 880 | Wire feed unit complete (Right) | SAW | ||
| 1 | 1 | 0147 639 882 | Wire feed unit | |
| 2 | 1 | 0413 072 881 | Bearing housing | |
| 3 | 1 | 0215 701 210 | Wedge, flat | |
| 4 | 1 | 0413 517 001 | Bracket for motor | |
| 5 | 1 | 0458 225 001 | Motor with tacho | |
| 8 | 1 | 0218 810 183 | Insulated Hand wheel | |
| 12 | 1 | 0413 510 001 | Contact tube | D20, L = 260 mm |
| 13 | 1 | 0416 984 880 | Guide pin complete | |
| 14 | 1 | 0333 094 880 | Clamp for Flux tube | |
| 15 | 1 | 0332 948 001 | Flux tube | |
| 1 | 0145 221 881 | Concentric flux feeding funnel | ||
| 16 | 1 | 0332 994 883 | Flux container | |
| 17 | 1 | 0413 318 001 | Holder |
|
ltem
no. |
Qty | Ordering no. | Denomination | Notes |
|---|---|---|---|---|
| 0449 150 900 | Wire feed unit complete (Right) | SAW | ||
| 1 | 1 | 0147 639 882 | Wire feed unit | |
| 2 | 1 | 0413 072 881 | Bearing housing | |
| 3 | 1 | 0215 701 210 | Wedge, flat | |
| 4 | 1 | 0413 517 001 | Bracket for motor | |
| 5 | 1 | 0812 312 001 | Motor with pulse transducer | |
| 8 | 1 | 0218 810 183 | Insulated Hand wheel | |
| 12 | 1 | 0413 510 001 | Contact tube | D20, L = 260 mm |
| 13 | 1 | 0416 984 880 | Guide pin complete | |
| 14 | 1 | 0333 094 880 | Clamp for Flux tube | |
| 15 | 1 | 0332 948 001 | Flux tube | |
| 16 | 1 | 0332 994 883 | Flux container | |
| 17 | 1 | 0413 318 001 | Holder | |
| 55 | 1 | 0449 475 001 | Bar | |
| 61 | 1 | 0462 132 880 | Protecting cover | |
| 62 | 1 | 0449 528 001 | Protection plate |
| Item | Qty | Orderingno. | Denomination | Remarks |
|---|---|---|---|---|
| 0147 639 882 | Straightener (right mounted) | |||
| 1 | 1 | 0156 449 001 | Clamp | |
| 6 | 2 | 0212 900 001 | Spacer screw | |
| 7 | 4 | 0215 201 209 | O-ring | D11.3x2.4 |
| 8 | 2 | 0218 400 801 | Pressure roller arm | |
| 9 | 1 | 0218 810 181 | Handwheel | |
| 10 | 1 | 0218 810 182 | Handwheel | |
| 11 | 3 | 0332 408 001 | Stub shaft | |
| 13 | 3 | 0153 148 880 | Roller | |
| 14 | 1 | 0415 498 001 | Thrust roller carrier | |
| 15 | 2 | 0212 902 601 | Spacer screw | |
| 16 | 1 | 0415 499 001 | Thrust roller carrier | |
| 23 | 1 | 0334 571 880 | Contact clamp | |
| 30 | 1 | 0212 601 110 | Nut | M10 |
| Item | Qty | Orderingno. | Denomination | Notes |
|---|---|---|---|---|
| 0413 072 881 | Bearing housing with stub shaft | |||
| 1 | 1 | 0413 073 002 | Searing housing | |
| 2 | 2 | 0190 726 003 | Ball bearing | |
| 3 | 1 | 0334 575 001 | Stub shaft | |
| 4 | 1 | 0215 701 014 | Betaining ring | D17 |
| 5 | 3 | 0334 576 001 | Spacer |
| Item | Qty | Orderingno. | Denomination | Remarks |
|---|---|---|---|---|
| 0332 994 883 | Flux hopper complete | |||
| 1 | 1 | 0332 837 001 | Hopper for flux | |
| 6 | 1 | 0153 347 881 | Flux valve | |
| 7 | 1 | 00203 017 80 | Flux strainer | |
| 16 | 1 | 0443 383 002 | Flux hose | L= 500 |
Europe AUSTRIA ESAB Ges.m.b.H Vienna-Liesing Tel: +43 1 888 25 11 Fax: +43 1 888 25 11 85
BELGIUM S.A. ESAB N.V. Brussels Tel: +32 2 745 11 00 Fax: +32 2 745 11 28
THE CZECH REPUBLIC ESAB VAMBERK s.r.o. Vamberk Tel: +420 2 819 40 885 Fax: +420 2 819 40 120
DENMARK Aktieselskabet ESAB Herlev Tel: +45 36 30 01 11 Fax: +45 36 30 40 03
FINLAND ESAB Oy Helsinki Tel: +358 9 547 761 Fax: +358 9 547 77 71
FRANCE ESAB France S.A. Cergy Pontoise Tel: +33 1 30 75 55 00 Fax: +33 1 30 75 55 24
GERMANY ESAB GmbH Solingen Tel: +49 212 298 0 Fax: +49 212 298 218
GREAT BRITAIN ESAB Group (UK) Ltd Waltham Cross Tel: +44 1992 76 85 15 Fax: +44 1992 71 58 03
ESAB Automation Ltd Andover Tel: +44 1264 33 22 33 Fax: +44 1264 33 20 74
HUNGARY ESAB Kft Budapest Tel: +36 1 20 44 182 Fax: +36 1 20 44 186
ITALY ESAB Saldatura S.p.A. Mesero (Mi) Tel: +39 02 97 96 81 Fax: +39 02 97 28 91 81
THE NETHERLANDS ESAB Nederland B.V. Amersfoort Tel: +31 33 422 35 55 Fax: +31 33 422 35 44
NORWAY AS ESAB Larvik Tel: +47 33 12 10 00 Fax: +47 33 11 52 03
POLAND ESAB Sp.zo.o. Katowice Tel: +48 32 351 11 00 Fax: +48 32 351 11 20
PORTUGAL ESAB Lda Lisbon Tel: +351 8 310 960 Fax: +351 1 859 1277
SLOVAKIA ESAB Slovakia s.r.o. Bratislava Tel: +421 7 44 88 24 26 Fax: +421 7 44 88 87 41
SPAIN ESAB Ibérica S.A. Alcalá de Henares (MADRID) Tel: +34 91 878 3600 Fax: +34 91 802 3461
SWEDEN ESAB Sverige AB Gothenburg Tel: +46 31 50 95 00
Fax: +46 31 50 95 00 Fax: +46 31 50 92 22 ESAB international AB Gothenburg
Tel: +46 31 50 90 00 Fax: +46 31 50 93 60
SWITZERLAND ESAB AG Dietikon Tel: +41 1 741 25 25 Fax: +41 1 740 30 55
North and South America ARGENTINA CONARCO Buenos Aires Tel: +54 11 4 753 4039 Fax: +54 11 4 753 6313
BRAZIL ESAB S.A. Contagem-MG Tel: +55 31 2191 4333 Fax: +55 31 2191 4440
CANADA ESAB Group Canada Inc. Missisauga, Ontario Tel: +1 905 670 02 20 Fax: +1 905 670 48 79
MEXICO ESAB Mexico S.A. Monterrey Tel: +52 8 350 5959 Fax: +52 8 350 7554
ESAB Welding & Cutting Products Florence, SC Tel: +1 843 669 44 11 Fax: +1 843 664 57 48
ESAB ®
ESAB AB SE-695 81 LAXÅ SWEDEN Phone +46 584 81 000
www.esab.com
CHINA Shanghai ESAB A/P Shanghai Tel: +86 21 2326 3000 Fax: +86 21 6566 6622
INDIA ESAB India Ltd Calcutta Tel: +91 33 478 45 17 Fax: +91 33 468 18 80
INDONESIA P.T. ESABindo Pratama Jakarta Tel: +62 21 460 0188
JAPAN ESAB Japan Tokyo Tel: +81 45 670 7073 Fax: +81 45 670 7001
MALAYSIA ESAB (Malaysia) Snd Bhd USJ Tel: +603 8023 7835 Fax: +603 8023 0225
SINGAPORE ESAB Asia/Pacific Pte Ltd Singapore Tel: +65 6861 43 22 Fax: +65 6861 31 95
SOUTH KOREA ESAB SeAH Corporation Kyungnam Tel: +82 55 269 8170 Fax: +82 55 289 8864
UNITED ARAB EMIRATES ESAB Middle East FZE Dubai Tel: +971 4 887 21 11 Fax: +971 4 887 22 63
Representative offices
ESAB Representative Office Sofia Tel/Fax: +359 2 974 42 88
EGYPT ESAB Egypt Dokki-Cairo Tel: +20 2 390 96 69 Fax: +20 2 393 32 13
ROMANIA ESAB Representative Office Bucharest Tel/Fax: +40 1 322 36 74
RUSSIA LLC ESAB Moscow Tel: +7 095 543 9281 Fax: +7 095 543 9280
LLC ESAB St Petersburg Tel: +7 812 336 7080 Fax: +7 812 336 7060
Distributors
For addresses and phone numbers to our distributors in other countries, please visit our home page
www.esab.com






































Loading...