
Electrolux 800 thermaline h = 700 mm
Electric top on cupboard
The Electrolux 800-Thermaline of cooking equipment is designed for heavy duty use where space is at a
premium. The series consist of a wide choice of modular elements that can be installed as individual,
free-standing units or assembled into a complete cooking suite made virtually seamless by means of
cleverly-designed connecting rails.
The models detailed on this sheet have individual electric cooking plates mounted on a cupboard. Models are
available in a choice of two widths, with either two or four plates, and for operation from one side only or from
both sides to suit a central cooking island. Installation options are floor mounted on 100 or 200 mm high feet or
a plinth which can be either steel or masonry construction.
EASY TO USE
• Choice of 2 or 4 electrically
heated cooking plates, each 300 x
300mm, made from cast iron.
• Surface temperature can be
selected in seven steps from
180°C to 540°C.
• Option of one indicating lamp for
the whole hob or for each cooking
zone.
• Rapid heat up of the plate and
continuously ready for use.
• Pans can be moved from one
appliance to another without lifting.
• Convenient operation with highly
visible control panels and knobs.
• Overheat protection - a
temperature sensor switches off
part of the heating element in the
event of over temperature.
• Choice of open or passthru base.
• All appliances conform to ruling
European safety and hygiene
standards and are H marked.
• All models are type-approved by
an international standards
authority and are certified.
EASY TO MAINTAIN
• Body, cupboard and support are
made of AISI 304 stainless steel.
592281 with accessories
• Hygienic design of the open
base compartment with large
round edges.
• No gaps or dirt traps between
adjoining appliances when
connecting rails are fitted.
• All major components may be
easily accessed from the front.
• The appliances are IP X5
certified against water jets.
EASY ON THE ENVIRONMENT
• 98% recyclable by weight.
• Packing free of toxic substances.

Electrolux 800 thermaline h = 700 mm
Electric top on cupboard
HCE148002
581691
HCE148000
592261
HCE248105
592281
HCE248106
592282
TECHNICAL DATA
Power supply Electric Electric Electric Electric
Installation FS on concrete
base, FS on
feet, FS on floor
FS on concrete
base, FS on
feet, FS on floor
FS on concrete
base, FS on
feet, FS on floor
FS on concrete
base, FS on
feet, FS on floor
One-Side Operated ● ●
Both-Sides Operated ● ●
External dimensions - mm
width 400 400 800 800
depth 800 800 800 800
height 700 700 700 700
Control Knob Electrical
thermostat
Electrical
thermostat
Commutator Commutator
Storage cupboard - mm
width 540 540
depth 740 760
height 365 365
Back plate dimensions - mm 300x300 300x300 300x300,
300x300
300x300,
300x300
Back plates power - kW 3 3 3, 3 3, 3
Front plates dimension - mm 300x300 300x300 300x300,
300x300
300x300,
300x300
Front plates power - kW 3 3 3, 3 3, 3
Power - kW
installed-electric 6 6 12 12
Net weight - kg. 50 50 100 100
Supply voltage 400 V, 3N, 50/60 400 V, 3N, 50/60 400 V, 3N, 50/60 400 V, 3N, 50/60
ACCESSORIES
BOTTOM PL+4 FEET 200MM-800&900MM-SPECIAL 911928 911928 911928 911928
C-BOARD WELDED 400 MM 911737
C-BOARD WELDED 800 MM 911741
FOLDING SHELF 300X800 MM 910801 910801 910801 910801
FOLDING SHELF 400X800 MM 910802 910802 910802 910802
ROLLING RACKS 800 910824 910824
S/S PLINTH 400X800X200MM - AGAINST WALL 911374
S/S PLINTH 400X800X200MM - FREESTANDING 911393 911393
S/S PLINTH 800X800X200MM - AGAINST WALL 911378
S/S PLINTH 800X800X200MM - FREESTANDING 911397 911397
SHELF FIXATION F.OPEN&HOT BASE 800,2-S 910772
SHELF FIXATION FOR OPEN&HOT BASE,1-S 910771
SHELF FOR OPEN & HOT BASE 800,W=800,2-S 910778
SHELF FOR OPEN & HOT BASE,W=700&800,1-S 910780
CDBA0102011-06-27Subject to change without notice
Internet: http://www.electrolux.com/foodservice

581691
Electrolux 800 thermaline h = 700 mm
Electric top on cupboard
HCE148002
581691
LEGEND
EI - Electrical connection 400 V, 3N, 50/60
CDBA0102011-06-27Subject to change without notice
Internet: http://www.electrolux.com/foodservice

592261
Electrolux 800 thermaline h = 700 mm
Electric top on cupboard
HCE148000
592261
LEGEND
EI - Electrical connection 400 V, 3N, 50/60
CDBA0102011-06-27Subject to change without notice
Internet: http://www.electrolux.com/foodservice

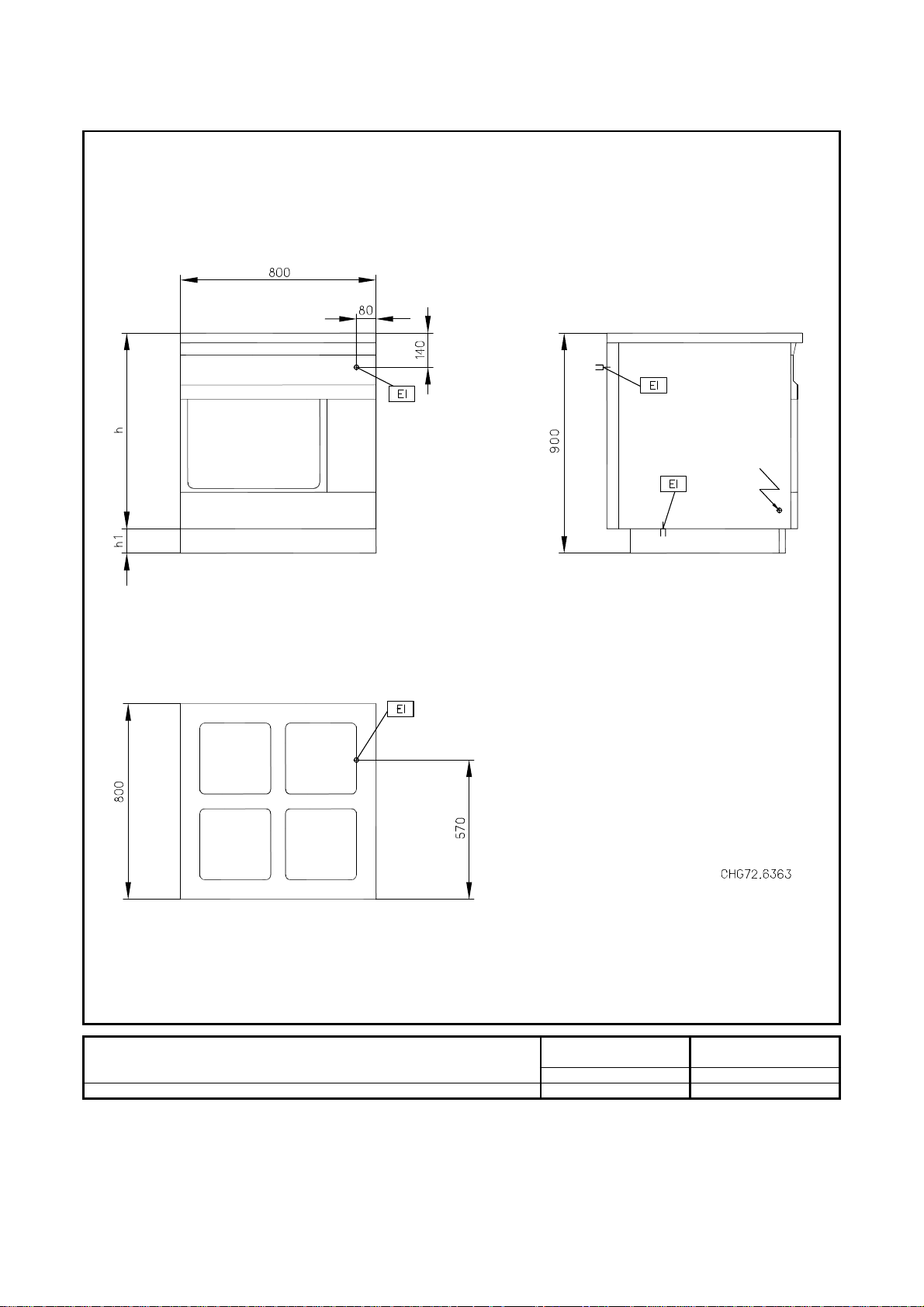
592281, 592282
Electrolux 800 thermaline h = 700 mm
Electric top on cupboard
HCE248105
592281
HCE248106
592282
LEGEND
EI - Electrical connection 400 V, 3N, 50/60 400 V, 3N, 50/60
CDBA0102011-06-27Subject to change without notice
Internet: http://www.electrolux.com/foodservice