
Thermaline bratt pans - wall mounted
Electric rectangular bratt pan
The Electrolux THERMALINE is designed for the very heavy duty requirements of hotels, institutions, hospitals,
central kitchens and in-flight kitchens. The range consists of a wide choice of elements that can be installed as
individual, free-standing units or assembled into a complete cooking suite made virtually seamless by means
of hygienic connecting systems. 900 mm deep units are also modular with C90. The electrically heated
stationary bratt pan has a multifunctional cooking surface in compound steel and is used for browning,
braising, preparing sauces, sautéing, poaching, steaming, boiling, stewing, and preparing white sauces etc.
Performance features &
user benefits
• Multipurpose cooking surface
guarantees great flexibility in the
cooking processes: Roasting /
Browning / Stewing and
Preparation of sauces/ Sautéing
and Boiling.
• The flat bottom allows an even
distribution of fat. The minimum
use of fat offers optimum grilling
results.
• The bottom remains free of
distortion and cracks thanks to
cold-water quenching.
• Insulated and counterbalanced
lid reduces energy consumption to
keep food warm at about 80° C up
to 90 % compared with open lid.
Controls
• Electronic microprocessor
control with digital display
consents pre-selection of cooking
temperature (from 50 to 250°C),
time and start time ensures
adherence to pre-programmed
cooking process.
• The Food Sensor provides
efficient temperature control (no
overcooking): the power is
supplied as and when required to
keep the set temperature value
without exceeding it.
• “Boiling function”: when nominal
temperature is equal or lower than
110°C, the system measures the
temperature, as in a boiling pan.
599235 with accessories
• “Frying function”: when nominal
temperature is equal or higher
than 110°C, the system controls
the temperature on the bottom
plate, as in a bratt pan.
• No overshooting of cooking
temperatures & fast reaction.
• Error display for quick
trouble-shooting.
• A SOFT setting for a gentle heat
input, for delicate products avoiding undesired spillage.
• On request it can be connected
to an HACCP integrated system
for monitoring, supervision and
recording of all data by means of a
computer.
• Prearranged for eventual energy
optimisation or external
surveillance systems.

Thermaline bratt pans - wall mounted
Electric rectangular bratt pan
Construction
• Internal structure and external
panels are in AISI 304 stainless
steel.
• Multipurpose cooking surface:
compound in special 18 mm
thickness, plated with 3,0 mm
Stainless Steel 316Ti
• The high-quality thermal
insulation of the pan saves energy
and keeps operating ambient
temperature low for the comfort of
the chefs.
• The water mixing unit (optional)
integrated into one of the consoles
makes working of filling and pan
cleaning operation easy.
• Large capacity drain off tap
enables precise metering of the
discharged food, especially small
quantities.
Hygiene & Safety
• No visible screws & minimised
presence of narrow gaps for easier
cleaning of the sides in order to
meet the highest hygiene
standards.
• Discharge tap is very easy to
clean from the outside.
• Easy to clean cooking surface
due to large-radius edges and
corners.
• IPX5 water resistant.
• 98% recyclable by weight &
packing free of toxic substances.
FEN080EWT
599238
TECHNICAL DATA
Installation Wall
mounted
Configuration Fixed;
Rectangular
External dimensions - mm
width 1000 1000 1400 1400
depth 900 900 900 900
height 700 700 700 700
Electronic ● ● ● ●
Water tap right side ● ● ● ●
Double jacketed lid ● ● ● ●
Working temperature - min/max - °C 50, 250 50, 250 50, 250 50, 250
Vessel dimensions - mm
width 680 680 1050 1050
depth 550 550 550 550
height 230 300 230 300
Heating type Direct Direct Direct Direct
Power - kW
auxiliary 0.2 0.2 0.2 0.2
installed-electric 12.2 12.1 18.2 18.2
Net weight - kg. 180 210 240 260
Supply voltage 400 V, 3N,
50/60
ACCESSORIES
C-BOARD WELDED 1000 MM 911743 911743
C-BOARD WELDED 1400 MM 911747 911747
HACCP ELECTRONIC KIT COP 485.1 911519 911519 911519 911519
KIT HACCP EKIS 922166 922166 922166 922166
MEASURING ROD+STRAINER-FIXED PANS 110L 911580
MEASURING ROD+STRAINER-FIXED PANS 125L 911814
MEASURING ROD+STRAINER-FIXED PANS 170L 911815
MEASURING ROD+STRAINER-FIXED PANS 80L 911581
FEN110EWT
599229
Wall
mounted
Fixed;
Rectangular
400 V, 3N,
50/60
FEN125EWT
599232
Wall
mounted
Fixed;
Rectangular
400 V, 3N,
50/60
FEN170EWT
599235
Wall
mounted
Fixed;
Rectangular
400 V, 3N,
50/60
DAEC0102010-05-28Subject to change without notice
Internet: http://www.electrolux.com/foodservice

599238, 599229
Thermaline bratt pans - wall mounted
Electric rectangular bratt pan
FEN080EWT
599238
FEN110EWT
599229
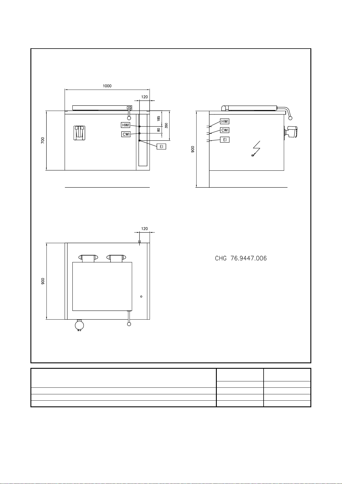
LEGEND
CWI - Cold water inlet 1/2" 1/2"
EI - Electrical connection 400 V, 3N, 50/60 400 V, 3N, 50/60
HWI - Hot water inlet 1/2" 1/2"
DAEC0102010-05-28Subject to change without notice
Internet: http://www.electrolux.com/foodservice

599232, 599235
Thermaline bratt pans - wall mounted
Electric rectangular bratt pan
FEN125EWT
599232
FEN170EWT
599235
LEGEND
CWI - Cold water inlet 1/2" 1/2"
EI - Electrical connection 400 V, 3N, 50/60 400 V, 3N, 50/60
HWI - Hot water inlet 1/2" 1/2"
DAEC0102010-05-28Subject to change without notice
Internet: http://www.electrolux.com/foodservice