
Electrolux concept counters
Refrigerators - 4 compartments
Electrolux Professional have designed and produced a complete range of refrigerated
tables, that combines the dual function of worktop and refrigerated table. This versatility
allows notable savings in space whilst offering functional and modular solutions to kitchen
requirements.
• 150mm height-adjustable
feet.
• Internal and external
doors, front and side panels
and worktop in 304 AISI
stainless steel.
• Rounded internal corners
for ease of cleaning.
• Refrigerated compartment
designed to accommodate
GN 1/1 containers.
• Digital control panel.
• Suitable to operate in
ambient temperatures up to
+43°C. Temperature range:
-2/+10 °C.
• Forced air circulation for
rapid cooling and an even
temperature distribution.
• Drain outlet and automatic
evaporation of defrost water.
• Access to all components
from the front.
728297
• In compliance with H
requirements.
• C.F.C. and H.C.F.C. free.
• High-density expanded
polyurethane foam 50 mm
in thickness with
cyclopenthane injection.
• Developed and produced
in ISO 9001 and ISO 14001
certified factory.

Electrolux concept counters
Refrigerators - 4 compartments
HB4P
TECHNICAL DATA
Operating temperature - min/max °C -2/10 -2/10 -2/10 -2/10 -2/10
Operating mode Ventilated Ventilated Ventilated Ventilated Ventilated
Gross capacity (D.I.N. 8952) - l. 560 560 560 560 560
Cooling unit Built-In Built-In Built-In Built-In Built-In
External dimensions - mm
width 2204 2204 2204 2204 2204
depth/with open doors 700, 1102 700, 1102 700, 1102 700, 1102 700, 1098
height 850 850 850 850 800
Internal dimensions - mm
depth 580 580 580 580 580
height 543 543 543 543 543
Worktop type Stainless Steel Stainless Steel Stainless Steel Stainless Steel none
No worktop ●
Min/Max internal humidity - % 57 57 57 57 57
N° of drawers 2x1/2 4x1/2 8x1/2
N° and type of door 4 3 2 4
Door hinges 2 Left+2 Right 2 Left+1 Right 1 Left+1 Right 2 Left+2 Right
Compressor power - HP 1/4 1/4 1/4 1/4 1/4
N° defrost in 24 hrs. 4/20 4/20 4/20 4/20 4/20
Refrigerant type R404a R404a R404a R404a R404a
Refrigerant quantity - g. 210 210 210 210 210
Refrigeration power - W 343 343 343 343 343
Refrigerant power
at evaporation temperature - °C -20 -20 -20 -20
Power - kW
installed-electric 0.34 0.34 0.34 0.34 0.34
Net weight - kg. 186 194 198 214 186
Power supply - V, phases, Hz 230 V, 1N, 50 230 V, 1N, 50 230 V, 1N, 50 230 V, 1N, 50 230 V, 1N, 50
INCLUDED ACCESSORIES
1/1 GN GREY "RILSAN" GRID 4 3 2 4
ACCESSORIES
2x½ DRAWER KIT FOR REFRIGERATED TABLES 880118 880118 880118 880118
3x1/3 DRAWER KIT FOR REFRIGERATED TABLES 880115 880115 880115 880115 880115
DRAWER KIT-1/3+2/3 (BOTTLES)-REF.TABLES 880126 880126 880126 880126 880126
KIT 2 S/S GRIDS GN1/1 FOR REFRIG.TABLES 880139 880139 880139 880139
KIT 4 WHEELS (2 W/BRAKE)+4 (40MM)SPACERS 880025 880025 880025 880025 880025
KIT DOOR REVERSIBILITY FOR REF.TABLES 880046 880046 880046 880046
KIT HACCP EKIS 922166 922166 922166 922166 922166
KIT INTEGRATED HACCP-DIG. REFR. (IR33) 880205 880205 880205 880205 880205
LOCK KIT FOR REFRIGERATED TABLES 880130 880130 880130 880130 880130
PRINTER FOR HACCP BASIC VERSION REFRIG. 881457 881457 881457 881457 881457
S/S STRUCTURE TO SUPPORT 6 GRIDS (R+L) 880140 880140 880140 880140
WORKTOP FOR 4 DOOR REFRIGERATED TABLES 880198
WORKTOP+UPSTAND FOR 4 DOOR REFRIG.TABLE 880116
728243
HB3P2C
728244
HB2P4C
728245
HB8C
728246
HB4PNT
727107
HBAC0702009-10-06Subject to change without notice
Internet: http://www.electrolux.com/foodservice

728243, 728246, 728245, 728244
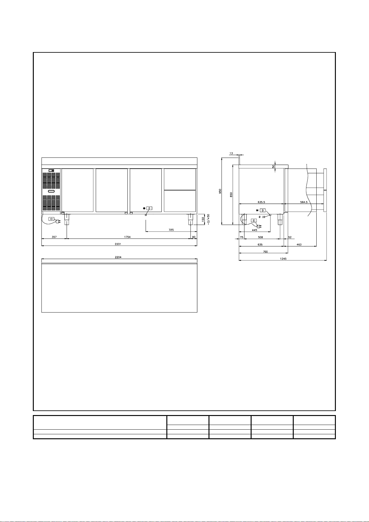
Electrolux concept counters
Refrigerators - 4 compartments
HB4P
LEGEND
D - Water drain 16mm 16mm 16mm 16mm
EI - Electrical connection 230 V, 1N, 50 230 V, 1N, 50 230 V, 1N, 50 230 V, 1N, 50
728243
HB3P2C
728244
HB2P4C
728245
HB8C
728246
HBAC0702009-10-06Subject to change without notice
Internet: http://www.electrolux.com/foodservice

727107
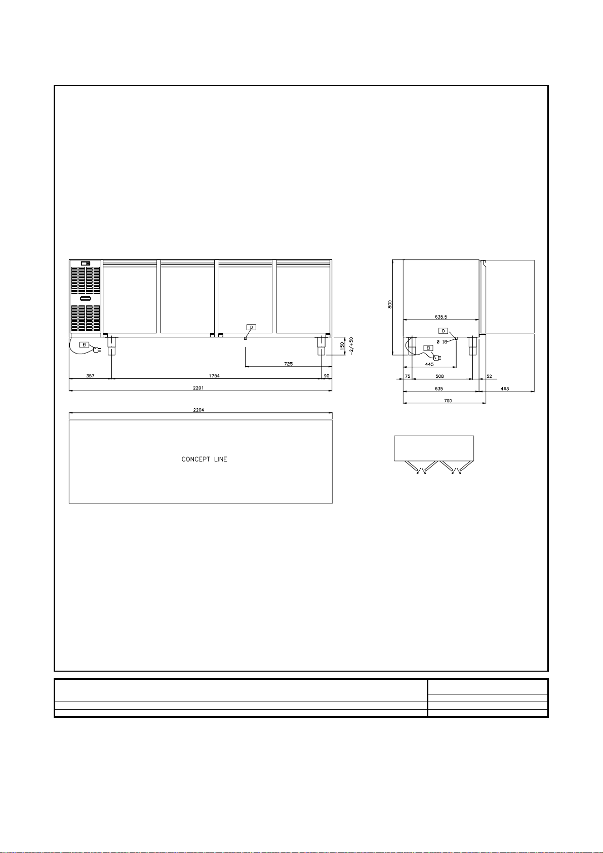
Electrolux concept counters
Refrigerators - 4 compartments
HB4PNT
LEGEND
D - Water drain 16mm
EI - Electrical connection 230 V, 1N, 50
727107
HBAC0702009-10-06Subject to change without notice
Internet: http://www.electrolux.com/foodservice