
ITEM # _______________________________________________
MODEL # _____________________________________________
Pasta Solutions
Free-standing, Single-well
Pasta Cooker – Gas
Pasta Solutions
Free-standing, Single-well
Pasta Cooker – Gas
200396 (NCPG400U) Gas Pasta Cooker
120 V/1p/60z – 0.9A
PROJECT NAME # ______________________________________
SIS # _________________________________________________
AIA # _________________________________________________
Main features
• 10.5 gallon tank.
• 9-position energy regulator.
• 3-position water fill regulator.
• Constant water level refill.
• Automatic starch removal function during cooking: improved water quality
over time.
• Automatic low-water level shut-off: no accidental over-heating.
• Electrolux Platinum Star® Service package included:
• 2-year parts, 1-year labor warranty, 5-year compressor warranty.
• Start-up install check.
• Equipment check-up after 12 month from installation.
Construction
• Pressed 10.6 gal tank: only rounded corners for improved cleanability.
• AISI 316 stainless steel tank: maximum corrosion resistance.
• All stainless steel construction.
• IPX 5 water jet protection (NEMA 4 equivalent).
Included Accessories
•5″ long, height adjustable legs.
Optional Accessories
• Bulk cooking basket.
• 2 of 1/2 size bulk cooking baskets.
• 3 of 1/3 size bulk cooking baskets.
• 3 of round individual-portion baskets.
• False bottom for round individual-portion baskets.
• Castors.
Free-standing, Single-well Pasta Cooker – Gas
Short Form Specification
Item No. ___________________________________
Unit to be Electrolux Single Well Gas Pasta Cooker 200396.
The unit is a free-standing, 10.5 gallon, single well Gas Pasta
Cooker. The unit shall feature constant water level refill and starch
removal during cooking process. IPX 5 water jet protection
(NEMA 4 equivalent). The 10.5 gallon tank is pressed in AISI
316 stainless steel and features only rounded corners. 5″ long,
height adjustable legs. The unit to be completely in AISI 304
stainless steel.
Covered by Electrolux Platinum Star® Service Program twoyear parts and one-year labor warranty, installation start-up
and performance check-up after one year from installation.
Approval: ___________________________________________
3225 SW 42nd Street, Fort Lauderdale, Florida, 33312 • Telephone Number: 866-449-4200 • Fax Number: 954-327-6789
Pasta Solutions
Electrolux Professional, Inc.
www.electroluxusa.com/professional

Pasta Solutions
Free-standing, Single-well
Pasta Cooker - Gas
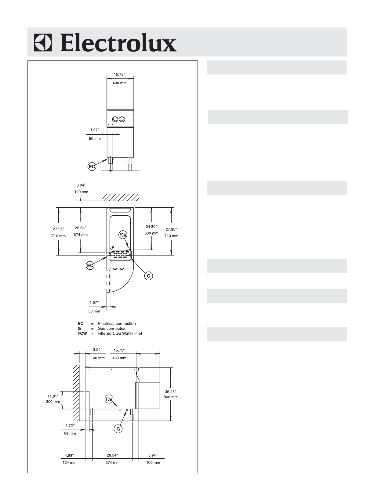
Front View
Top View
Electric
Supply voltage:
200396 (NCPG400U) 120 V/1p/60Hz - 0.9 A
Connected load: 3 kW
Gas (Natural or LPG)
ISO 7/1 Gas connection
diameter: 1/2″ NPT
Nominal Thermal load: BTU 53,000 (15.5 kW)
Pressure
Natural Gas: 4″ w.c. (10 mbar)
LPG: 10″ w.c. (25 mbar)
Water
Water inlet “CW” – 1/2
Total hardness: 5-50 ppm
Drain “D” 1″ connection
Electrolux recommends the use of treated water, based on
testing of specific water conditions.
Please refer to user manual for detailed water quality
information.
″″
″ connection:
″″
Side View
Installation
Clearance: 4″ (10 cm) from back.
Capacity
Max.: 10.5 gal
Min.: 8.5 gal
Key Information
Net weight: 137 lbs. (62 kg)
Height, inch/mm: 33-7/16″ (849 mm)
Width, inch/mm: 15-3/4″ (400 mm)
Depth, inch/mm: 35-7/16″ (900 mm)
Shipping weight: 170 lbs. (77 kg)
Shipping width: 19″ (480 mm)
Shipping height: 44.1″ (1120 mm)
Shipping depth: 41″ (1040 mm)
Shipping volume: 19.8 cu. ft. (0.56 m³)
Free-standing, Single-well Pasta Cooker - Gas
Pasta Solutions
The company reserves the right to make modifications to the products
without prior notice. All information correct at time of printing.
6-26-09