Page 1

DRYER iNSTALLATiON iNSTRUCTiONS
29" and 27" Wide Models
Gas (U.S.A. and Canada} & Electric (Canada Only)
iNSTRUCTiONS D'INSTALLATION DE LA SECHEUSE
ModUles de 29" et de 27" de iargeur
A gaz (E.-U. et Canada) et I_lectrique (Canada uniquement)
Para obtener acceso al manual de uso ycuidado en espa_ol, o para obtener informaci6n adicional acerca de su producto, visite:
www.whirlpool.com
Tenga listo su nOmero de modelo completo. Puede encontrar el nOmero de modelo y de serie dentro de la cavidad superior de la puerta.
Table of Contents Table des mati_res
DRYER SAFETY ................................................................ 2
INSTALLATION REQUIREMENTS .................................... 4
Tools and Parts .................................................................... 4
Location Requirements ...................................................... 4
ELECTRIC DRYER POWER HOOKUP - CANADA ONLY ......... 6
Electrical Requirements ..................................................... 6
install Leveling Legs ........................................................... 7
GAS DRYER POWER HOOKUP ................................................. 7
Gas Supply Requirements .................................................. 7
Electrical Requirements ..................................................... 9
VENTING ...................................................................................... 9
Venting Requirements ......................................................... 9
Plan Vent System ............................................................... 10
Venting Kits ........................................................................ 11
Install Vent System ............................................................ 12
Make Gas Connection ...................................................... 12
Connect Vent ..................................................................... 13
LEVEL DRYER ........................................................................... 13
COMPLETE iNSTALLATiON CHECKLIST ............................... 13
REVERSE DOOR SWING (OPTIONAL) .................................... 14
TROUBLESHOOTING ............................................................... 21
iNSTALLATiON NOTES
Date of purchase:
Date of installation:
Installer:
Model number:
Serial number:
SECURIT¢:: DE LA S¢:CHEUSE ....................................... 22
EXIGENCES D'INSTALLATION ...................................... 24
Outillage et pi_ces ............................................................ 24
E×igences d'emplacement ............................................... 25
RACCORDEMENT A L'ALIMENTATION leLECTRIQUE
DE LA SI'==CHEUSE#LECTRIQUE - CANADA SEULEMENT ... 27
Specifications _lectriques ................................................ 27
installation des pieds de nivellement .............................. 28
RACCORDEMENT D'UNE S(-=CHEUSE A GAZ ....................... 28
Specifications de I'alimentation en gaz .......................... 28
Specifications _lectriques ................................................ 30
UleVACUATION .......................................................................... 30
E×igences concernant I'_vacuation ................................ 30
Planification du syst_me d'_vacuation ........................... 31
Trousses d'6vacuation ...................................................... 32
installation du circuit d'_vacuation ................................. 33
Raccordement au gaz ....................................................... 34
Raccordement du conduit d'6vacuation ......................... 34
REGLAGE DE L'APLOMB DE LA SECHEUSE ......................... 35
ACHEVER L'INSTALLATION - LISTE DE VERIFICATION ....... 35
INVERSION DU SENS DE L'OUVERTURE DE LA PORTE
(FACULTATIF) ............................................................................. 36
DEPANNAGE ............................................................................. 43
NOTES CONCERNANT L'INSTALLATION
Date d'achat :
Date d'installation :
Installateur :
Num_ro de module :
Num_ro de s_rie :
W10562360A
W10562361A=SP
Page 2

DRYER SAFETY
Your safety and the safety of others are very important.
We have provided many important safety messages in this manual and on your appliance. Always read and obey all safety
messages.
This is the safety alert symbol.
This symbol alerts you to potential hazards that can kill or hurt you and others.
All safety messages will follow the safety alert symbol and either the word "DANGER" or "WARNING."
These words mean:
You can be killed or seriously injured if you don't immediately
follow instructions.
You can be killed or seriously injured if you don't follow
instructions.
All safety messages will tell you what the potential hazard is, tell you how to reduce the chance of injury, and tell you what can
happen if the instructions are not followed.
WARNING - ...i.. of
= Clothes dryer installation must be performed by a qualified installer,
- Install the clothes dryer according to the manufacturer's instructions and local codes.
= Do not install a clothes dryer with fle×ible plastic venting materials or fle×ible metal
(foil type) duct. if fle×ible metal duct is installed, it must be of a specific type identified
by the appliance manufacturer as suitable for use with clothes dryers. Fle×ible venting
materials are known to collapse, be easily crushed, and trap lint. These conditions will
obstruct clothes dryer airflow and increase the risk of fire.
= To reduce the risk of severe injury or death, follow all installation instructions.
= Save these instructions.
iMPORTANT: The gas installation must conform with local codes, or in the absence of local codes, with the National Fuel Gas
Code, ANSI Z223.1/NFPA 54 or the Canadian Natural Gas and Propane Installation Code, CSA B149.1.
The dryer must be electrically grounded in accordance with local codes, or in the absence of local codes, with the National
Electrical Code, ANSI/NFPA 70 or Canadian Electrical Code, CSA C22.1.
State of California Proposition 65 Warnings:
WARNING: This product contains one or more chemicals known to the State of California to cause cancer.
WARNING: This product contains one or more chemicals known to the State of California to cause birth defects or other
reproductive harm.
In the State of Massachusetts, the following installation instructions apply:
[] InstaHlationsand repairs must be performed by a qualified or licensed contractor, plumber, or gasfitter qualified or licensed by
the State of Massachusetts.
[] If using a ball valve, it shall be a T=handle type.
[] A flexible gas connector, when used, must not exceed 3 feet.
2
Page 3

WARNING: For your safety, the information in this manual must be followed to minimize
the risk of fire or explosion, or to prevent property damage, personal injury, or death.
- Do not store or use gasoline or other flammable vapors and liquids in the vicinity of this
or any other appliance.
- WHAT TO DO iF YOU SMELL GAS:
= Do not try to light any appliance.
® Do not touch any electrical switch; do not use any phone in your building.
• Clear the room, building, or area of all occupants.
• Immediately call your gas supplier from a neighbor's phone. Follow the gas supplier's
instructions.
• if you cannot reach your gas supplier, call the fire department.
- Installation and service must be performed by a qualified installer, service agency, or
the gas supplier.
WARNING: Gas leaks cannot always be detected by smell.
Gas suppliers recommend that you use a gas detector approved by UL or CSA.
For more information, contact your gas supplier.
If a gas leak is detected, follow the "What to do if you smell gas" instructions.
IMPORTANT SAFETY iNSTRUCTIONS
WARNING: To reduce the risk of fire, electric shock, or injury to persons when using the dryer, follow basic precautions,
including the following:
[] Read all instructions before using the dryer.
[] Do not place items exposed to cooking oils in your dryer.
Items contaminated with cooking oils may contribute to
a chemical reaction that could cause a load to catch fire.
[] Do not dry articles that have been previously cleaned in,
washed in, soaked in, or spotted with gasoline, dry-
cleaning solvents, or other flammable or explosive
substances as they give off vapors that could ignite or
explode.
[] Do not allow children to play on or in the dryer. Close
supervision of children is necessary when the dryer is
used near children.
[] Before the dryer is removed from service or discarded,
remove the door to the drying compartment.
[] Do not reach into the dryer if the drum is moving.
[] Do not install or store the dryer where it will be exposed
to the weather.
[] Do not tamper with controls.
[] Do not repair or replace any part of the dryer or attempt
any servicing unless specifically recommended in this
Use and Care Guide or in published user=repair
instructions that you understand and have the skills to
carry out.
[] Do not use fabric softeners or products to eliminate static
unless recommended by the manufacturer of the fabric
softener or product.
[] Do not use heat to dry articles containing foam rubber or
similarly textured rubber=like materials.
[] Clean lint screen before or after each load.
[] Keep area around the exhaust opening and adjacent
surrounding areas free from the accumulation of lint, dust,
and dirt.
[] The interior of the dryer and exhaust vent should be
cleaned periodically by qualified service personnel.
[] See "Electrical Requirements" located in the installation
instructions for grounding instructions.
SAVE THESE iNSTRUCTIONS
When discarding or storing your old clothes dryer, remove the door.
IMPORTANT SAFETY INSTRUCTIONS
SAVE THESE iNSTRUCTIONS
Page 4

iNSTALLATiON REQUIREMENTS
Tools and Parts
Gather the required tools and parts before starting installation.
Tools needed for all installations:
Flat-blade screwdriver
1/4" nut driver or socket
wrench (recommended)
#2 Phillips screwdriver
Tin snips (new vent
installations)
Tools needed for gas installations:
8" or 10" pipe wrench 8" or 10" adjustable wrench
(for gas connections)
Pipe-joint compound
resistant to LP gas
Parts supplied:
Tape measure
Level Pliers
Adjustable wrench that
opens to 1" (25 mm) or
hex-head socket wrench
Utility knife
Vent clamps
Caulking gun and
compound (for installing
new exhaust vent)
Putty knife
Leveling legs (4)
Parts package is located in dryer drum. Check that all parts
are included.
Parts needed:
Check local codes. Check existing electrical supply and venting.
See "Electrical Requirements" and "Venting Requirements"
before purchasing parts.
Check code requirements. Some codes limit, or do not permit,
installing dryer in garages, closets, mobile homes, or sleeping
quarters. Contact your local building inspector.
Optional Equipment: (Not supplied with dryer)
Refer to your "Use and Care Guide" for information about
accessories available for your dryer.
Location Requirements
Explosion Hazard
Keep flammable materials and vapors, such as
gasoline, away from dryer.
Place dryer at least !8 inches (460 ram) above the floor
for a garage installation.
Failure to do so can result in death, explosion, or fire.
4
You will need:
[] A location allowing for proper exhaust installation.
See "Venting Requirements."
Page 5

[] Aseparate30ampcircuitforelectricdryers.
[] Aseparate15or20ampcircuitforgasdryers.
[] Ifyouareusingpowersupplycord,agroundedelectrical
outletlocatedwithin2ft.(610mm)ofeithersideofdryer.
See"ElectricalRequirements."
[] Asturdyfloortosupportdryerandatotalweight(dryer
andload)of200Ibs.(90.7kg).Thecombinedweightofa
companionapplianceshouldalsobeconsidered.
[] Levelfloorwithmaximumslopeof1"(25mm)underentire
dryer.If slope is greater than 1" (25 mm), install Extended
Dryer Feet Kit, Part Number 279810. If not level, clothes
may not tumble properly and automatic sensor cycles may
not operate correctly.
Do not operate your dryer at temperatures below 45°F (7°C).
At lower temperatures, the dryer might not shut off at the end
of an automatic cycle. Drying times can be extended.
The dryer must not be installed or stored in an area where it will
be exposed to water and/or weather.
Check code requirements. Some codes limit, or do not permit,
installation of the dryer in garages, closets, mobile homes, or
sleeping quarters. Contact your local building inspector.
NOTE: No other fuel-burning appliance can be installed in the
same closet as a dryer.
installation clearances:
The location must be large enough to allow the dryer door to
open fully.
Most installations require a minimum 51/2'' (140 mm) clearance
behind the dryer for the exhaust vent with elbow. See "Venting
Requirements."
29" Wide Models
Dryer Dimensions
29"
(737 rnm)
-,,--- 29" -_
(737 ram) I
installation Spacing
18"* °l°
_ _ (31Ocm)_
d11
(457m_l __
-. _ (l_scrn)_
1,,-_i_- 29,,-_ i<- 1,,
(25rnrn)(737ram)
A
*Required spacing
27" Wide Models
Dryer Dimensions
223/4 ''
(578 ram)
(749 ram)
291/2"
-H_"*F273_,,H5,/_"I_
(25rnm)(25ram}(705rnrn}(140ram)
A. Recessed area
B. Side view - closet or confined area
C. Closet door with vents
27"
(686 ram)
24in.2.-
B C
--f
43"
(1092 ram)
1V2"
(38 ram}
133/4 ''
(349ram)
291/2 ''
(749mm)
3]1,
(76ram)
1
43
110; ram)
V
?
1/2H
(13 ram}
NOTE: Leveling legs should be 1/2" (13 mm) (to match height of
3.6 cu. ft. capacity washer) or 11/2"(38 mm) (to match height of
3.8 cu. ft. capacity washer).
223/4.-.__ 273/4.--_ _ -.,P----273/4.--_
{ II
u u ___
133/4"
(34grnrn)
433/8 ''
(1102ram)
1V2'
(38ram)
f _ /2_
(578 ram) (705 ram) _ (705 ram)
A
A, Wide opening side-swing door
B. Wide opening hamper door
J_
A B
A, Wideopening side-swing door
B. Wideopening hamper door
Installation Spacing
[_ _ II_ mm_•48in'_
Q 24i_*,
"-_ E:_ (155cml
1"--)t J_- 27"-_ I_-1" -'_l"*_<'-2gY2"_5y2"*}'_"
(25rnm) (686mrn) (25mrn)_5mm}(749mrn}(140rnm}
A B
A. Recessed area
B. Side view - closet or confined area
C. Closet door with vents
*Required spacing
(310®)_
i_ 3"*
(76rnm)
--f
j._ 3"*
(76ram)
?
C
Page 6

Installation spacing for recessed area or c(oset
The dimensions shown are for the minimum spacing allowed.
[] Additional spacing should be considered for ease of
installation and servicing.
[] Additional clearances might be required for wall, door, and
floor moldings.
[] Additional spacing of 1" (25 mm) on all sides of the dryer is
recommended to reduce noise transfer.
[] For closet installation, with a door, minimum ventilation
openings in the top and bottom of the door are required.
Louvered doors with equivalent ventilation openings are
acceptable.
[] Companion appliance spacing should also be considered.
Mobile home = Additional installation requirements
This dryer is suitable for mobile home installations. The
installation must conform to the Manufactured Home
Construction and Safety Standard, Title 24 CFR, Part 3280
(formerly the Federal Standard for Mobile Home Construction
and Safety, Title 24, HUD Part 280) or the Canadian
Manufactured Home Standard CAN/CSA-Z240 MH.
[] Metal exhaust system hardware, available for purchase.
For further information, please reference the "Assistance
or Service" section of the "Use and Care Guide."
[] Special provisions must be made in mobile homes to
introduce outside air into the dryer. The opening (such
as a nearby window) should be at least twice as large
as the dryer exhaust opening.
ELECTRIC DRYER POWER
HOOKUP - CANADA ONLY
Electrical Requirements
[]
This dryer is equipped with a CSA International Certified
Power Cord intended to be plugged into a standard 14-30R
wall receptacle. The cord is 5 ft. (1.52 m) in length. Be sure
wall receptacle is within reach of dryer's final location.
4-wire receptacle (14-30R)
[] Do not use an extension cord.
If using a replacement power supply cord, it is recommended that
you use Power Supply Cord Replacement Part Number 8579325.
For further information, please reference the "Assistance or
Service" section of the "Use and Care Guide."
GROUNDING INSTRUCTIONS
[] For a grounded, cord-connected dryer:
This dryer must be grounded. In the event of malfunction or
breakdown, grounding will reduce the risk of electric shock
by providing a path of least resistance for electric current.
This dryer is equipped with a cord having an equipment-
grounding conductor and a grounding plug. The plug must
be plugged into an appropriate outlet that is properly
installed and grounded in accordance with all local codes
and ordinances.
WARNING: Improper connection of the equipment-
grounding conductor can result in a risk of electric shock.
Check with a qualified electrician or service representative
or personnel if you are in doubt as to whether the dryer is
properly grounded. Do not modify the plug provided with
the dryer: if it will not fit the outlet, have a proper outlet
installed by a qualified electrician.
SAVE THESE INSTRUCTIONS
"a,
Electrical Shock Hazard
Plug into a grounded 4 prong out(et.
Failure to do so can result in death or electrical shock.
(t is your responsibility:
[] To contact a qualified electrical installer.
[] To be sure that the electrical connection is adequate
and in conformance with the Canadian Electrical Code,
C22.1 -latest edition and all local codes. A copy of the
above codes standard may be obtained from: Canadian
Standards Association, 178 Rexdale Blvd., Toronto, ON
M9W 1R3 CANADA.
[] To supply the required 4 wire, single phase, 120/240 volt,
60 Hz., AC only electrical supply on a separate 30-amp
circuit, fused on both sides of the line. A time-delay fuse or
circuit breaker is recommended. Connect to an individual
branch circuit.
6
Page 7

Install Leveling Legs
Excessive Weight Hazard
Use two or more people to move and install dryer.
Failure to do so can result in back or other injury.
1, Prepare dryer for leveling legs
\
To avoid damaging floor, use a large flat piece of cardboard
from dryer carton; place under entire back edge of dryer.
Firmly grasp dryer body (not console panel) and gently lay
dryer down on cardboard.
2, Screw in leveling legs
Using a wrench and tape measure, screw legs into leg holes
until bottom of foot is approximately 1/2" (13 mm) (to match
height of 3.6 cu. ft. capacity washer) or 11/2'` (38 mm) (to
match height of 3.8 cu. ft. capacity washer) from bottom of
dryer.
Now stand the dryer on its legs. Slide the dryer until it is
close to its final location. Leave enough room for electrical
connection and to connect the exhaust vent.
GAS DRYER POWER HOOKUP
Gas Supply Requirements
Explosion Hazard
Use a new CSA International approved gas supply line.
Install a shut=off valve.
Securely tighten all gas connections.
if connected to LP, have a qualified person make sure
gas pressure does not exceed 13" (330 ram) water
column.
Examples of a qualified person include:
licensed heating personnel,
authorized gas company personnel, and
authorized service personnel.
Failure to do so can result in death, explosion, or fire.
Gas type
Natural gas:
This dryer is equipped for use with Natural Gas. It is design-
certified by CSA International for LP (propane or butane) gases
with appropriate conversion.
[]
Your dryer must have the correct burner for the type of gas
in your home. Burner information is located on the rating
plate in the door well of your dryer. If this information does
not agree with the type of gas available, please reference the
"Assistance or Service" section of the "Use and Care Guide."
LP gas conversion:
Conversion must be made by a qualified technician.
No attempt shall be made to convert the dryer from the gas
specified on the model/serial rating plate for use with a different
gas without consulting the serving gas supplier.
iMPORTANT: The gas installation must conform with local codes,
or in the absence of local codes, with the National Fuel Gas
Code, ANSI Z223.1/NFPA 54 or the Canadian Natural Gas and
Propane Installation Code, CSA B149.1.
For mobile home use
Gas dryers must be securely fastened to the floor.
Mobile home installations require a Mobile Home installation
Hold-down Kit. For ordering information, please reference the
"Use and Care Guide."
Page 8

Gassupply line []
[] 1/2" NPT pipe is recommended.
[] 3/8" approved tubing is acceptable for lengths under
20 ft. (6.1 m) if local codes and gas supplier permit.
[] Must include 1/8" NPT minimum plugged tapping accessible
for test gauge connection, immediately upstream of the gas
connection to the dryer (see illustration).
[] Must include a shut-off valve:
in the U.S.A.:
An individual manual shut-off valve must be installed within
six (6)feet (1.8 m) of the dryer in accordance with the
National Fuel Gas Code, ANSI Z223.1.
In Canada:
An individual manual shut-off valve must be installed in
accordance with the B149.1, Natural Gas and Propane
Installation Code. It is recommended that an individual
manual shut-off valve be installed within six (6) feet (1.8 m)
of the dryer.
The shut-off valve location should be easy to reach for opening
and closing.
E
If your dryer has been converted to use LP gas, 3/8" LP
compatible copper tubing can be used. If the total length
of the supply line is more than 20 ft. (6.1 m), use larger pipe.
NOTE: Pipe joint compounds that resist the action of LP
gas must be used. Do not use TEFLON _>ttape.
Dryer gas pipe
[] The gas pipe that comes out through the rear of your dryer
has a 3/8" male pipe thread.
29" Wide Model
11/4"
(32 rnm}
A 91/4"''_
(235 ram)
A. 3/8" NPTdryer pipe
27" Wide Model
B
A. 3/8" flexible gas connector
B.3/8" pipe to flare adapter fitting
C. 1/8" NPT minimum plugged tapping
D. 1/2" NPT gas supply line
E. Gas shut-off valve
Gas supply connection requirements
There are many methods by which your gas dryer can be
connected to the gas supply. Listed here are some guidelines
for two different methods of connection.
This dryer must be connected to the gas supply line with
a listed flexible gas connector that complies with the standard
for connectors for gas appliances, ANSI Z21.24 or CSA 6.10.
Option 1 (Recommended Method}
Flexible stainless steel gas connector:
[] If local codes permit, use a new flexible stainless steel gas
connector (Design Certified by the American Gas Association
or CSA International) to connect your dryer to the rigid gas
supply line. Use an elbow and a 3/8" flare x 3/8" NPT adapter
fitting between the stainless steel gas connector and the
dryer gas pipe, as needed to prevent kinking.
Option 2 (Alternate Method}
Approved aluminum or copper tubing:
[] Lengths over 20 ft. (6.1 m) can use 3/8" approved tubing
(if codes and gas supplier permit).
[] If you are using Natural Gas, do not use copper tubing.
[] 3/8" flare x 3/8" NPT adapter fitting between dryer pipe
and 3/8" approved tubing.
[] Lengths over 20 ft. (6.1 m) should use larger tubing and
a different size adapter fitting.
11/2"
(38 rnm)
A
*5 3/4"
(146 mm)
A. 3/8" NPTdryer pipe
Burner input requirements
Elevations up to 10,000 ft. (3,048 m}:
[] The design of this dryer is certified by CSA International for
use at altitudes up to 10,000 ft. (3,048 m) above sea level at
the B.T.U. rating indicated on the model/serial number plate.
Burner input adjustments are not required when the dryer is
operated up to this elevation.
Elevations above 10,000 ft. (3,048 m}:
[] When installed above 10,000 ft. (3,048 m), a 4% reduction
of the burner B.T.U. rating shown on the model/serial
number plate is required for each 1,000 ft. (305 m)
increase in elevation.
Gas supply pressure testing
[] The dryer must be disconnected from the gas supply piping
system during pressure testing at pressures greater than
1/2 psi.
1-®TEFLON is a registered trademark of E.I. Du Pont De Nemours and Company.
8
Page 9

Electrical Requirements
Electrical Shock Hazard
Plug into a grounded 3 prong outlet.
Do not remove ground prong.
Do not use an adapter.
Do not use an extension cord.
Failure to fo(Iow these instructions can result in death,
fire, or electrical shock.
[]
120 Volt, 60 Hz., AC only, 15- or 20-amp fused electrical
supply is required. A time-delay fuse or circuit breaker is
recommended. It is also recommended that a separate
circuit serving only this dryer be provided.
VENTING
Venting Requirements
Fire Hazard
Use a heavy metal vent.
Do not use a plastic vent.
Do not use a metal foil vent.
Failure to follow these instructions can result in death
or fire.
WARNING: To reduce the risk of fire, this dryer MUST BE
EXHAUSTED OUTDOORS.
iMPORTANT: Observe all governing codes and ordinances.
GROUNDING iNSTRUCTiONS
[] For a grounded, cord-connected dryer:
This dryer must be grounded. In the event of malfunction or
breakdown, grounding will reduce the risk of electric shock
by providing a path of least resistance for electric current.
This dryer is equipped with a cord having an equipment-
grounding conductor and a grounding plug. The plug must
be plugged into an appropriate outlet that is properly
installed and grounded in accordance with all local codes
and ordinances.
WARNING: Improper connection of the equipment-
grounding conductor can result in a risk of electric shock.
Check with a qualified electrician or service representative
or personnel if you are in doubt as to whether the dryer is
properly grounded. Do not modify the plug provided with
the dryer: if it will not fit the outlet, have a proper outlet
installed by a qualified electrician.
SAVE THESE INSTRUCTIONS
Dryer exhaust must not be connected into any gas vent,
chimney, wall, ceiling, attic, crawlspace, or a concealed space
of a building. Only rigid or flexible metal vent shall be used for
exhausting.
( O'
(102 ram)
+
4" (102 mm) heavy metal exhaust vent
[] Only a 4" (102 mm) heavy metal exhaust vent and clamps
may be used.
[] Do not use plastic or metal foil vent.
Rigid metal vent:
[] Recommended for best drying performance and to avoid
crushing and kinking.
Flexible metal vent: (Acceptable only if accessible to clean)
[] Must be fully extended and supported in final dryer location.
[] Remove excess to avoid sagging and kinking that may result
in reduced airflow and poor performance.
[] Do not install in enclosed walls, ceilings, or floors.
[] The total length should not exceed 73/4ft. (2.4 m).
NOTE: If using an existing vent system, clean lint from entire
length of the system and make sure exhaust hood is not
plugged with lint. Replace plastic or metal foil vents with rigid
metal or flexible metal vents. Review "Vent System Chart" and,
if necessary, modify existing vent system to achieve best drying
performance.
Page 10

Exhausthoods:
[] Must be at least 12" (305 mm) from ground or any object
that may obstruct exhaust (such as flowers, rocks, bushes,
or snow).
Recommended St__les:
Plan Vent System
Recommended exhaust installations
Typical installations vent the dryer from the rear of the dryer.
Other installations are possible.
B
Louveredhood
Acceptable Style:
Angled hood
Elbows:
[] 45° elbows provide better airflow than 90° elbows.
Box hood
Bet
-'11
B
_H
A. Dryer
B. Elbow
C, Wall
D. Exhaust hood
E. Clamps
Optional exhaust installations:
27" Wide Models can be converted to exhaust out the right side,
left side, or through the bottom (4-way vent kit). Each kit includes
step-by-step instructions. For ordering information, see "Venting
Kits."
E Rigid metal or flexible metal vent
G. Vent length necessary to connect elbows
H. Exhaust outlet
I. Optional side exhaust outlet
!
Clamps:
[] Use clamps to seal all joints.
[] Exhaust vent must not be connected or secured with screws
or other fastening devices that extend into interior of duct
and catch lint. Do not use duct tape.
improper venting can cause moisture and tint to collect
indoors, which may result in:
[] Moisture damage to woodwork, furniture, paint, wallpaper,
carpets, etc.
[] Housecleaning problems and health problems.
See "Venting Kits" for more information.
Fire Hazard
Cover unused exhaust holes with a manufacturer's
exhaust cover kit,
Contact your local dealer,
Failure to follow these instructions can result in death,
fire, electrical shock, or serious injury,
A B c
A, Standard rear offset exhaust installation
B. Left- or right-side exhaust installation
(27" wide models only)
C. Bottom exhaust installation (27" wide models only)
10
Page 11

Alternate installations for close clearances
Venting systems come in many varieties. Select the type best
for your installation. Two close-clearance installations are shown.
Refer to the manufacturer's instructions.
Over-The-Top installation (also available with one offset elbow)
Special provisions for mobile home installations:
The exhaust vent must be securely fastened to a noncombustible
portion of the mobile home structure and must not terminate
beneath the mobile home. Terminate the exhaust vent outside.
Determine vent path:
[] Select route that will provide straightest and most direct path
outdoors.
[] Plan installation to use fewest number of elbows and turns.
[] When using elbows or making turns, allow as much room
as possible.
[] Bend vent gradually to avoid kinking.
[] Use as few 90° turns as possible.
Periscope installation
NOTE: The following kits for close clearance alternate
installations are available for purchase.
Venting Kits
For more information, call 1=800=901=2042, or visit us
at www.applianceaccessories.com, inCanada, call
1=800=807=6777 or visit us at www.whirlpooiparts.ca.
Part Number Descriptions
8171587RP 0-5" Metal vent periscope
4396037RP 0"-18" Metal vent periscope
4396011RP 18"-29" Metal vent periscope
4396014 29"-50" Metal vent periscope
4392892 In-Wall metal DuraVent TM Periscope
W10186596 4-way vent kit - universal grey (27" Dryers Only)
4396028 Sure Connect TM venting kit
(over-the-top installation)
4396009RP 5' Universal connect vent, flexible dryer venting
4396010RP 6' SecureConnect TM vent, flexible dryer venting
4396013RB Dryer vent installer's kit
4396033RP 5' flexible dryer venting with clamps
4396727RP 8' flexible dryer venting with clamps
4396004 Dryer offset elbow
4396005 Wall offset elbow
4396006RW DuraSafe TM close elbow
4396007RW Through-the-wall vent cap
4396008RP 4" steel dryer venting clamps - 2 pack
8212662 Flush mounting Iouvered vent hood 4"
Determine vent length and elbows needed for best
drying performance:
[] Use following "Vent System Chart" to determine type of vent
material and hood combinations acceptable to use.
NOTE: Do not use vent runs longer than those specified
in "Vent System Chart." Exhaust systems longer than those
specified will:
[] Shorten life of dryer.
[] Reduce performance, resulting in longer drying times and
increased energy usage.
The "Vent System Chart" provides venting requirements that
will help achieve best drying performance.
Vent System Chart
Number of
90 ° turns or
elbows
0
1
2
3
4
NOTE: Side and bottom exhaust installations for 27" wide
models have a 90 ° turn inside the dryer. To determine
maximum exhaust length, add one 90° turn to the chart.
Type
of vent
Rigid metal
Rigid metal
Rigid metal
Rigid metal
Rigid metal
Box/louvered Angled
hoods hoods
64 ft. (20 m) 58 ft. (17.7 m)
54 ft. (16.5 m) 48 ft. (14.6 m)
44 ft. (13.4m) 38 ft. (11.6m)
35 ft. (10.7 m) 29 ft. (8.8 m)
27 ft. (8.2 m) 21 ft. (6.4 m)
11
Page 12

Vent System Chart
(29" Wide Long Vent Models Only)
Number of Type Box/Iouvered, or
90 ° turns of vent Angled hoods
or elbows
0 Rigid metal 120 ft. (36.6 m)
Make Gas Connection
1. Connect gas supply to dryer
1 Rigid metal 110 ft. (33.5 m)
2 Rigid metal 100 ft. (30.5 m)
3 Rigid metal 90 ft. (27.4 m)
4 Rigid metal 80 ft. (24.4 m)
5 Rigid metal 70 ft. (21.3 m)
Install Vent System
1. install exhaust hood
(305 ram)
.==_---12" rnin.
install exhaust hood and use caulking compound to seal
exterior wall opening around exhaust hood.
_2. Connect vent to exhaust hood
Flared
male fitting
Remove red cap from gas pipe. Using a wrench to tighten,
connect gas supply to dryer. Use pipe-joint compound
on threads of all non-flared male fittings, if flexible metal
tubing is used, be sure there are no kinks.
NOTE: For LP gas connections, you must use pipe-joint
compound resistant to action of LP gas. Do not use
TEFLON ®ttape.
2, Plan pipe fitting connection
B
A. 3/8" flexible gas connector
B. 3/8" dryer pipe
A combination of pipe fittings must be used to connect dryer
to existing gas line. A recommended connection is shown.
Your connection may be different, according to supply line
type, size, and location.
C. 3/8" to 3/8" pipe elbow
D.3/8" pipe-to-flare adapter fitting
C
Vent must fit over the exhaust hood. Secure vent to exhaust
hood with 4" (102 mm) clamp. Run vent to dryer location
using straightest path possible. Avoid 90° turns. Use clamps
to seal all joints. Do not use duct tape, screws, or other
fastening devices that extend into interior of vent to secure
vent, because they can catch lint.
12 1®TEFLON is a registered trademark of E.I. Dupont De Nemours and Company.
3. Open shut-off valve
Open shut-off valve in supply line; valve is open when handle
is parallel to gas pipe. Then, test all connections by brushing
on an approved noncorrosive leak-detection solution.
Bubbles will show a leak. Correct any leaks found.
Page 13

Connect Vent
Using a 4" (102 mm) clamp, connect vent to exhaust outlet
in dryer. If connecting to existing vent, make sure vent is
clean. Dryer vent must fit over dryer exhaust outlet and inside
exhaust hood. Check that vent is secured to exhaust hood
with a 4" (102 mm) clamp.
2, Move dryer to final location
Move dryer to final location. Avoid crushing or kinking vent.
After dryer is in place, remove corner posts and cardboard
from under the dryer.
Level Dryer
Tighten and adjust leveling legs
If dryer is not level or the same height as the washer, prop up
using a wood block. Use wrench to adjust legs up or down,
and check again for levelness. Once legs are level, make sure
all four legs are snug against the floor before tightening them.
Complete Installation Checklist
[_ Check that all parts are now installed. Ifthere is an extra
part, go back through steps to see what was skipped.
[_ Check that you have all of your tools.
[_ Dispose of/recycle all packaging materials.
[_ Check dryer's final location. Be sure vent is not crushed
or kinked.
[_ Check that dryer is level. See "Level Dryer."
[_ Remove film on console and any tape remaining on dryer.
[_ Wipe dryer drum interior thoroughly with a damp cloth to
remove any dust.
[_ Read "Dryer Use" in your "Use and Care Guide."
[_ Set the dryer on a full heat cycle (not an air cycle) for
20 minutes and start the dryer.
if the dryer will not start, check the following:
[] Dryer is plugged into a grounded 3-prong outlet.
[] Electrical supply is connected.
[] Household fuse is intact and tight, or circuit breaker
has not tripped.
[] Dryer door is closed.
[_ When the dryer has been running for 5 minutes, open the
dryer door and feel for heat. If you feel heat, cancel cycle
and close the door.
Check levelness of dryer from side to side. Repeat from
front to back.
NOTE: The dryer must be level for the moisture sensing system
to operate correctly.
Not Level LEVEL Not Level 13
If you do not feel heat, turn the dryer off and check to see
whether gas supply line shut-off valve is open.
[] If the gas supply line shut-off valve is closed, open it,
then repeat the 5-minute test as outlined above.
[] If the gas supply line shut-off valve is open, contact a
qualified technician.
NOTE: You may notice an odor when the dryer is first heated.
This odor is common when the heating element is first used.
The odor will go away.
Page 14

Reverse Door Swing (Optional}
If your door is the 29" Super Wide Side-Swing Door,
go to steps 1-13 beginning on this page.
If your door is the 27" Wide Side-Swing Door, go to steps 1-11
beginning on page 16.
If your door is the 27" Wide Side-Swing Door with Glass, go to
steps 1-13 beginning on page 19.
Remove bottom screws
open dryer door. Remove bottom screws from dryer cabinet
side of hinges. Loosen (do not remove) top screws from dryer
cabinet side of hinges.
,,,Lift door off top screws
NOTE: Magnetized screwdriver is helpful.
29" Super Wide Side=Swing Door
1, Place towel on dryer
Place towel on top of dryer to avoid damaging the surface.
Lift door until top screws in dryer cabinet are in large part of
hinge slot. Pull door forward off screws. Set door (handle side
up) on top of dryer. Remove top screws from dryer cabinet.
Remove screws attaching hinges to door.
14
Page 15

5, Remove screws from door
Remove screws at top, bottom, and side of door (4 screws)
that hold the inner and outer door together. Holding door over
towel on dryer, grasp sides of outer door and lift to separate it
from inner door. Set outer door aside.
NOTE: Do not pry apart with putty knife or screwdriver.
Do not pull on door seal or plastic door catches.
6, Switch door catch, bezel, & plug
Catch and bezel Plug
8, Flip door over
\
Flip door over so handle side is down.
Remove the door catch, bezel, and plug from the inside of
the inner door by squeezing and pulling/pushing them. Place
the door catch, bezel, and plug on the sides opposite from
where they were.
7= Rotate outer door
Rotate outer door 180° and set it back down on inner door.
Reattach outer door panel to inner door panel so handle is
on the side where hinges were just removed. Insert 4 door
screws.
Reattach door hinges to dryer door so that the larger hole is
at the bottom of the hinge.
15
Page 16

O, Remove door strike and
door strike plug
Remove door strike and door strike plug from dryer cabinet.
Insert the door strike into door strike plug hole and secure
with screw. Insert door strike plug into original door strike
hole and secure with screw.
1"1, emove and transfer
hinge hole plugs
dryer cabinet
NOTE: Two people may be needed to reinstall door.
Insert screws into the bottom holes on left side of dryer
cabinet. Tighten screws halfway. Position door so large
end of door hinge slot is over screws. Slide door up so
screws are in bottom of slots. Tighten screws. Insert and
tighten top screws in hinges.
13. Check door strike alignment
Use a small, flat-blade screwdriver to gently remove 4 hinge
hole plugs on left side of dryer cabinet. Transfer plugs into
hinge holes on opposite side of dryer cabinet.
V--
Close door and check that door strike aligns with door
catch. If it is needed, slide door catch left or right within slot
to adjust alignment.
27" Wide Model Side-Swing Door
1, Place towel on dryer
16
Place towel on top of dryer to avoid damaging the surface.
Page 17

Remove bottom screws
Open dryer door. Remove bottom screws from dryer cabinet
side of hinges. Loosen (do not remove) top screws from dryer
cabinet side of hinges.
Lift door off top screws
Remove screws from door
\
Remove screws at top, bottom, and side of door (6 screws).
Keep door screws separate from hinge screws as they are
different sizes. Holding door over towel on dryer, grasp sides
of outer door and lift to separate it from inner door.
NOTE: Do not pry apart with putty knife or screwdriver.
Do not pull on door seal or plastic door catches.
6. Rotate outer door
Lift door until top screws in dryer cabinet are in large part of
hinge slot. Pull door forward off screws. Set door (handle side
up) on top of dryer. Remove top screws from dryer cabinet.
Remove screws from hinges
Rotate outer door 180 ° and set it back down on inner door.
Be certain to keep cardboard spacer centered between doors.
Reattach outer door panel to inner door panel so handle is on
the side where hinges were just removed. Insert 6 door screws.
Flip door over
Flip door over so handle side is down.
Remove screws attaching hinges to door.
17
Page 18

8, Attach door hinges
............... i-
dryer cabinet
NOTE: 2 people may be needed to reinstall door.
Insert screws into the bottom holes on left side of dryer cabinet.
Tighten screws halfway. Position door so large end of door hinge
slot is over screws. Slide door up so screws are in bottom of
slots. Tighten screws. Insert and tighten top screws in hinges.
Reattach door hinges to dryer door so that the larger hole is
at the bottom of the hinge.
1
Remove the 4 screws that attach 2 plugs on the left side.
Transfer plugs to opposite side using the same 4 screws.
Close door and check that door strike aligns with door catch.
If it is needed, slide door catch left or right within slot to
adjust alignment.
18
Page 19

27" Wide Model Side-Swing Door with Glass
1, Place towel on dryer
©
Place towel on top of dryer to avoid damaging the surface.
_==_._Remove bottom screws
Open dryer door. Remove bottom screws from dryer cabinet
side of hinges. Loosen (do not remove) top screws from dryer
cabinet side of hinges.
Lift door off top screws
Remove screws attaching hinges to door.
Flip door over so handle side is down.
Lift door until top screws in dryer cabinet are in large part of
hinge slot. Pull door forward off screws. Set door (handle side
up) on top of dryer. Remove top screws from dryer cabinet.
19
Page 20

6, Remove screws from door
\
Remove screws at top, bottom, and side of door (4 screws).
Keep door screws separate from hinge screws as they are
different sizes.
7, Separate inner from outer door
9, Attach door hinges
Holding door over towel on dryer, pry inner door and lift to
separate it from outer door.
NOTE: Do not pull on door seal or plastic door catches.
8, Rotate outer door
Rotate outer door 180 ° and set it back down on inner door.
Be certain to keep cardboard spacer centered between
doors. Reattach outer door panel to inner door panel so
handle is on the side where hinges were just removed. Insert
4 door screws.
Reattach door hinges to dryer door so that the larger hole is
at the bottom of the hinge.
strike label
Remove door strike and door strike label from dryer cabinet.
Insert the door strike into hole where door strike label was
removed and secure with screw. Cover original door strike
hole with door strike label and press firmly into place.
2O
Page 21

1 1, Remove and transfer plugs
Remove the 4 screws that attach 2 plugs on the left side.
Transfer plugs to opposite side using the same 4 screws.
Close door and check that door strike aligns with door catch.
If it is needed, slide door catch left or right within slot to
adjust alignment.
dryer cabinet
NOTE: 2 people may be needed to reinstall door.
Insert screws into the bottom holes on left side of dryer
cabinet. Tighten screws halfway. Position door so large end of
door hinge slot is over screws. Slide door up so screws are in
bottom of slots. Tighten screws. Insert and tighten top screws
in hinges.
Troubleshooting
See the Use and Care Guide or visit our website and
reference "Frequently Asked Questions" to possibly avoid
the cost of a service call.
21
Page 22

f f f
SECURITE DE LA SECHEUSE
Votre s_curit_ et celle des autres est trbs importante.
Nous donnons de nombreux messages de s_curit_ importants dans ce manuel et sur votre appareil m_nager. Assurez-vous de
toujours lire tousles messages de securit6 et de vous y conformer.
Voici le symbole d'alerte de s6curit&
Ce symbole d'alerte de securit6 vous signale les dangers potentiels de deces et de blessures graves & vous
et 9,d'autres.
Tousles messages de securit6 suivront le symbole d'alerte de s6curite et le mot "DANGER" ou
"AVERTISSEMENT". Ces mots signifient :
Risque possible de d_cbs ou de blessure grave si vous ne
suivez pas imm_diatement les instructions.
Risque possible de decks ou de blessure grave si vous
ne suivez pas les instructions.
Tousles messages de s6curit6 vous diront quel est le danger potentiel et vous disent comment r6duire le risque de blessure et
ce qui peut se produire en cas de non-respect des instructions.
AVERTISSEMENT - ,,.i..°od, .oo.dio,,
m
[.'installation de la s_cheuse & linge doit 6tre effectu_e par un installateur qualifi_.
m
installer la s_cheuse conform6rnent aux instructions du fabricant et aux codes Iocaux.
m
Ne pas installer de s_cheuse a linge avec des mat6riaux d'6vacuation en plastique
souple ou un conduit m_tallique souple (de type papier d'alurninium). Si un conduit
mq_tallique souple est installS, celui-ci doit 6tre d'un type sp_cifique identifi_ par le
fabricant de I'appareil et convenir & une utilisation avec les s6cheuses & linge. Les
rnat_riaux d'_vacuation souples sont connus pour s'affaisser, 6tre facilement _cras_s
et bloquer la charpie, Ces situations obstrueront le d_bit d'air de la s_cheuse a linge et
augrnenteront le risque d'incendie,
Pour r_duire le risque de blessure grave ou de d_c_s, suivre toutes
les instructions d'installation.
- Conserver ces instructions.
iMPORTANT : L'installation du gaz doit se conformer aux codes Iocaux, ou en I'absence de codes Iocaux, au code canadien
d'installation B149.1 du gaz naturel ou du propane.
La s6cheuse doit _tre 61ectriquement reli6e &la terre conform6ment aux codes Iocaux, ou en I'absence de codes Iocaux, au Code
canadien de 1'61ectricit6, CSA C22.1.
Dans I'Etat du Massachusetts, les instructionsd'installation suivantes sont applicables :
[] Les travaux d'installation et r6paration doivent 6tre ex6cut6s par un plombier ou tuyauteur qualifi6 ou licenci6, ou par le
personnel qualifi6 d'une entreprise licenciee par I'#tat du Massachusetts.
[] Si une vanne & boisseau sph6rique est utilis6e, elle doit comporter une manette "T".
[] Si un conduit de raccordement flexible est utilis6, sa Iongueur ne doit pas depasser 3 pi.
22
Page 23

AVERTISSEMENT : Pour votre s_curit_, les renseignements darts ce manuel doivent
_tre observes pour r_duire au minimum les risques d'incendie ou d'explosion ou pour
_viter des dommages au produit, des blessures ou un d_c_s.
- Ne pas entreposer ou utiliser de I'essence ou d'autres vapeurs ou liquides
inflammables b proximit_ de cet appareil ou de tout autre appareil _lectrom_nager.
- QUE FAIRE DANS LE CAS D'UNE ODEUR DE GAZ :
®Ne pas tenter d'allumer un appareil.
= Ne pas toucher _ un commutateur _lectrique; ne pas utiliser le tel6phone se trouvant
sur les lieux.
®Evacuer tous les gens de la piece, de I'_difice ou du quarrier.
®Appeler imnm6diatement le fournisseur de gaz d'un t616phone voisin. Suivre ses
instructions.
= A d6faut de joindre votre fournisseur de gaz, appeler les pompiers.
- L'installation et I'entretien doivent _tre effectues par un installateur qualifi_, une
agence de service ou le fournisseur de gaz.
AVERTISSEMENT : L'odorat ne permet pas toujours la detection d'une fuite de gaz.
Les distributeurs de gaz recommandent I'emploi d'un d6tecteur de gaz (homologation UL ou CSA).
Pour d'autre information, contacter le fournisseur de gaz local.
En cas de detection d'une fuite de gaz, executer les instructions "Que faire dans le cas d'une odeur de gaz".
IMPORTANTES iNSTRUCTIONS DE SECURITE
AMERT_SSEMENT" Pour reduire le risque d'incendie, de choc 61ectrique ou de blessure Iors de I'utilisation de
la secheuse, ilconvient d'observer certaines precautions 616mentaires dont les suivantes "
[] Lire toutes les instructions avant d'utiliser la s6cheuse.
[] Ne pas placer des articles exposes aux huiles de cuisson
dans votre s6cheuse. Les articles contamin6s par des
huiles de cuisson peuvent contribuer & une r6action
chimique qui pourrait causer & la charge de s'enflammer.
[] Ne pas faire s6cher dans la machine des articles qui ont
d6ja et6 nettoy6s, laves, imbib6s, ou taches d'essence,
de solvants pour nettoyage a sec, d'autres substances
inflammables, ou de substances explosives puisqu'elles
degagent des vapeurs qui peuvent provoquer un
incendie ou une explosion.
[] Ne pas permettre a des enfants de jouer sur ou &
I'interieur de la secheuse. Une surveillance etroite est
n6cessaire Iorsque la s6cheuse est utilis6e pros d'eux.
[] Avant d'enlever la secheuse du service ou la jeter, enlever
la porte du compartiment de s6chage.
[] Ne pas mettre la main dans la secheuse si le tambour est
en mouvement.
[] Ne pas installer ni entreposer la secheuse ok elle sera
expos6e aux intemp6ries.
[] Ne pas jouer avec les commandes.
[] Ne pas r6parer ni remplacer une piece de la s6cheuse ou
essayer d'en faire I'entretien & moins d'une recommandation
sp6cifique dans le guide d'utilisation et d'entretien, ou
publiee dans les instructions de r6paration par I'utilisateur
que vous comprenez et pouvez ex6cuter avec comp6tence.
[] Ne pas utiliser un produit assouplissant de tissu ou des
produits pour 61iminer la statique &moins qu'ils ne soient
recommand6s par le fabricant du produit assouplissant de
tissu ou du produit.
[] Ne pas utiliser la chaleur pour faire secher des articles
fabriques avec du caoutchouc mousse ou des materiaux
semblables.
[] Nettoyer le filtre & charpie avant et apres chaque charge.
[] Ne pas laisser la charpie, la poussiere, ou la salete
s'accumuler autour du systeme d'6vacuation ou autour de
I'appareil.
[] Un nettoyage periodique de I'interieur de la secheuse et du
conduit d'6vacuation dolt _tre effectu6 par une personne
qualifi_e.
[] Pour les instructions de liaison A la terre, voir "Specifications
electriques" dans les instructions d'installation.
CONSERVEZ CES INSTRUCTIONS
23
Page 24

Avertissements de la proposition 65 de I'Etat de Californie '
AVERTISSEMENT : Ce produit contient au moins un produit chimique connu par I'Etat de Californie pour 6tre & I'origine de
cancers.
AVERTISSEMENT " Ce produit contient au moins un produit chimique connu par I'Etat de Californie pour 6tre & I'origine de
malformations et autres deficiences de naissance.
IMPORTANTES INSTRUCTIONS DE S¢:CURITI_
Avant de jeter ou de ranger votre vieille s6cheuse, enlever la porte.
CONSERVEZ CES INSTRUCTIONS
EXIGENCES D'INSTALLATION
Outillage et pi ces
Rassembler les outils et composants n6cessaires avant
d'entreprendre I'installation.
Outils n_cessaires pour toutes les installations :
@
Tournevis & lame plate Tournevis Phillips n° 2
Tourne-6crou de 1/4"
(recommand6)
Cisaille de ferblantier
(pour I'installation d'un
nouveau conduit)
db
Metre-ruban
Brides de serrage pour
conduit d'6vacuation
CI6 & molette avec
ouverture jusqu'&
1" (25 mm) ou cl6 &
douille & t_te hexagonale
Couteau utilitaire Couteau & mastic
Outils n_cessaires aux installations au gaz :
CI6 & tuyau de 8" ou 10"
Pistolet a calfeutrage et
compos6 de calfeutrage
(pour I'installation d'un
nouveau conduit d'6vacuation)
CI6 & molette de 8" ou 10"
(pour le raccordement au gaz)
Niveau
24
Pince
Compos6 d'6tanch6it6
des raccords filet6s -
r6sistant au gaz propane
Page 25

Pi_ces fournies
Pieds de nivellement (4)
Le sachet de pieces se trouve dans le tambour de las6cheuse.
V@ifier que toutes les pieces sont pr6sentes.
Pi_ces n6cessaires :
Consulter les codes Iocaux. V@ifier I'alimentation 61ectrique et
le circuit d'6vacuation existants. Voir "Sp6cifications 61ectriques"
et "Exigences concernant 1'6vacuation" avant d'acheter les
pieces.
V@ifier les exigences des codes. Certains codes limitent ou
n'autorisent pas I'installation des s6cheuses dans un garage,
un placard, une maison mobile ou une chambre & coucher.
Contacter I'inspecteur en b&timent local.
€:quipement facultatif : (Non fourni avec la s6cheuse)
Se r6f@er au Guide d'utilisation et d'entretien pour des
renseignements sur les accessoires disponibles pour la
s6cheuse.
Exigences d'emplacement
[] Un plancher de niveau ayant une pente maximale de
1" (25 mm) sous I'ensemble de la s6cheuse. Si la pente
est sup@ieure a 1" (25 mm), installer un ensemble de
pieds d'extension pour s6cheuse, piece n° 279810. Si
la s6cheuse n'est pas d'aplomb, le linge peut ne pas
culbuter convenablement, et les programmes automatiques
de d6tection peuvent ne pas fonctionner correctement.
Ne pas faire fonctionner la s6cheuse a une temp@ature inf@ieure
45°F (7°C). A des temp@atures inf@ieures, la s6cheuse risque
de ne plus s'arr6ter a la fin d'un programme automatique. Les
temps de s6chage risquent alors d'augmenter.
La s6cheuse ne dolt pas @re install6e ou remis6e dans un endroit
oQ elle sera expos6e a I'eau et/ou aux intemp@ies.
V@ifier les reglements Iocaux. Certains codes limitent ou
n'autorisent pas I'installation des s6cheuses dans un garage,
un placard, une maison mobile ou une chambre a coucher.
Communiquer avec I'inspecteur des b&timents local.
REMARQUE : Aucun autre appareil consommant un combustible
ne dolt 6tre install6 dans le m6me placard que la s6cheuse.
Espacements d'installation :
L'emplacement dolt _tre assez grand pour permettre d'ouvrir
completement la porte de la s6cheuse.
La plupart des installations requierent un espace minimum de
51/2"(140 mm) derriere la s6cheuse pour le conduit d'6vacuation
avec coude. Voir "Exigences concernant 1'6vacuation".
ModUles de 29" de largeur
Dimensions de s_cheuse
29"
(7:37 rnrn} I
-=--- 29"_
(737rnrn) I
Risque d'explosion
Garder les mati_res et les vapeurs inflammables, teile
que I'essence, loin de la s_cheuse.
Placer la s_cheuse au moins 460 mm (18 po) au=dessus
du piancher pour une installation darts un garage.
Le non=respect de ces instructions peut causer
un d_c_s, une explosion ou un incendie.
II vous faudra :
[] Un emplacement permettant une 6vacuation appropri6e.
Voir "Exigences concernant 1'6vacuation".
[] Un circuit distinct de 30 amperes pour les s6cheuses
61ectriques.
[] Un circuit distinct de 15 ou 20 amperes pour les s6cheuses
&gaz.
[] Si on utilise un cordon d'alimentation, une prise 61ectrique
avec liaison a la terre situ6e a moins de 2 pi (610 mm) de
I'un des c6t6s de la s6cheuse. Voir "Sp6cifications
61ectriques".
[] Un plancher robuste capable de supporter le poids de
la s6cheuse (s6cheuse et charge) de 200 lb. (90,7 kg).
II faut aussi prendre en compte le poids combin6 d'un
appareil m6nager voisin.
(1¢?i/_n m)
1/2H
(13 ram)
REMARQUE : Les pieds de nivellement doivent @re de
1/2" (13 mm) (pour correspondre & la hauteur de 3,6 pi cu
de la laveuse) ou 11/2"(38 mm) (pour correspondre & la hauteur
de 3.8 pi cu de la laveuse).
133/4"
(_,9 rnm)
(705 ram)
_ ._,--J 273/4" _
78 rnm)
273/4"
(705 turn)
f
1V2'
(38 ram)
f
[
A, Porte a grande ouverture laterale
B. Porte rabattable _ large ouverture
25
Page 26

Espacement pour une installation
L_]4,, max,^ m
[_ _ ,l_ mm___jI
-.. ___ (1550m)_
1"--_ _- 29"-_ _- 1" -_1"*_< 273A"_51/2"_-
(25rnrn) (737mm) (25mm)(25mm}(705mrn)(140mm}
A B
A. Encastrement
B, Vue laterale - placard ou endroit exigu
C. Porte du placard avec orifices d'entree d'air
*Espacement requis
ModUles de 27" de largeur
Dimensions de s_cheuse
_=- 27"_
(888ram) I
(1092ram)
II
"t- 223/4"--_ - "_,--- 29V2" _
(578 ram) (749 ram)
r
•48in_*
(310cm)_
T
43"
11/2"
(38ram)
133/4"
(349 mrn)
24in._*--
291/2"
(749mm)
E}
f
.._ 3"*
(76ram)
(76ram)
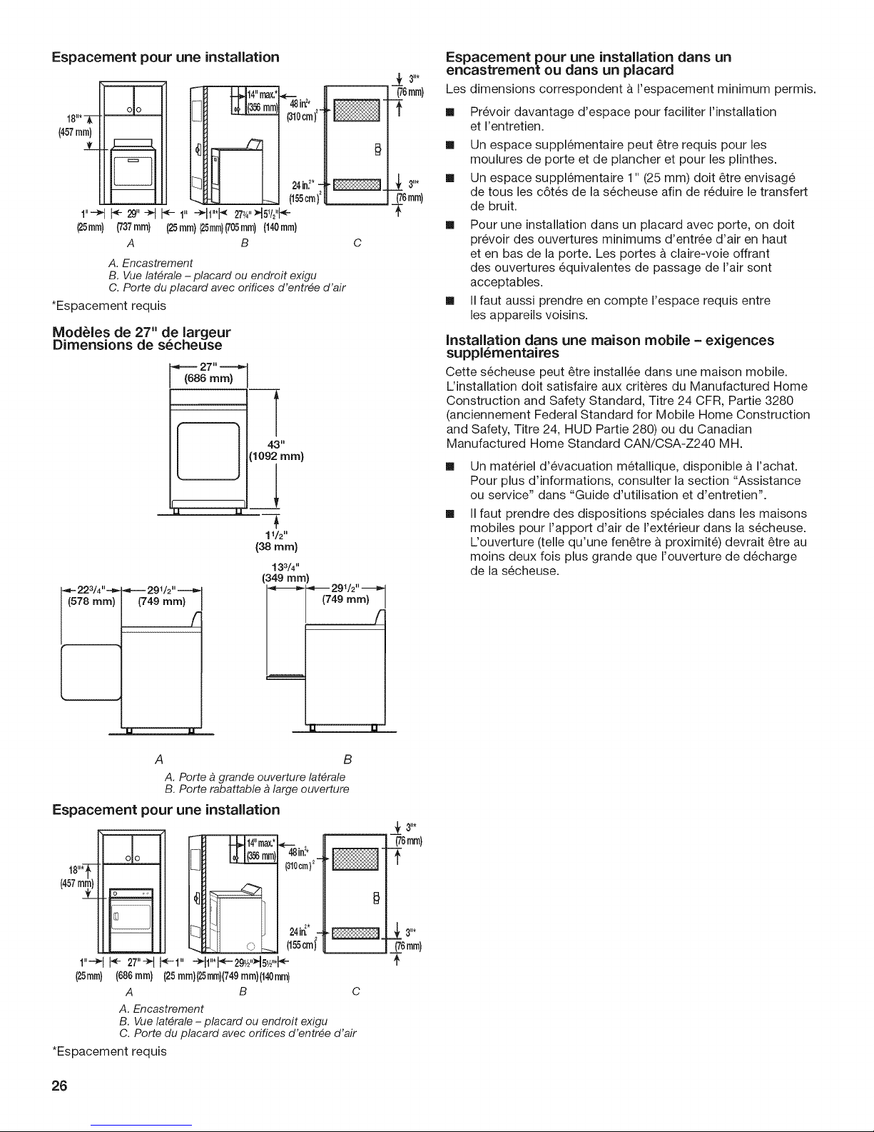
Espacement pour une installation darts un
encastrement ou darts un placard
Les dimensions correspondent a I'espacement minimum permis,
[] Pr6voir davantage d'espace pour faciliter I'installation
et I'entretien.
[] Un espace suppl6mentaire peut _tre requis pour les
moulures de porte et de plancher et pour les plinthes.
[] Un espace suppl6mentaire 1" (25 mm) dolt _tre envisag6
de tousles c6t6s de la s6cheuse afin de r6duire le transfert
de bruit.
[] Pour une installation dans un placard avec porte, on dolt
pr6voir des ouvertures minimums d'entr6e d'air en haut
et en bas de la porte. Les portes & claire-vole offrant
des ouvertures 6quivalentes de passage de I'air sont
acceptables.
[] II faut aussi prendre en compte I'espace requis entre
les appareils voisins.
Installation darts une maison mobile = exigences
suppl_mentaires
Cette s6cheuse peut _tre install6e dans une maison mobile.
Uinstallation dolt satisfaire aux criteres du Manufactured Home
Construction and Safety Standard, Titre 24 CFR, Partie 3280
(anciennement Federal Standard for Mobile Home Construction
and Safety, Titre 24, HUD Pattie 280) ou du Canadian
Manufactured Home Standard CAN/CSA-Z240 MH.
[]
Un mat6riel d'_vacuation m_tallique, disponible & I'achat.
Pour plus d'informations, consulter la section "Assistance
ou service" dans "Guide d'utilisation et d'entretien".
[]
II faut prendre des dispositions sp_ciales dans les maisons
mobiles pour I'apport d'air de I'ext_rieur dans la s_cheuse.
Uouverture (telle qu'une fen_tre & proximitY) devrait _tre au
moins deux fois plus grande que I'ouverture de d_charge
de la s_cheuse.
A B
A. Porte b grande ouverture laterale
B. Porte rabattable a largeouverture
Espacement pour une installation
_14"ma_' --
_j : -- (310cm)2
(4_8 _'===="_._
1"-_ _ 27"-_ _-1"
(25ram) (686ram) (25mm)(25mm)(749mrn)(140mm)
A B C
A. Encastrement
B. Vue laterale - placard ou endroit exigu
C. Porte du placard avec orifices d'entree d'air
*Espacement requis
26
_f 311.
_6mm)
f
3"*
i_o ram)
Page 27

f
RACCORDEMENT A L'ALIMENTATION ELECTRIQUE DE LA
Si CHEUSE ELECTRIQUE- CANADA SEULEMENT
Specifications lectriques
Risque de choc _lectrique
Brancher sur une prise a 4 alveoles reliee a la terre.
Le non=respect de cette instruction peut causer
un d_c_s ou un choc _lectrique.
C'est _ I'utilisateur qu'incombe la responsabilit6 de :
[] Contacter un 61ectricien qualifi6.
[] S'assurer que le raccordement 61ectrique est ad6quat
et conforme au Code canadien de 1'61ectricit6, C22.1 -
derniere 6dition, eta tousles codes Iocaux en vigueur.
Pour obtenir un exemplaire des normes des codes ci-dessus,
contacter : Canadian Standards Association, 178 Rexdale
Blvd., Toronto, ON M9W 1R3 CANADA.
[] Uappareil doit 6tre aliment6 uniquement par un circuit
monophas6 de 120/240 V CA seulement, 60 Hz a 4 ills,
sur un circuit s6par6 de 30 amperes, fusionn6 aux deux
extr6mit6s de la ligne. On recommande d'utiliser un fusible
ou un disjoncteur temporis6. On recommande 6galement
que cet appareil soit aliment6 par un circuit ind6pendant.
[] Cette s6cheuse est 6quip6e d'un cordon d'alimentation
homologu6 par la CSA International a introduire dans
une prise murale standard 14-30R. Le cordon mesure
5 pi (1,52 m). Veiller ace que la prise murale se trouve
proximit6 de I'emplacement d6finitif de la s6cheuse.
[] Ne pas utiliser de c&ble de rallonge.
En cas d'utilisation d'un cordon d'alimentation de rechange,
il est conseill6 d'utiliser le cordon d'alimentation de rechange -
piece num@o 8579325. Pour plus d'information, consulter la
section "Assistance ou service" dans "Guide d'utilisation et
d'entretien".
iNSTRUCTiONS DE LIAISON A LA TERRE
[] Pour une s6cheuse reli6e & la terre et connect6e par
un cordon :
Cette s6cheuse doit _tre reli6e a la terre. En cas de mauvais
fonctionnement ou de panne, la liaison a la terre r6duira le
risque de choc 61ectrique en offrant au courant electrique un
acheminement d'6vacuation de moindre r6sistance. Cette
s6cheuse est aliment6e par un cordon 61ectrique comportant
un conducteur reli6 a la terre et une fiche de branchement
munie d'une broche de liaison a la terre. La fiche doit _tre
branch6e sur une prise appropri6e qui est bien install6e et
reli6e & la terre conform6ment & tousles codes et reglements
Iocaux.
AVERTiSSEMENT " Le raccordement incorrect de
cet appareil au conducteur de liaison & la terre peut susciter
un risque de choc 61ectrique. En cas de doute quant a la
qualit6 de liaison & la terre de la s6cheuse, consulter un
61ectricien ou un technicien ou un personnel qualifi6. Ne pas
modifier la fiche de branchement fournie avec la s6cheuse;
si la fiche ne correspond pas & la configuration de la prise de
courant, demander & un 61ectricien qualifi6 d'installer une
prise de courant appropri6e.
CONSERVEZ CES INSTRUCTIONS
Prise murale _ 4 ills (14-30R)
27
Page 28

Installation des pieds de nivellement
Risque du poids excessif
Utiliser deux ou plus de personnes pour d_placer et
installer la s_cheuse.
Le non=respect de cette instruction peut causer
une blessure au dos ou d'autre blessure.
Pour utilisation en maison mobile
Les s6cheuses a gaz doivent _tre solidement fix6es au plancher.
Les installations en maison mobile n6cessitent un ensemble
d'ancrage au sol pour installation en maison mobile. Pour le
processus de commande, consulter les "Guide d'utilisation et
d'entretien".
1, Preparer la s_cheuse pour
ies pieds de niveilement
\
Pour ne pas endommager le plancher, utiliser un grand
morceau de carton d6coup6 dans I'emballage de la
s6cheuse; le placer sous tout le bord arriere de la s6cheuse.
Saisir fermement la s6cheuse par la caisse (non par le
panneau de commande) et incliner soigneusement la
s6cheuse sur le carton.
Visser clans ies pieds
de niveilernent
RACCORDEMENT D'UNE
SECHEUSE A GAZ
Specifications de I'alirnentation en gaz
Risque d'explosion
Utiliser une canalisation neuve d'arriv_e de gaz
approuv_e par CSA international.
installer un robinet d'arr_t.
Bier sorter chaque organe de connexion de la
canalisation de gaz.
En cas de connexion au gaz propane, demander _ une
personne qualifi_e de s'assurer que la pression de gaz
ne d_passe pas 330 mm (13 po) de la colonne d'eau.
Par personne qualifi6e, on comprend :
le personnel autoris_ de chauffage,
le personnel autoris_ d'une compagnie de gaz, et
le personnel d'entretien autoris_.
Le non=respect de ces instructions peut causer
un d6c_s, un explosion ou un incendie.
A I'aide d'une cl6 et d'un m_tre-ruban, visser les pieds
dans les trous pour pieds de nivellement jusqu'a ce que le
bas de chaque pied se trouve a environ 1/2" (13 mm) (pour
correspondre a la hauteur de 3,6 pi cu de la laveuse) ou
11/2"(38 mm) (pour correspondre a la hauteur de 3,8 pi cu de
la laveuse) du bas de la s6cheuse.
/_pr6sent, redresser la s6cheuse et la placer sur ses pieds.
Faire glisser la s6cheuse jusqu'& ce qu'elle se trouve
proximit6 de son emplacement final. Laisser suffisamment
d'espace pour connecter le conduit d'6vacuation.
28
Type de gaz
Gaz naturel :
Cette s6cheuse est 6quip6e pour une alimentation au gaz naturel.
Sa conception est homologu6e par CSA International pour
I'alimentation au gaz de p6trole liqu_fi6 (propane ou butane),
avec conversion appropri6e.
[]
Cette s6cheuse dolt _tre 6quip6e du brOleur convenable,
correspondant au gaz sp6cifique qui alimente I'habitation.
Uinformation sur le brOleur se trouve sur la plaque
signal6tique dans le Iogement de la porte de la s6cheuse.
Si ces renseignements ne correspondent pas au type de
gaz disponible, contacter votre marchand ou composer les
num6ros de t616phone indiqu_s sur la page de garde des
"Guide d'utilisation et d'entretien".
Page 29

Conversion pour I'alimentation au propane :
Un technicien qualifi_ dolt effectuer la conversion.
Ne pas entreprendre de convertir la s6cheuse pour I'utilisation
d'un gaz diff6rent de celui indiqu6 sur la plaque signal6tique sans
d'abord consulter la compagnie de gaz.
iMPORTANT : L'installation au gaz dolt _.tre conforme aux codes
Iocaux, ou en I'absence de codes Iocaux, au Code National
d'alimentation au gaz, & la norme ANSI Z223.1/NFPA 54 ou au
Code canadien des installations au gaz naturel et au propane,
CSA-B149.1.
Canalisation de gaz
[] Un tuyau IPS de 1/2" est recommand&
[] Pour les Iongueurs inf_rieures a 20 pi (6,1 m), on peut utiliser
des tuyaux approuv_s de 3/8" dans la mesure oQ les codes
Iocaux et le fournisseur de gaz I'autorisent.
[] La canalisation dolt comprendre un connecteur obtur_
(filetage NPT de 1/8" ou plus) accessible pour le
raccordement de I'instrument de mesure imm_diatement en
amont de la connexion d'alimentation en gaz de la s_cheuse
(voir I'illustration).
[] La canalisation dolt comprendre un robinet d'arr_t.
Aux Etats=Unis :
Un robinet d'arrSt individuel manuel dolt 8tre install_
six (6) pi (1,8 m) maximum de la s_cheuse, conform_ment
au Code national d'alimentation au gaz, ANSI Z223.1.
Au Canada :
Un robinet d'arr_t individuel manuel dolt 8tre install_
conform_ment a la norme B149.1 du Code des installations
au gaz naturel ou propane. On recommande que le robinet
d'arr_t manuel individuel soit install_ a 6 pi (1,8 m) maximum
de la s_cheuse.
Le robinet d'arr_t dolt 8tre facilement accessible pour I'ouverture
et la fermeture. E
Option 2 (an_thode alternative)
Conduit d'aluminium ou de cuivre approuv_ "
[] Pour les Iongueurs sup_rieures a 20 pi (6,1 m), on peut
utiliser des conduits approuv_s de 3/8" (si les codes et
le fournisseur de gaz le permettent).
[] Pour le gaz naturel, ne pas utiliser de conduits en cuivre.
[] Adaptateur de 3/8" x tuyau NPT de 3/8" entre le conduit
de la s_cheuse et le tuyau approuv_ de 3/8".
[] Pour les Iongueurs sup_rieures a 20 pi (6,1 m), on dolt utiliser
des tuyaux plus gros et un adaptateur de calibre different.
[] Si la s_cheuse a _t_ convertie pour une utilisation au
propane, on peut utiliser un tuyau en cuivre pour propane
compatible de 3/8". Si la Iongueur totale de la canalisation
d'alimentation en gaz est sup_rieure a 20 pi (6,1 m), utiliser
un conduit de taille sup_rieure.
REMARQUE : On dolt utiliser un compos_ d'_tanch_it_
des tuyauteries r_sistant &I'action du gaz de p_trole liqu_fi&
Ne pas utiliser de ruban ®t
adh_sif TEFLON .
Canalisation d'arriv_e de gaz de la s_cheuse
[] La canalisation d'arriv_e de gaz sortant a I'arriere de
la s_cheuse est dot_e d'un filetage male de 3/8".
ModUle de 29" de largeur
11/4"
(32 rnm}
91/4 H_
(235 ram)
A. Conduit NPT de la secheuse de 3/8"
ModUle de 27" de largeur
A. Connecteur de gaz flexible de 3/8"
B. Adaptateur de tuyau au joint conique de 3/8"
C. Connecteur obture (filetage NPT de 1/8" ou plus)
D. Canafisation de gaz (NPT de 1/2")
E. Robinet d'arr#t du gaz
Exigences corlcerr_ant _e raccordement au gaz
Cette s_cheuse & gaz peut _tre raccord_e au gaz de nombreuses
fagons diff_rentes. Voir ci-dessous quelques directives pour deux
m_thodes de raccordement diff_rentes.
Cette s_cheuse dolt 8tre raccord_e a la canalisation d'alimentation
en gaz & I'aide d'un connecteur de gaz flexible homologu_ qui
respecte les normes applicables aux connecteurs utilis_s avec
des appareils m_nagers a gaz, ANSI Z21.24 ou CSA 6.10.
Option 1 (an_thode recommand_e)
Raccord & gaz en acier inoxydable souple :
[]
Si les codes Iocaux le permettent, utiliser un raccord neuf
en acier inoxydable souple (conception homologu_e par
I'American Gas Association ou par CSA International) pour
raccorder la s_cheuse & la canalisation rigide d'alimentation
en gaz. Selon le besoin, utiliser un coude et un adaptateur
de 3/8" x tuyau NPT de 3/8" entre le raccord de gaz flexible
et la canalisation de gaz de la s_cheuse, pour _viter toute
d_formation.
11/2"
(38 ram)
A
5 3/4" .....
(146 mm) .............................
A. Conduit NPT de la secheuse de 3/8"
Caracteristiques d'alimentation du brQleur
Altitudes inf6rieures ou _gales a 10 O0Opi (3 048 an) :
[] La conception de cette s_cheuse a _t_ homologu_e par
CSA International pour une utilisation jusqu'& une altitude
de 10 000 pieds (3 048 m) au-dessus du niveau de lamer
pour le d_bit thermique indiqu_ sur la plaque signal_tique.
Aucun r_glage du brQleur n'est n_cessaire Iorsque la
s_cheuse est utilis_e & une altitude inf_rieure & cette valeur
maximale.
1®TEFLON est une marque deposee de E.I. Du Pont De Nemours et Compagnie.
29
Page 30

Altitudes sup6rieures _ 10 000 pieds (3 048 m) :
[] Si la s6cheuse doit _,tre utilis6e & une altitude sup6rieure
&10 000 pieds (3 048 m), on doit r6duire de 4 % le d6bit
thermique du brQleur indiqu6 sur la plaque signal6tique pour
chaque tranche de 1 000 pieds (305 m) d'augmentation de
I'altitude.
Epreuve sous pression de I'alimentation en gaz
[] La s6cheuse doit 6tre d6connect6e du systeme de
canalisations d'alimentation en gaz lots de tout test de
pression & des pressions plus 61ev6es que 1/2 Ib/po 2.
Specifications lectriques
Risque de choc _lectrique
Brancher sur une prise a 3 alv_oles reli6e _ la terre.
Ne pas enlever la broche de liaison _ la terre.
Ne pas utiliser un adaptateur.
Ne pas utiliser un c_ble de rallonge.
Le non-respect de ces instructions peut causer
un d_c_s, un incendie ou un choc _lectrique.
[]
L'appareil doit 6tre aliment6 par un circuit de 120 V, CA
seulement, 60 Hz, 15 ou 20 amperes, prot6g6 par un fusible.
On recommande I'emploi d'un fusible ou d'un disjoncteur
temporis& II est recommand6 de raccorder I'appareil sur
un circuit distinct exclusif &cet appareil.
INSTRUCTIONS DE LIAISON A LA TERRE
[] Pour une s6cheuse reli6e & la terre et connect6e par
un cordon :
Cette s6cheuse doit _tre reli6e & la terre. En cas de mauvais
fonctionnement ou de panne, la liaison & la terre r6duira le
risque de choc 61ectrique en offrant au courant electrique un
acheminement d'6vacuation de moindre r6sistance. Cette
s6cheuse est aliment6e par un cordon 61ectrique comportant
un conducteur reli6 & la terre et une fiche de branchement
munie d'une broche de liaison & la terre. La fiche doit _tre
branch6e sur une prise appropri6e qui est bien install6e et
reli6e & la terre conform6ment & tousles codes et reglements
Iocaux.
AVERTiSSEMENT : Le raccordement incorrect de
cet appareil au conducteur de liaison & la terre peut susciter
un risque de choc 61ectrique. En cas de doute quant &la
qualit6 de liaison & la terre de la s6cheuse, consulter un
61ectricien ou un technicien ou un personnel qualifi& Ne pas
modifier la fiche de branchement fournie avec la s6cheuse;
si la fiche ne correspond pas & la configuration de la prise de
courant, demander & un 61ectricien qualifi6 d'installer une
prise de courant appropri6e.
CONSERVEZ CES INSTRUCTIONS
30
f
L'EVACUATION
Exigences concernant I' vacuation
Risque d'incendie
Utiliser un conduit d'_vacuation en m_tal Iourd.
Ne pas utiliser un conduit d'_vacuation en plastique.
Ne pas utiliser un conduit d'_vacuation en feuille
de m_tal,
Le non=respect de ces instructions peut causer
un d_c_s ou un incendie.
AVERTISSEMENT : Pour r6duire le risque d'incendie,
cette s6cheuse doit FtVACUER L'AIR A L'EXTC:RIEUR.
iMPORTANT : Respecter les dispositions de tousles codes
et reglements en vigueur.
Le conduit d'6vacuation de la s6cheuse ne doit pas _,tre
connect6 & une 6vacuation de gaz, une chemin6e, un tour, un
plafond, un grenier, un vide sanitaire ou un vide de construction.
Seul un conduit en m6tal flexible ou rigide doit 6tre utilis6 pour
1'6vacuation.
(102 ram)
4"
{
Conduit d'6vacuation en m6tal Iourd de 4" (102 mm)
[] Utiliser un conduit d'6vacuation en m6tal Iourd de 4"
(102 mm) et des brides de serrage.
[] Ne pas utiliser de conduit de plastique ou en aluminium.
Conduit m_tallique rigide :
[] Recommand6 pour une meilleure performance de s6chage
et pour r6duire les risques d'6crasement et de d6formation.
Conduit m_taHique flexible : (Acceptable uniquement si
accessible pour le nettoyage)
[] Doit _tre completement d_ploy_ et support_ dans
I'emplacement final de la s_cheuse.
[] Enlever tout exces de conduit pour _viter tout affaissement et
d_formation susceptible de r_duire la capacit_ d'_vacuation
et le rendement.
[] Ne pas installer le conduit dans les cavit_s ferrules des
murs, plafonds ou planchers.
[] La Iongueur totale ne doit pas exc_der 73/4 pi (2,4 m).
REMARQUE : Lors de I'utilisation d'un systeme de d_charge
existant, nettoyer et _liminer la charpie sur toute la Iongueur
du systeme et veiller & ce que le clapet d'_vacuation ne soit
pas obstru_ par une accumulation de charpie. Remplacer tout
conduit de plastique ou d'aluminium par un conduit m_tallique
rigide ou flexible. Examiner le tableau des systemes d'_vacuation
et au besoin, apporter les modifications n_cessaires au systeme
d'_vacuation pour atteindre le meilleur rendement de s_chage.
Page 31

Clapetsded_charge:
[] Doltsesituer&aumoins12"(305mm)au-dessusdusol
oudetoutobjetsusceptibled'obstruer1'6vacuation
(parexemplefleurs,roches,arbustesouneige).
Planification du syst me d' vacuation
Installations d'_vacuation recornmandees
Styles recornrnand_s :
Clapet _ persiennes
Style acceptable :
Clapet incfine
Coudes :
[] Les coudes & 45° permettent une meilleure circulation
de Fair que les coudes & 90 °.
Clapet de type boTte
Meill
Les installations typiques consistent a acheminer le conduit
d'6vacuation & I'arriere de la s6cheuse. D'autres installations sont
possibles.
A--
A. Secheuse
B. Coude
C. Mur
D. Clapet de decharge
E. Brides
installations d'6vacuation facultatives :
Les modeles de 27" de largeur peuvent 6tre convertis pour
6vacuer par le c6t6 droit, le c6t6 gauche ou par le bas (ensemble
d'6vacuation 4 voles). Chaque ensemble comporte des
instructions 6tape par 6tape. Pour les renseignements sur la
maniere de commander, voir "Trousses d'6vacuation".
F. Conduit metalfique rigide ou souple
G.Longueur de conduit necessaire pour
raccorder les coudes
H.Bouche de decharge
L Sortie d'evacuation laterale facultative
B
\1
Brides de serrage :
[] Utiliser des brides de serrages pour sceller toutes
les jointures.
[] Le conduit d'6vacuation ne doit pas _tre connect6 ou fix6
avec des vis ou avec tout autre dispositif de serrage qui se
prolonge & I'int@ieur du conduit et oQla charpie risque de
s'accrocher. Ne pas utiliser de ruban adh6sif pour conduit.
Une mauvaJse _vacuation de I'aJr peut causer de
I'humidit_ et une accumulation de charpie _ I'int_rieur de
la maison, ce qui peat provoquer :
[] Dommages par I'humidit6 aux boiseries, meubles, peinture,
papier-peint, tapis, etc.
[] Problemes de nettoyage dans la maison et problemes
de sant&
Pour plus de renseignements voir "Trousses d'6vacuation".
Risque d'Jncendie
Recouvrir tous les orifices d'evacuation non utilis_s
avec une trousse du fabricant.
Contacter votre marchand local.
Le non=respect de ces instructions peat causer
un d6c_s, un incendie, un choc 61ectrJque ou une
blessure grave.
A C
A. Installation avec acheminement standard du conduit
d'evacua tion par I'arriere
B. Installation avec evacuation par la gauche ou par
la droite (modeles de 27" de largeur uniquement)
C. Installation avec evacuation par le bas (modeles
de 27" de largeur uniquement)
31
Page 32

Installations altern6es pour d_gagements _troits
II existe de nombreux systemes d'6vacuation. Choisir le type
le mieux adapt6 & votre installation. Sur I'illustration : les
installations a double d6gagement. Se rapporter aux instructions
du fabricant.
Installation au-dessus de la secheuse
(egalement disponible avec un coude decale)
Nurn_ro de Descriptions
pi_ces
4396727RP Conduit d'_vacuation souple pour s_cheuse
de 8' avec brides
4396004 Coude d_cal_ pour s_cheuse
4396005 Coude d_cal_ pour mur
4396006RW Coude serr_ DuraSafe TM
4396007RW Clapet de conduit d'_vacuation a travers lemur
4396008RP Brides d'_vacuation en acier de 4" pour
s_cheuse - Lot de 2
8212662 Clapet d'_vacuation a persiennes de 4" pour
montage en affleurement
Dispositions sp_ciales pour les maisons mobiles :
Le systeme d'_vacuation dolt _tre solidement fix_ & une section
non combustible de la structure de la maison mobile et ne dolt
pas se terminer en dessous de celle-ci. Acheminer le conduit
d'_vacuation vers I'ext_rieur.
Installation de periscope
REMARQUE : Les trousses suivantes pour les installations
altern_es a d_gagements _troits sont disponible a I'achat.
Trousses d' vacuation
Pour plus de renseignements, contacter le 1=800-807-6777 ou
visiter notre site Web www.whirlpoolparts.ca.
Nurn_ro de Descriptions
pi_ces
8171587RP P_riscope d'_vacuation m_tallique de 0 a 5"
4396037RP P_riscope d'_vacuation m_tallique de 0" & 18"
4396011RP P_riscope d'_vacuation m_tallique de 18" a 29"
4396014 P_riscope d'_vacuation m_tallique de 29" 9,50"
4392892 P_riscope DuraVent TM m_tallique mural
W10186596 Trousse d'_vacuation & 4 directions - gris
universel (s_cheuses de 27" uniquement)
4396028 Trousse d'_vacuation Sure Connect TM
(installation par le dessus)
4396009RP Conduit raccordement universel de 5', conduit
d'_vacuation souple pour s_cheuse
4396010RP Conduit SecureConnect de 6', conduit
d'_vacuation souple pour s_cheuse
4396013RB Trousse d'installation du conduit de s_cheuse
4396033BP Conduit d'_vacuation souple pour s_cheuse
de 5' avec brides
TM
D_terminer I'itin_raire d'acheminement du conduit :
[] Choisir I'itin_raire d'acheminement vers I'ext_rieur qui sera
le plus direct et le plus rectiligne.
[] Planifier I'installation pour introduire le hombre minimal
de coudes et de changements de direction.
[] Si des coudes ou changements de direction sont utilis_s,
pr_voir autant d'espace que possible.
[] Plier le conduit graduellement pour _viter de le d_former.
[] Utiliser le moins possible de changements de direction
b.90°.
D_terminer la Iongueur du conduit et les coudes
n_cessaires pour un s_chage optimal :
[] Utiliser le "Tableau des systemes d'_vacuation" ci-dessous
pour d_terminer le type de composants et les combinaisons
acceptables.
REMARQUE : Ne pas utiliser un conduit de Iongueur
sup6rieure &la valeur sp_cifi6e dans le "Tableau des
systemes d'6vacuation". Si la Iongueur du circuit est
sup6rieure &la valeur sp_cifi6e dans le tableau, on
observera :
[] Une r_duction de la Iong_vit_ de la s_cheuse.
[] Une r_duction du rendement, avec temps de s_chage
plus longs et une plus grande consommation d'_nergie.
32
Page 33

Le "Tableau des systemes d'6vacuation" fournit les sp6cifications
d'6vacuation qui vous aideront a atteindre la meilleure
performance de s6chage.
Tableau des syst_mes d'_vacuation
Nombre de
coudes & 90°
Type de
conduit
d'_vacuation
Clapets de Clapets
type boite/& inclines
persiennes
Installation du circuit d'_vacuation
1, Installer ie clapet d'_vacuation
12" rnin.
M_tallique
rigide
1
2
4 M_tallique
REMARQUE : Les installations d'6vacuation par le c6t6 ou par
le bas (modeles de 27" de largeur) comportent un changement
de direction a 90° a I'int6rieur de la s6cheuse. Pour 6tablir la
Iongueur maximale du conduit, ajouter un changement de
direction & 90° au tableau.
M_tallique
rigide
M_tallique
rigide
M_tallique
rigide
rigide
64 pi (20 m) 58 pi (17,7 m)
54 pi (16,5 m) 48 pi (14,6 m)
44 pi (13,4 m) 38 pi (11,6 m)
35 pi (10,7 m) 29pi(8,8m)
27 pi (8,2 m) 21 pi (6,4 m)
Tableau des syst_mes d'_vacuation
(ModUles d'_vacuation long de
iargeur 29" uniquement}
Nombre de Type de Clapets de type bofte/
coudes & 90° conduit & persiennes, ou inclines
d'_vacuation
0 rigide 120 pi (36,6 m)
1 rigide 110 pi (33,5 m)
2 rigide 100 pi (30,5 m)
3 rigide 90 pi (27,4 m)
4 rigide 80 pi (24,4 m)
5 rigide 70 pi (21,3 m)
M_tallique
M_tallique
M_tallique
M_tallique
M_tallique
M_tallique
12" rnin.
(305 ram)
Installer un clapet d'6vacuation et calfeutrer I'ouverture
murale a I'ext6rieur autour du clapet d'6vacuation.
Raccorder le conduit
d'_vacuation au clapet
Le conduit dolt se trouver par dessus le clapet d'6vacuation.
Fixer ensemble le conduit et le clapet avec une bride de
4" (102 mm). Acheminer le conduit d'6vacuation jusqu'&
I'emplacement de la s6cheuse, utiliser I'itin6raire le plus
rectiligne possible. Eviter les changements de direction a 90°.
Utiliser des brides de serrage pour sceller toutes les jointures.
Ne pas utiliser de ruban adh6sif pour conduit, de vis ou autres
dispositifs de fixation qui se prolongeraient a I'int6rieur du
conduit pour s6curiser 1'6vacuation, car la charpie pourrait s'y
accrocher.
33
Page 34

Raccordernent au gaz
1, Raccorder i'alimentation en
gaz a la s_cheuse
Raccord male Raccord male
conique non conique
Retirer le capuchon rouge de la canalisation de gaz./_ I'aide
d'une cl6 pour serrer, raccorder I'alimentation en gaz & la
s6cheuse. Utiliser un compos6 d'6tanch6it6 des tuyauteries
sur tous les filetages des raccords males non coniques. Si on
utilise un conduit m6tallique souple, veiller &ce qu'il ne soit
pas pinc&
REMARQUE : Pour les raccordements au propane, on doit
utiliser un compos6 d'6tanch6Jt6 r6sistant & Faction du
propane. Ne pas utiliser de ruban ®t
adh6sif TEFLON .
2, Preparer la connexion
des raccords de tuyauterie
Raccordernent du conduit
d'6vacuation
ia bouche d'_vacuation
/_I'aide d'une bride de serrage de 4" (102 mm), relier
le conduit d'6vacuation & la bouche d'6vacuation de la
s6cheuse. Si on utilise le conduit d'6vacuation existant,
s'assurer qu'il est propre. Le conduit d'6vacuation de la
s6cheuse doit _tre fix6 par-dessus la bouche d'6vacuation
de la s6cheuse, et & I'int6rieur du clapet d'6vacuation. V6rifier
que le conduit d'6vacuation est fix6 au clapet d'6vacuation
&I'aide d'une bride de serrage de 4" (102 mm).
S ¸¸
A. Raccord flexible de gaz
de 3/8"
B. Conduit de la s_cheuse
de 3/8"
On doit utiliser une combinaison de raccords de tuyauterie
pour raccorder la s6cheuse a I'alimentation en gaz existante.
L'illustration pr6sente un raccordement recommand&
Le raccordement peut varier selon le type, la taille et
I'emplacement de la canalisation d'alimentation.
C. Coude de 3/8" par 3/8"
D.Adaptateur entre le conduit
et lejoint conique de 3/8"
3. Ouvrir le robinet d'arr6t du gaz
Robinet _
2, D_placer la s6cheuse a son
emplacement final
Placer la s6cheuse a son emplacement final. Eviter d'6craser
ou de d6former le conduit d'6vacuation. Une fois que la
s6cheuse est & son emplacement d6finitif, 6ter les corni_res
et le carton du dessous de la s6cheuse.
Ouvrir le robinet d'arr_t de la canalisation d'alimentation;
le robinet est ouvert Iorsque la manette est parallele a la
canalisation de gaz. V6rifier ensuite tousles raccordements
en les badigeonnant d'une solution de d6tection des fuites
non corrosive approuv6e. Uapparition de bulles indique
la pr6sence d'une fuite. R6parer toute fuite 6ventuelle.
1®TEFLON est une marque depos6e de E.I. Du Pont De Nemours et Compagnie.
34
Page 35

R glage de l'aplornb de la s cheuse
V@ifier I'aplomb de la s6cheuse d'un c6t6 a I'autre. R6p6ter
I'op@ation de I'avant vers I'arri_re.
REMARQUE : La s6cheuse dolt _tre d'aplomb pour que
le systeme de detection d'humidite fonctionne correctement.
Pas d'aplomb D'APLOMB Pas d'aplomb
2, Setter et ajuster ies pieds de
niveilement
Achever I'installation =
liste de v rification
[_ Verifier que toutes les pieces sont maintenant installees.
S'il reste une piece, passer en revue les differentes Crapes
pour decouvrir laquelle aurait ere oubliee.
[_ Verifier la presence de tousles outils.
[_ Eliminer/recycler les mat@iaux d'emballage.
[_ V@ifier I'emplacement definitif de la secheuse. S'assurer
que le conduit d'evacuation n'est pas ecrase ou deform&
[_ Verifier que las6cheuse est d'aplomb. Voir "R6glage de
I'aplomb de la secheuse".
[_ Retirer la pellicule sur le panneau de commandeet tout ruban
adh6sif reste sur la secheuse.
C3
Essuyer soigneusement I'int@ieur du tambour de la secheuse
avec un chiffon humide pour eliminer toute trace de
poussiere.
Lire la section "Utilisation de la secheuse" dans le Guide
C3
d'utilisation et d'entretien.
C3
R6gler la secheuse pour un programme de sechage complet
(pas le programme de s6chage a Fair) de 20 minutes et mettre
la secheuse en marche.
Si la s_cheuse Re d_marre pas, v_rifier ce qui suit :
[] La secheuse est branch6e sur une prise &trois alveoles
reliee & la terre.
[] La prise de courant est correctement alimentee.
[] Les fusibles du domicile sont intacts et serres;
le disjoncteur n'est pas declench&
[] La porte de la secheuse est ferm6e.
C3
Apres 5 minutes de fonctionnement, ouvrir la porte de la
s6cheuse et determiner si I'on detecte de la chaleur. Si de la
chaleur est detect6e, annuler le programme et fermer la porte.
Si la secheuse n'est pas d'aplomb ou & la m_me hauteur que
la laveuse, la soulever a I'aide d'une cale en bois. Utiliser une
cle pour ajuster les pieds vers le haut ou vers le bas, et verifier
nouveau si elle est d'aplomb. Une fois que les pieds sont
d'aplomb, s'assurer que les quatre pieds sont solidement
appuyes contre le plancher avant de les serrer.
Si vous ne sentez aucune chaleur, eteindre la s6cheuse
et verifier si le robinet d'arr_t de la canalisation de gaz est
ouvert.
[] Si le robinet d'arr_t de la canalisation de gaz est ferme,
I'ouvrir, puis repeter le test de 5 minutes decrit ci-dessus.
[] Si le robinet d'arr_t de la canalisation de gaz est ouvert,
contacter un technicien qualifi&
REMARQUE : II est possible que la secheuse degage une
odeur Iors du chauffage initial. Cette odeur est normale Iorsque
I'element chauffant est utilise pour la premiere fois. Uodeur
disparaTtra.
35
Page 36

inversion du sens de I'ouverture
de la porte (facultatif}
Si la porte correspond a la porte a tr_s grande ouverture lat6rale
de 29", suivre les 6tapes 1 a 13 qui commencent a cette page.
Si la porte correspond a la porte a grande ouverture lat6rale de
27", suivre les 6tapes 1 a 11 qui commencent a la page 39.
Si la porte correspond a la porte a hublot a grande ouverture
lat6rale de 27", suivre les 6tapes 1 a 13 qui commencent a la
page 41.
2, ()ter ies vis inf_rieures
Ouvrir la porte de la s_cheuse. Oter les vis inf_rieures de la
portion des charnieres attach_e a la caisse de la s_cheuse.
Desserrer (ne pas retirer) les vis sup_rieures de la portion des
charnieres attach_e a la caisse de la s_cheuse.
3, Soulever ia porte pour ia d_gager
des vis sup_rieures
Placer une serviette sur le dessus de la s_cheuse )our _viter
d'endommager la surface.
Soulever la porte jusqu'a ce que les vis sup_rieures situ_es
dans la caisse de la s_cheuse se trouvent dans la pattie
_vas_e de I'encoche de charniere. Tirer la porte vers I'avant
pour la d_gager des vis. Placer la porte (c6t_ poign_e vers
le haut) sur la s_cheuse. Retirer les vis sup_rieures de la
caisse de la s_cheuse.
Retirer les vis fixant les charnieres a la porte.
36
Page 37

5, (_)ter les vis du panneau de porte
\
i
Retirer les vis du sommet, du bas et du c6t6 de la porte
(4 vis) qui tiennent ensemble la porte interne et la porte
externe. Tout en maintenant la porte sur la serviette et sur
la s6cheuse, saisir les c6t6s de la porte externe et la soulever
pour la s6parer de la porte interne. Mettre de c6t6 la porte
externe.
REIVIARQUE : Ne pas utiliser de couteau a mastic ou de
tournevis pour s6parer les portes. Ne pas tirer sur le joint
ou les pitons de retenue en plastique de la porte.
Inversion du cSt_ d'installation de
ia g&che, du boitier et du bouchon
d'obturation de la porte
7, Faire pivoter la porte externe
Faire pivoter la porte externe de 180° puis la replacer sur la
porte interne. Fixer a nouveau le panneau de porte externe
sur le panneau de porte interne de fagon & ce que la poign6e
se trouve du c6t6 oQ les charnieres viennent d'etre retir6es.
Ins6rer les 4 vis de porte.
8, Retoumer la porte
\
Gbche et Bouchon
boFtier d"obturation
Retirer la g&che de porte, le boftier et le bouchon d'obturation
du c6t6 int6rieur de la porte interne en serrant les c6t6s puis
en tirant/repoussant ces 616ments. Placer la g&che de porte,
le bottler et le bouchon d'obturation de la porte sur le c6t6
oppos6 aleur position pr6c6dente.
Retourner la porte de fa(;on ace que la poign6e soit orient6e
vers le bas.
9, Fixer ies charni_res de porte
©
©
R6installer les charnieres de porte sur la porte de la s6cheuse
de fa(;on &ce que le trou le plus gros se trouve dans la pattie
inf6rieure de la charniere.
37
Page 38

Retirer le piton de retenue de
ia porte et ie bouchon
d'obturation de piton de ia porte
Retirer le piton de retenue de la porte et le bouchon
d'obturation de piton de la porte de la caisse de la s6cheuse.
Ins6rer le piton de retenue de la porte dans le trou du
bouchon d'obturation de piton de la porte et fixer avec une
vis. Ins6rer le bouchon d'obturation de piton de la porte dans
le trou d'origine de piton de la porte et fixer avec une vis.
1 1, Retirer ies bouchons
de chami_re et les transf_rer
1:2, InsUrer les vis dans les trous
de chami_re de ia caisse de
la s_cheuse
REMARQUE : II faudra peut-_tre deux personnes pour
r6installer la porte.
Ins6rer les vis dans les trous inf6rieurs du c6t6 gauche de
la caisse de la s6cheuse. Setter les visa moiti6. Positionner
la porte de fagon ace que le c6t6 large de I'encoche de la
charniere de porte se trouve au-dessus des vis. Faire glisser
la porte vers le haut de fagon ace que les vis se trouvent
au fond des encoches. Resserrer les vis. Ins6rer les vis
sup6rieures dans les charnieres et les setter.
13. Contr61er I'alignement du
piton de ia porte
I
I
Utiliser un petit tournevis a lame plate pour retirer avec
pr6caution les 4 bouchons d'obturation du c6t6 gauche
de la caisse de la s6cheuse. Transf6rer les bouchons
d'obturation dans les trous de charniere du c6t6 oppos6
de la caisse de la s6cheuse.
38
Fermer la porte et v6rifier que le piton de la porte est align6
avec le piton de retenue de la porte. Au besoin, faire glisser
la g&che de la porte vers la gauche ou vers la droite
I'int6rieur de I'encoche pour r6gler I'alignement.
Page 39

Porte _ grande ouverture {at_rale de 27"
f
1, Placer une serviette sur
la s_cheuse
Placer la serviette sur le dessus de la s_cheuse pour _viter
d'endommager la surface.
4, Oter ies vis des charni_res
Retirer les vis fixant les charnieres & la porte.
Ouvrir la porte de la s_cheuse. Oter les vis inf_rieures de la
portion des charnieres attach_e a la caisse de la s_cheuse.
Desserrer (ne pas retirer) les vis sup_rieures de la portion des
charnieres attach_e a la caisse de la s_cheuse.
des vis sup_rieures
Soulever la porte jusqu'a ce que les vis sup_rieures situ_es
dans la caisse de la s_cheuse se trouvent dans la pattie
_vas_e de I'encoche de charniere. Tirer la porte vers I'avant
pour la d_gager des vis. Placer la porte (c6t_ poign_e vers
le haut) sur la s_cheuse. Retirer les vis sup_rieures de la
caisse de la s_cheuse.
Retirer les vis du sommet, du bas et du c6t_ de la porte
(6 vis). Conserver s_par_ment les vis de porte et les vis
de charniere, car elles sont de tallies diff_rentes. Tout en
maintenant la porte sur la serviette et sur la s_cheuse, saisir
les c6t_s de la porte externe et la soulever pour la s_parer
de la porte interne.
REIVlARQUE : Ne pas utiliser de couteau & mastic ou de
tournevis pour s_parer les portes. Ne pas tirer sur lejoint
ou les pitons de retenue en plastique de la porte.
6, Faire pivoter la porte externe
Faire pivoter de 180° puis la replacer sur la porte interne.
Veiller &maintenir la cale d'espacement en carton centr_e
entre les portes. Fixer a nouveau le panneau de porte externe
sur le panneau de porte interne de fagon & ce que la poign_e
se trouve du c6t_ oQ les charnieres viennent d'etre retirees.
Ins6rer les 6 vis de porte.
39
Page 40

7, Retoumer ia porte
et les transf_rer
1
Retourner la porte de fa(;on ace que la poign6e soit orient6e
vers le bas.
8, Fixer les charni_res de porte
R6installer les charni_res de porte sur la porte de la s6cheuse
de fa(;on ace que le trou le plus gros se trouve dans la partie
inf6rieure de la charniere.
Oter les 4 vis fixant les 2 bouchons d'obturation du c6t6
gauche. Transf6rer les bouchons d'obturation au c6t6 oppos6
I'aide des memes 4 vis.
de charni_re de ia caisse de
ia s_cheuse
REMARQUE : II faudra peut-_tre deux personnes pour
r6installer la porte.
Ins6rer les vis dans les trous inf6rieurs du c6t6 gauche de
la caisse de la s6cheuse. Serrer les visa moiti6. Positionner
la porte de fagon a ce que le c6t6 large de I'encoche de la
charniere de porte se trouve au-dessus des vis. Faire glisser
la porte vers le haut de fagon ace que les vis se trouvent
au fond des encoches. Resserrer les vis. Ins6rer les vis
sup6rieures dans les charnieres et les setter.
4O
Page 41

piton de la porte des vis sup_rieures
Fermer la porte et v6rifier que le piton de la porte est align6
avec la g&che de la porte. Au besoin, faire glisser la g&che
de la porte vers la gauche ou vers la droite a I'int6rieur de
I'encoche pour r6gler I'alignement.
Porte & hublot _ grande ouverture lat_rale de 27"
1, Placer une serviette sur
ia s_cheuse
©
Placer la serviette sur le dessus de la s_cheuse pour _viter
d'endommager la surface.
Soulever la porte jusqu'a ce que les vis sup_rieures situ_es
dans la caisse de la s_cheuse se trouvent dans la partie
_vas_e de I'encoche de charniere. Tirer la porte vers I'avant
pour la d_gager des vis. Placer la porte (c6t_ poign_e vers le
haut) sur la s_cheuse. Retirer les vis sup_rieures de la caisse
de la s_cheuse.
Retirer les vis fixant les charnieres a la porte.
Ouvrir la porte de la s_cheuse. Oter les vis inf_rieures de la
portion des charni_res attach_e a la caisse de la s_cheuse.
Desserrer (ne pas retirer) les vis sup_rieures de la portion des
charnieres attach_e a la caisse de la s_cheuse.
Retourner la porte de fa£:on ace que la poign_e soit orient_e
vers le bas.
41
Page 42

Retirer les vis du sommet, du bas et du c6t6 de la porte
(4 vis). Conserver s6par6ment les vis de porte et les vis
de charniere, car elles sont de taffies diff6rentes.
de la porte externe
9, Fixer ies charni_res de porte
R6installer les charnieres de porte sur laporte de la s6cheuse
de fa£:on ace que le trou le plus gros se trouve dans la partie
inf6rieure de la charniere.
Tout en maintenant la porte sur la serviette et sur la s6cheuse,
ouvrir, en faisant levier, la porte interne et soulever pour la
s6parer de la porte externe.
REMARQUE : Ne pas tirer sur le joint ou les pitons de retenue
en plastique de la porte.
8. Faire pivoter ia porte externe
Faire pivoter de 180 ° puis la replacer sur la porte interne.
Veiller & maintenir la cale d'espacement en carton centr6e
entre les portes. Fixer a nouveau le panneau de porte externe
sur le panneau de porte interne de fagon ace que la poign6e
se trouve du c6t6 oQ les charnieres viennent d'etre retir6es.
Ins6rer les 4 vis de porte.
la porte et son _tiquette
Retirer le piton de retenue de la porte et son 6tiquette de la
caisse de la s6cheuse. Ins6rer le piton de retenue de la porte
dans le trou duquel 1'6tiquette a 6t6 retir6e et fixer avec une
vis. Obturer le trou d'origine du piton de retenue de la porte
avec 1'6tiquette et appuyer fermement pour la maintenir en
place.
42
Page 43

_, Retirer les bouchons d'obturation
et ies transf_rer
Oter les 4 vis fixant les 2 bouchons d'obturation du c6t6
gauche. Transf6rer les bouchons d'obturation au c6t6 oppos6
I'aide des memes 4 vis.
piton de la porte
Fermer la porte et v6rifier que le piton de la porte est align6
avec la g&che de la porte. Au besoin, faire glisser la g&che
de la porte vers la gauche ou vers la droite a I'int6rieur de
I'encoche pour r6gler I'alignement.
de charni_re de ia caisse de
la s_cheuse
REIVlARQUE : II faudra peut-_tre deux personnes pour
r6installer la porte.
Ins6rer les vis dans les trous inf6rieurs du c6t6 gauche de
la caisse de la s6cheuse. Setter les vis a moiti6. Positionner
la porte de fagon ace que le c6t6 large de I'encoche de la
charniere de porte se trouve au-dessus des vis. Faire glisser la
porte vers le haut de fagon a ce que les vis se trouvent au fond
des encoches. Resserrer les vis. Ins6rer les vis sup6rieures
dans les charnieres et les setter.
D_pannage
Voir le Guide d'utilisation et d'entretien ou consulter notre site
Web et la "Foire aux questions" pour tenter d'6viter le coot
d'une intervention de r6paration.
43
Page 44

W10562360A
W10562361A=SP
(_)/TM©2013 Whirlpool. All rights reserved.
Used under license in Canada.
@/TM©2013 Whirlpool. Tous droits r6serv6s.
Emploi sous licence au Canada.
Printed in U.S.A.
Imprim6 aux E.-U.
05/13